·Î±×ÀÎ
100
´Ù¼¼´ë(ºô¶ó)
ÀÎõÁö¹æ¹ý¿ø
 °¨Á¤°¡164,000,000 ¿ø
 ÃÖÀú°¡(100%) 164,000,000 ¿ø
 º¸Áõ±Ý(10%) 16,400,000 ¿ø
 Ã»±¸¾×25,342,354 ¿ø
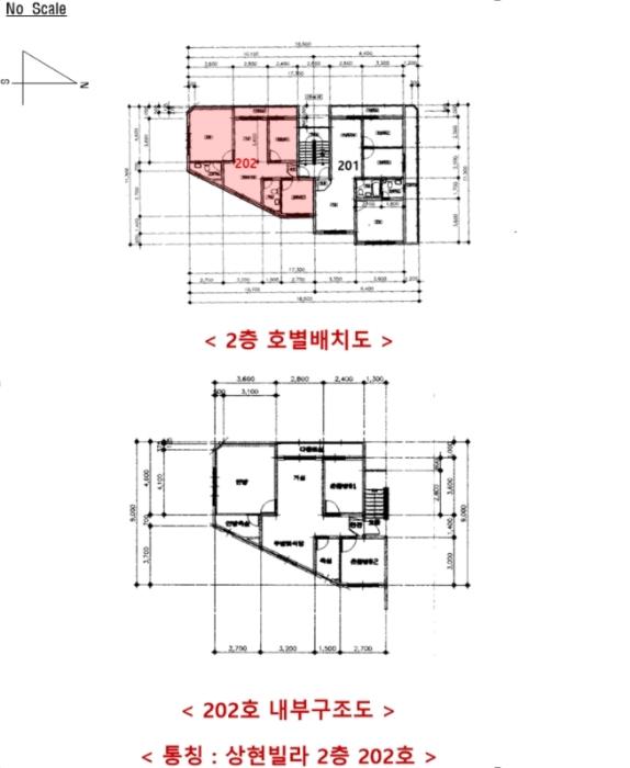
ÀÎõ±¤¿ª½Ã ³²µ¿±¸ Àå½Â³²·Î33¹ø±æ 30-11, 2Ãþ202È£
ÀÎõ±¤¿ª½Ã ³²µ¿±¸ ¸¸¼öµ¿ 1088-8
»ç°Ç¹øÈ£ 2024Ÿ°æ567627
°æ¸ÅÁ¾·ùºÎµ¿»ê°­Á¦°æ¸Å
¸Å°¢´ë»óÅäÁö ¹× °Ç¹°Àϰý ¸Å°¢
¸Å°¢±âÀÏ    2025.11.26(¼ö) 10:00 ÀÔÂû 1ÀÏÀü    
ÅäÁö¸éÀû43.13§³(13.05 Æò)
°Ç¹°¸éÀû68.86§³(20.83 Æò)
乫/¼ÒÀ¯ÀÚÀ¯OO / À¯OO
ä±ÇÀÚÀÎOOOOOOO
ÆäÀ̽ººÏ Æ®À§ÅÍ ±¸±Û+
īī¿À½ºÅ丮
īī¿ÀÅå sms¹®ÀÚº¸³»±â
 

±âÀϳ»¿ª

°æ°ú ³¯Â¥ Àú°¨ ÃÖÀú°¡ °á°ú
Á¢¼öÀÏ 2024-10-16 °æ¸ÅÁ¢¼ö
~1ÀÏ 
2024-10-17 °æ¸Å°³½Ã°áÁ¤
~90ÀÏ 
2025-01-14 ¹è´ç¿ä±¸Á¾±âÀÏ
~406ÀÏ 
2025-11-26 100%
164,000,000
ÁøÇà
¹°°Ç¸í¼¼¼­ ÇöȲÁ¶»ç¼­ ¹®°ÇÁ¢¼ö ¼Û´Þ³»¿ª

°¨Á¤Æò°¡ÇöȲ

¸ñ·Ï ÁÖ¼Ò ±¸Á¶/¿ëµµ/´ëÁö±Ç ¸éÀû ºñ°í
´ëÁö±Ç
¸¸¼öµ¿ 1088-8 315.3ºÐÀÇ 43.129 43.129 §³
(13.05Æò)
°Ç¹°
¸¸¼öµ¿ 1088-8 2Ãþ202È£ ö±ÙÄÜÅ©¸®Æ®Á¶ 68.86 §³
(20.83Æò)
1) À§Ä¡/Á¦2Á¾ÀϹÝÁÖ°ÅÁö¿ª/Á¦1Á¾Áö±¸´ÜÀ§°èȹ±¸¿ª/Â÷·®ÀÇ Á¢±ÙÀÌ °¡´É/ö±ÙÄÜÅ©¸®Æ®Á¶/½º¶óºêÁöºØ/µµ½Ã°¡½º ´õº¸±â
°¨Á¤Æò°¡ ¿äÇ×Ç¥
1)À§Ä¡ ¹× ÁÖÀ§È¯°æ
º»°ÇÀº ÀÎõ±¤¿ª½Ã ³²µ¿±¸ ¸¸¼öµ¿ ¼ÒÀç "ÀÎõ³²µ¿ÃʵîÇб³" ºÏÃø Àαٿ¡ À§Ä¡Çϸç, ÁÖÀ§´Â ¾ÆÆÄÆ®, °øµ¿ÁÖÅà ¹× °¢Á¾ ±Ù¸°»ýȰ½Ã¼³ µîÀÌ È¥ÀçÇÏ´Â Áö¿ªÀÓ.
2)±³Åë»óȲ
Â÷·®ÀÇ Á¢±ÙÀÌ °¡´ÉÇÏ¸ç ºÏÃø Àαٿ¡ ÀÎõ 2È£¼± "³²µ¿±¸Ã»¿ª"ÀÌ À§Ä¡Çϸç, Àα٠³ë¼± ¹ö½º Á¤·ùÀå µîÀÌ ¼ÒÀçÇÏ´Â ¹Ù, Àü¹ÝÀûÀÎ ´ëÁß±³Åë¿©°ÇÀº º¸ÅëÀÓ.
3)°Ç¹°ÀÇ ±¸Á¶
ö±ÙÄÜÅ©¸®Æ®Á¶ ½º¶óºêÁöºØ 4Ãþ °Ç¹° ³» 2Ãþ 202È£·Î¼­,
(»ç¿ë½ÂÀÎÀÏ : 1998.03.26)

¿Üº®: µå¶óÀ̺ñÆ® µî ¸¶°¨.
âȣ: »õ½Ãâȣ µîÀÓ.

4)ÀÌ¿ë»óÅÂ
´Ù¼¼´ëÁÖÅÃÀ¸·Î ÀÌ¿ëÁßÀÓ.
5)¼³ºñ³»¿ª
±âº»ÀûÀÎ À§»ý ¹× ±Þ¹è¼ö¼³ºñ, ³­¹æ¼³ºñ, µµ½Ã°¡½º¼³ºñ µîÀÌ µÇ¾îÀÖÀ½.

6)ÅäÁöÀÇ Çü»ó ¹× ÀÌ¿ë»óÅÂ
»ç´Ù¸®ÇüÀÇ ÅäÁö·Î¼­ ÁÖ°Å¿ë(´Ù¼¼´ëÁÖÅÃ) °ÇºÎÁö·Î ÀÌ¿ëÁßÀÓ.
7)ÀÎÁ¢ µµ·Î»óŵî
º»°Ç ¼­Ãø ¹× ³²ÃøÀ¸·Î ³ëÆø ¾à 6m ³»¿ÜÀÇ ¾Æ½ºÆÈÆ® Æ÷Àåµµ·Î¿Í °¢°¢ Á¢ÇÔ.
8)ÅäÁöÀÌ¿ë°èȹ ¹× Á¦ÇÑ»óÅÂ
Á¦2Á¾ÀϹÝÁÖ°ÅÁö¿ª,Á¦1Á¾Áö±¸´ÜÀ§°èȹ±¸¿ª(¸¸¼ö3),°¡Ãà»çÀ°Á¦Çѱ¸¿ª(2013-03-08)((¹®ÀÇ:³²µ¿±¸È¯°æº¸Àü°ú 032-453-2343))<°¡ÃàºÐ´¢ÀÇ °ü¸® ¹× À̿뿡 °üÇÑ ¹ý·ü>,»ó´ëº¸È£±¸¿ª(¹®ÀÇ:
ÀÎõµ¿ºÎ±³À°Áö¿øÃ» Æò»ý±³À°°Ç°­°ú 460-6086)<±³À°È¯°æ º¸È£¿¡ °üÇѹý·ü>,°ú¹Ð¾ïÁ¦±Ç¿ª
<¼öµµ±ÇÁ¤ºñ°èȹ¹ý>

9)°øºÎ¿ÍÀÇ Â÷ÀÌ
-
10)±âŸÂü°í»çÇ×(ÀÓ´ë°ü·Ê ¹× ±âŸ)
ÀÓ´ë°ü°è´Â ¹Ì»óÀÓ.
Âü°í
»çÇ×
ÅëĪ:»óÇöºô¶ó

°ÇÃ๰ÇöȲ

¼ÒÀçÁö ÀÎõ±¤¿ª½Ã ³²µ¿±¸ ¸¸¼öµ¿ 1088-8¹øÁö
´ëÁö¸éÀû 315.3§³
(95.55Æò)
¿¬¸éÀû 560.08§³
(169.72Æò)
°ÇÃà¸éÀû 166.81§³
(50.55Æò)
¿ëÀû·ü»êÁ¤
¿¬¸éÀû
549.16§³
(166.41Æò)
°ÇÆóÀ² 52.91% ¿ëÀû·ü 174.17%
Áö»óÃþ¼ö 4Ãþ ÁöÇÏÃþ¼ö 1Ãþ
ÁÖ¿ëµµ °øµ¿ÁÖÅà ±¸Á¶ ö±ÙÄÜÅ©¸®Æ®±¸Á¶
Âø°øÀÏÀÚ 1995.08.07 »ç¿ë½ÂÀÎÀÏÀÚ 1998.03.26
°ÇÃ๰Ãþº°ÇöȲ [º¸±â]


±¹ÅäºÎ½Ç°Å·¡°¡ ÀÎõ±¤¿ª½Ã ³²µ¿±¸ ¸¸¼öµ¿

¡Ü ¸Å¸Å

¸éÀû(§³), ±Ý¾×(¸¸¿ø)

¡Ü Àü¼¼

¸éÀû(§³), ±Ý¾×(¸¸¿ø)

°è¾àÀϰǹ°¸íĪÃþ¿¬¸éÀû´ëÁö±Ý¾×°ÇÃà
24.03.30Àײ¿È¨Å¸¿î(1087-13)331.0515.696,5002001
24.03.29´õÀ£½ÃƼ870.6634.0419,5002019
24.03.29ÇýÀÎ(893-2)Bµ¿134.5634.06249,2001988
24.03.29¸í¼º¸Ç¼Ç533.8516.37,0002002
24.03.28¿ì¸²ºô¶ó(980-14)7µ¿33626.764,9001990
¢Ñ ´õº¸±â

µî±âºÎµîº» ¿ä¾à(°Ç¹°)

  Á¢¼öÀÏÀÚ µî±â¸ñÀû/±Ç¸®ÀÚ ±Ç¸®±Ý¾× ±âÁØ
1 2023³â5¿ù3ÀÏ
¼ÒÀ¯±Ç
À¯OO
¼Ò¸ê
2 2023³â5¿ù3ÀÏ
±ÙÀú´ç±Ç
ÇÑOOOO
123,200,000 ¼Ò¸ê±âÁØ
3 2024³â1¿ù19ÀÏ
¾Ð·ù
±¹
¼Ò¸ê
4 2024³â3¿ù12ÀÏ
¾Ð·ù
ÀÎOOOO
¼Ò¸ê
5 2024³â7¿ù17ÀÏ
°¡¾Ð·ù
ÀÎOOOO
24,668,885 ¼Ò¸ê
6 2024³â10¿ù2ÀÏ
(1)±ÙÀú´ç±Ç¼³Á¤
ÀåOO
44,700,000 ¼Ò¸ê
7 2024³â10¿ù2ÀÏ
(2)±ÙÀú´ç±Ç¼³Á¤
ÀÌOOOO
42,300,000 ¼Ò¸ê
8 2024³â10¿ù2ÀÏ
(3)±ÙÀú´ç±Ç¼³Á¤
¼®OO
28,900,000 ¼Ò¸ê
9 2024³â10¿ù17ÀÏ
°­Á¦°æ¸Å
ÀÎOOOO
¼Ò¸ê

ÀÓÂ÷ÀÎÇöȲ (¹è´ç¿ä±¸Á¾±âÀÏ: 2025-01-14)

ÀÓÂ÷ÀÎ ¿ëµµ/Á¡À¯ º¸Áõ±Ý/¿ù¼¼ ´ëÇ×·Â
ÀüÀÔÀÏ/È®Á¤ÀÏ ¹è´ç¿ä±¸ ºñ°í
±èOO ÀüºÎ 30,000,000
[¿ù]400,000
X
2023.07.04.
2023.07.10.
2024.12.18. 2023.06.24.~2025.06.23.

¿©ÀÇÁÖ°æ¸Å Á¶¾ð ÇÑ ¸¶µð

ÃëÇÏ ¶Ç´Â Ãë¼ÒµÉ °¡´É¼º ÀÖ½À´Ï´Ù
ÀÌ ¹°°ÇÀÇ °¨Á¤°¡°ÝÀº 164,000,000¿øÀÔ´Ï´Ù. °æ¸Å¸¦ ½ÅûÇÑ Ã¤±ÇÀÚ°¡ ¹è´ç ¹Þ¾Æ¾ß ÇÒ ±Ý¾×Àº 25,342,354¿øÀ¸·Î °¨Á¤°¡°Ý ´ëºñ »ó´çÈ÷ ÀûÀº ±Ý¾×ÀÔ´Ï´Ù. ÀÌ·± °æ¿ì, 乫°¡°¡ º¯Á¦ÇÏ¿© °æ¸Å¸¦ ÃëÇϽÃŰ°Å³ª °æ¸Å½Åûä±ÇÀÚ°¡ ¹è´ç¹ÞÀº ±Ý¿øÀÌ ¾ø°ÔµÇ¾î À̸¥ ¹Ù "¹«À׿©¿¡ ÀÇÇÑ Ãë¼Ò"°¡ µÉ °¡´É¼ºÀÌ ÀÖ½À´Ï´Ù.

ÁÖÀÇ»çÇ× (ÃÖ¼±¼øÀ§ ¼³Á¤ÀÏ: 2023.5.3.±ÙÀú´ç±Ç ¼³Á¤)

¸Å°¢À¸·Î ¼Ò¸êµÇÁö ¾Ê´Â µî±âºÎ±Ç¸®:
¸Å°¢À¸·Î ¼³Á¤µÈ °ÍÀ¸·Î º¸´Â Áö»ó±Ç:
ÅëĪ:»óÇöºô¶ó
¡Ø¹Ì³³°ü¸®ºñ(°ø¿ë) Àμö¿©ºÎ¸¦ ÀÔÂû Àü¿¡ È®ÀÎÇϽñ⠹ٶø´Ï´Ù

 

Áö¿ªºÐ¼®

ÁöÇÏö¸í Á÷¼±°Å¸®

Çб³¸í ÀüÈ­¹øÈ£ ÁÖ¼Ò Á÷¼±°Å¸®

¹ý¿ø

ÀÎõÁö¹æ¹ý¿ø (222-20)ÀÎõ±¤¿ª½Ã ¹ÌÃßȦ±¸ ¼Ò¼º·Î 163¹ø±æ 17(ÇÐÀ͵¿)
´ëÇ¥ : 032)860-1113~4
°üÇÒÁö¿ª : Áß±¸, µ¿±¸, ³²±¸, ¿¬¼ö±¸, ³²µ¿±¸, ºÎÆò±¸, °è¾ç±¸, ¼­±¸, ¿ËÁø±º, °­È­±º

µî±â¼Ò ÀÎõÁö¹æ¹ý¿ø º»¿ø µî±â±¹ (´ëÇ¥:1544-0773, ÆÑ½º:(032)620-9099, ÀÎõ±¤¿ª½Ã ¹ÌÃßȦ±¸ °æ¿ø´ë·Î 881(Á־ȵ¿ 983))
¼¼¹«¼­ ³²ÀÎõ¼¼¹«¼­ (´ëÇ¥:032-460-52, ÆÑ½º:032-463-5778, ÀÎõ±¤¿ª½Ã ³²µ¿±¸ ÀÎÇÏ·Î 548 (±¸¿ùµ¿))

Àαٳ«ÂûÅë°è

±â°£ ¸Å°¢°Ç¼ö Æò±Õ°¨Á¤°¡
Æò±Õ¸Å°¢°¡
¸Å°¢°¡À²
Æò±ÕÀ¯Âû¼ö
3°³¿ù 51°Ç 127,792,549¿ø
76,588,866¿ø
58%
2.6ȸ
6°³¿ù 140°Ç 130,781,571¿ø
81,401,546¿ø
60%
2.3ȸ
12°³¿ù 260°Ç 128,524,437¿ø
81,549,935¿ø
61%
2.2ȸ


º» °æ¸ÅÁ¤º¸´Â ¹ý¿øÀÚ·á¿Í ÀÏÄ¡Çϵµ·Ï ÇÏ¿´À¸³ª ±Ç¸®»çÇ׺¯µ¿, ÀÔ·ÂÂø¿À µîÀÇ ¿øÀÎÀ¸·Î »ç½Ç°ú ´Ù¸¦ ¼ö ÀÖ½À´Ï´Ù. ÀÌ¿ë¾à°ü¿¡ ÀǰЏéÃ¥Á¶°ÇÀ¸·Î Á¦°øµÊÀ» ¾Ë¸®¸ç, °æ¸ÅÀÔÂû½Ã ¹Ýµå½Ã °ü·Ã °øºÎ¸¦ ÀçÈ®ÀÎÇϽñ⠹ٶø´Ï´Ù. º¸´Ù Æí¸®ÇÑ °æ¸ÅÁ¤º¸ Á¦°øÀ» À§ÇØ Áö¼ÓÀûÀ¸·Î °³¼±ÇϰڽÀ´Ï´Ù. ÀÌ¿ëÇØ Áּż­ °¨»çÇÕ´Ï´Ù.