·Î±×ÀÎ
103
¿ÀÇǽºÅÚ
ÀÎõÁö¹æ¹ý¿ø ºÎõÁö¿ø
 °¨Á¤°¡335,000,000 ¿ø
 ÃÖÀú°¡(70%) 234,500,000 ¿ø
 º¸Áõ±Ý(10%) 23,450,000 ¿ø
 Ã»±¸¾×360,000,000 ¿ø
°æ±âµµ ºÎõ½Ã ¿ø¹Ì±¸ ½É°îµ¿ 160-25 ¿À¸£Áö¿À1Â÷ 4Ãþ401È£
»ç°Ç¹øÈ£ 2025Ÿ°æ33215
°æ¸ÅÁ¾·ùºÎµ¿»ê°­Á¦°æ¸Å
¸Å°¢´ë»óÅäÁö ¹× °Ç¹°Àϰý ¸Å°¢
¸Å°¢±âÀÏ    2025.12.24(¼ö) 10:00 ÀÔÂû 16ÀÏÀü    
ÅäÁö¸éÀû26.56§³(8.03 Æò)
°Ç¹°¸éÀû63.25§³(19.13 Æò)
乫/¼ÒÀ¯ÀÚ±èOO / ±èOO
ä±ÇÀÚÁÖOOOOOOO
ÆäÀ̽ººÏ Æ®À§ÅÍ ±¸±Û+
īī¿À½ºÅ丮
īī¿ÀÅå sms¹®ÀÚº¸³»±â
 

±âÀϳ»¿ª

°æ°ú ³¯Â¥ Àú°¨ ÃÖÀú°¡ °á°ú
Á¢¼öÀÏ 2025-04-04 °æ¸ÅÁ¢¼ö
~3ÀÏ 
2025-04-07 °æ¸Å°³½Ã°áÁ¤
~82ÀÏ 
2025-06-25 ¹è´ç¿ä±¸Á¾±âÀÏ
~236ÀÏ 
2025-11-26 100%
335,000,000
À¯Âû
~264ÀÏ 
2025-12-24 70%
234,500,000
ÁøÇà
¹°°Ç¸í¼¼¼­ ÇöȲÁ¶»ç¼­ ¹®°ÇÁ¢¼ö ¼Û´Þ³»¿ª

°¨Á¤Æò°¡ÇöȲ

¸ñ·Ï ÁÖ¼Ò ±¸Á¶/¿ëµµ/´ëÁö±Ç ¸éÀû ºñ°í
´ëÁö±Ç
½É°îµ¿ 160-25 185.9ºÐÀÇ 26.5572 26.5572 §³
(8.03Æò)
°Ç¹°
½É°îµ¿ 160-25 4Ãþ401È£ ö±ÙÄÜÅ©¸®Æ®±¸Á¶ 63.245 §³
(19.13Æò)
1) À§Ä¡/ÁØÁÖ°ÅÁö¿ª/Á¦¹ÝÂ÷·® ÃâÀÔ/³ë¼±¹ö½º Á¤·ùÀå/ö±ÙÄÜÅ©¸®Æ®±¸Á¶/Æò½½·¡ºêÁöºØ ´õº¸±â
°¨Á¤Æò°¡ ¿äÇ×Ç¥
1)À§Ä¡ ¹× ÁÖÀ§È¯°æ
º»°ÇÀº ºÎõ½Ã ¿ø¹Ì±¸ ½É°îµ¿ ¼ÒÀç ¿ø¹ÌÃʵîÇб³ ³²¼­Ãø Àαٿ¡ À§Ä¡Çϸç ÁÖº¯Àº ´Ù¼¼´ë, ¿ÀÇǽºÅÚ, ´Üµ¶ ¹× ·Îº¯À¸·Î ±Ù¸°»ó°¡ µîÀÌ ¼ÒÀçÇÏ´Â ÁÖÅÃÁö´ëÀÓ.

2)±³Åë»óȲ
º»°Ç±îÁö Á¦¹ÝÂ÷·® ÃâÀÔ°¡´ÉÇϸç Àαٿ¡ ³ë¼±¹ö½º Á¤·ùÀåÀÌ ¼ÒÀçÇϰí ÀÖ°í ³²¼­Ãø Àαٿ¡ Àüö 'ºÎõ¿ª'ÀÌ ¼ÒÀçÇÏ¿© Á¦¹Ý±³Åë»çÁ¤Àº ¹«³­ÇÑ ÆíÀÓ.

3)°Ç¹°ÀÇ ±¸Á¶
ö±ÙÄÜÅ©¸®Æ®±¸Á¶ Æò½½·¡ºêÁöºØÀÇ 8Ãþ °Ç¹°ÀÌ¸ç »ç¿ë½ÂÀÎÀÏÀº 2020-11-30 ÀÓ.
¿Üº® : º®µ¹Å¸ÀÏ, µå¶óÀ̺ñÆ® µî
³»º® : ŸÀÏ, ÆäÀÎÆ® µî
âȣ : »ñ½ÃâÀÓ.

4)ÀÌ¿ë»óÅÂ
¾÷¹«½Ã¼³(¿ÀÇǽºÅÚ)·Î ÀÌ¿ë ÁßÀÓ.
(* ³»ºÎ±¸Á¶µµ º°Ã·)

5)¼³ºñ³»¿ª
À§»ý ¹× ±Þ¹è¼ö ¼³ºñ, ³­¹æ¼³ºñ, ½Â°­±â ¼³ºñ µî
6)ÅäÁöÀÇ Çü»ó ¹× ÀÌ¿ë»óÅÂ
Á¤¹æÇüÀÇ ÅäÁö·Î ¾÷¹«½Ã¼³(¿ÀÇǽºÅÚ)ÀÇ °ÇºÎÁö·Î ÀÌ¿ëÁßÀÓ.

7)ÀÎÁ¢ µµ·Î»óŵî
µ¿ÃøÀ¸·Î ¾à 8m µµ·Î¿¡ Á¢Çϰí ÀÖÀ½.
8)ÅäÁöÀÌ¿ë°èȹ ¹× Á¦ÇÑ»óÅÂ
ÁØÁÖ°ÅÁö¿ª, ¹æÈ­Áö±¸, ¼Ò·Î2·ù(Æø 8m~10m)(Á¢ÇÕ), °¡Ãà»çÀ°Á¦Çѱ¸¿ª(ÀüºÎÁ¦Çѱ¸¿ª)<°¡ÃàºÐ´¢ÀÇ °ü¸® ¹× À̿뿡 °üÇÑ ¹ý·ü>, »ó´ëº¸È£±¸¿ª<±³À°È¯°æ º¸È£¿¡ °üÇÑ ¹ý·ü>, °ú¹Ð¾ïÁ¦±Ç¿ª<¼öµµ±ÇÁ¤ºñ°èȹ¹ý>
9)°øºÎ¿ÍÀÇ Â÷ÀÌ
--

10)±âŸÂü°í»çÇ×(ÀÓ´ë°ü·Ê ¹× ±âŸ)
ÀÓ´ëÂ÷°ü°è´Â ¹Ì»óÀÓ.

°ÇÃ๰ÇöȲ

¼ÒÀçÁö °æ±âµµ ºÎõ½Ã ¿ø¹Ì±¸ ½É°îµ¿ 160-25¹øÁö
´ëÁö¸éÀû 185.9§³
(56.33Æò)
¿¬¸éÀû 581.115§³
(176.1Æò)
°ÇÃà¸éÀû 88.63§³
(26.86Æò)
¿ëÀû·ü»êÁ¤
¿¬¸éÀû
557.375§³
(168.9Æò)
°ÇÆóÀ² 47.68% ¿ëÀû·ü 299.83%
Áö»óÃþ¼ö 8Ãþ ÁöÇÏÃþ¼ö 1Ãþ
ÁÖ¿ëµµ ¾÷¹«½Ã¼³ ±¸Á¶ ö±ÙÄÜÅ©¸®Æ®±¸Á¶
Âø°øÀÏÀÚ 2019.12.26 »ç¿ë½ÂÀÎÀÏÀÚ 2020.11.30
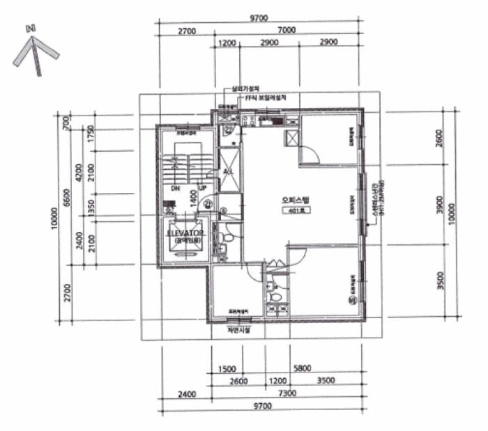
°ÇÃ๰Ãþº°ÇöȲ [º¸±â]


µî±âºÎµîº» ¿ä¾à(°Ç¹°)

  Á¢¼öÀÏÀÚ µî±â¸ñÀû/±Ç¸®ÀÚ ±Ç¸®±Ý¾× ±âÁØ
1 2021³â8¿ù2ÀÏ
¼ÒÀ¯±Ç
±èOO
¼Ò¸ê
2 2021³â8¿ù2ÀÏ
¾àÁ¤/±ÝÁö»çÇ×/ȯ¸ÅƯ¾à
Àμö
3 2023³â4¿ù28ÀÏ
¾Ð·ù
ºÎOO
¼Ò¸ê±âÁØ
4 2023³â5¿ù8ÀÏ
¾Ð·ù
±¹
¼Ò¸ê
5 2023³â8¿ù2ÀÏ
ÀÓÂ÷±Ç¼³Á¤
ÃÖOO
360,000,000 ¼Ò¸ê
6 2024³â1¿ù31ÀÏ
¾Ð·ù
¼­OOOO
¼Ò¸ê
7 2025³â4¿ù7ÀÏ
°­Á¦°æ¸Å
ÁÖOOOO
¼Ò¸ê

ÀÓÂ÷ÀÎÇöȲ (¹è´ç¿ä±¸Á¾±âÀÏ: 2025-06-25)

ÀÓÂ÷ÀÎ ¿ëµµ/Á¡À¯ º¸Áõ±Ý/¿ù¼¼ ´ëÇ×·Â
ÀüÀÔÀÏ/È®Á¤ÀÏ ¹è´ç¿ä±¸ ºñ°í
ÁÖOOOOOOOOOOOOOOO ÀüºÎ 360,000,000
O
2021.08.02
2021.07.05
2025.6.25. 2021.08.02.~2024.01.19
ÃÖOO ÀüºÎ 360,000,000
O
2021.08.02
2021.07.05
2021.08.02
ºñ°í
(¸Å°¢¹°°Ç
¸í¼¼¼­)
ÃÖÁ¤¹Î: ÁÖÅÃÀÓÂ÷±Çµî±â±Ç¸®Àڷμ­ ÁÖÅÃÀÓÂ÷±Çµî±âÀÏÀº 2023. 8. 2.ÀÓ ÁÖÅõµ½Ãº¸Áõ°ø»ç(ÀÓÂ÷ÀÎ ÃÖÁ¤¹Î): °æ¸Å½Åûä±ÇÀÚÀ̰í ÀÓÂ÷ÀÎ ÃÖÁ¤¹ÎÀÇ ÀÓÂ÷º¸Áõ±Ý¹Ýȯä±Ç ¾ç¼öÀÎÀ¸·Î¼­, º¸Áõ±Ý Àü¾×À» ¹è ´ç¹ÞÁö ¸øÇÏ´õ¶óµµ ÀÜÁ¸ ÀÓÂ÷º¸Áõ±Ý¹Ýȯä±ÇÀ» Æ÷±âÇϰí ÁÖÅÃÀÓÂ÷±Çµî±â ¸»¼Ò¿¡ µ¿ÀÇÇÑ´Ù´Â ÃëÁöÀÇ È®¾à¼­¸¦ Á¦ÃâÇÔ

¿©ÀÇÁÖ°æ¸Å Á¶¾ð ÇÑ ¸¶µð

¼±¼øÀ§ ÀÓÂ÷±Çµî±â°¡ µÇ¾î ÀÖ½À´Ï´Ù
´ëÇ×·ÂÀÌ ÀÖ´Â ¼±¼øÀ§ ÀÓÂ÷±Çµî±â ±Ç¸®ÀÚ°¡ ¹è´çÀ» Àü¾× ¹ÞÁö ¸øÇÒ °æ¿ì ³«ÂûÀÚ°¡ ÀÜ¿© º¸Áõ±ÝÀ» ÀμöÇØ¾ßÇÏ´Â °æ¿ìµµ ÀÖ½À´Ï´Ù.

ÁÖÀÇ»çÇ× (ÃÖ¼±¼øÀ§ ¼³Á¤ÀÏ: 2023. 4. 28. ¾Ð·ù ¼³Á¤)

¸Å°¢À¸·Î ¼Ò¸êµÇÁö ¾Ê´Â µî±âºÎ±Ç¸®: À»±¸ ¼øÀ§ 1¹ø ÁÖÅÃÀÓÂ÷±Çµî±â(´Ù¸¸ ÁÖÅõµ½Ãº¸Áõ°ø»çÀÇ ¸»¼Òµ¿ÀÇ È®¾à¼­°¡ Á¦ÃâµÊ)
¸Å°¢À¸·Î ¼³Á¤µÈ °ÍÀ¸·Î º¸´Â Áö»ó±Ç:
¡Ø¹Ì³³°ü¸®ºñ(°ø¿ë) Àμö¿©ºÎ¸¦ ÀÔÂû Àü¿¡ È®ÀÎÇϽñ⠹ٶø´Ï´Ù

 

Áö¿ªºÐ¼®

ÁöÇÏö¸í Á÷¼±°Å¸®

Çб³¸í ÀüÈ­¹øÈ£ ÁÖ¼Ò Á÷¼±°Å¸®

¹ý¿ø

ÀÎõÁö¹æ¹ý¿ø ºÎõÁö¿ø (146-02)°æ±âµµ ºÎõ½Ã ¿ø¹Ì±¸ »óÀÏ·Î 129(»óµ¿)
´ëÇ¥ : 032)320-1114, ¹Î¿ø : 032)320-1234
°üÇÒÁö¿ª : ºÎõ½Ã, ±èÆ÷½Ã

µî±â¼Ò ÀÎõÁö¹æ¹ý¿ø ºÎõÁö¿ø µî±â°ú (´ëÇ¥:1544-0773, ÆÑ½º:(032)320-1484, 320-1485, °æ±âµµ ºÎõ½Ã »óÀÏ·Î 129 (»óµ¿ 445-1))
¼¼¹«¼­ ¼¼¹«¼­ (´ëÇ¥:, ÆÑ½º:, )

Àαٳ«ÂûÅë°è

±â°£ ¸Å°¢°Ç¼ö Æò±Õ°¨Á¤°¡
Æò±Õ¸Å°¢°¡
¸Å°¢°¡À²
Æò±ÕÀ¯Âû¼ö
3°³¿ù 31°Ç 220,893,548¿ø
185,013,469¿ø
83%
1.2ȸ
6°³¿ù 37°Ç 233,856,757¿ø
190,192,562¿ø
83%
1.2ȸ
12°³¿ù 57°Ç 246,170,175¿ø
201,617,540¿ø
83%
1.2ȸ


º» °æ¸ÅÁ¤º¸´Â ¹ý¿øÀÚ·á¿Í ÀÏÄ¡Çϵµ·Ï ÇÏ¿´À¸³ª ±Ç¸®»çÇ׺¯µ¿, ÀÔ·ÂÂø¿À µîÀÇ ¿øÀÎÀ¸·Î »ç½Ç°ú ´Ù¸¦ ¼ö ÀÖ½À´Ï´Ù. ÀÌ¿ë¾à°ü¿¡ ÀǰЏéÃ¥Á¶°ÇÀ¸·Î Á¦°øµÊÀ» ¾Ë¸®¸ç, °æ¸ÅÀÔÂû½Ã ¹Ýµå½Ã °ü·Ã °øºÎ¸¦ ÀçÈ®ÀÎÇϽñ⠹ٶø´Ï´Ù. º¸´Ù Æí¸®ÇÑ °æ¸ÅÁ¤º¸ Á¦°øÀ» À§ÇØ Áö¼ÓÀûÀ¸·Î °³¼±ÇϰڽÀ´Ï´Ù. ÀÌ¿ëÇØ Áּż­ °¨»çÇÕ´Ï´Ù.