·Î±×ÀÎ
1269
¿ÀÇǽºÅÚ
¼ö¿øÁö¹æ¹ý¿ø
 °¨Á¤°¡124,000,000 ¿ø
 ÃÖÀú°¡(34%) 42,532,000 ¿ø
 º¸Áõ±Ý(10%) 4,253,200 ¿ø
 Ã»±¸¾×102,118,901 ¿ø
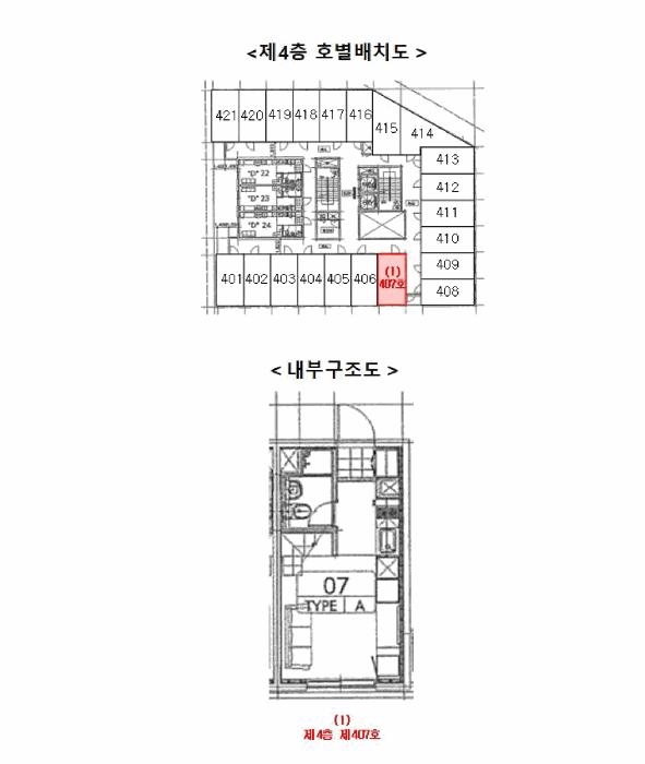
°æ±âµµ È­¼º½Ã ¿µÃµµ¿ 679-6 ÀÚÀ¯µå¸²Èú½º 4Ãþ407È£
»ç°Ç¹øÈ£ 2025Ÿ°æ54939
°æ¸ÅÁ¾·ùºÎµ¿»ê°­Á¦°æ¸Å
¸Å°¢´ë»óÅäÁö ¹× °Ç¹°Àϰý ¸Å°¢
¸Å°¢±âÀÏ    2026.03.23(¿ù) 10:00 ÀÔÂû 20ÀÏÀü    
ÅäÁö¸éÀû7.00§³(2.12 Æò)
°Ç¹°¸éÀû17.48§³(5.29 Æò)
乫/¼ÒÀ¯ÀÚÀÌOO / ÀÌOO
ä±ÇÀÚÃÖOO
ÆäÀ̽ººÏ Æ®À§ÅÍ ±¸±Û+
īī¿À½ºÅ丮
īī¿ÀÅå sms¹®ÀÚº¸³»±â
 

±âÀϳ»¿ª

°æ°ú ³¯Â¥ Àú°¨ ÃÖÀú°¡ °á°ú
Á¢¼öÀÏ 2025-03-05 °æ¸ÅÁ¢¼ö
~7ÀÏ 
2025-03-12 °æ¸Å°³½Ã°áÁ¤
~85ÀÏ 
2025-05-29 ¹è´ç¿ä±¸Á¾±âÀÏ
~266ÀÏ 
2025-11-26 100%
124,000,000
À¯Âû
~310ÀÏ 
2026-01-09 70%
86,800,000
À¯Âû
~342ÀÏ 
2026-02-10 49%
60,760,000
À¯Âû
~383ÀÏ 
2026-03-23 34%
42,532,000
ÁøÇà
¹°°Ç¸í¼¼¼­ ÇöȲÁ¶»ç¼­ ¹®°ÇÁ¢¼ö ¼Û´Þ³»¿ª

°¨Á¤Æò°¡ÇöȲ

¸ñ·Ï ÁÖ¼Ò ±¸Á¶/¿ëµµ/´ëÁö±Ç ¸éÀû ºñ°í
´ëÁö±Ç
¿µÃµµ¿ 679-6 1241.3ºÐÀÇ 7 7 §³
(2.12Æò)
°Ç¹°
¿µÃµµ¿ 679-6 4Ãþ407È£ ö±ÙÄÜÅ©¸®Æ®±¸Á¶ 17.48 §³
(5.29Æò)
1) À§Ä¡/±Ù¸°»ó¾÷Áö¿ª/Áö±¸´ÜÀ§°èȹ±¸¿ª/¹ö½ºÁ¤·ùÀå/Â÷·®Á¢±ÙÀÌ °¡´É/ö±ÙÄÜÅ©¸®Æ®±¸Á¶/µµ½Ã°¡½º ´õº¸±â
°¨Á¤Æò°¡ ¿äÇ×Ç¥
1)À§Ä¡ ¹× ÁÖÀ§È¯°æ
º»°ÇÀº °æ±âµµ È­¼º½Ã ¿µÃµµ¿ ¼ÒÀç ""¿µÃµÃʵîÇб³"" ºÏµ¿Ãø Àαٿ¡ À§Ä¡Çϸç, º»°Ç ÁÖÀ§´Â ¿À
ÇǽºÅÚ, ±Ù¸°»ýȰ½Ã¼³, ´ë´ÜÀ§ ¾ÆÆÄÆ®´ÜÁö ¹× ¾÷¹«½Ã¼³ µîÀÌ È¥ÀçÇÏ´Â Áö´ë·Î¼­, Á¦¹Ý ÁÖÀ§
ȯ°æÀº º¸ÅëÀÓ.
2)±³Åë»óȲ
º»°Ç±îÁö Â÷·®Á¢±ÙÀÌ °¡´ÉÇϸç, º»°Ç Àα٠³ëº¯¿¡ ¹ö½ºÁ¤·ùÀåÀÌ ¼ÒÀçÇÏ´Â µî Á¦¹Ý ±³Åë»óȲ
Àº º¸ÅëÀÓ.
3)°Ç¹°ÀÇ ±¸Á¶
ö±ÙÄÜÅ©¸®Æ®±¸Á¶ Æò½½¶óºêÁöºØ ÁöÇÏ 5Ãþ / Áö»ó 7Ãþ °Ç¹° Áß
Á¦4Ãþ Á¦407È£·Î¼­,
¿Üº®: ¼®Àç ºÙÀÓ ¸¶°¨ µî.
âȣ: ÇÏÀ̼¦½ÃÀÓ.
4)ÀÌ¿ë»óÅÂ
º»°ÇÀº ±âÁؽÃÁ¡ ÇöÀç ¿ÀÇǽºÅÚ·Î ÀÌ¿ë ÁßÀÓ.
5)¼³ºñ³»¿ª
µµ½Ã°¡½º¿¡ ÀÇÇÑ ³­¹æ¼³ºñ, À§»ý ±Þ¹è¼ö¼³ºñ, ½Â°­±â, È­ÀçŽÁö¼³ºñ, ¼ÒÈ­Àü¼³ºñ µîÀÌ µÇ¾î
ÀÖÀ½.

6)ÅäÁöÀÇ Çü»ó ¹× ÀÌ¿ë»óÅÂ
º»°ÇÀº »ç´Ù¸®Çü ÆòÁöÀÇ ÅäÁö·Î¼­, ±âÁؽÃÁ¡ ÇöÀç ÁÖ»ó¿ë °ÇºÎÁö·Î ÀÌ¿ë ÁßÀÓ.
7)ÀÎÁ¢ µµ·Î»óŵî
º»°ÇÀº ºÏµ¿ÃøÀ¸·Î ¿Õº¹ 2Â÷¼± ¹× ³²ÃøÀ¸·Î ¿Õº¹ 3Â÷¼±ÀÇ Æ÷Àåµµ·Î¿¡ °¢°¢ Á¢ÇÔ.
8)ÅäÁöÀÌ¿ë°èȹ ¹× Á¦ÇÑ»óÅÂ
±Ù¸°»ó¾÷Áö¿ª(µ¿Åº2Áö±¸), Áö±¸´ÜÀ§°èȹ±¸¿ª(È­¼ºµ¿Åº(2)), Áß·Î1·ù(Æø 20m~25m)(ÀϹݵµ·Î,
µ¿Åº2Áö±¸)(Á¢ÇÕ), Áß·Î3·ù(Æø 12m~15m)(2014-10-01)(Áß(±¹)3-150)(Á¢ÇÕ) °¡Ãà»çÀ°Á¦Çѱ¸¿ª
(ÀüºÎÁ¦ÇÑ)<°¡ÃàºÐ´¢ÀÇ °ü¸® ¹× À̿뿡 °üÇÑ ¹ý·ü>, ¼ºÀå°ü¸®±Ç¿ª<¼öµµ±ÇÁ¤ºñ°èȹ¹ý>, ÅÃÁö
°³¹ßÁö±¸<ÅÃÁö°³¹ßÃËÁø¹ý>ÀÓ.
9)°øºÎ¿ÍÀÇ Â÷ÀÌ
-.
10)±âŸÂü°í»çÇ×(ÀÓ´ë°ü·Ê ¹× ±âŸ)
1) ÀÓ´ë°ü°è: ¹Ì»óÀÓ.
2) ±âŸ»çÇ×: -.
Âü°í
»çÇ×
¿ÀÇǽºÅÚ·Î ÀÌ¿ëÁßÀÓ. ¸Å¼öÀο¡°Ô ´ëÇ×ÇÒ ¼ö ÀÖ´Â ÀÓÂ÷ÀÎÀÌ ÀÖÀ½. ¹è´ç¿¡¼­ º¸Áõ±ÝÀÌ Àü¾× º¯Á¦µÇÁö ¾ÊÀ¸¸é Àܾ×À» ¸Å¼öÀÎÀÌ ÀμöÇÔ.
ÇØ´ç ºÎµ¿»êÀÇ ÇöȲÀº ¿Ü°ü»ó °øºÎÀÇ ³»¿ë°ú ÀÏÄ¡ÇÏ´Â °ÍÀ¸·Î º¸ÀÓ.

°ÇÃ๰ÇöȲ

¼ÒÀçÁö °æ±âµµ È­¼º½Ã ¿µÃµµ¿ 679-6¹øÁö
´ëÁö¸éÀû 1241.3§³
(376.15Æò)
¿¬¸éÀû 9779.99§³
(2963.63Æò)
°ÇÃà¸éÀû 848.23§³
(257.04Æò)
¿ëÀû·ü»êÁ¤
¿¬¸éÀû
4963.99§³
(1504.24Æò)
°ÇÆóÀ² 68.33% ¿ëÀû·ü 399.9%
Áö»óÃþ¼ö 7Ãþ ÁöÇÏÃþ¼ö 5Ãþ
ÁÖ¿ëµµ ¾÷¹«½Ã¼³ ±¸Á¶ ö±ÙÄÜÅ©¸®Æ®±¸Á¶
Âø°øÀÏÀÚ 2017.09.11 »ç¿ë½ÂÀÎÀÏÀÚ 2019.05.10
°ÇÃ๰Ãþº°ÇöȲ [º¸±â]


±¹ÅäºÎ½Ç°Å·¡°¡ °æ±âµµ È­¼º½Ã ¿µÃµµ¿

¡Ü ¸Å¸Å

¸éÀû(§³), ±Ý¾×(¸¸¿ø)

¡Ü Àü¼¼

¸éÀû(§³), ±Ý¾×(¸¸¿ø)

°è¾àÀϰǹ°¸íĪÃþÀü¿ëº¸Áõ±Ý¿ù¼¼°ÇÃà
25.10.30ÀÚÀ¯µå¸²Èú½º417.481,000422019
25.09.21ÀÚÀ¯µå¸²Èú½º717.4810,80002019
25.09.20ÀÚÀ¯µå¸²Èú½º322.23500602019
25.08.17ÀÚÀ¯µå¸²Èú½º517.481,500452019
25.08.13ÀÚÀ¯µå¸²Èú½º217.48500602019
¢Ñ ´õº¸±â

µî±âºÎµîº» ¿ä¾à(°Ç¹°)

  Á¢¼öÀÏÀÚ µî±â¸ñÀû/±Ç¸®ÀÚ ±Ç¸®±Ý¾× ±âÁØ
1 2019³â6¿ù17ÀÏ
¼ÒÀ¯±Ç
ÀÌOO
¼Ò¸ê
2 2021³â12¿ù24ÀÏ
¾Ð·ù
±¹
¼Ò¸ê±âÁØ
3 2023³â4¿ù13ÀÏ
¾Ð·ù
¿ëOO
¼Ò¸ê
4 2023³â9¿ù4ÀÏ
ÀÓÂ÷±Ç¼³Á¤
ÃÖOO
115,000,000 ¼Ò¸ê
5 2023³â9¿ù6ÀÏ
°¡¾Ð·ù
±ÙOOOO
6,858,320 ¼Ò¸ê
6 2024³â1¿ù18ÀÏ
¾Ð·ù
±¹
¼Ò¸ê
7 2024³â5¿ù27ÀÏ
¾Ð·ù
±¹
¼Ò¸ê
8 2024³â6¿ù17ÀÏ
¾Ð·ù
±¹
¼Ò¸ê
9 2025³â3¿ù13ÀÏ
°­Á¦°æ¸Å
ÃÖOO
¼Ò¸ê
10 2025³â5¿ù15ÀÏ
¾Ð·ù
°­OO
¼Ò¸ê

ÀÓÂ÷ÀÎÇöȲ (¹è´ç¿ä±¸Á¾±âÀÏ: 2025-05-29)

ÀÓÂ÷ÀÎ ¿ëµµ/Á¡À¯ º¸Áõ±Ý/¿ù¼¼ ´ëÇ×·Â
ÀüÀÔÀÏ/È®Á¤ÀÏ ¹è´ç¿ä±¸ ºñ°í
ÃÖOO ÀüÀ¯ºÎºÐÀüºÎ 115,000,000
O
2020.11.13.
2021.08.09.
2021.08.07.
ºñ°í
(¸Å°¢¹°°Ç
¸í¼¼¼­)
ÃÖ¼ÒÀÌ:½Åûä±ÇÀÚÀÓ

¿©ÀÇÁÖ°æ¸Å Á¶¾ð ÇÑ ¸¶µð


ÁÖÀÇ»çÇ× (ÃÖ¼±¼øÀ§ ¼³Á¤ÀÏ: 2021.12.24. ¾Ð·ù ¼³Á¤)

¸Å°¢À¸·Î ¼Ò¸êµÇÁö ¾Ê´Â µî±âºÎ±Ç¸®: ¸Å¼öÀο¡°Ô ´ëÇ×ÇÒ ¼ö ÀÖ´Â ÀÓÂ÷ÀÎÀÌ ÀÖÀ½. ¹è´ç¿¡¼­ º¸Áõ±ÝÀÌ Àü¾× º¯Á¦µÇÁö ¾ÊÀ¸¸é Àܾ×À» ¸Å¼öÀÎÀÌ ÀμöÇÔ.
¸Å°¢À¸·Î ¼³Á¤µÈ °ÍÀ¸·Î º¸´Â Áö»ó±Ç:
¿ÀÇǽºÅÚ·Î ÀÌ¿ëÁßÀÓ. ¸Å¼öÀο¡°Ô ´ëÇ×ÇÒ ¼ö ÀÖ´Â ÀÓÂ÷ÀÎÀÌ ÀÖÀ½. ¹è´ç¿¡¼­ º¸Áõ±ÝÀÌ Àü¾× º¯Á¦µÇÁö ¾ÊÀ¸¸é Àܾ×À» ¸Å¼öÀÎÀÌ ÀμöÇÔ.
¡Ø¹Ì³³°ü¸®ºñ(°ø¿ë) Àμö¿©ºÎ¸¦ ÀÔÂû Àü¿¡ È®ÀÎÇϽñ⠹ٶø´Ï´Ù

 

Áö¿ªºÐ¼®

ÁöÇÏö¸í Á÷¼±°Å¸®

Çб³¸í ÀüÈ­¹øÈ£ ÁÖ¼Ò Á÷¼±°Å¸®

¹ý¿ø

¼ö¿øÁö¹æ¹ý¿ø (165-12)°æ±âµµ ¼ö¿ø½Ã ¿µÅ뱸 ¹ýÁ¶·Î 105, Çϵ¿, ¼ö¿ø¹ý¿øÁ¾ÇÕû»ç
´ëÇ¥ : 031)210-1114, ¾ß°£ : 031)210-1111
°üÇÒÁö¿ª : ¼ö¿ø½Ã, ¿À»ê½Ã, È­¼º½Ã, ¿ëÀνÃ

µî±â¼Ò ¼ö¿øÁö¹æ¹ý¿ø º»¿ø È­¼ºµî±â¼Ò (´ëÇ¥:1544-0773, ÆÑ½º:(031)375-3964, °æ±âµµ ¿À»ê½Ã ¹ý¿ø·Î 65 (±Èµ¿ 662))
¼¼¹«¼­ µ¿¼ö¿ø¼¼¹«¼­ (´ëÇ¥:031-695-42, ÆÑ½º:031-273-2416, °æ±âµµ ¼ö¿ø½Ã ¿µÅ뱸 û¸í³²·Î 13 (¿µÅ뵿))

Àαٳ«ÂûÅë°è

±â°£ ¸Å°¢°Ç¼ö Æò±Õ°¨Á¤°¡
Æò±Õ¸Å°¢°¡
¸Å°¢°¡À²
Æò±ÕÀ¯Âû¼ö
3°³¿ù 20°Ç 140,510,000¿ø
108,756,725¿ø
75%
2.1ȸ
6°³¿ù 54°Ç 130,688,889¿ø
93,222,008¿ø
69%
2.4ȸ
12°³¿ù 90°Ç 123,630,000¿ø
85,492,512¿ø
68%
2.4ȸ


º» °æ¸ÅÁ¤º¸´Â ¹ý¿øÀÚ·á¿Í ÀÏÄ¡Çϵµ·Ï ÇÏ¿´À¸³ª ±Ç¸®»çÇ׺¯µ¿, ÀÔ·ÂÂø¿À µîÀÇ ¿øÀÎÀ¸·Î »ç½Ç°ú ´Ù¸¦ ¼ö ÀÖ½À´Ï´Ù. ÀÌ¿ë¾à°ü¿¡ ÀǰЏéÃ¥Á¶°ÇÀ¸·Î Á¦°øµÊÀ» ¾Ë¸®¸ç, °æ¸ÅÀÔÂû½Ã ¹Ýµå½Ã °ü·Ã °øºÎ¸¦ ÀçÈ®ÀÎÇϽñ⠹ٶø´Ï´Ù. º¸´Ù Æí¸®ÇÑ °æ¸ÅÁ¤º¸ Á¦°øÀ» À§ÇØ Áö¼ÓÀûÀ¸·Î °³¼±ÇϰڽÀ´Ï´Ù. ÀÌ¿ëÇØ Áּż­ °¨»çÇÕ´Ï´Ù.