·Î±×ÀÎ
67
±Ù¸°ÁÖÅÃ
¼ö¿øÁö¹æ¹ý¿ø
 °¨Á¤°¡1,305,225,650 ¿ø
 ÃÖÀú°¡(100%) 1,305,225,650 ¿ø
 º¸Áõ±Ý(10%) 130,522,565 ¿ø
 Ã»±¸¾×127,989,040 ¿ø
°æ±âµµ È­¼º½Ã ¿µÃµµ¿ 769-2
»ç°Ç¹øÈ£ 2024Ÿ°æ101864
Áߺ¹»ç°ÇÁߺ¹ 2024Ÿ°æ102669,
°æ¸ÅÁ¾·ùºÎµ¿»ê°­Á¦°æ¸Å
¸Å°¢´ë»óÅäÁö ¹× °Ç¹°Àϰý¸Å°¢
¸Å°¢±âÀÏ    2025.11.26(¼ö) 10:00 ÀÔÂû 3ÀÏÀü    
ÅäÁö¸éÀû214.20§³(64.80 Æò)
°Ç¹°¸éÀû338.55§³(102.41 Æò)
乫/¼ÒÀ¯ÀÚÀÓOOO OOOOO OOO OOO / ÀÓOOO OOOOO OOO OOO
ä±ÇÀÚ±èOO¿Ü 1¸í
ÆäÀ̽ººÏ Æ®À§ÅÍ ±¸±Û+
īī¿À½ºÅ丮
īī¿ÀÅå sms¹®ÀÚº¸³»±â
 

±âÀϳ»¿ª

°æ°ú ³¯Â¥ Àú°¨ ÃÖÀú°¡ °á°ú
Á¢¼öÀÏ 2024-12-12 °æ¸ÅÁ¢¼ö
~6ÀÏ 
2024-12-18 °æ¸Å°³½Ã°áÁ¤
~82ÀÏ 
2025-03-04 ¹è´ç¿ä±¸Á¾±âÀÏ
~349ÀÏ 
2025-11-26 100%
1,305,225,650
ÁøÇà
¹°°Ç¸í¼¼¼­ ÇöȲÁ¶»ç¼­ ¹®°ÇÁ¢¼ö ¼Û´Þ³»¿ª

°¨Á¤Æò°¡ÇöȲ

¸ñ·Ï ÁÖ¼Ò ±¸Á¶/¿ëµµ/´ëÁö±Ç ¸éÀû ºñ°í
ÅäÁö
¿µÃµµ¿ 769-2 ´ë 214.2 §³
(64.80Æò)
°Ç¹°
¿µÃµµ¿ 769-2 1Ãþ ±Ù¸°»ýȰ½Ã¼³ ö±ÙÄÜÅ©¸®Æ®±¸Á¶ 111.805 §³
(33.82Æò)
¿µÃµµ¿ 769-2 2Ãþ ÁÖÅà ö±ÙÄÜÅ©¸®Æ®±¸Á¶ 117.07 §³
(35.41Æò)
¿µÃµµ¿ 769-2 3Ãþ ÁÖÅà ö±ÙÄÜÅ©¸®Æ®±¸Á¶ 109.67 §³
(33.18Æò)
1) À§Ä¡/Á¦1Á¾ÀϹÝÁÖ°ÅÁö¿ª/Áö±¸´ÜÀ§°èȹ±¸¿ª/³ë¼±¹ö½ºÁ¤·ùÀå/ö±ÙÄÜÅ©¸®Æ®±¸Á¶/µµ½Ã°¡½º/¹æ1/¹æ2/¹æ3/È­Àå½Ç2 ´õº¸±â
°¨Á¤Æò°¡ ¿äÇ×Ç¥
1)À§Ä¡ ¹× ÁÖÀ§È¯°æ
º»°ÇÀº °æ±âµµ È­¼º½Ã ¿µÃµµ¿ ¼ÒÀç"ÇѹéÁßÇб³"³²µ¿Ãø Àαٿ¡ ¼ÒÀçÇϸç, ÁÖÀ§´Â »ó°¡ÁÖÅÃ, ÁÖ»ó³ªÁö, °ñÇÁÀå µîÀÌ À§Ä¡ÇÑ ±Ù±³ ÁÖ°Å»ó¾÷Áö´ëÀÓ.
2)±³Åë»óȲ
º»°Ç±îÁö Â÷·®ÁøÃâÀÔÀÌ °¡´ÉÇϸç Àαٳ뼱¹ö½ºÁ¤·ùÀå±îÁöÀÇ °Å¸® µîÀ» °í·Á½Ã ´ëÁß±³Åëȯ°æÀº ºÒÆíÇÔ.
3)ÇüÅ ¹× ÀÌ¿ë»óÅÂ
ÀÎÁ¢ÅäÁö¿Í µî°íÆòźÇÑ Á¤¹æÇüÀÇ ÅäÁö·Î ÁÖ»ó¿ë°ÇºÎÁö·Î ÀÌ¿ëÁßÀÓ.
4)ÀÎÁ¢ µµ·Î»óÅÂ
º»°Ç ºÏÃøÀ¸·Î ³ëÆø ¾à 15m ³»¿ÜÀÇ ¾Æ½ºÆÈÆ®Æ÷Àåµµ·Î¿¡ Á¢Çϸç, ³²ÃøÀ¸·Î ³ëÆø ¾à 10m ³»¿ÜÀÇ ¾Æ½ºÆÈÆ®Æ÷Àåµµ·Î¿¡ Á¢ÇÔ.
5)ÅäÁöÀÌ¿ë°èȹ ¹× Á¦ÇÑ»óÅÂ
Á¦1Á¾ÀϹÝÁÖ°ÅÁö¿ª(µ¿Åº2Áö±¸) , Áö±¸´ÜÀ§°èȹ±¸¿ª(È­¼ºµ¿Åº(2)) , ¼Ò·Î2·ù(Æø 8m-10m)(2014-10-01)(¼Ò(±¹)2-26)(Á¢ÇÕ) , Áß·Î3·ù(Æø 12m-15m)(Á¢ÇÕ)
°¡Ãà»çÀ°Á¦Çѱ¸¿ª(ÀüºÎÁ¦ÇÑ)<°¡ÃàºÐ´¢ÀÇ °ü¸® ¹× À̿뿡 °üÇÑ ¹ý·ü>, °¡Ãà»çÀ°Á¦Çѱ¸¿ª(ÀüºÎÁ¦Çѱ¸¿ª)<°¡ÃàºÐ´¢ÀÇ °ü¸® ¹× À̿뿡 °üÇÑ ¹ý·ü>, ¼ºÀå°ü¸®±Ç¿ª<¼öµµ±ÇÁ¤ºñ°èȹ¹ý>, ÅÃÁö°³¹ßÁö±¸<ÅÃÁö°³¹ßÃËÁø¹ý> ÀÓ.


6)Á¦½Ã¸ñ·Ï ¿ÜÀÇ ¹°°Ç
-
7)°øºÎ¿ÍÀÇ Â÷ÀÌ
-
8)±âŸÂü°í»çÇ×(ÀÓ´ë°ü·Ê ¹× ±âŸ)
ÀÓ´ë°ü°è´Â ¹Ì»óÀÓ.
1)°Ç¹°ÀÇ ±¸Á¶
ö±ÙÄÜÅ©¸®Æ®±¸Á¶ (ö±Ù)ÄÜÅ©¸®Æ®ÁöºØ 3Ãþ °Ç(»ç¿ë½ÂÀÎ:2021.08.26)À¸·Î,

¿Üº®: Àûº®µ¹Ä¡Àå ¸¶°¨ µî,
³»º®: º®Áöµµ¹è ¹× ŸÀÏ ¸¶°¨ µî,
âȣ: ¾Ë·ç¹Ì´½¼¦½Ã âȣ µî ÀÓ.
2)ÀÌ¿ë»óÅÂ
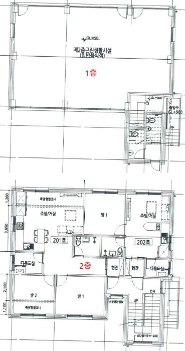
1Ãþ: ±Ù¸°»ýȰ½Ã¼³·Î ÀÌ¿ëÁßÀÓ.
2Ãþ: ÁÖÅÃ201(¹æ2, ÁÖ¹æ ¹× °Å½Ç, È­Àå½Ç), ÁÖÅÃ202(¹æ1, ÁÖ¹æ ¹× °Å½Ç, È­Àå½Ç)·Î ÀÌ¿ëÁßÀÓ.
3Ãþ: ÁÖÅÃ(¹æ3, ÁÖ¹æ, °Å½Ç, È­Àå½Ç2, ´Ù¶ô. Å×¶ó½º)À¸·Î ÀÌ¿ëÁßÀÓ.
3)¼³ºñ³»¿ª
±âº»±Þ¹è¼ö ¹× À§»ý¼³ºñ, µµ½Ã°¡½º¼³ºñ µîÀ» ±¸ºñÇϰí ÀÖÀ½.

4)ºÎÇÕ¹° ¹× Á¾¹°
-
5)°øºÎ¿ÍÀÇ Â÷ÀÌ
-
6)±âŸÂü°í»çÇ×(ÀÓ´ë°ü·Ê ¹× ±âŸ)
ÀÓ´ë°ü°è´Â ¹Ì»óÀÓ.
Âü°í
»çÇ×
Àϰý¸Å°¢. 1ÃþÀº »ó°¡·Î, 2,3ÃþÀº ÁÖÅÃÀ¸·Î ÀÌ¿ëÁßÀÓ.
ÇØ´ç ºÎµ¿»êÀÇ ÇöȲÀº ¿Ü°ü»ó °øºÎÀÇ ³»¿ë°ú ÀÏÄ¡ÇÏ´Â °Í

°ÇÃ๰ÇöȲ

¼ÒÀçÁö °æ±âµµ È­¼º½Ã ¿µÃµµ¿ 769-2¹øÁö
´ëÁö¸éÀû 214.2§³
(64.91Æò)
¿¬¸éÀû 338.545§³
(102.59Æò)
°ÇÃà¸éÀû 127.76§³
(38.72Æò)
¿ëÀû·ü»êÁ¤
¿¬¸éÀû
338.545§³
(102.59Æò)
°ÇÆóÀ² 59.65% ¿ëÀû·ü 158.05%
Áö»óÃþ¼ö 3Ãþ ÁöÇÏÃþ¼ö  
ÁÖ¿ëµµ ´Üµ¶ÁÖÅà ±¸Á¶ ö±ÙÄÜÅ©¸®Æ®±¸Á¶
Âø°øÀÏÀÚ 2021.02.18 »ç¿ë½ÂÀÎÀÏÀÚ 2021.08.26
°ÇÃ๰Ãþº°ÇöȲ [º¸±â]


±¹ÅäºÎ½Ç°Å·¡°¡ °æ±âµµ È­¼º½Ã ¿µÃµµ¿

¡Ü ¸Å¸Å

¸éÀû(§³), ±Ý¾×(¸¸¿ø)

¡Ü Àü¼¼

¸éÀû(§³), ±Ý¾×(¸¸¿ø)

°è¾àÀÏÀ¯Çü¿¬¸éÀû´ëÁö±Ý¾×°ÇÃà
24.03.15´Üµ¶452.7266.2140,0002015

µî±âºÎµîº» ¿ä¾à(ÅäÁö)

  Á¢¼öÀÏÀÚ µî±â¸ñÀû/±Ç¸®ÀÚ ±Ç¸®±Ý¾× ±âÁØ
1 2017³â6¿ù9ÀÏ
¼ÒÀ¯±Ç
ÀÓOO
¼Ò¸ê
2 2021³â9¿ù2ÀÏ
±ÙÀú´ç±Ç
È­OOOO
972,000,000 ¼Ò¸ê±âÁØ
3 2024³â12¿ù18ÀÏ
°­Á¦°æ¸Å
±èOO
¼Ò¸ê
4 2024³â12¿ù18ÀÏ
ÀÓÀǰæ¸Å
È­OOOO
¼Ò¸ê

µî±âºÎµîº» ¿ä¾à(°Ç¹°)

  Á¢¼öÀÏÀÚ µî±â¸ñÀû/±Ç¸®ÀÚ ±Ç¸®±Ý¾× ±âÁØ
1 2021³â9¿ù2ÀÏ
¼ÒÀ¯±Ç
ÀÓOO
¼Ò¸ê
2 2021³â9¿ù2ÀÏ
±ÙÀú´ç±Ç
È­OOOO
972,000,000 ¼Ò¸ê±âÁØ
3 2021³â11¿ù26ÀÏ
Àü¼¼±Ç
³ëOO
215,000,000 ¼Ò¸ê
4 2024³â1¿ù15ÀÏ
ÀÓÂ÷±Ç¼³Á¤
±èOO
120,000,000 ¼Ò¸ê
5 2024³â12¿ù18ÀÏ
°­Á¦°æ¸Å
±èOO
¼Ò¸ê
6 2024³â12¿ù18ÀÏ
ÀÓÀǰæ¸Å
È­OOOO
¼Ò¸ê

ÀÓÂ÷ÀÎÇöȲ (¹è´ç¿ä±¸Á¾±âÀÏ: 2025-03-04)

ÀÓÂ÷ÀÎ ¿ëµµ/Á¡À¯ º¸Áõ±Ý/¿ù¼¼ ´ëÇ×·Â
ÀüÀÔÀÏ/È®Á¤ÀÏ ¹è´ç¿ä±¸ ºñ°í
±èOO 120,000,000
X
2021.9.24.
2021.9.15.
2025.1.24. 2021.10.01~2024.03.27..
³ëOO 201È£ 215,000,000
X
2021.11.16.
2021.11.16.
2024.12.31. 2021.11.15.~2023.11.14.
ÀÌOO 1Ãþ 20,000,000
[¿ù]1,000,000
X
2024.4.5.
2024.12.31.
2025.1.8. 2024.3.18.~2026.3.17.

¿©ÀÇÁÖ°æ¸Å Á¶¾ð ÇÑ ¸¶µð

ÃëÇÏ ¶Ç´Â Ãë¼ÒµÉ °¡´É¼ºÀº ÀÖÀ¸³ª ±×´ë·Î ÁøÇàµÉ °¡´É¼ºµµ ¸¹½À´Ï´Ù
¼±Çà°æ¸Å¸¦ ½ÅûÇÑ Ã¤±ÇÀÚ°¡ ¹è´ç ¹Þ¾Æ¾ß ÇÒ ±Ý¾×Àº 127,989,040¿øÀ¸·Î °¨Á¤°¡°Ý ´ëºñ »ó´çÈ÷ ÀûÀº ±Ý¾×À̼­ °æ¸Å°¡ ÃëÇϵǰųª Ãë¼Ò µÉ °¡´É¼ºÀÌ ÀÖ½À´Ï´Ù. ±×·±µ¥ ÈÄÇà°æ¸Å »ç°Ç (Áߺ¹ 2024Ÿ°æ102669,)ÀÌ À־ ÃëÇÏ,Ãë¼ÒµÇÁö ¾Ê°í ÁøÇàµÉ °¡´É¼ºµµ ¸¹½À´Ï´Ù.

ÁÖÀÇ»çÇ× (ÃÖ¼±¼øÀ§ ¼³Á¤ÀÏ: 2021.9.2. ±ÙÀú´ç±Ç ¼³Á¤)

¸Å°¢À¸·Î ¼Ò¸êµÇÁö ¾Ê´Â µî±âºÎ±Ç¸®:
¸Å°¢À¸·Î ¼³Á¤µÈ °ÍÀ¸·Î º¸´Â Áö»ó±Ç:
Àϰý¸Å°¢. 1ÃþÀº »ó°¡·Î, 2,3ÃþÀº ÁÖÅÃÀ¸·Î ÀÌ¿ëÁßÀÓ.
¡Ø¹Ì³³°ü¸®ºñ(°ø¿ë) Àμö¿©ºÎ¸¦ ÀÔÂû Àü¿¡ È®ÀÎÇϽñ⠹ٶø´Ï´Ù

 

Áö¿ªºÐ¼®

ÁöÇÏö¸í Á÷¼±°Å¸®

Çб³¸í ÀüÈ­¹øÈ£ ÁÖ¼Ò Á÷¼±°Å¸®

¹ý¿ø

¼ö¿øÁö¹æ¹ý¿ø (165-12)°æ±âµµ ¼ö¿ø½Ã ¿µÅ뱸 ¹ýÁ¶·Î 105, Çϵ¿, ¼ö¿ø¹ý¿øÁ¾ÇÕû»ç
´ëÇ¥ : 031)210-1114, ¾ß°£ : 031)210-1111
°üÇÒÁö¿ª : ¼ö¿ø½Ã, ¿À»ê½Ã, È­¼º½Ã, ¿ëÀνÃ

µî±â¼Ò ¼ö¿øÁö¹æ¹ý¿ø º»¿ø È­¼ºµî±â¼Ò (´ëÇ¥:1544-0773, ÆÑ½º:(031)375-3964, °æ±âµµ ¿À»ê½Ã ¹ý¿ø·Î 65 (±Èµ¿ 662))
¼¼¹«¼­ µ¿¼ö¿ø¼¼¹«¼­ (´ëÇ¥:031-695-42, ÆÑ½º:031-273-2416, °æ±âµµ ¼ö¿ø½Ã ¿µÅ뱸 û¸í³²·Î 13 (¿µÅ뵿))

Àαٳ«ÂûÅë°è

±â°£ ¸Å°¢°Ç¼ö Æò±Õ°¨Á¤°¡
Æò±Õ¸Å°¢°¡
¸Å°¢°¡À²
Æò±ÕÀ¯Âû¼ö
3°³¿ù 5°Ç 1,331,576,064¿ø
787,729,300¿ø
58%
2ȸ
6°³¿ù 14°Ç 1,152,343,436¿ø
740,434,067¿ø
64%
1.8ȸ
12°³¿ù 14°Ç 1,152,343,436¿ø
740,434,067¿ø
64%
1.8ȸ


º» °æ¸ÅÁ¤º¸´Â ¹ý¿øÀÚ·á¿Í ÀÏÄ¡Çϵµ·Ï ÇÏ¿´À¸³ª ±Ç¸®»çÇ׺¯µ¿, ÀÔ·ÂÂø¿À µîÀÇ ¿øÀÎÀ¸·Î »ç½Ç°ú ´Ù¸¦ ¼ö ÀÖ½À´Ï´Ù. ÀÌ¿ë¾à°ü¿¡ ÀǰЏéÃ¥Á¶°ÇÀ¸·Î Á¦°øµÊÀ» ¾Ë¸®¸ç, °æ¸ÅÀÔÂû½Ã ¹Ýµå½Ã °ü·Ã °øºÎ¸¦ ÀçÈ®ÀÎÇϽñ⠹ٶø´Ï´Ù. º¸´Ù Æí¸®ÇÑ °æ¸ÅÁ¤º¸ Á¦°øÀ» À§ÇØ Áö¼ÓÀûÀ¸·Î °³¼±ÇϰڽÀ´Ï´Ù. ÀÌ¿ëÇØ Áּż­ °¨»çÇÕ´Ï´Ù.