·Î±×ÀÎ
138
´Ù¼¼´ë(ºô¶ó)
¼ö¿øÁö¹æ¹ý¿ø ¾È»êÁö¿ø
 °¨Á¤°¡225,000,000 ¿ø
 ÃÖÀú°¡(70%) 157,500,000 ¿ø
 º¸Áõ±Ý(10%) 15,750,000 ¿ø
 Ã»±¸¾×94,463,186 ¿ø
°æ±âµµ ¾È»ê½Ã »ó·Ï±¸ °Ç°Çµ¿ 570-3 ÄýÁîÆÓ¸®½º ºñµ¿ 2Ãþ202È£
»ç°Ç¹øÈ£ 2025Ÿ°æ51790
°æ¸ÅÁ¾·ùºÎµ¿»êÀÓÀǰæ¸Å
¸Å°¢´ë»óÅäÁö ¹× °Ç¹°Àϰý ¸Å°¢
¸Å°¢±âÀÏ    2026.01.06(È­) 10:30 ÀÔÂû 10ÀÏÀü    
ÅäÁö¸éÀû33.32§³(10.08 Æò)
°Ç¹°¸éÀû72.88§³(22.05 Æò)
乫/¼ÒÀ¯ÀÚ¿ÀOO / ¿ÀOO
ä±ÇÀÚÇöOOOO OOOO
ÆäÀ̽ººÏ Æ®À§ÅÍ ±¸±Û+
īī¿À½ºÅ丮
īī¿ÀÅå sms¹®ÀÚº¸³»±â
 

±âÀϳ»¿ª

°æ°ú ³¯Â¥ Àú°¨ ÃÖÀú°¡ °á°ú
Á¢¼öÀÏ 2025-02-25 °æ¸ÅÁ¢¼ö
~1ÀÏ 
2025-02-26 °æ¸Å°³½Ã°áÁ¤
~78ÀÏ 
2025-05-14 ¹è´ç¿ä±¸Á¾±âÀÏ
~273ÀÏ 
2025-11-25 100%
225,000,000
À¯Âû
~315ÀÏ 
2026-01-06 70%
157,500,000
ÁøÇà
¹°°Ç¸í¼¼¼­ ÇöȲÁ¶»ç¼­ ¹®°ÇÁ¢¼ö ¼Û´Þ³»¿ª

°¨Á¤Æò°¡ÇöȲ

¸ñ·Ï ÁÖ¼Ò ±¸Á¶/¿ëµµ/´ëÁö±Ç ¸éÀû ºñ°í
´ëÁö±Ç
°Ç°Çµ¿ 570-3 830ºÐÀÇ 33.322 33.322 §³
(10.08Æò)
°Ç¹°
°Ç°Çµ¿ 570-3 ºñµ¿ 2Ãþ202È£ ö±ÙÄÜÅ©¸®Æ®±¸Á¶ 72.88 §³
(22.05Æò)
1) À§Ä¡/µµ½ÃÁö¿ª/°ü¸®Áö¿ª/Á¦2Á¾ÀϹÝÁÖ°ÅÁö¿ª/ÁöÇÏö/³ë¼±¹ö½ºÁ¤·ùÀå/ö±ÙÄÜÅ©¸®Æ®±¸Á¶/Æò½º¶óºêÁöºØ/°³º°³­¹æ ´õº¸±â
°¨Á¤Æò°¡ ¿äÇ×Ç¥
1)À§Ä¡ ¹× ÁÖÀ§È¯°æ
º»°ÇÀº °æ±âµµ ¾È»ê½Ã »ó·Ï±¸ °Ç°Çµ¿ ¼ÒÀç 'âÃÌÃʵîÇб³' ºÏ¼­Ãø Àαٿ¡ À§Ä¡Çϸç
ÁÖº¯Àº ´Ù¼¼´ëÁÖÅÃ, ¾ÆÆÄÆ®, ±Ù¸°»ýȰ½Ã¼³, Çб³ µîÀÌ È¥ÀçÇÏ´Â Áö¿ªÀ¸·Î¼­, Á¦¹Ý
ÁÖÀ§È¯°æÀº º¸ÅëÀÓ.
2)±³Åë»óȲ
º»°Ç±îÁö Â÷·®Á¢±Ù °¡´ÉÇϸç, Àαٿ¡ ³ë¼±¹ö½ºÁ¤·ùÀå ¹× ÁöÇÏö 4È£¼± ""¹Ý¿ù¿ª""ÀÌ
¼ÒÀçÇÏ¿© ´ëÁß±³Åë»çÁ¤Àº ¹«³­½Ã µÊ.
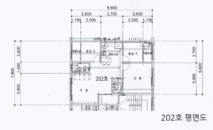
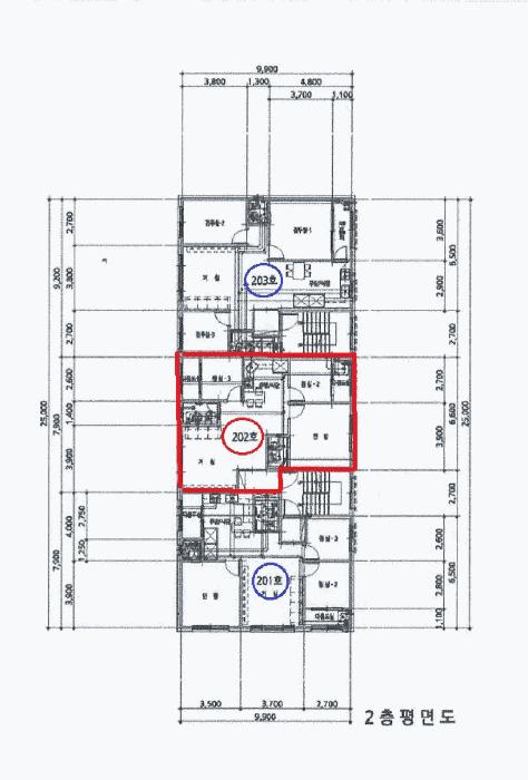
3)°Ç¹°ÀÇ ±¸Á¶
ö±ÙÄÜÅ©¸®Æ®±¸Á¶ Æò½º¶óºêÁöºØ 5Ãþ°Ç ³» 2Ãþ 202È£·Î¼­,
¿Üº® : ¿ÜÀå¼®Àç ¸¶°¨ µî
³»º® : º®Áöµµ¹è ¹× ŸÀϺÙÀÓ ¸¶°¨ µî (޹®»çÇ×)
âȣ : ¼¦½Ã âȣ µîÀÓ. (޹®»çÇ×)
4)ÀÌ¿ë»óÅÂ
´Ù¼¼´ëÁÖÅÃÀ¸·Î ÀÌ¿ëÁßÀÓ.
(ÈÄ÷ ³»ºÎ±¸Á¶µµ ÂüÁ¶)
5)¼³ºñ³»¿ª
À§»ý ¹× ±Þ¹è¼ö¼³ºñ, °³º°³­¹æ¼³ºñ µîÀÌ µÇ¾î ÀÖÀ½.

6)ÅäÁöÀÇ Çü»ó ¹× ÀÌ¿ë»óÅÂ
´ëü·Î À广ÇüÀÇ ÅäÁö·Î¼­ ´Ù¼¼´ëÁÖÅà ¹× ¿ÀÇǽºÅÚ °ÇºÎÁö·Î ÀÌ¿ëÁßÀÓ.
7)ÀÎÁ¢ µµ·Î»óŵî
º»°Ç µ¿Ãø ¹× ³²ÃøÀ¸·Î Æ÷Àåµµ·Î¿Í Á¢ÇÔ.
8)ÅäÁöÀÌ¿ë°èȹ ¹× Á¦ÇÑ»óÅÂ
µµ½ÃÁö¿ª, Á¦2Á¾ÀϹÝÁÖ°ÅÁö¿ª, °íµµÁö±¸(7ÃþÀÌÇÏ), ¼Ò·Î1·ù(Æø 10m~12m)(Á¢ÇÕ),
¼Ò·Î3·ù(Æø 8m ¹Ì¸¸)(Á¢ÇÕ), °¡Ãà»çÀ°Á¦Çѱ¸¿ª<°¡ÃàºÐ´¢ÀÇ °ü¸® ¹× À̿뿡 °üÇÑ
¹ý·ü>, »ó´ëº¸È£±¸¿ª(¾È»êâÃÌÃʵîÇб³)<±³À°È¯°æ º¸È£¿¡ °üÇÑ ¹ý·ü>, ´ë±â°ü¸®
±Ç¿ª<´ë±â°ü¸®±Ç¿ªÀÇ ´ë±âȯ°æ°³¼±¿¡ °üÇÑ Æ¯º°¹ý>, µµ½Ã±³ÅëÁ¤ºñÁö¿ª<µµ½Ã±³Åë
Á¤ºñÃËÁø¹ý>, »ýȰ¼ÒÀ½Áøµ¿°ü¸®Áö¿ª<¼ÒÀ½Áøµ¿°ü¸®¹ý>, ¼ºÀå°ü¸®±Ç¿ª<¼öµµ±ÇÁ¤ºñ
°èȹ¹ý>ÀÓ.
9)°øºÎ¿ÍÀÇ Â÷ÀÌ
ÇØ´ç»çÇ× ¾øÀ½.
10)±âŸÂü°í»çÇ×(ÀÓ´ë°ü·Ê ¹× ±âŸ)
ÀÓ´ë°ü°è ¹Ì»óÀÓ.

°ÇÃ๰ÇöȲ

¼ÒÀçÁö °æ±âµµ ¾È»ê½Ã »ó·Ï±¸ °Ç°Çµ¿ 570-3¹øÁö
´ëÁö¸éÀû   ¿¬¸éÀû 999.16§³
(302.78Æò)
°ÇÃà¸éÀû 247.5§³
(75Æò)
¿ëÀû·ü»êÁ¤
¿¬¸éÀû
999.16§³
(302.78Æò)
°ÇÆóÀ²   ¿ëÀû·ü  
Áö»óÃþ¼ö 5Ãþ ÁöÇÏÃþ¼ö  
ÁÖ¿ëµµ °øµ¿ÁÖÅà ±¸Á¶ ö±ÙÄÜÅ©¸®Æ®±¸Á¶
Âø°øÀÏÀÚ 2016.06.15 »ç¿ë½ÂÀÎÀÏÀÚ 2017.01.24
°ÇÃ๰Ãþº°ÇöȲ [º¸±â]


µî±âºÎµîº» ¿ä¾à(°Ç¹°)

  Á¢¼öÀÏÀÚ µî±â¸ñÀû/±Ç¸®ÀÚ ±Ç¸®±Ý¾× ±âÁØ
1 2017³â10¿ù17ÀÏ
¼ÒÀ¯±Ç
¿ÀOO
¼Ò¸ê
2 2018³â3¿ù20ÀÏ
±ÙÀú´ç±Ç
ÇöOOOO
110,500,000 ¼Ò¸ê±âÁØ
3 2023³â4¿ù11ÀÏ
±ÙÀú´ç±Ç
ÇÇOOOO
40,000,000 ¼Ò¸ê
4 2023³â4¿ù11ÀÏ
Àü¼¼±Ç
ÇÏOOOO
5,000,000 ¼Ò¸ê
5 2025³â2¿ù26ÀÏ
ÀÓÀǰæ¸Å
ÇöOOOO
¼Ò¸ê

ÀÓÂ÷ÀÎÇöȲ (¹è´ç¿ä±¸Á¾±âÀÏ: 2025-05-14)

ÀÓÂ÷ÀÎ ¿ëµµ/Á¡À¯ º¸Áõ±Ý/¿ù¼¼ ´ëÇ×·Â
ÀüÀÔÀÏ/È®Á¤ÀÏ ¹è´ç¿ä±¸ ºñ°í
ÇÏOOOOOOOO ÀüºÎ 5,000,000

2023.4.11.~2025.4.10.
ºñ°í
(¸Å°¢¹°°Ç
¸í¼¼¼­)
Çϳª·Î´ëºÎÁÖ½Äȸ»ç:Àü¼¼±Ç¼³Á¤µî±âÀÏÀº 2023.4.11.ÀÓ

¿©ÀÇÁÖ°æ¸Å Á¶¾ð ÇÑ ¸¶µð


ÁÖÀÇ»çÇ× (ÃÖ¼±¼øÀ§ ¼³Á¤ÀÏ: 2018.3.20. ±ÙÀú´ç±Ç ¼³Á¤)

¸Å°¢À¸·Î ¼Ò¸êµÇÁö ¾Ê´Â µî±âºÎ±Ç¸®:
¸Å°¢À¸·Î ¼³Á¤µÈ °ÍÀ¸·Î º¸´Â Áö»ó±Ç:
¡Ø¹Ì³³°ü¸®ºñ(°ø¿ë) Àμö¿©ºÎ¸¦ ÀÔÂû Àü¿¡ È®ÀÎÇϽñ⠹ٶø´Ï´Ù

 

Áö¿ªºÐ¼®

ÁöÇÏö¸í Á÷¼±°Å¸®

Çб³¸í ÀüÈ­¹øÈ£ ÁÖ¼Ò Á÷¼±°Å¸®

¹ý¿ø

¼ö¿øÁö¹æ¹ý¿ø ¾È»êÁö¿ø (140-54)°æ±âµµ ¾È»ê½Ã ´Ü¿ø±¸ ±¤´ö¼­·Î 75 (°íÀܵ¿)
´ëÇ¥ : 031)481-1114, ¹Î¿ø : 031)481-1238, ¾ß°£ : 031)481-1112
°üÇÒÁö¿ª : ¾È»ê½Ã, ±¤¸í½Ã, ½ÃÈï½Ã

µî±â¼Ò ¼ö¿øÁö¹æ¹ý¿ø ¾È»êÁö¿ø µî±â°ú (´ëÇ¥:1544-0773, ÆÑ½º:(031)481-1290~1292, °æ±âµµ ¾È»ê½Ã ´Ü¿ø±¸ ±¤´ö¼­·Î 75 (°íÀܵ¿ 711))
¼¼¹«¼­ ¾È»ê¼¼¹«¼­ (´ëÇ¥:031-412-32, ÆÑ½º:031-412-3268, °æ±âµµ ¾È»ê½Ã ´Ü¿ø±¸ È­¶û·Î 350 (°íÀܵ¿ 517))

Àαٳ«ÂûÅë°è

±â°£ ¸Å°¢°Ç¼ö Æò±Õ°¨Á¤°¡
Æò±Õ¸Å°¢°¡
¸Å°¢°¡À²
Æò±ÕÀ¯Âû¼ö
3°³¿ù 26°Ç 189,789,231¿ø
122,335,805¿ø
65%
1.8ȸ
6°³¿ù 70°Ç 160,481,286¿ø
108,456,896¿ø
67%
1.6ȸ
12°³¿ù 77°Ç 163,775,195¿ø
113,468,321¿ø
69%
1.6ȸ


º» °æ¸ÅÁ¤º¸´Â ¹ý¿øÀÚ·á¿Í ÀÏÄ¡Çϵµ·Ï ÇÏ¿´À¸³ª ±Ç¸®»çÇ׺¯µ¿, ÀÔ·ÂÂø¿À µîÀÇ ¿øÀÎÀ¸·Î »ç½Ç°ú ´Ù¸¦ ¼ö ÀÖ½À´Ï´Ù. ÀÌ¿ë¾à°ü¿¡ ÀǰЏéÃ¥Á¶°ÇÀ¸·Î Á¦°øµÊÀ» ¾Ë¸®¸ç, °æ¸ÅÀÔÂû½Ã ¹Ýµå½Ã °ü·Ã °øºÎ¸¦ ÀçÈ®ÀÎÇϽñ⠹ٶø´Ï´Ù. º¸´Ù Æí¸®ÇÑ °æ¸ÅÁ¤º¸ Á¦°øÀ» À§ÇØ Áö¼ÓÀûÀ¸·Î °³¼±ÇϰڽÀ´Ï´Ù. ÀÌ¿ëÇØ Áּż­ °¨»çÇÕ´Ï´Ù.