·Î±×ÀÎ
1257
¿ÀÇǽºÅÚ
¼ö¿øÁö¹æ¹ý¿ø ¾È»êÁö¿ø
 °¨Á¤°¡98,000,000 ¿ø
 ÃÖÀú°¡(70%) 68,600,000 ¿ø
 º¸Áõ±Ý(10%) 6,860,000 ¿ø
 Ã»±¸¾×89,942,479 ¿ø
°æ±âµµ ½ÃÈï½Ã ¹è°ðµ¿ 223-2 ¹è°ð¿¡Å佺 10Ãþ1014È£
»ç°Ç¹øÈ£ 2025Ÿ°æ471
°æ¸ÅÁ¾·ùºÎµ¿»êÀÓÀǰæ¸Å
¸Å°¢´ë»óÅäÁö ¹× °Ç¹°Àϰý ¸Å°¢
¸Å°¢±âÀÏ    2026.03.31(È­) 10:30 ÀÔÂû 36ÀÏÀü    
ÅäÁö¸éÀû
°Ç¹°¸éÀû22.92§³(6.93 Æò)
乫/¼ÒÀ¯ÀÚ¹ÚOO / ¹ÚOO
ä±ÇÀÚ³óOOOOOOO
ÆäÀ̽ººÏ Æ®À§ÅÍ ±¸±Û+
īī¿À½ºÅ丮
īī¿ÀÅå sms¹®ÀÚº¸³»±â
 

±âÀϳ»¿ª

°æ°ú ³¯Â¥ Àú°¨ ÃÖÀú°¡ °á°ú
Á¢¼öÀÏ 2025-02-26 °æ¸ÅÁ¢¼ö
~1ÀÏ 
2025-02-27 °æ¸Å°³½Ã°áÁ¤
~77ÀÏ 
2025-05-14 ¹è´ç¿ä±¸Á¾±âÀÏ
~272ÀÏ 
2025-11-25 100%
98,000,000
À¯Âû
~314ÀÏ 
2026-01-06 70%
68,600,000
¸Å°¢
³«Âû°¡ 73,500,000 (75%)
~321ÀÏ 
2026-01-13 ¸Å°¢ºÒÇã°¡
~398ÀÏ 
2026-03-31 70%
68,600,000
¹°°Ç¸í¼¼¼­ ÇöȲÁ¶»ç¼­ ¹®°ÇÁ¢¼ö ¼Û´Þ³»¿ª

°¨Á¤Æò°¡ÇöȲ

¸ñ·Ï ÁÖ¼Ò ±¸Á¶/¿ëµµ/´ëÁö±Ç ¸éÀû ºñ°í
´ëÁö±Ç
¹è°ðµ¿ 223-2 ´ëÁö±Ç ¹Ìµî±â §³
°Ç¹°
¹è°ðµ¿ 223-2 10Ãþ1014È£ ö±ÙÄÜÅ©¸®Æ®±¸Á¶ 22.92 §³
(6.93Æò)
1) À§Ä¡/ÀϹݻó¾÷Áö¿ª/Áö±¸´ÜÀ§°èȹ±¸¿ª/¹ö½ºÁ¤·ùÀå/Â÷·®Á¢±ÙÀÌ °¡´É/ö±ÙÄÜÅ©¸®Æ®±¸Á¶ ´õº¸±â
°¨Á¤Æò°¡ ¿äÇ×Ç¥
1)À§Ä¡ ¹× ÁÖÀ§È¯°æ
º»°ÇÀº °æ±âµµ ½ÃÈï½Ã ¹è°ðµ¿ ¼ÒÀç ""¹è°ð¶ó¶óÃʵîÇб³"" ³²µ¿Ãø Àαٿ¡ À§Ä¡Çϰí, ÁÖº¯Àº ¿ÀÇǽºÅÚ, ±Ù¸°»ýȰ½Ã¼³, ¾ÆÆÄÆ®´ÜÁö µîÀÌ È¥ÀçÇÏ´Â Áö¿ªÀ¸·Î ÀϹÝÀûÀÎ ÁÖÀ§È¯°æÀº º¸ÅëÀÓ.
2)±³Åë»óȲ
º»°Ç±îÁö Â÷·®Á¢±ÙÀÌ °¡´ÉÇϰí, Àαٿ¡ ¹ö½ºÁ¤·ùÀå µîÀÌ ¼ÒÀçÇÏ´Â µî Á¦¹Ý ±³Åë»óȲÀº º¸ÅëÀÓ.
3)°Ç¹°ÀÇ ±¸Á¶
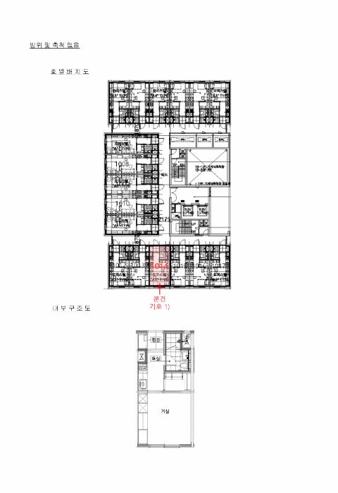
º»°ÇÀº ö°ñö±ÙÄÜÅ©¸®Æ®±¸Á¶, ö±ÙÄÜÅ©¸®Æ®±¸Á¶ (ö±Ù)ÄÜÅ©¸®Æ®ÁöºØ 20Ãþ °Ç ³» 10Ãþ 1014È£·Î¼­,
¿Üº® : ¼®ÀçºÙÀÓ ¸¶°¨ + ¸ð¸£Å¸¸£À§ ÆäÀÎÆÃ ¸¶°¨ µî
âȣ : »õ½Ãâ µîÀÓ.
4)ÀÌ¿ë»óÅÂ
º»°ÇÀº ¿ÀÇǽºÅÚ·Î ÀÌ¿ëÁßÀÓ.
5)¼³ºñ³»¿ª
º»°ÇÀº ±âº»ÀûÀÎ ±Þ¹è¼ö/À§»ý¼³ºñ, ³­¹æ¼³ºñ, ½Â°­±â¼³ºñ, ¼ÒÈ­¼³ºñ µîÀÌ µÇ¾îÀÖÀ½.
6)ÅäÁöÀÇ Çü»ó ¹× ÀÌ¿ë»óÅÂ
º»°ÇÀº Á¤¹æÇü ÆòÁö·Î ¾÷¹«½Ã¼³(¿ÀÇǽºÅÚ), ±Ù¸°»ýȰ½Ã¼³ ºÎÁö µîÀ¸·Î ÀÌ¿ëÁßÀÓ.
7)ÀÎÁ¢ µµ·Î»óŵî
º»°ÇÀº ºÏ¼­ÃøÀ¸Æ÷ ¿Õº¹4Â÷¼± Æ÷Àåµµ·Î, ³²µ¿ÃøÀ¸·Î ¿Õº¹2Â÷¼± Æ÷Àåµµ·Î, ³²¼­ÃøÀ¸·Î º¸ÇàÀÚ Àü¿ëµµ·Î¿¡ °¢°¢ Á¢ÇÔ.
8)ÅäÁöÀÌ¿ë°èȹ ¹× Á¦ÇÑ»óÅÂ
º»°ÇÀº ÀϹݻó¾÷Áö¿ª , Áö±¸´ÜÀ§°èȹ±¸¿ª , ¼Ò·Î2·ù(Æø 8m~10m)(Á¢ÇÕ) , Áß·Î1·ù(Æø 20m~25m)(Á¢ÇÕ) , Áß·Î2·ù(Æø 15m~20m)(Á¢ÇÕ), °ú¹Ð¾ïÁ¦±Ç¿ªÀÓ.
9)°øºÎ¿ÍÀÇ Â÷ÀÌ
--
10)±âŸÂü°í»çÇ×(ÀÓ´ë°ü·Ê ¹× ±âŸ)
- º»°ÇÀÇ ÀÓ´ë°ü°è ¹Ì»óÀÓ.
- ³»ºÎ±¸Á¶ ¹× ÀÌ¿ë»óȲ µîÀº ÁýÇÕ°ÇÃ๰´ëÀå »ó ÇöȲµµ¸é ¹× ¿Ü°ü޹® µî¿¡ ÀÇÇÏ¿© Ç¥ÁØÀûÀÎ »óȲÀ» ±âÁØÇÏ¿´À½.
- º»°ÇÀº ´ëÁö±ÇÀÌ ¹Ìµî±âµÈ »óÅÂÀ̳ª, °Å·¡°üÇàÀº ÅäÁöÀÇ ¼ÒÀ¯±Ç ´ëÁö±ÇÀ» Æ÷ÇÔÇÑ ÀÏü·Î °Å·¡µÇ°í ÀÖ´Â ¹Ù, ÅäÁö¿¡ ´ëÇÑ ÀûÁ¤ÁöºÐÀÌ ¹èºÐµÉ °ÍÀ» ÀüÁ¦·Î Æò°¡ÇÏ¿´À½.
Âü°í
»çÇ×
´ëÁö±Ç ¹Ìµî±âÀ̳ª ¸Å°¢¸ñÀû¹° ¹× Æò°¡¿¡ Æ÷ÇÔµÊ 2025.10.15.ÀÚ ½ÃÈï½Ã·ÎºÎÅÍ ÅäÁö+°Ç¹°¿¡ ´ëÇÑ Ãëµæ ½Å°í ¹× ÀÚÁø³³ºÎ ¼¼¾×°è»ê¼­ ¹× ºÐ¾ç±Ý ³³ºÎÈ®Àμ­°¡ Á¦ÃâµÊ, ºÐ¾ç±Ý ³³ºÎÈ®Àμ­¿¡ ±âÀçµÈ ºÐ¾ç¸éÀû Áß ´ëÁö¸éÀûÀº 4.9259§³ÀÓ.

°ÇÃ๰ÇöȲ

¼ÒÀçÁö °æ±âµµ ½ÃÈï½Ã ¹è°ðµ¿ 223-2¹øÁö
´ëÁö¸éÀû 2135§³
(646.97Æò)
¿¬¸éÀû 24447.41§³
(7408.31Æò)
°ÇÃà¸éÀû 1482§³
(449.09Æò)
¿ëÀû·ü»êÁ¤
¿¬¸éÀû
14890.56§³
(4512.29Æò)
°ÇÆóÀ² 69.414519% ¿ëÀû·ü 697.45011%
Áö»óÃþ¼ö 20Ãþ ÁöÇÏÃþ¼ö 6Ãþ
ÁÖ¿ëµµ ¾÷¹«½Ã¼³ ±¸Á¶ ö°ñö±ÙÄÜÅ©¸®Æ®±¸Á¶
Âø°øÀÏÀÚ 2016.12.15 »ç¿ë½ÂÀÎÀÏÀÚ 2019.06.18
°ÇÃ๰Ãþº°ÇöȲ [º¸±â]


±¹ÅäºÎ½Ç°Å·¡°¡ °æ±âµµ ½ÃÈï½Ã ¹è°ðµ¿

¡Ü ¸Å¸Å

¸éÀû(§³), ±Ý¾×(¸¸¿ø)

¡Ü Àü¼¼

¸éÀû(§³), ±Ý¾×(¸¸¿ø)

°è¾àÀϰǹ°¸íĪÃþÀü¿ëº¸Áõ±Ý¿ù¼¼°ÇÃà
26.01.28¹è°ð¿¡Å佺1122.923,000352019
26.01.23¹è°ð¿¡Å佺1030.0612,4002019
26.01.21¹è°ð¿¡Å佺722.928,8002019
26.01.16¹è°ð¿¡Å佺622.927,90002019
26.01.14¹è°ð¿¡Å佺1530.0610,80002019
¢Ñ ´õº¸±â

µî±âºÎµîº» ¿ä¾à(°Ç¹°)

  Á¢¼öÀÏÀÚ µî±â¸ñÀû/±Ç¸®ÀÚ ±Ç¸®±Ý¾× ±âÁØ
1 2019³â9¿ù25ÀÏ
¼ÒÀ¯±Ç
¹ÚOO
¼Ò¸ê
2 2019³â9¿ù25ÀÏ
±ÙÀú´ç±Ç
³óOOOO
105,000,000 ¼Ò¸ê±âÁØ
3 2022³â12¿ù6ÀÏ
¾àÁ¤/±ÝÁö»çÇ×/ȯ¸ÅƯ¾à
¼Ò¸ê
4 2025³â2¿ù27ÀÏ
ÀÓÀǰæ¸Å
³óOOOO
¼Ò¸ê

ÀÓÂ÷ÀÎÇöȲ (¹è´ç¿ä±¸Á¾±âÀÏ: 2025-05-14)

ÀÓÂ÷ÀÎ ¿ëµµ/Á¡À¯ º¸Áõ±Ý/¿ù¼¼ ´ëÇ×·Â
ÀüÀÔÀÏ/È®Á¤ÀÏ ¹è´ç¿ä±¸ ºñ°í
ÀÌOO 1014È£ÀüºÎ 33,000,000
[¿ù]200,000
X
2024.03.29.
2024.03.29.
2025.4.4. 2024.03.29.~2026.03.29.

¿©ÀÇÁÖ°æ¸Å Á¶¾ð ÇÑ ¸¶µð

´ëÁö±ÇÀÌ ¹Ìµî±âµÈ ¹°°ÇÀÔ´Ï´Ù
ÁýÇհǹ°¿¡´Â ÅäÁöÁöºÐ¿¡ µû¶ó ´ëÁö±ÇÀÌ µî±âµÇ´Âµ¥, ±× ´ëÁö±Ç µî±â°¡ ¾ø´Â °æ¿ìÀÔ´Ï´Ù. ºÐ¾ç´ë±ÝÀ» ¸ðµÎ ³³ºÎÇÏ¿´À¸³ª µî±â¸¦ ¹Ì·ç°í ÀÖ´ø °æ¿ì¿Í ÅäÁö°øºÎ Á¤¸®°¡ ¾È µÇ¼­ ¸øÇÑ °æ¿ì´Â ³«ÂûÀÚ°¡ ´ëÁö±Çµî±â¸¦ ÇÒ ¼ö ÀÖ½À´Ï´Ù. ±×·±µ¥ ´ëÁö±ÇÀÌ ¾ø´Â °æ¿ì ¶Ç´Â ºÐ¾ç´ë±Ý ÀܱÝÀ» ³»Áö ¾Ê¾Æ¼­ ºÐ¾çȸ»ç°¡ µ¿½ÃÀÌÇàÇ׺¯±ÇÀ» ÁÖÀåÇÏ´Â °æ¿ì´Â Ãß°¡ ºÎ´ãÀÌ »ý±æ ¼ö ÀÖ½À´Ï´Ù.

ÁÖÀÇ»çÇ× (ÃÖ¼±¼øÀ§ ¼³Á¤ÀÏ: 2019.9.25.±ÙÀú´ç±Ç ¼³Á¤)

¸Å°¢À¸·Î ¼Ò¸êµÇÁö ¾Ê´Â µî±âºÎ±Ç¸®:
¸Å°¢À¸·Î ¼³Á¤µÈ °ÍÀ¸·Î º¸´Â Áö»ó±Ç:
´ëÁö±Ç ¹Ìµî±âÀ̳ª ¸Å°¢¸ñÀû¹° ¹× Æò°¡¿¡ Æ÷ÇÔµÊ 2025.10.15.ÀÚ ½ÃÈï½Ã·ÎºÎÅÍ ÅäÁö+°Ç¹°¿¡ ´ëÇÑ Ãëµæ ½Å°í ¹× ÀÚÁø³³ºÎ ¼¼¾×°è»ê¼­ ¹× ºÐ¾ç±Ý ³³ºÎÈ®Àμ­°¡ Á¦ÃâµÊ, ºÐ¾ç±Ý ³³ ºÎÈ®Àμ­¿¡ ±âÀçµÈ ºÐ¾ç¸éÀû Áß ´ëÁö¸éÀûÀº 4.9259§³ÀÓ.
¡Ø¹Ì³³°ü¸®ºñ(°ø¿ë) Àμö¿©ºÎ¸¦ ÀÔÂû Àü¿¡ È®ÀÎÇϽñ⠹ٶø´Ï´Ù

 

Áö¿ªºÐ¼®

ÁöÇÏö¸í Á÷¼±°Å¸®

Çб³¸í ÀüÈ­¹øÈ£ ÁÖ¼Ò Á÷¼±°Å¸®

¹ý¿ø

¼ö¿øÁö¹æ¹ý¿ø ¾È»êÁö¿ø (140-54)°æ±âµµ ¾È»ê½Ã ´Ü¿ø±¸ ±¤´ö¼­·Î 75 (°íÀܵ¿)
´ëÇ¥ : 031)481-1114, ¹Î¿ø : 031)481-1238, ¾ß°£ : 031)481-1112
°üÇÒÁö¿ª : ¾È»ê½Ã, ±¤¸í½Ã, ½ÃÈï½Ã

µî±â¼Ò ¼ö¿øÁö¹æ¹ý¿ø ¾È»êÁö¿ø ½ÃÈïµî±â¼Ò (´ëÇ¥:1544-0773, ÆÑ½º:(031)317-8903, 8904, °æ±âµµ ½ÃÈï½Ã ¿¬¼º·Î 31 (ÇÏÁßµ¿ 872-1))
¼¼¹«¼­ ½ÃÈï¼¼¹«¼­ (´ëÇ¥:031-310-72, ÆÑ½º:02-314-3973, °æ±âµµ ½ÃÈï½Ã ¸¶À¯·Î 368 (Á¤¿Õµ¿))

Àαٳ«ÂûÅë°è

±â°£ ¸Å°¢°Ç¼ö Æò±Õ°¨Á¤°¡
Æò±Õ¸Å°¢°¡
¸Å°¢°¡À²
Æò±ÕÀ¯Âû¼ö
3°³¿ù 13°Ç 351,153,846¿ø
102,568,223¿ø
33%
3.8ȸ
6°³¿ù 24°Ç 478,458,333¿ø
220,922,903¿ø
47%
2.9ȸ
12°³¿ù 24°Ç 478,458,333¿ø
220,922,903¿ø
47%
2.9ȸ


º» °æ¸ÅÁ¤º¸´Â ¹ý¿øÀÚ·á¿Í ÀÏÄ¡Çϵµ·Ï ÇÏ¿´À¸³ª ±Ç¸®»çÇ׺¯µ¿, ÀÔ·ÂÂø¿À µîÀÇ ¿øÀÎÀ¸·Î »ç½Ç°ú ´Ù¸¦ ¼ö ÀÖ½À´Ï´Ù. ÀÌ¿ë¾à°ü¿¡ ÀǰЏéÃ¥Á¶°ÇÀ¸·Î Á¦°øµÊÀ» ¾Ë¸®¸ç, °æ¸ÅÀÔÂû½Ã ¹Ýµå½Ã °ü·Ã °øºÎ¸¦ ÀçÈ®ÀÎÇϽñ⠹ٶø´Ï´Ù. º¸´Ù Æí¸®ÇÑ °æ¸ÅÁ¤º¸ Á¦°øÀ» À§ÇØ Áö¼ÓÀûÀ¸·Î °³¼±ÇϰڽÀ´Ï´Ù. ÀÌ¿ëÇØ Áּż­ °¨»çÇÕ´Ï´Ù.