·Î±×ÀÎ
13
±Ù¸°»ó°¡
¼­¿ï¼­ºÎÁö¹æ¹ý¿ø
 °¨Á¤°¡135,000,000 ¿ø
 ÃÖÀú°¡(100%) 135,000,000 ¿ø
 º¸Áõ±Ý(10%) 13,500,000 ¿ø
 Ã»±¸¾×167,000,000 ¿ø
¼­¿ïƯº°½Ã ÀºÆò±¸ ÀÀ¾Ïµ¿ 365-38 ´Ùº£·Î 1Ãþ102È£
»ç°Ç¹øÈ£ 2025Ÿ°æ743
°æ¸ÅÁ¾·ùºÎµ¿»ê°­Á¦°æ¸Å
¸Å°¢´ë»óÅäÁö ¹× °Ç¹°Àϰý ¸Å°¢
¸Å°¢±âÀÏ    2025.11.25(È­) 10:00 ÀÔÂû 11ÀÏÀü    
ÅäÁö¸éÀû23.44§³(7.09 Æò)
°Ç¹°¸éÀû28.26§³(8.55 Æò)
乫/¼ÒÀ¯ÀÚ±èOO / ±èOO
ä±ÇÀÚ¿¬O
ÆäÀ̽ººÏ Æ®À§ÅÍ ±¸±Û+
īī¿À½ºÅ丮
īī¿ÀÅå sms¹®ÀÚº¸³»±â
 

±âÀϳ»¿ª

°æ°ú ³¯Â¥ Àú°¨ ÃÖÀú°¡ °á°ú
Á¢¼öÀÏ 2025-04-10 °æ¸ÅÁ¢¼ö
~1ÀÏ 
2025-04-11 °æ¸Å°³½Ã°áÁ¤
~76ÀÏ 
2025-06-25 ¹è´ç¿ä±¸Á¾±âÀÏ
~229ÀÏ 
2025-11-25 100%
135,000,000
ÁøÇà
¹°°Ç¸í¼¼¼­ ÇöȲÁ¶»ç¼­ ¹®°ÇÁ¢¼ö ¼Û´Þ³»¿ª

°¨Á¤Æò°¡ÇöȲ

¸ñ·Ï ÁÖ¼Ò ±¸Á¶/¿ëµµ/´ëÁö±Ç ¸éÀû ºñ°í
´ëÁö±Ç
ÀÀ¾Ïµ¿ 365-38 515ºÐÀÇ 23.44 23.44 §³
(7.09Æò)
°Ç¹°
ÀÀ¾Ïµ¿ 365-38 1Ãþ102È£ ö±ÙÄÜÅ©¸®Æ®±¸Á¶ 28.26 §³
(8.55Æò)
1) À§Ä¡/µµ½ÃÁö¿ª/Á¦2Á¾ÀϹÝÁÖ°ÅÁö¿ª/Â÷·®ÃâÀÔ °¡´É/¹ö½ºÁ¤·ùÀå/ÁöÇÏö/ö±ÙÄÜÅ©¸®Æ®±¸Á¶/µµ½Ã°¡½º ´õº¸±â
°¨Á¤Æò°¡ ¿äÇ×Ç¥
1)À§Ä¡ ¹× ÁÖÀ§È¯°æ
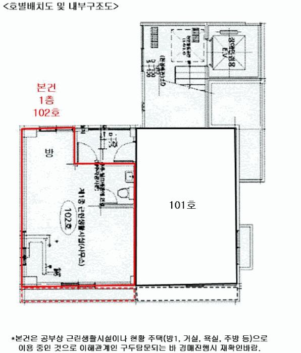
º»°ÇÀº ¼­¿ïƯº°½Ã ÀºÆò±¸ ÀÀ¾Ïµ¿ ¼ÒÀç ""ÀÀ¾Ï¿À°Å¸®"" ºÏµ¿Ãø Àαٿ¡ À§Ä¡ÇÑ ÅëĪ ""´Ùº£·Î""
³» Á¦1Ãþ Á¦102È£·Î¼­, ÁÖº¯Àº ´Ù¼¼´ë, ´Üµ¶ÁÖÅà µîÀÌ ÁÖ·Î ¼ÒÀçÇÔ.
2)±³Åë»óȲ
º»°Ç±îÁö Â÷·®ÃâÀÔ °¡´ÉÇϸç, Àαٿ¡ ¹ö½ºÁ¤·ùÀå ¹× ÁöÇÏö6È£¼± ""»õÀý¿ª"" µîÀÌ ¼ÒÀçÇÏ¿©
´ëÁß±³Åë»çÁ¤Àº º¸ÅëÀÓ.
3)°Ç¹°ÀÇ ±¸Á¶
ö±ÙÄÜÅ©¸®Æ®±¸Á¶ (ö±Ù)ÄÜÅ©¸®Æ®(Æò½½·¡ºê)ÁöºØ 6Ãþ °Ç ³» Á¦1Ãþ Á¦102È£·Î¼­,
¿Üº® : ¼®ÀçŸÀÏ, º®µ¹ µî
âȣ : ¼¨½Ãâȣ µî
4)ÀÌ¿ë»óÅÂ
°øºÎ»ó ±Ù¸°»ýȰ½Ã¼³(»ç¹«¼Ò)À̳ª ÇöȲ ÁÖÅñ¸Á¶·Î¼­ ÁÖÅÃÀ¸·Î ÀÌ¿ë ÁßÀ̸ç,
ÈÄ÷ ""³»ºÎ±¸Á¶µµ"" ÂüÁ¶¹Ù¶÷.
5)¼³ºñ³»¿ª
À§»ý ¹× ±Þ¹è¼ö¼³ºñ, µµ½Ã°¡½º, ³­¹æ¼³ºñ, ½Â°­±â µî
6)ÅäÁöÀÇ Çü»ó ¹× ÀÌ¿ë»óÅÂ
4ÇÊ ÀÏ´ÜÀÇ ºÎÁ¤Çü ÅäÁö·Î¼­ ÅëĪ ""´Ùº£·Î"" 1°³µ¿(°øºÎ»ó ±Ù¸°»ýȰ½Ã¼³(2È£) ¹×
µµ½ÃÇü»ýȰÁÖÅÃ(´ÜÁöÇü´Ù¼¼´ë(14¼¼´ë))ÀÇ °ÇºÎÁö·Î ÀÌ¿ëÁßÀÓ.
7)ÀÎÁ¢ µµ·Î»óŵî
¼­Ãø, ºÏÃøÀ¸·Î ¼¼·Î¿¡ Á¢Çϸç, Æ÷Àå»óÅ º¸ÅëÀÓ.
8)ÅäÁöÀÌ¿ë°èȹ ¹× Á¦ÇÑ»óÅÂ
µµ½ÃÁö¿ª, Á¦2Á¾ÀϹÝÁÖ°ÅÁö¿ª(7ÃþÀÌÇÏ), °¡Ãà»çÀ°Á¦Çѱ¸¿ª, ´ë°ø¹æ¾îÇùÁ¶±¸¿ª(À§Å¹°íµµ:
77-257m), °ú¹Ð¾ïÁ¦±Ç¿ª.

9)°øºÎ¿ÍÀÇ Â÷ÀÌ
°øºÎ»ó ±Ù¸°»ýȰ½Ã¼³(»ç¹«¼Ò)À̳ª ÇöȲ ÁÖÅñ¸Á¶·Î¼­ ÁÖÅÃÀ¸·Î ÀÌ¿ë ÁßÀÎ °ÍÀ¸·Î
ÀÌÇØ°ü°èÀÎ ±¸µÎ޹®µÇ´Ï °æ¸ÅÁøÇà½Ã ÀçÈ®Àιٶ÷.
10)±âŸÂü°í»çÇ×(ÀÓ´ë°ü·Ê ¹× ±âŸ)
1. ÀÓ´ë°ü°è´Â ¹Ì»óÀÓ.

°ÇÃ๰ÇöȲ

¼ÒÀçÁö ¼­¿ïƯº°½Ã ÀºÆò±¸ ÀÀ¾Ïµ¿ 365-38¹øÁö
´ëÁö¸éÀû 454§³
(137.58Æò)
¿¬¸éÀû 720.44§³
(218.32Æò)
°ÇÃà¸éÀû 205.91§³
(62.4Æò)
¿ëÀû·ü»êÁ¤
¿¬¸éÀû
720.44§³
(218.32Æò)
°ÇÆóÀ² 45.35% ¿ëÀû·ü 158.69%
Áö»óÃþ¼ö 6Ãþ ÁöÇÏÃþ¼ö  
ÁÖ¿ëµµ °øµ¿ÁÖÅà ±¸Á¶ ö±ÙÄÜÅ©¸®Æ®±¸Á¶
Âø°øÀÏÀÚ 2018.03.15 »ç¿ë½ÂÀÎÀÏÀÚ 2018.11.07
°ÇÃ๰Ãþº°ÇöȲ [º¸±â]


µî±âºÎµîº» ¿ä¾à(°Ç¹°)

  Á¢¼öÀÏÀÚ µî±â¸ñÀû/±Ç¸®ÀÚ ±Ç¸®±Ý¾× ±âÁØ
1 2022³â11¿ù9ÀÏ
¼ÒÀ¯±Ç
±èOO
¼Ò¸ê
2 2024³â4¿ù16ÀÏ
°¡¾Ð·ù
¿¬O
167,000,000 ¼Ò¸ê±âÁØ
3 2025³â4¿ù11ÀÏ
°­Á¦°æ¸Å
¿¬O
¼Ò¸ê

ÀÓÂ÷ÀÎÇöȲ (¹è´ç¿ä±¸Á¾±âÀÏ: 2025-06-25)



¸Å°¢±âÀÏ 7ÀÏÀü¿¡ ¸Å°¢¹°°Ç¸í¼¼¼­°¡ °ø°íµÇ¿À´Ï È®ÀÎÇϽñ⠹ٶø´Ï´Ù.

ÀÓÂ÷ÀÎ ¿ëµµ/Á¡À¯ º¸Áõ±Ý/¿ù¼¼ ´ëÇ×·Â
ÀüÀÔÀÏ/È®Á¤ÀÏ ¹è´ç¿ä±¸ ºñ°í
¿¬O ÀüºÎ 167,000,000
O
2021.03.02.
2021.02.05.
2025.4.10. 2021.02.26.~
ºñ°í
(¸Å°¢¹°°Ç
¸í¼¼¼­)
¿¬ÀÏ:½Åûä±ÇÀÚ

¿©ÀÇÁÖ°æ¸Å Á¶¾ð ÇÑ ¸¶µð


ÁÖÀÇ»çÇ× (ÃÖ¼±¼øÀ§ ¼³Á¤ÀÏ: 2024. 4. 16. °¡¾Ð·ù ¼³Á¤)

¸Å°¢À¸·Î ¼Ò¸êµÇÁö ¾Ê´Â µî±âºÎ±Ç¸®:
¸Å°¢À¸·Î ¼³Á¤µÈ °ÍÀ¸·Î º¸´Â Áö»ó±Ç:
°øºÎ»ó ±Ù¸°»ýȰ½Ã¼³(»ç¹«¼Ò)À̳ª ÇöȲ ÁÖÅñ¸Á¶·Î¼­ ÁÖÅÃÀ¸·Î ÀÌ¿ëÁßÀÓ
¡Ø¹Ì³³°ü¸®ºñ(°ø¿ë) Àμö¿©ºÎ¸¦ ÀÔÂû Àü¿¡ È®ÀÎÇϽñ⠹ٶø´Ï´Ù

 

Áö¿ªºÐ¼®

ÁöÇÏö¸í Á÷¼±°Å¸®

Çб³¸í ÀüÈ­¹øÈ£ ÁÖ¼Ò Á÷¼±°Å¸®

¹ý¿ø

¼­¿ï¼­ºÎÁö¹æ¹ý¿ø (042-07)¼­¿ïƯº°½Ã ¸¶Æ÷±¸ ¸¶Æ÷´ë·Î 174 (°ø´öµ¿)
´ëÇ¥ : 02)3271-1114, ¹Î¿ø : 02)3271-1704/1881, ¾ß°£ : 02)3271-1700~1
°üÇÒÁö¿ª : ¿ë»ê±¸, ¼­´ë¹®±¸, ¸¶Æ÷±¸, ÀºÆò±¸

µî±â¼Ò ¼­¿ï¼­ºÎÁö¹æ¹ý¿ø º»¿ø µî±â±¹ (´ëÇ¥:1544-0773, ÆÑ½º:(02)3271-9130, ¼­¿ïƯº°½Ã ¸¶Æ÷±¸ ¸¶Æ÷´ë·Î 199 (¾ÆÇöµ¿ 783))
¼¼¹«¼­ ÀºÆò¼¼¹«¼­ (´ëÇ¥:02-2132-92, ÆÑ½º:02-2132-9501, ¼­¿ïƯº°½Ã ÀºÆò±¸ ¼­¿À¸ª·Î7(ÀÀ¾Ïµ¿84-5))

Àαٳ«ÂûÅë°è

±â°£ ¸Å°¢°Ç¼ö Æò±Õ°¨Á¤°¡
Æò±Õ¸Å°¢°¡
¸Å°¢°¡À²
Æò±ÕÀ¯Âû¼ö
3°³¿ù 5°Ç 720,780,100¿ø
436,070,800¿ø
63%
4.4ȸ
6°³¿ù 10°Ç 485,490,050¿ø
289,731,401¿ø
63%
4ȸ
12°³¿ù 32°Ç 337,661,891¿ø
222,110,313¿ø
63%
3.2ȸ


º» °æ¸ÅÁ¤º¸´Â ¹ý¿øÀÚ·á¿Í ÀÏÄ¡Çϵµ·Ï ÇÏ¿´À¸³ª ±Ç¸®»çÇ׺¯µ¿, ÀÔ·ÂÂø¿À µîÀÇ ¿øÀÎÀ¸·Î »ç½Ç°ú ´Ù¸¦ ¼ö ÀÖ½À´Ï´Ù. ÀÌ¿ë¾à°ü¿¡ ÀǰЏéÃ¥Á¶°ÇÀ¸·Î Á¦°øµÊÀ» ¾Ë¸®¸ç, °æ¸ÅÀÔÂû½Ã ¹Ýµå½Ã °ü·Ã °øºÎ¸¦ ÀçÈ®ÀÎÇϽñ⠹ٶø´Ï´Ù. º¸´Ù Æí¸®ÇÑ °æ¸ÅÁ¤º¸ Á¦°øÀ» À§ÇØ Áö¼ÓÀûÀ¸·Î °³¼±ÇϰڽÀ´Ï´Ù. ÀÌ¿ëÇØ Áּż­ °¨»çÇÕ´Ï´Ù.