·Î±×ÀÎ
1799
ÁÖÅÃ
±¤ÁÖÁö¹æ¹ý¿ø
 °¨Á¤°¡1,106,384,800 ¿ø
 ÃÖÀú°¡(36%) 396,529,000 ¿ø
 º¸Áõ±Ý(10%) 39,652,900 ¿ø
 Ã»±¸¾×477,656,209 ¿ø
±¤ÁÖ±¤¿ª½Ã ºÏ±¸ ¸Á¿ùµ¿ 244
»ç°Ç¹øÈ£ 2024Ÿ°æ8995
°æ¸ÅÁ¾·ùºÎµ¿»êÀÓÀǰæ¸Å
¸Å°¢´ë»óÅäÁö ¹× °Ç¹°Àϰý¸Å°¢
¸Å°¢±âÀÏ    2026.07.31(±Ý) 10:00 ÀÔÂû 75ÀÏÀü    
ÅäÁö¸éÀû742.00§³(224.46 Æò)
°Ç¹°¸éÀû411.98§³(124.62 Æò)
乫/¼ÒÀ¯ÀÚ±èOO / ±èOO
ä±ÇÀÚ±¤OOOOOOOOO
ÆäÀ̽ººÏ Æ®À§ÅÍ ±¸±Û+
īī¿À½ºÅ丮
īī¿ÀÅå sms¹®ÀÚº¸³»±â
 

±âÀϳ»¿ª

°æ°ú ³¯Â¥ Àú°¨ ÃÖÀú°¡ °á°ú
Á¢¼öÀÏ 2024-11-28 °æ¸ÅÁ¢¼ö
~11ÀÏ 
2024-12-09 °æ¸Å°³½Ã°áÁ¤
~92ÀÏ 
2025-02-28 ¹è´ç¿ä±¸Á¾±âÀÏ
~358ÀÏ 
2025-11-21 100%
1,106,384,800
À¯Âû
~407ÀÏ 
2026-01-09 70%
774,470,000
À¯Âû
~449ÀÏ 
2026-02-20 56%
619,576,000
À¯Âû
~484ÀÏ 
2026-03-27 45%
495,661,000
À¯Âû
~526ÀÏ 
2026-05-08 36%
396,529,000
º¯°æ
~610ÀÏ 
2026-07-31 36%
396,529,000
ÁøÇà
¹°°Ç¸í¼¼¼­ ÇöȲÁ¶»ç¼­ ¹®°ÇÁ¢¼ö ¼Û´Þ³»¿ª

°¨Á¤Æò°¡ÇöȲ

¸ñ·Ï ÁÖ¼Ò ±¸Á¶/¿ëµµ/´ëÁö±Ç ¸éÀû ºñ°í
ÅäÁö
¸Á¿ùµ¿ 244 ´ë 742 §³
(224.46Æò)
°Ç¹°
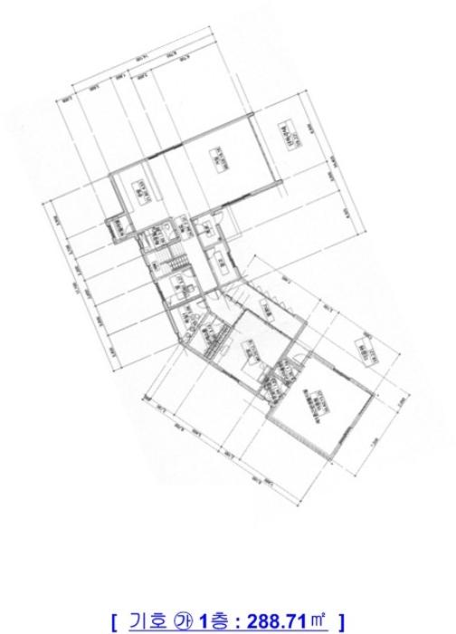
¸Á¿ùµ¿ 244 1Ãþ ÁÖÅà ö±ÙÄÜÅ©¸®Æ®Á¶ 288.71 §³
(87.33Æò)
¸Á¿ùµ¿ 244 2Ãþ ÁÖÅà ö±ÙÄÜÅ©¸®Æ®Á¶ 123.27 §³
(37.29Æò)
1) À§Ä¡/Á¦1Á¾ÀϹÝÁÖ°ÅÁö¿ª/Á¦1Á¾Áö±¸´ÜÀ§°èȹ±¸¿ª/Â÷·®ÃâÀÔ °¡´É/ö±ÙÄÜÅ©¸®Æ®Á¶ ´õº¸±â
°¨Á¤Æò°¡ ¿äÇ×Ç¥
1)À§Ä¡ ¹× ÁÖÀ§È¯°æ
º»°ÇÀº ±¤ÁÖ±¤¿ª½Ã ºÏ±¸ ¸Á¿ùµ¿ ¼ÒÀç ºÐÅ丶À» ³»¿¡ À§Ä¡Çϰí ÀÖÀ¸¸ç, ÁÖÀ§´Â
±âÁ¸ ÁÖÅÃÁö´ëÀÓ.


2)±³Åë»óȲ
º»°Ç±îÁö Â÷·®ÃâÀÔ °¡´ÉÇϰí ÀϹÝÀûÀÎ ±³ÅëÀÌ¿ë»çÁ¤Àº º¸Åë½Ã µÊ.


3)ÇüÅ ¹× ÀÌ¿ë»óÅÂ
ºÎÁ¤ÇüÀÇ ÆòÁö·Î¼­, ÁÖ°Å¿ë °ÇºÎÁö·Î ÀÌ¿ëÁßÀÓ.


4)ÀÎÁ¢ µµ·Î»óÅÂ
º»°Ç ºÏµ¿ÃøÀ¸·Î ³ëÆø ¾à 4mÀÇ Æ÷Àåµµ·Î¿¡ Á¢ÇØ ÀÖÀ½.


5)ÅäÁöÀÌ¿ë°èȹ ¹× Á¦ÇÑ»óÅÂ
Á¦1Á¾ÀϹÝÁÖ°ÅÁö¿ª, Á¦1Á¾Áö±¸´ÜÀ§°èȹ±¸¿ªÀÓ.


6)Á¦½Ã¸ñ·Ï ¿ÜÀÇ ¹°°Ç
¤Ñ


7)°øºÎ¿ÍÀÇ Â÷ÀÌ
ÇØ´ç»çÇ× ¾øÀ½.





8)±âŸÂü°í»çÇ×(ÀÓ´ë°ü·Ê ¹× ±âŸ)
1) ÀÓ´ë°ü°è : ÀÓ´ë°ü°è´Â ¹Ì»óÀÓ.

2) ±âŸ : º»°Ç Áö»ó¿¡ º°Áö "»çÁø¿ëÁö"¿Í °°ÀÌ Á¶°æ¼® ¹× ¼ö¸ñÀÌ ½ÄÀçµÇ¾î ÀÖÀ¸¸ç,
LPG TANK°¡ ¼ÒÀçÇÔ.

1)°Ç¹°ÀÇ ±¸Á¶
(°¡) ö±ÙÄÜÅ©¸®Æ®Á¶ (ö±Ù)ÄÜÅ©¸®Æ®ÁöºØ Áö»ó2Ãþ °Ç¹°·Î¼­
¿Üº® : ¸ôÅ»À§ ÆäÀÎÆ®, °­È­À¯¸® ¹× µ¹ºÙÀÓ µî
³»º® : º®Áö ¹× ŸÀÏ, ÀÎÅ׸®¾î µî
âȣ : ÇÏÀÌ»õ½Ãâ
¹Ù´Ú : ¸¶·ç ¹× ŸÀÏ µîÀ¸·Î Ä¡Àå ¶Ç´Â ¸¶°¨ÀÓ.


2)ÀÌ¿ë»óÅÂ
(°¡) ÁÖÅÃÀ¸·Î ÀÌ¿ëÁßÀÓ.


3)¼³ºñ³»¿ª
(°¡) ÀϹÝÀûÀÎ Àü±â¼³ºñ, À§»ý ¹× ±Þ¹è¼ö¼³ºñ, ³Ã³­¹æ¼³ºñ µîÀÌ ±¸ºñµÇ¾î ÀÖÀ½.


4)ºÎÇÕ¹° ¹× Á¾¹°
ÇØ´ç»çÇ× ¾øÀ½.


5)°øºÎ¿ÍÀÇ Â÷ÀÌ
ÇØ´ç»çÇ× ¾øÀ½.


6)±âŸÂü°í»çÇ×(ÀÓ´ë°ü·Ê ¹× ±âŸ)
1) ÀÓ´ë°ü°è : ÀÓ´ë°ü°è´Â ¹Ì»óÀÓ.

2) ±âŸ : ÇØ´ç»çÇ× ¾øÀ½.

Âü°í
»çÇ×
- Àϰý¸Å°¢(Áö»ó¿¡ ¼ÒÀçÇÏ´Â ¼ö¸ñ ¹× Á¶°æ¼® Æ÷ÇÔ) - Áö»ó¿¡ ¼ÒÀçÇÏ´Â "LPG TANK " ¸Å°¢ Á¦¿Ü

°ÇÃ๰ÇöȲ

¼ÒÀçÁö ±¤ÁÖ±¤¿ª½Ã ºÏ±¸ ¸Á¿ùµ¿ 244¹øÁö
´ëÁö¸éÀû 742§³
(224.85Æò)
¿¬¸éÀû 411.98§³
(124.84Æò)
°ÇÃà¸éÀû 295.86§³
(89.65Æò)
¿ëÀû·ü»êÁ¤
¿¬¸éÀû
411.98§³
(124.84Æò)
°ÇÆóÀ² 39.8733% ¿ëÀû·ü 55.5229%
Áö»óÃþ¼ö 2Ãþ ÁöÇÏÃþ¼ö  
ÁÖ¿ëµµ ´Üµ¶ÁÖÅà ±¸Á¶ ö±ÙÄÜÅ©¸®Æ®±¸Á¶
Âø°øÀÏÀÚ 2017.12.21 »ç¿ë½ÂÀÎÀÏÀÚ 2018.07.17
°ÇÃ๰Ãþº°ÇöȲ [º¸±â]


±¹ÅäºÎ½Ç°Å·¡°¡ ±¤ÁÖ±¤¿ª½Ã ºÏ±¸ ¸Á¿ùµ¿

¡Ü ¸Å¸Å

¸éÀû(§³), ±Ý¾×(¸¸¿ø)

¡Ü Àü¼¼

¸éÀû(§³), ±Ý¾×(¸¸¿ø)

°è¾àÀÏ¿¬¸éÀûº¸Áõ±Ý¿ù¼¼°ÇÃà
26.01.23439.66169,0002021
26.01.23439.66170,0002021
25.12.27212.6651,5002019

µî±âºÎµîº» ¿ä¾à(ÅäÁö)

  Á¢¼öÀÏÀÚ µî±â¸ñÀû/±Ç¸®ÀÚ ±Ç¸®±Ý¾× ±âÁØ
1 2017³â5¿ù31ÀÏ
¼ÒÀ¯±Ç
±èOO
¼Ò¸ê
2 2019³â5¿ù27ÀÏ
±ÙÀú´ç±Ç
±¤OOOO
684,000,000 ¼Ò¸ê±âÁØ
3 2021³â10¿ù26ÀÏ
°¡¾Ð·ù
¼­OOOO
79,640,000 ¼Ò¸ê
4 2022³â1¿ù13ÀÏ
¾Ð·ù
±¹
¼Ò¸ê
5 2024³â12¿ù9ÀÏ
ÀÓÀǰæ¸Å
±¤OOOO
¼Ò¸ê

µî±âºÎµîº» ¿ä¾à(°Ç¹°)

  Á¢¼öÀÏÀÚ µî±â¸ñÀû/±Ç¸®ÀÚ ±Ç¸®±Ý¾× ±âÁØ
1 2018³â7¿ù19ÀÏ
¼ÒÀ¯±Ç
±èOO
¼Ò¸ê
2 2019³â5¿ù27ÀÏ
±ÙÀú´ç±Ç
±¤OOOO
684,000,000 ¼Ò¸ê±âÁØ
3 2021³â10¿ù26ÀÏ
°¡¾Ð·ù
¼­OOOO
79,640,000 ¼Ò¸ê
4 2022³â1¿ù13ÀÏ
¾Ð·ù
±¹
¼Ò¸ê
5 2024³â12¿ù9ÀÏ
ÀÓÀǰæ¸Å
±¤OOOO
¼Ò¸ê

ÀÓÂ÷ÀÎÇöȲ (¹è´ç¿ä±¸Á¾±âÀÏ: 2025-02-28)

ÀÓÂ÷ÀÎ ¿ëµµ/Á¡À¯ º¸Áõ±Ý/¿ù¼¼ ´ëÇ×·Â
ÀüÀÔÀÏ/È®Á¤ÀÏ ¹è´ç¿ä±¸ ºñ°í
¹ÚOO
X
2024.05.21
ÃÖOO
X
2024.05.21
ºñ°í
(¸Å°¢¹°°Ç
¸í¼¼¼­)
- ÃÖÇö¹Ì: ÇöȲÁ¶»ç½Ã Áֹεî·Ï»ó µ¿°ÅÀÎÀ¸·Î µî·ÏµÈ ÃÖÇö¹Ì, ¹Ú¼¼¸°Àº º°µµÀÇ ÀÓ´ëÂ÷ ¾øÀÌ ¹«»óÀ¸·Î °ÅÁÖ ÁßÀ̶ó°í ¼ÒÀ¯ÀÚ Áø¼ú

¿©ÀÇÁÖ°æ¸Å Á¶¾ð ÇÑ ¸¶µð

ÀÔÂû(¸Å°¢)¿Ü ¹°°ÇÀÌ Æ÷ÇԵǾî ÀÖ½À´Ï´Ù
ÀÔÂû(¸Å°¢)¿¡¼­ Á¦¿ÜµÇ´Â ¹°°ÇÀÌ ÀÖ´Ù´Â ÀǹÌÀÔ´Ï´Ù. ŸÀÎÀÌ ¼³Ä¡ÇÑ °Ç¹° ¶Ç´Â À̵¿ÀÌ ¿ëÀÌÇÑ ÄÁÅ×À̳Ê, ±â°è±â±¸ µîÀ» ¸»ÇÕ´Ï´Ù. ÀÌ¿¡ ÇØ´çÇÏ´Â ¹°°ÇÀº ³«ÂûÀÚ¿¡°Ô ¼ÒÀ¯±ÇÀÌ ³Ñ¾î¿ÀÁö ¾Ê½À´Ï´Ù.

ÁÖÀÇ»çÇ× (ÃÖ¼±¼øÀ§ ¼³Á¤ÀÏ: 2019.05.27. ±ÙÀú´ç ¼³Á¤)

¸Å°¢À¸·Î ¼Ò¸êµÇÁö ¾Ê´Â µî±âºÎ±Ç¸®:
¸Å°¢À¸·Î ¼³Á¤µÈ °ÍÀ¸·Î º¸´Â Áö»ó±Ç:
- Àϰý¸Å°¢(Áö»ó¿¡ ¼ÒÀçÇÏ´Â ¼ö¸ñ ¹× Á¶°æ¼® Æ÷ÇÔ) - Áö»ó¿¡ ¼ÒÀçÇÏ´Â "LPG TANK " ¸Å°¢ Á¦¿Ü
¡Ø¹Ì³³°ü¸®ºñ(°ø¿ë) Àμö¿©ºÎ¸¦ ÀÔÂû Àü¿¡ È®ÀÎÇϽñ⠹ٶø´Ï´Ù

 

Áö¿ªºÐ¼®

ÁöÇÏö¸í Á÷¼±°Å¸®

Çб³¸í ÀüÈ­¹øÈ£ ÁÖ¼Ò Á÷¼±°Å¸®

¹ý¿ø

±¤ÁÖÁö¹æ¹ý¿ø (614-41)±¤ÁÖ±¤¿ª½Ã µ¿±¸ Áعý·Î 7-12(Áö»ê2µ¿)
´ëÇ¥ : 062)239-1114
°üÇÒÁö¿ª : ±¤ÁÖ±¤¿ª½Ã, ³ªÁÖ½Ã, È­¼ø±º, À强±º, ´ã¾ç±º, °î¼º±º, ¿µ±¤±º

µî±â¼Ò ±¤ÁÖÁö¹æ¹ý¿ø º»¿ø µî±â±¹ (´ëÇ¥:1544-0773, ÆÑ½º:(062)381-0856, 381-0876, ±¤ÁÖ±¤¿ª½Ã ¼­±¸ ½Ãû·Î 106 (Ä¡Æòµ¿ 1205))
¼¼¹«¼­ ºÏ±¤ÁÖ¼¼¹«¼­ (´ëÇ¥:062-520-92, ÆÑ½º:062-716-7280, ±¤ÁÖ±¤¿ª½Ã ºÏ±¸ ±ÝÈ£·Î 70 (¿î¾Ïµ¿))

Àαٳ«ÂûÅë°è

±â°£ ¸Å°¢°Ç¼ö Æò±Õ°¨Á¤°¡
Æò±Õ¸Å°¢°¡
¸Å°¢°¡À²
Æò±ÕÀ¯Âû¼ö
3°³¿ù 4°Ç 155,385,241¿ø
118,182,684¿ø
87%
1.5ȸ
6°³¿ù 5°Ç 168,734,152¿ø
121,206,147¿ø
82%
1.6ȸ
12°³¿ù 10°Ç 176,927,071¿ø
115,692,284¿ø
71%
2.1ȸ


º» °æ¸ÅÁ¤º¸´Â ¹ý¿øÀÚ·á¿Í ÀÏÄ¡Çϵµ·Ï ÇÏ¿´À¸³ª ±Ç¸®»çÇ׺¯µ¿, ÀÔ·ÂÂø¿À µîÀÇ ¿øÀÎÀ¸·Î »ç½Ç°ú ´Ù¸¦ ¼ö ÀÖ½À´Ï´Ù. ÀÌ¿ë¾à°ü¿¡ ÀǰЏéÃ¥Á¶°ÇÀ¸·Î Á¦°øµÊÀ» ¾Ë¸®¸ç, °æ¸ÅÀÔÂû½Ã ¹Ýµå½Ã °ü·Ã °øºÎ¸¦ ÀçÈ®ÀÎÇϽñ⠹ٶø´Ï´Ù. º¸´Ù Æí¸®ÇÑ °æ¸ÅÁ¤º¸ Á¦°øÀ» À§ÇØ Áö¼ÓÀûÀ¸·Î °³¼±ÇϰڽÀ´Ï´Ù. ÀÌ¿ëÇØ Áּż­ °¨»çÇÕ´Ï´Ù.