·Î±×ÀÎ
6
´Ù¼¼´ë(ºô¶ó)
ÀÎõÁö¹æ¹ý¿ø
 °¨Á¤°¡201,000,000 ¿ø
 ÃÖÀú°¡(100%) 201,000,000 ¿ø
 º¸Áõ±Ý(10%) 20,100,000 ¿ø
 Ã»±¸¾×198,000,000 ¿ø
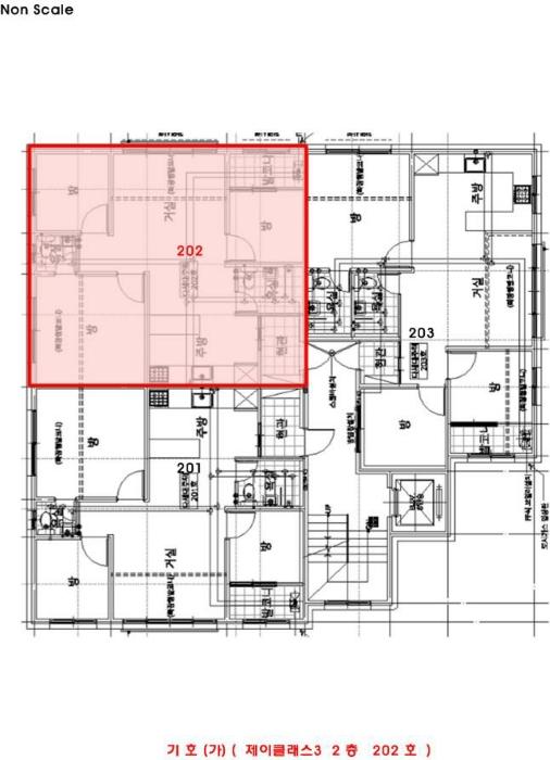
ÀÎõ±¤¿ª½Ã ³²µ¿±¸ µ¶°î·Î 45, 2Ãþ202È£ (¼­Ã¢µ¿,Á¦ÀÌŬ·¡½º3)
ÀÎõ±¤¿ª½Ã ³²µ¿±¸ ¼­Ã¢µ¿ 560-10
»ç°Ç¹øÈ£ 2024Ÿ°æ550735
°æ¸ÅÁ¾·ùºÎµ¿»ê°­Á¦°æ¸Å
¸Å°¢´ë»óÅäÁö ¹× °Ç¹°Àϰý ¸Å°¢
¸Å°¢±âÀÏ    2025.11.21(±Ý) 10:00 ÀÔÂû 8ÀÏÀü    
ÅäÁö¸éÀû33.05§³(10.00 Æò)
°Ç¹°¸éÀû50.92§³(15.40 Æò)
乫/¼ÒÀ¯ÀÚÀÌOO / ÀÌOO
ä±ÇÀÚÁÖOOOOOOO
ÆäÀ̽ººÏ Æ®À§ÅÍ ±¸±Û+
īī¿À½ºÅ丮
īī¿ÀÅå sms¹®ÀÚº¸³»±â
 

±âÀϳ»¿ª

°æ°ú ³¯Â¥ Àú°¨ ÃÖÀú°¡ °á°ú
Á¢¼öÀÏ 2024-08-01 °æ¸ÅÁ¢¼ö
~1ÀÏ 
2024-08-02 °æ¸Å°³½Ã°áÁ¤
~95ÀÏ 
2024-11-04 ¹è´ç¿ä±¸Á¾±âÀÏ
~477ÀÏ 
2025-11-21 100%
201,000,000
ÁøÇà
¹°°Ç¸í¼¼¼­ ÇöȲÁ¶»ç¼­ ¹®°ÇÁ¢¼ö ¼Û´Þ³»¿ª

°¨Á¤Æò°¡ÇöȲ

¸ñ·Ï ÁÖ¼Ò ±¸Á¶/¿ëµµ/´ëÁö±Ç ¸éÀû ºñ°í
´ëÁö±Ç
¼­Ã¢µ¿ 560-10 363.2ºÐÀÇ 33.051 33.051 §³
(10.00Æò)
°Ç¹°
¼­Ã¢µ¿ 560-10 2Ãþ202È£ ö±ÙÄÜÅ©¸®Æ®±¸Á¶ 50.92 §³
(15.40Æò)
1) À§Ä¡/Á¦2Á¾ÀϹÝÁÖ°ÅÁö¿ª/Áö±¸´ÜÀ§°èȹ±¸¿ª/¹ö½ºÁ¤·ùÀå/Â÷·®ÀÇ Á¢±ÙÀÌ °¡´É/ö±ÙÄÜÅ©¸®Æ®±¸Á¶/°æ»çÁöºØ ´õº¸±â
°¨Á¤Æò°¡ ¿äÇ×Ç¥
1)À§Ä¡ ¹× ÁÖÀ§È¯°æ
º»°ÇÀº ÀÎõ±¤¿ª½Ã ³²µ¿±¸ ¼­Ã¢µ¿ ¼ÒÀç "¼­Ã¢ÃʵîÇб³" ³²Ãø Àαٿ¡ À§Ä¡ÇÑ Á¦ÀÌŬ·¡½º3 Á¦2

Ãþ Á¦202È£·Î¼­, ºÎ±ÙÀº °øµ¿ÁÖÅà ¹× ±Ù¸°»ýȰ½Ã¼³ µîÀ¸·Î Çü¼ºµÇ¾î ÀÖÀ½.
2)±³Åë»óȲ
º»°Ç±îÁö Â÷·®ÀÇ Á¢±ÙÀÌ °¡´ÉÇϸç, ºÎ±Ù¿¡ ¹ö½ºÁ¤·ùÀåÀÌ ¼ÒÀçÇÏ¿© ´ëÁß±³Åë»óȲÀº º¸Åë½ÃµÊ.
3)°Ç¹°ÀÇ ±¸Á¶
ö±ÙÄÜÅ©¸®Æ®±¸Á¶ °æ»çÁöºØ 5Ãþ °Ç ³» 2Ãþ 202È£·Î¼­,

(ÁýÇÕ°ÇÃ๰´ëÀå»ó »ç¿ë½ÂÀÎÀÏ : 2018.11.06)

¿Ü º® : ŸÀÏ ¹× µå¶óÀ̺ñÆ®¸¶°¨

â È£ : »õ½ÃâÀÓ.
4)ÀÌ¿ë»óÅÂ
"´ÜÁöÇü´Ù¼¼´ëÁÖÅÃ"ÀÓ.
5)¼³ºñ³»¿ª
À§»ý¼³ºñ, ±Þ¹è¼ö¼³ºñ, ³­¹æ¼³ºñ, ½Â°­±â¼³ºñ µîÀÌ µÇ¾î ÀÖÀ½.
6)ÅäÁöÀÇ Çü»ó ¹× ÀÌ¿ë»óÅÂ
»ç°¢ÇüÀÇ ÅäÁö·Î ÁÖ°Å¿ë °ÇºÎÁöÀÓ.
7)ÀÎÁ¢ µµ·Î»óŵî
º»°Ç ÇÊÁö ³²¼­Ãø ¾à 18 m, ³²µ¿Ãø ¾à 20 m µµ·Î¿Í Á¢ÇÔ.
8)ÅäÁöÀÌ¿ë°èȹ ¹× Á¦ÇÑ»óÅÂ
Á¦2Á¾ÀϹÝÁÖ°ÅÁö¿ª, Áö±¸´ÜÀ§°èȹ±¸¿ª(2018-12-31)(¼­Ã¢±¸È¹), °¡Ãà»çÀ°Á¦Çѱ¸¿ª(2013-03-08

)((¹®ÀÇ:³²µ¿±¸È¯°æº¸Àü°ú 032-453-2343))<°¡ÃàºÐ´¢ÀÇ °ü¸® ¹× À̿뿡 °üÇÑ ¹ý·ü>, »ó´ëº¸È£

±¸¿ª(¹®ÀÇ: ÀÎõµ¿ºÎ±³À°Áö¿øÃ» Æò»ý±³À°°Ç°­°ú 460-6086)<±³À°È¯°æ º¸È£¿¡ °üÇÑ ¹ý·ü>, °ú

¹Ð¾ïÁ¦±Ç¿ª<¼öµµ±ÇÁ¤ºñ°èȹ¹ý>ÀÓ.
9)°øºÎ¿ÍÀÇ Â÷ÀÌ
-
10)±âŸÂü°í»çÇ×(ÀÓ´ë°ü·Ê ¹× ±âŸ)
ÀÌÇØ°ü°èÀÎÀÇ ºÎÀç ¹× Æó¹® µîÀ¸·Î ÇöÀåÁ¶»ç ¹× °øºÎ¸¦ ±Ù°Å·Î ÀÛ¼ºÇÏ¿´À¸¸ç, ÀÚ¼¼ÇÑ ÀÓ´ë°ü

°è´Â ¹Ì»óÀÓ.
Âü°í
»çÇ×

- ¼¼´ëÃâÀÔ¹®¿¡

°ÇÃ๰ÇöȲ

¼ÒÀçÁö ÀÎõ±¤¿ª½Ã ³²µ¿±¸ ¼­Ã¢µ¿ 560-10¹øÁö
´ëÁö¸éÀû 363.2§³
(110.06Æò)
¿¬¸éÀû 659.59§³
(199.88Æò)
°ÇÃà¸éÀû 217.88§³
(66.02Æò)
¿ëÀû·ü»êÁ¤
¿¬¸éÀû
659.59§³
(199.88Æò)
°ÇÆóÀ² 59.99% ¿ëÀû·ü 181.61%
Áö»óÃþ¼ö 5Ãþ ÁöÇÏÃþ¼ö  
ÁÖ¿ëµµ °øµ¿ÁÖÅà ±¸Á¶ ö±ÙÄÜÅ©¸®Æ®±¸Á¶
Âø°øÀÏÀÚ 2018.03.22 »ç¿ë½ÂÀÎÀÏÀÚ 2018.11.06
°ÇÃ๰Ãþº°ÇöȲ [º¸±â]


±¹ÅäºÎ½Ç°Å·¡°¡ ÀÎõ±¤¿ª½Ã ³²µ¿±¸ ¼­Ã¢µ¿

¡Ü ¸Å¸Å

¸éÀû(§³), ±Ý¾×(¸¸¿ø)

¡Ü Àü¼¼

¸éÀû(§³), ±Ý¾×(¸¸¿ø)

°è¾àÀϰǹ°¸íĪÃþ¿¬¸éÀû´ëÁö±Ý¾×°ÇÃà
24.03.20¿µÁ¾ÇÏÀ̺ôBµ¿176.3455.716,3002008
24.03.18¼º¿øµå¸²Å¸¿î239.2527.964911,3002012
24.03.05±¤¹éµå¸²ºô(572-11)237.2630.0610,7502011
24.02.22±¤¹éµå¸²ºô(547-5)564.9747.153327,0002019
24.01.27À¯·Î¹ÌAµ¿570.7347.1219,5002008
¢Ñ ´õº¸±â

µî±âºÎµîº» ¿ä¾à(°Ç¹°)

  Á¢¼öÀÏÀÚ µî±â¸ñÀû/±Ç¸®ÀÚ ±Ç¸®±Ý¾× ±âÁØ
1 2020³â2¿ù24ÀÏ
¼ÒÀ¯±Ç
ÀÌOO
¼Ò¸ê
2 2022³â12¿ù7ÀÏ
¾àÁ¤/±ÝÁö»çÇ×/ȯ¸ÅƯ¾à
Àμö
3 2023³â5¿ù18ÀÏ
°¡¾Ð·ù
ÁÖOOOO
3,091,000,000 ¼Ò¸ê±âÁØ
4 2023³â5¿ù19ÀÏ
¾Ð·ù
±¹
¼Ò¸ê
5 2023³â7¿ù28ÀÏ
ÀÓÂ÷±Ç¼³Á¤
ȲOO
198,000,000 ¼Ò¸ê
6 2023³â11¿ù15ÀÏ
¾Ð·ù
³²OO
¼Ò¸ê
7 2024³â1¿ù26ÀÏ
¾Ð·ù
¼­OOOO
¼Ò¸ê
8 2024³â8¿ù2ÀÏ
°­Á¦°æ¸Å
ÁÖOOOO
¼Ò¸ê
9 2024³â8¿ù13ÀÏ
¾Ð·ù
±¹OOOO
¼Ò¸ê

ÀÓÂ÷ÀÎÇöȲ (¹è´ç¿ä±¸Á¾±âÀÏ: 2024-11-04)



¸Å°¢±âÀÏ 7ÀÏÀü¿¡ ¸Å°¢¹°°Ç¸í¼¼¼­°¡ °ø°íµÇ¿À´Ï È®ÀÎÇϽñ⠹ٶø´Ï´Ù.

ÀÓÂ÷ÀÎ ¿ëµµ/Á¡À¯ º¸Áõ±Ý/¿ù¼¼ ´ëÇ×·Â
ÀüÀÔÀÏ/È®Á¤ÀÏ ¹è´ç¿ä±¸ ºñ°í
ÁÖOOOOOOOOOOOOOOOO ÀüºÎ 198,000,000
O
2021.11.15.
2021.10.18.
2024.11.1. 2021.11.15.~2023.11.15.
ȲOO ÀüºÎ 198,000,000
O
2021.11.15.
2021.10.18.
ºñ°í
(¸Å°¢¹°°Ç
¸í¼¼¼­)
ÁÖÅõµ½Ãº¸Áõ°ø»ç(ÀÓÂ÷ÀÎ:Ȳ¼³È­):ÁÖÅÃÀÓÂ÷±ÇÀÇ ½Â°èÀÎÀÎ ÁÖÅõµ½Ãº¸Áõ°ø»ç·ÎºÎÅÍ ¿ì¼±º¯Á¦±Ç¸¸ ÁÖÀåÇÏ°í ´ëÇ×·ÂÀº Æ÷±âÇϸç ÀÓ´ëÂ÷º¸Áõ±Ý Àü¾×À» º¯Á¦¹ÞÁö ¸øÇÏ´õ¶óµµ ¸Å¼öÀο¡ ´ëÇÑ ÀÜÁ¸ ÀÓ´ëÂ÷º¸Áõ±Ý ¹Ýȯû±¸±ÇÀ» Æ÷±âÇϰí ÀÓ´ëÂ÷µî±â¸¦ ¸»¼ÒÇÏ´Â °Í¿¡ µ¿ÀÇÇÑ´Ù´Â È®¾à¼­°¡ Á¦ÃâµÊ Ȳ¼³È­:ÁÖÅÃÀÓÂ÷±Çµî±â±ÇÀڷμ­ ÁÖÅÃÀÓÂ÷±Çµî±âÀÏÀº 2023.07.28.ÀÓ

¿©ÀÇÁÖ°æ¸Å Á¶¾ð ÇÑ ¸¶µð

¼±¼øÀ§ ÀÓÂ÷±Çµî±â°¡ µÇ¾î ÀÖ½À´Ï´Ù
´ëÇ×·ÂÀÌ ÀÖ´Â ¼±¼øÀ§ ÀÓÂ÷±Çµî±â ±Ç¸®ÀÚ°¡ ¹è´çÀ» Àü¾× ¹ÞÁö ¸øÇÒ °æ¿ì ³«ÂûÀÚ°¡ ÀÜ¿© º¸Áõ±ÝÀ» ÀμöÇØ¾ßÇÏ´Â °æ¿ìµµ ÀÖ½À´Ï´Ù.

ÁÖÀÇ»çÇ× (ÃÖ¼±¼øÀ§ ¼³Á¤ÀÏ: 2023.05.18. °¡¾Ð·ù ¼³Á¤)

¸Å°¢À¸·Î ¼Ò¸êµÇÁö ¾Ê´Â µî±âºÎ±Ç¸®: À»±¸ ¼øÀ§1¹ø ÁÖÅÃÀÓÂ÷±Çµî±â(´Ù¸¸ ÁÖÅõµ½Ãº¸Áõ°ø»çÀÇ ¸»¼Òµ¿ÀÇ È®¾à¼­°¡ Á¦ÃâµÊ)
¸Å°¢À¸·Î ¼³Á¤µÈ °ÍÀ¸·Î º¸´Â Áö»ó±Ç:
¡Ø¹Ì³³°ü¸®ºñ(°ø¿ë) Àμö¿©ºÎ¸¦ ÀÔÂû Àü¿¡ È®ÀÎÇϽñ⠹ٶø´Ï´Ù

 

Áö¿ªºÐ¼®

ÁöÇÏö¸í Á÷¼±°Å¸®

Çб³¸í ÀüÈ­¹øÈ£ ÁÖ¼Ò Á÷¼±°Å¸®

¹ý¿ø

ÀÎõÁö¹æ¹ý¿ø (222-20)ÀÎõ±¤¿ª½Ã ¹ÌÃßȦ±¸ ¼Ò¼º·Î 163¹ø±æ 17(ÇÐÀ͵¿)
´ëÇ¥ : 032)860-1113~4
°üÇÒÁö¿ª : Áß±¸, µ¿±¸, ³²±¸, ¿¬¼ö±¸, ³²µ¿±¸, ºÎÆò±¸, °è¾ç±¸, ¼­±¸, ¿ËÁø±º, °­È­±º

µî±â¼Ò ÀÎõÁö¹æ¹ý¿ø º»¿ø µî±â±¹ (´ëÇ¥:1544-0773, ÆÑ½º:(032)620-9099, ÀÎõ±¤¿ª½Ã ¹ÌÃßȦ±¸ °æ¿ø´ë·Î 881(Á־ȵ¿ 983))
¼¼¹«¼­ ³²ÀÎõ¼¼¹«¼­ (´ëÇ¥:032-460-52, ÆÑ½º:032-463-5778, ÀÎõ±¤¿ª½Ã ³²µ¿±¸ ÀÎÇÏ·Î 548 (±¸¿ùµ¿))

Àαٳ«ÂûÅë°è

±â°£ ¸Å°¢°Ç¼ö Æò±Õ°¨Á¤°¡
Æò±Õ¸Å°¢°¡
¸Å°¢°¡À²
Æò±ÕÀ¯Âû¼ö
3°³¿ù 53°Ç 129,743,774¿ø
80,105,018¿ø
60%
2.4ȸ
6°³¿ù 139°Ç 131,866,331¿ø
82,848,115¿ø
61%
2.2ȸ
12°³¿ù 257°Ç 129,075,306¿ø
82,253,245¿ø
62%
2.2ȸ


º» °æ¸ÅÁ¤º¸´Â ¹ý¿øÀÚ·á¿Í ÀÏÄ¡Çϵµ·Ï ÇÏ¿´À¸³ª ±Ç¸®»çÇ׺¯µ¿, ÀÔ·ÂÂø¿À µîÀÇ ¿øÀÎÀ¸·Î »ç½Ç°ú ´Ù¸¦ ¼ö ÀÖ½À´Ï´Ù. ÀÌ¿ë¾à°ü¿¡ ÀǰЏéÃ¥Á¶°ÇÀ¸·Î Á¦°øµÊÀ» ¾Ë¸®¸ç, °æ¸ÅÀÔÂû½Ã ¹Ýµå½Ã °ü·Ã °øºÎ¸¦ ÀçÈ®ÀÎÇϽñ⠹ٶø´Ï´Ù. º¸´Ù Æí¸®ÇÑ °æ¸ÅÁ¤º¸ Á¦°øÀ» À§ÇØ Áö¼ÓÀûÀ¸·Î °³¼±ÇϰڽÀ´Ï´Ù. ÀÌ¿ëÇØ Áּż­ °¨»çÇÕ´Ï´Ù.