·Î±×ÀÎ
79
´Ù¼¼´ë(ºô¶ó)
ÀÎõÁö¹æ¹ý¿ø
 °¨Á¤°¡184,000,000 ¿ø
 ÃÖÀú°¡(49%) 90,160,000 ¿ø
 º¸Áõ±Ý(10%) 9,016,000 ¿ø
 Ã»±¸¾×161,858,989 ¿ø
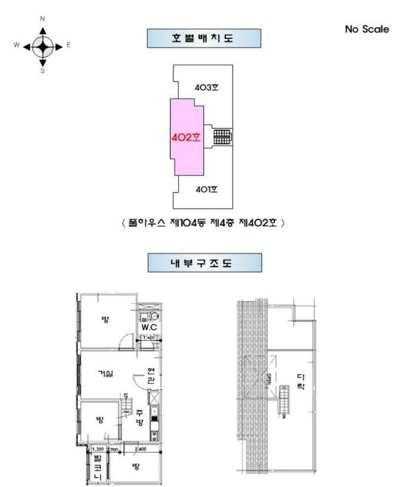
ÀÎõ±¤¿ª½Ã ¼­±¸ ½ÂÇзÎ512¹ø±æ 49, 104µ¿ 4Ãþ402È£ (°Ë¾Ïµ¿,Ç®ÇϿ콺)
ÀÎõ±¤¿ª½Ã ¼­±¸ °Ë¾Ïµ¿ 636-8
»ç°Ç¹øÈ£ 2024Ÿ°æ577815
°æ¸ÅÁ¾·ùºÎµ¿»ê°­Á¦°æ¸Å
¸Å°¢´ë»óÅäÁö ¹× °Ç¹°Àϰý ¸Å°¢
¸Å°¢±âÀÏ    2026.02.04(¼ö) 10:00 ÀÔÂû 39ÀÏÀü    
ÅäÁö¸éÀû37.27§³(11.27 Æò)
°Ç¹°¸éÀû49.72§³(15.04 Æò)
乫/¼ÒÀ¯ÀÚ±èOO / ±èOO
ä±ÇÀÚÁÖOOOOOOO
ÆäÀ̽ººÏ Æ®À§ÅÍ ±¸±Û+
īī¿À½ºÅ丮
īī¿ÀÅå sms¹®ÀÚº¸³»±â
 

±âÀϳ»¿ª

°æ°ú ³¯Â¥ Àú°¨ ÃÖÀú°¡ °á°ú
Á¢¼öÀÏ 2024-11-28 °æ¸ÅÁ¢¼ö
~1ÀÏ 
2024-11-29 °æ¸Å°³½Ã°áÁ¤
~88ÀÏ 
2025-02-24 ¹è´ç¿ä±¸Á¾±âÀÏ
~357ÀÏ 
2025-11-20 100%
184,000,000
À¯Âû
~389ÀÏ 
2025-12-22 70%
128,800,000
À¯Âû
~433ÀÏ 
2026-02-04 49%
90,160,000
ÁøÇà
¹°°Ç¸í¼¼¼­ ÇöȲÁ¶»ç¼­ ¹®°ÇÁ¢¼ö ¼Û´Þ³»¿ª

°¨Á¤Æò°¡ÇöȲ

¸ñ·Ï ÁÖ¼Ò ±¸Á¶/¿ëµµ/´ëÁö±Ç ¸éÀû ºñ°í
´ëÁö±Ç
°Ë¾Ïµ¿ 636-8 727.3ºÐÀÇ 37.27 37.27 §³
(11.27Æò)
°Ç¹°
°Ë¾Ïµ¿ 636-8 104µ¿ 4Ãþ402È£ ö±ÙÄÜÅ©¸®Æ®±¸Á¶ 49.72 §³
(15.04Æò)
1) À§Ä¡/Á¦1Á¾ÀϹÝÁÖ°ÅÁö¿ª/Áö±¸´ÜÀ§°èȹ±¸¿ª/ÁöÇÏö/³ë¼±¹ö½ºÁ¤·ùÀå/ö±ÙÄÜÅ©¸®Æ®±¸Á¶/°æ»çÁöºØ/¹æ3 ´õº¸±â
°¨Á¤Æò°¡ ¿äÇ×Ç¥
1)À§Ä¡ ¹× ÁÖÀ§È¯°æ
º»°ÇÀº ÀÎõ±¤¿ª½Ã ¼­±¸ °Ë¾Ïµ¿ ¼ÒÀç "¼­ÀÎõ°íµîÇб³" ºÏµ¿Ãø Àαٿ¡ À§Ä¡Çϸç, ÁÖÀ§´Â ´Ù¼¼´ëÁÖÅà ¹× ¾ÆÆÄÆ® µî °øµ¿ÁÖÅÃ, °¢Á¾ ±Ù¸°»ýȰ½Ã¼³, Çб³ µîÀÌ ¼ÒÀçÇÏ´Â Áö¿ªÀ¸·Î¼­, ÁÖÀ§È¯°æÀº º¸Åë½ÃµÊ.
2)±³Åë»óȲ
º»°Ç±îÁö Â÷·®ÁøÃâÀÔÀÌ °¡´ÉÇϰí, Àαٿ¡ ÁöÇÏö ÀÎõ2È£¼± "°Ë¹ÙÀ§¿ª" ¹× ³ë¼±¹ö½ºÁ¤·ùÀåÀÌ ¼ÒÀçÇÏ´Â µî Á¦¹Ý±³Åë»óȲÀº ¾çÈ£ÇÑ ÆíÀÓ.
3)°Ç¹°ÀÇ ±¸Á¶
º»°ÇÀº ö±ÙÄÜÅ©¸®Æ®±¸Á¶ °æ»çÁöºØ Áö»ó4Ãþ °Ç¹° ³» Á¦4Ãþ Á¦402È£·Î¼­,
(»ç¿ë½ÂÀÎÀÏ: 2010.08.13)
¿Üº®: ½ºÅæÄÚÆ®¸¶°¨ µî.
³»º®: º®Áöµµ¹è ¹× ŸÀϺÙÀÓ ¸¶°¨ µîÀ¸·Î ÃßÁ¤µÊ.
âȣ: ¼¦½Ãâȣ µîÀÓ.
4)ÀÌ¿ë»óÅÂ
º»°ÇÀº ´Ù¼¼´ëÁÖÅà 1¼¼´ë(¹æ3, ÁÖ¹æ, ¿å½Ç, ¹ßÄÚ´Ï, ´Ù¶ô µî)·Î ÀÌ¿ëÁßÀÎ °ÍÀ¸·Î ÃßÁ¤µÊ.
5)¼³ºñ³»¿ª
º»°ÇÀº ±âº»ÀûÀÎ À§»ý¼³ºñ, ±Þ¹è¼ö½Ã¼³, ³­¹æ¼³ºñ µîÀÌ µÇ¾î ÀÖ´Â °ÍÀ¸·Î ÃßÁ¤µÊ.

6)ÅäÁöÀÇ Çü»ó ¹× ÀÌ¿ë»óÅÂ
º»°Ç ÅäÁö´Â ÀÎÁ¢Áö´ëºñ µî°íÆòźÇÑ ¼¼ÀåÇü ÅäÁö·Î¼­, ÇöȲ "°øµ¿ÁÖÅÃ(´Ù¼¼´ëÁÖÅÃ) °ÇºÎÁö"·Î ÀÌ¿ëÁßÀÓ
7)ÀÎÁ¢ µµ·Î»óŵî
º»°Ç ºÏÃøÀ¸·Î ½ÂÇзÎ512¹ø±æ µµ·Î¿Í Á¢Çϰí ÀÖÀ½.
8)ÅäÁöÀÌ¿ë°èȹ ¹× Á¦ÇÑ»óÅÂ
Á¦1Á¾ÀϹÝÁÖ°ÅÁö¿ª, Áö±¸´ÜÀ§°èȹ±¸¿ª(°Ë¾Ï1±¸È¹Á¤¸®), µµ·Î(Á¢ÇÕ), °¡Ãà»çÀ°Á¦Çѱ¸¿ª(ÀÎõ±¤¿ª½Ã ¼­±¸Á¶·Ê Á¦1749È£ )<°¡ÃàºÐ´¢ÀÇ °ü¸® ¹× À̿뿡 °üÇÑ ¹ý·ü>, »ó´ëº¸È£±¸¿ª(ÀÎõ¼­ºÎ±³À°Ã»Æò»ý±³À°°ú¹®ÀÇ560-6659)<±³À°È¯°æ º¸È£¿¡ °üÇÑ ¹ý·ü>, °ú¹Ð¾ïÁ¦±Ç¿ª(°ú¹Ð¾ïÁ¦±Ç¿ª)<¼öµµ±ÇÁ¤ºñ°èȹ¹ý> µîÀÓ.
9)°øºÎ¿ÍÀÇ Â÷ÀÌ
¾ø À½.
10)±âŸÂü°í»çÇ×(ÀÓ´ë°ü·Ê ¹× ±âŸ)
ÀÓ´ë¹Ì»óÀÓ.
Âü°í
»çÇ×

º»°Ç ºÎµ¿»êÀº ÁÖ¼ÒÁöÀÇ

°ÇÃ๰ÇöȲ

¼ÒÀçÁö ÀÎõ±¤¿ª½Ã ¼­±¸ °Ë¾Ïµ¿ 636-8¹øÁö
´ëÁö¸éÀû 727.3§³
(220.39Æò)
¿¬¸éÀû 531.92§³
(161.19Æò)
°ÇÃà¸éÀû 181.74§³
(55.07Æò)
¿ëÀû·ü»êÁ¤
¿¬¸éÀû
531.92§³
(161.19Æò)
°ÇÆóÀ² 24.99% ¿ëÀû·ü 73.14%
Áö»óÃþ¼ö 4Ãþ ÁöÇÏÃþ¼ö  
ÁÖ¿ëµµ °øµ¿ÁÖÅà ±¸Á¶ ö±ÙÄÜÅ©¸®Æ®±¸Á¶
Âø°øÀÏÀÚ 2009.10.28 »ç¿ë½ÂÀÎÀÏÀÚ 2010.08.13
°ÇÃ๰Ãþº°ÇöȲ [º¸±â]


±¹ÅäºÎ½Ç°Å·¡°¡ ÀÎõ±¤¿ª½Ã ¼­±¸ °Ë¾Ïµ¿

¡Ü ¸Å¸Å

¸éÀû(§³), ±Ý¾×(¸¸¿ø)

¡Ü Àü¼¼

¸éÀû(§³), ±Ý¾×(¸¸¿ø)

°è¾àÀϰǹ°¸íĪÃþ¿¬¸éÀû´ëÁö±Ý¾×°ÇÃà
24.03.30ÇѸ¶·çŸ¿î101µ¿102µ¿235.9921.0612,5002012
24.03.29½ºÄ«À̺ô(678-5)456.5931.5815,5002014
24.03.27¿¡ÄÚºô¸®ÁöBµ¿251.3937.4914,1002010
24.03.25¿ì´ãºô¸®Áö457.7643.46115,0002008
24.03.25¿¡ÄÚºô1Â÷233.0524.44510,1002011
¢Ñ ´õº¸±â

µî±âºÎµîº» ¿ä¾à(°Ç¹°)

  Á¢¼öÀÏÀÚ µî±â¸ñÀû/±Ç¸®ÀÚ ±Ç¸®±Ý¾× ±âÁØ
1 2019³â12¿ù30ÀÏ
¼ÒÀ¯±Ç
±èOO
¼Ò¸ê
2 2022³â11¿ù10ÀÏ
¾àÁ¤/±ÝÁö»çÇ×/ȯ¸ÅƯ¾à
Àμö
3 2023³â9¿ù7ÀÏ
¾Ð·ù
±¹
¼Ò¸ê±âÁØ
4 2023³â12¿ù27ÀÏ
ÀÓÂ÷±Ç¼³Á¤
¿ìOO
154,500,000 ¼Ò¸ê
5 2024³â11¿ù29ÀÏ
°­Á¦°æ¸Å
ÁÖOOOO
¼Ò¸ê

ÀÓÂ÷ÀÎÇöȲ (¹è´ç¿ä±¸Á¾±âÀÏ: 2025-02-24)

ÀÓÂ÷ÀÎ ¿ëµµ/Á¡À¯ º¸Áõ±Ý/¿ù¼¼ ´ëÇ×·Â
ÀüÀÔÀÏ/È®Á¤ÀÏ ¹è´ç¿ä±¸ ºñ°í
¿ìOO ÀüºÎ 154,500,000
O
2021.11.22.
2021.10.22.
2021.11.22.
ÁÖOOOOOOOOOOOOOOOO ÀüºÎ 154,500,000
O
2021.11.22.
2021.10.22.
2024.11.28. 2021.11.22.~2023.11.21.
ºñ°í
(¸Å°¢¹°°Ç
¸í¼¼¼­)
¿ìÇý¿µ : ÁÖÅÃÀÓÂ÷±Çµî±â±Ç¸®Àڷμ­ ÁÖÅÃÀÓÂ÷±Çµî±âÀÏÀº 2023.12.27.ÀÓ ÁÖÅõµ½Ãº¸Áõ°ø»ç(ÀÓÂ÷ÀÎ:¿ìÇý¿µ) : -°æ¸Å½Åûä±ÇÀÚ·Î ¹è´ç¿ä±¸ÀÏÀÚ´Â °æ¸Å½ÅûÀÏÀÓ

¿©ÀÇÁÖ°æ¸Å Á¶¾ð ÇÑ ¸¶µð

¼±¼øÀ§ ÀÓÂ÷±Çµî±â°¡ µÇ¾î ÀÖ½À´Ï´Ù
´ëÇ×·ÂÀÌ ÀÖ´Â ¼±¼øÀ§ ÀÓÂ÷±Çµî±â ±Ç¸®ÀÚ°¡ ¹è´çÀ» Àü¾× ¹ÞÁö ¸øÇÒ °æ¿ì ³«ÂûÀÚ°¡ ÀÜ¿© º¸Áõ±ÝÀ» ÀμöÇØ¾ßÇÏ´Â °æ¿ìµµ ÀÖ½À´Ï´Ù.

ÁÖÀÇ»çÇ× (ÃÖ¼±¼øÀ§ ¼³Á¤ÀÏ: 2023.09.07. ¾Ð·ù ¼³Á¤)

¸Å°¢À¸·Î ¼Ò¸êµÇÁö ¾Ê´Â µî±âºÎ±Ç¸®: À»±¸ ¼øÀ§ 5¹ø ÁÖÅÃÀÓÂ÷±Çµî±â(´Ù¸¸, ÁÖÅõµ½Ãº¸Áõ°ø»çÀÇ ¸»¼Òµ¿ÀÇ È®¾à¼­°¡ Á¦Ãâ µÊ)
¸Å°¢À¸·Î ¼³Á¤µÈ °ÍÀ¸·Î º¸´Â Áö»ó±Ç:
¡Ø¹Ì³³°ü¸®ºñ(°ø¿ë) Àμö¿©ºÎ¸¦ ÀÔÂû Àü¿¡ È®ÀÎÇϽñ⠹ٶø´Ï´Ù

 

Áö¿ªºÐ¼®

ÁöÇÏö¸í Á÷¼±°Å¸®

Çб³¸í ÀüÈ­¹øÈ£ ÁÖ¼Ò Á÷¼±°Å¸®

¹ý¿ø

ÀÎõÁö¹æ¹ý¿ø (222-20)ÀÎõ±¤¿ª½Ã ¹ÌÃßȦ±¸ ¼Ò¼º·Î 163¹ø±æ 17(ÇÐÀ͵¿)
´ëÇ¥ : 032)860-1113~4
°üÇÒÁö¿ª : Áß±¸, µ¿±¸, ³²±¸, ¿¬¼ö±¸, ³²µ¿±¸, ºÎÆò±¸, °è¾ç±¸, ¼­±¸, ¿ËÁø±º, °­È­±º

µî±â¼Ò ÀÎõÁö¹æ¹ý¿ø º»¿ø µî±â±¹ (´ëÇ¥:1544-0773, ÆÑ½º:(032)620-9099, ÀÎõ±¤¿ª½Ã ¹ÌÃßȦ±¸ °æ¿ø´ë·Î 881(Á־ȵ¿ 983))
¼¼¹«¼­ ¼­ÀÎõ¼¼¹«¼­ (´ëÇ¥:032-560-52, ÆÑ½º:032-561-5777, ÀÎõ±¤¿ª½Ã ¼­±¸ ¼­°ù·Î369¹ø±æ 17 (¿¬Èñµ¿))

Àαٳ«ÂûÅë°è

±â°£ ¸Å°¢°Ç¼ö Æò±Õ°¨Á¤°¡
Æò±Õ¸Å°¢°¡
¸Å°¢°¡À²
Æò±ÕÀ¯Âû¼ö
3°³¿ù 78°Ç 149,878,154¿ø
97,365,373¿ø
65%
2ȸ
6°³¿ù 193°Ç 153,603,606¿ø
102,867,751¿ø
67%
2ȸ
12°³¿ù 371°Ç 154,852,535¿ø
103,934,490¿ø
67%
2ȸ


º» °æ¸ÅÁ¤º¸´Â ¹ý¿øÀÚ·á¿Í ÀÏÄ¡Çϵµ·Ï ÇÏ¿´À¸³ª ±Ç¸®»çÇ׺¯µ¿, ÀÔ·ÂÂø¿À µîÀÇ ¿øÀÎÀ¸·Î »ç½Ç°ú ´Ù¸¦ ¼ö ÀÖ½À´Ï´Ù. ÀÌ¿ë¾à°ü¿¡ ÀǰЏéÃ¥Á¶°ÇÀ¸·Î Á¦°øµÊÀ» ¾Ë¸®¸ç, °æ¸ÅÀÔÂû½Ã ¹Ýµå½Ã °ü·Ã °øºÎ¸¦ ÀçÈ®ÀÎÇϽñ⠹ٶø´Ï´Ù. º¸´Ù Æí¸®ÇÑ °æ¸ÅÁ¤º¸ Á¦°øÀ» À§ÇØ Áö¼ÓÀûÀ¸·Î °³¼±ÇϰڽÀ´Ï´Ù. ÀÌ¿ëÇØ Áּż­ °¨»çÇÕ´Ï´Ù.