·Î±×ÀÎ
1051
´Ù¼¼´ë(ºô¶ó)
¼ö¿øÁö¹æ¹ý¿ø ¾È»êÁö¿ø
 °¨Á¤°¡172,000,000 ¿ø
 ÃÖÀú°¡(70%) 120,400,000 ¿ø
 º¸Áõ±Ý(10%) 12,040,000 ¿ø
 Ã»±¸¾×79,553,205 ¿ø
°æ±âµµ ¾È»ê½Ã ´Ü¿ø±¸ È­Á¤Ãµ¼­·Î7¾È±æ 19, 4Ãþ401È£ (¼±ºÎµ¿,´Ù¼ØÆÓ¸®½º)
°æ±âµµ ¾È»ê½Ã ´Ü¿ø±¸ ¼±ºÎµ¿ 1103-7
»ç°Ç¹øÈ£ 2025Ÿ°æ50790
°æ¸ÅÁ¾·ùºÎµ¿»êÀÓÀǰæ¸Å
¸Å°¢´ë»óÅäÁö ¹× °Ç¹°Àϰý ¸Å°¢
¸Å°¢±âÀÏ    2026.04.02(¸ñ) 10:30 ÀÔÂû 32ÀÏÀü    
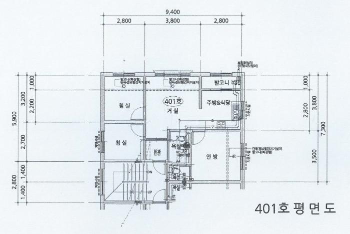
ÅäÁö¸éÀû28.84§³(8.72 Æò)
°Ç¹°¸éÀû49.74§³(15.04 Æò)
乫/¼ÒÀ¯ÀÚÁ¶OO (OO OO OOOO (OOOO OOOOOO)) / Á¶OO (OO OO OOOO (OOOO OOOOOO))
ä±ÇÀÚ¹ÌO OOOOOO
ÆäÀ̽ººÏ Æ®À§ÅÍ ±¸±Û+
īī¿À½ºÅ丮
īī¿ÀÅå sms¹®ÀÚº¸³»±â
 

±âÀϳ»¿ª

°æ°ú ³¯Â¥ Àú°¨ ÃÖÀú°¡ °á°ú
Á¢¼öÀÏ 2025-01-14 °æ¸ÅÁ¢¼ö
~1ÀÏ 
2025-01-15 °æ¸Å°³½Ã°áÁ¤
~78ÀÏ 
2025-04-02 ¹è´ç¿ä±¸Á¾±âÀÏ
~310ÀÏ 
2025-11-20 100%
172,000,000
º¯°æ
~401ÀÏ 
2026-02-19 100%
172,000,000
À¯Âû
~443ÀÏ 
2026-04-02 70%
120,400,000
ÁøÇà
¹°°Ç¸í¼¼¼­ ÇöȲÁ¶»ç¼­ ¹®°ÇÁ¢¼ö ¼Û´Þ³»¿ª

°¨Á¤Æò°¡ÇöȲ

¸ñ·Ï ÁÖ¼Ò ±¸Á¶/¿ëµµ/´ëÁö±Ç ¸éÀû ºñ°í
´ëÁö±Ç
¼±ºÎµ¿ 1103-7 230.7ºÐÀÇ 28.8375 28.8375 §³
(8.72Æò)
°Ç¹°
¼±ºÎµ¿ 1103-7 4Ãþ401È£ ö±ÙÄÜÅ©¸®Æ®±¸Á¶ 49.735 §³
(15.04Æò)
1) À§Ä¡/µµ½ÃÁö¿ª/Á¦1Á¾ÀϹÝÁÖ°ÅÁö¿ª/³ë¼±¹ö½ºÁ¤·ùÀå/ö±ÙÄÜÅ©¸®Æ®±¸Á¶/°³º°³­¹æ ´õº¸±â
°¨Á¤Æò°¡ ¿äÇ×Ç¥
1)À§Ä¡ ¹× ÁÖÀ§È¯°æ
º»°ÇÀº °æ±âµµ ¾È»ê½Ã ´Ü¿ø±¸ ¼±ºÎµ¿ ¼ÒÀç "È­Á¤ÃʵîÇб³" ºÏ¼­Ãø Àαٿ¡ À§Ä¡Çϸç
ÁÖº¯Àº °øµ¿ÁÖÅÃ, ´Üµ¶ÁÖÅÃ, ±Ù¸°»ýȰ½Ã¼³ µîÀÌ È¥ÀçÇÏ´Â Áö¿ªÀ¸·Î¼­, Á¦¹Ý ÁÖÀ§
ȯ°æÀº º¸ÅëÀÓ.
2)±³Åë»óȲ
º»°Ç±îÁö Â÷·®Á¢±Ù °¡´ÉÇϸç, Àαٿ¡ ³ë¼±¹ö½ºÁ¤·ùÀåÀÌ ¼ÒÀçÇÏ¿© ´ëÁß±³Åë»çÁ¤Àº
¹«³­½Ã µÊ.
3)°Ç¹°ÀÇ ±¸Á¶
ö±ÙÄÜÅ©¸®Æ®±¸Á¶ (ö±Ù)ÄÜÅ©¸®Æ®ÁöºØ 5Ãþ°Ç ³» 4Ãþ 401È£·Î¼­,
¿Üº® : Ä¡À庮µ¹½×±â ¹× ÀϺΠ´ë¸®¼®ºÙÀÓ ¸¶°¨
³»º® : º®Áöµµ¹è ¹× ŸÀϺÙÀÓ ¸¶°¨ µî
âȣ : ¼¦½Ã âȣ µîÀÓ.
4)ÀÌ¿ë»óÅÂ
´Ù¼¼´ëÁÖÅÃÀ¸·Î ÀÌ¿ëÁßÀÓ.
(ÈÄ÷ ³»ºÎ±¸Á¶µµ ÂüÁ¶)
5)¼³ºñ³»¿ª
À§»ý ¹× ±Þ¹è¼ö¼³ºñ, °³º°³­¹æ¼³ºñ µîÀÌ µÇ¾î ÀÖÀ½.

6)ÅäÁöÀÇ Çü»ó ¹× ÀÌ¿ë»óÅÂ
¼¼ÀåÇü ÅäÁö·Î ´Ù¼¼´ëÁÖÅà °ÇºÎÁö·Î ÀÌ¿ëÁßÀÓ.
7)ÀÎÁ¢ µµ·Î»óŵî
ºÏÃøÀ¸·Î Æ÷Àåµµ·Î¿Í Á¢ÇÔ.
8)ÅäÁöÀÌ¿ë°èȹ ¹× Á¦ÇÑ»óÅÂ
µµ½ÃÁö¿ª, Á¦1Á¾ÀϹÝÁÖ°ÅÁö¿ª, ½Ã°¡Áö°æ°üÁö±¸(ÀϹÝ), ¼Ò·Î3·ù(Æø 8m ¹Ì¸¸)(Á¢ÇÕ),
°¡Ãà»çÀ°Á¦Çѱ¸¿ª<°¡ÃàºÐ´¢ÀÇ °ü¸® ¹× À̿뿡 °üÇÑ ¹ý·ü>, »ó´ëº¸È£±¸¿ª(¾È»êÈ­Á¤
ÃʵîÇб³)<±³À°È¯°æ º¸È£¿¡ °üÇÑ ¹ý·ü>, ´ë±â°ü¸®±Ç¿ª<´ë±â°ü¸®±Ç¿ªÀÇ ´ë±âȯ°æ°³
¼±¿¡ °üÇÑ Æ¯º°¹ý>, µµ½Ã±³ÅëÁ¤ºñÁö¿ª<µµ½Ã±³ÅëÁ¤ºñÃËÁø¹ý>, »ýȰ¼ÒÀ½Áøµ¿°ü¸®Áö
¿ª<¼ÒÀ½Áøµ¿°ü¸®¹ý>, ¼ºÀå°ü¸®±Ç¿ª<¼öµµ±ÇÁ¤ºñ°èȹ¹ý>ÀÓ.
9)°øºÎ¿ÍÀÇ Â÷ÀÌ
ÇØ´ç»çÇ× ¾øÀ½.
10)±âŸÂü°í»çÇ×(ÀÓ´ë°ü·Ê ¹× ±âŸ)
- ÀÓ´ë°ü°è ¹Ì»óÀÓ.
- °¢ ¼¼´ëº°·Î °³º°»ç¹°ÇÔ ¼ÒÀçÇÔ. (»çÁø ÂüÁ¶)
Âü°í
»çÇ×

Ãþ2°¡±¸

°ÇÃ๰ÇöȲ

¼ÒÀçÁö °æ±âµµ ¾È»ê½Ã ´Ü¿ø±¸ ¼±ºÎµ¿ 1103-7¹øÁö
´ëÁö¸éÀû 230.7§³
(69.91Æò)
¿¬¸éÀû 459.48§³
(139.24Æò)
°ÇÃà¸éÀû 137.24§³
(41.59Æò)
¿ëÀû·ü»êÁ¤
¿¬¸éÀû
459.48§³
(139.24Æò)
°ÇÆóÀ² 59.49% ¿ëÀû·ü 199.17%
Áö»óÃþ¼ö 5Ãþ ÁöÇÏÃþ¼ö  
ÁÖ¿ëµµ °øµ¿ÁÖÅà ±¸Á¶ ö±ÙÄÜÅ©¸®Æ®±¸Á¶
Âø°øÀÏÀÚ 2012.10.06 »ç¿ë½ÂÀÎÀÏÀÚ 2013.04.04
°ÇÃ๰Ãþº°ÇöȲ [º¸±â]


µî±âºÎµîº» ¿ä¾à(°Ç¹°)

  Á¢¼öÀÏÀÚ µî±â¸ñÀû/±Ç¸®ÀÚ ±Ç¸®±Ý¾× ±âÁØ
1 2016³â8¿ù2ÀÏ
¼ÒÀ¯±Ç
Á¶OO
¼Ò¸ê
2 2013³â5¿ù27ÀÏ
±ÙÀú´ç±Ç
¹ÌOOOO
156,000,000 ¼Ò¸ê±âÁØ
3 2024³â1¿ù31ÀÏ
±ÙÀú´ç±Ç
À¯OOOO
22,500,000 ¼Ò¸ê
4 2025³â1¿ù15ÀÏ
ÀÓÀǰæ¸Å
¹ÌOOOO
¼Ò¸ê
5 2025³â2¿ù10ÀÏ
°¡¾Ð·ù
½ÅOOOO
6,792,500 ¼Ò¸ê
6 2025³â9¿ù9ÀÏ
¾Ð·ù
¾ÈOO
¼Ò¸ê

ÀÓÂ÷ÀÎÇöȲ (¹è´ç¿ä±¸Á¾±âÀÏ: 2025-04-02)


Á¶»çµÈ ÀÓÂ÷³»¿ªÀÌ ¾ø½À´Ï´Ù


¿©ÀÇÁÖ°æ¸Å Á¶¾ð ÇÑ ¸¶µð


ÁÖÀÇ»çÇ× (ÃÖ¼±¼øÀ§ ¼³Á¤ÀÏ: 2013.5.27.±ÙÀú´ç ¼³Á¤)

¸Å°¢À¸·Î ¼Ò¸êµÇÁö ¾Ê´Â µî±âºÎ±Ç¸®:
¸Å°¢À¸·Î ¼³Á¤µÈ °ÍÀ¸·Î º¸´Â Áö»ó±Ç:
2025.11.05 ä±ÇÀÚ ¼Ò¼Û´ë¸®ÀÎ ÀÌOO ¸Å°¢±âÀÏ¿¬±â½Åû¼­ Á¦Ãâ
¡Ø¹Ì³³°ü¸®ºñ(°ø¿ë) Àμö¿©ºÎ¸¦ ÀÔÂû Àü¿¡ È®ÀÎÇϽñ⠹ٶø´Ï´Ù

 

Áö¿ªºÐ¼®

ÁöÇÏö¸í Á÷¼±°Å¸®

Çб³¸í ÀüÈ­¹øÈ£ ÁÖ¼Ò Á÷¼±°Å¸®

¹ý¿ø

¼ö¿øÁö¹æ¹ý¿ø ¾È»êÁö¿ø (140-54)°æ±âµµ ¾È»ê½Ã ´Ü¿ø±¸ ±¤´ö¼­·Î 75 (°íÀܵ¿)
´ëÇ¥ : 031)481-1114, ¹Î¿ø : 031)481-1238, ¾ß°£ : 031)481-1112
°üÇÒÁö¿ª : ¾È»ê½Ã, ±¤¸í½Ã, ½ÃÈï½Ã

µî±â¼Ò ¼ö¿øÁö¹æ¹ý¿ø ¾È»êÁö¿ø µî±â°ú (´ëÇ¥:1544-0773, ÆÑ½º:(031)481-1290~1292, °æ±âµµ ¾È»ê½Ã ´Ü¿ø±¸ ±¤´ö¼­·Î 75 (°íÀܵ¿ 711))
¼¼¹«¼­ ¾È»ê¼¼¹«¼­ (´ëÇ¥:031-412-32, ÆÑ½º:031-412-3268, °æ±âµµ ¾È»ê½Ã ´Ü¿ø±¸ È­¶û·Î 350 (°íÀܵ¿ 517))

Àαٳ«ÂûÅë°è

±â°£ ¸Å°¢°Ç¼ö Æò±Õ°¨Á¤°¡
Æò±Õ¸Å°¢°¡
¸Å°¢°¡À²
Æò±ÕÀ¯Âû¼ö


º» °æ¸ÅÁ¤º¸´Â ¹ý¿øÀÚ·á¿Í ÀÏÄ¡Çϵµ·Ï ÇÏ¿´À¸³ª ±Ç¸®»çÇ׺¯µ¿, ÀÔ·ÂÂø¿À µîÀÇ ¿øÀÎÀ¸·Î »ç½Ç°ú ´Ù¸¦ ¼ö ÀÖ½À´Ï´Ù. ÀÌ¿ë¾à°ü¿¡ ÀǰЏéÃ¥Á¶°ÇÀ¸·Î Á¦°øµÊÀ» ¾Ë¸®¸ç, °æ¸ÅÀÔÂû½Ã ¹Ýµå½Ã °ü·Ã °øºÎ¸¦ ÀçÈ®ÀÎÇϽñ⠹ٶø´Ï´Ù. º¸´Ù Æí¸®ÇÑ °æ¸ÅÁ¤º¸ Á¦°øÀ» À§ÇØ Áö¼ÓÀûÀ¸·Î °³¼±ÇϰڽÀ´Ï´Ù. ÀÌ¿ëÇØ Áּż­ °¨»çÇÕ´Ï´Ù.