·Î±×ÀÎ
98
ÁÖÅÃ
ÃáõÁö¹æ¹ý¿ø ¼ÓÃÊÁö¿ø
 °¨Á¤°¡111,289,720 ¿ø
 ÃÖÀú°¡(49%) 54,532,000 ¿ø
 º¸Áõ±Ý(10%) 5,453,200 ¿ø
 Ã»±¸¾×165,944,608 ¿ø
°­¿øÆ¯º°ÀÚÄ¡µµ °í¼º±º Å伺¸é ±³¾Ï¸® 1-14
»ç°Ç¹øÈ£ 2025Ÿ°æ10260
°æ¸ÅÁ¾·ùºÎµ¿»ê°­Á¦°æ¸Å
¸Å°¢´ë»óÅäÁö ¹× °Ç¹°ÁöºÐ¸Å°¢
¸Å°¢±âÀÏ    2026.02.04(¼ö) 10:00 ÀÔÂû 42ÀÏÀü    
ÅäÁö¸éÀû45.00§³(13.61 Æò)
°Ç¹°¸éÀû107.51§³(32.52 Æò)
乫/¼ÒÀ¯ÀÚ¾ÈOO / ¾ÈOO
ä±ÇÀÚµðOOOOO OOOO
ÆäÀ̽ººÏ Æ®À§ÅÍ ±¸±Û+
īī¿À½ºÅ丮
īī¿ÀÅå sms¹®ÀÚº¸³»±â
 

±âÀϳ»¿ª

°æ°ú ³¯Â¥ Àú°¨ ÃÖÀú°¡ °á°ú
Á¢¼öÀÏ 2025-05-13 °æ¸ÅÁ¢¼ö
~1ÀÏ 
2025-05-14 °æ¸Å°³½Ã°áÁ¤
~79ÀÏ 
2025-07-31 ¹è´ç¿ä±¸Á¾±âÀÏ
~190ÀÏ 
2025-11-19 100%
111,289,720
À¯Âû
~218ÀÏ 
2025-12-17 70%
77,903,000
À¯Âû
~267ÀÏ 
2026-02-04 49%
54,532,000
ÁøÇà
¹°°Ç¸í¼¼¼­ ÇöȲÁ¶»ç¼­ ¹®°ÇÁ¢¼ö ¼Û´Þ³»¿ª

°¨Á¤Æò°¡ÇöȲ

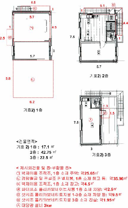
¸ñ·Ï ÁÖ¼Ò ±¸Á¶/¿ëµµ/´ëÁö±Ç ¸éÀû ºñ°í
ÅäÁö
±³¾Ï¸® 1-14 ´ë 45 §³
(13.61Æò)
3ºÐÀÇ 1 ÁöºÐ ÀüºÎ
°Ç¹°
±³¾Ï¸® 1-14 1Ãþ ÁÖÅà ö±ÙÄÜÅ©¸®Æ®±¸Á¶ 5.7 §³
(1.72Æò)
3ºÐÀÇ 1 ÁöºÐ ÀüºÎ
±³¾Ï¸® 1-14 2Ãþ ÁÖÅà ö±ÙÄÜÅ©¸®Æ®±¸Á¶ 14.25 §³
(4.31Æò)
3ºÐÀÇ 1 ÁöºÐ ÀüºÎ
±³¾Ï¸® 1-14 3Ãþ ÁÖÅà ö±ÙÄÜÅ©¸®Æ®±¸Á¶ 7.5 §³
(2.27Æò)
3ºÐÀÇ 1 ÁöºÐ ÀüºÎ
Á¦½Ã¿Ü
°Ç¹°
±³¾Ï¸® 1-14 ÁÖÅà 25.65 §³
(7.76Æò)
Æ÷ÇÔ
±³¾Ï¸® 1-14 â°í µî 35.96 §³
(10.88Æò)
Æ÷ÇÔ
±³¾Ï¸® 1-14 â°í 4.5 §³
(1.36Æò)
Æ÷ÇÔ
±³¾Ï¸® 1-14 Â÷¾ç 2.5 §³
(0.76Æò)
Æ÷ÇÔ
±³¾Ï¸® 1-14 Â÷¾ç µî 9.5 §³
(2.87Æò)
Æ÷ÇÔ
±³¾Ï¸® 1-14 Àü½Ç 1.95 §³
(0.59Æò)
Æ÷ÇÔ
±³¾Ï¸® 1-14 ž籤¼³ºñ §³
(0.00Æò)
Æ÷ÇÔ
1) À§Ä¡/°èȹ°ü¸®Áö¿ª/¹ö½ºÁ¤·ùÀå/ö±ÙÄÜÅ©¸®Æ®±¸Á¶ ´õº¸±â
°¨Á¤Æò°¡ ¿äÇ×Ç¥
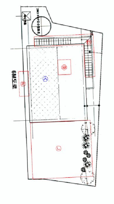
1)À§Ä¡ ¹× ÁÖÀ§È¯°æ
º»°ÇÀº °­¿øÆ¯º°ÀÚÄ¡µµ °í¼º±º Å伺¸é ±³¾Ï¸® ¼ÒÀç ""±³¾ÏÇØº¯"" ¼­Ãø Àαٿ¡ À§Ä¡Çϸç, ÁÖÀ§
´Â ´Üµ¶ÁÖÅà ¹× ¼÷¹Ú½Ã¼³ µîÀÌ ¼ÒÀçÇÏ´Â ÇØ¾È ÁÖÅÃÁö´ëÀÓ.
2)±³Åë»óȲ
º»°Ç±îÁö Â÷·®ÁøÀÔÀÌ °¡´ÉÇϸç, Àαٿ¡ ¹ö½ºÁ¤·ùÀåÀÌ ¼ÒÀçÇÏ´Â µî ´ëÁß±³ÅëÀÇ ÆíÀǼºÀº ´ëü
·Î º¸Åë½Ã µÊ.
3)ÇüÅ ¹× ÀÌ¿ë»óÅÂ
´ëü·Î »ç´Ù¸®ÇüÀÇ ÅäÁö·Î¼­, ÁÖ°Å¿ë °ÇºÎÁö·Î ÀÌ¿ëÁßÀÓ.
4)ÀÎÁ¢ µµ·Î»óÅÂ
º»°Ç ¼­Ãø ¹× ³²ÃøÀ¸·Î ³ëÆø ¾à6m, ¾à2m ³»¿ÜÀÇ µµ·Î¸¦ ÀÌ¿ëÇÏ¿© ÃâÀÔÇÔ.
5)ÅäÁöÀÌ¿ë°èȹ ¹× Á¦ÇÑ»óÅÂ
°èȹ°ü¸®Áö¿ª(2024-10-14), °¡Ãà»çÀ°Á¦Çѱ¸¿ª(¼Ò 100m¿¡¼­ 250m Áö¿ª 250¸¶¸® ¹Ì¸¸ (Á¶·ÊÈ®
Àοä))<°¡ÃàºÐ´¢ÀÇ °ü¸® ¹× À̿뿡 °üÇÑ ¹ý·ü>.
6)Á¦½Ã¸ñ·Ï ¿ÜÀÇ ¹°°Ç
¾ø À½.


7)°øºÎ¿ÍÀÇ Â÷ÀÌ
¾ø À½.
8)±âŸÂü°í»çÇ×(ÀÓ´ë°ü·Ê ¹× ±âŸ)
ÀÓ´ë°ü°è´Â ¹Ì»óÀÓ.
1)°Ç¹°ÀÇ ±¸Á¶
º» °Ç¹°Àº ö±ÙÄÜÅ©¸®Æ®±¸Á¶ ö±ÙÄÜÅ©¸®Æ®ÁöºØ 3Ãþ°ÇÀ¸·Î¼­,
¿Üº®: º®µ¹½×±â ¸¶°¨.
³»º®: º®Áöµµ¹è ¹× ÀϺΠŸÀϺÙÀÓ ¸¶°¨ µî.
âȣ: ¼¦½Ã âȣÀÓ.
2)ÀÌ¿ë»óÅÂ
ÁÖÅÃÀ¸·Î ÀÌ¿ëÁßÀÓ.
3)¼³ºñ³»¿ª
±âº»ÀûÀÎ À§»ý¼³ºñ ¹× ³­¹æ¼³ºñ µî µÇ¾îÀÖÀ½.
4)ºÎÇÕ¹° ¹× Á¾¹°
º°Ã· ""°Ç¹°°³È²µµ"" ÂüÁ¶¹Ù¶÷.
5)°øºÎ¿ÍÀÇ Â÷ÀÌ
º»°Ç 1Ãþ ºÎºÐÀº °ÇÃ๰´ëÀå °ÇÃ๰ÇöȲµµ »ó ¿ëµµ°¡ 'º¸ÀÏ·¯½Ç'·Î Ç¥±âµÇ¾î ÀÖÀ¸³ª, ±âÈ£¨±
ºÎºÐ°ú ÇÔ²² ÇöȲ 'ÁÖÅÃ(ÁÖ°Å¿ë)'À¸·Î ÀÌ¿ëÁßÀιÙ, °æ¸Å ÁøÇà½Ã ÂüÁ¶¹Ù¶÷.
6)±âŸÂü°í»çÇ×(ÀÓ´ë°ü·Ê ¹× ±âŸ)
ÀÓ´ë°ü°è´Â ¹Ì»óÀÓ.
Âü°í
»çÇ×
- Àϰý¸Å°¢. Á¦½Ã¿Ü °Ç¹° Æ÷ÇÔ. - °øºÎ»ó 1Ãþ ÁÖÂ÷Àå°ú º¸ÀÏ·¯½ÇÀº ÇöȲÀº ÁÖÅÃÀ¸·Î »ç¿ëÁßÀ̸ç 乫ÀÚ ¼ÒÀ¯ÀÇ Å¾籤 ¼³Ä¡µÇ¾î ÀÖÀ½.
* º»°Ç ºÎµ¿»ê 2¹ø ¸ñ·Ï - °øºÎ»ó 1Ãþ ÁÖÂ÷ÀåÀº ÇöÀå¿¡¼­ È®ÀÎÇѹ٠ÁÖÅÃÀ¸·Î »ç¿ëÁßÀ̶ó°í ÇöÀå¿¡¼­ ¸¸³­ 乫ÀÚ(¼ÒÀ¯ÀÚ)°¡ ¸» ÇÔ(°ÇÃ๰´ëÀå È®ÀÎ) - 1Ãþ ö°ñÁ¶ Æú¸®Ä«º¸³×ÀÌÆ® ºñ°¡¸²¸· ÀÖÀ½. - ¼¦½ÃÁ¶ À¯¸® Æú¸®Ä«º¸³×ÀÌÆ® ºñ

°ÇÃ๰ÇöȲ

¼ÒÀçÁö °­¿øÆ¯º°ÀÚÄ¡µµ °í¼º±º Å伺¸é ±³¾Ï¸® 1-14¹øÁö
´ëÁö¸éÀû 135§³
(40.91Æò)
¿¬¸éÀû 82.35§³
(24.95Æò)
°ÇÃà¸éÀû 53.35§³
(16.17Æò)
¿ëÀû·ü»êÁ¤
¿¬¸éÀû
82.35§³
(24.95Æò)
°ÇÆóÀ² 39.52% ¿ëÀû·ü 61%
Áö»óÃþ¼ö 3Ãþ ÁöÇÏÃþ¼ö  
ÁÖ¿ëµµ ´Üµ¶ÁÖÅà ±¸Á¶ ö±ÙÄÜÅ©¸®Æ®±¸Á¶
Âø°øÀÏÀÚ 2007.03.29 »ç¿ë½ÂÀÎÀÏÀÚ 2007.07.27
°ÇÃ๰Ãþº°ÇöȲ [º¸±â]


±¹ÅäºÎ½Ç°Å·¡°¡ °­¿øÆ¯º°ÀÚÄ¡µµ °í¼º±º Å伺¸é ±³¾Ï¸®

¡Ü ¸Å¸Å

¸éÀû(§³), ±Ý¾×(¸¸¿ø)

¡Ü Àü¼¼

¸éÀû(§³), ±Ý¾×(¸¸¿ø)

°è¾àÀÏÀ¯Çü¿¬¸éÀû´ëÁö±Ý¾×°ÇÃà
24.03.23´Ù°¡±¸276.1223853,0002005
24.01.04´Ù°¡±¸657.85852205,0002004

µî±âºÎµîº» ¿ä¾à(ÅäÁö)

  Á¢¼öÀÏÀÚ µî±â¸ñÀû/±Ç¸®ÀÚ ±Ç¸®±Ý¾× ±âÁØ
1 2025³â3¿ù27ÀÏ
¼ÒÀ¯±Ç
¾ÈOO
¼Ò¸ê
2 2015³â1¿ù20ÀÏ
¼ÒÀ¯±Ç
¾ÈOO
¼Ò¸ê
3 2025³â3¿ù27ÀÏ
¼ÒÀ¯±Ç
¾ÈOO
¼Ò¸ê
4 2015³â8¿ù4ÀÏ
±ÙÀú´ç±Ç
ÅäOOOO
36,000,000 ¼Ò¸ê±âÁØ
5 2016³â6¿ù28ÀÏ
±ÙÀú´ç±Ç
ÅäOOOO
12,000,000 ¼Ò¸ê
6 2025³â5¿ù14ÀÏ
°­Á¦°æ¸Å
µðOOOO
¼Ò¸ê
7 2025³â7¿ù8ÀÏ
¾Ð·ù
±¹OOOO
¼Ò¸ê

µî±âºÎµîº» ¿ä¾à(°Ç¹°)

  Á¢¼öÀÏÀÚ µî±â¸ñÀû/±Ç¸®ÀÚ ±Ç¸®±Ý¾× ±âÁØ
1 2025³â3¿ù27ÀÏ
¼ÒÀ¯±Ç
¾ÈOO
¼Ò¸ê
2 2015³â1¿ù20ÀÏ
¼ÒÀ¯±Ç
¾ÈOO
¼Ò¸ê
3 2025³â3¿ù27ÀÏ
¼ÒÀ¯±Ç
¾ÈOO
¼Ò¸ê
4 2015³â8¿ù4ÀÏ
±ÙÀú´ç±Ç
ÅäOOOO
36,000,000 ¼Ò¸ê±âÁØ
5 2016³â6¿ù28ÀÏ
±ÙÀú´ç±Ç
ÅäOOOO
12,000,000 ¼Ò¸ê
6 2025³â5¿ù14ÀÏ
°­Á¦°æ¸Å
µðOOOO
¼Ò¸ê

ÀÓÂ÷ÀÎÇöȲ (¹è´ç¿ä±¸Á¾±âÀÏ: 2025-07-31)

ÀÓÂ÷ÀÎ ¿ëµµ/Á¡À¯ º¸Áõ±Ý/¿ù¼¼ ´ëÇ×·Â
ÀüÀÔÀÏ/È®Á¤ÀÏ ¹è´ç¿ä±¸ ºñ°í
¹ÚOO 2Ãþ
O
1974.07.01
¾ÈOO 3Ãþ
[¿ù]400,000
X
2024.04.22
¾ÈOO 2Ãþ
X
2025.03.27
ºñ°í
(¸Å°¢¹°°Ç
¸í¼¼¼­)
¹ÚÁ¡¼ø:Á¡À¯ÀÚ ¹ÚÁ¡¼øÀº 乫ÀÚÀÇ ¸ð ¾Èµ¿È£:Á¡À¯ÀÚ ¾Èµ¿È£´Â 乫ÀÚÀÇ µ¿»ý

¿©ÀÇÁÖ°æ¸Å Á¶¾ð ÇÑ ¸¶µð

ÁöºÐ°æ¸Å ¹°°ÇÀÌ Æ÷ÇԵǾî ÀÖ½À´Ï´Ù
¿©·¯ ¸íÀÌ °øµ¿À¸·Î ¼ÒÀ¯ÇÏ´Â ºÎµ¿»êÀÇ ÀϺθ¸ °æ¸Å·Î ³ª¿Â °ÍÀ» ÁöºÐ°æ¸Å¶ó°í ÇÕ´Ï´Ù. ¼ÒÀ¯ºÎºÐÀÌ Æ¯Á¤µÇÁö ¾Ê¾Æ »ç¿ë¿¡ Á¦¾àÀÌ µû¸¦ ¼ö ÀÖÀ¸¸ç °øÀ¯ÀÚ°£¿¡ ºÐÀïµµ ¹ß»ýÇÒ ¼ö ÀÖ½À´Ï´Ù. °øÀ¯ÀÚ´Â °øÀ¯ÀÚ¿ì¼±¸Å¼öû±¸±Ç¸®°¡ ÀÖ½À´Ï´Ù.
Á¦½Ã¿Ü ¹°°ÇÀÌ Æ÷ÇԵǾî ÀÖ½À´Ï´Ù
¡®Á¦½Ã¿Ü ¹°°Ç¡¯Àº ÇØ´ç °øºÎ»ó¿¡´Â Á¸ÀçÇÏÁö ¾ÊÁö¸¸, ÇöÀå¿¡ Á¸Àç°¡ È®ÀεǴ ¿©·¯ ÇüÅÂÀÇ °Ç¹°, ±â°è±â±¸ µîÀ» ¸»ÇÕ´Ï´Ù. ÀÌµé ´ëºÎºÐÀº ¹«Çã°¡, ¹«½Å°íÀ̰ųª »ç¿ë½ÂÀÎÀ» ¹ÞÁö ¾ÊÀº °ÍÀÔ´Ï´Ù. ¡®Á¦½Ã¿Ü ¹°°Ç¡¯ÀÌ °æ¸Å´ë»ó¿¡ Æ÷ÇԵǾî ÀÖ´Ù¸é ³«ÂûÀÚÀÇ ¼ÒÀ¯±Ç Ãëµæ¿¡´Â ¾Æ¹«·± ¹®Á¦°¡ ¾ø½À´Ï´Ù.

ÁÖÀÇ»çÇ× (ÃÖ¼±¼øÀ§ ¼³Á¤ÀÏ: 2015.08.04.±ÙÀú´ç ¼³Á¤)

¸Å°¢À¸·Î ¼Ò¸êµÇÁö ¾Ê´Â µî±âºÎ±Ç¸®:
¸Å°¢À¸·Î ¼³Á¤µÈ °ÍÀ¸·Î º¸´Â Áö»ó±Ç:
- Àϰý¸Å°¢. Á¦½Ã¿Ü °Ç¹° Æ÷ÇÔ. - °øºÎ»ó 1Ãþ ÁÖÂ÷Àå°ú º¸ÀÏ·¯½ÇÀº ÇöȲÀº ÁÖÅÃÀ¸·Î »ç¿ëÁßÀ̸ç 乫ÀÚ ¼ÒÀ¯ÀÇ Å¾籤 ¼³Ä¡µÇ ¾î ÀÖÀ½.
¡Ø¹Ì³³°ü¸®ºñ(°ø¿ë) Àμö¿©ºÎ¸¦ ÀÔÂû Àü¿¡ È®ÀÎÇϽñ⠹ٶø´Ï´Ù

 

Áö¿ªºÐ¼®

ÁöÇÏö¸í Á÷¼±°Å¸®

Çб³¸í ÀüÈ­¹øÈ£ ÁÖ¼Ò Á÷¼±°Å¸®

¹ý¿ø

ÃáõÁö¹æ¹ý¿ø ¼ÓÃÊÁö¿ø (248-22)°­¿øµµ ¼ÓÃʽà ¹ý´ë·Î 15 (µ¿¸íµ¿)
´ëÇ¥ : 033)639-7600, ¾ß°£ : 033)639-7600
°üÇÒÁö¿ª : ¼ÓÃʽÃ, °í¼º±º, ¾ç¾ç±º

µî±â¼Ò ÃáõÁö¹æ¹ý¿ø º»¿ø °í¼ºµî±â¼Ò (´ëÇ¥:1544-0773, ÆÑ½º:(033)681-5969, °­¿øµµ °í¼º±º °£¼ºÀ¾ °£¼º·Î 84 (»ó¸® 202))
¼¼¹«¼­ ¼ÓÃʼ¼¹«¼­ (´ëÇ¥:033-639-92, ÆÑ½º:033-633-9510, °­¿øµµ ¼ÓÃʽà ¼öº¹·Î 28 (±³µ¿))

Àαٳ«ÂûÅë°è

±â°£ ¸Å°¢°Ç¼ö Æò±Õ°¨Á¤°¡
Æò±Õ¸Å°¢°¡
¸Å°¢°¡À²
Æò±ÕÀ¯Âû¼ö
3°³¿ù 0°Ç 0¿ø
0¿ø
0%
0ȸ
6°³¿ù 1°Ç 289,009,800¿ø
157,500,000¿ø
54%
2ȸ
12°³¿ù 2°Ç 155,297,450¿ø
89,750,000¿ø
78%
1ȸ


º» °æ¸ÅÁ¤º¸´Â ¹ý¿øÀÚ·á¿Í ÀÏÄ¡Çϵµ·Ï ÇÏ¿´À¸³ª ±Ç¸®»çÇ׺¯µ¿, ÀÔ·ÂÂø¿À µîÀÇ ¿øÀÎÀ¸·Î »ç½Ç°ú ´Ù¸¦ ¼ö ÀÖ½À´Ï´Ù. ÀÌ¿ë¾à°ü¿¡ ÀǰЏéÃ¥Á¶°ÇÀ¸·Î Á¦°øµÊÀ» ¾Ë¸®¸ç, °æ¸ÅÀÔÂû½Ã ¹Ýµå½Ã °ü·Ã °øºÎ¸¦ ÀçÈ®ÀÎÇϽñ⠹ٶø´Ï´Ù. º¸´Ù Æí¸®ÇÑ °æ¸ÅÁ¤º¸ Á¦°øÀ» À§ÇØ Áö¼ÓÀûÀ¸·Î °³¼±ÇϰڽÀ´Ï´Ù. ÀÌ¿ëÇØ Áּż­ °¨»çÇÕ´Ï´Ù.