·Î±×ÀÎ
158
´Ù¼¼´ë(ºô¶ó)
ÀÎõÁö¹æ¹ý¿ø ºÎõÁö¿ø
 °¨Á¤°¡252,000,000 ¿ø
 ÃÖÀú°¡(49%) 123,480,000 ¿ø
 º¸Áõ±Ý(10%) 12,348,000 ¿ø
 Ã»±¸¾×290,000,000 ¿ø
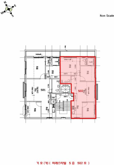
°æ±âµµ ±èÆ÷½Ã »ç¿ìµ¿ 247-5 ¹Ì·¡½ºÅ¸ºô 5Ãþ 502È£
»ç°Ç¹øÈ£ 2025Ÿ°æ33130
°æ¸ÅÁ¾·ùºÎµ¿»ê°­Á¦°æ¸Å
¸Å°¢´ë»óÅäÁö ¹× °Ç¹°Àϰý ¸Å°¢
¸Å°¢±âÀÏ    2026.01.28(¼ö) 10:00 ÀÔÂû 20ÀÏÀü    
ÅäÁö¸éÀû26.99§³(8.16 Æò)
°Ç¹°¸éÀû45.04§³(13.62 Æò)
乫/¼ÒÀ¯ÀÚ°íOO / °íOO
ä±ÇÀÚÁÖOOOOOOO
ÆäÀ̽ººÏ Æ®À§ÅÍ ±¸±Û+
īī¿À½ºÅ丮
īī¿ÀÅå sms¹®ÀÚº¸³»±â
 

±âÀϳ»¿ª

°æ°ú ³¯Â¥ Àú°¨ ÃÖÀú°¡ °á°ú
Á¢¼öÀÏ 2025-03-28 °æ¸ÅÁ¢¼ö
~6ÀÏ 
2025-04-03 °æ¸Å°³½Ã°áÁ¤
~73ÀÏ 
2025-06-09 ¹è´ç¿ä±¸Á¾±âÀÏ
~236ÀÏ 
2025-11-19 100%
252,000,000
À¯Âû
~264ÀÏ 
2025-12-17 70%
176,400,000
À¯Âû
~306ÀÏ 
2026-01-28 49%
123,480,000
ÁøÇà
¹°°Ç¸í¼¼¼­ ÇöȲÁ¶»ç¼­ ¹®°ÇÁ¢¼ö ¼Û´Þ³»¿ª

°¨Á¤Æò°¡ÇöȲ

¸ñ·Ï ÁÖ¼Ò ±¸Á¶/¿ëµµ/´ëÁö±Ç ¸éÀû ºñ°í
´ëÁö±Ç
»ç¿ìµ¿ 247-5 313.1ºÐÀÇ 26.9898 26.9898 §³
(8.16Æò)
°Ç¹°
»ç¿ìµ¿ 247-5 5Ãþ 502È£ ö±ÙÄÜÅ©¸®Æ®±¸Á¶ 45.04 §³
(13.62Æò)
1) À§Ä¡/µµ½ÃÁö¿ª/Á¦2Á¾ÀϹÝÁÖ°ÅÁö¿ª/ÀçÁ¤ºñÃËÁøÁö±¸/¹ö½ºÁ¤·ùÀå/Â÷·®ÀÇ Á¢±ÙÀÌ °¡´É/ö±ÙÄÜÅ©¸®Æ®±¸Á¶ ´õº¸±â
°¨Á¤Æò°¡ ¿äÇ×Ç¥
1)À§Ä¡ ¹× ÁÖÀ§È¯°æ
º»°ÇÀº °æ±âµµ ±èÆ÷½Ã »ç¿ìµ¿ ¼ÒÀç '±èÆ÷¿©ÀÚ ÁßÇб³' µ¿Ãø Àαٿ¡ À§Ä¡ÇÑ ¹Ì·¡½ºÅ¸ºô Á¦5Ãþ

Á¦502È£·Î¼­, ºÎ±ÙÀº °øµ¿ÁÖÅà ¹× ±Ù¸°»ýȰ½Ã¼³ µîÀ¸·Î Çü¼ºµÇ¾î ÀÖÀ½
2)±³Åë»óȲ
º»°Ç±îÁö Â÷·®ÀÇ Á¢±ÙÀÌ °¡´ÉÇϸç, ºÎ±Ù¿¡ ¹ö½ºÁ¤·ùÀå ¹× '»ç¿ì¿ª'ÀÌ ¼ÒÀçÇÏ¿© ´ëÁß±³Åë»óȲ

Àº ¹«³­½ÃµÊ.
3)°Ç¹°ÀÇ ±¸Á¶
ö±ÙÄÜÅ©¸®Æ®±¸Á¶ ö±ÙÄÜÅ©¸®Æ®ÁöºØ 6Ãþ °Ç ³» 5Ãþ 502È£·Î¼­,

(ÁýÇÕ°ÇÃ๰´ëÀå»ó »ç¿ë½ÂÀÎÀÏ : 2020.11.24)

¿Ü º® : ŸÀϸ¶°¨µî

â È£ : »õ½ÃâÀÓ.
4)ÀÌ¿ë»óÅÂ
´Ù¼¼´ëÁÖÅÃÀÓ.
5)¼³ºñ³»¿ª
À§»ý¼³ºñ, ±Þ¹è¼ö¼³ºñ, ³­¹æ¼³ºñ, ¿¤·¹º£ÀÌÅÍ µîÀÌ µÇ¾î ÀÖÀ½.
6)ÅäÁöÀÇ Çü»ó ¹× ÀÌ¿ë»óÅÂ
»ç°¢Çü ÅäÁö·Î ÁÖ°Å¿ë °ÇºÎÁöÀÓ.
7)ÀÎÁ¢ µµ·Î»óŵî
º»°Ç ÇÊÁö ºÏ¼­ÃøÀ¸·Î ¾à 9 m µµ·Î¿Í Á¢ÇÔ.
8)ÅäÁöÀÌ¿ë°èȹ ¹× Á¦ÇÑ»óÅÂ
µµ½ÃÁö¿ª, Á¦2Á¾ÀϹÝÁÖ°ÅÁö¿ª, °íµµÁö±¸(°øÇ×°íµµÁ¦ÇÑÇØ¹ß112.86m~371.43m¹Ì¸¸), ¼Ò·Î2·ù(Æø

8m~10m)(±¹Áöµµ·Î)(Á¢ÇÕ), °¡Ãà»çÀ°Á¦Çѱ¸¿ª(¸ðµçÃàÁ¾ Á¦ÇÑ)<°¡ÃàºÐ´¢ÀÇ °ü¸® ¹× À̿뿡 °ü

ÇÑ ¹ý·ü>, ¿ª»ç¹®È­È¯°æº¸Á¸Áö¿ª( ¹®È­¿¹¼ú°ú ÇùÀÇ)<°æ±âµµ¹®È­À纸ȣÁ¶·Ê>, Àå¾Ö¹°Á¦ÇÑÇ¥¸é

±¸¿ª<°øÇ׽ü³¹ý>, ÁøÀÔÇ¥¸é±¸¿ª<°øÇ׽ü³¹ý>, »ó´ëº¸È£±¸¿ª(±èÆ÷¿©ÀÚÁßÇб³,±èÆ÷°íµîÇб³)<

±³À°È¯°æ º¸È£¿¡ °üÇÑ ¹ý·ü>, ÀçÁ¤ºñÃËÁøÁö±¸(±èÆ÷ ÀçÁ¤ºñÃËÁøÁö±¸(µµ½Ã°ü¸®°ú ÇùÀÇ¿äÇÔ))<

µµ½ÃÀçÁ¤ºñ ÃËÁøÀ» À§ÇÑ Æ¯º°¹ý>, ¿ª»ç¹®È­È¯°æº¸Á¸Áö¿ª(¹®È­¿¹¼ú°ú ¹®ÀÇ)<¹®È­À¯»êÀÇ º¸Á¸

¹× Ȱ¿ë¿¡ °üÇÑ ¹ý·ü>, ¼ºÀå°ü¸®±Ç¿ª<¼öµµ±ÇÁ¤ºñ°èȹ¹ý>, Çϼö󸮱¸¿ª(»ç¿ì󸮺б¸)<Çϼö

µµ¹ý>ÀÓ.
9)°øºÎ¿ÍÀÇ Â÷ÀÌ
-
10)±âŸÂü°í»çÇ×(ÀÓ´ë°ü·Ê ¹× ±âŸ)
ÀÌÇØ°ü°èÀÎÀÇ ºÎÀç ¹× Æó¹® µîÀ¸·Î ÇöÀåÁ¶»ç ¹× °øºÎ¸¦ ±Ù°Å·Î ÀÛ¼ºÇÏ¿´À¸¸ç, ÀÚ¼¼ÇÑ ÀÓ´ë°ü

°è´Â ¹Ì»óÀÓ.

°ÇÃ๰ÇöȲ

¼ÒÀçÁö °æ±âµµ ±èÆ÷½Ã »ç¿ìµ¿ 247-5¹øÁö
´ëÁö¸éÀû 313.1§³
(94.88Æò)
¿¬¸éÀû 655.53§³
(198.65Æò)
°ÇÃà¸éÀû 185.9§³
(56.33Æò)
¿ëÀû·ü»êÁ¤
¿¬¸éÀû
633.43§³
(191.95Æò)
°ÇÆóÀ² 59.37% ¿ëÀû·ü 202.31%
Áö»óÃþ¼ö 6Ãþ ÁöÇÏÃþ¼ö 1Ãþ
ÁÖ¿ëµµ °øµ¿ÁÖÅà ±¸Á¶ ö±ÙÄÜÅ©¸®Æ®±¸Á¶
Âø°øÀÏÀÚ 2020.04.08 »ç¿ë½ÂÀÎÀÏÀÚ 2020.11.24
°ÇÃ๰Ãþº°ÇöȲ [º¸±â]


±¹ÅäºÎ½Ç°Å·¡°¡ °æ±âµµ ±èÆ÷½Ã »ç¿ìµ¿

¡Ü ¸Å¸Å

¸éÀû(§³), ±Ý¾×(¸¸¿ø)

¡Ü Àü¼¼

¸éÀû(§³), ±Ý¾×(¸¸¿ø)

°è¾àÀϰǹ°¸íĪÃþ¿¬¸éÀûº¸Áõ±Ý¿ù¼¼°ÇÃà
25.12.15¿ï·ç¹°·çŸ¿îÇϿ콺501µ¿¹×502µ¿347.414,3002018
25.12.11Çö´ëºô¶óA,Bµ¿356.810,9001991
25.12.11±×·¹À̽ºÈú456.3717,4002017
25.12.10·Ôµ¥ÇÏÀÌÃ÷ºô3,4µ¿339.91,000602003
25.12.05·Ôµ¥°¡µ¿(225-27)251.486,50001989
¢Ñ ´õº¸±â

µî±âºÎµîº» ¿ä¾à(°Ç¹°)

  Á¢¼öÀÏÀÚ µî±â¸ñÀû/±Ç¸®ÀÚ ±Ç¸®±Ý¾× ±âÁØ
1 2021³â12¿ù14ÀÏ
¼ÒÀ¯±Ç
°íOO
¼Ò¸ê
2 2021³â12¿ù14ÀÏ
¾àÁ¤/±ÝÁö»çÇ×/ȯ¸ÅƯ¾à
Àμö
3 2022³â9¿ù13ÀÏ
¾Ð·ù
±¹
¼Ò¸ê±âÁØ
4 2023³â1¿ù3ÀÏ
°¡¾Ð·ù
ÁÖOOOO
788,000,000 ¼Ò¸ê
5 2023³â7¿ù21ÀÏ
ÀÓÂ÷±Ç¼³Á¤
¾ÈOO
290,000,000 ¼Ò¸ê
6 2025³â4¿ù3ÀÏ
°­Á¦°æ¸Å
ÁÖOOOO
¼Ò¸ê
7 2025³â9¿ù29ÀÏ
¾Ð·ù
ºÎOO
¼Ò¸ê

ÀÓÂ÷ÀÎÇöȲ (¹è´ç¿ä±¸Á¾±âÀÏ: 2025-06-09)

ÀÓÂ÷ÀÎ ¿ëµµ/Á¡À¯ º¸Áõ±Ý/¿ù¼¼ ´ëÇ×·Â
ÀüÀÔÀÏ/È®Á¤ÀÏ ¹è´ç¿ä±¸ ºñ°í
¾ÈOO ÀüºÎ 290,000,000
O
2021.12.14.
2021.11.24.
2021.12.14.
ÁÖOOOOOOOOOOOOOOO ÀüºÎ 290,000,000
O
2021.12.14.
2021.11.24.
2025.5.30. 2021.12.14.~2023.12.13
ºñ°í
(¸Å°¢¹°°Ç
¸í¼¼¼­)
¾È¼öÁ¤: ÁÖÅÃÀÓÂ÷±Çµî±â±Ç¸®Àڷμ­ ÁÖÅÃÀÓÂ÷±Çµî±âÀÏÀº 2023. 7. 21.ÀÓ ÁÖÅõµ½Ãº¸Áõ°ø»ç(ÀÓÂ÷ÀÎ ¾È¼öÁ¤): °æ¸Å½Åûä±ÇÀÚÀ̰í ÀÓÂ÷ÀÎ ¾È¼öÁ¤ÀÇ ÀÓÂ÷º¸Áõ±Ý¹Ýȯä±Ç ¾ç¼öÀÎÀ¸·Î¼­, º¸Áõ±Ý Àü¾×À» ¹è ´ç¹ÞÁö ¸øÇÏ´õ¶óµµ ÀÜÁ¸ ÀÓÂ÷º¸Áõ±Ý¹Ýȯä±ÇÀ» Æ÷±âÇϰí ÁÖÅÃÀÓÂ÷±Çµî±â ¸»¼Ò¿¡ µ¿ÀÇÇÑ´Ù´Â ÃëÁöÀÇ È®¾à¼­¸¦ Á¦ÃâÇÔ

¿©ÀÇÁÖ°æ¸Å Á¶¾ð ÇÑ ¸¶µð

¼±¼øÀ§ ÀÓÂ÷±Çµî±â°¡ µÇ¾î ÀÖ½À´Ï´Ù
´ëÇ×·ÂÀÌ ÀÖ´Â ¼±¼øÀ§ ÀÓÂ÷±Çµî±â ±Ç¸®ÀÚ°¡ ¹è´çÀ» Àü¾× ¹ÞÁö ¸øÇÒ °æ¿ì ³«ÂûÀÚ°¡ ÀÜ¿© º¸Áõ±ÝÀ» ÀμöÇØ¾ßÇÏ´Â °æ¿ìµµ ÀÖ½À´Ï´Ù.

ÁÖÀÇ»çÇ× (ÃÖ¼±¼øÀ§ ¼³Á¤ÀÏ: 2022.09.13.¾Ð·ù ¼³Á¤)

¸Å°¢À¸·Î ¼Ò¸êµÇÁö ¾Ê´Â µî±âºÎ±Ç¸®: À»±¸ ¼øÀ§ 3¹ø ÁÖÅÃÀÓÂ÷±Çµî±â(´Ù¸¸ ÁÖÅõµ½Ãº¸Áõ°ø»çÀÇ ¸»¼Òµ¿ÀÇ È®¾à¼­°¡ Á¦ÃâµÊ)
¸Å°¢À¸·Î ¼³Á¤µÈ °ÍÀ¸·Î º¸´Â Áö»ó±Ç:
¡Ø¹Ì³³°ü¸®ºñ(°ø¿ë) Àμö¿©ºÎ¸¦ ÀÔÂû Àü¿¡ È®ÀÎÇϽñ⠹ٶø´Ï´Ù

 

Áö¿ªºÐ¼®

ÁöÇÏö¸í Á÷¼±°Å¸®

Çб³¸í ÀüÈ­¹øÈ£ ÁÖ¼Ò Á÷¼±°Å¸®

¹ý¿ø

ÀÎõÁö¹æ¹ý¿ø ºÎõÁö¿ø (146-02)°æ±âµµ ºÎõ½Ã ¿ø¹Ì±¸ »óÀÏ·Î 129(»óµ¿)
´ëÇ¥ : 032)320-1114, ¹Î¿ø : 032)320-1234
°üÇÒÁö¿ª : ºÎõ½Ã, ±èÆ÷½Ã

µî±â¼Ò ÀÎõÁö¹æ¹ý¿ø ºÎõÁö¿ø ±èÆ÷µî±â¼Ò (´ëÇ¥:1544-0773, ÆÑ½º:(031)982-6997, °æ±âµµ ±èÆ÷½Ã ºÀÈ­·Î 16 (»ç¿ìµ¿ 240-2))
¼¼¹«¼­ ±èÆ÷¼¼¹«¼­ (´ëÇ¥:031-980-32, ÆÑ½º:031-987-9932, °æ±âµµ ±èÆ÷½Ã ±èÆ÷ÇѰ­1·Î 22 (Àå±âµ¿))

Àαٳ«ÂûÅë°è

±â°£ ¸Å°¢°Ç¼ö Æò±Õ°¨Á¤°¡
Æò±Õ¸Å°¢°¡
¸Å°¢°¡À²
Æò±ÕÀ¯Âû¼ö
3°³¿ù 10°Ç 303,500,000¿ø
214,862,000¿ø
69%
1.7ȸ
6°³¿ù 11°Ç 286,545,455¿ø
200,548,455¿ø
67%
1.7ȸ
12°³¿ù 11°Ç 286,545,455¿ø
200,548,455¿ø
67%
1.7ȸ


º» °æ¸ÅÁ¤º¸´Â ¹ý¿øÀÚ·á¿Í ÀÏÄ¡Çϵµ·Ï ÇÏ¿´À¸³ª ±Ç¸®»çÇ׺¯µ¿, ÀÔ·ÂÂø¿À µîÀÇ ¿øÀÎÀ¸·Î »ç½Ç°ú ´Ù¸¦ ¼ö ÀÖ½À´Ï´Ù. ÀÌ¿ë¾à°ü¿¡ ÀǰЏéÃ¥Á¶°ÇÀ¸·Î Á¦°øµÊÀ» ¾Ë¸®¸ç, °æ¸ÅÀÔÂû½Ã ¹Ýµå½Ã °ü·Ã °øºÎ¸¦ ÀçÈ®ÀÎÇϽñ⠹ٶø´Ï´Ù. º¸´Ù Æí¸®ÇÑ °æ¸ÅÁ¤º¸ Á¦°øÀ» À§ÇØ Áö¼ÓÀûÀ¸·Î °³¼±ÇϰڽÀ´Ï´Ù. ÀÌ¿ëÇØ Áּż­ °¨»çÇÕ´Ï´Ù.