·Î±×ÀÎ
1280
¿ÀÇǽºÅÚ
¼­¿ïÁß¾ÓÁö¹æ¹ý¿ø
 °¨Á¤°¡244,000,000 ¿ø
 ÃÖÀú°¡(100%) 244,000,000 ¿ø
 º¸Áõ±Ý(10%) 24,400,000 ¿ø
 Ã»±¸¾×250,501,508 ¿ø
¼­¿ïƯº°½Ã °ü¾Ç±¸ ½Å¸²µ¿ 1568-5 ´õÀ§Àϰü¾ÇÆÄÅ©ºä 9Ãþ906È£
»ç°Ç¹øÈ£ 2025Ÿ°æ102200
°æ¸ÅÁ¾·ùºÎµ¿»ê°­Á¦°æ¸Å
¸Å°¢´ë»óÅäÁö ¹× °Ç¹°Àϰý ¸Å°¢
¸Å°¢±âÀÏ    2026.03.18(¼ö) 10:00 ÀÔÂû 4ÀÏÀü    
ÅäÁö¸éÀû4.09§³(1.24 Æò)
°Ç¹°¸éÀû17.30§³(5.23 Æò)
乫/¼ÒÀ¯ÀÚ±èOO / ±èOO
ä±ÇÀÚÁÖOOOOOOO
ÆäÀ̽ººÏ Æ®À§ÅÍ ±¸±Û+
īī¿À½ºÅ丮
īī¿ÀÅå sms¹®ÀÚº¸³»±â
 

±âÀϳ»¿ª

°æ°ú ³¯Â¥ Àú°¨ ÃÖÀú°¡ °á°ú
Á¢¼öÀÏ 2025-02-19 °æ¸ÅÁ¢¼ö
~8ÀÏ 
2025-02-27 °æ¸Å°³½Ã°áÁ¤
~85ÀÏ 
2025-05-15 ¹è´ç¿ä±¸Á¾±âÀÏ
~273ÀÏ 
2025-11-19 100%
244,000,000
À¯Âû
~322ÀÏ 
2026-01-07 80%
195,200,000
À¯Âû
~357ÀÏ 
2026-02-11 64%
156,160,000
À¯Âû
~392ÀÏ 
2026-03-18 51%
124,928,000
º¯°æ
~392ÀÏ 
2026-03-18 100%
244,000,000
ÁøÇà
¹°°Ç¸í¼¼¼­ ÇöȲÁ¶»ç¼­ ¹®°ÇÁ¢¼ö ¼Û´Þ³»¿ª

°¨Á¤Æò°¡ÇöȲ

¸ñ·Ï ÁÖ¼Ò ±¸Á¶/¿ëµµ/´ëÁö±Ç ¸éÀû ºñ°í
´ëÁö±Ç
½Å¸²µ¿ 1568-5 589.6ºÐÀÇ 4.088 4.088 §³
(1.24Æò)
°Ç¹°
½Å¸²µ¿ 1568-5 9Ãþ906È£ ö±ÙÄÜÅ©¸®Æ®±¸Á¶ 17.3 §³
(5.23Æò)
1) À§Ä¡/µµ½ÃÁö¿ª/ÀϹݻó¾÷Áö¿ª/Áö±¸´ÜÀ§°èȹ±¸¿ª/¹ö½ºÁ¤·ùÀå/ÁöÇÏö/Â÷·® Á¢±ÙÀÌ °¡´É/ö±ÙÄÜÅ©¸®Æ®Á¶ ´õº¸±â
°¨Á¤Æò°¡ ¿äÇ×Ç¥
1)À§Ä¡ ¹× ÁÖÀ§È¯°æ
º»°ÇÀº ¼­¿ïƯº°½Ã °ü¾Ç±¸ ½Å¸²µ¿ ¼ÒÀç ""½Å¸²°íµîÇб³"" ºÏ¼­Ãø Àαٿ¡ À§Ä¡Çϸç, ÁÖº¯Àº ´Ù¼¼´ëÁÖÅà ¹× ¿ÀÇǽºÅÚ, ±Ù¸°»ýȰ½Ã¼³ ¹× ¾÷¹«½Ã¼³ µîÀÌ ¼ÒÀçÇÏ¿© Á¦¹Ý ÁÖÀ§È¯°æÀº º¸ÅëÀÓ.
2)±³Åë»óȲ
º»°Ç±îÁö Â÷·® Á¢±ÙÀÌ °¡´ÉÇϰí, Àαٿ¡ ¹ö½ºÁ¤·ùÀå ¹× ±Ù°Å¸®¿¡¡®½Å´ë¹æ¿ª(ÁöÇÏö 2È£¼±)¡¯ÀÌ ¼ÒÀçÇÏ´Â µî ´ëÁß±³Åë»óȲ º¸ÅëÀÓ.
3)°Ç¹°ÀÇ ±¸Á¶
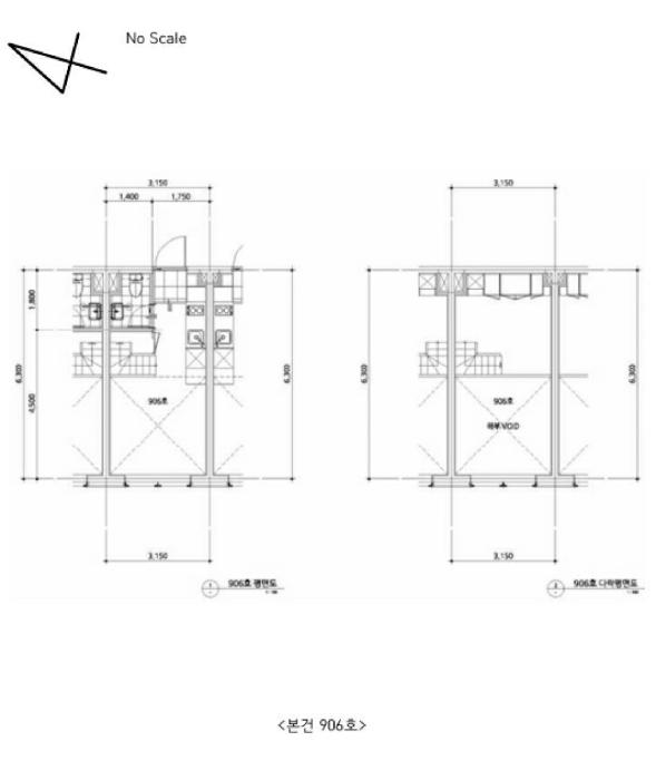
ö±ÙÄÜÅ©¸®Æ®Á¶ (ö±Ù)ÄÜÅ©¸®Æ®ÁöºØ 14Ãþ°Ç ³» Á¦9Ãþ Á¦906È£·Î¼­,
¿Üº® : ¼®ÀçŸÀϺÙÀÓ µî ¸¶°¨,
³»º® : º®Áöµµ¹è ¹× ŸÀÏ µî ¸¶°¨,
âȣ : ¼¦½Ã âȣ µîÀÓ.
4)ÀÌ¿ë»óÅÂ
¿ÀÇǽºÅÚ·Î ÀÌ¿ë ÁßÀÌ¸ç ³»ºÎ±¸È¹ ¹× ÀÌ¿ë»óȲ µîÀº ÈÄ÷ '³»ºÎ±¸Á¶µµ' ÂüÁ¶¹Ù¶÷
5)¼³ºñ³»¿ª
±Þ¹è¼ö/À§»ý¼³ºñ, ³­¹æ¼³ºñ, ¼ÒÈ­Àü, ½Â°­±â¼³ºñ µîÀÌ µÇ¾îÀÖÀ½.
6)ÅäÁöÀÇ Çü»ó ¹× ÀÌ¿ë»óÅÂ
º»°ÇÀº ÀÎÁ¢ÅäÁö´ëºñ ´ëü·Î µî°íÆòźÇÑ 2ÇÊÁö ÀÏ´ÜÀÇ °¡ÀåÇü ÅäÁö·Î¼­, ¾÷¹«½Ã¼³ ¹× ¿ÀÇǽºÅÚ °ÇºÎÁö·Î ÀÌ¿ëÁßÀÓ.
7)ÀÎÁ¢ µµ·Î»óŵî
º»°Ç ³²¼­ÃøÀ¸·Î ±¤´ë·Î(³­°î·Î)¿Í Á¢ÇÔ.
8)ÅäÁöÀÌ¿ë°èȹ ¹× Á¦ÇÑ»óÅÂ
<½Å¸²µ¿ 1568-5>
µµ½ÃÁö¿ª, ÀϹݻó¾÷Áö¿ª, Áö±¸´ÜÀ§°èȹ±¸¿ª(³­°î»ç°Å¸®Áö±¸Áß½É(¼­¿ïƯº°½Ã °í½Ã Á¦2023-315È£(2023.07.27.))), µµ·Î(Á¢ÇÕ), °¡Ãà»çÀ°Á¦Çѱ¸¿ª<°¡ÃàºÐ´¢ÀÇ °ü¸® ¹× À̿뿡 °üÇÑ ¹ý·ü>, ´ë°ø¹æ¾îÇùÁ¶±¸¿ª(À§Å¹°íµµ:194m)<±º»ç±âÁö ¹× ±º»ç½Ã¼³ º¸È£¹ý>, °ú¹Ð¾ïÁ¦±Ç¿ª<¼öµµ±ÇÁ¤ºñ°èȹ¹ý>, ÁßÁ¡°æ°ü°ü¸®±¸¿ª(ÁÖ¿ä»ê ÁÖº¯),

<½Å¸²µ¿ 1568-6>
µµ½ÃÁö¿ª, ÀϹݻó¾÷Áö¿ª, Áö±¸´ÜÀ§°èȹ±¸¿ª(³­°î»ç°Å¸®Áö±¸Áß½É(¼­¿ïƯº°½Ã °í½Ã Á¦2023-315È£(2023.07.27.))), µµ·Î(Á¢ÇÕ), °¡Ãà»çÀ°Á¦Çѱ¸¿ª<°¡ÃàºÐ´¢ÀÇ °ü¸® ¹× À̿뿡 °üÇÑ ¹ý·ü>, »ó´ëº¸È£±¸¿ª<±³À°È¯°æ º¸È£¿¡ °üÇÑ ¹ý·ü>, ´ë°ø¹æ¾îÇùÁ¶±¸¿ª(À§Å¹°íµµ:194m)<±º»ç±âÁö ¹× ±º»ç½Ã¼³ º¸È£¹ý>, °ú¹Ð¾ïÁ¦±Ç¿ª<¼öµµ±ÇÁ¤ºñ°èȹ¹ý>, ÁßÁ¡°æ°ü°ü¸®±¸¿ª(ÁÖ¿ä»ê ÁÖº¯)ÀÓ.
9)°øºÎ¿ÍÀÇ Â÷ÀÌ
--
10)±âŸÂü°í»çÇ×(ÀÓ´ë°ü·Ê ¹× ±âŸ)
--
Âü°í
»çÇ×
ÀÓÂ÷ÀÎ ¹× ÀÓÂ÷º¸Áõ±Ý¹Ýȯä±Ç½Â°èÀÎ ÁÖÅõµ½Ãº¸Áõ°ø»çÀÇ ¸Å¼öÀο¡ ´ëÇÑ ´ëÇ×·Â Æ÷±âÁ¶°Ç ¸Å°¢

°ÇÃ๰ÇöȲ

¼ÒÀçÁö ¼­¿ïƯº°½Ã °ü¾Ç±¸ ½Å¸²µ¿ 1568-5¹øÁö
´ëÁö¸éÀû 589.6§³
(178.67Æò)
¿¬¸éÀû 3974.81§³
(1204.49Æò)
°ÇÃà¸éÀû 352.96§³
(106.96Æò)
¿ëÀû·ü»êÁ¤
¿¬¸éÀû
3654.84§³
(1107.53Æò)
°ÇÆóÀ² 59.86% ¿ëÀû·ü 619.88%
Áö»óÃþ¼ö 14Ãþ ÁöÇÏÃþ¼ö 1Ãþ
ÁÖ¿ëµµ ¾÷¹«½Ã¼³ ±¸Á¶ ö±ÙÄÜÅ©¸®Æ®±¸Á¶
Âø°øÀÏÀÚ 2020.12.15 »ç¿ë½ÂÀÎÀÏÀÚ 2021.12.13
°ÇÃ๰Ãþº°ÇöȲ [º¸±â]


±¹ÅäºÎ½Ç°Å·¡°¡ ¼­¿ïƯº°½Ã °ü¾Ç±¸ ½Å¸²µ¿

¡Ü ¸Å¸Å

¸éÀû(§³), ±Ý¾×(¸¸¿ø)

¡Ü Àü¼¼

¸éÀû(§³), ±Ý¾×(¸¸¿ø)

°è¾àÀϰǹ°¸íĪÃþÀü¿ëº¸Áõ±Ý¿ù¼¼°ÇÃà
26.02.07´õÀ§Àϰü¾ÇÆÄÅ©ºä1118.8618,00002021
26.01.18´õÀ§Àϰü¾ÇÆÄÅ©ºä1117.3100702021
25.12.10´õÀ§Àϰü¾ÇÆÄÅ©ºä1118.8616,00002021
25.08.05´õÀ§Àϰü¾ÇÆÄÅ©ºä1418.86100702021
25.06.27´õÀ§Àϰü¾ÇÆÄÅ©ºä517.3100702021
¢Ñ ´õº¸±â

µî±âºÎµîº» ¿ä¾à(°Ç¹°)

  Á¢¼öÀÏÀÚ µî±â¸ñÀû/±Ç¸®ÀÚ ±Ç¸®±Ý¾× ±âÁØ
1 2022³â2¿ù25ÀÏ
¼ÒÀ¯±Ç
±èOO
¼Ò¸ê
2 2022³â2¿ù25ÀÏ
¾àÁ¤/±ÝÁö»çÇ×/ȯ¸ÅƯ¾à
Àμö
3 2023³â3¿ù20ÀÏ
¾Ð·ù
±¹
¼Ò¸ê±âÁØ
4 2024³â4¿ù4ÀÏ
ÀÓÂ÷±Ç¼³Á¤
°­OO
240,000,000 ¼Ò¸ê
5 2024³â7¿ù25ÀÏ
°¡¾Ð·ù
ÁÖOOOO
2,699,000,000 ¼Ò¸ê
6 2025³â2¿ù27ÀÏ
°­Á¦°æ¸Å
ÁÖOOOO
¼Ò¸ê

ÀÓÂ÷ÀÎÇöȲ (¹è´ç¿ä±¸Á¾±âÀÏ: 2025-05-15)

ÀÓÂ÷ÀÎ ¿ëµµ/Á¡À¯ º¸Áõ±Ý/¿ù¼¼ ´ëÇ×·Â
ÀüÀÔÀÏ/È®Á¤ÀÏ ¹è´ç¿ä±¸ ºñ°í
°­OO ÀüºÎ 240,000,000
O
2022.02.28.
2022.02.04.
2022.02.28.
ºñ°í
(¸Å°¢¹°°Ç
¸í¼¼¼­)
°­Å¿ø:ÁÖÅõµ½Ãº¸Áõ°ø»ç°¡ ÁÖÅÃÀÓ´ëÂ÷º¸È£¹ý Á¦3Á¶ÀÇ2 Á¦7Ç׿¡ ÀÇÇÏ¿© ¿ì¼±º¯Á¦±Ç ½Â°è

¿©ÀÇÁÖ°æ¸Å Á¶¾ð ÇÑ ¸¶µð

¼±¼øÀ§ ÀÓÂ÷±Çµî±â°¡ µÇ¾î ÀÖ½À´Ï´Ù
´ëÇ×·ÂÀÌ ÀÖ´Â ¼±¼øÀ§ ÀÓÂ÷±Çµî±â ±Ç¸®ÀÚ°¡ ¹è´çÀ» Àü¾× ¹ÞÁö ¸øÇÒ °æ¿ì ³«ÂûÀÚ°¡ ÀÜ¿© º¸Áõ±ÝÀ» ÀμöÇØ¾ßÇÏ´Â °æ¿ìµµ ÀÖ½À´Ï´Ù.

ÁÖÀÇ»çÇ× (ÃÖ¼±¼øÀ§ ¼³Á¤ÀÏ: 2023.03.20.(¾Ð·ù) ¼³Á¤)

¸Å°¢À¸·Î ¼Ò¸êµÇÁö ¾Ê´Â µî±âºÎ±Ç¸®:
¸Å°¢À¸·Î ¼³Á¤µÈ °ÍÀ¸·Î º¸´Â Áö»ó±Ç:
Ưº°¸Å°¢Á¶°Ç: ä±ÇÀÚ´Â ¸Å¼öÀο¡ ´ëÇØ ¹è´ç¹ÞÁö ¸øÇÏ´Â Àܾ׿¡ ´ëÇÑ ÀÓ´ëÂ÷º¸Áõ±Ý ¹Ýȯû±¸±ÇÀ» Æ÷±âÇϰí, ÀÓÂ÷±Çµî±â¸¦ ¸»¼Ò ÇÏ´Â °ÍÀ» Á¶°ÇÀ¸·Î ¸Å°¢
¡Ø¹Ì³³°ü¸®ºñ(°ø¿ë) Àμö¿©ºÎ¸¦ ÀÔÂû Àü¿¡ È®ÀÎÇϽñ⠹ٶø´Ï´Ù

 

Áö¿ªºÐ¼®

ÁöÇÏö¸í Á÷¼±°Å¸®

Çб³¸í ÀüÈ­¹øÈ£ ÁÖ¼Ò Á÷¼±°Å¸®

¹ý¿ø

¼­¿ïÁß¾ÓÁö¹æ¹ý¿ø (065-94)¼­¿ïƯº°½Ã ¼­Ãʱ¸ ¼­ÃÊÁß¾Ó·Î 157 (¼­Ãʵ¿)
´ëÇ¥ : 02)530-1114, ¾ß°£ : 02)530-1280/536-8003
°üÇÒÁö¿ª : Á¾·Î±¸, Áß±¸, °­³²±¸, ¼­Ãʱ¸, °ü¾Ç±¸, µ¿ÀÛ±¸

µî±â¼Ò ¼­¿ïÁß¾ÓÁö¹æ¹ý¿ø º»¿ø µî±â±¹ (´ëÇ¥:1544-0773, ÆÑ½º:(02)590-1881, ¼­¿ïƯº°½Ã ¼­Ãʱ¸ ¹ý¿ø·Î3±æ 14 (¼­Ãʵ¿ 1707-4))
¼¼¹«¼­ °ü¾Ç¼¼¹«¼­ (´ëÇ¥:02-2173-42, ÆÑ½º:02-2173-4269, ¼­¿ïƯº°½Ã °ü¾Ç±¸ ¹®¼º·Î 187(½Å¸²µ¿))

Àαٳ«ÂûÅë°è

±â°£ ¸Å°¢°Ç¼ö Æò±Õ°¨Á¤°¡
Æò±Õ¸Å°¢°¡
¸Å°¢°¡À²
Æò±ÕÀ¯Âû¼ö


º» °æ¸ÅÁ¤º¸´Â ¹ý¿øÀÚ·á¿Í ÀÏÄ¡Çϵµ·Ï ÇÏ¿´À¸³ª ±Ç¸®»çÇ׺¯µ¿, ÀÔ·ÂÂø¿À µîÀÇ ¿øÀÎÀ¸·Î »ç½Ç°ú ´Ù¸¦ ¼ö ÀÖ½À´Ï´Ù. ÀÌ¿ë¾à°ü¿¡ ÀǰЏéÃ¥Á¶°ÇÀ¸·Î Á¦°øµÊÀ» ¾Ë¸®¸ç, °æ¸ÅÀÔÂû½Ã ¹Ýµå½Ã °ü·Ã °øºÎ¸¦ ÀçÈ®ÀÎÇϽñ⠹ٶø´Ï´Ù. º¸´Ù Æí¸®ÇÑ °æ¸ÅÁ¤º¸ Á¦°øÀ» À§ÇØ Áö¼ÓÀûÀ¸·Î °³¼±ÇϰڽÀ´Ï´Ù. ÀÌ¿ëÇØ Áּż­ °¨»çÇÕ´Ï´Ù.