·Î±×ÀÎ
42
¾ÆÆÄÆ®
ÀÎõÁö¹æ¹ý¿ø ºÎõÁö¿ø
 °¨Á¤°¡381,000,000 ¿ø
 ÃÖÀú°¡(100%) 381,000,000 ¿ø
 º¸Áõ±Ý(10%) 38,100,000 ¿ø
 Ã»±¸¾×137,438,377 ¿ø
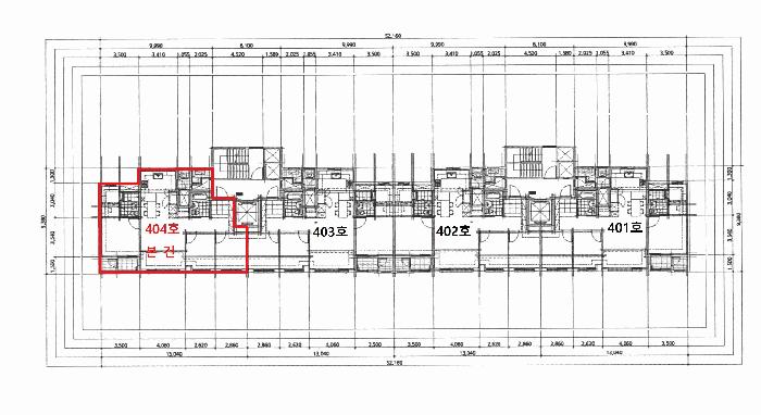
°æ±âµµ ±èÆ÷½Ã ¸¶»êµ¿ 640-5 ÇѰ­½Åµµ½Ã¹ÝµµÀ¯º¸¶ó3Â÷ 107µ¿ 4Ãþ404È£
»ç°Ç¹øÈ£ 2025Ÿ°æ33039
°æ¸ÅÁ¾·ùºÎµ¿»êÀÓÀǰæ¸Å
¸Å°¢´ë»óÅäÁö ¹× °Ç¹°Àϰý ¸Å°¢
¸Å°¢±âÀÏ    2025.11.18(È­) 10:00 (¿À´Ã ÀÔÂû)    
ÅäÁö¸éÀû79.23§³(23.97 Æò)
°Ç¹°¸éÀû60.00§³(18.15 Æò)
乫/¼ÒÀ¯ÀÚ±èOO / ±èOO
ä±ÇÀÚÁÖOOO OOOOOOOOOOO
ÆäÀ̽ººÏ Æ®À§ÅÍ ±¸±Û+
īī¿À½ºÅ丮
īī¿ÀÅå sms¹®ÀÚº¸³»±â
 

±âÀϳ»¿ª

°æ°ú ³¯Â¥ Àú°¨ ÃÖÀú°¡ °á°ú
Á¢¼öÀÏ 2025-03-21 °æ¸ÅÁ¢¼ö
~3ÀÏ 
2025-03-24 °æ¸Å°³½Ã°áÁ¤
~74ÀÏ 
2025-06-03 ¹è´ç¿ä±¸Á¾±âÀÏ
~242ÀÏ 
2025-11-18 100%
381,000,000
ÁøÇà
¹°°Ç¸í¼¼¼­ ÇöȲÁ¶»ç¼­ ¹®°ÇÁ¢¼ö ¼Û´Þ³»¿ª

°¨Á¤Æò°¡ÇöȲ

¸ñ·Ï ÁÖ¼Ò ±¸Á¶/¿ëµµ/´ëÁö±Ç ¸éÀû ºñ°í
´ëÁö±Ç
¸¶»êµ¿ 640-5 62607.4ºÐÀÇ 79.2316 79.2316 §³
(23.97Æò)
°Ç¹°
¸¶»êµ¿ 640-5 107µ¿ 4Ãþ404È£ ö±ÙÄÜÅ©¸®Æ®±¸Á¶ 59.9982 §³
(18.15Æò)
1) À§Ä¡/Á¦3Á¾ÀϹÝÁÖ°ÅÁö¿ª/Á¦1Á¾Áö±¸´ÜÀ§°èȹ±¸¿ª/¹ö½ºÁ¤·ùÀå/ÁÖÂ÷Àå/ö±ÙÄÜÅ©¸®Æ®±¸Á¶ ´õº¸±â
°¨Á¤Æò°¡ ¿äÇ×Ç¥
1)À§Ä¡ ¹× ÁÖÀ§È¯°æ
º»°ÇÀº °æ±âµµ ±èÆ÷½Ã ¸¶»êµ¿ ¼ÒÀç ""Àº¿©¿ïÃʵîÇб³"" ºÏµ¿Ãø Àαٿ¡ À§Ä¡Çϰí
ºÎ±ÙÀº ¾ÆÆÄÆ®´ÜÁö,»ó¾÷¿ë ¹× ¾÷¹«¿ë ±Ù¸°»ýȰ½Ã¼³,´Ù¼¼´ëÁÖÅà µîÀÌ ¼ÒÀçÇϰí
ÀÖ´Â Áö¿ªÀÓ.
2)±³Åë»óȲ
º»°Ç±îÁö Á¦¹ÝÂ÷·®ÀÇ ÁøÃâÀÔÀÌ ¿ëÀÌÇϰí Àαٿ¡ ""¸¶»ê¿ª"" ¹× ¹ö½ºÁ¤·ùÀåÀÌ ¼ÒÀçÇϰí ÀÖ¾î
Á¦¹Ý±³Åë»çÁ¤Àº º¸Åë½Ã µÊ.
3)°Ç¹°ÀÇ ±¸Á¶
2017³â 2¿ù 13ÀÏ »ç¿ë½ÂÀÎÀ» ¹ÞÀº ö±ÙÄÜÅ©¸®Æ®±¸Á¶ (ö±Ù)ÄÜÅ©¸®Æ®ÁöºØ 12Ãþ°ÇÁß
Á¦4Ãþ Á¦404È£·Î
¿Üº®:¼®ÀçºÙÀÓ ¹× ÄÜÅ©¸®Æ®À§ ÆäÀÎÆÃ¸¶°¨µî
³»º®:º®Áö ¹× ÀϺΟÀϸ¶°¨µî
âȣ:»þ½Ãâȣµî
4)ÀÌ¿ë»óÅÂ
¾ÆÆÄÆ®·Î ÀÌ¿ëµÇ°í ÀÖÀ½.
5)¼³ºñ³»¿ª
À§»ý¼³ºñ,»óÇϼöµµ¼³ºñ,½Â°­±â,ÁÖÂ÷Àå,³­¹æ¼³ºñµî µÇ¾îÀÖÀ½.
6)ÅäÁöÀÇ Çü»ó ¹× ÀÌ¿ë»óÅÂ
1ÇÊÁö ºÎÁ¤ÇüÀÇ ÅäÁö·Î ¾ÆÆÄÆ®ÀÇ °ÇºÎÁö·Î ÀÌ¿ëµÇ°í ÀÖÀ½.
7)ÀÎÁ¢ µµ·Î»óŵî
´ÜÁö³» Æ÷Àåµµ·Î¸¦ ÅëÇÏ¿© ¿Ü°ûÀÇ °øµµ¿Í ¿¬°áµÊ.
8)ÅäÁöÀÌ¿ë°èȹ ¹× Á¦ÇÑ»óÅÂ
Á¦3Á¾ÀϹÝÁÖ°ÅÁö¿ª(2014-11-27),Á¦1Á¾Áö±¸´ÜÀ§°èȹ±¸¿ª(±èÆ÷ÇѰ­½Åµµ½Ã),
¼Ò·Î1·ù(Æø 10m~12m)(2014-11-27)(Ư¼öµµ·Î)(Á¢ÇÕ),¼Ò·Î3·ù(Æø 8m ¹Ì¸¸)
(2014-11-27)(Ư¼öµµ·Î)(Á¢ÇÕ),Áß·Î1·ù(Æø 20m~25m)(2014-11-27)(Á¢ÇÕ),
Áß·Î2·ù(Æø 15m~20m)(2014-11-27)(Á¢ÇÕ),Á¦3Á¾ÀϹÝÁÖ°ÅÁö¿ª(2014-11-27),
Á¦1Á¾Áö±¸´ÜÀ§°èȹ±¸¿ª(±èÆ÷ÇѰ­½Åµµ½Ã),¼Ò·Î1·ù(Æø 10m~12m)(2014-11-27)
(Ư¼öµµ·Î)(Á¢ÇÕ),¼Ò·Î3·ù(Æø 8m ¹Ì¸¸)(2014-11-27)(Ư¼öµµ·Î)(Á¢ÇÕ),
Áß·Î1·ù(Æø 20m~25m)(2014-11-27)(Á¢ÇÕ),Áß·Î2·ù(Æø 15m~20m)(2014-11-27)(Á¢ÇÕ).

<Ãß°¡±âÀç>º»Áõ¸íÀº°£È¤Àü»ê¿À·ù·ÎÀÎÇÏ¿©»ç½Ç°ú´Ù¸¦¼öÀÖÀ¸´ÏÀÎÇã°¡³ªÅäÁö°Å·¡Àüµî
Áö¿ªÁö±¸µîÀÇÆíÀÔ¿©ºÎ¸¦¹Ýµå½Ã°ü°èºÎ¼­¿¡È®ÀιÞÀ¸½Ã±â¹Ù¶ø´Ï´Ù.
9)°øºÎ¿ÍÀÇ Â÷ÀÌ
ÇØ´ç»çÇ×¾øÀ½.
10)±âŸÂü°í»çÇ×(ÀÓ´ë°ü·Ê ¹× ±âŸ)
°¡.º»°Ç ÇöÀ广¹®ÇÏ¿´À¸³ª °ÅÁÖÀÎ µî ÀÌÇØ°ü°èÀÎÀÇ ºÎÀç°ü°è·Î ³»ºÎ±¸Á¶ µîÀº °øºÎ ¹×
Àα٠À¯»ç¹°°ÇÀÇ Æò°¡Àü·Ê µîÀ» Âü°íÇÏ¿© ÀϹÝÀûÀÎ »ç¾çÀ» ±âÁØÀ¸·Î Æò°¡ÇÏ¿´À¸¸ç
ÀÓ´ë¿©ºÎ´Â ÆÄ¾ÇÇÏÁö ¸øÇÏ¿´´Â ¹Ù °æ¸ÅÁøÇà½Ã Âü°í¹Ù¶ø´Ï´Ù.

³ª.º»°Ç µî±â»çÇ×ÀüºÎÁõ¸í¼­»ó ¾Æ·¡¿Í °°ÀÌ ÀÓÂ÷±Çµî±â¸í·ÉÀÌ µîÀçµÇ¾îÀÖÀ½.

2024Ä«ÀÓ256(2024.10.04)

ÀÓÂ÷º¸Áõ±Ý: 280,000,000¿ø
¹ü À§: 4Ãþ 404È£ ÀüºÎ
ÀÓ´ëÂ÷°è¾àÀÏÀÚ: 2022.08.26
Áֹεî·ÏÀÏÀÚ: 2022.09.28
Á¡À¯°³½ÃÀÏÀÚ: 2022.09.28
È®Á¤ÀÏÀÚ: 2022.08.26
ÀÓÂ÷±ÇÀÚ: ¼Õ**(920213-*******),°æ±âµµ ±èÆ÷½Ã ±èÆ÷ÇѰ­8·Î 173-28,107µ¿ 404È£

°ÇÃ๰ÇöȲ

¼ÒÀçÁö °æ±âµµ ±èÆ÷½Ã ¸¶»êµ¿ 640-5¹øÁö
´ëÁö¸éÀû   ¿¬¸éÀû 3861.594§³
(1170.18Æò)
°ÇÃà¸éÀû 515.3182§³
(156.16Æò)
¿ëÀû·ü»êÁ¤
¿¬¸éÀû
3861.594§³
(1170.18Æò)
°ÇÆóÀ²   ¿ëÀû·ü  
Áö»óÃþ¼ö 12Ãþ ÁöÇÏÃþ¼ö  
ÁÖ¿ëµµ °øµ¿ÁÖÅà ±¸Á¶ ö±ÙÄÜÅ©¸®Æ®±¸Á¶
Âø°øÀÏÀÚ 2015.03.10 »ç¿ë½ÂÀÎÀÏÀÚ 2017.02.13
°ÇÃ๰Ãþº°ÇöȲ [º¸±â]


±¹ÅäºÎ½Ç°Å·¡°¡ °æ±âµµ ±èÆ÷½Ã ¸¶»êµ¿

¡Ü ¸Å¸Å

¸éÀû(§³), ±Ý¾×(¸¸¿ø)

¡Ü Àü¼¼

¸éÀû(§³), ±Ý¾×(¸¸¿ø)

°è¾àÀÏARTÃþÀü¿ë±Ý¾×°ÇÃà
24.03.29ÇѰ­½Åµµ½Ã¹ÝµµÀ¯º¸¶ó3Â÷584.985543,0002017
24.03.23ÇѰ­½Åµµ½Ã¹ÝµµÀ¯º¸¶ó3Â÷484.991144,0002017
24.03.23ÇѰ­½Åµµ½Ã¹ÝµµÀ¯º¸¶ó3Â÷1159.998238,7002017
24.03.16ÇѰ­½Åµµ½Ã¹ÝµµÀ¯º¸¶ó3Â÷659.998235,0002017
24.02.15ÇѰ­½Åµµ½Ã¹ÝµµÀ¯º¸¶ó3Â÷1059.998238,6002017
¢Ñ ´õº¸±â

µî±âºÎµîº» ¿ä¾à(°Ç¹°)

  Á¢¼öÀÏÀÚ µî±â¸ñÀû/±Ç¸®ÀÚ ±Ç¸®±Ý¾× ±âÁØ
1 2017³â5¿ù29ÀÏ
¼ÒÀ¯±Ç
±èOO
¼Ò¸ê
2 2019³â11¿ù25ÀÏ
±ÙÀú´ç±Ç
(OOOO
148,500,000 ¼Ò¸ê±âÁØ
3 2024³â6¿ù26ÀÏ
°¡¾Ð·ù
¼­OOOO
11,096,120 ¼Ò¸ê
4 2024³â10¿ù4ÀÏ
ÀÓÂ÷±Ç¼³Á¤
¼ÕOO
280,000,000 ¼Ò¸ê
5 2025³â3¿ù24ÀÏ
ÀÓÀǰæ¸Å
(OOOO
¼Ò¸ê

ÀÓÂ÷ÀÎÇöȲ (¹è´ç¿ä±¸Á¾±âÀÏ: 2025-06-03)

ÀÓÂ÷ÀÎ ¿ëµµ/Á¡À¯ º¸Áõ±Ý/¿ù¼¼ ´ëÇ×·Â
ÀüÀÔÀÏ/È®Á¤ÀÏ ¹è´ç¿ä±¸ ºñ°í
¼ÕOO ÀüºÎ 280,000,000
X
2022.09.28.
2022.08.26.
2022.09.28.
ÁÖOOOOOOOOOOOO ÀüºÎ 280,000,000
X
2022.09.28.
2022.08.26.
2025.04.09. 2022.09.28.~2024.09.27.
ºñ°í
(¸Å°¢¹°°Ç
¸í¼¼¼­)
ÁÖÅõµ½Ãº¸Áõ°ø»ç(¼Õ¼®¿ì) : ÀÓÂ÷ÀÎ ¼Õ¼®¿ìÀÇ ÀÓÂ÷º¸Áõ±Ý¹Ýȯä±ÇÀÇ ¾ç¼öÀÎÀÓ.

¿©ÀÇÁÖ°æ¸Å Á¶¾ð ÇÑ ¸¶µð


ÁÖÀÇ»çÇ× (ÃÖ¼±¼øÀ§ ¼³Á¤ÀÏ: 2019.11.25.±ÙÀú´ç±Ç ¼³Á¤)

¸Å°¢À¸·Î ¼Ò¸êµÇÁö ¾Ê´Â µî±âºÎ±Ç¸®:
¸Å°¢À¸·Î ¼³Á¤µÈ °ÍÀ¸·Î º¸´Â Áö»ó±Ç:
¡Ø¹Ì³³°ü¸®ºñ(°ø¿ë) Àμö¿©ºÎ¸¦ ÀÔÂû Àü¿¡ È®ÀÎÇϽñ⠹ٶø´Ï´Ù

 

Áö¿ªºÐ¼®

ÁöÇÏö¸í Á÷¼±°Å¸®

Çб³¸í ÀüÈ­¹øÈ£ ÁÖ¼Ò Á÷¼±°Å¸®

¹ý¿ø

ÀÎõÁö¹æ¹ý¿ø ºÎõÁö¿ø (146-02)°æ±âµµ ºÎõ½Ã ¿ø¹Ì±¸ »óÀÏ·Î 129(»óµ¿)
´ëÇ¥ : 032)320-1114, ¹Î¿ø : 032)320-1234
°üÇÒÁö¿ª : ºÎõ½Ã, ±èÆ÷½Ã

µî±â¼Ò ÀÎõÁö¹æ¹ý¿ø ºÎõÁö¿ø ±èÆ÷µî±â¼Ò (´ëÇ¥:1544-0773, ÆÑ½º:(031)982-6997, °æ±âµµ ±èÆ÷½Ã ºÀÈ­·Î 16 (»ç¿ìµ¿ 240-2))
¼¼¹«¼­ ±èÆ÷¼¼¹«¼­ (´ëÇ¥:031-980-32, ÆÑ½º:031-987-9932, °æ±âµµ ±èÆ÷½Ã ±èÆ÷ÇѰ­1·Î 22 (Àå±âµ¿))

Àαٳ«ÂûÅë°è

±â°£ ¸Å°¢°Ç¼ö Æò±Õ°¨Á¤°¡
Æò±Õ¸Å°¢°¡
¸Å°¢°¡À²
Æò±ÕÀ¯Âû¼ö
3°³¿ù 61°Ç 494,065,574¿ø
414,941,597¿ø
85%
1ȸ
6°³¿ù 107°Ç 495,906,542¿ø
421,472,945¿ø
86%
1ȸ
12°³¿ù 213°Ç 497,126,761¿ø
422,854,493¿ø
86%
1ȸ


º» °æ¸ÅÁ¤º¸´Â ¹ý¿øÀÚ·á¿Í ÀÏÄ¡Çϵµ·Ï ÇÏ¿´À¸³ª ±Ç¸®»çÇ׺¯µ¿, ÀÔ·ÂÂø¿À µîÀÇ ¿øÀÎÀ¸·Î »ç½Ç°ú ´Ù¸¦ ¼ö ÀÖ½À´Ï´Ù. ÀÌ¿ë¾à°ü¿¡ ÀǰЏéÃ¥Á¶°ÇÀ¸·Î Á¦°øµÊÀ» ¾Ë¸®¸ç, °æ¸ÅÀÔÂû½Ã ¹Ýµå½Ã °ü·Ã °øºÎ¸¦ ÀçÈ®ÀÎÇϽñ⠹ٶø´Ï´Ù. º¸´Ù Æí¸®ÇÑ °æ¸ÅÁ¤º¸ Á¦°øÀ» À§ÇØ Áö¼ÓÀûÀ¸·Î °³¼±ÇϰڽÀ´Ï´Ù. ÀÌ¿ëÇØ Áּż­ °¨»çÇÕ´Ï´Ù.