·Î±×ÀÎ
174
´Ù¼¼´ë(ºô¶ó)
¼­¿ï¼­ºÎÁö¹æ¹ý¿ø
 °¨Á¤°¡212,000,000 ¿ø
 ÃÖÀú°¡(64%) 135,680,000 ¿ø
 º¸Áõ±Ý(10%) 13,568,000 ¿ø
 Ã»±¸¾×210,000,000 ¿ø
¼­¿ïƯº°½Ã ÀºÆò±¸ ½Å»çµ¿ 29-166 ½Å¼º±×¸°ºô 3Ãþ302È£
»ç°Ç¹øÈ£ 2025Ÿ°æ804
°æ¸ÅÁ¾·ùºÎµ¿»ê°­Á¦°æ¸Å
¸Å°¢´ë»óÅäÁö ¹× °Ç¹°Àϰý ¸Å°¢
¸Å°¢±âÀÏ    2026.02.03(È­) 10:00 ÀÔÂû 14ÀÏÀü    
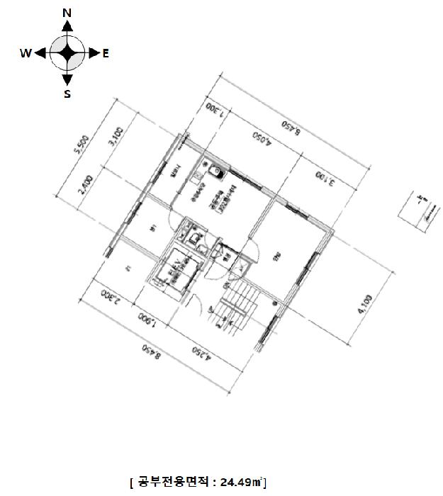
ÅäÁö¸éÀû10.77§³(3.26 Æò)
°Ç¹°¸éÀû24.49§³(7.41 Æò)
乫/¼ÒÀ¯ÀÚÀÌOO / ÀÌOO
ä±ÇÀÚÀÌOO
ÆäÀ̽ººÏ Æ®À§ÅÍ ±¸±Û+
īī¿À½ºÅ丮
īī¿ÀÅå sms¹®ÀÚº¸³»±â
 

±âÀϳ»¿ª

°æ°ú ³¯Â¥ Àú°¨ ÃÖÀú°¡ °á°ú
Á¢¼öÀÏ 2025-04-16 °æ¸ÅÁ¢¼ö
~1ÀÏ 
2025-04-17 °æ¸Å°³½Ã°áÁ¤
~75ÀÏ 
2025-06-30 ¹è´ç¿ä±¸Á¾±âÀÏ
~216ÀÏ 
2025-11-18 100%
212,000,000
À¯Âû
~251ÀÏ 
2025-12-23 80%
169,600,000
À¯Âû
~293ÀÏ 
2026-02-03 64%
135,680,000
ÁøÇà
¹°°Ç¸í¼¼¼­ ÇöȲÁ¶»ç¼­ ¹®°ÇÁ¢¼ö ¼Û´Þ³»¿ª

°¨Á¤Æò°¡ÇöȲ

¸ñ·Ï ÁÖ¼Ò ±¸Á¶/¿ëµµ/´ëÁö±Ç ¸éÀû ºñ°í
´ëÁö±Ç
½Å»çµ¿ 29-166 169.9ºÐÀÇ 10.77 10.77 §³
(3.26Æò)
°Ç¹°
½Å»çµ¿ 29-166 3Ãþ302È£ ö±ÙÄÜÅ©¸®Æ®±¸Á¶ 24.49 §³
(7.41Æò)
1) À§Ä¡/ÁØÁÖ°ÅÁö¿ª/Áö±¸´ÜÀ§°èȹ±¸¿ª/ÁöÇÏö/³ë¼±¹ö½ºÁ¤·ùÀå/ö±ÙÄÜÅ©¸®Æ®±¸Á¶ ´õº¸±â
°¨Á¤Æò°¡ ¿äÇ×Ç¥
1)À§Ä¡ ¹× ÁÖÀ§È¯°æ
º»°ÇÀº ¼­¿ïƯº°½Ã ÀºÆò±¸ ½Å»çµ¿ ¼ÒÀç ""½Å»ç1µ¿Áֹμ¾ÅÍ"" ³²¼­Ãø Àαٿ¡ À§Ä¡Çϸç, ÁÖÀ§´Â
´Ù¼¼´ëÁÖÅÃ, ´Üµ¶ÁÖÅà ¹× ±Ù¸°»ýȰ½Ã¼³ µîÀÌ È¥ÀçÇÏ´Â Áö´ëÀÓ.
2)±³Åë»óȲ
º»°Ç±îÁö Â÷·® Áø¡¤ÃâÀÔÀÌ °¡´ÉÇϸç, Àαٿ¡ ³ë¼±¹ö½ºÁ¤·ùÀå ¹× ÁöÇÏö 6È£¼± 'ÀÀ¾Ï¿ª' ¹×
'»õÀý¿ª' µîÀÌ ¼ÒÀçÇÔ.
3)°Ç¹°ÀÇ ±¸Á¶
ö±ÙÄÜÅ©¸®Æ®±¸Á¶ (ö±Ù)ÄÜÅ©¸®Æ®(ö±ÙÄÜÅ©¸®Æ®)ÁöºØ Áö»ó 9Ãþ °Ç³» Á¦3Ãþ Á¦302È£·Î¼­

¿Üº®: µ¹ºÙÀÓ ¸¶°¨ µî,
âȣ: »þ½Ã âȣÀÓ.
4)ÀÌ¿ë»óÅÂ
´Ù¼¼´ëÁÖÅÃÀ¸·Î ÀÌ¿ëÁßÀÓ.
5)¼³ºñ³»¿ª
±Þ¡¤¹è¼ö¼³ºñ ¹× À§»ý¼³ºñ, ³­¹æ¼³ºñ ¹× ½Â°­±â¼³ºñ µîÀÌ ±¸ºñµÇ¾î ÀÖÀ½.
6)ÅäÁöÀÇ Çü»ó ¹× ÀÌ¿ë»óÅÂ
°¡ÀåÇü ÅäÁö·Î¼­ ""¾÷¹«½Ã¼³(¿ÀÇǽºÅÚ) ¹× °øµ¿ÁÖÅÃ(´Ù¼¼´ëÁÖÅÃ)¹× ±Ù¸°»ýȰ½Ã¼³"" °ÇºÎÁö·Î
ÀÌ¿ëÁßÀÓ.
7)ÀÎÁ¢ µµ·Î»óŵî
µ¿ÃøÀ¸·Î ¹× ³²ÃøÀ¸·Î ·ÎÆø ¾à 4¹ÌÅÍÀÇ Æ÷Àåµµ·Î¿Í °¢°¢ Á¢Çϰí ÀÖÀ½.
8)ÅäÁöÀÌ¿ë°èȹ ¹× Á¦ÇÑ»óÅÂ
ÁØÁÖ°ÅÁö¿ª, Áö±¸´ÜÀ§°èȹ±¸¿ª(½Å»ç»ýȰ±Ç,ÀÚ¼¼ÇÑ »çÇ× º°µµ È®ÀÎ:µµ½Ã°èȹ°ú),
°¡Ãà»çÀ°Á¦Çѱ¸¿ª<°¡ÃàºÐ´¢ÀÇ °ü¸® ¹× À̿뿡 °üÇÑ ¹ý·ü>,
´ë°ø¹æ¾îÇùÁ¶±¸¿ª(À§Å¹°íµµ:77-257m)<±º»ç±âÁö ¹× ±º»ç½Ã¼³ º¸È£¹ý>,
°ú¹Ð¾ïÁ¦±Ç¿ª<¼öµµ±ÇÁ¤ºñ°èȹ¹ý>ÀÓ.
9)°øºÎ¿ÍÀÇ Â÷ÀÌ
¾øÀ½.
10)±âŸÂü°í»çÇ×(ÀÓ´ë°ü·Ê ¹× ±âŸ)
-.

°ÇÃ๰ÇöȲ

¼ÒÀçÁö ¼­¿ïƯº°½Ã ÀºÆò±¸ ½Å»çµ¿ 29-166¹øÁö
´ëÁö¸éÀû 167.9§³
(50.88Æò)
¿¬¸éÀû 576.46§³
(174.68Æò)
°ÇÃà¸éÀû 88.45§³
(26.8Æò)
¿ëÀû·ü»êÁ¤
¿¬¸éÀû
501.79§³
(152.06Æò)
°ÇÆóÀ² 52.68% ¿ëÀû·ü 298.86%
Áö»óÃþ¼ö 9Ãþ ÁöÇÏÃþ¼ö 1Ãþ
ÁÖ¿ëµµ ¾÷¹«½Ã¼³ ±¸Á¶ ö±ÙÄÜÅ©¸®Æ®±¸Á¶
Âø°øÀÏÀÚ 2018.09.17 »ç¿ë½ÂÀÎÀÏÀÚ 2019.07.03
°ÇÃ๰Ãþº°ÇöȲ [º¸±â]


±¹ÅäºÎ½Ç°Å·¡°¡ ¼­¿ïƯº°½Ã ÀºÆò±¸ ½Å»çµ¿

¡Ü ¸Å¸Å

¸éÀû(§³), ±Ý¾×(¸¸¿ø)

¡Ü Àü¼¼

¸éÀû(§³), ±Ý¾×(¸¸¿ø)

°è¾àÀϰǹ°¸íĪÃþ¿¬¸éÀûº¸Áõ±Ý¿ù¼¼°ÇÃà
25.12.21Å¿µ½¦¸£ºô352.625,00002016
25.12.20Çý¼º½ÃƼºô329.9521,600172022
25.12.19(266-24)428.5422,00002025
25.12.19µ¿Àͱ׸°ºô¶ó(184-65)363.7420,00001995
25.12.17ÈñÁ¤ºô¸®Áö(29-58)251.123,000801996
¢Ñ ´õº¸±â

µî±âºÎµîº» ¿ä¾à(°Ç¹°)

  Á¢¼öÀÏÀÚ µî±â¸ñÀû/±Ç¸®ÀÚ ±Ç¸®±Ý¾× ±âÁØ
1 2020³â5¿ù25ÀÏ
¼ÒÀ¯±Ç
ÀÌOO
¼Ò¸ê
2 2022³â7¿ù18ÀÏ
¾Ð·ù
±¹
¼Ò¸ê±âÁØ
3 2022³â12¿ù2ÀÏ
¾àÁ¤/±ÝÁö»çÇ×/ȯ¸ÅƯ¾à
¼Ò¸ê
4 2023³â5¿ù18ÀÏ
°¡¾Ð·ù
ÁÖOOOO
3,091,000,000 ¼Ò¸ê
5 2023³â5¿ù24ÀÏ
°¡¾Ð·ù
ÀÎOOOO
33,216,604 ¼Ò¸ê
6 2024³â1¿ù24ÀÏ
¾Ð·ù
¼­OOOO
¼Ò¸ê
7 2024³â5¿ù16ÀÏ
ÀÓÂ÷±Ç¼³Á¤
ÀÌOO
210,000,000 ¼Ò¸ê
8 2025³â4¿ù17ÀÏ
°­Á¦°æ¸Å
ÀÌOO
¼Ò¸ê
9 2025³â4¿ù25ÀÏ
¾Ð·ù
±¹OOOO
¼Ò¸ê

ÀÓÂ÷ÀÎÇöȲ (¹è´ç¿ä±¸Á¾±âÀÏ: 2025-06-30)

ÀÓÂ÷ÀÎ ¿ëµµ/Á¡À¯ º¸Áõ±Ý/¿ù¼¼ ´ëÇ×·Â
ÀüÀÔÀÏ/È®Á¤ÀÏ ¹è´ç¿ä±¸ ºñ°í
ÀÌOO 302È£ 210,000,000
O
2020.05.04
1Â÷:2020.3.17.2Â÷:2022.4.15.
2025.5.12. 2020.5.4.~
ºñ°í
(¸Å°¢¹°°Ç
¸í¼¼¼­)
ÀÌ¿µ¾Ö:ÀÌ »ç°Ç ½Åûä±ÇÀÚÀÓ

¿©ÀÇÁÖ°æ¸Å Á¶¾ð ÇÑ ¸¶µð

¼±¼øÀ§ ÀÓÂ÷±Çµî±â°¡ µÇ¾î ÀÖ½À´Ï´Ù
´ëÇ×·ÂÀÌ ÀÖ´Â ¼±¼øÀ§ ÀÓÂ÷±Çµî±â ±Ç¸®ÀÚ°¡ ¹è´çÀ» Àü¾× ¹ÞÁö ¸øÇÒ °æ¿ì ³«ÂûÀÚ°¡ ÀÜ¿© º¸Áõ±ÝÀ» ÀμöÇØ¾ßÇÏ´Â °æ¿ìµµ ÀÖ½À´Ï´Ù.

ÁÖÀÇ»çÇ× (ÃÖ¼±¼øÀ§ ¼³Á¤ÀÏ: )

¸Å°¢À¸·Î ¼Ò¸êµÇÁö ¾Ê´Â µî±âºÎ±Ç¸®: ¸Å¼öÀο¡°Ô ´ëÇ×ÇÒ ¼ö ÀÖ´Â À»±¸ ¼øÀ§ 3¹ø ÀÓÂ÷±Çµî±â(2024. 5. 16. µî±â) ÀÖÀ½(ÀÓ´ëÂ÷º¸Áõ±Ý 210,000,000¿ø, ÀüÀÔÀÏ 2020. 5. 4., È®Á¤ÀÏÀÚ 2020. 3. 17.). ¹è´ç¿¡¼­ º¸Áõ±ÝÀÌ Àü¾× º¯Á¦µÇÁö ¾Æ´ÏÇϸé Àܾ×À» ¸Å¼öÀÎÀÌ ÀμöÇÔ
¸Å°¢À¸·Î ¼³Á¤µÈ °ÍÀ¸·Î º¸´Â Áö»ó±Ç:
¡Ø¹Ì³³°ü¸®ºñ(°ø¿ë) Àμö¿©ºÎ¸¦ ÀÔÂû Àü¿¡ È®ÀÎÇϽñ⠹ٶø´Ï´Ù

 

Áö¿ªºÐ¼®

ÁöÇÏö¸í Á÷¼±°Å¸®

Çб³¸í ÀüÈ­¹øÈ£ ÁÖ¼Ò Á÷¼±°Å¸®

¹ý¿ø

¼­¿ï¼­ºÎÁö¹æ¹ý¿ø (042-07)¼­¿ïƯº°½Ã ¸¶Æ÷±¸ ¸¶Æ÷´ë·Î 174 (°ø´öµ¿)
´ëÇ¥ : 02)3271-1114, ¹Î¿ø : 02)3271-1704/1881, ¾ß°£ : 02)3271-1700~1
°üÇÒÁö¿ª : ¿ë»ê±¸, ¼­´ë¹®±¸, ¸¶Æ÷±¸, ÀºÆò±¸

µî±â¼Ò ¼­¿ï¼­ºÎÁö¹æ¹ý¿ø º»¿ø µî±â±¹ (´ëÇ¥:1544-0773, ÆÑ½º:(02)3271-9130, ¼­¿ïƯº°½Ã ¸¶Æ÷±¸ ¸¶Æ÷´ë·Î 199 (¾ÆÇöµ¿ 783))
¼¼¹«¼­ ÀºÆò¼¼¹«¼­ (´ëÇ¥:02-2132-92, ÆÑ½º:02-2132-9501, ¼­¿ïƯº°½Ã ÀºÆò±¸ ¼­¿À¸ª·Î7(ÀÀ¾Ïµ¿84-5))

Àαٳ«ÂûÅë°è

±â°£ ¸Å°¢°Ç¼ö Æò±Õ°¨Á¤°¡
Æò±Õ¸Å°¢°¡
¸Å°¢°¡À²
Æò±ÕÀ¯Âû¼ö
3°³¿ù 56°Ç 285,578,705¿ø
200,344,338¿ø
70%
5ȸ
6°³¿ù 85°Ç 279,001,309¿ø
198,627,665¿ø
71%
4.4ȸ
12°³¿ù 184°Ç 290,568,617¿ø
208,479,297¿ø
72%
3.5ȸ


º» °æ¸ÅÁ¤º¸´Â ¹ý¿øÀÚ·á¿Í ÀÏÄ¡Çϵµ·Ï ÇÏ¿´À¸³ª ±Ç¸®»çÇ׺¯µ¿, ÀÔ·ÂÂø¿À µîÀÇ ¿øÀÎÀ¸·Î »ç½Ç°ú ´Ù¸¦ ¼ö ÀÖ½À´Ï´Ù. ÀÌ¿ë¾à°ü¿¡ ÀǰЏéÃ¥Á¶°ÇÀ¸·Î Á¦°øµÊÀ» ¾Ë¸®¸ç, °æ¸ÅÀÔÂû½Ã ¹Ýµå½Ã °ü·Ã °øºÎ¸¦ ÀçÈ®ÀÎÇϽñ⠹ٶø´Ï´Ù. º¸´Ù Æí¸®ÇÑ °æ¸ÅÁ¤º¸ Á¦°øÀ» À§ÇØ Áö¼ÓÀûÀ¸·Î °³¼±ÇϰڽÀ´Ï´Ù. ÀÌ¿ëÇØ Áּż­ °¨»çÇÕ´Ï´Ù.