·Î±×ÀÎ
36
¿ÀÇǽºÅÚ
¼ö¿øÁö¹æ¹ý¿ø
 °¨Á¤°¡298,000,000 ¿ø
 ÃÖÀú°¡(100%) 298,000,000 ¿ø
 º¸Áõ±Ý(10%) 29,800,000 ¿ø
 Ã»±¸¾×280,000,000 ¿ø
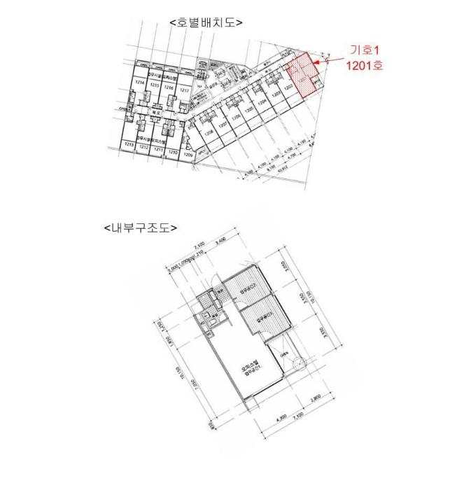
°æ±âµµ È­¼º½Ã ³ëÀÛ·Î 175, 12Ãþ1201È£ (¹Ý¼Ûµ¿,¼¾Æ®·²½ÃƼ¿ÀÇǽºÅÚ)
°æ±âµµ È­¼º½Ã ¹Ý¼Ûµ¿ 92-3
»ç°Ç¹øÈ£ 2024Ÿ°æ96504
°æ¸ÅÁ¾·ùºÎµ¿»ê°­Á¦°æ¸Å
¸Å°¢´ë»óÅäÁö ¹× °Ç¹°Àϰý ¸Å°¢
¸Å°¢±âÀÏ    2025.11.14(±Ý) 10:00 ÀÔÂû 7ÀÏÀü    
ÅäÁö¸éÀû9.56§³(2.89 Æò)
°Ç¹°¸éÀû59.46§³(17.99 Æò)
乫/¼ÒÀ¯ÀÚÁÖOOOOO / ÁÖOOOOO
ä±ÇÀÚÀÌOO
ÆäÀ̽ººÏ Æ®À§ÅÍ ±¸±Û+
īī¿À½ºÅ丮
īī¿ÀÅå sms¹®ÀÚº¸³»±â
 

±âÀϳ»¿ª

°æ°ú ³¯Â¥ Àú°¨ ÃÖÀú°¡ °á°ú
Á¢¼öÀÏ 2024-11-05 °æ¸ÅÁ¢¼ö
~1ÀÏ 
2024-11-06 °æ¸Å°³½Ã°áÁ¤
~76ÀÏ 
2025-01-20 ¹è´ç¿ä±¸Á¾±âÀÏ
~374ÀÏ 
2025-11-14 100%
298,000,000
ÁøÇà
¹°°Ç¸í¼¼¼­ ÇöȲÁ¶»ç¼­ ¹®°ÇÁ¢¼ö ¼Û´Þ³»¿ª

°¨Á¤Æò°¡ÇöȲ

¸ñ·Ï ÁÖ¼Ò ±¸Á¶/¿ëµµ/´ëÁö±Ç ¸éÀû ºñ°í
´ëÁö±Ç
¹Ý¼Ûµ¿ 92-3 2053.1ºÐÀÇ 9.56 9.56 §³
(2.89Æò)
°Ç¹°
¹Ý¼Ûµ¿ 92-3 12Ãþ1201È£ ö±ÙÄÜÅ©¸®Æ®±¸Á¶ 59.462 §³
(17.99Æò)
1) À§Ä¡/Á߽ɻó¾÷Áö¿ª/Áö±¸´ÜÀ§°èȹ±¸¿ª/¹ö½ºÁ¤·ùÀå/ÁÖÂ÷Àå/ö±ÙÄÜÅ©¸®Æ®±¸Á¶ ´õº¸±â
°¨Á¤Æò°¡ ¿äÇ×Ç¥
1)À§Ä¡ ¹× ÁÖÀ§È¯°æ
º»°ÇÀº °æ±âµµ È­¼º½Ã ³ëÀ۷ο¡ ¼ÒÀçÇϴ¡®µ¿Åºº¹ÇÕ¹®È­¼¾ÅÍ¡¯ºÏ¼­Ãø Àαٿ¡ À§Ä¡Çϸç ÁÖº¯Àº ¿ÀÇǽºÅÚ, ¼÷¹Ú½Ã¼³, ±Ù¸°»ýȰ½Ã¼³, °ø°ø±â°ü ¹× °ø¿ø µîÀÌ ¼ÒÀçÇÏ´Â »ó¾÷Áö´ëÀÓ.
2)±³Åë»óȲ
º»°Ç±îÁö Â÷·® ÃâÀÔÀÌ ¿ëÀÌÇÏ°í ºÏÃøÀ¸·Î Áö¹æµµ84¹ø, µ¿Ãø°ú ºÏµ¿ÃøÀ¸·Î °æºÎ°í¼Óµµ·Î, ±âÈﵿźIC°¡ À§Ä¡Çϰí Àα٠³ëÀ۷θ¦ µû¶ó ¹ö½ºÁ¤·ùÀåÀÌ ¼ÒÀçÇÔ.
3)°Ç¹°ÀÇ ±¸Á¶
ö±ÙÄÜÅ©¸®Æ®±¸Á¶ (ö±Ù)ÄÜÅ©¸®Æ®ÁöºØ 24Ãþ ¾÷¹«½Ã¼³(¿ÀÇǽºÅÚ) Á¦1.2Á¾±Ù¸°»ýȰ½Ã¼³ ³» 12Ãþ 1201È£·Î¼­,

¿Üº®: ¼®Àç ºÙÀÓ, ¸ôÅ» À§ ÆäÀÎÆÃ ¸¶°¨
³»º®: º®Áö ¹× ÀϺΠŸÀÏ µî ¸¶°¨
âȣ: ¼¨½Ã âȣÀÓ.
4)ÀÌ¿ë»óÅÂ
¿ÀÇǽºÅÚ·Î ÀÌ¿ë ÁßÀÓ.(ÈÄ÷ ³»ºÎ±¸Á¶µµ ¹× °øºÎ ÂüÁ¶)
5)¼³ºñ³»¿ª
À§»ý ¹× ±Þ¹è¼ö¼³ºñ, ½Â°­±â¼³ºñ, °øµ¿Çö°üº¸¾È°³Æó¼³ºñ, ÁÖÂ÷Àå½Ã¼³ µîÀ» °®Ãã.
6)ÅäÁöÀÇ Çü»ó ¹× ÀÌ¿ë»óÅÂ
ÆòÁöÀÇ »ç´Ù¸®Çü ÅäÁö·Î¼­ ¾÷¹«½Ã¼³(¿ÀÇǽºÅÚ), Á¦1, 2Á¾ ±Ù¸°»ýȰ½Ã¼³ °ÇºÎÁö·Î ÀÌ¿ë ÁßÀÓ.
7)ÀÎÁ¢ µµ·Î»óŵî
º»°Ç µ¿Ãø°ú ¼­ÃøÀ¸·Î Æø ¾à 40m, 25m µµ·Î¿Í °¢°¢ Á¢ÇÔ.
8)ÅäÁöÀÌ¿ë°èȹ ¹× Á¦ÇÑ»óÅÂ
Á߽ɻó¾÷Áö¿ª, Áö±¸´ÜÀ§°èȹ±¸¿ª(µ¿Åº(1)Áö±¸), ´ë·Î1·ù(Æø 35m-40m)(Á¢ÇÕ), Áß·Î1·ù(Æø 20m-25m)(Á¢ÇÕ) °¡Ãà»çÀ°Á¦Çѱ¸¿ª(ÀüºÎÁ¦ÇÑ)<°¡ÃàºÐ´¢ÀÇ °ü¸® ¹× À̿뿡 °üÇÑ ¹ý·ü>, ¼ºÀå°ü¸®±Ç¿ª<¼öµµ±ÇÁ¤ºñ°èȹ¹ý>ÀÓ.
9)°øºÎ¿ÍÀÇ Â÷ÀÌ
¾øÀ½.
10)±âŸÂü°í»çÇ×(ÀÓ´ë°ü·Ê ¹× ±âŸ)
ÀÓ´ë°ü°è ¹Ì»óÀÌ¸ç ³»ºÎ Á¢±ÙÀÌ Á¦ÇѵŠÀÖ¾î Ç¥ÁØÀû ÀÌ¿ë»óȲÀ» ±âÁØÀ¸·Î ÇÏ¿´À½.
Âü°í
»çÇ×
ÀÓÂ÷ÀÎÀÇ ÀÓÂ÷º¸Áõ±Ý Àü¾×ÀÌ ¹è´çµÇÁö ¾Æ´ÏÇϸé Àܾ×À» ¸Å¼öÀÎÀÌ ÀμöÇÔ
ÇØ´ç ºÎµ¿»êÀÇ ÇöȲÀº ¿Ü°ü»ó °øºÎÀÇ ³»¿ë°ú ÀÏÄ¡ÇÏ´Â °ÍÀ¸·Î º¸ÀÓ.

°ÇÃ๰ÇöȲ

¼ÒÀçÁö °æ±âµµ È­¼º½Ã ¹Ý¼Ûµ¿ 92-3¹øÁö
´ëÁö¸éÀû 2053.1§³
(622.15Æò)
¿¬¸éÀû 27962.143§³
(8473.38Æò)
°ÇÃà¸éÀû 1638.38§³
(496.48Æò)
¿ëÀû·ü»êÁ¤
¿¬¸éÀû
16299.798§³
(4939.33Æò)
°ÇÆóÀ² 79.8% ¿ëÀû·ü 793.91%
Áö»óÃþ¼ö 24Ãþ ÁöÇÏÃþ¼ö 1Ãþ
ÁÖ¿ëµµ ¾÷¹«½Ã¼³ ±¸Á¶ ö±ÙÄÜÅ©¸®Æ®±¸Á¶
Âø°øÀÏÀÚ 2009.09.16 »ç¿ë½ÂÀÎÀÏÀÚ 2011.09.30
°ÇÃ๰Ãþº°ÇöȲ [º¸±â]


±¹ÅäºÎ½Ç°Å·¡°¡ °æ±âµµ È­¼º½Ã ¹Ý¼Ûµ¿

¡Ü ¸Å¸Å

¸éÀû(§³), ±Ý¾×(¸¸¿ø)

¡Ü Àü¼¼

¸éÀû(§³), ±Ý¾×(¸¸¿ø)

°è¾àÀϰǹ°¸íĪÃþÀü¿ë±Ý¾×°ÇÃà
24.01.02¼¾Æ®·²½ÃƼ ¿ÀÇǽºÅÚ2138.3219,7002011

µî±âºÎµîº» ¿ä¾à(°Ç¹°)

  Á¢¼öÀÏÀÚ µî±â¸ñÀû/±Ç¸®ÀÚ ±Ç¸®±Ý¾× ±âÁØ
1 2021³â3¿ù31ÀÏ
¼ÒÀ¯±Ç
(OOOO
¼Ò¸ê
2 2022³â10¿ù27ÀÏ
¾Ð·ù
È­OO
¼Ò¸ê±âÁØ
3 2023³â7¿ù7ÀÏ
¾Ð·ù
±¹
¼Ò¸ê
4 2024³â11¿ù6ÀÏ
°­Á¦°æ¸Å
ÀÌOO
¼Ò¸ê

ÀÓÂ÷ÀÎÇöȲ (¹è´ç¿ä±¸Á¾±âÀÏ: 2025-01-20)



¸Å°¢±âÀÏ 7ÀÏÀü¿¡ ¸Å°¢¹°°Ç¸í¼¼¼­°¡ °ø°íµÇ¿À´Ï È®ÀÎÇϽñ⠹ٶø´Ï´Ù.

ÀÓÂ÷ÀÎ ¿ëµµ/Á¡À¯ º¸Áõ±Ý/¿ù¼¼ ´ëÇ×·Â
ÀüÀÔÀÏ/È®Á¤ÀÏ ¹è´ç¿ä±¸ ºñ°í
ÀÌOO 1201È£ÀüºÎ 280,000,000
O
2021.03.15.
2021.02.09.
2024.11.25. 2021.03.15.~2022.03.14.
ºñ°í
(¸Å°¢¹°°Ç
¸í¼¼¼­)
ÀÌÁ¤È­:½Åûä±ÇÀÚÀÓ

¿©ÀÇÁÖ°æ¸Å Á¶¾ð ÇÑ ¸¶µð


ÁÖÀÇ»çÇ× (ÃÖ¼±¼øÀ§ ¼³Á¤ÀÏ: 2022. 10. 27. ¾Ð·ù ¼³Á¤)

¸Å°¢À¸·Î ¼Ò¸êµÇÁö ¾Ê´Â µî±âºÎ±Ç¸®: ÇØ´ç»çÇ×¾øÀ½
¸Å°¢À¸·Î ¼³Á¤µÈ °ÍÀ¸·Î º¸´Â Áö»ó±Ç: ÇØ´ç»çÇ×¾øÀ½
2025.08.01 ÀÓÂ÷ÀÎ ÀÌOO °æ¸Å¼ÓÇà½Åû¼­ Á¦Ãâ
ÀÓÂ÷ÀÎÀÇ ÀÓÂ÷º¸Áõ±Ý Àü¾×ÀÌ ¹è´çµÇÁö ¾Æ´ÏÇϸé Àܾ×À» ¸Å¼öÀÎÀÌ ÀμöÇÔ
¡Ø¹Ì³³°ü¸®ºñ(°ø¿ë) Àμö¿©ºÎ¸¦ ÀÔÂû Àü¿¡ È®ÀÎÇϽñ⠹ٶø´Ï´Ù

 

Áö¿ªºÐ¼®

ÁöÇÏö¸í Á÷¼±°Å¸®

Çб³¸í ÀüÈ­¹øÈ£ ÁÖ¼Ò Á÷¼±°Å¸®

¹ý¿ø

¼ö¿øÁö¹æ¹ý¿ø (165-12)°æ±âµµ ¼ö¿ø½Ã ¿µÅ뱸 ¹ýÁ¶·Î 105, Çϵ¿, ¼ö¿ø¹ý¿øÁ¾ÇÕû»ç
´ëÇ¥ : 031)210-1114, ¾ß°£ : 031)210-1111
°üÇÒÁö¿ª : ¼ö¿ø½Ã, ¿À»ê½Ã, È­¼º½Ã, ¿ëÀνÃ

µî±â¼Ò ¼ö¿øÁö¹æ¹ý¿ø º»¿ø È­¼ºµî±â¼Ò (´ëÇ¥:1544-0773, ÆÑ½º:(031)375-3964, °æ±âµµ ¿À»ê½Ã ¹ý¿ø·Î 65 (±Èµ¿ 662))
¼¼¹«¼­ µ¿¼ö¿ø¼¼¹«¼­ (´ëÇ¥:031-695-42, ÆÑ½º:031-273-2416, °æ±âµµ ¼ö¿ø½Ã ¿µÅ뱸 û¸í³²·Î 13 (¿µÅ뵿))

Àαٳ«ÂûÅë°è

±â°£ ¸Å°¢°Ç¼ö Æò±Õ°¨Á¤°¡
Æò±Õ¸Å°¢°¡
¸Å°¢°¡À²
Æò±ÕÀ¯Âû¼ö
3°³¿ù 18°Ç 407,710,111¿ø
260,828,556¿ø
64%
1.8ȸ
6°³¿ù 29°Ç 311,244,207¿ø
196,654,586¿ø
64%
1.7ȸ
12°³¿ù 33°Ç 431,775,336¿ø
325,395,088¿ø
64%
1.7ȸ


º» °æ¸ÅÁ¤º¸´Â ¹ý¿øÀÚ·á¿Í ÀÏÄ¡Çϵµ·Ï ÇÏ¿´À¸³ª ±Ç¸®»çÇ׺¯µ¿, ÀÔ·ÂÂø¿À µîÀÇ ¿øÀÎÀ¸·Î »ç½Ç°ú ´Ù¸¦ ¼ö ÀÖ½À´Ï´Ù. ÀÌ¿ë¾à°ü¿¡ ÀǰЏéÃ¥Á¶°ÇÀ¸·Î Á¦°øµÊÀ» ¾Ë¸®¸ç, °æ¸ÅÀÔÂû½Ã ¹Ýµå½Ã °ü·Ã °øºÎ¸¦ ÀçÈ®ÀÎÇϽñ⠹ٶø´Ï´Ù. º¸´Ù Æí¸®ÇÑ °æ¸ÅÁ¤º¸ Á¦°øÀ» À§ÇØ Áö¼ÓÀûÀ¸·Î °³¼±ÇϰڽÀ´Ï´Ù. ÀÌ¿ëÇØ Áּż­ °¨»çÇÕ´Ï´Ù.