·Î±×ÀÎ
25
¾ÆÆÄÆ®
¼ö¿øÁö¹æ¹ý¿ø
 °¨Á¤°¡320,000,000 ¿ø
 ÃÖÀú°¡(70%) 224,000,000 ¿ø
 º¸Áõ±Ý(10%) 22,400,000 ¿ø
 Ã»±¸¾×88,490,003 ¿ø
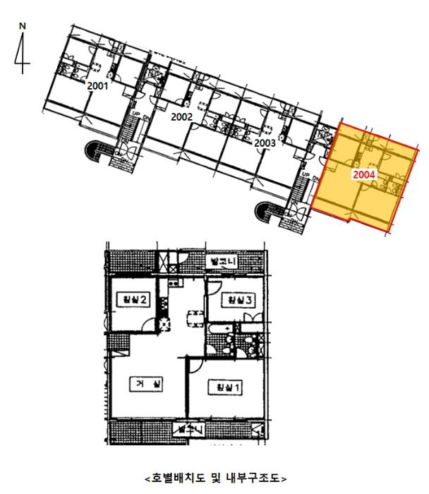
°æ±âµµ ¿À»ê½Ã ¿î¾Ï·Î 122, 116µ¿ 20Ãþ2004È£ (ºÎ»êµ¿,¿À»ê¿î¾Ï1´ÜÁöÁÖ°ø¾ÆÆÄÆ®)
°æ±âµµ ¿À»ê½Ã ºÎ»êµ¿ 778-1
»ç°Ç¹øÈ£ 2024Ÿ°æ92137
°æ¸ÅÁ¾·ùºÎµ¿»êÀÓÀǰæ¸Å
¸Å°¢´ë»óÅäÁö ¹× °Ç¹°Àϰý ¸Å°¢
¸Å°¢±âÀÏ    2025.12.16(È­) 10:00 ÀÔÂû 23ÀÏÀü    
ÅäÁö¸éÀû48.46§³(14.66 Æò)
°Ç¹°¸éÀû84.79§³(25.65 Æò)
乫/¼ÒÀ¯ÀÚ¿ÀOO / ¿ÀOO
ä±ÇÀÚÁÖOOO OOOO
ÆäÀ̽ººÏ Æ®À§ÅÍ ±¸±Û+
īī¿À½ºÅ丮
īī¿ÀÅå sms¹®ÀÚº¸³»±â
 

±âÀϳ»¿ª

°æ°ú ³¯Â¥ Àú°¨ ÃÖÀú°¡ °á°ú
Á¢¼öÀÏ 2024-10-07 °æ¸ÅÁ¢¼ö
~16ÀÏ 
2024-10-23 °æ¸Å°³½Ã°áÁ¤
~105ÀÏ 
2025-01-20 ¹è´ç¿ä±¸Á¾±âÀÏ
~403ÀÏ 
2025-11-14 100%
320,000,000
À¯Âû
~435ÀÏ 
2025-12-16 70%
224,000,000
ÁøÇà
¹°°Ç¸í¼¼¼­ ÇöȲÁ¶»ç¼­ ¹®°ÇÁ¢¼ö ¼Û´Þ³»¿ª

°¨Á¤Æò°¡ÇöȲ

¸ñ·Ï ÁÖ¼Ò ±¸Á¶/¿ëµµ/´ëÁö±Ç ¸éÀû ºñ°í
´ëÁö±Ç
ºÎ»êµ¿ 778-1 65214.1ºÐÀÇ 48.46 48.46 §³
(14.66Æò)
°Ç¹°
ºÎ»êµ¿ 778-1 116µ¿ 20Ãþ2004È£ ö±ÙÄÜÅ©¸®Æ®Á¶ 84.79 §³
(25.65Æò)
1) À§Ä¡/µµ½ÃÁö¿ª/Á¦3Á¾ÀϹÝÁÖ°ÅÁö¿ª/Áö±¸´ÜÀ§°èȹ±¸¿ª/¹ö½ºÁ¤·ùÀå/ÁöÇÏÁÖÂ÷Àå/°£¼±µµ·Î/ö±ÙÄÜÅ©¸®Æ®Á¶/°æ»çÁöºØ/ö°ñÁ¶ ´õº¸±â
°¨Á¤Æò°¡ ¿äÇ×Ç¥
1)À§Ä¡ ¹× ÁÖÀ§È¯°æ
º»°ÇÀº °æ±âµµ ¿À»ê½Ã ºÎ»êµ¿ ¼ÒÀç "¿îõ°íµîÇб³" ºÏÃø Àαٿ¡ ¼ÒÀçÇϰí ÀÖÀ¸¸ç, ÁÖÀ§´Â ¾ÆÆÄÆ®´ÜÁö, ±Ù¸°»ýȰ½Ã¼³, ´Üµ¶ÁÖÅÃ, ´Ù¼¼´ëÁÖÅÃ, °ø°ø½Ã¼³, ±³À°½Ã¼³ µîÀÌ È¥ÀçÇϰí ÀÖÀ½.
2)±³Åë»óȲ
º»°Ç±îÁö Â÷·®Á¢±Ù °¡´ÉÇϸç, Àαٿ¡ ¹ö½ºÁ¤·ùÀåÀÌ ¼ÒÀçÇϰí ÀÖÀ½.
3)°Ç¹°ÀÇ ±¸Á¶
ö±ÙÄÜÅ©¸®Æ®Á¶ ö°ñÁ¶°æ»çÁöºØ 20Ãþ °ÇÁß Á¦20Ãþ 2004È£·Î¼­ (»ç¿ë½ÂÀÎÀÏ: 2000.03.22),

¿Üº®: ¸ôÅ»À§ ÆäÀÎÆÃ ¸¶°¨µî.
³»º®: º®Áöµµ¹è ¹× ÀÎÅ׸®¾î ¸¶°¨µî.
âȣ: ¼¦½Ãâȣµî.
4)ÀÌ¿ë»óÅÂ
¾ÆÆÄÆ®·Î ÀÌ¿ëÁßÀÓ.(ÈÄ÷ "³»ºÎ±¸Á¶µµ" ÂüÁ¶)
5)¼³ºñ³»¿ª
±Þ¹è¼ö¼³ºñ, À§»ý¼³ºñ, ³­¹æ¼³ºñ, ½Â°­±â¼³ºñ, ÁöÇÏÁÖÂ÷Àå¼³ºñµîÀÌ ±¸ºñµÇ¾î ÀÖÀ½.
6)ÅäÁöÀÇ Çü»ó ¹× ÀÌ¿ë»óÅÂ
ºÎÁ¤Çü, ÆòÁöÀÇ ÅäÁö·Î¼­ ¾ÆÆÄÆ®´ÜÁöÀÇ °ÇºÎÁöÀÓ.
7)ÀÎÁ¢ µµ·Î»óŵî
´ÜÁö³» µµ·Î¸¦ ÅëÇÏ¿© ¿Ü°û°øµµ¿¡ Á¢ÇÔ.
8)ÅäÁöÀÌ¿ë°èȹ ¹× Á¦ÇÑ»óÅÂ
µµ½ÃÁö¿ª , Á¦3Á¾ÀϹÝÁÖ°ÅÁö¿ª , Áö±¸´ÜÀ§°èȹ±¸¿ª(2014-09-02)(¿î¾Ï±¸¿ª) , Áß·Î1·ù(Æø 20m-25m)(º¸Á¶°£¼±µµ·Î)(Á¢ÇÕ),°¡Ãà»çÀ°Á¦Çѱ¸¿ª(ÀüºÎÁ¦ÇÑ)<°¡ÃàºÐ´¢ÀÇ °ü¸® ¹× À̿뿡 °üÇÑ ¹ý·ü>, »ó´ëº¸È£±¸¿ª(2013-04-22)(¿¹ÀÎÀ¯Ä¡¿ø(È­¼º¿À»ê±³À°Áö¿øÃ» ¹®ÀÇ))<±³À°È¯°æ º¸È£¿¡ °üÇÑ ¹ý·ü>, »ó´ëº¸È£±¸¿ª(2013-04-22)(¿îõ°í(È­¼º¿À»ê±³À°Áö¿øÃ» ¹®ÀÇ))<±³À°È¯°æ º¸È£¿¡ °üÇÑ ¹ý·ü>, »ó´ëº¸È£±¸¿ª(2015-07-29)(¿îõÁß(È­¼º¿À»ê±³À°Áö¿øÃ» ¹®ÀÇ))<±³À°È¯°æ º¸È£¿¡ °üÇÑ ¹ý·ü>, »ó´ëº¸È£±¸¿ª(¿îõÃÊ(È­¼º¿À»ê±³À°Áö¿øÃ» ¹®ÀÇ))<±³À°È¯°æ º¸È£¿¡ °üÇÑ ¹ý·ü>, Àý´ëº¸È£±¸¿ª(2015-07-29)(¿îõÁß(È­¼º¿À»ê±³À°Áö¿øÃ» ¹®ÀÇ))<±³À°È¯°æ º¸È£¿¡ °üÇÑ ¹ý·ü>, Àý´ëº¸È£±¸¿ª(¿îõÃÊ(È­¼º¿À»ê±³À°Áö¿øÃ» ¹®ÀÇ))<±³À°È¯°æ º¸È£¿¡ °üÇÑ ¹ý·ü>, ºñÇà¾ÈÀüÁ¦3±¸¿ª(Àü¼ú)<±º»ç±âÁö ¹× ±º»ç½Ã¼³ º¸È£¹ý>, ¼ºÀå°ü¸®±Ç¿ª<¼öµµ±ÇÁ¤ºñ°èȹ¹ý>
9)°øºÎ¿ÍÀÇ Â÷ÀÌ
¾ø À½.
10)±âŸÂü°í»çÇ×(ÀÓ´ë°ü·Ê ¹× ±âŸ)
ÀÓ´ë¹Ì»óÀÓ.

º»°Ç ³»ºÎ±¸Á¶´Â ÇöÀåÁ¶»ç½Ã Æó¹® ¹× ÀÌÇØ°ü°èÀÎÀÇ ºÎÀçµîÀ¸·Î ÀÎÇÏ¿© °ÇÃ๰ ÇöȲµµ¸é ¹× ޹®Á¶»çµîÀ» ÅëÇÏ¿© Ç¥ÁØÀû ÀÌ¿ë»óȲÀ» ±âÁØÇÏ¿´°í, ½ÇÁ¦¿Í ´Ù¼Ò »óÀÌÇÒ ¼ö ÀÖ´Â ¹Ù °æ¸ÅÁøÇà½Ã ÂüÁ¶ÇϽñ⠹ٶ÷.
Âü°í
»çÇ×
´ëÇ×·ÂÀÖ´Â ÀÓÂ÷ÀÎ ÀÖÀ½. ÀÓÂ÷º¸Áõ±ÝÀÌ Àü¾× ¹è´çµÇÁö ¾ÊÀ¸¸é Àܾ×À» ¸Å¼öÀÎÀÌ ÀμöÇÔ.
º»°Ç ºÎµ¿»êÀÇ ÇöȲÀº ¿Ü°ü»ó °øºÎÀÇ ³»¿ë°ú ÀÏÄ¡ÇÏ´Â °ÍÀ¸·Î º¸ÀÓ.

°ÇÃ๰ÇöȲ

¼ÒÀçÁö °æ±âµµ ¿À»ê½Ã ºÎ»êµ¿ 778-1¹øÁö
´ëÁö¸éÀû   ¿¬¸éÀû 8107.724§³
(2456.89Æò)
°ÇÃà¸éÀû 542.52§³
(164.4Æò)
¿ëÀû·ü»êÁ¤
¿¬¸éÀû
8107.724§³
(2456.89Æò)
°ÇÆóÀ²   ¿ëÀû·ü  
Áö»óÃþ¼ö 20Ãþ ÁöÇÏÃþ¼ö 1Ãþ
ÁÖ¿ëµµ °øµ¿ÁÖÅà ±¸Á¶ ö±ÙÄÜÅ©¸®Æ®±¸Á¶
Âø°øÀÏÀÚ 1997.07.25 »ç¿ë½ÂÀÎÀÏÀÚ 2000.03.22


±¹ÅäºÎ½Ç°Å·¡°¡ °æ±âµµ ¿À»ê½Ã ºÎ»êµ¿

¡Ü ¸Å¸Å

¸éÀû(§³), ±Ý¾×(¸¸¿ø)

¡Ü Àü¼¼

¸éÀû(§³), ±Ý¾×(¸¸¿ø)

°è¾àÀÏARTÃþÀü¿ë±Ý¾×°ÇÃà
24.03.29ÁÖ°ø1259.9920,4002000
24.03.25ÁÖ°ø1259.9920,5002000
24.03.23ÁÖ°ø11859.9923,3002000
24.03.20ÁÖ°ø1759.9925,0002000
24.03.19ÁÖ°ø1159.9921,0002000
¢Ñ ´õº¸±â

µî±âºÎµîº» ¿ä¾à(°Ç¹°)

  Á¢¼öÀÏÀÚ µî±â¸ñÀû/±Ç¸®ÀÚ ±Ç¸®±Ý¾× ±âÁØ
1 2021³â8¿ù26ÀÏ
¼ÒÀ¯±Ç
¿ÀOO
¼Ò¸ê
2 2022³â1¿ù19ÀÏ
±ÙÀú´ç±Ç
(OOOO
84,500,000 ¼Ò¸ê±âÁØ
3 2023³â6¿ù21ÀÏ
ÀÓÂ÷±Ç¼³Á¤
ÀÌOO
300,000,000 ¼Ò¸ê
4 2024³â10¿ù23ÀÏ
ÀÓÀǰæ¸Å
(OOOO
¼Ò¸ê

ÀÓÂ÷ÀÎÇöȲ (¹è´ç¿ä±¸Á¾±âÀÏ: 2025-01-20)

ÀÓÂ÷ÀÎ ¿ëµµ/Á¡À¯ º¸Áõ±Ý/¿ù¼¼ ´ëÇ×·Â
ÀüÀÔÀÏ/È®Á¤ÀÏ ¹è´ç¿ä±¸ ºñ°í
ÀÌOO ÀüÀ¯ºÎºÐÀüºÎ 300,000,000
O
2021.08.26.
2021.08.26.
2021.08.26.
ÁÖOOOOOOOOOOOOOOOO 2004È£ 300,000,000
O
2021.8.26.
2021.8.26.
2024.12.6. 2021.8.26.~2023.8.25.
ºñ°í
(¸Å°¢¹°°Ç
¸í¼¼¼­)
ÁÖÅõµ½Ãº¸Áõ°ø»ç(¾çµµÀÎ:À̼öÁ¤):ÀÓÂ÷ÀÎ À̼öÁ¤ÀÇ ÀÓ´ëÂ÷º¸Áõ±Ýä±ÇÀ» ¾ç¼öÇÔ.

¿©ÀÇÁÖ°æ¸Å Á¶¾ð ÇÑ ¸¶µð

¼±¼øÀ§ ÀÓÂ÷±Çµî±â°¡ µÇ¾î ÀÖ½À´Ï´Ù
´ëÇ×·ÂÀÌ ÀÖ´Â ¼±¼øÀ§ ÀÓÂ÷±Çµî±â ±Ç¸®ÀÚ°¡ ¹è´çÀ» Àü¾× ¹ÞÁö ¸øÇÒ °æ¿ì ³«ÂûÀÚ°¡ ÀÜ¿© º¸Áõ±ÝÀ» ÀμöÇØ¾ßÇÏ´Â °æ¿ìµµ ÀÖ½À´Ï´Ù.
ÃëÇÏ ¶Ç´Â Ãë¼ÒµÉ °¡´É¼º ÀÖ½À´Ï´Ù
ÀÌ ¹°°ÇÀÇ °¨Á¤°¡°ÝÀº 320,000,000¿øÀÔ´Ï´Ù. °æ¸Å¸¦ ½ÅûÇÑ Ã¤±ÇÀÚ°¡ ¹è´ç ¹Þ¾Æ¾ß ÇÒ ±Ý¾×Àº 88,490,003¿øÀ¸·Î °¨Á¤°¡°Ý ´ëºñ »ó´çÈ÷ ÀûÀº ±Ý¾×ÀÔ´Ï´Ù. ÀÌ·± °æ¿ì, 乫°¡°¡ º¯Á¦ÇÏ¿© °æ¸Å¸¦ ÃëÇϽÃŰ°Å³ª °æ¸Å½Åûä±ÇÀÚ°¡ ¹è´ç¹ÞÀº ±Ý¿øÀÌ ¾ø°ÔµÇ¾î À̸¥ ¹Ù "¹«À׿©¿¡ ÀÇÇÑ Ãë¼Ò"°¡ µÉ °¡´É¼ºÀÌ ÀÖ½À´Ï´Ù.

ÁÖÀÇ»çÇ× (ÃÖ¼±¼øÀ§ ¼³Á¤ÀÏ: 2022. 1. 19. ±ÙÀú´ç±Ç ¼³Á¤)

¸Å°¢À¸·Î ¼Ò¸êµÇÁö ¾Ê´Â µî±âºÎ±Ç¸®: Àü¾× ¹è´çµÇÁö ¾Æ´ÏÇÏ¸é ¸»¼ÒµÇÁö ¾Ê´Â À»±¸ 10¹ø ÁÖÅÃÀÓÂ÷±Çµî±â(2023. 6. 21.Á¢¼ö) ÀÖÀ½.
¸Å°¢À¸·Î ¼³Á¤µÈ °ÍÀ¸·Î º¸´Â Áö»ó±Ç: ÇØ´ç»çÇ×¾øÀ½
´ëÇ×·ÂÀÖ´Â ÀÓÂ÷ÀÎ ÀÖÀ½. ÀÓÂ÷º¸Áõ±ÝÀÌ Àü¾× ¹è´çµÇÁö ¾ÊÀ¸¸é Àܾ×À» ¸Å¼öÀÎÀÌ ÀμöÇÔ.
¡Ø¹Ì³³°ü¸®ºñ(°ø¿ë) Àμö¿©ºÎ¸¦ ÀÔÂû Àü¿¡ È®ÀÎÇϽñ⠹ٶø´Ï´Ù

 

Áö¿ªºÐ¼®

ÁöÇÏö¸í Á÷¼±°Å¸®

Çб³¸í ÀüÈ­¹øÈ£ ÁÖ¼Ò Á÷¼±°Å¸®

¹ý¿ø

¼ö¿øÁö¹æ¹ý¿ø (165-12)°æ±âµµ ¼ö¿ø½Ã ¿µÅ뱸 ¹ýÁ¶·Î 105, Çϵ¿, ¼ö¿ø¹ý¿øÁ¾ÇÕû»ç
´ëÇ¥ : 031)210-1114, ¾ß°£ : 031)210-1111
°üÇÒÁö¿ª : ¼ö¿ø½Ã, ¿À»ê½Ã, È­¼º½Ã, ¿ëÀνÃ

µî±â¼Ò ¼ö¿øÁö¹æ¹ý¿ø º»¿ø È­¼ºµî±â¼Ò (´ëÇ¥:1544-0773, ÆÑ½º:(031)375-3964, °æ±âµµ ¿À»ê½Ã ¹ý¿ø·Î 65 (±Èµ¿ 662))
¼¼¹«¼­ µ¿¼ö¿ø¼¼¹«¼­ (´ëÇ¥:031-695-42, ÆÑ½º:031-273-2416, °æ±âµµ ¼ö¿ø½Ã ¿µÅ뱸 û¸í³²·Î 13 (¿µÅ뵿))

Àαٳ«ÂûÅë°è

±â°£ ¸Å°¢°Ç¼ö Æò±Õ°¨Á¤°¡
Æò±Õ¸Å°¢°¡
¸Å°¢°¡À²
Æò±ÕÀ¯Âû¼ö
3°³¿ù 23°Ç 359,782,609¿ø
304,782,024¿ø
83%
1ȸ
6°³¿ù 50°Ç 358,240,000¿ø
308,492,492¿ø
86%
1.1ȸ
12°³¿ù 75°Ç 353,440,000¿ø
306,211,590¿ø
85%
1.2ȸ


º» °æ¸ÅÁ¤º¸´Â ¹ý¿øÀÚ·á¿Í ÀÏÄ¡Çϵµ·Ï ÇÏ¿´À¸³ª ±Ç¸®»çÇ׺¯µ¿, ÀÔ·ÂÂø¿À µîÀÇ ¿øÀÎÀ¸·Î »ç½Ç°ú ´Ù¸¦ ¼ö ÀÖ½À´Ï´Ù. ÀÌ¿ë¾à°ü¿¡ ÀǰЏéÃ¥Á¶°ÇÀ¸·Î Á¦°øµÊÀ» ¾Ë¸®¸ç, °æ¸ÅÀÔÂû½Ã ¹Ýµå½Ã °ü·Ã °øºÎ¸¦ ÀçÈ®ÀÎÇϽñ⠹ٶø´Ï´Ù. º¸´Ù Æí¸®ÇÑ °æ¸ÅÁ¤º¸ Á¦°øÀ» À§ÇØ Áö¼ÓÀûÀ¸·Î °³¼±ÇϰڽÀ´Ï´Ù. ÀÌ¿ëÇØ Áּż­ °¨»çÇÕ´Ï´Ù.