·Î±×ÀÎ
16
±Ù¸°»ó°¡
¼­¿ïÁß¾ÓÁö¹æ¹ý¿ø
 °¨Á¤°¡1,582,000,000 ¿ø
 ÃÖÀú°¡(100%) 1,582,000,000 ¿ø
 º¸Áõ±Ý(10%) 158,200,000 ¿ø
 Ã»±¸¾×839,735,314 ¿ø
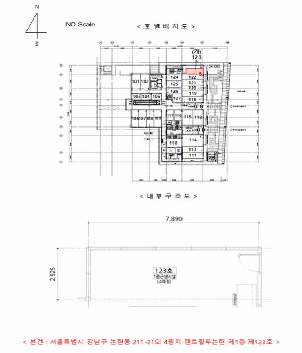
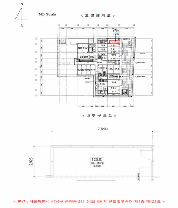
¼­¿ïƯº°½Ã °­³²±¸ ³íÇöµ¿ 211-21 ÆæÆ®Èú·ç³íÇö 1Ãþ123È£
»ç°Ç¹øÈ£ 2025Ÿ°æ102345
°æ¸ÅÁ¾·ùºÎµ¿»êÀÓÀǰæ¸Å
¸Å°¢´ë»óÅäÁö ¹× °Ç¹°Àϰý ¸Å°¢
¸Å°¢±âÀÏ    2025.11.13(¸ñ) 10:00 ÀÔÂû 8ÀÏÀü    
ÅäÁö¸éÀû5.98§³(1.81 Æò)
°Ç¹°¸éÀû23.08§³(6.98 Æò)
乫/¼ÒÀ¯ÀÚÆÄOO OOOO OOOOO OOO / ÆÄOO OOOO OOOOO OOO
ä±ÇÀÚÀ¯OOOOOOOOOO OOOO
ÆäÀ̽ººÏ Æ®À§ÅÍ ±¸±Û+
īī¿À½ºÅ丮
īī¿ÀÅå sms¹®ÀÚº¸³»±â
 

±âÀϳ»¿ª

°æ°ú ³¯Â¥ Àú°¨ ÃÖÀú°¡ °á°ú
Á¢¼öÀÏ 2025-03-11 °æ¸ÅÁ¢¼ö
~1ÀÏ 
2025-03-12 °æ¸Å°³½Ã°áÁ¤
~83ÀÏ 
2025-06-02 ¹è´ç¿ä±¸Á¾±âÀÏ
~247ÀÏ 
2025-11-13 100%
1,582,000,000
ÁøÇà
¹°°Ç¸í¼¼¼­ ÇöȲÁ¶»ç¼­ ¹®°ÇÁ¢¼ö ¼Û´Þ³»¿ª

°¨Á¤Æò°¡ÇöȲ

¸ñ·Ï ÁÖ¼Ò ±¸Á¶/¿ëµµ/´ëÁö±Ç ¸éÀû ºñ°í
´ëÁö±Ç
³íÇöµ¿ 211-21 2702.5ºÐÀÇ 5.984 5.984 §³
(1.81Æò)
°Ç¹°
³íÇöµ¿ 211-21 1Ãþ123È£ ö±ÙÄÜÅ©¸®Æ®±¸Á¶ 23.078 §³
(6.98Æò)
1) À§Ä¡/µµ½ÃÁö¿ª/Á¦3Á¾ÀϹÝÁÖ°ÅÁö¿ª/ÀϹݻó¾÷Áö¿ª/ÅäÁö°Å·¡°è¾à¿¡°üÇÑÇã°¡±¸¿ª/¹ö½ºÁ¤·ùÀå/ÁöÇÏö/ö±ÙÄÜÅ©¸®Æ®±¸Á¶ ´õº¸±â
°¨Á¤Æò°¡ ¿äÇ×Ç¥
1)À§Ä¡ ¹× ÁÖÀ§È¯°æ
´ë»ó¹°°ÇÀº ¼­¿ïƯº°½Ã °­³²±¸ ³íÇöµ¿ ¼ÒÀç ""Çе¿¿ª"" ³²µ¿Ãø Àαٿ¡ ¼ÒÀçÇϸç, ÁÖÀ§´Â µµ½ÃÇü»ýȰÁÖÅÃ, ¿ÀÇǽºÅÚ, ±Ù¸°»ýȰ½Ã¼³ µîÀÌ ¼ÒÀçÇÏ´Â ÁÖ»óÁö´ë·Î¼­ Á¦¹Ý ¿©°ÇÀº º¸Åë½ÃµÊ.


2)±³Åë»óȲ
´ë»ó¹°°Ç±îÁö Â÷·®ÃâÀÔÀÌ ¿ëÀÌÇϸç ÁöÇÏö 7È£¼± ""Çе¿¿ª"" ¹× Àαٿ¡ ³ë¼± ¹ö½ºÁ¤·ùÀåÀÌ ¼ÒÀçÇÏ´Â ¹Ù, Á¦¹Ý ±³Åë¿©°ÇÀº º¸ÅëÀÓ.


3)ÇüÅ ¹× ÀÌ¿ë»óÅÂ
-
4)ÀÎÁ¢ µµ·Î»óÅÂ
-
5)ÅäÁöÀÌ¿ë°èȹ ¹× Á¦ÇÑ»óÅÂ
""³íÇöµ¿ 211-21, 211-17, 211-22 : µµ½ÃÁö¿ª, ÀϹݻó¾÷Áö¿ª, Á¦3Á¾ÀϹÝÁÖ°ÅÁö¿ª, µµ·Î(Á¢ÇÕ) °¡·Î±¸¿ªº° ÃÖ°í³ôÀÌ Á¦ÇÑÁö¿ª<°ÇÃà¹ý>, ´ë°ø¹æ¾îÇùÁ¶±¸¿ª(À§Å¹°íµµ:77-257m)<±º»ç±âÁö ¹× ±º»ç½Ã¼³ º¸È£¹ý>, °ú¹Ð¾ïÁ¦±Ç¿ª<¼öµµ±ÇÁ¤ºñ°èȹ¹ý> °ÇÃ༱ÁöÁ¤(µµ·Î°æ°è¼±¿¡¼­3¹ÌÅÍÈÄÅð),°¡·Î±¸¿ªº° °ÇÃ๰ ÃÖ°í³ôÀÌ ÁöÁ¤ ±¸¿ªÀÓ ÅäÁö°Å·¡°è¾à¿¡°üÇÑÇã°¡±¸¿ª(2025-03-24)(°ÇÃ๰ÀÇ ¿ëµµ(¾ÆÆÄÆ®)·Î »ç¿ëµÇ´Â ºÎÁö), °ÇÃ༱

³íÇöµ¿ 211-2, 211-3 : µµ½ÃÁö¿ª, Á¦3Á¾ÀϹÝÁÖ°ÅÁö¿ª °¡·Î±¸¿ªº° ÃÖ°í³ôÀÌ Á¦ÇÑÁö¿ª<°ÇÃà¹ý>, ´ë°ø¹æ¾îÇùÁ¶±¸¿ª(À§Å¹°íµµ:77-257m)<±º»ç±âÁö ¹× ±º»ç½Ã¼³ º¸È£¹ý>, °ú¹Ð¾ïÁ¦±Ç¿ª<¼öµµ±ÇÁ¤ºñ°èȹ¹ý> °¡·Î±¸¿ªº° °ÇÃ๰ ÃÖ°í³ôÀÌ ÁöÁ¤ ±¸¿ªÀÓ ÅäÁö°Å·¡°è¾à¿¡°üÇÑÇã°¡±¸¿ª(2025-03-24)(°ÇÃ๰ÀÇ ¿ëµµ(¾ÆÆÄÆ®)·Î »ç¿ëµÇ´Â ºÎÁö)""








6)Á¦½Ã¸ñ·Ï ¿ÜÀÇ ¹°°Ç
-
7)°øºÎ¿ÍÀÇ Â÷ÀÌ
-
8)±âŸÂü°í»çÇ×(ÀÓ´ë°ü·Ê ¹× ±âŸ)
-
1)°Ç¹°ÀÇ ±¸Á¶
ö±ÙÄÜÅ©¸®Æ®±¸Á¶ (ö±Ù)ÄÜÅ©¸®Æ®ÁöºØ ÁöÇÏ5Ãþ/Áö»ó17Ãþ ³» Á¦1Ãþ Á¦123È£·Î¼­,
¿Üº®: ¼®ÀçºÙÀÓ ¹× ĿưÀª ¸¶°¨ µî,
³»º®: º®Áöµµ¹è ¹× ŸÀϺÙÀÓ ¸¶°¨ µî,

2)ÀÌ¿ë»óÅÂ
Á¦1Á¾±Ù¸°»ýȰ½Ã¼³(¼Ò¸ÅÁ¡)·Î ÀÌ¿ëÁßÀÓ.

3)¼³ºñ³»¿ª
±âº»ÀûÀÎ À§»ý¡¤±Þ¹è¼ö ¼³ºñ ¹× ½Â°­±â µîÀÇ ¼³ºñ°¡ µÇ¾îÀÖÀ½.

4)ºÎÇÕ¹° ¹× Á¾¹°
-
5)°øºÎ¿ÍÀÇ Â÷ÀÌ
´ë»ó¹°°ÇÀÇ °æ¿ì À§Ä¡¿Í ¸éÀûÀÌ µµ¸é ¹× ÇöÀåÁ¶»ç µî¿¡ ÀÇÇØ °¢ È£¼öº°·Î ƯÁ¤ÀÌ °¡´ÉÇÏ¸ç µµ¸é
¹× ÇöȲ¿¡ µû¶ó ÃâÀÔ±¸(Åë·Î)°¡ È®º¸µÇ¾î ÀÖ°í °æ°èº®ÀÌ ÃÖ¼Ò 2¸éÀÌ»ó º¸Á¸µÇ¾î ÀÖÀ½. µû¶ó¼­ ´ë
»ó¹°°Ç ¹× 122È£´Â °æ°èº® ¾øÀÌ ÀÏü·Î »ç¿ëÇÏ´Â °ÍÀÌ ÀϽÃÀûÀÎ »óȲÀÌ¸ç °æ°èº® º¹¿øÀÌ ¿ëÀÌ ÇÏ
°í °ú´ÙÇÑ ºñ¿ëÀÌ ¼Ò¿äµÇÁø ¾ÊÀ¸¹Ç·Î °³º° È£¼ö·Î¼­ÀÇ ´Üµ¶ È¿¿ë°¡Ä¡°¡ ÃæºÐÈ÷ ÀÖ´Ù°í ÆÇ´ÜÇÔ.

6)±âŸÂü°í»çÇ×(ÀÓ´ë°ü·Ê ¹× ±âŸ)
-
Âü°í
»çÇ×

È£½Ç ±¸ºÐ¾øÀÌ ÁÖ½Äȸ

°ÇÃ๰ÇöȲ

¼ÒÀçÁö ¼­¿ïƯº°½Ã °­³²±¸ ³íÇöµ¿ 211-21¹øÁö
´ëÁö¸éÀû 2702.5§³
(818.94Æò)
¿¬¸éÀû 23276.809§³
(7053.58Æò)
°ÇÃà¸éÀû 1395.732§³
(422.95Æò)
¿ëÀû·ü»êÁ¤
¿¬¸éÀû
12968.853§³
(3929.96Æò)
°ÇÆóÀ² 51.65% ¿ëÀû·ü 479.88%
Áö»óÃþ¼ö 17Ãþ ÁöÇÏÃþ¼ö 5Ãþ
ÁÖ¿ëµµ °øµ¿ÁÖÅà ±¸Á¶ ö±ÙÄÜÅ©¸®Æ®±¸Á¶
Âø°øÀÏÀÚ 2018.02.03 »ç¿ë½ÂÀÎÀÏÀÚ 2021.08.30
°ÇÃ๰Ãþº°ÇöȲ [º¸±â]


µî±âºÎµîº» ¿ä¾à(°Ç¹°)

  Á¢¼öÀÏÀÚ µî±â¸ñÀû/±Ç¸®ÀÚ ±Ç¸®±Ý¾× ±âÁØ
1 2021³â10¿ù14ÀÏ
¼ÒÀ¯±Ç
±èOO
¼Ò¸ê
2 2021³â10¿ù14ÀÏ
±ÙÀú´ç±Ç
(OOOO
896,400,000 ¼Ò¸ê±âÁØ
3 2021³â10¿ù14ÀÏ
±ÙÀú´ç±Ç
À¯OOOO
140,270,000 ¼Ò¸ê
4 2023³â2¿ù3ÀÏ
±ÙÀú´ç±Ç
±¹
295,000,000 ¼Ò¸ê
5 2023³â11¿ù13ÀÏ
°¡¾Ð·ù
(OOOO
845,085,000 ¼Ò¸ê
6 2025³â3¿ù12ÀÏ
ÀÓÀǰæ¸Å
À¯OOOO
¼Ò¸ê
7 2025³â6¿ù4ÀÏ
¾Ð·ù
¿µOOO
¼Ò¸ê

ÀÓÂ÷ÀÎÇöȲ (¹è´ç¿ä±¸Á¾±âÀÏ: 2025-06-02)



¸Å°¢±âÀÏ 7ÀÏÀü¿¡ ¸Å°¢¹°°Ç¸í¼¼¼­°¡ °ø°íµÇ¿À´Ï È®ÀÎÇϽñ⠹ٶø´Ï´Ù.

ÀÓÂ÷ÀÎ ¿ëµµ/Á¡À¯ º¸Áõ±Ý/¿ù¼¼ ´ëÇ×·Â
ÀüÀÔÀÏ/È®Á¤ÀÏ ¹è´ç¿ä±¸ ºñ°í
ÁÖOOOOOOO
¹Ì»ó

¿©ÀÇÁÖ°æ¸Å Á¶¾ð ÇÑ ¸¶µð


ÁÖÀÇ»çÇ× (ÃÖ¼±¼øÀ§ ¼³Á¤ÀÏ: 2021.10.14.±ÙÀú´ç±Ç ¼³Á¤)

¸Å°¢À¸·Î ¼Ò¸êµÇÁö ¾Ê´Â µî±âºÎ±Ç¸®:
¸Å°¢À¸·Î ¼³Á¤µÈ °ÍÀ¸·Î º¸´Â Áö»ó±Ç:
°æ¸Å ´ë»ó ¹°°Ç(123È£)´Â 122È£¿Í ÀÏü·Î »ç¿ëÁß ÀÓ(°¨Á¤Æò°¡¼­ ÂüÁ¶)
¡Ø¹Ì³³°ü¸®ºñ(°ø¿ë) Àμö¿©ºÎ¸¦ ÀÔÂû Àü¿¡ È®ÀÎÇϽñ⠹ٶø´Ï´Ù

 

Áö¿ªºÐ¼®

ÁöÇÏö¸í Á÷¼±°Å¸®

Çб³¸í ÀüÈ­¹øÈ£ ÁÖ¼Ò Á÷¼±°Å¸®

¹ý¿ø

¼­¿ïÁß¾ÓÁö¹æ¹ý¿ø (065-94)¼­¿ïƯº°½Ã ¼­Ãʱ¸ ¼­ÃÊÁß¾Ó·Î 157 (¼­Ãʵ¿)
´ëÇ¥ : 02)530-1114, ¾ß°£ : 02)530-1280/536-8003
°üÇÒÁö¿ª : Á¾·Î±¸, Áß±¸, °­³²±¸, ¼­Ãʱ¸, °ü¾Ç±¸, µ¿ÀÛ±¸

µî±â¼Ò ¼­¿ïÁß¾ÓÁö¹æ¹ý¿ø º»¿ø µî±â±¹ (´ëÇ¥:1544-0773, ÆÑ½º:(02)590-1881, ¼­¿ïƯº°½Ã ¼­Ãʱ¸ ¹ý¿ø·Î3±æ 14 (¼­Ãʵ¿ 1707-4))
¼¼¹«¼­ °­³²¼¼¹«¼­ (´ëÇ¥:02-519-420, ÆÑ½º:02-512-3917, ¼­¿ïƯº°½Ã °­³²±¸ Çе¿·Î 425 (û´ãµ¿))

Àαٳ«ÂûÅë°è

±â°£ ¸Å°¢°Ç¼ö Æò±Õ°¨Á¤°¡
Æò±Õ¸Å°¢°¡
¸Å°¢°¡À²
Æò±ÕÀ¯Âû¼ö
3°³¿ù 6°Ç 2,831,433,167¿ø
2,384,569,667¿ø
72%
2ȸ
6°³¿ù 10°Ç 2,368,411,246¿ø
2,059,851,800¿ø
78%
1.5ȸ
12°³¿ù 11°Ç 2,166,737,496¿ø
1,886,228,909¿ø
80%
1.4ȸ


º» °æ¸ÅÁ¤º¸´Â ¹ý¿øÀÚ·á¿Í ÀÏÄ¡Çϵµ·Ï ÇÏ¿´À¸³ª ±Ç¸®»çÇ׺¯µ¿, ÀÔ·ÂÂø¿À µîÀÇ ¿øÀÎÀ¸·Î »ç½Ç°ú ´Ù¸¦ ¼ö ÀÖ½À´Ï´Ù. ÀÌ¿ë¾à°ü¿¡ ÀǰЏéÃ¥Á¶°ÇÀ¸·Î Á¦°øµÊÀ» ¾Ë¸®¸ç, °æ¸ÅÀÔÂû½Ã ¹Ýµå½Ã °ü·Ã °øºÎ¸¦ ÀçÈ®ÀÎÇϽñ⠹ٶø´Ï´Ù. º¸´Ù Æí¸®ÇÑ °æ¸ÅÁ¤º¸ Á¦°øÀ» À§ÇØ Áö¼ÓÀûÀ¸·Î °³¼±ÇϰڽÀ´Ï´Ù. ÀÌ¿ëÇØ Áּż­ °¨»çÇÕ´Ï´Ù.