·Î±×ÀÎ
43
¾ÆÆÄÆ®
ÀÇÁ¤ºÎÁö¹æ¹ý¿ø °í¾çÁö¿ø
 °¨Á¤°¡484,000,000 ¿ø
 ÃÖÀú°¡(70%) 338,800,000 ¿ø
 º¸Áõ±Ý(10%) 33,880,000 ¿ø
 Ã»±¸¾×553,708,498 ¿ø
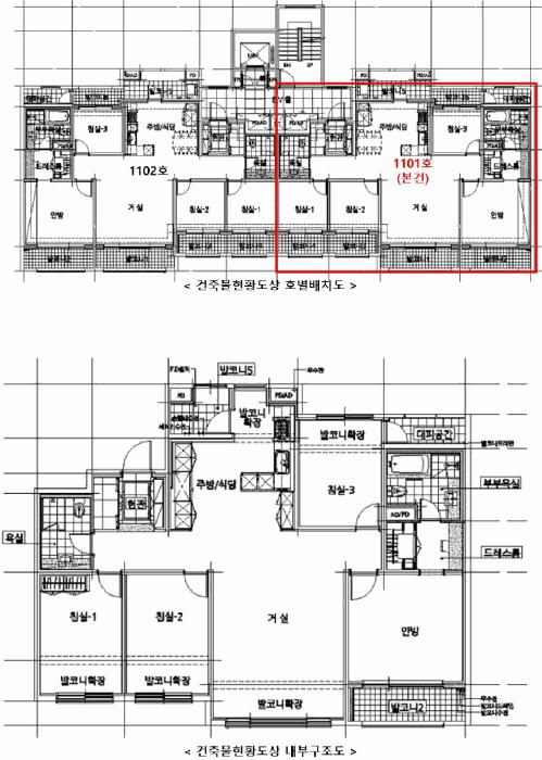
°æ±âµµ ÆÄÁֽà ¿Íµ¿µ¿ 1321 °¡¶÷¸¶À»4´ÜÁöÇѾç¼öÀÚÀÎ 410µ¿ 11Ãþ1101È£
»ç°Ç¹øÈ£ 2025Ÿ°æ62522
°æ¸ÅÁ¾·ùºÎµ¿»êÀÓÀǰæ¸Å
¸Å°¢´ë»óÅäÁö ¹× °Ç¹°Àϰý ¸Å°¢
¸Å°¢±âÀÏ    2025.12.17(¼ö) 10:00 ÀÔÂû 21ÀÏÀü    
ÅäÁö¸éÀû71.60§³(21.66 Æò)
°Ç¹°¸éÀû119.83§³(36.25 Æò)
乫/¼ÒÀ¯ÀÚÆÄOOOO OOOO OOOOO OOO / ÆÄOOOO OOOO OOOOO OOO
ä±ÇÀÚÁÖOOO OOOOOOO
ÆäÀ̽ººÏ Æ®À§ÅÍ ±¸±Û+
īī¿À½ºÅ丮
īī¿ÀÅå sms¹®ÀÚº¸³»±â
 

±âÀϳ»¿ª

°æ°ú ³¯Â¥ Àú°¨ ÃÖÀú°¡ °á°ú
Á¢¼öÀÏ 2025-03-06 °æ¸ÅÁ¢¼ö
~7ÀÏ 
2025-03-13 °æ¸Å°³½Ã°áÁ¤
~95ÀÏ 
2025-06-09 ¹è´ç¿ä±¸Á¾±âÀÏ
~251ÀÏ 
2025-11-12 100%
484,000,000
À¯Âû
~286ÀÏ 
2025-12-17 70%
338,800,000
ÁøÇà
¹°°Ç¸í¼¼¼­ ÇöȲÁ¶»ç¼­ ¹®°ÇÁ¢¼ö ¼Û´Þ³»¿ª

°¨Á¤Æò°¡ÇöȲ

¸ñ·Ï ÁÖ¼Ò ±¸Á¶/¿ëµµ/´ëÁö±Ç ¸éÀû ºñ°í
´ëÁö±Ç
¿Íµ¿µ¿ 1321 46438.3ºÐÀÇ 71.6026 71.6026 §³
(21.66Æò)
°Ç¹°
¿Íµ¿µ¿ 1321 410µ¿ 11Ãþ1101È£ ö±ÙÄÜÅ©¸®Æ®±¸Á¶ 119.83 §³
(36.25Æò)
1) À§Ä¡/µµ½ÃÁö¿ª/Á¦3Á¾ÀϹÝÁÖ°ÅÁö¿ª/Á¦1Á¾Áö±¸´ÜÀ§°èȹ±¸¿ª/³ë¼±¹ö½º Á¤·ùÀå/ö±ÙÄÜÅ©¸®Æ®±¸Á¶ ´õº¸±â
°¨Á¤Æò°¡ ¿äÇ×Ç¥
1)À§Ä¡ ¹× ÁÖÀ§È¯°æ
º»°ÇÀº °æ±âµµ ÆÄÁֽà ¿Íµ¿µ¿ ¼ÒÀç ""ÇѰ¡¶÷ÃʵîÇб³"" ºÏµ¿Ãø Àαٿ¡ À§Ä¡Çϸç, ÁÖÀ§´Â ´ë±Ô¸ð ¾ÆÆÄÆ®´ÜÁö ¹× ±Ù¸°»ýȰ½Ã¼³ µîÀÌ ¼ÒÀçÇϸç Á¦¹Ý ÁÖÀ§È¯°æÀº º¸ÅëÀÔ´Ï´Ù.
2)±³Åë»óȲ
º»°Ç±îÁö Â÷·® Áø,ÃâÀÔÀÌ °¡´ÉÇϸç, Àαٿ¡ ³ë¼±¹ö½º Á¤·ùÀåÀÌ ¼ÒÀçÇÏ´Â µî Á¦¹Ý ´ëÁß±³Åë»óȲÀº ¾çÈ£ÇÕ´Ï´Ù.
3)°Ç¹°ÀÇ ±¸Á¶
ö±ÙÄÜÅ©¸®Æ®±¸Á¶ (ö±Ù)ÄÜÅ©¸®Æ®ÆòÁöºØÀ¸·Î¼­,

¿Üº®: ¸ôÅ» À§ ÆäÀÎÆÃ ¸¶°¨ µî,
âȣ: ¼¦½Ã âȣÀÔ´Ï´Ù.

4)ÀÌ¿ë»óÅÂ
¾ÆÆÄÆ®(ÈÄ÷ ""³»ºÎ±¸Á¶µµ"" ÂüÁ¶)·Î ÀÌ¿ë ÁßÀÔ´Ï´Ù.

5)¼³ºñ³»¿ª
±Þ,¹è¼ö¼³ºñ, ½Â°­±â¼³ºñ, È­ÀçŽÁö¼³ºñ ¹× Àü±â¼³ºñ µîÀÌ µÇ¾îÀÖ½À´Ï´Ù.


6)ÅäÁöÀÇ Çü»ó ¹× ÀÌ¿ë»óÅÂ
ÀÎÁ¢Áö´ëºñ µî°íÆòźÇÑ ºÎÁ¤ÇüÀÇ ÅäÁö·Î ¾ÆÆÄÆ® °ÇºÎÁö·Î ÀÌ¿ë ÁßÀÔ´Ï´Ù.
7)ÀÎÁ¢ µµ·Î»óŵî
´ÜÁö ³» µµ·Î¸¦ ÅëÇÏ¿© ¿Ü°û °øµµ¿Í Á¢ÇÕ´Ï´Ù.
8)ÅäÁöÀÌ¿ë°èȹ ¹× Á¦ÇÑ»óÅÂ
µµ½ÃÁö¿ª, Á¦3Á¾ÀϹÝÁÖ°ÅÁö¿ª, Á¦1Á¾Áö±¸´ÜÀ§°èȹ±¸¿ª, Áß·Î1·ù(Æø 20m~25m)(ÆÄÁÖ¿îÁ¤Áö±¸)(Á¢ÇÕ), Áß·Î2·ù(Æø 15m~20m)(Á¢ÇÕ), Áß·Î2·ù(Æø 15m~20m)(ÆÄÁÖ¿îÁ¤Áö±¸)(Á¢ÇÕ) °¡Ãà»çÀ°Á¦Çѱ¸¿ª(ÀüºÎÁ¦ÇÑ)<°¡ÃàºÐ´¢ÀÇ °ü¸® ¹× À̿뿡 °üÇÑ ¹ý·ü>, »ó´ëº¸È£±¸¿ª<±³À°È¯°æ º¸È£¿¡ °üÇÑ ¹ý·ü>, »ó´ëº¸È£±¸¿ª(2015-02-25)<±³À°È¯°æ º¸È£¿¡ °üÇÑ ¹ý·ü>, »ó´ëº¸È£±¸¿ª(¿¹¼ºÀ¯Ä¡¿ø, ¹Ýµå½Ã ÆÄÁÖ±³À°Áö¿øÃ»¿¡ ÀçÈ®ÀÎ ¹Ù¶÷,TEL 031-940-7245)<±³À°È¯°æ º¸È£¿¡ °üÇÑ ¹ý·ü>, »ó´ëº¸È£±¸¿ª(Áö»êÃʵîÇб³ »ó´ëº¸È£±¸¿ª(¹Ýµå½Ã ÆÄÁÖ±³À°Áö¿øÃ»¿¡ ÀçÈ®ÀÎ ¹Ù¶÷,TEL 031-940-7245))<±³À°È¯°æ º¸È£¿¡ °üÇÑ ¹ý·ü>, »ó´ëº¸È£±¸¿ª(ÇѰ¡¶÷ÃʵîÇб³,¹Ýµå½Ã ±³À°Áö¿øÃ»¿¡ ÀçÈ®ÀÎ ¹Ù¶÷(940-7244))<±³À°È¯°æ º¸È£¿¡ °üÇÑ ¹ý·ü>, Àý´ëº¸È£±¸¿ª(¿¹¼ºÀ¯Ä¡¿ø, ¹Ýµå½Ã ÆÄÁÖ±³À°Áö¿øÃ»¿¡ ÀçÈ®ÀÎ ¹Ù¶÷,TEL 031-940-7245)<±³À°È¯°æ º¸È£¿¡ °üÇÑ ¹ý·ü>
9)°øºÎ¿ÍÀÇ Â÷ÀÌ
°øºÎ¿ÍÀÇ Â÷ÀÌ ¾ø½À´Ï´Ù.
10)±âŸÂü°í»çÇ×(ÀÓ´ë°ü·Ê ¹× ±âŸ)
ÀÓ´ë°ü°è ¹Ì»óÀÔ´Ï´Ù.
º»°ÇÀº ³»ºÎ±¸Á¶ È®ÀÎ ¹× ÀÛ¼ºÀº ÀÌÇØ°ü°èÀÎÀÇ Æó¹® ¹× ºÎÀç·Î ÀÎÇÏ¿© °Ç¹° ¿Ü°ü ¹× ޹®Á¶»ç, °ÇÃ๰ÇöȲµµ¸é¿¡ ÀǰÅÇÏ¿© Ç¥ÁØÀûÀ̰í ÀϹÝÀûÀÎ ÀÌ¿ë ¹× °ü¸®»óŸ¦ ±âÁØÇÏ¿© ÀÛ¼ºÇÏ¿´À¸¹Ç·Î °æ¸Å ÁøÇà½Ã Âü°íÇϽñ⠹ٶø´Ï´Ù.

Âü°í
»çÇ×

-ö±ÙÄÜÅ©¸®Æ®±¸Á¶

°ÇÃ๰ÇöȲ

¼ÒÀçÁö °æ±âµµ ÆÄÁֽà ¿Íµ¿µ¿ 1321¹øÁö
´ëÁö¸éÀû   ¿¬¸éÀû 10475.27§³
(3174.32Æò)
°ÇÃà¸éÀû 585.25§³
(177.35Æò)
¿ëÀû·ü»êÁ¤
¿¬¸éÀû
10475.27§³
(3174.32Æò)
°ÇÆóÀ²   ¿ëÀû·ü  
Áö»óÃþ¼ö 26Ãþ ÁöÇÏÃþ¼ö  
ÁÖ¿ëµµ °øµ¿ÁÖÅà ±¸Á¶ ö±ÙÄÜÅ©¸®Æ®±¸Á¶
Âø°øÀÏÀÚ 2008.07.15 »ç¿ë½ÂÀÎÀÏÀÚ 2011.12.19
°ÇÃ๰Ãþº°ÇöȲ [º¸±â]


µî±âºÎµîº» ¿ä¾à(°Ç¹°)

  Á¢¼öÀÏÀÚ µî±â¸ñÀû/±Ç¸®ÀÚ ±Ç¸®±Ý¾× ±âÁØ
1 2014³â1¿ù10ÀÏ
¼ÒÀ¯±Ç
¿ìOO
¼Ò¸ê
2 2022³â3¿ù8ÀÏ
±ÙÀú´ç±Ç
(OOOO
600,000,000 ¼Ò¸ê±âÁØ
3 2024³â8¿ù14ÀÏ
°¡¾Ð·ù
°æOOOO
17,060,000 ¼Ò¸ê
4 2024³â8¿ù19ÀÏ
¾Ð·ù
±¹
¼Ò¸ê
5 2024³â9¿ù10ÀÏ
¾Ð·ù
±¹OOOO
¼Ò¸ê
6 2025³â1¿ù14ÀÏ
°¡¾Ð·ù
(OOOO
11,215,322 ¼Ò¸ê
7 2025³â3¿ù14ÀÏ
ÀÓÀǰæ¸Å
(OOOO
¼Ò¸ê

ÀÓÂ÷ÀÎÇöȲ (¹è´ç¿ä±¸Á¾±âÀÏ: 2025-06-09)

ÀÓÂ÷ÀÎ ¿ëµµ/Á¡À¯ º¸Áõ±Ý/¿ù¼¼ ´ëÇ×·Â
ÀüÀÔÀÏ/È®Á¤ÀÏ ¹è´ç¿ä±¸ ºñ°í
¹èOO ¹æ2°³¸¦Á¦¿ÜÇÑÀüü 75,000,000
X
2022.05.13
2025.6.5. 2022.05.10.ºÎÅÍÇöÀç±îÁö
¿ìOO
X
2024.10.21

¾ÆÆÄÆ® Á¤º¸

ÁÖ¼Ò
½Ã°ø»ç ´ÜÁö±Ô¸ð 6°³µ¿ ¼¼´ë
³­¹æ »ç¿ë½ÂÀÎ
°ü¸®¼Ò
Àü¿ë¸éÀû ¼¼´ë¼ö
´ëÁö±Ç
Çö°ü/±¸Á¶ ½Ä / ¹æ, ¿å½Ç
  • Çб³
  • ÁÖº¯½Ã¼³
  • ´ëÁß±³Åë

¿©ÀÇÁÖ°æ¸Å Á¶¾ð ÇÑ ¸¶µð


ÁÖÀÇ»çÇ× (ÃÖ¼±¼øÀ§ ¼³Á¤ÀÏ: 2022. 03. 08. ±ÙÀú´ç±Ç ¼³Á¤)

¸Å°¢À¸·Î ¼Ò¸êµÇÁö ¾Ê´Â µî±âºÎ±Ç¸®:
¸Å°¢À¸·Î ¼³Á¤µÈ °ÍÀ¸·Î º¸´Â Áö»ó±Ç:
¡Ø¹Ì³³°ü¸®ºñ(°ø¿ë) Àμö¿©ºÎ¸¦ ÀÔÂû Àü¿¡ È®ÀÎÇϽñ⠹ٶø´Ï´Ù

 

Áö¿ªºÐ¼®

ÁöÇÏö¸í Á÷¼±°Å¸®

Çб³¸í ÀüÈ­¹øÈ£ ÁÖ¼Ò Á÷¼±°Å¸®

¹ý¿ø

ÀÇÁ¤ºÎÁö¹æ¹ý¿ø °í¾çÁö¿ø (104-13)°æ±âµµ °í¾ç½Ã Àϻ굿±¸ Àå¹é·Î 209
´ëÇ¥ : 031)920-6114, ¾ß°£ : 031)920-6550, ÆÑ½º : 031)920-6119
°üÇÒÁö¿ª : °í¾ç½Ã, ÆÄÁÖ½Ã

µî±â¼Ò ÀÇÁ¤ºÎÁö¹æ¹ý¿ø °í¾çÁö¿ø ÆÄÁÖµî±â¼Ò (´ëÇ¥:1544-0773, ÆÑ½º:(031)945-4764, 3628, °æ±âµµ ÆÄÁֽà ±ÝÁ¤·Î 45 (±ÝÃ̵¿ 947-28))
¼¼¹«¼­ ÆÄÁÖ¼¼¹«¼­ (´ëÇ¥:031-956-02, ÆÑ½º:031-957-0315, °æ±âµµ ÆÄÁֽà ±Ý¸ª¿ª·Î 62 (±ÝÃ̵¿))

Àαٳ«ÂûÅë°è

±â°£ ¸Å°¢°Ç¼ö Æò±Õ°¨Á¤°¡
Æò±Õ¸Å°¢°¡
¸Å°¢°¡À²
Æò±ÕÀ¯Âû¼ö
3°³¿ù 20°Ç 460,150,000¿ø
388,476,534¿ø
85%
1ȸ
6°³¿ù 51°Ç 477,647,059¿ø
405,389,321¿ø
85%
1ȸ
12°³¿ù 99°Ç 475,111,111¿ø
408,286,266¿ø
86%
1ȸ


º» °æ¸ÅÁ¤º¸´Â ¹ý¿øÀÚ·á¿Í ÀÏÄ¡Çϵµ·Ï ÇÏ¿´À¸³ª ±Ç¸®»çÇ׺¯µ¿, ÀÔ·ÂÂø¿À µîÀÇ ¿øÀÎÀ¸·Î »ç½Ç°ú ´Ù¸¦ ¼ö ÀÖ½À´Ï´Ù. ÀÌ¿ë¾à°ü¿¡ ÀǰЏéÃ¥Á¶°ÇÀ¸·Î Á¦°øµÊÀ» ¾Ë¸®¸ç, °æ¸ÅÀÔÂû½Ã ¹Ýµå½Ã °ü·Ã °øºÎ¸¦ ÀçÈ®ÀÎÇϽñ⠹ٶø´Ï´Ù. º¸´Ù Æí¸®ÇÑ °æ¸ÅÁ¤º¸ Á¦°øÀ» À§ÇØ Áö¼ÓÀûÀ¸·Î °³¼±ÇϰڽÀ´Ï´Ù. ÀÌ¿ëÇØ Áּż­ °¨»çÇÕ´Ï´Ù.