·Î±×ÀÎ
67
¾ÆÆÄÆ®
ÀÇÁ¤ºÎÁö¹æ¹ý¿ø °í¾çÁö¿ø
 °¨Á¤°¡529,000,000 ¿ø
 ÃÖÀú°¡(70%) 370,300,000 ¿ø
 º¸Áõ±Ý(10%) 37,030,000 ¿ø
 Ã»±¸¾×83,368,767 ¿ø
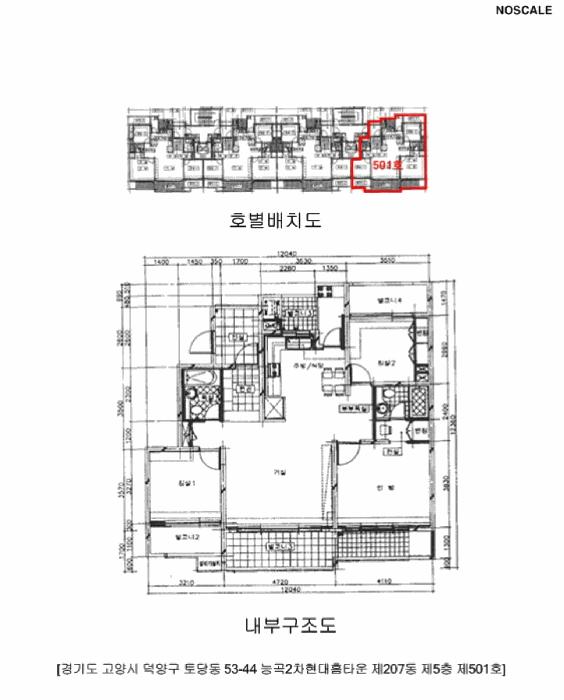
°æ±âµµ °í¾ç½Ã ´ö¾ç±¸ Åä´çµ¿ 53-44 ´É°î2Â÷Çö´ëȨŸ¿î 207µ¿ 5Ãþ501È£
»ç°Ç¹øÈ£ 2025Ÿ°æ1272
°æ¸ÅÁ¾·ùºÎµ¿»êÀÓÀǰæ¸Å
¸Å°¢´ë»óÅäÁö ¹× °Ç¹°Àϰý ¸Å°¢
¸Å°¢±âÀÏ    2025.12.17(¼ö) 10:00 ÀÔÂû 22ÀÏÀü    
ÅäÁö¸éÀû39.94§³(12.08 Æò)
°Ç¹°¸éÀû84.45§³(25.55 Æò)
乫/¼ÒÀ¯ÀÚ¹éOO / ¹éOO
ä±ÇÀÚ½ÅOO
ÆäÀ̽ººÏ Æ®À§ÅÍ ±¸±Û+
īī¿À½ºÅ丮
īī¿ÀÅå sms¹®ÀÚº¸³»±â
 

±âÀϳ»¿ª

°æ°ú ³¯Â¥ Àú°¨ ÃÖÀú°¡ °á°ú
Á¢¼öÀÏ 2025-03-12 °æ¸ÅÁ¢¼ö
~1ÀÏ 
2025-03-13 °æ¸Å°³½Ã°áÁ¤
~89ÀÏ 
2025-06-09 ¹è´ç¿ä±¸Á¾±âÀÏ
~245ÀÏ 
2025-11-12 100%
529,000,000
À¯Âû
~280ÀÏ 
2025-12-17 70%
370,300,000
ÁøÇà
¹°°Ç¸í¼¼¼­ ÇöȲÁ¶»ç¼­ ¹®°ÇÁ¢¼ö ¼Û´Þ³»¿ª

°¨Á¤Æò°¡ÇöȲ

¸ñ·Ï ÁÖ¼Ò ±¸Á¶/¿ëµµ/´ëÁö±Ç ¸éÀû ºñ°í
´ëÁö±Ç
Åä´çµ¿ 53-44 25272ºÐÀÇ 39.938 39.938 §³
(12.08Æò)
°Ç¹°
Åä´çµ¿ 53-44 207µ¿ 5Ãþ501È£ ö±ÙÄÜÅ©¸®Æ®Á¶ 84.450 §³
(25.55Æò)
1) À§Ä¡/µµ½ÃÁö¿ª/Á¦3Á¾ÀϹÝÁÖ°ÅÁö¿ª/¹ö½ºÁ¤·ùÀå/ö±ÙÄÜÅ©¸®Æ®Á¶/°æ»çÁöºØ ´õº¸±â
°¨Á¤Æò°¡ ¿äÇ×Ç¥
1)À§Ä¡ ¹× ÁÖÀ§È¯°æ
º»°ÇÀº °æ±âµµ °í¾ç½Ã ´ö¾ç±¸ Åä´çµ¿ ¼ÒÀç ""´É°îÃʵîÇб³"" ³²µ¿Ãø¿¡ À§Ä¡Çϸç ÁÖÀ§´Â ¾ÆÆÄÆ®, ´Ù¼¼´ëÁÖÅÃ, ±Ù¸°»ýȰ½Ã¼³ µîÀÌ ¼ÒÀçÇÔ.
2)±³Åë»óȲ
º»°Ç±îÁö Â÷·® ÁøÃâÀÔÀÌ °¡´ÉÇϸç Àαٿ¡ ¹ö½ºÁ¤·ùÀå ¹× ´É°î¿ª(°æÀÇÁß¾Ó¼±)ÀÌ ¼ÒÀçÇϴ¹٠´ëÁß±³Åë»óȲÀº ¹«³­½Ã µÊ.
3)°Ç¹°ÀÇ ±¸Á¶
ö±ÙÄÜÅ©¸®Æ®Á¶ °æ·®Ã¶°ñ°æ»çÁöºØ 24Ãþ °øµ¿ÁÖÅà °Ç ³» Á¦5Ãþ Á¦501È£·Î¼­,
(»ç¿ë½ÂÀÎ: 2002.10.25)
¿Üº®: ¸ôÅ»À§ ÆäÀÎÆ® ¸¶°¨ µî.
âȣ: ¼¦½Ã âȣÀÓ.
4)ÀÌ¿ë»óÅÂ
¾ÆÆÄÆ®·Î ÀÌ¿ëÁßÀÓ.
(ÈÄ÷ ""È£º°¹èÄ¡µµ ¹× ³»ºÎ±¸Á¶µµ"" ÂüÁ¶)
5)¼³ºñ³»¿ª
º»°ÇÀº ±âº»ÀûÀÎ À§»ý ¹× ±Þ¹è¼ö¼³ºñ, ¼ÒÈ­Àü¼³ºñ, ½Â°­±â¼³ºñ, ³­¹æ¼³ºñ µîÀÌ µÇ¾î ÀÖÀ½.



6)ÅäÁöÀÇ Çü»ó ¹× ÀÌ¿ë»óÅÂ
º»°ÇÀº ÀÎÁ¢ÅäÁö´ëºñ µî°í ÆòźÇÑ ºÎÁ¤Çü ÅäÁö·Î¼­ ¾ÆÆÄÆ® °ÇºÎÁö·Î ÀÌ¿ëÁßÀÓ.
7)ÀÎÁ¢ µµ·Î»óŵî
º»°ÇÀº ´ÜÁö³» µµ·Î°¡ ³²¼­Ãø°ú ºÏÃøÀ¸·Î ¿ÜºÎ °øµµ¿Í ¿¬°èµÇ¾î ÀÖÀ½.
8)ÅäÁöÀÌ¿ë°èȹ ¹× Á¦ÇÑ»óÅÂ
Á¦3Á¾ÀϹÝÁÖ°ÅÁö¿ª, ´ë·Î3·ù(Æø 25m~30m)(Á¢ÇÕ), ¼Ò·Î2·ù(Æø 8m~10m)(Á¢ÇÕ), Áß·Î2·ù(Æø 15m~20m)(Á¢ÇÕ) °¡Ãà»çÀ°Á¦Çѱ¸¿ª(2024-11-12)(ÀüºÎÁ¦Çѱ¸¿ª [µµ½ÃÁö¿ª{ÁÖ°Å,»ó¾÷,°ø¾÷,³ìÁö(ÀÚ¿¬Ãë¶ôÁö±¸)}¹×ÁְŹÐÁýÁö¿ª])<°¡ÃàºÐ´¢ÀÇ °ü¸® ¹× À̿뿡 °üÇÑ ¹ý·ü>, »ó´ëº¸È£±¸¿ª(´É°î¼º´çÀ¯Ä¡¿ø)<±³À°È¯°æ º¸È£¿¡ °üÇÑ ¹ý·ü>, »ó´ëº¸È£±¸¿ª(¹èÈ­À¯Ä¡¿ø)<±³À°È¯°æ º¸È£¿¡ °üÇÑ ¹ý·ü>, Àý´ëº¸È£±¸¿ª(´É°î¼º´çÀ¯Ä¡¿ø)<±³À°È¯°æ º¸È£¿¡ °üÇÑ ¹ý·ü>, °ú¹Ð¾ïÁ¦±Ç¿ª<¼öµµ±ÇÁ¤ºñ°èȹ¹ý>.
9)°øºÎ¿ÍÀÇ Â÷ÀÌ
¾øÀ½.
10)±âŸÂü°í»çÇ×(ÀÓ´ë°ü·Ê ¹× ±âŸ)
ÀÓ´ë°ü°è´Â ¹Ì»óÀÓ.
Âü°í
»çÇ×

ö±ÙÄÜÅ©¸®Æ®Á¶

°ÇÃ๰ÇöȲ

¼ÒÀçÁö °æ±âµµ °í¾ç½Ã ´ö¾ç±¸ Åä´çµ¿ 53-44¹øÁö
´ëÁö¸éÀû   ¿¬¸éÀû 12786.292§³
(3874.63Æò)
°ÇÃà¸éÀû 661.936§³
(200.59Æò)
¿ëÀû·ü»êÁ¤
¿¬¸éÀû
12715.332§³
(3853.13Æò)
°ÇÆóÀ²   ¿ëÀû·ü  
Áö»óÃþ¼ö 21Ãþ ÁöÇÏÃþ¼ö 1Ãþ
ÁÖ¿ëµµ °øµ¿ÁÖÅà ±¸Á¶ ö±ÙÄÜÅ©¸®Æ®±¸Á¶
Âø°øÀÏÀÚ 2000.07.08 »ç¿ë½ÂÀÎÀÏÀÚ 2002.10.25
°ÇÃ๰Ãþº°ÇöȲ [º¸±â]


µî±âºÎµîº» ¿ä¾à(°Ç¹°)

  Á¢¼öÀÏÀÚ µî±â¸ñÀû/±Ç¸®ÀÚ ±Ç¸®±Ý¾× ±âÁØ
1 2002³â12¿ù11ÀÏ
¼ÒÀ¯±Ç
¹éOO
¼Ò¸ê
2 2024³â3¿ù11ÀÏ
±ÙÀú´ç±Ç
ÇÑOOOO
419,650,000 ¼Ò¸ê±âÁØ
3 2024³â4¿ù2ÀÏ
±ÙÀú´ç±Ç
½ÅOO
120,000,000 ¼Ò¸ê
4 2025³â3¿ù13ÀÏ
ÀÓÀǰæ¸Å
½ÅOO
¼Ò¸ê
5 2025³â6¿ù9ÀÏ
°¡¾Ð·ù
(OOOO
20,533,197 ¼Ò¸ê

ÀÓÂ÷ÀÎÇöȲ (¹è´ç¿ä±¸Á¾±âÀÏ: 2025-06-09)


Á¶»çµÈ ÀÓÂ÷³»¿ªÀÌ ¾ø½À´Ï´Ù


¾ÆÆÄÆ® Á¤º¸ Çö´ëȨŸ¿î2Â÷

ÁÖ¼Ò °æ±â °í¾ç½Ã ´ö¾ç±¸ Åä´çµ¿ 53-44
½Ã°ø»ç Çö´ë°Ç¼³(ÁÖ) ´ÜÁö±Ô¸ð 6°³µ¿ 556°¡±¸(8°³µ¿)¼¼´ë
³­¹æ Áö¿ª/¿­º´ÇÕ »ç¿ë½ÂÀÎ 2002-10
°ü¸®¼Ò ÇöÀå 031)938-6168
Àü¿ë¸éÀû 84~122 ¼¼´ë¼ö 556°¡±¸(8°³µ¿)
´ëÁö±Ç
Çö°ü/±¸Á¶ °è´Ü½Ä / ¹æ, ¿å½Ç
  • Çб³ ´É°îÃÊ,´É°îÁß,´É°î°í,
  • ÁÖº¯½Ã¼³ ÇàÁÖÀÇ¿ø, ÇàÁÖµ¿»ç¹«¼Ò, Åä´ç°ø¿ø, Çà½Åµµ¼­°ü, °í¾çû¼Ò³â¼ö·Ã°ü
  • ´ëÁß±³Åë °æÀǼ± ´É°î¿ª µµº¸5ºÐ

¿©ÀÇÁÖ°æ¸Å Á¶¾ð ÇÑ ¸¶µð

ÃëÇÏ ¶Ç´Â Ãë¼ÒµÉ °¡´É¼º ÀÖ½À´Ï´Ù
ÀÌ ¹°°ÇÀÇ °¨Á¤°¡°ÝÀº 529,000,000¿øÀÔ´Ï´Ù. °æ¸Å¸¦ ½ÅûÇÑ Ã¤±ÇÀÚ°¡ ¹è´ç ¹Þ¾Æ¾ß ÇÒ ±Ý¾×Àº 83,368,767¿øÀ¸·Î °¨Á¤°¡°Ý ´ëºñ »ó´çÈ÷ ÀûÀº ±Ý¾×ÀÔ´Ï´Ù. ÀÌ·± °æ¿ì, 乫°¡°¡ º¯Á¦ÇÏ¿© °æ¸Å¸¦ ÃëÇϽÃŰ°Å³ª °æ¸Å½Åûä±ÇÀÚ°¡ ¹è´ç¹ÞÀº ±Ý¿øÀÌ ¾ø°ÔµÇ¾î À̸¥ ¹Ù "¹«À׿©¿¡ ÀÇÇÑ Ãë¼Ò"°¡ µÉ °¡´É¼ºÀÌ ÀÖ½À´Ï´Ù.

ÁÖÀÇ»çÇ× (ÃÖ¼±¼øÀ§ ¼³Á¤ÀÏ: 2024. 03. 11. ±ÙÀú´ç ¼³Á¤)

¸Å°¢À¸·Î ¼Ò¸êµÇÁö ¾Ê´Â µî±âºÎ±Ç¸®:
¸Å°¢À¸·Î ¼³Á¤µÈ °ÍÀ¸·Î º¸´Â Áö»ó±Ç:
¡Ø¹Ì³³°ü¸®ºñ(°ø¿ë) Àμö¿©ºÎ¸¦ ÀÔÂû Àü¿¡ È®ÀÎÇϽñ⠹ٶø´Ï´Ù

 

Áö¿ªºÐ¼®

ÁöÇÏö¸í Á÷¼±°Å¸®

Çб³¸í ÀüÈ­¹øÈ£ ÁÖ¼Ò Á÷¼±°Å¸®

¹ý¿ø

ÀÇÁ¤ºÎÁö¹æ¹ý¿ø °í¾çÁö¿ø (104-13)°æ±âµµ °í¾ç½Ã Àϻ굿±¸ Àå¹é·Î 209
´ëÇ¥ : 031)920-6114, ¾ß°£ : 031)920-6550, ÆÑ½º : 031)920-6119
°üÇÒÁö¿ª : °í¾ç½Ã, ÆÄÁÖ½Ã

µî±â¼Ò ÀÇÁ¤ºÎÁö¹æ¹ý¿ø °í¾çÁö¿ø °í¾çµî±â¼Ò (´ëÇ¥:1544-0773, ÆÑ½º:(031)920-5959, °æ±âµµ °í¾ç½Ã Àϻ굿±¸ Áß¾Ó·Î1275¹ø±æ 38-30 (ÀåÇ×µ¿ 773))
¼¼¹«¼­ µ¿°í¾ç¼¼¹«¼­ (´ëÇ¥:031-900-62, ÆÑ½º:031-963-2979, °æ±âµµ °í¾ç½Ã ´ö¾ç±¸ È­Áß·Î 104¹ø±æ 16(È­Á¤µ¿))

Àαٳ«ÂûÅë°è

±â°£ ¸Å°¢°Ç¼ö Æò±Õ°¨Á¤°¡
Æò±Õ¸Å°¢°¡
¸Å°¢°¡À²
Æò±ÕÀ¯Âû¼ö
3°³¿ù 18°Ç 571,666,667¿ø
452,606,360¿ø
78%
1.5ȸ
6°³¿ù 50°Ç 583,292,000¿ø
486,040,624¿ø
82%
1.3ȸ
12°³¿ù 109°Ç 517,776,147¿ø
439,414,260¿ø
84%
1.2ȸ


º» °æ¸ÅÁ¤º¸´Â ¹ý¿øÀÚ·á¿Í ÀÏÄ¡Çϵµ·Ï ÇÏ¿´À¸³ª ±Ç¸®»çÇ׺¯µ¿, ÀÔ·ÂÂø¿À µîÀÇ ¿øÀÎÀ¸·Î »ç½Ç°ú ´Ù¸¦ ¼ö ÀÖ½À´Ï´Ù. ÀÌ¿ë¾à°ü¿¡ ÀǰЏéÃ¥Á¶°ÇÀ¸·Î Á¦°øµÊÀ» ¾Ë¸®¸ç, °æ¸ÅÀÔÂû½Ã ¹Ýµå½Ã °ü·Ã °øºÎ¸¦ ÀçÈ®ÀÎÇϽñ⠹ٶø´Ï´Ù. º¸´Ù Æí¸®ÇÑ °æ¸ÅÁ¤º¸ Á¦°øÀ» À§ÇØ Áö¼ÓÀûÀ¸·Î °³¼±ÇϰڽÀ´Ï´Ù. ÀÌ¿ëÇØ Áּż­ °¨»çÇÕ´Ï´Ù.