·Î±×ÀÎ
27
´Ù¼¼´ë(ºô¶ó)
¼­¿ï³²ºÎÁö¹æ¹ý¿ø
 °¨Á¤°¡219,000,000 ¿ø
 ÃÖÀú°¡(80%) 175,200,000 ¿ø
 º¸Áõ±Ý(10%) 17,520,000 ¿ø
 Ã»±¸¾×305,000,000 ¿ø
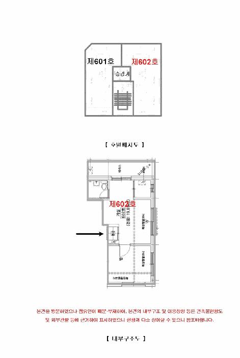
¼­¿ïƯº°½Ã °­¼­±¸ °øÇ×µ¿ 664 À§ÇϿ콺 Á¦6Ãþ Á¦602È£
»ç°Ç¹øÈ£ 2025Ÿ°æ9405
°æ¸ÅÁ¾·ùºÎµ¿»ê°­Á¦°æ¸Å
¸Å°¢´ë»óÅäÁö ¹× °Ç¹°Àϰý ¸Å°¢
¸Å°¢±âÀÏ    2026.01.07(¼ö) 10:00 ÀÔÂû 42ÀÏÀü    
ÅäÁö¸éÀû12.73§³(3.85 Æò)
°Ç¹°¸éÀû19.81§³(5.99 Æò)
乫/¼ÒÀ¯ÀÚÀÌOO / ÀÌOO
ä±ÇÀÚÁÖOOOOOOO
ÆäÀ̽ººÏ Æ®À§ÅÍ ±¸±Û+
īī¿À½ºÅ丮
īī¿ÀÅå sms¹®ÀÚº¸³»±â
 

±âÀϳ»¿ª

°æ°ú ³¯Â¥ Àú°¨ ÃÖÀú°¡ °á°ú
Á¢¼öÀÏ 2025-04-01 °æ¸ÅÁ¢¼ö
~1ÀÏ 
2025-04-02 °æ¸Å°³½Ã°áÁ¤
~93ÀÏ 
2025-07-03 ¹è´ç¿ä±¸Á¾±âÀÏ
~224ÀÏ 
2025-11-11 100%
219,000,000
À¯Âû
~281ÀÏ 
2026-01-07 80%
175,200,000
ÁøÇà
¹°°Ç¸í¼¼¼­ ÇöȲÁ¶»ç¼­ ¹®°ÇÁ¢¼ö ¼Û´Þ³»¿ª

°¨Á¤Æò°¡ÇöȲ

¸ñ·Ï ÁÖ¼Ò ±¸Á¶/¿ëµµ/´ëÁö±Ç ¸éÀû ºñ°í
´ëÁö±Ç
°øÇ×µ¿ 664 170.3ºÐÀÇ 12.73 12.73 §³
(3.85Æò)
°Ç¹°
°øÇ×µ¿ 664 Á¦6Ãþ Á¦602È£ ö±ÙÄÜÅ©¸®Æ®±¸Á¶ 19.81 §³
(5.99Æò)
1) À§Ä¡/µµ½ÃÁö¿ª/Á¦2Á¾ÀϹÝÁÖ°ÅÁö¿ª/ÅäÁö°Å·¡°è¾à¿¡°üÇÑÇã°¡±¸¿ª/¹ö½ºÁ¤·ùÀå/ö±ÙÄÜÅ©¸®Æ®±¸Á¶/Æò½º¶óºêÁöºØ/µµ½Ã°¡½º ´õº¸±â
°¨Á¤Æò°¡ ¿äÇ×Ç¥
1)À§Ä¡ ¹× ÁÖÀ§È¯°æ
º»°ÇÀº ¼­¿ïƯº°½Ã °­¼­±¸ °øÇ×µ¿ ¼ÒÀç ""¼ÛÁ¤¿ª(5È£¼±)"" ³²µ¿Ãø Àαٿ¡ À§Ä¡Çϸç, º»°Ç ÁÖÀ§
´Â °øµ¿ÁÖÅÃ, ±Ù¸°»ýȰ½Ã¼³ ¹× Çб³ µîÀÌ ¼ÒÀçÇÏ´Â ÁÖ°ÅÁö¿ªÀÓ.


2)±³Åë»óȲ
º»°Ç±îÁö Â÷·®ÀÇ ÃâÀÔÀÌ °¡´ÉÇϸç, Àαٿ¡ ¹ö½ºÁ¤·ùÀå ¹× ¼ÛÁ¤¿ª(5È£¼±)ÀÌ ¼ÒÀçÇÏ´Â µî ´ëÁß
±³Åë ¿©°ÇÀº º¸ÅëÀÓ.


3)°Ç¹°ÀÇ ±¸Á¶
ö±ÙÄÜÅ©¸®Æ®±¸Á¶ Æò½º¶óºêÁöºØ Á¦6Ãþ Á¦602È£·Î¼­(»ç¿ë½ÂÀÎÀÏ:2021.12.24),

¿Üº® : Ä¡À庮µ¹ ¸¶°¨ µî,
³»º® : -,
âȣ : ¼¦½Ãâ µîÀÓ.


4)ÀÌ¿ë»óÅÂ
´Ù¼¼´ëÁÖÅÃ(µµ½ÃÇü»ýȰÁÖÅÃ/´ÜÁöÇü´Ù¼¼´ë)À¸·Î ÀÌ¿ëÁßÀÓ.<ÈÄ÷, ""³»ºÎ±¸Á¶µµ""ÂüÁ¶>

5)¼³ºñ³»¿ª
À§»ý¼³ºñ, ±Þ¹è¼ö¼³ºñ, µµ½Ã°¡½º, ½Â°­±â ¹× ³­¹æ¼³ºñ µîÀÌ ±¸ºñµÇ¾î ÀÖÀ½.


6)ÅäÁöÀÇ Çü»ó ¹× ÀÌ¿ë»óÅÂ
À广Çü ÅäÁö·Î¼­, °ÇºÎÁö(´Ù¼¼´ëÁÖÅÃ(µµ½ÃÇü»ýȰÁÖÅÃ(´ÜÁöÇü´Ù¼¼´ë))·Î ÀÌ¿ëÁßÀÓ.


7)ÀÎÁ¢ µµ·Î»óŵî
º»°Ç ºÏÃøÀ¸·Î ¾à 8¹ÌÅÍ ³»¿Ü ¹× ¼­ÃøÀ¸·Î ¾à 6¹ÌÅÍ ³»¿ÜÀÇ µµ·Î¿Í °¢°¢ Á¢ÇÔ.

8)ÅäÁöÀÌ¿ë°èȹ ¹× Á¦ÇÑ»óÅÂ
µµ½ÃÁö¿ª, Á¦2Á¾ÀϹÝÁÖ°ÅÁö¿ª(7ÃþÀÌÇÏ), Áß¿ä½Ã¼³¹°º¸È£Áö±¸(°øÇ×), °¡Ãà»çÀ°Á¦Çѱ¸¿ª(Áö¿ª
°æÁ¦°ú È®ÀÎ ¿ä¸Á), ¼öÆòÇ¥¸é±¸¿ª(¼öÆòÇ¥¸é), ´ë°ø¹æ¾îÇùÁ¶±¸¿ª(À§Å¹°íµµ:77-257m), °ú¹Ð¾ï
Á¦±Ç¿ª, ÅäÁö°Å·¡°è¾à¿¡°üÇÑÇã°¡±¸¿ª(2024-09-05)(ÁöÁ¤±â°£: 2024³â 9¿ù 10ÀÏ~ 2029³â 9¿ù
9ÀÏ, Áö¸ñ µµ·Î ÇÑÁ¤)ÀÓ.


9)°øºÎ¿ÍÀÇ Â÷ÀÌ
-.
10)±âŸÂü°í»çÇ×(ÀÓ´ë°ü·Ê ¹× ±âŸ)
- ÀÓ´ë°ü°è ¹Ì»óÀÓ.

Âü°í
»çÇ×
ÀÓÂ÷ÀÎ ¹× ÁÖÅÃÀÓÂ÷±Ç ½Â°èÀÎ ÁÖÅõµ½Ãº¸Áõ°ø»çÀÇ ¸Å¼öÀο¡ ´ëÇÑ ´ëÇ×·Â Æ÷±â Á¶°Ç ¸Å°¢

°ÇÃ๰ÇöȲ

¼ÒÀçÁö ¼­¿ïƯº°½Ã °­¼­±¸ °øÇ×µ¿ 664¹øÁö
´ëÁö¸éÀû 170.3§³
(51.61Æò)
¿¬¸éÀû 340.54§³
(103.19Æò)
°ÇÃà¸éÀû 98.84§³
(29.95Æò)
¿ëÀû·ü»êÁ¤
¿¬¸éÀû
340.54§³
(103.19Æò)
°ÇÆóÀ² 58.04% ¿ëÀû·ü 199.96%
Áö»óÃþ¼ö 6Ãþ ÁöÇÏÃþ¼ö  
ÁÖ¿ëµµ °øµ¿ÁÖÅà ±¸Á¶ ö±ÙÄÜÅ©¸®Æ®±¸Á¶
Âø°øÀÏÀÚ 2021.06.10 »ç¿ë½ÂÀÎÀÏÀÚ 2021.12.24
°ÇÃ๰Ãþº°ÇöȲ [º¸±â]


±¹ÅäºÎ½Ç°Å·¡°¡ ¼­¿ïƯº°½Ã °­¼­±¸ °øÇ×µ¿

¡Ü ¸Å¸Å

¸éÀû(§³), ±Ý¾×(¸¸¿ø)

¡Ü Àü¼¼

¸éÀû(§³), ±Ý¾×(¸¸¿ø)

°è¾àÀϰǹ°¸íĪÃþ¿¬¸éÀû´ëÁö±Ý¾×°ÇÃà
24.03.30¼º°­¿¡ÄÚºô366.7740.362928,0002012
24.03.30·Î¾âÇÏÀÌÃ÷102µ¿344.0625.931,0002017
24.03.25¸®ºê°¡347.63528.2637,0002023
24.03.24¸®ºê°¡247.63528.2640,0002023
24.03.23¼ÛÁ¤ºô¶ó368.6746.1435,0001992
¢Ñ ´õº¸±â

µî±âºÎµîº» ¿ä¾à(°Ç¹°)

  Á¢¼öÀÏÀÚ µî±â¸ñÀû/±Ç¸®ÀÚ ±Ç¸®±Ý¾× ±âÁØ
1 2022³â4¿ù1ÀÏ
¼ÒÀ¯±Ç
ÀÌOO
¼Ò¸ê
2 2022³â4¿ù1ÀÏ
¾àÁ¤/±ÝÁö»çÇ×/ȯ¸ÅƯ¾à
Àμö
3 2023³â6¿ù12ÀÏ
¾Ð·ù
±¹
¼Ò¸ê±âÁØ
4 2023³â7¿ù21ÀÏ
ÀÓÂ÷±Ç¼³Á¤
ÀÌOO
305,000,000 ¼Ò¸ê
5 2024³â11¿ù21ÀÏ
¾Ð·ù
±¹
¼Ò¸ê
6 2025³â4¿ù2ÀÏ
°­Á¦°æ¸Å
ÁÖOOOO
¼Ò¸ê

ÀÓÂ÷ÀÎÇöȲ (¹è´ç¿ä±¸Á¾±âÀÏ: 2025-07-03)

ÀÓÂ÷ÀÎ ¿ëµµ/Á¡À¯ º¸Áõ±Ý/¿ù¼¼ ´ëÇ×·Â
ÀüÀÔÀÏ/È®Á¤ÀÏ ¹è´ç¿ä±¸ ºñ°í
±èOO ¹Ì»ó ¹Ì»ó
[¿ù]¹Ì»ó
X
2024.10.24
¹Ì»ó
¹Ì»ó
ÀÌOO ÀüºÎ 305,000,000
O
2022.04.01.
2022.03.03.
2022.04.01.
ÁÖOOOOOOO ÀüºÎ 305,000,000
O
2022.04.01
2022.03.03
2025.6.27. 2022.04.01 ~2024.03.31
ºñ°í
(¸Å°¢¹°°Ç
¸í¼¼¼­)
ÀÌÀºµ¿:ÁÖÅÃÀÓÂ÷±Çµî±âÀÏÀÚ 2023. 7. 21. ÁÖÅõµ½Ãº¸Áõ°ø»ç:ÀÌ »ç°Ç ½Åûä±ÇÀÚ·Î ÁÖÅÃÀÓÂ÷±ÇÀÚ ÀÌÀºµ¿ÀÇ ÁöÀ§¸¦ ½Â°èÇÏ¿© ±Ç¸®½Å°í ¹× ¹è´ç¿ä±¸

¿©ÀÇÁÖ°æ¸Å Á¶¾ð ÇÑ ¸¶µð

¼±¼øÀ§ ÀÓÂ÷±Çµî±â°¡ µÇ¾î ÀÖ½À´Ï´Ù
´ëÇ×·ÂÀÌ ÀÖ´Â ¼±¼øÀ§ ÀÓÂ÷±Çµî±â ±Ç¸®ÀÚ°¡ ¹è´çÀ» Àü¾× ¹ÞÁö ¸øÇÒ °æ¿ì ³«ÂûÀÚ°¡ ÀÜ¿© º¸Áõ±ÝÀ» ÀμöÇØ¾ßÇÏ´Â °æ¿ìµµ ÀÖ½À´Ï´Ù.

ÁÖÀÇ»çÇ× (ÃÖ¼±¼øÀ§ ¼³Á¤ÀÏ: 2023. 6. 12. ¾Ð·ù ¼³Á¤)

¸Å°¢À¸·Î ¼Ò¸êµÇÁö ¾Ê´Â µî±âºÎ±Ç¸®:
¸Å°¢À¸·Î ¼³Á¤µÈ °ÍÀ¸·Î º¸´Â Áö»ó±Ç:
Ưº°¸Å°¢Á¶°Ç : ä±ÇÀÚ´Â ¸Å¼öÀο¡ ´ëÇØ ¹è´ç¹ÞÁö ¸øÇÏ´Â Àܾ׿¡ ´ëÇÑ ÀÓ´ëÂ÷º¸Áõ±Ý ¹Ýȯû±¸±ÇÀ» Æ÷±âÇϰí, ÀÓÂ÷±Çµî±â¸¦ ¸» ¼ÒÇÏ´Â °ÍÀ» Á¶°ÇÀ¸·Î ¸Å°¢
¡Ø¹Ì³³°ü¸®ºñ(°ø¿ë) Àμö¿©ºÎ¸¦ ÀÔÂû Àü¿¡ È®ÀÎÇϽñ⠹ٶø´Ï´Ù

 

Áö¿ªºÐ¼®

ÁöÇÏö¸í Á÷¼±°Å¸®

Çб³¸í ÀüÈ­¹øÈ£ ÁÖ¼Ò Á÷¼±°Å¸®

¹ý¿ø

¼­¿ï³²ºÎÁö¹æ¹ý¿ø (080-88)¼­¿ïƯº°½Ã ¾çõ±¸ ½Å¿ù·Î 386(½ÅÁ¤µ¿)
´ëÇ¥ : 02)2192-1114
°üÇÒÁö¿ª : ¿µµîÆ÷±¸, °­¼­±¸, ¾çõ±¸, ±¸·Î±¸, ±Ýõ±¸

µî±â¼Ò ¼­¿ï³²ºÎÁö¹æ¹ý¿ø º»¿ø µî±â±¹ (´ëÇ¥:1544-0773, ÆÑ½º:(02)2629-7307, ¼­¿ïƯº°½Ã ¿µµîÆ÷±¸ °æÀηΠ772 (¹®·¡µ¿ 1°¡))
¼¼¹«¼­ °­¼­¼¼¹«¼­ (´ëÇ¥:02-2630-42, ÆÑ½º:02-2679-8777, ¼­¿ïƯº°½Ã °­¼­±¸ ¸¶°î¼­1·Î 60 (¸¶°îµ¿))

Àαٳ«ÂûÅë°è

±â°£ ¸Å°¢°Ç¼ö Æò±Õ°¨Á¤°¡
Æò±Õ¸Å°¢°¡
¸Å°¢°¡À²
Æò±ÕÀ¯Âû¼ö
3°³¿ù 275°Ç 260,925,128¿ø
200,762,497¿ø
77%
2.2ȸ
6°³¿ù 495°Ç 259,670,442¿ø
200,659,976¿ø
78%
2.2ȸ
12°³¿ù 1,014°Ç 258,545,736¿ø
201,658,657¿ø
79%
2.3ȸ


º» °æ¸ÅÁ¤º¸´Â ¹ý¿øÀÚ·á¿Í ÀÏÄ¡Çϵµ·Ï ÇÏ¿´À¸³ª ±Ç¸®»çÇ׺¯µ¿, ÀÔ·ÂÂø¿À µîÀÇ ¿øÀÎÀ¸·Î »ç½Ç°ú ´Ù¸¦ ¼ö ÀÖ½À´Ï´Ù. ÀÌ¿ë¾à°ü¿¡ ÀǰЏéÃ¥Á¶°ÇÀ¸·Î Á¦°øµÊÀ» ¾Ë¸®¸ç, °æ¸ÅÀÔÂû½Ã ¹Ýµå½Ã °ü·Ã °øºÎ¸¦ ÀçÈ®ÀÎÇϽñ⠹ٶø´Ï´Ù. º¸´Ù Æí¸®ÇÑ °æ¸ÅÁ¤º¸ Á¦°øÀ» À§ÇØ Áö¼ÓÀûÀ¸·Î °³¼±ÇϰڽÀ´Ï´Ù. ÀÌ¿ëÇØ Áּż­ °¨»çÇÕ´Ï´Ù.