·Î±×ÀÎ
30
´Ù¼¼´ë(ºô¶ó)
¼­¿ï³²ºÎÁö¹æ¹ý¿ø
 °¨Á¤°¡206,000,000 ¿ø
 ÃÖÀú°¡(80%) 164,800,000 ¿ø
 º¸Áõ±Ý(10%) 16,480,000 ¿ø
 Ã»±¸¾×240,000,000 ¿ø
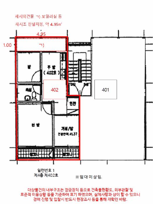
¼­¿ïƯº°½Ã °­¼­±¸ È­°îµ¿ 1016-27 Á¦4Ãþ Á¦402È£
»ç°Ç¹øÈ£ 2025Ÿ°æ8480
°æ¸ÅÁ¾·ùºÎµ¿»ê°­Á¦°æ¸Å
¸Å°¢´ë»óÅäÁö ¹× °Ç¹°Àϰý ¸Å°¢
¸Å°¢±âÀÏ    2026.01.07(¼ö) 10:00 ÀÔÂû 44ÀÏÀü    
ÅäÁö¸éÀû16.40§³(4.96 Æò)
°Ç¹°¸éÀû46.32§³(14.01 Æò)
乫/¼ÒÀ¯ÀÚ°­OO / °­OO
ä±ÇÀÚÁÖOOOOOOO
ÆäÀ̽ººÏ Æ®À§ÅÍ ±¸±Û+
īī¿À½ºÅ丮
īī¿ÀÅå sms¹®ÀÚº¸³»±â
 

±âÀϳ»¿ª

°æ°ú ³¯Â¥ Àú°¨ ÃÖÀú°¡ °á°ú
Á¢¼öÀÏ 2025-02-10 °æ¸ÅÁ¢¼ö
~1ÀÏ 
2025-02-11 °æ¸Å°³½Ã°áÁ¤
~93ÀÏ 
2025-05-14 ¹è´ç¿ä±¸Á¾±âÀÏ
~274ÀÏ 
2025-11-11 100%
206,000,000
À¯Âû
~331ÀÏ 
2026-01-07 80%
164,800,000
ÁøÇà
¹°°Ç¸í¼¼¼­ ÇöȲÁ¶»ç¼­ ¹®°ÇÁ¢¼ö ¼Û´Þ³»¿ª

°¨Á¤Æò°¡ÇöȲ

¸ñ·Ï ÁÖ¼Ò ±¸Á¶/¿ëµµ/´ëÁö±Ç ¸éÀû ºñ°í
´ëÁö±Ç
È­°îµ¿ 1016-27 153.8ºÐÀÇ 16.4 16.4 §³
(4.96Æò)
°Ç¹°
È­°îµ¿ 1016-27 Á¦4Ãþ Á¦402È£ ö±ÙÄÜÅ©¸®Æ®Á¶ 41.37 §³
(12.51Æò)
Á¦½Ã¿Ü
°Ç¹°
È­°îµ¿ 1016-27 º¸ÀÏ·¯½Ç µî 4.95 §³
(1.50Æò)
Æ÷ÇÔ
1) À§Ä¡/µµ½ÃÁö¿ª/Á¦2Á¾ÀϹÝÁÖ°ÅÁö¿ª/¹ö½ºÁ¤·ùÀå/ÁöÇÏö/ö±ÙÄÜÅ©¸®Æ®Á¶/Æò½½·¡ºêÁöºØ ´õº¸±â
°¨Á¤Æò°¡ ¿äÇ×Ç¥
1)À§Ä¡ ¹× ÁÖÀ§È¯°æ
´ë»ó¹°°ÇÀº ¼­¿ïƯº°½Ã °­¼­±¸ È­°îµ¿ ¼ÒÀç 'Ǫ¸¥µé û¼Ò³âµµ¼­°ü' ¼­Ãø Àαٿ¡ À§Ä¡Çϸç,
ÁÖÀ§´Â ´Üµ¶ÁÖÅÃ, ´Ù¼¼´ëÁÖÅà ¹× ±Ù¸°»ýȰ½Ã¼³ µîÀÌ ¼ÒÀçÇÏ´Â µî ÁÖÀ§È¯°æÀº º¸ÅëÀÓ.
2)±³Åë»óȲ
´ë»ó¹°°Ç±îÁö Â÷·®ÀÇ ÁøÃâÀÔ °¡´ÉÇϸç Àαٿ¡ ³ë¼± ¹ö½ºÁ¤·ùÀå ¹× ÁöÇÏö¿ª µîÀÌ ¼ÒÀçÇÏ´Â
µî ±³Åë»óȲÀº º¸ÅëÀÓ.
3)°Ç¹°ÀÇ ±¸Á¶
ö±ÙÄÜÅ©¸®Æ®Á¶ Æò½½·¡ºêÁöºØ 5Ãþ °Ç¹° ³» Á¦4Ãþ Á¦402È£·Î¼­,
¿Ü º® : µå¶óÀ̺ñÆ® ¸¶°¨ µî,
â È£ : »õ½Ã âȣ µîÀÓ.
4)ÀÌ¿ë»óÅÂ
ÀϷùøÈ£ 1Àº ¡®´Ù¼¼´ëÁÖÅá¯À¸·Î ÀÌ¿ëÁßÀÓ.
5)¼³ºñ³»¿ª
Åë»óÀÇ ±Þ¡¤¹è¼ö¼³ºñ ¹× À§»ý¼³ºñ, ³­¹æ¼³ºñ µîÀÌ µÇ¾îÀÖÀ½.
6)ÅäÁöÀÇ Çü»ó ¹× ÀÌ¿ë»óÅÂ
ÀÎÁ¢ÇÊÁö ´ëºñ µî°íÆòźÇÑ ¼¼ÀåÇü ÅäÁö·Î¼­, °ÇºÎÁö·Î ÀÌ¿ëÁßÀÓ.
7)ÀÎÁ¢ µµ·Î»óŵî
´ë»ó¹°°ÇÀÇ ºÏÃøÀ¸·Î ³ëÆø ¾à 8¹ÌÅÍ µµ·Î¿¡ Á¢ÇÔ.
8)ÅäÁöÀÌ¿ë°èȹ ¹× Á¦ÇÑ»óÅÂ
µµ½ÃÁö¿ª, Á¦2Á¾ÀϹÝÁÖ°ÅÁö¿ª(7ÃþÀÌÇÏ), Áß¿ä½Ã¼³¹°º¸È£Áö±¸(°øÇ×), °¡Ãà»çÀ°Á¦Çѱ¸¿ª(Áö¿ª
°æÁ¦°ú È®ÀÎ ¿ä¸Á)<°¡ÃàºÐ´¢ÀÇ °ü¸® ¹× À̿뿡 °üÇÑ ¹ý·ü>, ¼öÆòÇ¥¸é±¸¿ª(¼öÆòÇ¥¸é)<°øÇ×
½Ã¼³¹ý>, ´ë°ø¹æ¾îÇùÁ¶±¸¿ª(À§Å¹°íµµ:77-257m)<±º»ç±âÁö ¹× ±º»ç½Ã¼³ º¸È£¹ý>, °ú¹Ð¾ïÁ¦±Ç¿ª
<¼öµµ±ÇÁ¤ºñ°èȹ¹ý>.
9)°øºÎ¿ÍÀÇ Â÷ÀÌ
¾øÀ½.
10)±âŸÂü°í»çÇ×(ÀÓ´ë°ü·Ê ¹× ±âŸ)
- ÀÓ´ë°ü°è ¹Ì»óÀÓ.

- ´ë»ó¹°°ÇÀÇ ³»ºÎ±¸Á¶´Â Àá±ÝÀåÄ¡ ¹× ÀÌÇØ°ü°èÀÎÀÇ ºÎÀç·Î ÀÎÇÏ¿© °ÇÃ๰ÇöȲµµ¸é, ¿ÜºÎ
°üÂû ¹× Ç¥ÁØÀû ÀÌ¿ë»óȲ µîÀ» ±âÁØÇÏ¿© ÈÄ÷¡®³»ºÎ±¸Á¶¡¯¿Í °°ÀÌ Ç¥±â ÇÏ¿´À¸¸ç, ½ÇÁ¦
»çÇ×°ú »óÀÌ ÇÒ ¼ö ÀÖÀ¸´Ï °æ¸Å ÁøÇà ¹× ÀÔÂû½Ã ¹Ýµå½Ã ÇöÀåÁ¶»ç µîÀ» ÅëÇØ ÀçÈ®ÀÎ ¹Ù¶÷.

- ´ë»ó¹°°Ç¿¡ ¼ÒÀçÇÏ´Â Á¦½Ã¿Ü °Ç¹° ¤¡)Àº °Å·¡°üÇà µîÀ» °í·ÁÇÏ¿© ´ë»ó¹°°Ç¿¡ Æ÷ÇÔÇÏ¿©
°¨Á¤Æò°¡ ÇÏ¿´À¸¸ç, Á¦½Ã¿Ü °Ç¹°ÀÇ Àû¹ý¼º ¿©ºÎ µîÀº °æ¸Å ÁøÇà ¹× ÀÔÂû½Ã °üÇÒ ±¸Ã» µî¿¡
ÀçÈ®ÀÎ ¹Ù¶÷.
Âü°í
»çÇ×
Á¦½Ã¿Ü °Ç¹° Æ÷ÇÔ, ÀÓÂ÷ÀÎ ¹× ÁÖÅÃÀÓÂ÷±Ç ½Â°èÀÎ ÁÖÅõµ½Ãº¸Áõ°ø»çÀÇ ¸Å¼öÀο¡ ´ëÇÑ ´ëÇ×·Â Æ÷±â Á¶°Ç ¸Å°¢
°Ç¹° ¿Üº®¿¡

°ÇÃ๰ÇöȲ

¼ÒÀçÁö ¼­¿ïƯº°½Ã °­¼­±¸ È­°îµ¿ 1016-27¹øÁö
´ëÁö¸éÀû 153.8§³
(46.61Æò)
¿¬¸éÀû 494.49§³
(149.85Æò)
°ÇÃà¸éÀû 92.22§³
(27.95Æò)
¿ëÀû·ü»êÁ¤
¿¬¸éÀû
433.35§³
(131.32Æò)
°ÇÆóÀ² 59.96% ¿ëÀû·ü 281.76%
Áö»óÃþ¼ö 5Ãþ ÁöÇÏÃþ¼ö 1Ãþ
ÁÖ¿ëµµ °øµ¿ÁÖÅà ±¸Á¶ ö±ÙÄÜÅ©¸®Æ®±¸Á¶
Âø°øÀÏÀÚ 2001.10.26 »ç¿ë½ÂÀÎÀÏÀÚ 2002.04.04
°ÇÃ๰Ãþº°ÇöȲ [º¸±â]


±¹ÅäºÎ½Ç°Å·¡°¡ ¼­¿ïƯº°½Ã °­¼­±¸ È­°îµ¿

¡Ü ¸Å¸Å

¸éÀû(§³), ±Ý¾×(¸¸¿ø)

¡Ü Àü¼¼

¸éÀû(§³), ±Ý¾×(¸¸¿ø)

°è¾àÀϰǹ°¸íĪÃþ¿¬¸éÀû´ëÁö±Ý¾×°ÇÃà
24.03.30ÇÏÀÌÆ®¸Ç¼Ç159.3127.8923,0002000
24.03.30´õŬ·¡½Ä(857-19)628.5218.221,5002018
24.03.30ÇØºñÄ¡ºô226.2315.3722,2002019
24.03.30µ¿µµÇÏÀÌÃ÷ºô¶ó(56-335)158.5629.415,0002000
24.03.30¸®´õ½ºÅ¸¿î529.8819.321,9002016
¢Ñ ´õº¸±â

µî±âºÎµîº» ¿ä¾à(°Ç¹°)

  Á¢¼öÀÏÀÚ µî±â¸ñÀû/±Ç¸®ÀÚ ±Ç¸®±Ý¾× ±âÁØ
1 2021³â12¿ù30ÀÏ
¼ÒÀ¯±Ç
°­OO
¼Ò¸ê
2 2023³â3¿ù2ÀÏ
¾Ð·ù
±¹
¼Ò¸ê±âÁØ
3 2024³â1¿ù5ÀÏ
ÀÓÂ÷±Ç¼³Á¤
ÀÌOO
240,000,000 ¼Ò¸ê
4 2024³â11¿ù7ÀÏ
¾Ð·ù
°­OO
¼Ò¸ê
5 2025³â2¿ù11ÀÏ
°­Á¦°æ¸Å
ÁÖOOOO
¼Ò¸ê

ÀÓÂ÷ÀÎÇöȲ (¹è´ç¿ä±¸Á¾±âÀÏ: 2025-05-14)

ÀÓÂ÷ÀÎ ¿ëµµ/Á¡À¯ º¸Áõ±Ý/¿ù¼¼ ´ëÇ×·Â
ÀüÀÔÀÏ/È®Á¤ÀÏ ¹è´ç¿ä±¸ ºñ°í
ÀÌOO ÀüºÎ 240,000,000
O
2021.12.20.
2021.11.16.
2021.12.20.
ÁÖOOOOOOO ÀüºÎ 240,000,000
O
2021.12.20
2021.11.16
2025.2.10. 2021.12.20.~2023.12.19
ºñ°í
(¸Å°¢¹°°Ç
¸í¼¼¼­)
À̽ÂÇö:ÁÖÅÃÀÓÂ÷±Çµî±âÀÏÀÚ 2024. 1. 5. ÁÖÅõµ½Ãº¸Áõ°ø»ç:ÀÌ »ç°Ç ½Åûä±ÇÀÚ·Î ÁÖÅÃÀÓÂ÷±ÇÀÚ À̽ÂÇöÀÇ ÁöÀ§¸¦ ½Â°èÇÏ¿© ±Ç¸®½Å°í ¹× ¹è´ç¿ä±¸, ±Ç¸®½Å°í ¹× ¹è´ç¿ä±¸ ÀÏÀº °æ¸Å½ÅûÀÏ

¿©ÀÇÁÖ°æ¸Å Á¶¾ð ÇÑ ¸¶µð

¼±¼øÀ§ ÀÓÂ÷±Çµî±â°¡ µÇ¾î ÀÖ½À´Ï´Ù
´ëÇ×·ÂÀÌ ÀÖ´Â ¼±¼øÀ§ ÀÓÂ÷±Çµî±â ±Ç¸®ÀÚ°¡ ¹è´çÀ» Àü¾× ¹ÞÁö ¸øÇÒ °æ¿ì ³«ÂûÀÚ°¡ ÀÜ¿© º¸Áõ±ÝÀ» ÀμöÇØ¾ßÇÏ´Â °æ¿ìµµ ÀÖ½À´Ï´Ù.
Á¦½Ã¿Ü ¹°°ÇÀÌ Æ÷ÇԵǾî ÀÖ½À´Ï´Ù
¡®Á¦½Ã¿Ü ¹°°Ç¡¯Àº ÇØ´ç °øºÎ»ó¿¡´Â Á¸ÀçÇÏÁö ¾ÊÁö¸¸, ÇöÀå¿¡ Á¸Àç°¡ È®ÀεǴ ¿©·¯ ÇüÅÂÀÇ °Ç¹°, ±â°è±â±¸ µîÀ» ¸»ÇÕ´Ï´Ù. ÀÌµé ´ëºÎºÐÀº ¹«Çã°¡, ¹«½Å°íÀ̰ųª »ç¿ë½ÂÀÎÀ» ¹ÞÁö ¾ÊÀº °ÍÀÔ´Ï´Ù. ¡®Á¦½Ã¿Ü ¹°°Ç¡¯ÀÌ °æ¸Å´ë»ó¿¡ Æ÷ÇԵǾî ÀÖ´Ù¸é ³«ÂûÀÚÀÇ ¼ÒÀ¯±Ç Ãëµæ¿¡´Â ¾Æ¹«·± ¹®Á¦°¡ ¾ø½À´Ï´Ù.

ÁÖÀÇ»çÇ× (ÃÖ¼±¼øÀ§ ¼³Á¤ÀÏ: 2023. 3. 2. ¾Ð·ù ¼³Á¤)

¸Å°¢À¸·Î ¼Ò¸êµÇÁö ¾Ê´Â µî±âºÎ±Ç¸®:
¸Å°¢À¸·Î ¼³Á¤µÈ °ÍÀ¸·Î º¸´Â Áö»ó±Ç:
-Á¦½Ã¿Ü °Ç¹° Æ÷ÇÔ -Ưº°¸Å°¢Á¶°Ç : ä±ÇÀÚ´Â ¸Å¼öÀο¡ ´ëÇØ ¹è´ç¹ÞÁö ¸øÇÏ´Â Àܾ׿¡ ´ëÇÑ ÀÓ´ëÂ÷º¸Áõ±Ý ¹Ýȯû±¸±ÇÀ» Æ÷±âÇϰí, ÀÓÂ÷±Çµî±â¸¦ ¸» ¼ÒÇÏ´Â °ÍÀ» Á¶°ÇÀ¸·Î ¸Å°¢
¡Ø¹Ì³³°ü¸®ºñ(°ø¿ë) Àμö¿©ºÎ¸¦ ÀÔÂû Àü¿¡ È®ÀÎÇϽñ⠹ٶø´Ï´Ù

 

Áö¿ªºÐ¼®

ÁöÇÏö¸í Á÷¼±°Å¸®

Çб³¸í ÀüÈ­¹øÈ£ ÁÖ¼Ò Á÷¼±°Å¸®

¹ý¿ø

¼­¿ï³²ºÎÁö¹æ¹ý¿ø (080-88)¼­¿ïƯº°½Ã ¾çõ±¸ ½Å¿ù·Î 386(½ÅÁ¤µ¿)
´ëÇ¥ : 02)2192-1114
°üÇÒÁö¿ª : ¿µµîÆ÷±¸, °­¼­±¸, ¾çõ±¸, ±¸·Î±¸, ±Ýõ±¸

µî±â¼Ò ¼­¿ï³²ºÎÁö¹æ¹ý¿ø º»¿ø µî±â±¹ (´ëÇ¥:1544-0773, ÆÑ½º:(02)2629-7307, ¼­¿ïƯº°½Ã ¿µµîÆ÷±¸ °æÀηΠ772 (¹®·¡µ¿ 1°¡))
¼¼¹«¼­ °­¼­¼¼¹«¼­ (´ëÇ¥:02-2630-42, ÆÑ½º:02-2679-8777, ¼­¿ïƯº°½Ã °­¼­±¸ ¸¶°î¼­1·Î 60 (¸¶°îµ¿))

Àαٳ«ÂûÅë°è

±â°£ ¸Å°¢°Ç¼ö Æò±Õ°¨Á¤°¡
Æò±Õ¸Å°¢°¡
¸Å°¢°¡À²
Æò±ÕÀ¯Âû¼ö
3°³¿ù 275°Ç 260,925,128¿ø
200,762,497¿ø
77%
2.2ȸ
6°³¿ù 495°Ç 259,670,442¿ø
200,659,976¿ø
78%
2.2ȸ
12°³¿ù 1,014°Ç 258,545,736¿ø
201,658,657¿ø
79%
2.3ȸ


º» °æ¸ÅÁ¤º¸´Â ¹ý¿øÀÚ·á¿Í ÀÏÄ¡Çϵµ·Ï ÇÏ¿´À¸³ª ±Ç¸®»çÇ׺¯µ¿, ÀÔ·ÂÂø¿À µîÀÇ ¿øÀÎÀ¸·Î »ç½Ç°ú ´Ù¸¦ ¼ö ÀÖ½À´Ï´Ù. ÀÌ¿ë¾à°ü¿¡ ÀǰЏéÃ¥Á¶°ÇÀ¸·Î Á¦°øµÊÀ» ¾Ë¸®¸ç, °æ¸ÅÀÔÂû½Ã ¹Ýµå½Ã °ü·Ã °øºÎ¸¦ ÀçÈ®ÀÎÇϽñ⠹ٶø´Ï´Ù. º¸´Ù Æí¸®ÇÑ °æ¸ÅÁ¤º¸ Á¦°øÀ» À§ÇØ Áö¼ÓÀûÀ¸·Î °³¼±ÇϰڽÀ´Ï´Ù. ÀÌ¿ëÇØ Áּż­ °¨»çÇÕ´Ï´Ù.