·Î±×ÀÎ
60
¾ÆÆÄÆ®
ÀÇÁ¤ºÎÁö¹æ¹ý¿ø ³²¾çÁÖÁö¿ø
 °¨Á¤°¡446,000,000 ¿ø
 ÃÖÀú°¡(70%) 312,200,000 ¿ø
 º¸Áõ±Ý(10%) 31,220,000 ¿ø
 Ã»±¸¾×279,802,400 ¿ø
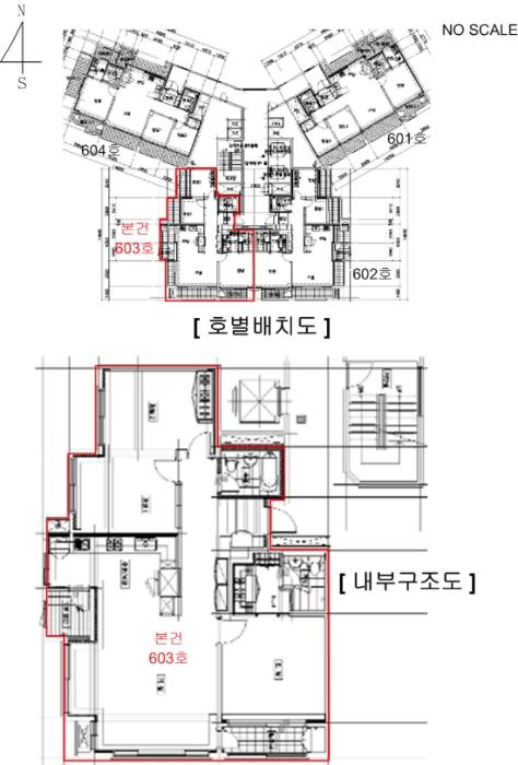
°æ±âµµ ³²¾çÁֽà ÁøÁ¢À¾ ÇØ¹Ð¿¹´ç1·Î 49, 1106µ¿ 6Ãþ603È£ (³²¾çÈÞÆ°¾ÆÆÄÆ®)
°æ±âµµ ³²¾çÁֽà ÁøÁ¢À¾ ±Ý°î¸® 961
»ç°Ç¹øÈ£ 2024Ÿ°æ80316
°æ¸ÅÁ¾·ùºÎµ¿»êÀÓÀǰæ¸Å
¸Å°¢´ë»óÅäÁö ¹× °Ç¹°Àϰý ¸Å°¢
¸Å°¢±âÀÏ    2025.12.16(È­) 10:30 ÀÔÂû 10ÀÏÀü    
ÅäÁö¸éÀû59.01§³(17.85 Æò)
°Ç¹°¸éÀû85.00§³(25.71 Æò)
乫/¼ÒÀ¯ÀÚÃÖOO / ÃÖOO
ä±ÇÀÚ¿¥OOOOO OOOO(OOOOOOOOOOOOO)
ÆäÀ̽ººÏ Æ®À§ÅÍ ±¸±Û+
īī¿À½ºÅ丮
īī¿ÀÅå sms¹®ÀÚº¸³»±â
 

±âÀϳ»¿ª

°æ°ú ³¯Â¥ Àú°¨ ÃÖÀú°¡ °á°ú
Á¢¼öÀÏ 2024-07-26 °æ¸ÅÁ¢¼ö
~3ÀÏ 
2024-07-29 °æ¸Å°³½Ã°áÁ¤
~80ÀÏ 
2024-10-14 ¹è´ç¿ä±¸Á¾±âÀÏ
~473ÀÏ 
2025-11-11 100%
446,000,000
À¯Âû
~508ÀÏ 
2025-12-16 70%
312,200,000
ÁøÇà
¹°°Ç¸í¼¼¼­ ÇöȲÁ¶»ç¼­ ¹®°ÇÁ¢¼ö ¼Û´Þ³»¿ª

°¨Á¤Æò°¡ÇöȲ

¸ñ·Ï ÁÖ¼Ò ±¸Á¶/¿ëµµ/´ëÁö±Ç ¸éÀû ºñ°í
´ëÁö±Ç
±Ý°î¸® 961 26757.9ºÐÀÇ 59.005 59.005 §³
(17.85Æò)
°Ç¹°
±Ý°î¸® 961 1106µ¿ 6Ãþ603È£ ö±ÙÄÜÅ©¸®Æ®±¸Á¶ 84.9958 §³
(25.71Æò)
1) À§Ä¡/Á¦3Á¾ÀϹÝÁÖ°ÅÁö¿ª/Áö±¸´ÜÀ§°èȹ±¸¿ª/ÁöÇÏö/³ë¼±¹ö½ºÁ¤·ùÀå/°æ»çÁöºØ/¹æ3/È­Àå½Ç2 ´õº¸±â
°¨Á¤Æò°¡ ¿äÇ×Ç¥
1)À§Ä¡ ¹× ÁÖÀ§È¯°æ
º»°ÇÀº °æ±âµµ ³²¾çÁֽà ÁøÁ¢À¾ ±Ý°î¸®¿¡ ¼ÒÀçÇÏ´Â "ÁøÁ¢°íµîÇб³" ³²¼­Ãø Àαٿ¡ À§Ä¡Çϸç ÀαÙÀº ÅÃÁö°³¹ßÁö±¸ ³» ´ë±Ô¸ð ¾ÆÆÄÆ®´ÜÁö ¹× ±Ù¸°»ýȰ½Ã¼³ µîÀÌ ¹ÐÁýµÇ¾î ÀÖ´Â ÁÖ°ÅÁö´ë·Î¼­ Á¦¹Ý ÁÖÀ§¿©°ÇÀº º¸ÅëÀÓ.
2)±³Åë»óȲ
º»°Ç±îÁö Á¦¹Ý Â÷·® ÁøÃâÀÔÀÌ ÀÚÀ¯·Î¿ì¸ç Àαٿ¡ ³ë¼±¹ö½ºÁ¤·ùÀåÀÌ À§Ä¡Çϰí ÀÖÀ¸¸ç ±Ù°Å¸®¿¡ ÁöÇÏö4È£¼± "¿À³²¿ª"ÀÌ À§Ä¡Çϰí ÀÖ¾î Á¦¹Ý ´ëÁß±³Åë¿©°ÇÀº ¾çÈ£ÇÔ.
3)°Ç¹°ÀÇ ±¸Á¶
ö±ÙÄÜÅ©¸®Æ®(º®½Ä±¸Á¶) °æ»çÁöºØ 20Ãþ °Ç¹° ³» Á¦6Ãþ Á¦603È£·Î¼­(»ç¿ë½ÂÀÎÀÏ:2010.02.21)

¿Üº® : ¼¼¸à¸ôÅ»À§ ÆäÀÎÆ®¸¶°¨.
³»º® : º®Áö ¹× ÀϺΠŸÀϸ¶°¨.
âȣ : ¹ßÄڴϼ¦½ÃâȣÀÓ.
4)ÀÌ¿ë»óÅÂ
¾ÆÆÄÆ®(¹æ3, °Å½Ç, ÁÖ¹æ°â½Ä´ç, ¿å½Ç°âÈ­Àå½Ç2, µå·¹½º·ë, ¹ßÄÚ´Ï, Çö°ü µî)·Î ÀÌ¿ëÁßÀÓ.
5)¼³ºñ³»¿ª
À§»ý ¹× ±Þ¹è¼ö½Ã¼³ µÇ¾î ÀÖÀ¸¸ç ½Â°­±â, ¼ÒÈ­Àü, ³­¹æ¼³ºñ µÇ¾î ÀÖÀ½.


6)ÅäÁöÀÇ Çü»ó ¹× ÀÌ¿ë»óÅÂ
ÀÎÁ¢Áö ¹× µµ·Î¿Í ´ëü·Î µî°í ÆòźÇÑ »ç´Ù¸®ÇüÀÇ ÅäÁö·Î¼­ ¾ÆÆÄÆ® °ÇºÎÁö·Î ÀÌ¿ëÁßÀÓ.
7)ÀÎÁ¢ µµ·Î»óŵî
´ÜÁö ³» Æ÷Àåµµ·Î µÇ¾î ÀÖÀ¸¸ç ºÏÃøÀ¸·Î ¿ÜºÎ °øµµ¿Í ¿¬°èµÇ¾î ÀÖÀ½.
8)ÅäÁöÀÌ¿ë°èȹ ¹× Á¦ÇÑ»óÅÂ
Á¦3Á¾ÀϹÝÁÖ°ÅÁö¿ª, Áö±¸´ÜÀ§°èȹ±¸¿ª(ÁøÁ¢ÅÃÁöÁö±¸), Áß·Î2·ù(Æø 15m-20m)(Á¢ÇÕ), °¡Ãà»çÀ°Á¦Çѱ¸¿ª, ¹èÃâ½Ã¼³¼³Ä¡Á¦ÇÑÁö¿ª, ¼ºÀå°ü¸®±Ç¿ª, ÅÃÁö°³¹ßÁö±¸(ÁøÁ¢ÅÃÁö°³¹ßÁö±¸), (ÇѰ­)Æó±â¹°¸Å¸³½Ã¼³ ¼³Ä¡Á¦ÇÑÁö¿ªÀÓ.
9)°øºÎ¿ÍÀÇ Â÷ÀÌ
¾ø À½.
10)±âŸÂü°í»çÇ×(ÀÓ´ë°ü·Ê ¹× ±âŸ)
ÀÓ´ë ¹× Á¡À¯°ü°è´Â ¹Ì»óÀÓ.
Âü°í
»çÇ×

ÀÌ »ç°Ç ºÎµ¿»êÀº ÁÖ°Å¿ë ¾ÆÆÄÆ®ÀÓ

°ÇÃ๰ÇöȲ

¼ÒÀçÁö °æ±âµµ ³²¾çÁֽà ÁøÁ¢À¾ ±Ý°î¸® 961¹øÁö
´ëÁö¸éÀû   ¿¬¸éÀû 5055.6107§³
(1532Æò)
°ÇÃà¸éÀû 468.5361§³
(141.98Æò)
¿ëÀû·ü»êÁ¤
¿¬¸éÀû
5005.28§³
(1516.75Æò)
°ÇÆóÀ²   ¿ëÀû·ü  
Áö»óÃþ¼ö 15Ãþ ÁöÇÏÃþ¼ö 1Ãþ
ÁÖ¿ëµµ °øµ¿ÁÖÅà ±¸Á¶ ö±ÙÄÜÅ©¸®Æ®±¸Á¶
Âø°øÀÏÀÚ 2007.09.01 »ç¿ë½ÂÀÎÀÏÀÚ 2010.02.21
°ÇÃ๰Ãþº°ÇöȲ [º¸±â]


±¹ÅäºÎ½Ç°Å·¡°¡ °æ±âµµ ³²¾çÁֽà ÁøÁ¢À¾

¡Ü ¸Å¸Å

¸éÀû(§³), ±Ý¾×(¸¸¿ø)

¡Ü Àü¼¼

¸éÀû(§³), ±Ý¾×(¸¸¿ø)

°è¾àÀÏARTÃþÀü¿ë±Ý¾×°ÇÃà
24.03.20³²¾çÈÞÆ°984.976742,0002010
24.03.17³²¾çÈÞÆ°1784.995841,7502010
24.01.24³²¾çÈÞÆ°284.976740,0002010
24.01.24³²¾çÈÞÆ°284.976740,0002010
24.01.18³²¾çÈÞÆ°584.995842,9002010

µî±âºÎµîº» ¿ä¾à(°Ç¹°)

  Á¢¼öÀÏÀÚ µî±â¸ñÀû/±Ç¸®ÀÚ ±Ç¸®±Ý¾× ±âÁØ
1 2010³â4¿ù20ÀÏ
¼ÒÀ¯±Ç
ÃÖOO
¼Ò¸ê
2 2020³â8¿ù3ÀÏ
±ÙÀú´ç±Ç
¿¥OOOO
330,000,000 ¼Ò¸ê±âÁØ
3 2021³â5¿ù10ÀÏ
±ÙÀú´ç±Ç
¾ÆOOOO
297,000,000 ¼Ò¸ê
4 2021³â11¿ù15ÀÏ
±ÙÀú´ç±Ç
¾ÆOOOO
53,300,000 ¼Ò¸ê
5 2024³â7¿ù29ÀÏ
ÀÓÀǰæ¸Å
´ëOOOO
¼Ò¸ê

ÀÓÂ÷ÀÎÇöȲ (¹è´ç¿ä±¸Á¾±âÀÏ: 2024-10-14)


Á¶»çµÈ ÀÓÂ÷³»¿ªÀÌ ¾ø½À´Ï´Ù


¿©ÀÇÁÖ°æ¸Å Á¶¾ð ÇÑ ¸¶µð


ÁÖÀÇ»çÇ× (ÃÖ¼±¼øÀ§ ¼³Á¤ÀÏ: 2020. 8. 3. ±ÙÀú´ç±Ç ¼³Á¤)

¸Å°¢À¸·Î ¼Ò¸êµÇÁö ¾Ê´Â µî±âºÎ±Ç¸®:
¸Å°¢À¸·Î ¼³Á¤µÈ °ÍÀ¸·Î º¸´Â Áö»ó±Ç:
¡Ø¹Ì³³°ü¸®ºñ(°ø¿ë) Àμö¿©ºÎ¸¦ ÀÔÂû Àü¿¡ È®ÀÎÇϽñ⠹ٶø´Ï´Ù

 

Áö¿ªºÐ¼®

ÁöÇÏö¸í Á÷¼±°Å¸®

Çб³¸í ÀüÈ­¹øÈ£ ÁÖ¼Ò Á÷¼±°Å¸®

¹ý¿ø

ÀÇÁ¤ºÎÁö¹æ¹ý¿ø ³²¾çÁÖÁö¿ø (122-49)°æ±âµµ ³²¾çÁֽà ´Ù»êÁß¾Ó·Î82¹ø¾È±æ 161(´Ù»êµ¿)
´ëÇ¥ : 031)869-4114
°üÇÒÁö¿ª : °¡Æò±º, ±¸¸®½Ã, ³²¾çÁÖ½Ã

µî±â¼Ò ÀÇÁ¤ºÎÁö¹æ¹ý¿ø º»¿ø ³²¾çÁÖµî±â¼Ò (´ëÇ¥:1544-0773, ÆÑ½º:(031)551-2010, °æ±âµµ ³²¾çÁֽà °æÃá·Î 514 (Áö±Ýµ¿ 158-4))
¼¼¹«¼­ ³²¾çÁÖ¼¼¹«¼­ (´ëÇ¥:031-550-32, ÆÑ½º:031-566-1808, °æ±âµµ ±¸¸®½Ã ¾È°ñ·Î 36 (±³¹®µ¿))

Àαٳ«ÂûÅë°è

±â°£ ¸Å°¢°Ç¼ö Æò±Õ°¨Á¤°¡
Æò±Õ¸Å°¢°¡
¸Å°¢°¡À²
Æò±ÕÀ¯Âû¼ö
3°³¿ù 91°Ç 452,648,352¿ø
387,209,658¿ø
84%
1ȸ
6°³¿ù 178°Ç 463,044,944¿ø
394,537,527¿ø
84%
1.1ȸ
12°³¿ù 308°Ç 465,383,117¿ø
395,487,051¿ø
83%
1.1ȸ


º» °æ¸ÅÁ¤º¸´Â ¹ý¿øÀÚ·á¿Í ÀÏÄ¡Çϵµ·Ï ÇÏ¿´À¸³ª ±Ç¸®»çÇ׺¯µ¿, ÀÔ·ÂÂø¿À µîÀÇ ¿øÀÎÀ¸·Î »ç½Ç°ú ´Ù¸¦ ¼ö ÀÖ½À´Ï´Ù. ÀÌ¿ë¾à°ü¿¡ ÀǰЏéÃ¥Á¶°ÇÀ¸·Î Á¦°øµÊÀ» ¾Ë¸®¸ç, °æ¸ÅÀÔÂû½Ã ¹Ýµå½Ã °ü·Ã °øºÎ¸¦ ÀçÈ®ÀÎÇϽñ⠹ٶø´Ï´Ù. º¸´Ù Æí¸®ÇÑ °æ¸ÅÁ¤º¸ Á¦°øÀ» À§ÇØ Áö¼ÓÀûÀ¸·Î °³¼±ÇϰڽÀ´Ï´Ù. ÀÌ¿ëÇØ Áּż­ °¨»çÇÕ´Ï´Ù.