·Î±×ÀÎ
9
±Ù¸°»ó°¡
¼ö¿øÁö¹æ¹ý¿ø
 °¨Á¤°¡605,000,000 ¿ø
 ÃÖÀú°¡(70%) 423,500,000 ¿ø
 º¸Áõ±Ý(10%) 42,350,000 ¿ø
 Ã»±¸¾×328,199,180 ¿ø
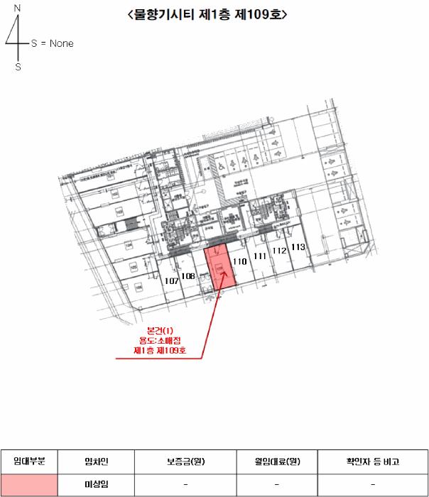
°æ±âµµ ¿À»ê½Ã ¼öûµ¿ 611-4 ¹°Çâ±â½ÃƼ 1Ãþ109È£
»ç°Ç¹øÈ£ 2025Ÿ°æ54261
°æ¸ÅÁ¾·ùºÎµ¿»êÀÓÀǰæ¸Å
¸Å°¢´ë»óÅäÁö ¹× °Ç¹°Àϰý ¸Å°¢
¸Å°¢±âÀÏ    2025.12.10(¼ö) 10:00 ÀÔÂû 26ÀÏÀü    
ÅäÁö¸éÀû11.14§³(3.37 Æò)
°Ç¹°¸éÀû41.49§³(12.55 Æò)
乫/¼ÒÀ¯ÀÚ¾ÈOO / ¾ÈOO
ä±ÇÀÚÆÈOOOOOO
ÆäÀ̽ººÏ Æ®À§ÅÍ ±¸±Û+
īī¿À½ºÅ丮
īī¿ÀÅå sms¹®ÀÚº¸³»±â
 

±âÀϳ»¿ª

°æ°ú ³¯Â¥ Àú°¨ ÃÖÀú°¡ °á°ú
Á¢¼öÀÏ 2025-01-31 °æ¸ÅÁ¢¼ö
~6ÀÏ 
2025-02-06 °æ¸Å°³½Ã°áÁ¤
~83ÀÏ 
2025-04-24 ¹è´ç¿ä±¸Á¾±âÀÏ
~283ÀÏ 
2025-11-10 100%
605,000,000
À¯Âû
~313ÀÏ 
2025-12-10 70%
423,500,000
ÁøÇà
¹°°Ç¸í¼¼¼­ ÇöȲÁ¶»ç¼­ ¹®°ÇÁ¢¼ö ¼Û´Þ³»¿ª

°¨Á¤Æò°¡ÇöȲ

¸ñ·Ï ÁÖ¼Ò ±¸Á¶/¿ëµµ/´ëÁö±Ç ¸éÀû ºñ°í
´ëÁö±Ç
¼öûµ¿ 611-4 2562ºÐÀÇ 11.14 11.14 §³
(3.37Æò)
°Ç¹°
¼öûµ¿ 611-4 1Ãþ109È£ ö±ÙÄÜÅ©¸®Æ®Á¶ 41.49 §³
(12.55Æò)
1) À§Ä¡/µµ½ÃÁö¿ª/ÀϹݻó¾÷Áö¿ª/Áö±¸´ÜÀ§°èȹ±¸¿ª/Â÷·®ÃâÀÔ °¡´É/ÁöÇÏö/³ë¼±¹ö½ºÁ¤·ùÀå/ÁöÇÏÁÖÂ÷Àå/°£¼±µµ·Î/ö±ÙÄÜÅ©¸®Æ®±¸Á¶ ´õº¸±â
°¨Á¤Æò°¡ ¿äÇ×Ç¥
1)À§Ä¡ ¹× ÁÖÀ§È¯°æ
º»°ÇÀº °æ±âµµ ¿À»ê½Ã ¼öûµ¿ ¼ÒÀç ""¿À»ê´ë¿ª"" ³²¼­Ãø Àαٿ¡ À§Ä¡ÇÏ¸ç ºÎ±ÙÀº ¾ÆÆÄÆ®, ´Ù¼¼´ëÁÖÅÃ, ¿ÀÇǽºÅÚ ¹× ±Ù¸°»ýȰ½Ã¼³ µîÀÌ È¥ÀçÇÏ´Â Áö¿ªÀÔ´Ï´Ù.
2)±³Åë»óȲ
º»°Ç±îÁö Â÷·®ÃâÀÔ °¡´ÉÇϸç Àαٿ¡ ÁöÇÏö(1È£¼±) ¿À»ê´ë¿ª ¹× ³ë¼±¹ö½ºÁ¤·ùÀåÀÌ ¼ÒÀçÇϴ¹٠´ëÁß±³ÅëÀÌ¿ëÀÇ ÆíÀǼºÀº ¾çÈ£ÇÕ´Ï´Ù.
3)°Ç¹°ÀÇ ±¸Á¶
2019-11-26ÀÏÀÚ¿¡ »ç¿ë½ÂÀÎµÈ Ã¶±ÙÄÜÅ©¸®Æ®±¸Á¶ (ö±Ù)ÄÜÅ©¸®Æ®ÁöºØ ÁöÇÏ5Ãþ Áö»ó10Ãþ °Ç¹° ³»
Á¦1Ãþ Á¦109È£·Î¼­,
¿Üº® : ÀÎÁ¶¼® µî ¸¶°¨
³»º® : ¸ôÅ»À§ÆäÀÎÆÃ µî ¸¶°¨
âȣ : ¼¦½Ã âȣ µîÀ¸·Î ¸¶°¨ÇÏ¿´½À´Ï´Ù.
4)ÀÌ¿ë»óÅÂ
±Ù¸°»ýȰ½Ã¼³(¼Ò¸ÅÁ¡)·Î ÀÌ¿ë ÁßÀÔ´Ï´Ù.
5)¼³ºñ³»¿ª
À§»ý ¹× ±Þ¹è¼ö¼³ºñ, È­ÀçŽÁö¼³ºñ, ¼ÒÈ­Àü¼³ºñ, ÁöÇÏÁÖÂ÷Àå µîÀ» °®Ãß¾ú½À´Ï´Ù.

6)ÅäÁöÀÇ Çü»ó ¹× ÀÌ¿ë»óÅÂ
ÀαÙÁö¿Í ´ëü·Î µî°í ÆòźÇÑ »ç´Ù¸®Çü ÅäÁö·Î¼­, ¼÷¹Ú½Ã¼³ ¹× ±Ù¸°»ýȰ½Ã¼³ °ÇºÎÁö·Î ÀÌ¿ë ÁßÀÔ´Ï´Ù.
7)ÀÎÁ¢ µµ·Î»óŵî
º»°Ç ¼­ÃøÀ¸·Î ³ëÆø ¾à 20¹ÌÅÍ ¹× ³²ÃøÀ¸·Î ³ëÆø ¾à 10¹ÌÅÍ ³»¿ÜÀÇ Æ÷Àåµµ·Î¿Í °¢°¢ Á¢Çϰí ÀÖ½À´Ï´Ù.
8)ÅäÁöÀÌ¿ë°èȹ ¹× Á¦ÇÑ»óÅÂ
µµ½ÃÁö¿ª , ÀϹݻó¾÷Áö¿ª , Áö±¸´ÜÀ§°èȹ±¸¿ª(¼¼±³Áö±¸) , ¼Ò·Î1·ù(Æø 10m~12m)(2012-11-30)(±¹Áöµµ·Î)(Á¢ÇÕ) , Áß·Î1·ù(Æø 20m~25m)(º¸Á¶°£¼±µµ·Î)(Á¢ÇÕ), °¡Ãà»çÀ°Á¦Çѱ¸¿ª(ÀüºÎÁ¦ÇÑ)<°¡ÃàºÐ´¢ÀÇ °ü¸® ¹× À̿뿡 °üÇÑ ¹ý·ü>, ºñÇà¾ÈÀüÁ¦3±¸¿ª(Àü¼ú)<±º»ç±âÁö ¹× ±º»ç½Ã¼³ º¸È£¹ý>, ¼ºÀå°ü¸®±Ç¿ª<¼öµµ±ÇÁ¤ºñ°èȹ¹ý>, ÁßÁ¡°æ°ü°ü¸®±¸¿ª.
9)°øºÎ¿ÍÀÇ Â÷ÀÌ
ÇØ´ç»çÇ× ¾ø½À´Ï´Ù.
10)±âŸÂü°í»çÇ×(ÀÓ´ë°ü·Ê ¹× ±âŸ)
ÀÓ´ë¹Ì»óÀÔ´Ï´Ù.
Âü°í
»çÇ×

º»°Ç ºÎµ¿»êÀÇ ÇöȲÀº ¿Ü

°ÇÃ๰ÇöȲ

¼ÒÀçÁö °æ±âµµ ¿À»ê½Ã ¼öûµ¿ 611-4¹øÁö
´ëÁö¸éÀû 2562§³
(776.36Æò)
¿¬¸éÀû 21886.43§³
(6632.25Æò)
°ÇÃà¸éÀû 1699.16§³
(514.9Æò)
¿ëÀû·ü»êÁ¤
¿¬¸éÀû
12830.75§³
(3888.11Æò)
°ÇÆóÀ² 66.32% ¿ëÀû·ü 500.81%
Áö»óÃþ¼ö 10Ãþ ÁöÇÏÃþ¼ö 5Ãþ
ÁÖ¿ëµµ ¼÷¹Ú½Ã¼³ ±¸Á¶ ö±ÙÄÜÅ©¸®Æ®±¸Á¶
Âø°øÀÏÀÚ 2017.07.20 »ç¿ë½ÂÀÎÀÏÀÚ 2019.11.26
°ÇÃ๰Ãþº°ÇöȲ [º¸±â]


µî±âºÎµîº» ¿ä¾à(°Ç¹°)

  Á¢¼öÀÏÀÚ µî±â¸ñÀû/±Ç¸®ÀÚ ±Ç¸®±Ý¾× ±âÁØ
1 2020³â2¿ù6ÀÏ
¼ÒÀ¯±Ç
¾ÈOO
¼Ò¸ê
2 2020³â2¿ù6ÀÏ
±ÙÀú´ç±Ç
ÆÈOOOO
387,600,000 ¼Ò¸ê±âÁØ
3 2025³â2¿ù6ÀÏ
ÀÓÀǰæ¸Å
ÆÈOOOO
¼Ò¸ê

ÀÓÂ÷ÀÎÇöȲ (¹è´ç¿ä±¸Á¾±âÀÏ: 2025-04-24)

ÀÓÂ÷ÀÎ ¿ëµµ/Á¡À¯ º¸Áõ±Ý/¿ù¼¼ ´ëÇ×·Â
ÀüÀÔÀÏ/È®Á¤ÀÏ ¹è´ç¿ä±¸ ºñ°í
(OOOOOOOOOOOO 109È£41.4900§³ 30,000,000
[¿ù]500,000
X
2023.08.31
2023.08.14.-2025.08.14
ÁÖOOOOOOOOOOOOOOOO 41.4900§³ 30,000,000
[¿ù]500,000
X
2023.09.01
2023.08.15.-2025.08.14

¿©ÀÇÁÖ°æ¸Å Á¶¾ð ÇÑ ¸¶µð


ÁÖÀÇ»çÇ× (ÃÖ¼±¼øÀ§ ¼³Á¤ÀÏ: 2020.02.06. ±ÙÀú´ç±Ç ¼³Á¤)

¸Å°¢À¸·Î ¼Ò¸êµÇÁö ¾Ê´Â µî±âºÎ±Ç¸®:
¸Å°¢À¸·Î ¼³Á¤µÈ °ÍÀ¸·Î º¸´Â Áö»ó±Ç:
¡Ø¹Ì³³°ü¸®ºñ(°ø¿ë) Àμö¿©ºÎ¸¦ ÀÔÂû Àü¿¡ È®ÀÎÇϽñ⠹ٶø´Ï´Ù

 

Áö¿ªºÐ¼®

ÁöÇÏö¸í Á÷¼±°Å¸®

Çб³¸í ÀüÈ­¹øÈ£ ÁÖ¼Ò Á÷¼±°Å¸®

¹ý¿ø

¼ö¿øÁö¹æ¹ý¿ø (165-12)°æ±âµµ ¼ö¿ø½Ã ¿µÅ뱸 ¹ýÁ¶·Î 105, Çϵ¿, ¼ö¿ø¹ý¿øÁ¾ÇÕû»ç
´ëÇ¥ : 031)210-1114, ¾ß°£ : 031)210-1111
°üÇÒÁö¿ª : ¼ö¿ø½Ã, ¿À»ê½Ã, È­¼º½Ã, ¿ëÀνÃ

µî±â¼Ò ¼ö¿øÁö¹æ¹ý¿ø º»¿ø È­¼ºµî±â¼Ò (´ëÇ¥:1544-0773, ÆÑ½º:(031)375-3964, °æ±âµµ ¿À»ê½Ã ¹ý¿ø·Î 65 (±Èµ¿ 662))
¼¼¹«¼­ µ¿¼ö¿ø¼¼¹«¼­ (´ëÇ¥:031-695-42, ÆÑ½º:031-273-2416, °æ±âµµ ¼ö¿ø½Ã ¿µÅ뱸 û¸í³²·Î 13 (¿µÅ뵿))

Àαٳ«ÂûÅë°è

±â°£ ¸Å°¢°Ç¼ö Æò±Õ°¨Á¤°¡
Æò±Õ¸Å°¢°¡
¸Å°¢°¡À²
Æò±ÕÀ¯Âû¼ö
3°³¿ù 4°Ç 478,750,000¿ø
150,889,578¿ø
34%
3.5ȸ
6°³¿ù 9°Ç 485,222,222¿ø
157,073,157¿ø
34%
4.2ȸ
12°³¿ù 34°Ç 493,764,706¿ø
133,372,632¿ø
29%
4.4ȸ


º» °æ¸ÅÁ¤º¸´Â ¹ý¿øÀÚ·á¿Í ÀÏÄ¡Çϵµ·Ï ÇÏ¿´À¸³ª ±Ç¸®»çÇ׺¯µ¿, ÀÔ·ÂÂø¿À µîÀÇ ¿øÀÎÀ¸·Î »ç½Ç°ú ´Ù¸¦ ¼ö ÀÖ½À´Ï´Ù. ÀÌ¿ë¾à°ü¿¡ ÀǰЏéÃ¥Á¶°ÇÀ¸·Î Á¦°øµÊÀ» ¾Ë¸®¸ç, °æ¸ÅÀÔÂû½Ã ¹Ýµå½Ã °ü·Ã °øºÎ¸¦ ÀçÈ®ÀÎÇϽñ⠹ٶø´Ï´Ù. º¸´Ù Æí¸®ÇÑ °æ¸ÅÁ¤º¸ Á¦°øÀ» À§ÇØ Áö¼ÓÀûÀ¸·Î °³¼±ÇϰڽÀ´Ï´Ù. ÀÌ¿ëÇØ Áּż­ °¨»çÇÕ´Ï´Ù.