·Î±×ÀÎ
8
´Ù¼¼´ë(ºô¶ó)
ÀÎõÁö¹æ¹ý¿ø
 °¨Á¤°¡300,000,000 ¿ø
 ÃÖÀú°¡(70%) 210,000,000 ¿ø
 º¸Áõ±Ý(10%) 21,000,000 ¿ø
 Ã»±¸¾×58,600,000 ¿ø
ÀÎõ±¤¿ª½Ã ¼­±¸ °¡Çö·Î117¹ø±æ 14-20, 1µ¿ 4Ãþ402È£ (¸¶Àüµ¿,ÇØ´ã)
ÀÎõ±¤¿ª½Ã ¼­±¸ ¸¶Àüµ¿ 1165-6
»ç°Ç¹øÈ£ 2025Ÿ°æ500140
°æ¸ÅÁ¾·ùºÎµ¿»ê°­Á¦°æ¸Å
¸Å°¢´ë»óÅäÁö ¹× °Ç¹°Àϰý ¸Å°¢
¸Å°¢±âÀÏ    2025.12.09(È­) 10:00 ÀÔÂû 24ÀÏÀü    
ÅäÁö¸éÀû40.41§³(12.22 Æò)
°Ç¹°¸éÀû67.99§³(20.57 Æò)
乫/¼ÒÀ¯ÀÚ±èOO / ±èOO
ä±ÇÀÚÀÌOO
ÆäÀ̽ººÏ Æ®À§ÅÍ ±¸±Û+
īī¿À½ºÅ丮
īī¿ÀÅå sms¹®ÀÚº¸³»±â
 

±âÀϳ»¿ª

°æ°ú ³¯Â¥ Àú°¨ ÃÖÀú°¡ °á°ú
Á¢¼öÀÏ 2025-01-02 °æ¸ÅÁ¢¼ö
~11ÀÏ 
2025-01-13 °æ¸Å°³½Ã°áÁ¤
~95ÀÏ 
2025-04-07 ¹è´ç¿ä±¸Á¾±âÀÏ
~309ÀÏ 
2025-11-07 100%
300,000,000
À¯Âû
~341ÀÏ 
2025-12-09 70%
210,000,000
ÁøÇà
¹°°Ç¸í¼¼¼­ ÇöȲÁ¶»ç¼­ ¹®°ÇÁ¢¼ö ¼Û´Þ³»¿ª

°¨Á¤Æò°¡ÇöȲ

¸ñ·Ï ÁÖ¼Ò ±¸Á¶/¿ëµµ/´ëÁö±Ç ¸éÀû ºñ°í
´ëÁö±Ç
¸¶Àüµ¿ 1165-6 656ºÐÀÇ 40.41 40.41 §³
(12.22Æò)
°Ç¹°
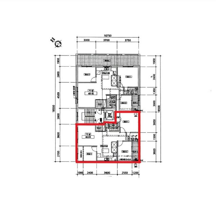
¸¶Àüµ¿ 1165-6 1µ¿ 4Ãþ402È£ ö±ÙÄÜÅ©¸®Æ®±¸Á¶ 67.99 §³
(20.57Æò)
1) À§Ä¡/Á¦2Á¾ÀϹÝÁÖ°ÅÁö¿ª/Áö±¸´ÜÀ§°èȹ±¸¿ª/³ë¼±¹ö½ºÁ¤·ùÀå/ö±ÙÄÜÅ©¸®Æ®±¸Á¶ ´õº¸±â
°¨Á¤Æò°¡ ¿äÇ×Ç¥
1)À§Ä¡ ¹× ÁÖÀ§È¯°æ
º»°ÇÀº ÀÎõ±¤¿ª½Ã ¼­±¸ ¸¶Àüµ¿ ¼ÒÀç "ÀÎõ¸¶Àü°íµîÇб³" ³²Ãø Àαٿ¡ À§Ä¡ÇÏ´Â ±¸ºÐ°Ç¹°·Î¼­, ÀαÙÀº ÁÖ°ÅÁö´ëÀÔ´Ï´Ù.
2)±³Åë»óȲ
º»°Ç±îÁö Â÷·®ÀÇ ÃâÀÔÀÌ °¡´ÉÇϸç, Àαٿ¡ ³ë¼±¹ö½ºÁ¤·ùÀåÀÌ ¼ÒÀçÇÏ´Â µî ±³Åë»óȲÀº º¸ÅëÀÔ´Ï´Ù.
3)°Ç¹°ÀÇ ±¸Á¶
ö±ÙÄÜÅ©¸®Æ®±¸Á¶ (ö±Ù)ÄÜÅ©¸®Æ®ÁöºØ 5Ãþ °Ç¹° ³» Á¦4Ãþ Á¦402È£·Î¼­

¿Üº® : Ä¡À庮µ¹ µî ¸¶°¨
âȣ : ÇÏÀÌ»õ½Ã âȣ µî ¸¶°¨ÀÔ´Ï´Ù.
4)ÀÌ¿ë»óÅÂ
°øºÎ»ó "µµ½ÃÇü»ýȰÁÖÅÃ_´ÜÁöÇü ´Ù¼¼´ëÁÖÅÃ"À¸·Î µîÀçµÇ¾î ÀÖ½À´Ï´Ù.
5)¼³ºñ³»¿ª
±âº»ÀûÀÎ Àü±â¼³ºñ, À§»ý¼³ºñ, ±Þ¹è¼ö¼³ºñ, ½Â°­±â¼³ºñ µîÀÌ ±¸ºñµÇ¾î ÀÖ½À´Ï´Ù.
6)ÅäÁöÀÇ Çü»ó ¹× ÀÌ¿ë»óÅÂ
¼¼ÀåÇüÀÇ ÅäÁö·Î¼­, °øµ¿ÁÖÅà °ÇºÎÁö·Î ÀÌ¿ëÁßÀÔ´Ï´Ù.
7)ÀÎÁ¢ µµ·Î»óŵî
º»°Ç ºÏ¼­ÃøÀ¸·Î ³ëÆø ¾à8m ³»¿ÜÀÇ Æ÷Àåµµ·Î¿Í Á¢Çϰí ÀÖ½À´Ï´Ù.
8)ÅäÁöÀÌ¿ë°èȹ ¹× Á¦ÇÑ»óÅÂ
Á¦2Á¾ÀϹÝÁÖ°ÅÁö¿ª , Áö±¸´ÜÀ§°èȹ±¸¿ª , ¼Ò·Î2·ù(Æø 8m-10m)(Á¢ÇÕ) , °¡Ãà»çÀ°Á¦Çѱ¸¿ª(ÀÎõ±¤¿ª½Ã ¼­±¸Á¶·Ê Á¦1749È£)<°¡ÃàºÐ´¢ÀÇ °ü¸® ¹× À̿뿡 °üÇÑ ¹ý·ü>, ±³À°È¯°æº¸È£±¸¿ª(»ó´ëº¸È£±¸¿ª)<±³À°È¯°æ º¸È£¿¡ °üÇÑ ¹ý·ü>, Á¦ÇѺ¸È£±¸¿ª(À§Å¹Áö¿ª 18m)<±º»ç±âÁö ¹× ±º»ç½Ã¼³ º¸È£¹ý>, Á¦ÇѺ¸È£±¸¿ª(Àü¹æÁö¿ª:25km)<±º»ç±âÁö ¹× ±º»ç½Ã¼³ º¸È£¹ý>, ¼ºÀå°ü¸®±Ç¿ª<¼öµµ±ÇÁ¤ºñ°èȹ¹ý>, ÅäÁö±¸È¹Á¤¸®»ç¾÷Áö±¸(Áö±¸´ÜÀ§°èȹ±¸¿ª)<ÅäÁö±¸È¹Á¤¸®»ç¾÷¹ý> ÀÔ´Ï´Ù.
9)°øºÎ¿ÍÀÇ Â÷ÀÌ
ÇØ´ç»çÇ× ¾ø½À´Ï´Ù.
10)±âŸÂü°í»çÇ×(ÀÓ´ë°ü·Ê ¹× ±âŸ)
1. ÀÓ´ë°ü°è´Â ¹Ì»óÀ̸ç, ÈÄ÷ "°Ç¹°°³È²µµ ¹× ³»ºÎ±¸Á¶µµ"´Â Æó¹®ºÎÀç µîÀ¸·Î ÀÎÇÏ¿© ³»ºÎ È®ÀÎÀÌ ºÒ°¡´ÉÇÏ¿© ÁöÀÚü ¹ß±Þ µµ¸éÀ¸·Î µµ½ÃÇÏ¿´½À´Ï´Ù.

2. º»°Ç Æó¹®ºÎÀç µîÀ¸·Î ÀÎÇÏ¿© ºÎµæÀÌÇÏ°Ô ³»ºÎ¸¦ Á÷Á¢ È®ÀÎÇÏÁö´Â ¸øÇÑ »çÀ¯·Î ÀÎÇÏ¿© °ÅÁֹΠ¹× Àα٠°øÀÎÁß°³»ç¹«¼Ò µî¿¡ ޹®Á¶»ç °á°ú µîÀ» Á¾ÇÕÀûÀ¸·Î °í·ÁÇÏ¿© °¨Á¤Æò°¡ ÇÏ¿´À¸¸ç, ³»ºÎ ÀÎÅ׸®¾î ¹× ³»ºÎ °ü¸® »óÅ´ Åë»óÀûÀÎ ÀÎÅ׸®¾î ¼öÁØ ¹× °ü¸® »óŸ¦ ÀüÁ¦·Î °¨Á¤Æò°¡ ÇÏ¿´½À´Ï´Ù.
Âü°í
»çÇ×

º»°Ç ºÎµ¿»êÀº

°ÇÃ๰ÇöȲ

¼ÒÀçÁö ÀÎõ±¤¿ª½Ã ¼­±¸ ¸¶Àüµ¿ 1165-6¹øÁö
´ëÁö¸éÀû   ¿¬¸éÀû 651.09§³
(197.3Æò)
°ÇÃà¸éÀû 194.08§³
(58.81Æò)
¿ëÀû·ü»êÁ¤
¿¬¸éÀû
651.09§³
(197.3Æò)
°ÇÆóÀ²   ¿ëÀû·ü  
Áö»óÃþ¼ö 5Ãþ ÁöÇÏÃþ¼ö  
ÁÖ¿ëµµ °øµ¿ÁÖÅà ±¸Á¶ ö±ÙÄÜÅ©¸®Æ®±¸Á¶
Âø°øÀÏÀÚ 2022.02.19 »ç¿ë½ÂÀÎÀÏÀÚ 2022.11.10
°ÇÃ๰Ãþº°ÇöȲ [º¸±â]


±¹ÅäºÎ½Ç°Å·¡°¡ ÀÎõ±¤¿ª½Ã ¼­±¸ ¸¶Àüµ¿

¡Ü ¸Å¸Å

¸éÀû(§³), ±Ý¾×(¸¸¿ø)

¡Ü Àü¼¼

¸éÀû(§³), ±Ý¾×(¸¸¿ø)

°è¾àÀϰǹ°¸íĪÃþ¿¬¸éÀû´ëÁö±Ý¾×°ÇÃà
24.03.24¹Ì°¡¾Ö103µ¿548.8431.821210,1002010
24.03.23â¿ì¾ÆÀ̺ô(303,304µ¿)559.2235.293815,3002012
24.03.19À§µåºô468.6441.935535,0002023
24.03.18¼±°æÇÁ¶óÀÓ(103,105µ¿)457.42534.112515,2002011
24.03.15´õ¿øÆÓ¸®½º450.5939.4523,0002021
¢Ñ ´õº¸±â

µî±âºÎµîº» ¿ä¾à(°Ç¹°)

  Á¢¼öÀÏÀÚ µî±â¸ñÀû/±Ç¸®ÀÚ ±Ç¸®±Ý¾× ±âÁØ
1 2024³â9¿ù19ÀÏ
¼ÒÀ¯±Ç
±èOO
¼Ò¸ê
2 2024³â9¿ù19ÀÏ
±ÙÀú´ç±Ç
(OOOO
236,500,000 ¼Ò¸ê±âÁØ
3 2025³â1¿ù13ÀÏ
°­Á¦°æ¸Å
ÀÌOO
¼Ò¸ê
4 2025³â3¿ù6ÀÏ
°¡¾Ð·ù
¿ÀOOOO
33,913,904 ¼Ò¸ê

ÀÓÂ÷ÀÎÇöȲ (¹è´ç¿ä±¸Á¾±âÀÏ: 2025-04-07)

ÀÓÂ÷ÀÎ ¿ëµµ/Á¡À¯ º¸Áõ±Ý/¿ù¼¼ ´ëÇ×·Â
ÀüÀÔÀÏ/È®Á¤ÀÏ ¹è´ç¿ä±¸ ºñ°í
ÀÌOO ÀüºÎ 30,000,000
[¿ù]600,000
X
2024.10.31.
2025.01.13.
2025.03.05. 2024.10.30.~2026.10.30.

¿©ÀÇÁÖ°æ¸Å Á¶¾ð ÇÑ ¸¶µð

ÃëÇÏ ¶Ç´Â Ãë¼ÒµÉ °¡´É¼º ÀÖ½À´Ï´Ù
ÀÌ ¹°°ÇÀÇ °¨Á¤°¡°ÝÀº 300,000,000¿øÀÔ´Ï´Ù. °æ¸Å¸¦ ½ÅûÇÑ Ã¤±ÇÀÚ°¡ ¹è´ç ¹Þ¾Æ¾ß ÇÒ ±Ý¾×Àº 58,600,000¿øÀ¸·Î °¨Á¤°¡°Ý ´ëºñ »ó´çÈ÷ ÀûÀº ±Ý¾×ÀÔ´Ï´Ù. ÀÌ·± °æ¿ì, 乫°¡°¡ º¯Á¦ÇÏ¿© °æ¸Å¸¦ ÃëÇϽÃŰ°Å³ª °æ¸Å½Åûä±ÇÀÚ°¡ ¹è´ç¹ÞÀº ±Ý¿øÀÌ ¾ø°ÔµÇ¾î À̸¥ ¹Ù "¹«À׿©¿¡ ÀÇÇÑ Ãë¼Ò"°¡ µÉ °¡´É¼ºÀÌ ÀÖ½À´Ï´Ù.

ÁÖÀÇ»çÇ× (ÃÖ¼±¼øÀ§ ¼³Á¤ÀÏ: 2024.09.19. ±ÙÀú´ç±Ç ¼³Á¤)

¸Å°¢À¸·Î ¼Ò¸êµÇÁö ¾Ê´Â µî±âºÎ±Ç¸®:
¸Å°¢À¸·Î ¼³Á¤µÈ °ÍÀ¸·Î º¸´Â Áö»ó±Ç:
¡Ø¹Ì³³°ü¸®ºñ(°ø¿ë) Àμö¿©ºÎ¸¦ ÀÔÂû Àü¿¡ È®ÀÎÇϽñ⠹ٶø´Ï´Ù

 

Áö¿ªºÐ¼®

ÁöÇÏö¸í Á÷¼±°Å¸®

Çб³¸í ÀüÈ­¹øÈ£ ÁÖ¼Ò Á÷¼±°Å¸®

¹ý¿ø

ÀÎõÁö¹æ¹ý¿ø (222-20)ÀÎõ±¤¿ª½Ã ¹ÌÃßȦ±¸ ¼Ò¼º·Î 163¹ø±æ 17(ÇÐÀ͵¿)
´ëÇ¥ : 032)860-1113~4
°üÇÒÁö¿ª : Áß±¸, µ¿±¸, ³²±¸, ¿¬¼ö±¸, ³²µ¿±¸, ºÎÆò±¸, °è¾ç±¸, ¼­±¸, ¿ËÁø±º, °­È­±º

µî±â¼Ò ÀÎõÁö¹æ¹ý¿ø º»¿ø µî±â±¹ (´ëÇ¥:1544-0773, ÆÑ½º:(032)620-9099, ÀÎõ±¤¿ª½Ã ¹ÌÃßȦ±¸ °æ¿ø´ë·Î 881(Á־ȵ¿ 983))
¼¼¹«¼­ ¼­ÀÎõ¼¼¹«¼­ (´ëÇ¥:032-560-52, ÆÑ½º:032-561-5777, ÀÎõ±¤¿ª½Ã ¼­±¸ ¼­°ù·Î369¹ø±æ 17 (¿¬Èñµ¿))

Àαٳ«ÂûÅë°è

±â°£ ¸Å°¢°Ç¼ö Æò±Õ°¨Á¤°¡
Æò±Õ¸Å°¢°¡
¸Å°¢°¡À²
Æò±ÕÀ¯Âû¼ö
3°³¿ù 94°Ç 147,946,809¿ø
98,791,504¿ø
67%
2.3ȸ
6°³¿ù 191°Ç 151,854,660¿ø
102,280,241¿ø
67%
2ȸ
12°³¿ù 371°Ç 154,832,330¿ø
105,024,864¿ø
67%
2ȸ


º» °æ¸ÅÁ¤º¸´Â ¹ý¿øÀÚ·á¿Í ÀÏÄ¡Çϵµ·Ï ÇÏ¿´À¸³ª ±Ç¸®»çÇ׺¯µ¿, ÀÔ·ÂÂø¿À µîÀÇ ¿øÀÎÀ¸·Î »ç½Ç°ú ´Ù¸¦ ¼ö ÀÖ½À´Ï´Ù. ÀÌ¿ë¾à°ü¿¡ ÀǰЏéÃ¥Á¶°ÇÀ¸·Î Á¦°øµÊÀ» ¾Ë¸®¸ç, °æ¸ÅÀÔÂû½Ã ¹Ýµå½Ã °ü·Ã °øºÎ¸¦ ÀçÈ®ÀÎÇϽñ⠹ٶø´Ï´Ù. º¸´Ù Æí¸®ÇÑ °æ¸ÅÁ¤º¸ Á¦°øÀ» À§ÇØ Áö¼ÓÀûÀ¸·Î °³¼±ÇϰڽÀ´Ï´Ù. ÀÌ¿ëÇØ Áּż­ °¨»çÇÕ´Ï´Ù.