·Î±×ÀÎ
1208
¾ÆÆÄÆ®Çü°øÀå
ÀÇÁ¤ºÎÁö¹æ¹ý¿ø °í¾çÁö¿ø
 °¨Á¤°¡334,000,000 ¿ø
 ÃÖÀú°¡(34%) 114,562,000 ¿ø
 º¸Áõ±Ý(10%) 11,456,200 ¿ø
 Ã»±¸¾×310,237,276 ¿ø
°æ±âµµ °í¾ç½Ã ´ö¾ç±¸ »ï¸·3±æ 5, 8Ãþ828È£ (¿À±Ýµ¿,°í¾ç»ï¼ÛÇѰ­µàŬ·¡½º)
°æ±âµµ °í¾ç½Ã ´ö¾ç±¸ ¿À±Ýµ¿ 686
»ç°Ç¹øÈ£ 2024Ÿ°æ8672 ¹°°Ç¹øÈ£
°æ¸ÅÁ¾·ùºÎµ¿»êÀÓÀǰæ¸Å
¸Å°¢´ë»óÅäÁö ¹× °Ç¹°Àϰý ¸Å°¢
¸Å°¢±âÀÏ    2026.03.12(¸ñ) 10:00 ÀÔÂû 18ÀÏÀü    
ÅäÁö¸éÀû21.67§³(6.56 Æò)
°Ç¹°¸éÀû75.04§³(22.70 Æò)
乫/¼ÒÀ¯ÀÚÀÌOO / ÀÌOO
ä±ÇÀÚÀ¯OOOOOOOOOOOOO OOOO(OOOO OOOO OOOO)
ÆäÀ̽ººÏ Æ®À§ÅÍ ±¸±Û+
īī¿À½ºÅ丮
īī¿ÀÅå sms¹®ÀÚº¸³»±â
 

±âÀϳ»¿ª

°æ°ú ³¯Â¥ Àú°¨ ÃÖÀú°¡ °á°ú
Á¢¼öÀÏ 2024-11-21 °æ¸ÅÁ¢¼ö
~1ÀÏ 
2024-11-22 °æ¸Å°³½Ã°áÁ¤
~458ÀÏ 
¹è´ç¿ä±¸Á¾±âÀÏ
~350ÀÏ 
2025-11-06 100%
334,000,000
À¯Âû
~385ÀÏ 
2025-12-11 70%
233,800,000
À¯Âû
~434ÀÏ 
2026-01-29 49%
163,660,000
À¯Âû
~476ÀÏ 
2026-03-12 34%
114,562,000
ÁøÇà
¹°°Ç¸í¼¼¼­ ÇöȲÁ¶»ç¼­ ¹®°ÇÁ¢¼ö ¼Û´Þ³»¿ª

°¨Á¤Æò°¡ÇöȲ

¸ñ·Ï ÁÖ¼Ò ±¸Á¶/¿ëµµ/´ëÁö±Ç ¸éÀû ºñ°í
´ëÁö±Ç
¿À±Ýµ¿ 686 9919.7ºÐÀÇ 21.6748 21.6748 §³
(6.56Æò)
°Ç¹°
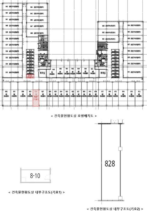
¿À±Ýµ¿ 686 8Ãþ828È£ ÇÁ¸®ÄɽºÆ®ÄÜÅ©¸®Æ®±¸Á¶ 75.0350 §³
(22.70Æò)
1) À§Ä¡/µµ½ÃÁö¿ª/ÁØÁÖ°ÅÁö¿ª/Áö±¸´ÜÀ§°èȹ±¸¿ª/³ë¼±¹ö½º Á¤·ùÀå ´õº¸±â
°¨Á¤Æò°¡ ¿äÇ×Ç¥
1)À§Ä¡ ¹× ÁÖÀ§È¯°æ
º»°ÇÀº °æ±âµµ °í¾ç½Ã ´ö¾ç±¸ ¿À±Ýµ¿ ¼ÒÀç "¾çÁÖTG" ³²Ãø Àαٿ¡ À§Ä¡Çϸç, ÁÖÀ§´Â ¹°·ùâ°í ¹× ±Ù¸°»ýȰ½Ã¼³ µîÀÌ ¼ÒÀçÇϸç Á¦¹Ý ÁÖÀ§È¯°æÀº º¸ÅëÀÔ´Ï´Ù.
2)±³Åë»óȲ
º»°Ç±îÁö Â÷·® Áø,ÃâÀÔÀÌ °¡´ÉÇϸç, Àαٿ¡ ³ë¼±¹ö½º Á¤·ùÀåÀÌ ¼ÒÀçÇÏ´Â µî Á¦¹Ý±³Åë»óȲÀº º¸ÅëÀÔ´Ï´Ù.
3)°Ç¹°ÀÇ ±¸Á¶
ÇÁ¸®ÄɽºÆ®ÄÜÅ©¸®Æ®±¸Á¶ (ö±Ù)ÄÜÅ©¸®Æ®Æò½½¶óºêÁöºØ Áö»ó9Ãþ ³» 8Ãþ8-10È£, 8Ãþ828È£·Î¼­,

¿Üº®: º¹ÇÕÆÐ³Î ¹× Ŀư¿ù ¸¶°¨ µî,
âȣ: ½Ã½ºÅÛâȣ µîÀÔ´Ï´Ù.

4)ÀÌ¿ë»óÅÂ
±âÈ£1:ÁýÇÕ°ÇÃ๰´ëÀå»ó ¿ëµµ°¡ °øÀå(Áö½Ä»ê¾÷¼¾ÅÍ-â°í)À¸·Î ÀÌ¿ë ÁßÀÔ´Ï´Ù.
±âÈ£2:ÁýÇÕ°ÇÃ๰´ëÀå»ó ¿ëµµ°¡ °øÀå(Áö½Ä»ê¾÷¼¾ÅÍ)À¸·Î ÀÌ¿ë ÁßÀÔ´Ï´Ù.
5)¼³ºñ³»¿ª
À§»ý ¹× ±Þ,¹è¼ö¼³ºñ, ³­¹æ¼³ºñ, ½Â°­±â¼³ºñ µîÀÌ µÇ¾îÀÖ½À´Ï´Ù.


6)ÅäÁöÀÇ Çü»ó ¹× ÀÌ¿ë»óÅÂ
ÀÚüÁö¹Ý ÆòźÇÏ°Ô Á¶¼ºµÈ ºÎÁ¤ÇüÀÇ ÅäÁö·Î¼­, Áö½Ä»ê¾÷¼¾ÅÍ °ÇºÎÁö·Î ÀÌ¿ë ÁßÀÔ´Ï´Ù.
7)ÀÎÁ¢ µµ·Î»óŵî
¼­Ãø ¹× ³²ÃøÀ¸·Î Áß·Î, ºÏÃø ¹× µ¿ÃøÀ¸·Î ¼Ò·Î¿Í °¢°¢ Á¢ÇÕ´Ï´Ù.
8)ÅäÁöÀÌ¿ë°èȹ ¹× Á¦ÇÑ»óÅÂ
ÁØÁÖ°ÅÁö¿ª, Áö±¸´ÜÀ§°èȹ±¸¿ª(»ï¼ÛÅÃÁö°³¹ß), ¼Ò·Î2·ù(Æø 8m-10m)(Á¢ÇÕ), ¼Ò·Î3·ù(Æø 8m ¹Ì¸¸)(Á¢ÇÕ), Áß·Î1·ù(Æø 20m-25m)(Á¢ÇÕ), Áß·Î2·ù(Æø 15m-20m)(Á¢ÇÕ) °¡Ãà»çÀ°Á¦Çѱ¸¿ª(2024-11-12)(ÀϺÎÁ¦Çѱ¸¿ª [ÀüºÎÁ¦Çѱ¸¿ªÀ¸·ÎºÎÅÍ Á¦ÇѰŸ® 500m (¼Ò,Á¥¼Ò,¸» Á¦ÇÑ)])<°¡ÃàºÐ´¢ÀÇ °ü¸® ¹× À̿뿡 °üÇÑ ¹ý·ü>, °¡Ãà»çÀ°Á¦Çѱ¸¿ª(2024-11-12)(ÀüºÎÁ¦Çѱ¸¿ª [µµ½ÃÁö¿ª{ÁÖ°Å,»ó¾÷,°ø¾÷,³ìÁö(ÀÚ¿¬Ãë¶ôÁö±¸)}¹×ÁְŹÐÁýÁö¿ª])<°¡ÃàºÐ´¢ÀÇ °ü¸® ¹× À̿뿡 °üÇÑ ¹ý·ü>, Á¦ÇѺ¸È£±¸¿ª(Àü¹æÁö¿ª:25km)(°íµµ 20mÀ§ÀÓÁö¿ª)<±º»ç±âÁö ¹× ±º»ç½Ã¼³ º¸È£¹ý>, µµ·Î±¸¿ª(Áö¹æµµ371È£¼±)<µµ·Î¹ý>, °ú¹Ð¾ïÁ¦±Ç¿ª<¼öµµ±ÇÁ¤ºñ°èȹ¹ý>, ÅÃÁö°³¹ßÁö±¸<ÅÃÁö°³¹ßÃËÁø¹ý>
9)°øºÎ¿ÍÀÇ Â÷ÀÌ
°øºÎ¿ÍÀÇ Â÷ÀÌ ¾ø½À´Ï´Ù.
10)±âŸÂü°í»çÇ×(ÀÓ´ë°ü·Ê ¹× ±âŸ)
ÀÓ´ë°ü°è ¹Ì»óÀÔ´Ï´Ù.
Âü°í
»çÇ×

¸ñ·Ï1,¸ñ·Ï2´Â ÇÁ¸®ÄɽºÆ®ÄÜÅ©¸®Æ®±¸

°ÇÃ๰ÇöȲ

¼ÒÀçÁö °æ±âµµ °í¾ç½Ã ´ö¾ç±¸ ¿À±Ýµ¿ 686¹øÁö
´ëÁö¸éÀû 9919.7§³
(3005.97Æò)
¿¬¸éÀû 65773.9475§³
(19931.5Æò)
°ÇÃà¸éÀû 5935.59§³
(1798.66Æò)
¿ëÀû·ü»êÁ¤
¿¬¸éÀû
37016.9894§³
(11217.27Æò)
°ÇÆóÀ² 59.84% ¿ëÀû·ü 373.17%
Áö»óÃþ¼ö 9Ãþ ÁöÇÏÃþ¼ö 2Ãþ
ÁÖ¿ëµµ °øÀå ±¸Á¶ ÇÁ¸®ÄɽºÆ®ÄÜÅ©¸®Æ®±¸Á¶
Âø°øÀÏÀÚ 2020.12.30 »ç¿ë½ÂÀÎÀÏÀÚ 2022.11.14
°ÇÃ๰Ãþº°ÇöȲ [º¸±â]


µî±âºÎµîº» ¿ä¾à(°Ç¹°)

  Á¢¼öÀÏÀÚ µî±â¸ñÀû/±Ç¸®ÀÚ ±Ç¸®±Ý¾× ±âÁØ
1 2024³â1¿ù8ÀÏ
¼ÒÀ¯±Ç
ÀÌOO
¼Ò¸ê
2 2023³â1¿ù2ÀÏ
±ÙÀú´ç±Ç
(OOOO
360,000,000 ¼Ò¸ê±âÁØ
3 2024³â11¿ù25ÀÏ
ÀÓÀǰæ¸Å
(OOOO
¼Ò¸ê
4 2024³â12¿ù4ÀÏ
¾Ð·ù
±¹OOOO
¼Ò¸ê

ÀÓÂ÷ÀÎÇöȲ (¹è´ç¿ä±¸Á¾±âÀÏ: )

ÀÓÂ÷ÀÎ ¿ëµµ/Á¡À¯ º¸Áõ±Ý/¿ù¼¼ ´ëÇ×·Â
ÀüÀÔÀÏ/È®Á¤ÀÏ ¹è´ç¿ä±¸ ºñ°í
ÁÖOOOOOOOOO 828È£ÀüºÎ 15,000,000
[¿ù]1,000,000

¾øÀ½
2025.1.13. 2023.10.05~

¿©ÀÇÁÖ°æ¸Å Á¶¾ð ÇÑ ¸¶µð


ÁÖÀÇ»çÇ× (ÃÖ¼±¼øÀ§ ¼³Á¤ÀÏ: 2023.01.02 ±ÙÀú´ç±Ç ¼³Á¤)

¸Å°¢À¸·Î ¼Ò¸êµÇÁö ¾Ê´Â µî±âºÎ±Ç¸®:
¸Å°¢À¸·Î ¼³Á¤µÈ °ÍÀ¸·Î º¸´Â Áö»ó±Ç:
¡Ø¹Ì³³°ü¸®ºñ(°ø¿ë) Àμö¿©ºÎ¸¦ ÀÔÂû Àü¿¡ È®ÀÎÇϽñ⠹ٶø´Ï´Ù

 

Áö¿ªºÐ¼®

ÁöÇÏö¸í Á÷¼±°Å¸®

Çб³¸í ÀüÈ­¹øÈ£ ÁÖ¼Ò Á÷¼±°Å¸®

¹ý¿ø

ÀÇÁ¤ºÎÁö¹æ¹ý¿ø °í¾çÁö¿ø (104-13)°æ±âµµ °í¾ç½Ã Àϻ굿±¸ Àå¹é·Î 209
´ëÇ¥ : 031)920-6114, ¾ß°£ : 031)920-6550, ÆÑ½º : 031)920-6119
°üÇÒÁö¿ª : °í¾ç½Ã, ÆÄÁÖ½Ã

µî±â¼Ò ÀÇÁ¤ºÎÁö¹æ¹ý¿ø °í¾çÁö¿ø °í¾çµî±â¼Ò (´ëÇ¥:1544-0773, ÆÑ½º:(031)920-5959, °æ±âµµ °í¾ç½Ã Àϻ굿±¸ Áß¾Ó·Î1275¹ø±æ 38-30 (ÀåÇ×µ¿ 773))
¼¼¹«¼­ µ¿°í¾ç¼¼¹«¼­ (´ëÇ¥:031-900-62, ÆÑ½º:031-963-2979, °æ±âµµ °í¾ç½Ã ´ö¾ç±¸ È­Áß·Î 104¹ø±æ 16(È­Á¤µ¿))

Àαٳ«ÂûÅë°è

±â°£ ¸Å°¢°Ç¼ö Æò±Õ°¨Á¤°¡
Æò±Õ¸Å°¢°¡
¸Å°¢°¡À²
Æò±ÕÀ¯Âû¼ö
3°³¿ù 5°Ç 405,718,000¿ø
222,393,000¿ø
53%
2.2ȸ
6°³¿ù 12°Ç 1,819,595,407¿ø
968,133,667¿ø
49%
2.7ȸ
12°³¿ù 19°Ç 1,858,959,387¿ø
1,122,868,579¿ø
64%
2.1ȸ


º» °æ¸ÅÁ¤º¸´Â ¹ý¿øÀÚ·á¿Í ÀÏÄ¡Çϵµ·Ï ÇÏ¿´À¸³ª ±Ç¸®»çÇ׺¯µ¿, ÀÔ·ÂÂø¿À µîÀÇ ¿øÀÎÀ¸·Î »ç½Ç°ú ´Ù¸¦ ¼ö ÀÖ½À´Ï´Ù. ÀÌ¿ë¾à°ü¿¡ ÀǰЏéÃ¥Á¶°ÇÀ¸·Î Á¦°øµÊÀ» ¾Ë¸®¸ç, °æ¸ÅÀÔÂû½Ã ¹Ýµå½Ã °ü·Ã °øºÎ¸¦ ÀçÈ®ÀÎÇϽñ⠹ٶø´Ï´Ù. º¸´Ù Æí¸®ÇÑ °æ¸ÅÁ¤º¸ Á¦°øÀ» À§ÇØ Áö¼ÓÀûÀ¸·Î °³¼±ÇϰڽÀ´Ï´Ù. ÀÌ¿ëÇØ Áּż­ °¨»çÇÕ´Ï´Ù.