·Î±×ÀÎ
98
±Ù¸°»ó°¡
ûÁÖÁö¹æ¹ý¿ø
 °¨Á¤°¡403,000,000 ¿ø
 ÃÖÀú°¡(70%) 282,100,000 ¿ø
 º¸Áõ±Ý(10%) 28,210,000 ¿ø
 Ã»±¸¾×559,579,550 ¿ø
ÃæÃ»ºÏµµ ûÁֽà Èï´ö±¸ ¼ÛÀýµ¿ 846 ûÁÖÅ×Å©³ëÆú¸®½º¿ì¹æ¾ÆÀÌÀ¯½©2´ÜÁö »ó°¡2µ¿ 1Ãþ 133È£
»ç°Ç¹øÈ£ 2025Ÿ°æ50857 ¹°°Ç¹øÈ£
Áߺ¹»ç°ÇÁߺ¹ 2025Ÿ°æ962,
°æ¸ÅÁ¾·ùºÎµ¿»êÀÓÀǰæ¸Å
¸Å°¢´ë»óÅäÁö ¹× °Ç¹°Àϰý ¸Å°¢
¸Å°¢±âÀÏ    2026.01.14(¼ö) 10:00 ÀÔÂû 7ÀÏÀü    
ÅäÁö¸éÀû57.00§³(17.24 Æò)
°Ç¹°¸éÀû36.00§³(10.89 Æò)
乫/¼ÒÀ¯ÀÚÀüOO / ÀüOO
ä±ÇÀÚÁÖOOOOOOO
ÆäÀ̽ººÏ Æ®À§ÅÍ ±¸±Û+
īī¿À½ºÅ丮
īī¿ÀÅå sms¹®ÀÚº¸³»±â
 

±âÀϳ»¿ª

°æ°ú ³¯Â¥ Àú°¨ ÃÖÀú°¡ °á°ú
Á¢¼öÀÏ 2025-02-12 °æ¸ÅÁ¢¼ö
~1ÀÏ 
2025-02-13 °æ¸Å°³½Ã°áÁ¤
~329ÀÏ 
¹è´ç¿ä±¸Á¾±âÀÏ
~266ÀÏ 
2025-11-05 100%
403,000,000
À¯Âû
~301ÀÏ 
2025-12-10 70%
282,100,000
º¯°æ
~336ÀÏ 
2026-01-14 70%
282,100,000
ÁøÇà
¹°°Ç¸í¼¼¼­ ÇöȲÁ¶»ç¼­ ¹®°ÇÁ¢¼ö ¼Û´Þ³»¿ª

°¨Á¤Æò°¡ÇöȲ

¸ñ·Ï ÁÖ¼Ò ±¸Á¶/¿ëµµ/´ëÁö±Ç ¸éÀû ºñ°í
´ëÁö±Ç
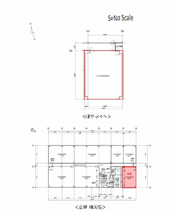
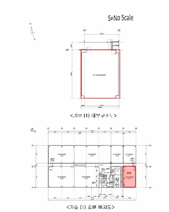
¼ÛÀýµ¿ 846 24397.7ºÐÀÇ 57 57 §³
(17.24Æò)
°Ç¹°
¼ÛÀýµ¿ 846 »ó°¡2µ¿ 1Ãþ 133È£ ö±ÙÄÜÅ©¸®Æ®±¸Á¶ 36.0000 §³
(10.89Æò)

°ÇÃ๰ÇöȲ

¼ÒÀçÁö ÃæÃ»ºÏµµ ûÁֽà Èï´ö±¸ ¼ÛÀýµ¿ 846¹øÁö
´ëÁö¸éÀû   ¿¬¸éÀû 18379.0828§³
(5569.42Æò)
°ÇÃà¸éÀû   ¿ëÀû·ü»êÁ¤
¿¬¸éÀû
 
°ÇÆóÀ²   ¿ëÀû·ü  
Áö»óÃþ¼ö 1Ãþ ÁöÇÏÃþ¼ö 1Ãþ
ÁÖ¿ëµµ °øµ¿ÁÖÅà ±¸Á¶ ö±ÙÄÜÅ©¸®Æ®±¸Á¶
Âø°øÀÏÀÚ 2016.05.01 »ç¿ë½ÂÀÎÀÏÀÚ 2018.11.23
°ÇÃ๰Ãþº°ÇöȲ [º¸±â]


µî±âºÎµîº» ¿ä¾à(°Ç¹°)

  Á¢¼öÀÏÀÚ µî±â¸ñÀû/±Ç¸®ÀÚ ±Ç¸®±Ý¾× ±âÁØ
1 2019³â2¿ù26ÀÏ
¼ÒÀ¯±Ç
ÀüOO
¼Ò¸ê
2 2023³â6¿ù30ÀÏ
±ÙÀú´ç±Ç
ÁÖOOOO
396,000,000 ¼Ò¸ê±âÁØ
3 2024³â8¿ù14ÀÏ
°¡¾Ð·ù
±âOOOO
114,750,000 ¼Ò¸ê
4 2024³â8¿ù29ÀÏ
°¡¾Ð·ù
(OOOO
118,260,235 ¼Ò¸ê
5 2024³â9¿ù10ÀÏ
°¡¾Ð·ù
ÁßOOOO
20,221,268 ¼Ò¸ê
6 2025³â2¿ù14ÀÏ
ÀÓÀǰæ¸Å
ÁÖOOOO
¼Ò¸ê
7 2025³â2¿ù24ÀÏ
°­Á¦°æ¸Å
(OOOO
¼Ò¸ê
8 2025³â2¿ù24ÀÏ
¾Ð·ù
±¹
¼Ò¸ê

ÀÓÂ÷ÀÎÇöȲ (¹è´ç¿ä±¸Á¾±âÀÏ: )

ÀÓÂ÷ÀÎ ¿ëµµ/Á¡À¯ º¸Áõ±Ý/¿ù¼¼ ´ëÇ×·Â
ÀüÀÔÀÏ/È®Á¤ÀÏ ¹è´ç¿ä±¸ ºñ°í
°­OO 36§³ 3,000¸¸¿ø
[¿ù]70¸¸¿ø
X
2024.8.1.
2024.8.1.
2025.4.4. 2019.4.1.~2027.4.29.

¿©ÀÇÁÖ°æ¸Å Á¶¾ð ÇÑ ¸¶µð


ÁÖÀÇ»çÇ× (ÃÖ¼±¼øÀ§ ¼³Á¤ÀÏ: 2023.6.30. ±ÙÀú´ç±Ç ¼³Á¤)

¸Å°¢À¸·Î ¼Ò¸êµÇÁö ¾Ê´Â µî±âºÎ±Ç¸®:
¸Å°¢À¸·Î ¼³Á¤µÈ °ÍÀ¸·Î º¸´Â Áö»ó±Ç:
2025.11.13 ä±ÇÀÚ ÁÖOOOOOOO ±âÀϺ¯°æ½Åû¼­ Á¦Ãâ
¡Ø¹Ì³³°ü¸®ºñ(°ø¿ë) Àμö¿©ºÎ¸¦ ÀÔÂû Àü¿¡ È®ÀÎÇϽñ⠹ٶø´Ï´Ù

 

Áö¿ªºÐ¼®

ÁöÇÏö¸í Á÷¼±°Å¸®

Çб³¸í ÀüÈ­¹øÈ£ ÁÖ¼Ò Á÷¼±°Å¸®

¹ý¿ø

ûÁÖÁö¹æ¹ý¿ø (286-24)ÃæÃ»ºÏµµ ûÁֽà ¼­¿ø±¸ »ê³²·Î 62¹ø±æ 51 (»ê³²µ¿)
´ëÇ¥ : 043)249-7114~5, ¹Î¿ø : 043)249-7465, ¾ß°£ : 043)249-7400
°üÇÒÁö¿ª : ûÁÖ½Ã, º¸Àº±º, ±«»ê±º, ÁõÆò±º, ÁøÃµ±º

µî±â¼Ò    (´ëÇ¥:, ÆÑ½º:, )
¼¼¹«¼­ ûÁÖ¼¼¹«¼­ (´ëÇ¥:043-230-92, ÆÑ½º:043-235-5417, ÃæÃ»ºÏµµ ûÁֽà Èï´ö±¸ Á×õ·Î 151 (º¹´ëµ¿))

Àαٳ«ÂûÅë°è

±â°£ ¸Å°¢°Ç¼ö Æò±Õ°¨Á¤°¡
Æò±Õ¸Å°¢°¡
¸Å°¢°¡À²
Æò±ÕÀ¯Âû¼ö
3°³¿ù 11°Ç 370,090,909¿ø
206,641,273¿ø
58%
2ȸ
6°³¿ù 21°Ç 431,796,680¿ø
306,521,500¿ø
67%
1.6ȸ
12°³¿ù 24°Ç 442,065,269¿ø
305,831,313¿ø
66%
1.8ȸ


º» °æ¸ÅÁ¤º¸´Â ¹ý¿øÀÚ·á¿Í ÀÏÄ¡Çϵµ·Ï ÇÏ¿´À¸³ª ±Ç¸®»çÇ׺¯µ¿, ÀÔ·ÂÂø¿À µîÀÇ ¿øÀÎÀ¸·Î »ç½Ç°ú ´Ù¸¦ ¼ö ÀÖ½À´Ï´Ù. ÀÌ¿ë¾à°ü¿¡ ÀǰЏéÃ¥Á¶°ÇÀ¸·Î Á¦°øµÊÀ» ¾Ë¸®¸ç, °æ¸ÅÀÔÂû½Ã ¹Ýµå½Ã °ü·Ã °øºÎ¸¦ ÀçÈ®ÀÎÇϽñ⠹ٶø´Ï´Ù. º¸´Ù Æí¸®ÇÑ °æ¸ÅÁ¤º¸ Á¦°øÀ» À§ÇØ Áö¼ÓÀûÀ¸·Î °³¼±ÇϰڽÀ´Ï´Ù. ÀÌ¿ëÇØ Áּż­ °¨»çÇÕ´Ï´Ù.