·Î±×ÀÎ
86
´Ù¼¼´ë(ºô¶ó)
ÀÎõÁö¹æ¹ý¿ø
 °¨Á¤°¡128,000,000 ¿ø
 ÃÖÀú°¡(49%) 62,720,000 ¿ø
 º¸Áõ±Ý(10%) 6,272,000 ¿ø
 Ã»±¸¾×94,708,445 ¿ø
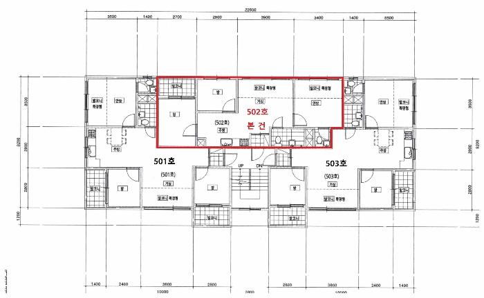
ÀÎõ±¤¿ª½Ã ¹ÌÃßȦ±¸ Çѳª·ç·Î489¹ø±æ 51, 5Ãþ502È£ (¿ëÇöµ¿,»ï¼ºÈúŸ¿î)
ÀÎõ±¤¿ª½Ã ¹ÌÃßȦ±¸ ¿ëÇöµ¿ 67-2
»ç°Ç¹øÈ£ 2024Ÿ°æ12202
°æ¸ÅÁ¾·ùºÎµ¿»êÀÓÀǰæ¸Å
¸Å°¢´ë»óÅäÁö ¹× °Ç¹°Àϰý ¸Å°¢
¸Å°¢±âÀÏ    2026.01.20(È­) 10:00 ÀÔÂû 38ÀÏÀü    
ÅäÁö¸éÀû30.58§³(9.25 Æò)
°Ç¹°¸éÀû46.40§³(14.04 Æò)
乫/¼ÒÀ¯ÀÚäOO OOOO OOOOO OOO / äOO OOOO OOOOO OOO
ä±ÇÀÚ±ÙOOOOOOOOOOO
ÆäÀ̽ººÏ Æ®À§ÅÍ ±¸±Û+
īī¿À½ºÅ丮
īī¿ÀÅå sms¹®ÀÚº¸³»±â
 

±âÀϳ»¿ª

°æ°ú ³¯Â¥ Àú°¨ ÃÖÀú°¡ °á°ú
Á¢¼öÀÏ 2024-09-03 °æ¸ÅÁ¢¼ö
~1ÀÏ 
2024-09-04 °æ¸Å°³½Ã°áÁ¤
~97ÀÏ 
2024-12-09 ¹è´ç¿ä±¸Á¾±âÀÏ
~428ÀÏ 
2025-11-05 100%
128,000,000
À¯Âû
~458ÀÏ 
2025-12-05 70%
89,600,000
À¯Âû
~504ÀÏ 
2026-01-20 49%
62,720,000
ÁøÇà
¹°°Ç¸í¼¼¼­ ÇöȲÁ¶»ç¼­ ¹®°ÇÁ¢¼ö ¼Û´Þ³»¿ª

°¨Á¤Æò°¡ÇöȲ

¸ñ·Ï ÁÖ¼Ò ±¸Á¶/¿ëµµ/´ëÁö±Ç ¸éÀû ºñ°í
´ëÁö±Ç
¿ëÇöµ¿ 67-2 394.6ºÐÀÇ 30.576 30.576 §³
(9.25Æò)
°Ç¹°
¿ëÇöµ¿ 67-2 5Ãþ502È£ ö±ÙÄÜÅ©¸®Æ®±¸Á¶ 46.4 §³
(14.04Æò)
1) À§Ä¡/Á¦2Á¾ÀϹÝÁÖ°ÅÁö¿ª/¹ö½ºÁ¤·ùÀå/ö±ÙÄÜÅ©¸®Æ®±¸Á¶ ´õº¸±â
°¨Á¤Æò°¡ ¿äÇ×Ç¥
1)À§Ä¡ ¹× ÁÖÀ§È¯°æ
º»°ÇÀº ÀÎõ±¤¿ª½Ã ¹ÌÃßȦ±¸ ¿ëÇöµ¿ ¼ÒÀç "¿ëÀÏÃʵîÇб³" ³²µ¿Ãø Àαٿ¡ À§Ä¡Çϰí
ºÎ±ÙÀº ´Ù¼¼´ëÁÖÅÃ,¿¬¸³ÁÖÅÃ,¾ÆÆÄÆ®,±Ù¸°»ýȰ½Ã¼³ µîÀÌ ¼ÒÀçÇϰí ÀÖ´Â Áö¿ªÀÓ.
2)±³Åë»óȲ
º»°Ç±îÁö Á¦¹ÝÂ÷·®ÀÇ ÁøÃâÀÔÀÌ ¿ëÀÌÇϰí Àαٿ¡ ¹ö½ºÁ¤·ùÀåÀÌ ¼ÒÀçÇϰí ÀÖ¾î
Á¦¹Ý±³Åë»çÁ¤Àº º¸Åë½Ã µÊ.
3)°Ç¹°ÀÇ ±¸Á¶
2009³â 4¿ù 24ÀÏ »ç¿ë½ÂÀÎÀ» ¹ÞÀº ö±ÙÄÜÅ©¸®Æ®±¸Á¶ (ö±Ù)ÄÜÅ©¸®Æ®ÁöºØ 5Ãþ°ÇÁß
Á¦5Ãþ Á¦502È£·Î
¿Üº®:Ä¡ÀåŸÀÏ ¹× ½ºÅæÄÚÆ®¸¶°¨µî
³»º®:º®Áö ¹× ÀϺΟÀϸ¶°¨µî
âȣ:»þ½Ãâȣµî
4)ÀÌ¿ë»óÅÂ
´Ù¼¼´ëÁÖÅÃÀ¸·Î ÀÌ¿ëµÇ°í ÀÖÀ½.
5)¼³ºñ³»¿ª
À§»ý¼³ºñ,»óÇϼöµµ¼³ºñ,³­¹æ¼³ºñµî µÇ¾îÀÖÀ½.
6)ÅäÁöÀÇ Çü»ó ¹× ÀÌ¿ë»óÅÂ
2ÇÊ1´ÜÁö ¼¼ÀåÇüÀÇ ÅäÁö·Î ´Ù¼¼´ëÁÖÅÃÀÇ °ÇºÎÁö·Î ÀÌ¿ëµÇ°í ÀÖÀ½.
7)ÀÎÁ¢ µµ·Î»óŵî
ºÏÃøÀ¸·Î »óžçÈ£ÇÑ ¾Æ½ºÆÈÆ®Æ÷Àåµµ·Î¿Í Á¢Çϰí ÀÖÀ½.
8)ÅäÁöÀÌ¿ë°èȹ ¹× Á¦ÇÑ»óÅÂ
Á¦2Á¾ÀϹÝÁÖ°ÅÁö¿ª,°¡Ãà»çÀ°Á¦Çѱ¸¿ª(ÀÎõ±¤¿ª½Ã ¹ÌÃßȦ±¸ °¡Ãà»çÀ°Á¦ÇÑ¿¡ °üÇÑ Á¶·Ê
[2018. 7. 1.])<°¡ÃàºÐ´¢ÀÇ °ü¸® ¹× À̿뿡 °üÇÑ ¹ý·ü>,»ó´ëº¸È£±¸¿ª(³²ºÎ±³À°Ã»Æò»ý
±³À°°ú-1927(2008.03.07))<±³À°È¯°æ º¸È£¿¡ °üÇÑ ¹ý·ü>,°ú¹Ð¾ïÁ¦±Ç¿ª<¼öµµ±ÇÁ¤ºñ°èȹ¹ý>.
9)°øºÎ¿ÍÀÇ Â÷ÀÌ
º»°ÇÀº ÀÇ·Ú¸ñ·Ï»óÀÇ 1µ¿ÀÇ °Ç¹°ÀÇÇ¥½Ã¿¡¼­ÀÇ ¼ÒÀçÁö¹øÀº ¿ëÇöµ¿ 67-2¹øÁö·Î µÇ¾î
ÀÖÀ¸³ª ÇöȲ ¹× °ü·Ã°øºÎ(µî±â»çÇ×ÀüºÎÁõ¸í¼­,°ÇÃ๰´ëÀå)»ó¿¡´Â ¿ëÇöµ¿ 67-2,
67-17¹øÁö ¾çÁö»óÀ¸·Î µÇ¾îÀÖÀ½.
10)±âŸÂü°í»çÇ×(ÀÓ´ë°ü·Ê ¹× ±âŸ)
º»°Ç ÇöÀ广¹®ÇÏ¿´À¸³ª °ÅÁÖÀÎ µî ÀÌÇØ°ü°èÀÎÀÇ ºÎÀç°ü°è·Î ³»ºÎ±¸Á¶ µîÀº °øºÎ ¹×
Àα٠À¯»ç¹°°ÇÀÇ Æò°¡Àü·Ê µîÀ» Âü°íÇÏ¿© ÀϹÝÀûÀÎ »ç¾çÀ» ±âÁØÀ¸·Î Æò°¡ÇÏ¿´À¸¸ç
ÀÓ´ë¿©ºÎ´Â ÆÄ¾ÇÇÏÁö ¸øÇÏ¿´´Â ¹Ù °æ¸ÅÁøÇà½Ã Âü°í¹Ù¶ø´Ï´Ù.
Âü°í
»çÇ×

- º»°ÇÀº ÀÎõ¿ëÀÏÃʵîÇб³ ºÎ±Ù¿¡

°ÇÃ๰ÇöȲ

¼ÒÀçÁö ÀÎõ±¤¿ª½Ã ¹ÌÃßȦ±¸ ¿ëÇöµ¿ 67-2¹øÁö
´ëÁö¸éÀû 394.6§³
(119.58Æò)
¿¬¸éÀû 659.78§³
(199.93Æò)
°ÇÃà¸éÀû 214.16§³
(64.9Æò)
¿ëÀû·ü»êÁ¤
¿¬¸éÀû
659.78§³
(199.93Æò)
°ÇÆóÀ² 54.27% ¿ëÀû·ü 167.2%
Áö»óÃþ¼ö 5Ãþ ÁöÇÏÃþ¼ö  
ÁÖ¿ëµµ °øµ¿ÁÖÅà ±¸Á¶ ö±ÙÄÜÅ©¸®Æ®±¸Á¶
Âø°øÀÏÀÚ 2008.11.04 »ç¿ë½ÂÀÎÀÏÀÚ 2009.04.24
°ÇÃ๰Ãþº°ÇöȲ [º¸±â]


±¹ÅäºÎ½Ç°Å·¡°¡ ÀÎõ±¤¿ª½Ã ¹ÌÃßȦ±¸ ¿ëÇöµ¿

¡Ü ¸Å¸Å

¸éÀû(§³), ±Ý¾×(¸¸¿ø)

¡Ü Àü¼¼

¸éÀû(§³), ±Ý¾×(¸¸¿ø)

°è¾àÀϰǹ°¸íĪÃþ¿¬¸éÀû´ëÁö±Ý¾×°ÇÃà
24.03.30´ë½Å¾ÆÆ®ºô¶ó(6µ¿)465.9429.5611,5002001
24.03.29¾ÖÇÃÇϿ콺(577-56)316.7237.8532,9002011
24.03.29µ¿¾Æµå¸²ºô(Bµ¿)354.5625.2511,0002003
24.03.29´ÙÈïž½ººô4µ¿351.3933.4611,5002002
24.03.28¼º½Éºô¶ó(Aµ¿)347.5623.276,9002002
¢Ñ ´õº¸±â

µî±âºÎµîº» ¿ä¾à(°Ç¹°)

  Á¢¼öÀÏÀÚ µî±â¸ñÀû/±Ç¸®ÀÚ ±Ç¸®±Ý¾× ±âÁØ
1 2012³â12¿ù14ÀÏ
¼ÒÀ¯±Ç
Á¤OO
¼Ò¸ê
2 2009³â6¿ù1ÀÏ
±ÙÀú´ç±Ç
±ÙOOOO
158,600,000 ¼Ò¸ê±âÁØ
3 2024³â9¿ù4ÀÏ
ÀÓÀǰæ¸Å
±ÙOOOO
¼Ò¸ê
4 2024³â9¿ù20ÀÏ
¾Ð·ù
±¹OOOO
¼Ò¸ê

ÀÓÂ÷ÀÎÇöȲ (¹è´ç¿ä±¸Á¾±âÀÏ: 2024-12-09)

ÀÓÂ÷ÀÎ ¿ëµµ/Á¡À¯ º¸Áõ±Ý/¿ù¼¼ ´ëÇ×·Â
ÀüÀÔÀÏ/È®Á¤ÀÏ ¹è´ç¿ä±¸ ºñ°í
¹æOO ÀüºÎ 20,000,000
[¿ù]600,000
X
2023.04.27.
2023.04.27.
2024.9.26. 2023.04.27.~2025.04.26.

¿©ÀÇÁÖ°æ¸Å Á¶¾ð ÇÑ ¸¶µð


ÁÖÀÇ»çÇ× (ÃÖ¼±¼øÀ§ ¼³Á¤ÀÏ: 2009.06.01.±ÙÀú´ç±Ç ¼³Á¤)

¸Å°¢À¸·Î ¼Ò¸êµÇÁö ¾Ê´Â µî±âºÎ±Ç¸®:
¸Å°¢À¸·Î ¼³Á¤µÈ °ÍÀ¸·Î º¸´Â Áö»ó±Ç:
¡Ø¹Ì³³°ü¸®ºñ(°ø¿ë) Àμö¿©ºÎ¸¦ ÀÔÂû Àü¿¡ È®ÀÎÇϽñ⠹ٶø´Ï´Ù

 

Áö¿ªºÐ¼®

ÁöÇÏö¸í Á÷¼±°Å¸®

Çб³¸í ÀüÈ­¹øÈ£ ÁÖ¼Ò Á÷¼±°Å¸®

¹ý¿ø

ÀÎõÁö¹æ¹ý¿ø (222-20)ÀÎõ±¤¿ª½Ã ¹ÌÃßȦ±¸ ¼Ò¼º·Î 163¹ø±æ 17(ÇÐÀ͵¿)
´ëÇ¥ : 032)860-1113~4
°üÇÒÁö¿ª : Áß±¸, µ¿±¸, ³²±¸, ¿¬¼ö±¸, ³²µ¿±¸, ºÎÆò±¸, °è¾ç±¸, ¼­±¸, ¿ËÁø±º, °­È­±º

µî±â¼Ò ÀÎõÁö¹æ¹ý¿ø º»¿ø µî±â±¹ (´ëÇ¥:1544-0773, ÆÑ½º:(032)620-9099, ÀÎõ±¤¿ª½Ã ¹ÌÃßȦ±¸ °æ¿ø´ë·Î 881(Á־ȵ¿ 983))
¼¼¹«¼­ ÀÎõ¼¼¹«¼­ (´ëÇ¥:032-770-02, ÆÑ½º:032-777-8104, ÀÎõ±¤¿ª½Ã µ¿±¸ ¿ì°¢·Î 75 (⿵µ¿))

Àαٳ«ÂûÅë°è

±â°£ ¸Å°¢°Ç¼ö Æò±Õ°¨Á¤°¡
Æò±Õ¸Å°¢°¡
¸Å°¢°¡À²
Æò±ÕÀ¯Âû¼ö
3°³¿ù 17°Ç 151,705,882¿ø
87,028,310¿ø
56%
2.5ȸ
6°³¿ù 43°Ç 163,253,488¿ø
98,861,643¿ø
60%
2.1ȸ
12°³¿ù 45°Ç 162,842,222¿ø
99,669,992¿ø
60%
2.1ȸ


º» °æ¸ÅÁ¤º¸´Â ¹ý¿øÀÚ·á¿Í ÀÏÄ¡Çϵµ·Ï ÇÏ¿´À¸³ª ±Ç¸®»çÇ׺¯µ¿, ÀÔ·ÂÂø¿À µîÀÇ ¿øÀÎÀ¸·Î »ç½Ç°ú ´Ù¸¦ ¼ö ÀÖ½À´Ï´Ù. ÀÌ¿ë¾à°ü¿¡ ÀǰЏéÃ¥Á¶°ÇÀ¸·Î Á¦°øµÊÀ» ¾Ë¸®¸ç, °æ¸ÅÀÔÂû½Ã ¹Ýµå½Ã °ü·Ã °øºÎ¸¦ ÀçÈ®ÀÎÇϽñ⠹ٶø´Ï´Ù. º¸´Ù Æí¸®ÇÑ °æ¸ÅÁ¤º¸ Á¦°øÀ» À§ÇØ Áö¼ÓÀûÀ¸·Î °³¼±ÇϰڽÀ´Ï´Ù. ÀÌ¿ëÇØ Áּż­ °¨»çÇÕ´Ï´Ù.