·Î±×ÀÎ
130
´Ù¼¼´ë(ºô¶ó)
¼­¿ï³²ºÎÁö¹æ¹ý¿ø
 °¨Á¤°¡313,000,000 ¿ø
 ÃÖÀú°¡(64%) 200,320,000 ¿ø
 º¸Áõ±Ý(10%) 20,032,000 ¿ø
 Ã»±¸¾×255,000,000 ¿ø
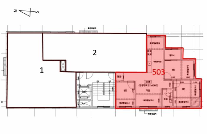
¼­¿ïƯº°½Ã °­¼­±¸ È­°îµ¿ 454-22 ´ë¸²Ä³½½ Á¦5Ãþ Á¦503È£
»ç°Ç¹øÈ£ 2025Ÿ°æ9719
°æ¸ÅÁ¾·ùºÎµ¿»ê°­Á¦°æ¸Å
¸Å°¢´ë»óÅäÁö ¹× °Ç¹°Àϰý ¸Å°¢
¸Å°¢±âÀÏ    2026.02.05(¸ñ) 10:00 ÀÔÂû 25ÀÏÀü    
ÅäÁö¸éÀû25.00§³(7.56 Æò)
°Ç¹°¸éÀû37.40§³(11.31 Æò)
乫/¼ÒÀ¯ÀÚ°­OO / °­OO
ä±ÇÀÚÁÖOOOOOOO
ÆäÀ̽ººÏ Æ®À§ÅÍ ±¸±Û+
īī¿À½ºÅ丮
īī¿ÀÅå sms¹®ÀÚº¸³»±â
 

±âÀϳ»¿ª

°æ°ú ³¯Â¥ Àú°¨ ÃÖÀú°¡ °á°ú
Á¢¼öÀÏ 2025-04-21 °æ¸ÅÁ¢¼ö
~1ÀÏ 
2025-04-22 °æ¸Å°³½Ã°áÁ¤
~93ÀÏ 
2025-07-23 ¹è´ç¿ä±¸Á¾±âÀÏ
~197ÀÏ 
2025-11-04 100%
313,000,000
À¯Âû
~234ÀÏ 
2025-12-11 80%
250,400,000
À¯Âû
~290ÀÏ 
2026-02-05 64%
200,320,000
ÁøÇà
¹°°Ç¸í¼¼¼­ ÇöȲÁ¶»ç¼­ ¹®°ÇÁ¢¼ö ¼Û´Þ³»¿ª

°¨Á¤Æò°¡ÇöȲ

¸ñ·Ï ÁÖ¼Ò ±¸Á¶/¿ëµµ/´ëÁö±Ç ¸éÀû ºñ°í
´ëÁö±Ç
È­°îµ¿ 454-22 367.5ºÐÀÇ 25 25 §³
(7.56Æò)
°Ç¹°
È­°îµ¿ 454-22 Á¦5Ãþ Á¦503È£ ö±ÙÄÜÅ©¸®Æ®±¸Á¶ 37.4 §³
(11.31Æò)
Âü°í
»çÇ×
ÀÓÂ÷ÀÎ ¹× ÀÓÂ÷±Ç½Â°èÀÎ ÁÖÅõµ½Ãº¸Áõ°ø»çÀÇ ¸Å¼öÀο¡ ´ëÇÑ ´ëÇ×·Â Æ÷±âÁ¶°Ç ¸Å°¢

°ÇÃ๰ÇöȲ

¼ÒÀçÁö ¼­¿ïƯº°½Ã °­¼­±¸ È­°îµ¿ 454-22¹øÁö
´ëÁö¸éÀû 367.5§³
(111.36Æò)
¿¬¸éÀû 716.72§³
(217.19Æò)
°ÇÃà¸éÀû 186.07§³
(56.38Æò)
¿ëÀû·ü»êÁ¤
¿¬¸éÀû
659.02§³
(199.7Æò)
°ÇÆóÀ² 50.63% ¿ëÀû·ü 179.33%
Áö»óÃþ¼ö 6Ãþ ÁöÇÏÃþ¼ö 1Ãþ
ÁÖ¿ëµµ °øµ¿ÁÖÅà ±¸Á¶ ö±ÙÄÜÅ©¸®Æ®±¸Á¶
Âø°øÀÏÀÚ 2017.08.04 »ç¿ë½ÂÀÎÀÏÀÚ 2018.01.12
°ÇÃ๰Ãþº°ÇöȲ [º¸±â]


±¹ÅäºÎ½Ç°Å·¡°¡ ¼­¿ïƯº°½Ã °­¼­±¸ È­°îµ¿

¡Ü ¸Å¸Å

¸éÀû(§³), ±Ý¾×(¸¸¿ø)

¡Ü Àü¼¼

¸éÀû(§³), ±Ý¾×(¸¸¿ø)

°è¾àÀϰǹ°¸íĪÃþ¿¬¸éÀûº¸Áõ±Ý¿ù¼¼°ÇÃà
25.12.22º¸¹èÇÏÀÌÃ÷ºô¶ó-163.3510,00001997
25.12.22LGŸ¿î9Â÷359.3916,500202002
25.12.20±Ý°­ÇÏÀÓºô229.8416,500142015
25.12.20»õÇѱ׸°ºôAµ¿450.8820,0002002
25.12.19´õ¿ø#8329.7323,81002022
¢Ñ ´õº¸±â

µî±âºÎµîº» ¿ä¾à(°Ç¹°)

  Á¢¼öÀÏÀÚ µî±â¸ñÀû/±Ç¸®ÀÚ ±Ç¸®±Ý¾× ±âÁØ
1 2018³â5¿ù30ÀÏ
¼ÒÀ¯±Ç
°­OO
¼Ò¸ê
2 2023³â11¿ù17ÀÏ
ÀÓÂ÷±Ç¼³Á¤
¼­OO
255,000,000 Àμö
3 2024³â3¿ù13ÀÏ
¾Ð·ù
±¹
¼Ò¸ê±âÁØ
4 2024³â8¿ù5ÀÏ
¾Ð·ù
±¹
¼Ò¸ê
5 2025³â4¿ù23ÀÏ
°­Á¦°æ¸Å
ÁÖOOOO
¼Ò¸ê
6 2025³â4¿ù30ÀÏ
¾Ð·ù
°­OO
¼Ò¸ê

ÀÓÂ÷ÀÎÇöȲ (¹è´ç¿ä±¸Á¾±âÀÏ: 2025-07-23)

ÀÓÂ÷ÀÎ ¿ëµµ/Á¡À¯ º¸Áõ±Ý/¿ù¼¼ ´ëÇ×·Â
ÀüÀÔÀÏ/È®Á¤ÀÏ ¹è´ç¿ä±¸ ºñ°í
¼­OO ÀüºÎ 255,000,000
O
2021.11.05.
2021.09.30.
2021.11.05.~
ÁÖOOOOOOO ÀüºÎ 255,000,000
O
2021.11.05.
2021.09.30.
2025.4.21. 2021.11.05.~
ºñ°í
(¸Å°¢¹°°Ç
¸í¼¼¼­)
ÁÖÅõµ½Ãº¸Áõ°ø»ç:ÀÌ »ç°Ç ½Åûä±ÇÀÚ·Î ÁÖÅÃÀÓÂ÷±ÇÀÚ ¼­Àº¼÷ÀÇ ÁöÀ§¸¦ ½Â°èÇÏ¿© ±Ç¸®½Å°í ¹× ¹è´ç¿ä±¸ÇÔ

¿©ÀÇÁÖ°æ¸Å Á¶¾ð ÇÑ ¸¶µð


ÁÖÀÇ»çÇ× (ÃÖ¼±¼øÀ§ ¼³Á¤ÀÏ: 2024.3.13. ¾Ð·ù ¼³Á¤)

¸Å°¢À¸·Î ¼Ò¸êµÇÁö ¾Ê´Â µî±âºÎ±Ç¸®:
¸Å°¢À¸·Î ¼³Á¤µÈ °ÍÀ¸·Î º¸´Â Áö»ó±Ç:
Ưº°¸Å°¢Á¶°Ç : ÁÖÅõµ½Ãº¸Áõ°ø»ç´Â ¸Å¼öÀο¡ ´ëÇØ ¹è´ç¹ÞÁö ¸øÇÏ´Â Àܾ׿¡ ´ëÇÑ ÀÓ´ëÂ÷º¸Áõ±Ý ¹Ýȯû±¸±ÇÀ» Æ÷±âÇϰí, ÀÓÂ÷±Ç µî±â¸¦ ¸»¼ÒÇÏ´Â °ÍÀ» Á¶°ÇÀ¸·Î ¸Å°¢
¡Ø¹Ì³³°ü¸®ºñ(°ø¿ë) Àμö¿©ºÎ¸¦ ÀÔÂû Àü¿¡ È®ÀÎÇϽñ⠹ٶø´Ï´Ù

 

Áö¿ªºÐ¼®

ÁöÇÏö¸í Á÷¼±°Å¸®

Çб³¸í ÀüÈ­¹øÈ£ ÁÖ¼Ò Á÷¼±°Å¸®

¹ý¿ø

¼­¿ï³²ºÎÁö¹æ¹ý¿ø (080-88)¼­¿ïƯº°½Ã ¾çõ±¸ ½Å¿ù·Î 386(½ÅÁ¤µ¿)
´ëÇ¥ : 02)2192-1114
°üÇÒÁö¿ª : ¿µµîÆ÷±¸, °­¼­±¸, ¾çõ±¸, ±¸·Î±¸, ±Ýõ±¸

µî±â¼Ò ¼­¿ï³²ºÎÁö¹æ¹ý¿ø º»¿ø µî±â±¹ (´ëÇ¥:1544-0773, ÆÑ½º:(02)2629-7307, ¼­¿ïƯº°½Ã ¿µµîÆ÷±¸ °æÀηΠ772 (¹®·¡µ¿ 1°¡))
¼¼¹«¼­ °­¼­¼¼¹«¼­ (´ëÇ¥:02-2630-42, ÆÑ½º:02-2679-8777, ¼­¿ïƯº°½Ã °­¼­±¸ ¸¶°î¼­1·Î 60 (¸¶°îµ¿))

Àαٳ«ÂûÅë°è

±â°£ ¸Å°¢°Ç¼ö Æò±Õ°¨Á¤°¡
Æò±Õ¸Å°¢°¡
¸Å°¢°¡À²
Æò±ÕÀ¯Âû¼ö
3°³¿ù 324°Ç 262,039,908¿ø
195,298,464¿ø
75%
2.3ȸ
6°³¿ù 583°Ç 261,281,484¿ø
199,148,488¿ø
77%
2.2ȸ
12°³¿ù 1,044°Ç 259,261,474¿ø
200,994,029¿ø
78%
2.3ȸ


º» °æ¸ÅÁ¤º¸´Â ¹ý¿øÀÚ·á¿Í ÀÏÄ¡Çϵµ·Ï ÇÏ¿´À¸³ª ±Ç¸®»çÇ׺¯µ¿, ÀÔ·ÂÂø¿À µîÀÇ ¿øÀÎÀ¸·Î »ç½Ç°ú ´Ù¸¦ ¼ö ÀÖ½À´Ï´Ù. ÀÌ¿ë¾à°ü¿¡ ÀǰЏéÃ¥Á¶°ÇÀ¸·Î Á¦°øµÊÀ» ¾Ë¸®¸ç, °æ¸ÅÀÔÂû½Ã ¹Ýµå½Ã °ü·Ã °øºÎ¸¦ ÀçÈ®ÀÎÇϽñ⠹ٶø´Ï´Ù. º¸´Ù Æí¸®ÇÑ °æ¸ÅÁ¤º¸ Á¦°øÀ» À§ÇØ Áö¼ÓÀûÀ¸·Î °³¼±ÇϰڽÀ´Ï´Ù. ÀÌ¿ëÇØ Áּż­ °¨»çÇÕ´Ï´Ù.