| °¨Á¤°¡ | 235,000,000 ¿ø |
| ÃÖÀú°¡ | (80%) 188,000,000 ¿ø |
| º¸Áõ±Ý | (10%) 18,800,000 ¿ø |
| û±¸¾× | 209,000,000 ¿ø |
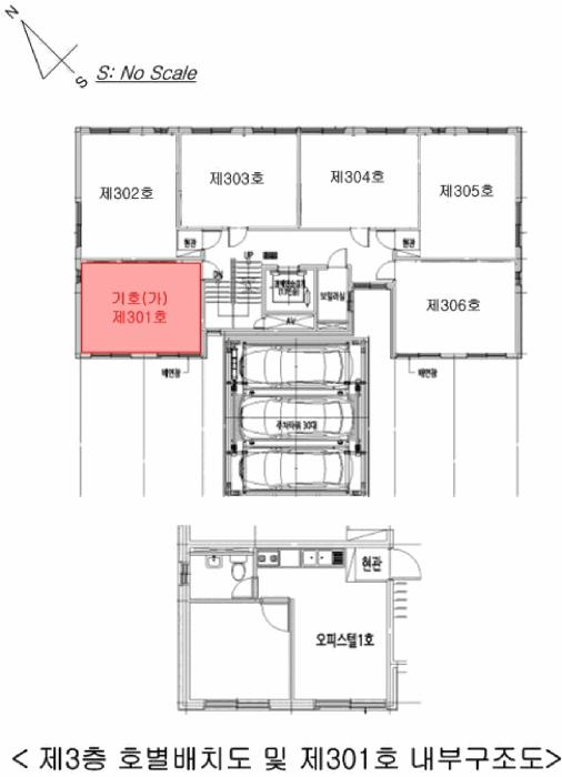
¼¿ïƯº°½Ã ±Ýõ±¸ °¡»êµ¿ 237-8 ŷij½½2Â÷ Á¦3Ãþ Á¦301È£
| »ç°Ç¹øÈ£ |
2025Ÿ°æ8957
|
| °æ¸ÅÁ¾·ù | ºÎµ¿»ê°Á¦°æ¸Å |
| ¸Å°¢´ë»ó | ÅäÁö ¹× °Ç¹°Àϰý ¸Å°¢ |
| ¸Å°¢±âÀÏ |
2025.12.11(¸ñ) 10:00
ÀÔÂû 24ÀÏÀü
|
| ÅäÁö¸éÀû | 8.17§³(2.47 Æò) |
| °Ç¹°¸éÀû | 21.91§³(6.63 Æò) |
| 乫/¼ÒÀ¯ÀÚ | ±èOO / ±èOO |
| ä±ÇÀÚ | ÁÖOOOOOOO |
±âÀϳ»¿ª
| °æ°ú |
³¯Â¥ |
Àú°¨ |
ÃÖÀú°¡ |
°á°ú |
| Á¢¼öÀÏ |
2025-03-04 |
°æ¸ÅÁ¢¼ö |
~1ÀÏ |
2025-03-05 |
°æ¸Å°³½Ã°áÁ¤ |
~93ÀÏ |
2025-06-05 |
¹è´ç¿ä±¸Á¾±âÀÏ |
~245ÀÏ |
2025-11-04 |
100% |
235,000,000 |
À¯Âû |
~282ÀÏ |
2025-12-11 |
80% |
188,000,000 |
ÁøÇà |
°¨Á¤Æò°¡ÇöȲ
| ¸ñ·Ï |
ÁÖ¼Ò |
±¸Á¶/¿ëµµ/´ëÁö±Ç |
¸éÀû |
ºñ°í |
´ëÁö±Ç
|
°¡»êµ¿ 237-8 |
519.3ºÐÀÇ 8.165 |
8.165 §³ (2.47Æò)
|
|
°Ç¹°
|
°¡»êµ¿ 237-8 |
Á¦3Ãþ Á¦301È£ ö±ÙÄÜÅ©¸®Æ®±¸Á¶ |
21.91 §³ (6.63Æò)
|
|
Âü°í »çÇ× |
ÀÓÂ÷ÀÎ ¹× ÀÓÂ÷±Ç½Â°èÀÎ ÁÖÅõµ½Ãº¸Áõ°ø»çÀÇ ¸Å¼öÀο¡ ´ëÇÑ ´ëÇ×·Â Æ÷±âÁ¶°Ç ¸Å°¢
|
°ÇÃ๰ÇöȲ
| ¼ÒÀçÁö |
¼¿ïƯº°½Ã ±Ýõ±¸ °¡»êµ¿ 237-8¹øÁö |
| ´ëÁö¸éÀû |
519.3§³ (157.36Æò) |
¿¬¸éÀû |
2029.91§³ (615.12Æò) |
| °ÇÃà¸éÀû |
233.83§³ (70.86Æò) |
¿ëÀû·ü»êÁ¤ ¿¬¸éÀû |
1805.48§³ (547.12Æò) |
| °ÇÆóÀ² |
45.03% |
¿ëÀû·ü |
347.68% |
| Áö»óÃþ¼ö |
12Ãþ |
ÁöÇÏÃþ¼ö |
1Ãþ |
| ÁÖ¿ëµµ |
¾÷¹«½Ã¼³ |
±¸Á¶ |
ö±ÙÄÜÅ©¸®Æ®±¸Á¶ |
| Âø°øÀÏÀÚ |
2021.08.08 |
»ç¿ë½ÂÀÎÀÏÀÚ |
2021.09.14 |
°ÇÃ๰Ãþº°ÇöȲ [º¸±â]| Ãþº° | ±¸Á¶ | ¿ëµµ | ¸éÀû |
|---|
| 1Ãþ | ö±ÙÄÜÅ©¸®Æ®±¸Á¶ | ±â°è½Ä ÁÖÂ÷Àå | 48.84§³ (14.8Æò) | | 1Ãþ | ö±ÙÄÜÅ©¸®Æ®±¸Á¶ | ±â°è½Ä ÁÖÂ÷Àå | 48.84§³ (14.8Æò) | | 1Ãþ | ö±ÙÄÜÅ©¸®Æ®±¸Á¶ | °è ´Ü ½Ç | 18.52§³ (5.61Æò) | | 1Ãþ | ö±ÙÄÜÅ©¸®Æ®±¸Á¶ | °è ´Ü ½Ç | 18.52§³ (5.61Æò) | | 2Ãþ | ö±ÙÄÜÅ©¸®Æ®±¸Á¶ | ¿ÀÇǽºÅÚ | 168.53§³ (51.07Æò) | | 2Ãþ | ö±ÙÄÜÅ©¸®Æ®±¸Á¶ | ¿ÀÇǽºÅÚ | 168.53§³ (51.07Æò) | | 3Ãþ | ö±ÙÄÜÅ©¸®Æ®±¸Á¶ | ¿ÀÇǽºÅÚ | 168.53§³ (51.07Æò) | | 3Ãþ | ö±ÙÄÜÅ©¸®Æ®±¸Á¶ | ¿ÀÇǽºÅÚ | 168.53§³ (51.07Æò) | | 4Ãþ | ö±ÙÄÜÅ©¸®Æ®±¸Á¶ | ¿ÀÇǽºÅÚ | 168.53§³ (51.07Æò) | | 4Ãþ | ö±ÙÄÜÅ©¸®Æ®±¸Á¶ | ¿ÀÇǽºÅÚ | 168.53§³ (51.07Æò) | | 5Ãþ | ö±ÙÄÜÅ©¸®Æ®±¸Á¶ | ¿ÀÇǽºÅÚ | 168.53§³ (51.07Æò) | | 5Ãþ | ö±ÙÄÜÅ©¸®Æ®±¸Á¶ | ¿ÀÇǽºÅÚ | 168.53§³ (51.07Æò) | | 6Ãþ | ö±ÙÄÜÅ©¸®Æ®±¸Á¶ | ¿ÀÇǽºÅÚ | 168.53§³ (51.07Æò) | | 6Ãþ | ö±ÙÄÜÅ©¸®Æ®±¸Á¶ | ¿ÀÇǽºÅÚ | 168.53§³ (51.07Æò) | | 7Ãþ | ö±ÙÄÜÅ©¸®Æ®±¸Á¶ | ¿ÀÇǽºÅÚ | 168.53§³ (51.07Æò) | | 7Ãþ | ö±ÙÄÜÅ©¸®Æ®±¸Á¶ | ¿ÀÇǽºÅÚ | 168.53§³ (51.07Æò) | | 8Ãþ | ö±ÙÄÜÅ©¸®Æ®±¸Á¶ | ¿ÀÇǽºÅÚ | 168.53§³ (51.07Æò) | | 8Ãþ | ö±ÙÄÜÅ©¸®Æ®±¸Á¶ | ¿ÀÇǽºÅÚ | 168.53§³ (51.07Æò) | | 9Ãþ | ö±ÙÄÜÅ©¸®Æ®±¸Á¶ | ¿ÀÇǽºÅÚ | 168.53§³ (51.07Æò) | | 9Ãþ | ö±ÙÄÜÅ©¸®Æ®±¸Á¶ | ¿ÀÇǽºÅÚ | 168.53§³ (51.07Æò) | | 10Ãþ | ö±ÙÄÜÅ©¸®Æ®±¸Á¶ | ¿ÀÇǽºÅÚ | 168.53§³ (51.07Æò) | | 10Ãþ | ö±ÙÄÜÅ©¸®Æ®±¸Á¶ | ¿ÀÇǽºÅÚ | 168.53§³ (51.07Æò) | | 11Ãþ | ö±ÙÄÜÅ©¸®Æ®±¸Á¶ | ¿ÀÇǽºÅÚ | 168.53§³ (51.07Æò) | | 11Ãþ | ö±ÙÄÜÅ©¸®Æ®±¸Á¶ | ¿ÀÇǽºÅÚ | 168.53§³ (51.07Æò) | | 12Ãþ | ö±ÙÄÜÅ©¸®Æ®±¸Á¶ | ¿ÀÇǽºÅÚ | 101.66§³ (30.81Æò) | | 12Ãþ | ö±ÙÄÜÅ©¸®Æ®±¸Á¶ | ¿ÀÇǽºÅÚ | 101.66§³ (30.81Æò) | | ¿Áž1Ãþ | ö±ÙÄÜÅ©¸®Æ®±¸Á¶ | °è ´Ü ½Ç | 18.52§³ (5.61Æò) | | ¿Áž1Ãþ | ö±ÙÄÜÅ©¸®Æ®±¸Á¶ | °è ´Ü ½Ç | 18.52§³ (5.61Æò) | | Áö1Ãþ | ö±ÙÄÜÅ©¸®Æ®±¸Á¶ | ±â°è½Ç, Åë½Å½Ç, Àü±â½Ç | 175.59§³ (53.21Æò) | | Áö1Ãþ | ö±ÙÄÜÅ©¸®Æ®±¸Á¶ | ±â°è½Ç, Åë½Å½Ç, Àü±â½Ç | 175.59§³ (53.21Æò) |
|
±¹ÅäºÎ½Ç°Å·¡°¡ ¼¿ïƯº°½Ã ±Ýõ±¸ °¡»êµ¿
| °è¾àÀÏ | °Ç¹°¸íĪ | Ãþ | Àü¿ë | ±Ý¾× | °ÇÃà |
| °Å·¡³»¿ªÀÌ ¾ø½À´Ï´Ù. |
| °è¾àÀÏ | °Ç¹°¸íĪ | Ãþ | Àü¿ë | º¸Áõ±Ý | ¿ù¼¼ | °ÇÃà |
| 25.10.29 | ŷij½½2Â÷ | 10 | 23.01 | 21,000 | 0 | 2021 |
| 25.10.23 | ŷij½½2Â÷ | 6 | 21.38 | 19,100 | 4 | 2021 |
| 25.10.21 | ŷij½½2Â÷ | 2 | 21.38 | 19,005 | 0 | 2021 |
| 25.10.20 | ŷij½½2Â÷ | 4 | 23.01 | 21,100 | 0 | 2021 |
| 25.10.15 | ŷij½½2Â÷ | 10 | 23.01 | 22,080 | 2 | 2021 |
| 25.10.10 | ŷij½½2Â÷ | 10 | 21.38 | 20,055 | 0 | 2021 |
| 25.10.02 | ŷij½½2Â÷ | 5 | 21.38 | 19,840 | 0 | 2021 |
| 25.09.29 | ŷij½½2Â÷ | 4 | 21.38 | 19,840 | 0 | 2021 |
| 25.09.22 | ŷij½½2Â÷ | 11 | 21.91 | 19,170 | 16 | 2021 |
| 25.09.21 | ŷij½½2Â÷ | 9 | 21.91 | 20,120 | 0 | 2021 |
| 25.09.18 | ŷij½½2Â÷ | 12 | 23.01 | 20,610 | 13 | 2021 |
| 25.09.13 | ŷij½½2Â÷ | 11 | 23.01 | 23,000 | 0 | 2021 |
| 25.09.13 | ŷij½½2Â÷ | 6 | 21.91 | 20,500 | 9 | 2021 |
| 25.09.10 | ŷij½½2Â÷ | 2 | 23.01 | 19,500 | 4 | 2021 |
| 25.08.28 | ŷij½½2Â÷ | 7 | 21.38 | 20,000 | 0 | 2021 |
| 25.08.28 | ŷij½½2Â÷ | 11 | 21.38 | 20,400 | 9 | 2021 |
| 25.08.23 | ŷij½½2Â÷ | 6 | 21.91 | 20,530 | 6 | 2021 |
| 25.08.20 | ŷij½½2Â÷ | 3 | 23.01 | 21,630 | 0 | 2021 |
| 25.08.17 | ŷij½½2Â÷ | 5 | 23.01 | 19,900 | 0 | 2021 |
| 25.08.12 | ŷij½½2Â÷ | 3 | 21.38 | 20,000 | 9 | 2021 |
| 25.08.08 | ŷij½½2Â÷ | 10 | 21.91 | 20,055 | 0 | 2021 |
| 25.08.02 | ŷij½½2Â÷ | 10 | 21.91 | 18,600 | 19 | 2021 |
| 25.07.22 | ŷij½½2Â÷ | 3 | 21.38 | 20,000 | 9 | 2021 |
| 25.07.20 | ŷij½½2Â÷ | 11 | 21.38 | 19,760 | 16 | 2021 |
| 25.07.17 | ŷij½½2Â÷ | 5 | 21.91 | 19,200 | 0 | 2021 |
| 25.06.26 | ŷij½½2Â÷ | 12 | 21.38 | 20,000 | 10 | 2021 |
| 25.06.24 | ŷij½½2Â÷ | 8 | 21.91 | 19,000 | 0 | 2021 |
| 24.11.07 | ŷij½½2Â÷ | 7 | 21.38 | 21,600 | 0 | 2021 |
| 24.10.18 | ŷij½½2Â÷ | 10 | 21.91 | 18,600 | 19 | 2021 |
| 24.10.02 | ŷij½½2Â÷ | 8 | 23.01 | 22,680 | 0 | 2021 |
| 24.09.19 | ŷij½½2Â÷ | 9 | 23.01 | 22,600 | 0 | 2021 |
| 24.09.07 | ŷij½½2Â÷ | 2 | 21.38 | 21,700 | 0 | 2021 |
| 24.08.24 | ŷij½½2Â÷ | 7 | 23.01 | 22,500 | 0 | 2021 |
| 24.08.07 | ŷij½½2Â÷ | 4 | 23.01 | 22,260 | 0 | 2021 |
| 24.05.29 | ŷij½½2Â÷ | 8 | 21.38 | 21,900 | 0 | 2021 |
| 24.05.09 | ŷij½½2Â÷ | 10 | 21.38 | 22,700 | 0 | 2021 |
| 24.04.01 | ŷij½½2Â÷ | 2 | 23.01 | 19,000 | 0 | 2021 |
| 24.03.27 | ŷij½½2Â÷ | 4 | 21.91 | 18,427 | 2 | 2021 |
| 24.03.17 | ŷij½½2Â÷ | 5 | 21.38 | 18,900 | 0 | 2021 |
µî±âºÎµîº» ¿ä¾à(°Ç¹°)
| |
Á¢¼öÀÏÀÚ |
µî±â¸ñÀû/±Ç¸®ÀÚ |
±Ç¸®±Ý¾× |
±âÁØ |
| 1 |
2021³â11¿ù1ÀÏ |
¼ÒÀ¯±Ç
±èOO
|
|
¼Ò¸ê |
| 2 |
2021³â11¿ù1ÀÏ |
¾àÁ¤/±ÝÁö»çÇ×/ȯ¸ÅƯ¾à
|
|
Àμö |
| 3 |
2023³â11¿ù8ÀÏ |
ÀÓÂ÷±Ç¼³Á¤
ÃÖOO
|
209,000,000 |
Àμö |
| 4 |
2024³â11¿ù20ÀÏ |
°¡¾Ð·ù
(OOOO
|
14,222,502 |
¼Ò¸ê±âÁØ |
| 5 |
2025³â3¿ù5ÀÏ |
°Á¦°æ¸Å
ÁÖOOOO
|
|
¼Ò¸ê |
ÀÓÂ÷ÀÎÇöȲ (¹è´ç¿ä±¸Á¾±âÀÏ: 2025-06-05)
| ÀÓÂ÷ÀÎ |
¿ëµµ/Á¡À¯ |
º¸Áõ±Ý/¿ù¼¼ |
´ëÇ×·Â |
| ÀüÀÔÀÏ/È®Á¤ÀÏ |
¹è´ç¿ä±¸ |
ºñ°í |
| ÁÖOOOOOOO |
ÀüºÎ |
209,000,000
|
O |
2021.11.01. 2021.09.27. |
2025.5.30. |
2021.10.30.~2023.10.29. |
| ÃÖOO |
ÀüºÎ |
209,000,000
|
O |
2021.11.1. 2021.9.27. |
|
2021.10.30.~ |
ºñ°í (¸Å°¢¹°°Ç ¸í¼¼¼) |
ÁÖÅõµ½Ãº¸Áõ°ø»ç:ÁÖÅÃÀÓÂ÷±ÇÀÚ ÃÖÀçÇöÀÇ ÁöÀ§¸¦ ½Â°èÇÑ ÀÌ »ç°Ç ½Åûä±ÇÀÚ·Î ±Ç¸®½Å°í ¹× ¹è´ç¿ä±¸ÀÏÀº °æ¸Å½ÅûÀÏÀÓ |
ÁÖÀÇ»çÇ× (ÃÖ¼±¼øÀ§ ¼³Á¤ÀÏ: 2024.11.20. °¡¾Ð·ù ¼³Á¤)
| ¸Å°¢À¸·Î ¼Ò¸êµÇÁö ¾Ê´Â µî±âºÎ±Ç¸®: |
| ¸Å°¢À¸·Î ¼³Á¤µÈ °ÍÀ¸·Î º¸´Â Áö»ó±Ç: |
|
Ưº°¸Å°¢Á¶°Ç : ÁÖÅõµ½Ãº¸Áõ°ø»ç´Â ¸Å¼öÀο¡ ´ëÇØ ¹è´ç¹ÞÁö ¸øÇÏ´Â Àܾ׿¡ ´ëÇÑ ÀÓ´ëÂ÷º¸Áõ±Ý ¹Ýȯû±¸±ÇÀ» Æ÷±âÇϰí, ÀÓÂ÷±Ç
µî±â¸¦ ¸»¼ÒÇÏ´Â °ÍÀ» Á¶°ÇÀ¸·Î ¸Å°¢ ¡Ø¹Ì³³°ü¸®ºñ(°ø¿ë) Àμö¿©ºÎ¸¦ ÀÔÂû Àü¿¡ È®ÀÎÇϽñ⠹ٶø´Ï´Ù
|
Áö¿ªºÐ¼®
| Çб³¸í |
ÀüȹøÈ£ |
ÁÖ¼Ò |
Á÷¼±°Å¸® |
| ¹ý¿ø |
¼¿ï³²ºÎÁö¹æ¹ý¿ø (080-88)¼¿ïƯº°½Ã ¾çõ±¸ ½Å¿ù·Î 386(½ÅÁ¤µ¿) ´ëÇ¥ : 02)2192-1114 °üÇÒÁö¿ª : ¿µµîÆ÷±¸, °¼±¸, ¾çõ±¸, ±¸·Î±¸, ±Ýõ±¸ |
| µî±â¼Ò |
¼¿ï³²ºÎÁö¹æ¹ý¿ø º»¿ø µî±â±¹ (´ëÇ¥:1544-0773, ÆÑ½º:(02)2629-7307, ¼¿ïƯº°½Ã ¿µµîÆ÷±¸ °æÀηΠ772 (¹®·¡µ¿ 1°¡)) |
| ¼¼¹«¼ |
±Ýõ¼¼¹«¼ (´ëÇ¥:02-850-420, ÆÑ½º:02-861-1475, ¼¿ïƯº°½Ã ±Ýõ±¸ ½ÃÈï´ë·Î152±æ 11-21 (µ¶»êµ¿)) |
Àαٳ«ÂûÅë°è
| ±â°£ |
¸Å°¢°Ç¼ö |
Æò±Õ°¨Á¤°¡ Æò±Õ¸Å°¢°¡ |
¸Å°¢°¡À² Æò±ÕÀ¯Âû¼ö |
| 3°³¿ù |
43°Ç |
217,930,233¿ø 182,481,772¿ø |
84% 1.5ȸ |
| 6°³¿ù |
75°Ç |
216,312,992¿ø 179,559,547¿ø |
84% 1.7ȸ |
| 12°³¿ù |
128°Ç |
220,386,519¿ø 188,213,170¿ø |
86% 1.7ȸ |
º» °æ¸ÅÁ¤º¸´Â ¹ý¿øÀÚ·á¿Í ÀÏÄ¡Çϵµ·Ï ÇÏ¿´À¸³ª ±Ç¸®»çÇ׺¯µ¿, ÀÔ·ÂÂø¿À µîÀÇ ¿øÀÎÀ¸·Î »ç½Ç°ú ´Ù¸¦ ¼ö ÀÖ½À´Ï´Ù.
ÀÌ¿ë¾à°ü¿¡ ÀǰЏéÃ¥Á¶°ÇÀ¸·Î Á¦°øµÊÀ» ¾Ë¸®¸ç, °æ¸ÅÀÔÂû½Ã ¹Ýµå½Ã °ü·Ã °øºÎ¸¦ ÀçÈ®ÀÎÇϽñ⠹ٶø´Ï´Ù.
º¸´Ù Æí¸®ÇÑ °æ¸ÅÁ¤º¸ Á¦°øÀ» À§ÇØ Áö¼ÓÀûÀ¸·Î °³¼±ÇϰڽÀ´Ï´Ù. ÀÌ¿ëÇØ Áּż °¨»çÇÕ´Ï´Ù.