·Î±×ÀÎ
88
¿ÀÇǽºÅÚ
¼­¿ïºÏºÎÁö¹æ¹ý¿ø
 °¨Á¤°¡320,000,000 ¿ø
 ÃÖÀú°¡(80%) 256,000,000 ¿ø
 º¸Áõ±Ý(10%) 25,600,000 ¿ø
 Ã»±¸¾×290,000,000 ¿ø
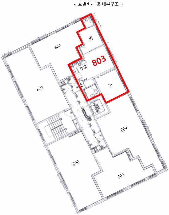
¼­¿ïƯº°½Ã Áß¶û±¸ »óºÀµ¿ 104-48 ÄÉÀÌÁ¦ÀÌÄÉ·»½Ã¾Æ 8Ãþ803È£
»ç°Ç¹øÈ£ 2025Ÿ°æ12710
°æ¸ÅÁ¾·ùºÎµ¿»ê°­Á¦°æ¸Å
¸Å°¢´ë»óÅäÁö ¹× °Ç¹°Àϰý ¸Å°¢
¸Å°¢±âÀÏ    2025.12.09(È­) 10:00 ÀÔÂû 4ÀÏÀü    
ÅäÁö¸éÀû12.99§³(3.93 Æò)
°Ç¹°¸éÀû34.17§³(10.34 Æò)
乫/¼ÒÀ¯ÀÚÀÌOO / ÀÌOO
ä±ÇÀÚÁÖOOOOOOO
ÆäÀ̽ººÏ Æ®À§ÅÍ ±¸±Û+
īī¿À½ºÅ丮
īī¿ÀÅå sms¹®ÀÚº¸³»±â
 

±âÀϳ»¿ª

°æ°ú ³¯Â¥ Àú°¨ ÃÖÀú°¡ °á°ú
Á¢¼öÀÏ 2025-06-11 °æ¸ÅÁ¢¼ö
~1ÀÏ 
2025-06-12 °æ¸Å°³½Ã°áÁ¤
~75ÀÏ 
2025-08-25 ¹è´ç¿ä±¸Á¾±âÀÏ
~146ÀÏ 
2025-11-04 100%
320,000,000
À¯Âû
~181ÀÏ 
2025-12-09 80%
256,000,000
ÁøÇà
¹°°Ç¸í¼¼¼­ ÇöȲÁ¶»ç¼­ ¹®°ÇÁ¢¼ö ¼Û´Þ³»¿ª

°¨Á¤Æò°¡ÇöȲ

¸ñ·Ï ÁÖ¼Ò ±¸Á¶/¿ëµµ/´ëÁö±Ç ¸éÀû ºñ°í
´ëÁö±Ç
»óºÀµ¿ 104-48 606ºÐÀÇ 12.99 12.99 §³
(3.93Æò)
°Ç¹°
»óºÀµ¿ 104-48 8Ãþ803È£ ö±ÙÄÜÅ©¸®Æ®±¸Á¶ 34.17 §³
(10.34Æò)
Âü°í
»çÇ×

* °øµ¿ÃâÀÔ¹®ÀÌ Àá°Ü ÀÖ°í, È£ÃâÇÏ¿´À¸³ª

°ÇÃ๰ÇöȲ

¼ÒÀçÁö ¼­¿ïƯº°½Ã Áß¶û±¸ »óºÀµ¿ 104-48¹øÁö
´ëÁö¸éÀû 564.8§³
(171.15Æò)
¿¬¸éÀû 2281.6§³
(691.39Æò)
°ÇÃà¸éÀû 291.76§³
(88.41Æò)
¿ëÀû·ü»êÁ¤
¿¬¸éÀû
2030.7§³
(615.36Æò)
°ÇÆóÀ² 51.66% ¿ëÀû·ü 359.54%
Áö»óÃþ¼ö 11Ãþ ÁöÇÏÃþ¼ö 1Ãþ
ÁÖ¿ëµµ ¾÷¹«½Ã¼³ ±¸Á¶ ö±ÙÄÜÅ©¸®Æ®±¸Á¶
Âø°øÀÏÀÚ 2019.04.25 »ç¿ë½ÂÀÎÀÏÀÚ 2021.01.08
°ÇÃ๰Ãþº°ÇöȲ [º¸±â]


±¹ÅäºÎ½Ç°Å·¡°¡ ¼­¿ïƯº°½Ã Áß¶û±¸ »óºÀµ¿

¡Ü ¸Å¸Å

¸éÀû(§³), ±Ý¾×(¸¸¿ø)

¡Ü Àü¼¼

¸éÀû(§³), ±Ý¾×(¸¸¿ø)

°è¾àÀϰǹ°¸íĪÃþÀü¿ëº¸Áõ±Ý¿ù¼¼°ÇÃà
25.11.17KJÄÉ·»½Ã¾Æ934.1727,00002021
25.07.16KJÄÉ·»½Ã¾Æ734.8626,20002021
25.06.17KJÄÉ·»½Ã¾Æ934.1728,30002021
25.02.15KJÄÉ·»½Ã¾Æ1034.8628,80002021
25.02.15KJÄÉ·»½Ã¾Æ734.1729,00002021
¢Ñ ´õº¸±â

µî±âºÎµîº» ¿ä¾à(°Ç¹°)

  Á¢¼öÀÏÀÚ µî±â¸ñÀû/±Ç¸®ÀÚ ±Ç¸®±Ý¾× ±âÁØ
1 2021³â4¿ù23ÀÏ
¼ÒÀ¯±Ç
ÀÌOO
¼Ò¸ê
2 2022³â12¿ù27ÀÏ
¾Ð·ù
±¹
¼Ò¸ê±âÁØ
3 2023³â3¿ù17ÀÏ
ÀÓÂ÷±Ç¼³Á¤
ÀÓOO
290,000,000 ¼Ò¸ê
4 2024³â7¿ù4ÀÏ
°¡¾Ð·ù
¼­OOOO
120,000,000 ¼Ò¸ê
5 2024³â9¿ù10ÀÏ
¾Ð·ù
¸¶OO
¼Ò¸ê
6 2025³â6¿ù12ÀÏ
°­Á¦°æ¸Å
ÁÖOOOO
¼Ò¸ê

ÀÓÂ÷ÀÎÇöȲ (¹è´ç¿ä±¸Á¾±âÀÏ: 2025-08-25)

ÀÓÂ÷ÀÎ ¿ëµµ/Á¡À¯ º¸Áõ±Ý/¿ù¼¼ ´ëÇ×·Â
ÀüÀÔÀÏ/È®Á¤ÀÏ ¹è´ç¿ä±¸ ºñ°í
¹ÌO ¹Ì»ó ¹Ì»ó
[¿ù]¹Ì»ó
¹Ì»ó
¹Ì»ó
¹Ì»ó
ÀÓOO 803È£ÀüºÎ 290,000,000
O
2021.03.11.
2021.03.02.
2021.03.11.~
ÁÖOOOOOOOOOOOO 803È£ÀüºÎ 290,000,000
O
2021.03.11.
2021.03.02.
2025.6.11. 2021.03.11.~2023.03.11.
ºñ°í
(¸Å°¢¹°°Ç
¸í¼¼¼­)
ÀÓÀçÈÆ : ÁÖÅÃÀÓÂ÷±Ç µî±â±ÇÀÚ·Î ÀÓÂ÷±Çµî±âÀÏÀº 2023. 3. 17.ÀÓ ÁÖÅõµ½Ãº¸Áõ°ø»ç(ÀÓÀçÈÆ) : °æ¸Å½Åûä±ÇÀÚ·Î ¹è´ç¿ä±¸ÀÏÀº °æ¸Å½ÅûÀÏÀ̸ç, ÀÓ´ëÀÎÀÇ ÀÓÂ÷ÀÎ ÀÓÀçÈÆ¿¡ ´ëÇÑ ÀÓ´ëÂ÷º¸Áõ±Ý¹Ý

¿©ÀÇÁÖ°æ¸Å Á¶¾ð ÇÑ ¸¶µð

¼±¼øÀ§ ÀÓÂ÷±Çµî±â°¡ µÇ¾î ÀÖ½À´Ï´Ù
´ëÇ×·ÂÀÌ ÀÖ´Â ¼±¼øÀ§ ÀÓÂ÷±Çµî±â ±Ç¸®ÀÚ°¡ ¹è´çÀ» Àü¾× ¹ÞÁö ¸øÇÒ °æ¿ì ³«ÂûÀÚ°¡ ÀÜ¿© º¸Áõ±ÝÀ» ÀμöÇØ¾ßÇÏ´Â °æ¿ìµµ ÀÖ½À´Ï´Ù.

ÁÖÀÇ»çÇ× (ÃÖ¼±¼øÀ§ ¼³Á¤ÀÏ: 2022. 12. 27. ¾Ð·ù ¼³Á¤)

¸Å°¢À¸·Î ¼Ò¸êµÇÁö ¾Ê´Â µî±âºÎ±Ç¸®: ¸Å¼öÀο¡°Ô ´ëÇ×ÇÒ ¼ö ÀÖ´Â À»±¸ ¼øÀ§ 4¹ø ÁÖÅÃÀÓÂ÷±Çµî±â ÀÖÀ½(ÀÓÂ÷±Çµî±âÀÏ 2023. 3. 17.)
¸Å°¢À¸·Î ¼³Á¤µÈ °ÍÀ¸·Î º¸´Â Áö»ó±Ç:
1. °ÇÃ๰´ëÀå»ó ¾÷¹«½Ã¼³(¿ÀÇǽºÅÚ)À̳ª, ÁÖ°Å¿ëÀ¸·Î ÀÌ¿ë ÁßÀÓ. 2. °¨Á¤Æò°¡¼­¿¡ ÀÇÇϸé, 2025. 6. 30.±âÁØ ¹Ì³³ °ü¸®ºñ 2,140,740¿øÀÌ ÀÖ´Â °ÍÀ¸·Î Á¶»çµÊ. 3. ¸Å¼öÀο¡°Ô ´ëÇ×ÇÒ ¼ö ÀÖ´Â ÀÓÂ÷ÀÎ ÀÖÀ½. ¹è´ç¿¡¼­ º¸Áõ±ÝÀÌ Àü¾× º¯Á¦µÇÁö ¾Æ´ÏÇϸé Àܾ×À» ¸Å¼öÀÎÀÌ ÀμöÇÔ.
¡Ø¹Ì³³°ü¸®ºñ(°ø¿ë) Àμö¿©ºÎ¸¦ ÀÔÂû Àü¿¡ È®ÀÎÇϽñ⠹ٶø´Ï´Ù

 

Áö¿ªºÐ¼®

ÁöÇÏö¸í Á÷¼±°Å¸®

Çб³¸í ÀüÈ­¹øÈ£ ÁÖ¼Ò Á÷¼±°Å¸®

¹ý¿ø

¼­¿ïºÏºÎÁö¹æ¹ý¿ø (013-22)¼­¿ïƯº°½Ã µµºÀ±¸ ¸¶µé·Î749 (µµºÀ2µ¿ 626)
´ëÇ¥ : 02)910-3114
°üÇÒÁö¿ª : °­ºÏ±¸, ³ë¿ø±¸, µµºÀ±¸, µ¿´ë¹®±¸, ¼ººÏ±¸, Áß¶û±¸

µî±â¼Ò ¼­¿ïºÏºÎÁö¹æ¹ý¿ø º»¿ø µî±â±¹ (´ëÇ¥:1544-0773, ÆÑ½º:(02)2030-2330, ¼­¿ïƯº°½Ã µµºÀ±¸ ³ëÇØ·Î 325 (⵿ 337¹øÁö))
¼¼¹«¼­ Áß¶û ¼¼¹«¼­ (´ëÇ¥:02-2170-02, ÆÑ½º:02-493-7315, ¼­¿ïƯº°½Ã Áß¶û±¸ ¸Á¿ì·Î 176(»óºÀµ¿ 137-1))

Àαٳ«ÂûÅë°è

±â°£ ¸Å°¢°Ç¼ö Æò±Õ°¨Á¤°¡
Æò±Õ¸Å°¢°¡
¸Å°¢°¡À²
Æò±ÕÀ¯Âû¼ö
3°³¿ù 7°Ç 276,714,286¿ø
156,991,375¿ø
47%
7.7ȸ
6°³¿ù 9°Ç 271,555,556¿ø
147,253,525¿ø
48%
7ȸ
12°³¿ù 20°Ç 263,900,000¿ø
165,721,047¿ø
62%
5.3ȸ


º» °æ¸ÅÁ¤º¸´Â ¹ý¿øÀÚ·á¿Í ÀÏÄ¡Çϵµ·Ï ÇÏ¿´À¸³ª ±Ç¸®»çÇ׺¯µ¿, ÀÔ·ÂÂø¿À µîÀÇ ¿øÀÎÀ¸·Î »ç½Ç°ú ´Ù¸¦ ¼ö ÀÖ½À´Ï´Ù. ÀÌ¿ë¾à°ü¿¡ ÀǰЏéÃ¥Á¶°ÇÀ¸·Î Á¦°øµÊÀ» ¾Ë¸®¸ç, °æ¸ÅÀÔÂû½Ã ¹Ýµå½Ã °ü·Ã °øºÎ¸¦ ÀçÈ®ÀÎÇϽñ⠹ٶø´Ï´Ù. º¸´Ù Æí¸®ÇÑ °æ¸ÅÁ¤º¸ Á¦°øÀ» À§ÇØ Áö¼ÓÀûÀ¸·Î °³¼±ÇϰڽÀ´Ï´Ù. ÀÌ¿ëÇØ Áּż­ °¨»çÇÕ´Ï´Ù.