·Î±×ÀÎ
189
´Ù¼¼´ë(ºô¶ó)
¼­¿ï¼­ºÎÁö¹æ¹ý¿ø
 °¨Á¤°¡983,000,000 ¿ø
 ÃÖÀú°¡(64%) 629,120,000 ¿ø
 º¸Áõ±Ý(10%) 62,912,000 ¿ø
 Ã»±¸¾×500,000,000 ¿ø
¼­¿ïƯº°½Ã ¿ë»ê±¸ ³ì»çÆò´ë·Î46±æ 40, 2Ãþ202È£ (ÀÌÅ¿øµ¿,Á¦´Ï½ºÀÌÅ¿ø)
¼­¿ïƯº°½Ã ¿ë»ê±¸ ÀÌÅ¿øµ¿ 322
»ç°Ç¹øÈ£ 2024Ÿ°æ55470 ¹°°Ç¹øÈ£
Áߺ¹»ç°ÇÁߺ¹ 2024Ÿ°æ3127, º´ÇÕ 2024Ÿ°æ59120,
°æ¸ÅÁ¾·ùºÎµ¿»ê°­Á¦°æ¸Å
¸Å°¢´ë»óÅäÁö ¹× °Ç¹°Àϰý ¸Å°¢
¸Å°¢±âÀÏ    2026.01.13(È­) 10:00 ÀÔÂû 4ÀÏÀü    
ÅäÁö¸éÀû25.21§³(7.63 Æò)
°Ç¹°¸éÀû45.09§³(13.64 Æò)
乫/¼ÒÀ¯ÀÚ´õOO OOOO / ´õOO OOOO
ä±ÇÀÚÇÑOO
ÆäÀ̽ººÏ Æ®À§ÅÍ ±¸±Û+
īī¿À½ºÅ丮
īī¿ÀÅå sms¹®ÀÚº¸³»±â
 

±âÀϳ»¿ª

°æ°ú ³¯Â¥ Àú°¨ ÃÖÀú°¡ °á°ú
Á¢¼öÀÏ 2024-05-16 °æ¸ÅÁ¢¼ö
~19ÀÏ 
2024-06-04 °æ¸Å°³½Ã°áÁ¤
~603ÀÏ 
¹è´ç¿ä±¸Á¾±âÀÏ
~537ÀÏ 
2025-11-04 100%
983,000,000
À¯Âû
~572ÀÏ 
2025-12-09 80%
786,400,000
À¯Âû
~607ÀÏ 
2026-01-13 64%
629,120,000
ÁøÇà
¹°°Ç¸í¼¼¼­ ÇöȲÁ¶»ç¼­ ¹®°ÇÁ¢¼ö ¼Û´Þ³»¿ª

°¨Á¤Æò°¡ÇöȲ

¸ñ·Ï ÁÖ¼Ò ±¸Á¶/¿ëµµ/´ëÁö±Ç ¸éÀû ºñ°í
´ëÁö±Ç
ÀÌÅ¿øµ¿ 322 285ºÐÀÇ 25.2107 25.2107 §³
(7.63Æò)
°Ç¹°
ÀÌÅ¿øµ¿ 322 2Ãþ202È£ ö±ÙÄÜÅ©¸®Æ®±¸Á¶ 45.09 §³
(13.64Æò)
1) À§Ä¡/µµ½ÃÁö¿ª/Á¦2Á¾ÀϹÝÁÖ°ÅÁö¿ª/¹ö½ºÁ¤·ùÀå/Â÷·®Á¢±ÙÀÌ °¡´É/ÁÖÂ÷Àå/ÁöÇÏö/ö±ÙÄÜÅ©¸®Æ®±¸Á¶/°æ»çÁöºØ ´õº¸±â
°¨Á¤Æò°¡ ¿äÇ×Ç¥
1)À§Ä¡ ¹× ÁÖÀ§È¯°æ
º»°ÇÀº ¼­¿ïƯº°½Ã ¿ë»ê±¸ ÀÌÅ¿øµ¿ "ÀÌÅ¿øÃʵîÇб³" ºÏµ¿ÂÊ Àαٿ¡ À§Ä¡Çϸç ÁÖÀ§´Â ´Üµ¶ÁÖÅÃ, ¾ÆÆÄÆ®, ´Ù¼¼´ëÁÖÅÃ, °ø°ø½Ã¼³, Çб³ ¹× ±Ù¸°»ýȰ½Ã¼³ µîÀÌ ¼ÒÀçÇÕ´Ï´Ù.
2)±³Åë»óȲ
º»°Ç±îÁö Â÷·®Á¢±ÙÀÌ °¡´ÉÇϸç Àαٿ¡ ¹ö½ºÁ¤·ùÀå, ÁöÇÏö¿ª µîÀÌ ¼ÒÀçÇÕ´Ï´Ù.
3)°Ç¹°ÀÇ ±¸Á¶
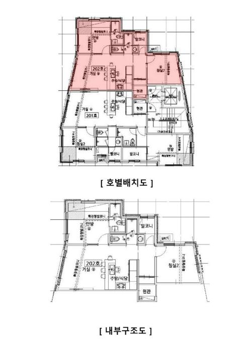
ö±ÙÄÜÅ©¸®Æ®±¸Á¶ °æ»çÁöºØ ÁöÇÏ1Ãþ Áö»ó5Ãþ °Ç ³» 2Ãþ 202È£, 3Ãþ 301È£, 302È£, 4Ãþ 401È£, 5Ãþ 501È£·Î¼­,


¿Üº®: ¼®Àç ºÙÀÓ µî ¸¶°¨
âȣ: »þ½Ãâȣ µîÀÔ´Ï´Ù.
4)ÀÌ¿ë»óÅÂ
±âÈ£ °¡, ³ª, ´Ù, ¶ó : °øºÎ»ó ´Ù¼¼´ëÁÖÅÃ
±âÈ£ ¸¶ : °øºÎ»ó ÈÞ°ÔÀ½½ÄÁ¡ ÀÔ´Ï´Ù.
5)¼³ºñ³»¿ª
³­¹æ¼³ºñ, À§»ý¼³ºñ, ±Þ¹è¼ö¼³ºñ, ¼ÒÈ­Àü¼³ºñ, ½Â°­±â¼³ºñ, ÁÖÂ÷Àå µîÀÌ µÇ¾îÀÖ½À´Ï´Ù.
6)ÅäÁöÀÇ Çü»ó ¹× ÀÌ¿ë»óÅÂ
´ëü·Î ºÎÁ¤ÇüÀÇ ÅäÁö·Î¼­, °øµ¿ÁÖÅà ¿Ü1 °ÇºÎÁö µîÀ¸·Î ÀÌ¿ë ÁßÀÔ´Ï´Ù.
7)ÀÎÁ¢ µµ·Î»óŵî
º»°Ç ºÏ¼­ÃøÀ¸·Î µµ·Î°¡ ¼ÒÀçÇÕ´Ï´Ù.
8)ÅäÁöÀÌ¿ë°èȹ ¹× Á¦ÇÑ»óÅÂ
µµ½ÃÁö¿ª, Á¦2Á¾ÀϹÝÁÖ°ÅÁö¿ª(7ÃþÀÌÇÏ), °íµµÁö±¸(28mÀÌÇÏ), °¡Ãà»çÀ°Á¦Çѱ¸¿ª<°¡ÃàºÐ´¢ÀÇ °ü¸® ¹× À̿뿡 °üÇÑ ¹ý·ü>, »ó´ëº¸È£±¸¿ª(¼­¿ïÀÌÅ¿øÃʵîÇб³)<±³À°È¯°æ º¸È£¿¡ °üÇÑ ¹ý·ü>, »ó´ëº¸È£±¸¿ª(ÀÚ¼¼ÇÑ»çÇ×Àº ¼­¿ïƯº°½ÃÁߺα³À°Ã»¿¡ º°µµÈ®ÀÎ)<±³À°È¯°æ º¸È£¿¡ °üÇÑ ¹ý·ü>, ´ë°ø¹æ¾îÇùÁ¶±¸¿ª(À§Å¹°íµµ : 77-257m)<±º»ç±âÁö ¹× ±º»ç½Ã¼³ º¸È£¹ý>, °ú¹Ð¾ïÁ¦±Ç¿ª<¼öµµ±ÇÁ¤ºñ°èȹ¹ý>
<Ãß°¡±âÀç>°ÇÃà¹ý Á¦2Á¶Á¦1Ç×Á¦11È£³ª¸ñ¿¡ µû¸¥ µµ·Î(µµ·ÎÀÏºÎÆ÷ÇÔ)
9)°øºÎ¿ÍÀÇ Â÷ÀÌ
º»°Ç ÀϷùøÈ£ ´Ù(4Ãþ 401È£)´Â ±Í Á¦½Ã¸ñ·Ï ÀǰŠ1¼¼´ë·Î Æò°¡ÇÏ¿´À¸¸ç, (ÁýÇÕ°ÇÃ๰´ëÀå(ÀüÀ¯ºÎ,°©)) »ó ¿ëµµ ´Ù¼¼´ëÁÖÅÃ(2¼¼´ë)·Î ±âÀçµÇ¾îÀÖÀ¸´Ï, °æ¸ÅÁøÇà½Ã ÂüÁ¶¹Ù¶ø´Ï´Ù.
10)±âŸÂü°í»çÇ×(ÀÓ´ë°ü·Ê ¹× ±âŸ)
ÀÓ´ë°ü°è ¹Ì»óÀÔ´Ï´Ù.
Âü°í
»çÇ×

ºÐ¾çÁßÀÎ ÁýÇհǹ°·Î 1Ãþ

°ÇÃ๰ÇöȲ

¼ÒÀçÁö ¼­¿ïƯº°½Ã ¿ë»ê±¸ ÀÌÅ¿øµ¿ 322¹øÁö
´ëÁö¸éÀû 279§³
(84.55Æò)
¿¬¸éÀû 697.61§³
(211.4Æò)
°ÇÃà¸éÀû 167.17§³
(50.66Æò)
¿ëÀû·ü»êÁ¤
¿¬¸éÀû
555.15§³
(168.23Æò)
°ÇÆóÀ² 59.92% ¿ëÀû·ü 198.98%
Áö»óÃþ¼ö 5Ãþ ÁöÇÏÃþ¼ö 1Ãþ
ÁÖ¿ëµµ °øµ¿ÁÖÅà ±¸Á¶ ö±ÙÄÜÅ©¸®Æ®±¸Á¶
Âø°øÀÏÀÚ 2022.09.01 »ç¿ë½ÂÀÎÀÏÀÚ 2023.09.14
°ÇÃ๰Ãþº°ÇöȲ [º¸±â]


±¹ÅäºÎ½Ç°Å·¡°¡ ¼­¿ïƯº°½Ã ¿ë»ê±¸ ÀÌÅ¿øµ¿

¡Ü ¸Å¸Å

¸éÀû(§³), ±Ý¾×(¸¸¿ø)

¡Ü Àü¼¼

¸éÀû(§³), ±Ý¾×(¸¸¿ø)

°è¾àÀϰǹ°¸íĪÃþ¿¬¸éÀûº¸Áõ±Ý¿ù¼¼°ÇÃà
25.12.20ÀÌÅ¿øºô¶ó(181-60)-136.2716,00001991
25.12.15(206-8)254.742,0001101986
25.12.14(260-150)233.3914,59502008
25.12.11ºñ½ºÅ¸ÀÌÅ¿ø229.9829,00002024
25.12.11ÆÄ¸£Å׳íºô¶ó1176.8807502001
¢Ñ ´õº¸±â

µî±âºÎµîº» ¿ä¾à(°Ç¹°)

  Á¢¼öÀÏÀÚ µî±â¸ñÀû/±Ç¸®ÀÚ ±Ç¸®±Ý¾× ±âÁØ
1 2023³â11¿ù17ÀÏ
¼ÒÀ¯±Ç
´õOOOO
¼Ò¸ê
2 2023³â11¿ù17ÀÏ
±ÙÀú´ç±Ç
¼öOOO
6,874,800,000 ¼Ò¸ê±âÁØ
3 2023³â11¿ù17ÀÏ
±ÙÀú´ç±Ç
¼öOOO
1,525,200,000 ¼Ò¸ê
4 2024³â6¿ù5ÀÏ
°­Á¦°æ¸Å
ÇÑOO
¼Ò¸ê
5 2024³â12¿ù2ÀÏ
ÀÓÀǰæ¸Å
¼öOOO
¼Ò¸ê
6 2025³â3¿ù4ÀÏ
¾Ð·ù
±¹
¼Ò¸ê

ÀÓÂ÷ÀÎÇöȲ (¹è´ç¿ä±¸Á¾±âÀÏ: )


Á¶»çµÈ ÀÓÂ÷³»¿ªÀÌ ¾ø½À´Ï´Ù


¿©ÀÇÁÖ°æ¸Å Á¶¾ð ÇÑ ¸¶µð


ÁÖÀÇ»çÇ× (ÃÖ¼±¼øÀ§ ¼³Á¤ÀÏ: 2023.11.17. ±ÙÀú´ç ¼³Á¤)

¸Å°¢À¸·Î ¼Ò¸êµÇÁö ¾Ê´Â µî±âºÎ±Ç¸®:
¸Å°¢À¸·Î ¼³Á¤µÈ °ÍÀ¸·Î º¸´Â Áö»ó±Ç:
2025.12.24 ±ÙÀú´ç±ÇÀÚ ¿¡OOOOOOOOOOOOOOOOOO ±âÀϺ¯°æ½Åû¼­ Á¦Ãâ
°¨Á¤Æò°¡¼­¿¡ ÀÇÇϸé, ÅäÁöÀÌ¿ë°èȹȮÀμ­ »ó °ÇÃà¹ý Á¦2Á¶ Á¦1Ç× Á¦11È£ ³ª¸ñ¿¡ µû¸¥ µµ·Î(µµ·ÎÀÏºÎÆ÷ÇÔ).
¡Ø¹Ì³³°ü¸®ºñ(°ø¿ë) Àμö¿©ºÎ¸¦ ÀÔÂû Àü¿¡ È®ÀÎÇϽñ⠹ٶø´Ï´Ù

 

Áö¿ªºÐ¼®

ÁöÇÏö¸í Á÷¼±°Å¸®

Çб³¸í ÀüÈ­¹øÈ£ ÁÖ¼Ò Á÷¼±°Å¸®

¹ý¿ø

¼­¿ï¼­ºÎÁö¹æ¹ý¿ø (042-07)¼­¿ïƯº°½Ã ¸¶Æ÷±¸ ¸¶Æ÷´ë·Î 174 (°ø´öµ¿)
´ëÇ¥ : 02)3271-1114, ¹Î¿ø : 02)3271-1704/1881, ¾ß°£ : 02)3271-1700~1
°üÇÒÁö¿ª : ¿ë»ê±¸, ¼­´ë¹®±¸, ¸¶Æ÷±¸, ÀºÆò±¸

µî±â¼Ò ¼­¿ï¼­ºÎÁö¹æ¹ý¿ø º»¿ø µî±â±¹ (´ëÇ¥:1544-0773, ÆÑ½º:(02)3271-9130, ¼­¿ïƯº°½Ã ¸¶Æ÷±¸ ¸¶Æ÷´ë·Î 199 (¾ÆÇöµ¿ 783))
¼¼¹«¼­ ¿ë»ê¼¼¹«¼­ (´ëÇ¥:02-748-820, ÆÑ½º:02-792-2619, ¼­¿ïƯº°½Ã ¿ë»ê±¸ ¼­ºù°í·Î24±æ15 (ÇѰ­·Î3°¡))

Àαٳ«ÂûÅë°è

±â°£ ¸Å°¢°Ç¼ö Æò±Õ°¨Á¤°¡
Æò±Õ¸Å°¢°¡
¸Å°¢°¡À²
Æò±ÕÀ¯Âû¼ö
3°³¿ù 2°Ç 867,000,000¿ø
1,033,500,000¿ø
119%
0ȸ
6°³¿ù 7°Ç 581,205,714¿ø
644,975,060¿ø
115%
0.6ȸ
12°³¿ù 11°Ç 549,427,255¿ø
572,587,494¿ø
105%
0.9ȸ


º» °æ¸ÅÁ¤º¸´Â ¹ý¿øÀÚ·á¿Í ÀÏÄ¡Çϵµ·Ï ÇÏ¿´À¸³ª ±Ç¸®»çÇ׺¯µ¿, ÀÔ·ÂÂø¿À µîÀÇ ¿øÀÎÀ¸·Î »ç½Ç°ú ´Ù¸¦ ¼ö ÀÖ½À´Ï´Ù. ÀÌ¿ë¾à°ü¿¡ ÀǰЏéÃ¥Á¶°ÇÀ¸·Î Á¦°øµÊÀ» ¾Ë¸®¸ç, °æ¸ÅÀÔÂû½Ã ¹Ýµå½Ã °ü·Ã °øºÎ¸¦ ÀçÈ®ÀÎÇϽñ⠹ٶø´Ï´Ù. º¸´Ù Æí¸®ÇÑ °æ¸ÅÁ¤º¸ Á¦°øÀ» À§ÇØ Áö¼ÓÀûÀ¸·Î °³¼±ÇϰڽÀ´Ï´Ù. ÀÌ¿ëÇØ Áּż­ °¨»çÇÕ´Ï´Ù.