·Î±×ÀÎ
175
±Ù¸°»ó°¡
¼ö¿øÁö¹æ¹ý¿ø ¼º³²Áö¿ø
 °¨Á¤°¡50,000,000 ¿ø
 ÃÖÀú°¡(49%) 24,500,000 ¿ø
 º¸Áõ±Ý(10%) 2,450,000 ¿ø
 Ã»±¸¾×78,722,000 ¿ø
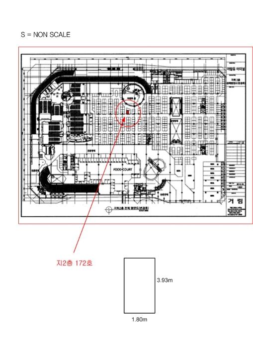
°æ±âµµ ¼º³²½Ã ºÐ´ç±¸ ¼º³²´ë·Î925¹ø±æ 16, Á¦Áö2Ãþ Á¦172È£
°æ±âµµ ¼º³²½Ã ºÐ´ç±¸ ¾ßžµ¿ 341
»ç°Ç¹øÈ£ 2024Ÿ°æ4270
°æ¸ÅÁ¾·ùºÎµ¿»êÀÓÀǰæ¸Å
¸Å°¢´ë»óÅäÁö ¹× °Ç¹°Àϰý ¸Å°¢
¸Å°¢±âÀÏ    2026.01.19(¿ù) 10:00 ÀÔÂû 12ÀÏÀü    
ÅäÁö¸éÀû3.17§³(0.96 Æò)
°Ç¹°¸éÀû7.07§³(2.14 Æò)
乫/¼ÒÀ¯ÀÚÇÑOOOOOO OOOO / (Á¦OOOO)OOO
ä±ÇÀÚ±èOO
ÆäÀ̽ººÏ Æ®À§ÅÍ ±¸±Û+
īī¿À½ºÅ丮
īī¿ÀÅå sms¹®ÀÚº¸³»±â
 

±âÀϳ»¿ª

°æ°ú ³¯Â¥ Àú°¨ ÃÖÀú°¡ °á°ú
Á¢¼öÀÏ 2024-07-16 °æ¸ÅÁ¢¼ö
~24ÀÏ 
2024-08-09 °æ¸Å°³½Ã°áÁ¤
~97ÀÏ 
2024-10-21 ¹è´ç¿ä±¸Á¾±âÀÏ
~475ÀÏ 
2025-11-03 100%
50,000,000
À¯Âû
~510ÀÏ 
2025-12-08 70%
35,000,000
À¯Âû
~552ÀÏ 
2026-01-19 49%
24,500,000
ÁøÇà
¹°°Ç¸í¼¼¼­ ÇöȲÁ¶»ç¼­ ¹®°ÇÁ¢¼ö ¼Û´Þ³»¿ª

°¨Á¤Æò°¡ÇöȲ

¸ñ·Ï ÁÖ¼Ò ±¸Á¶/¿ëµµ/´ëÁö±Ç ¸éÀû ºñ°í
´ëÁö±Ç
¾ßžµ¿ 341 27308.1ºÐÀÇ 3.1657 3.1657 §³
(0.96Æò)
°Ç¹°
¾ßžµ¿ 341 Á¦Áö2Ãþ Á¦172È£ ö°ñö±ÙÄÜÅ©¸®Æ®Á¶ 7.07 §³
(2.14Æò)
1) À§Ä¡/µµ½ÃÁö¿ª/Á߽ɻó¾÷Áö¿ª/Áö±¸´ÜÀ§°èȹ±¸¿ª/¹ö½ºÁ¤·ùÀå/ÁöÇÏö/°£¼±µµ·Î/Á¦¹Ý Â÷·® ÃâÀÔ/ö°ñö±ÙÄÜÅ©¸®Æ®Á¶/Áß¾Ó°ø±Þ½Ä ´õº¸±â
°¨Á¤Æò°¡ ¿äÇ×Ç¥
1)À§Ä¡ ¹× ÁÖÀ§È¯°æ
º»°ÇÀº °æ±âµµ ¼º³²½Ã ºÐ´ç±¸ ¾ßžµ¿ ¼ÒÀç "¼º³²(ºÐ´ç)¿©°´ÀÚµ¿Â÷Å͹̳Π¹× º¹Çհǹ°"
ÁöÇÏ2Ãþ¿¡ À§Ä¡Çϸç, ÁÖÀ§´Â »ó¾÷¿ë ¹× ¾÷¹«¿ë °Ç¹°, ¾ÆÆÄÆ®´ÜÁö, º´¿ø, °ø°ø½Ã¼³ µîÀÌ
¼ÒÀçÇÏ´Â »ó¾÷Áö´ëÀÓ
2)±³Åë»óȲ
º»°Ç °Ç¹°¿¡ Á¦¹Ý Â÷·® ÃâÀÔÀÌ ¿ëÀÌÇϰí, Àαٿ¡ ¹ö½ºÁ¤·ùÀå ¹× ÁöÇÏö ºÐ´ç¼± "¾ßž¿ª"ÀÌ
¼ÒÀçÇϰí ÀÖÀ¸¸ç, º»°Ç °Ç¹° ÁöÇÏ2ÃþÀº ¾ßž¿ª Åë·Î·Î ¿¬°áµÇ¾î ÀÖÀ½
3)°Ç¹°ÀÇ ±¸Á¶
ö°ñö±ÙÄÜÅ©¸®Æ®Á¶ ÁöÇÏ4Ãþ Áö»ó7Ãþ Áß Á¦Áö2Ãþ Á¦172È£·Î¼­,
(»ç¿ë½ÂÀÎÀÏ:2003.01.30.)
- ¿Üº® : ¿ÜÀåŸÀÏ, º¹ÇÕÆÇ³Ú µî
- ³»º® : ŸÀÏ, ¼¼¸à¸ôÅ»À§ÆäÀÎÆ® µî
- ¹Ù´Ú : ¾Æ½ºÅ¸ÀÏ, ¿¡Æø½ÃÄÚÆÃ µîÀ¸·Î Ä¡Àå ¶Ç´Â ¸¶°¨
4)ÀÌ¿ë»óÅÂ
-ÁýÇÕ°ÇÃ๰´ëÀå »ó ¿ëµµ : ÆÇ¸Å ¹× ¿µ¾÷½Ã¼³ÀÓ
5)¼³ºñ³»¿ª
°øµ¿ À§»ý½Ã¼³, ½Â°­±â, È­Àç°æº¸±â, ¼ÒÈ­Àü¼³ºñ, ¿¡½ºÄ÷¹ÀÌÆ®, ÁöÇÏ ÁÖÂ÷½Ã¼³ µîÀÌ
¼³Ä¡µÇ¾î ÀÖÀ¸¸ç, Áß¾Ó°ø±Þ½Ä ³Ã³­¹æ¼³ºñ ÀÓ
6)ÅäÁöÀÇ Çü»ó ¹× ÀÌ¿ë»óÅÂ
ÀÎÁ¢ÅäÁö¿Í µî°í ÆòźÇÑ ´ë´ÜÀ§ÀÇ ÅäÁö·Î, ¼º³²(ºÐ´ç)¿©°´ÀÚµ¿Â÷Å͹̳Π¹× º¹Çհǹ°
°ÇºÎÁö·Î ÀÌ¿ëÁßÀÓ
7)ÀÎÁ¢ µµ·Î»óŵî
µ¿Ãø ¹× ³²ÃøÀ¸·Î ´ë·Î, ºÏÃø ¹× ¼­ÃøÀ¸·Î Á߷ο¡ Á¢ÇÔ
8)ÅäÁöÀÌ¿ë°èȹ ¹× Á¦ÇÑ»óÅÂ
µµ½ÃÁö¿ª, Á߽ɻó¾÷Áö¿ª, Áö±¸´ÜÀ§°èȹ±¸¿ª(ºÐ´ç), ´ë·Î3·ù(Æø25M-30M)(º¸Á¶°£¼±µµ·Î)
(Á¢ÇÕ), ÀÚµ¿Â÷Á¤·ùÀå, Áß·Î1·ù(Æø20M-25M)(Áý»êµµ·Î)(Á¢ÇÕ), °¡Ãà»çÀ°Á¦Çѱ¸¿ª,
ºñÇà¾ÈÀüÁ¦6±¸¿ª(Àü¼ú), ´ë±âȯ°æ±ÔÁ¦Áö¿ª, µµ½Ã±³ÅëÁ¤ºñÁö¿ª, º¥Ã³±â¾÷À°¼ºÃËÁøÁö±¸,
°ú¹Ð¾ïÁ¦±Ç¿ª, (ÇѰ­)Æó±â¹°¸Å¸³½Ã¼³ ¼³Ä¡Á¦ÇÑÁö¿ª
9)°øºÎ¿ÍÀÇ Â÷ÀÌ
¾øÀ½
10)±âŸÂü°í»çÇ×(ÀÓ´ë°ü·Ê ¹× ±âŸ)
ÀÓ´ë°ü°è´Â ¹Ì»óÀÓ.
º»°ÇÀº º®Ã¼°¡ ¾øÀÌ ¿ÀÇÂµÈ ±¸ºÐ»ó°¡ÀÓ
Âü°í
»çÇ×
1. ÁýÇÕ°ÇÃ๰´ëÀå(Ç¥Á¦ºÎ)»ó À§¹Ý°ÇÃ๰·Î µîÀçµÇ¾î ÀÖÀ½. 2. º»°ÇÀº º®Ã¼°¡ ¾øÀÌ ¿ÀÇÂµÈ ±¸ºÐ»ó°¡À̳ª, ÇöÀç º»°ÇÀ» Æ÷ÇÔÇÑ Àαٻ󰡰¡ ¿µ¾÷Áß´ÜÀ¸·Î Æó¼âµÈ »óÅÂÀÓ.
ÇöȲÁ¶»ç ´ç½Ã ¼º³²¿©°´ÀÚµ¿Â÷Å͹̳ÎÀº Æó¾÷À¸·Î, º»°Ç ºÎµ¿»êÀº Æó¹®µÈ »óÅÂÀÓ.

°ÇÃ๰ÇöȲ

¼ÒÀçÁö °æ±âµµ ¼º³²½Ã ºÐ´ç±¸ ¾ßžµ¿ 341¹øÁö
´ëÁö¸éÀû 27308.1§³
(8275.18Æò)
¿¬¸éÀû 205754.26§³
(62349.78Æò)
°ÇÃà¸éÀû 19553.13§³
(5925.19Æò)
¿ëÀû·ü»êÁ¤
¿¬¸éÀû
40701.83§³
(12333.89Æò)
°ÇÆóÀ² 71.6% ¿ëÀû·ü 149.05%
Áö»óÃþ¼ö 7Ãþ ÁöÇÏÃþ¼ö 4Ãþ
ÁÖ¿ëµµ ÆÇ¸Å½Ã¼³ ±¸Á¶ ÀϹÝö°ñ±¸Á¶
Âø°øÀÏÀÚ 1995.05. »ç¿ë½ÂÀÎÀÏÀÚ 2003.01.30
°ÇÃ๰Ãþº°ÇöȲ [º¸±â]



ÀÓÂ÷ÀÎÇöȲ (¹è´ç¿ä±¸Á¾±âÀÏ: 2024-10-21)


Á¶»çµÈ ÀÓÂ÷³»¿ªÀÌ ¾ø½À´Ï´Ù


¿©ÀÇÁÖ°æ¸Å Á¶¾ð ÇÑ ¸¶µð


ÁÖÀÇ»çÇ× (ÃÖ¼±¼øÀ§ ¼³Á¤ÀÏ: 2003. 3. 27.(°¡¾Ð·ù) ¼³Á¤)

¸Å°¢À¸·Î ¼Ò¸êµÇÁö ¾Ê´Â µî±âºÎ±Ç¸®:
¸Å°¢À¸·Î ¼³Á¤µÈ °ÍÀ¸·Î º¸´Â Áö»ó±Ç:
1. ÁýÇÕ°ÇÃ๰´ëÀå(Ç¥Á¦ºÎ)»ó À§¹Ý°ÇÃ๰·Î µîÀçµÇ¾î ÀÖÀ½. 2. º»°ÇÀº º®Ã¼°¡ ¾øÀÌ ¿ÀÇÂµÈ ±¸ºÐ»ó°¡À̳ª, ÇöÀç º»°ÇÀ» Æ÷ÇÔÇÑ Àαٻ󰡰¡ ¿µ¾÷Áß´ÜÀ¸·Î Æó¼âµÈ »óÅÂÀÓ.
¡Ø¹Ì³³°ü¸®ºñ(°ø¿ë) Àμö¿©ºÎ¸¦ ÀÔÂû Àü¿¡ È®ÀÎÇϽñ⠹ٶø´Ï´Ù

 

Áö¿ªºÐ¼®

ÁöÇÏö¸í Á÷¼±°Å¸®

Çб³¸í ÀüÈ­¹øÈ£ ÁÖ¼Ò Á÷¼±°Å¸®

¹ý¿ø

¼ö¿øÁö¹æ¹ý¿ø ¼º³²Áö¿ø (131-43)°æ±âµµ ¼º³²½Ã ¼öÁ¤±¸ »ê¼º´ë·Î 451 (´Ü´ëµ¿)
´ëÇ¥ : 031)737-1558, ¾ß°£ : 031)737-1120
°üÇÒÁö¿ª : ¼º³²½Ã, ±¤ÁÖ½Ã, Çϳ²½Ã

µî±â¼Ò ¼ö¿øÁö¹æ¹ý¿ø ¼º³²Áö¿ø ºÐ´çµî±â¼Ò (´ëÇ¥:1544-0773, ÆÑ½º:(031)709-1164, °æ±âµµ ¼º³²½Ã ºÐ´ç±¸ ºÒÁ¤·Î406¹ø±æ 21 (¼­Çöµ¿ 318))
¼¼¹«¼­ ºÐ´ç¼¼¹«¼­ (´ëÇ¥:031-219-92, ÆÑ½º:031-781-6851, °æ±âµµ ¼º³²½Ã ºÐ´ç±¸ Ȳ»õ¿ï·Î 311¹ø±æ 11)

Àαٳ«ÂûÅë°è

±â°£ ¸Å°¢°Ç¼ö Æò±Õ°¨Á¤°¡
Æò±Õ¸Å°¢°¡
¸Å°¢°¡À²
Æò±ÕÀ¯Âû¼ö
3°³¿ù 6°Ç 392,383,333¿ø
307,549,862¿ø
73%
1.5ȸ
6°³¿ù 9°Ç 485,955,556¿ø
460,696,686¿ø
78%
1.4ȸ
12°³¿ù 12°Ç 521,633,333¿ø
483,537,514¿ø
78%
1.3ȸ


º» °æ¸ÅÁ¤º¸´Â ¹ý¿øÀÚ·á¿Í ÀÏÄ¡Çϵµ·Ï ÇÏ¿´À¸³ª ±Ç¸®»çÇ׺¯µ¿, ÀÔ·ÂÂø¿À µîÀÇ ¿øÀÎÀ¸·Î »ç½Ç°ú ´Ù¸¦ ¼ö ÀÖ½À´Ï´Ù. ÀÌ¿ë¾à°ü¿¡ ÀǰЏéÃ¥Á¶°ÇÀ¸·Î Á¦°øµÊÀ» ¾Ë¸®¸ç, °æ¸ÅÀÔÂû½Ã ¹Ýµå½Ã °ü·Ã °øºÎ¸¦ ÀçÈ®ÀÎÇϽñ⠹ٶø´Ï´Ù. º¸´Ù Æí¸®ÇÑ °æ¸ÅÁ¤º¸ Á¦°øÀ» À§ÇØ Áö¼ÓÀûÀ¸·Î °³¼±ÇϰڽÀ´Ï´Ù. ÀÌ¿ëÇØ Áּż­ °¨»çÇÕ´Ï´Ù.