·Î±×ÀÎ
86
¾ÆÆÄÆ®
¼­¿ï³²ºÎÁö¹æ¹ý¿ø
 °¨Á¤°¡295,000,000 ¿ø
 ÃÖÀú°¡(64%) 188,800,000 ¿ø
 º¸Áõ±Ý(10%) 18,880,000 ¿ø
 Ã»±¸¾×260,000,000 ¿ø
¼­¿ïƯº°½Ã °­¼­±¸ °õ´Þ·¡·Î 60-1, Á¦12Ãþ Á¦1202È£ (È­°îµ¿, ¿¡½º¿¥ÄÉÀÌ¾ÆÆÄÆ®)
¼­¿ïƯº°½Ã °­¼­±¸ È­°îµ¿ 938-23
»ç°Ç¹øÈ£ 2024Ÿ°æ142962
°æ¸ÅÁ¾·ùºÎµ¿»ê°­Á¦°æ¸Å
¸Å°¢´ë»óÅäÁö ¹× °Ç¹°Àϰý ¸Å°¢
¸Å°¢±âÀÏ    2026.01.29(¸ñ) 10:00 ÀÔÂû 51ÀÏÀü    
ÅäÁö¸éÀû6.90§³(2.09 Æò)
°Ç¹°¸éÀû28.01§³(8.47 Æò)
乫/¼ÒÀ¯ÀÚ±èOO / ±èOO
ä±ÇÀÚÁÖOOOOOOO
ÆäÀ̽ººÏ Æ®À§ÅÍ ±¸±Û+
īī¿À½ºÅ丮
īī¿ÀÅå sms¹®ÀÚº¸³»±â
 

±âÀϳ»¿ª

°æ°ú ³¯Â¥ Àú°¨ ÃÖÀú°¡ °á°ú
Á¢¼öÀÏ 2024-11-19 °æ¸ÅÁ¢¼ö
~6ÀÏ 
2024-11-25 °æ¸Å°³½Ã°áÁ¤
~98ÀÏ 
2025-02-25 ¹è´ç¿ä±¸Á¾±âÀÏ
~346ÀÏ 
2025-10-31 100%
295,000,000
À¯Âû
~380ÀÏ 
2025-12-04 80%
236,000,000
À¯Âû
~436ÀÏ 
2026-01-29 64%
188,800,000
ÁøÇà
¹°°Ç¸í¼¼¼­ ÇöȲÁ¶»ç¼­ ¹®°ÇÁ¢¼ö ¼Û´Þ³»¿ª

°¨Á¤Æò°¡ÇöȲ

¸ñ·Ï ÁÖ¼Ò ±¸Á¶/¿ëµµ/´ëÁö±Ç ¸éÀû ºñ°í
´ëÁö±Ç
È­°îµ¿ 938-23 220.5ºÐÀÇ 6.9 6.9 §³
(2.09Æò)
°Ç¹°
È­°îµ¿ 938-23 Á¦12Ãþ Á¦1202È£ ö±ÙÄÜÅ©¸®Æ®±¸Á¶ 28.01 §³
(8.47Æò)
1) À§Ä¡/µµ½ÃÁö¿ª/ÀϹݻó¾÷Áö¿ª/Áö±¸´ÜÀ§°èȹ±¸¿ª/¹ö½ºÁ¤·ùÀå/ÁöÇÏö/ö±ÙÄÜÅ©¸®Æ®±¸Á¶/Æò½º¶óºêÁöºØ/µµ½Ã°¡½º ´õº¸±â
°¨Á¤Æò°¡ ¿äÇ×Ç¥
1)À§Ä¡ ¹× ÁÖÀ§È¯°æ
º»°ÇÀº ¼­¿ïƯº°½Ã °­¼­±¸ È­°îµ¿ ¼ÒÀç "¿ùÁ¤ÃʵîÇб³" ³²µ¿Ãø¿¡ À§Ä¡Çϰí ÀÖÀ¸¸ç, ÁÖÀ§´Â

¾ÆÆÄÆ®, ´Ù¼¼´ëÁÖÅÃ, ¿ÀÇǽºÅÚ ¹× ±Ù¸°»ýȰ½Ã¼³ µîÀÌ È¥ÀçµÇ¾î Çü¼ºµÈ Áö¿ªÀÓ.
2)±³Åë»óȲ
º»°Ç±îÁö Á¦¹Ý Â÷·®ÀÇ ÁøÃâÀÔÀÌ °¡´ÉÇϰí Àαٿ¡ ¹ö½ºÁ¤·ùÀå ¹× ÁöÇÏö "±îÄ¡»ê¿ª" µîÀÌ ¼Ò

ÀçÇϰí ÀÖÀ½.
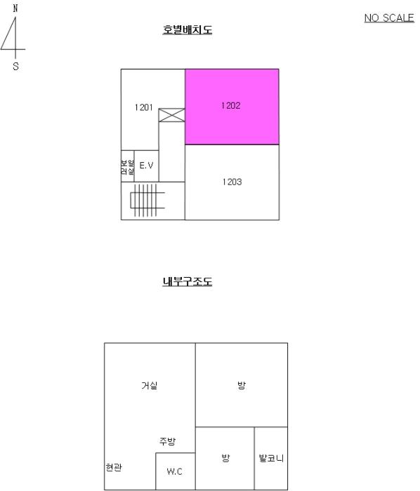
3)°Ç¹°ÀÇ ±¸Á¶
ÁýÇÕ°ÇÃ๰´ëÀå»ó 2020.04.24.ÀÚ·Î »ç¿ë½ÂÀÎÀ» µæÇÑ Ã¶±ÙÄÜÅ©¸®Æ®±¸Á¶ Æò½º¶óºêÁöºØ 15Ãþ

°Ç¹° ³» 12Ãþ 1202È£·Î¼­,

¿Ü º® : ¿ÜÀå ¼®Àç µî ¸¶°¨

â È£ : »õ½Ã âȣ
4)ÀÌ¿ë»óÅÂ
¾ÆÆÄÆ®·Î ÀÌ¿ëÁßÀÓ.
5)¼³ºñ³»¿ª
±âº»ÀûÀÎ À§»ý¼³ºñ, ±Þ¹è¼ö¼³ºñ, µµ½Ã°¡½º¼³ºñ, ½Â°­±â¼³ºñ, ³­¹æ¼³ºñ µîÀÌ µÇ¾î ÀÖÀ½.
6)ÅäÁöÀÇ Çü»ó ¹× ÀÌ¿ë»óÅÂ
ÀÎÁ¢µµ·Î¿Í µî°íÆòźÇÑ °¡ÀåÇü ÅäÁö·Î¼­ °øµ¿ÁÖÅà ¹× ¾÷¹«½Ã¼³ °Ç¹°ºÎÁö·Î ÀÌ¿ëÁßÀÓ.
7)ÀÎÁ¢ µµ·Î»óŵî
º» ´ÜÁö ºÏÃøÀ¸·Î ¿Õº¹3Â÷¼± Æ÷Àåµµ·Î°¡ °³¼³µÇ¾î ÀÖÀ½.
8)ÅäÁöÀÌ¿ë°èȹ ¹× Á¦ÇÑ»óÅÂ
µµ½ÃÁö¿ª, ÀϹݻó¾÷Áö¿ª, Áß¿ä½Ã¼³¹°º¸È£Áö±¸(°øÇ×), Áö±¸´ÜÀ§°èȹ±¸¿ª, µµ·Î(Á¢ÇÕ), °¡Ãà

»çÀ°Á¦Çѱ¸¿ª(Áö¿ª°æÁ¦°ú È®ÀÎ ¿ä¸Á)<°¡ÃàºÐ´¢ÀÇ °ü¸® ¹× À̿뿡 °üÇÑ ¹ý·ü>, ÁøÀÔÇ¥¸é±¸¿ª

(ÁøÀÔÇ¥¸é)<°øÇ׽ü³¹ý>, ´ë°ø¹æ¾îÇùÁ¶±¸¿ª(À§Å¹°íµµ:77-257m)<±º»ç±âÁö ¹× ±º»ç½Ã¼³ º¸È£

¹ý>, °ú¹Ð¾ïÁ¦±Ç¿ª<¼öµµ±ÇÁ¤ºñ°èȹ¹ý>.
9)°øºÎ¿ÍÀÇ Â÷ÀÌ
¾ø À½.
10)±âŸÂü°í»çÇ×(ÀÓ´ë°ü·Ê ¹× ±âŸ)
ÀÓ´ë°ü°è´Â ¹Ì»óÀÓ.

°ÇÃ๰ÇöȲ

¼ÒÀçÁö ¼­¿ïƯº°½Ã °­¼­±¸ È­°îµ¿ 938-23¹øÁö
´ëÁö¸éÀû 220.5§³
(66.82Æò)
¿¬¸éÀû 1582.72§³
(479.61Æò)
°ÇÃà¸éÀû 132.24§³
(40.07Æò)
¿ëÀû·ü»êÁ¤
¿¬¸éÀû
1308.84§³
(396.62Æò)
°ÇÆóÀ² 59.97% ¿ëÀû·ü 593.58%
Áö»óÃþ¼ö 15Ãþ ÁöÇÏÃþ¼ö 2Ãþ
ÁÖ¿ëµµ °øµ¿ÁÖÅà ±¸Á¶ ö±ÙÄÜÅ©¸®Æ®±¸Á¶
Âø°øÀÏÀÚ 2019.05.01 »ç¿ë½ÂÀÎÀÏÀÚ 2020.04.24
°ÇÃ๰Ãþº°ÇöȲ [º¸±â]


±¹ÅäºÎ½Ç°Å·¡°¡ ¼­¿ïƯº°½Ã °­¼­±¸ È­°îµ¿

¡Ü ¸Å¸Å

¸éÀû(§³), ±Ý¾×(¸¸¿ø)

¡Ü Àü¼¼

¸éÀû(§³), ±Ý¾×(¸¸¿ø)

°è¾àÀÏARTÃþÀü¿ëº¸Áõ±Ý¿ù¼¼°ÇÃà
25.10.24¿¡½º¿¥ÄÉÀÌ¾ÆÆÄÆ®1526.9310,000502020
25.06.19¿¡½º¿¥ÄÉÀÌ¾ÆÆÄÆ®714.9213,10002020
24.09.28¿¡½º¿¥ÄÉÀÌ¾ÆÆÄÆ®1414.9213,10002020
24.07.02¿¡½º¿¥ÄÉÀÌ¾ÆÆÄÆ®1314.9213,10002020
24.04.09¿¡½º¿¥ÄÉÀÌ¾ÆÆÄÆ®914.9213,10002020

µî±âºÎµîº» ¿ä¾à(°Ç¹°)

  Á¢¼öÀÏÀÚ µî±â¸ñÀû/±Ç¸®ÀÚ ±Ç¸®±Ý¾× ±âÁØ
1 2020³â7¿ù14ÀÏ
¼ÒÀ¯±Ç
±èOO
¼Ò¸ê
2 2021³â4¿ù12ÀÏ
¾Ð·ù
±¹
¼Ò¸ê±âÁØ
3 2021³â11¿ù30ÀÏ
°¡¾Ð·ù
ÁÖOOOO
680,000,000 ¼Ò¸ê
4 2022³â8¿ù1ÀÏ
ÀÓÂ÷±Ç¼³Á¤
ÀåOO
260,000,000 ¼Ò¸ê
5 2024³â11¿ù25ÀÏ
°­Á¦°æ¸Å
ÁÖOOOO
¼Ò¸ê
6 2024³â12¿ù3ÀÏ
¾Ð·ù
±¹OOOO
¼Ò¸ê

ÀÓÂ÷ÀÎÇöȲ (¹è´ç¿ä±¸Á¾±âÀÏ: 2025-02-25)

ÀÓÂ÷ÀÎ ¿ëµµ/Á¡À¯ º¸Áõ±Ý/¿ù¼¼ ´ëÇ×·Â
ÀüÀÔÀÏ/È®Á¤ÀÏ ¹è´ç¿ä±¸ ºñ°í
ÀåOO ÀüºÎ 260,000,000
O
2020.07.10.
2020.06.09.
2020.07.10.~
ÁÖOOOOOOO ÀüºÎ 260,000,000
O
2020.07.10.
2020.06.09.
2025.2.18. 2020.07.10.~2022.09.29.
ÃÖO ¹Ì»ó ¹Ì»ó
[¿ù]¹Ì»ó
2024.11.11.(ÀüÀÔ¼¼´ëÈ®Àμ­)
¹Ì»ó
¹Ì»ó
ºñ°í
(¸Å°¢¹°°Ç
¸í¼¼¼­)
ÁÖÅõµ½Ãº¸Áõ°ø»ç: °æ¸Å½Åûä±ÇÀÚÀ̰í, ÁÖÅÃÀÓÂ÷±ÇÀÚ À徯¸§ÀÇ ÀÓÂ÷º¸Áõ±Ý¹Ýȯä±ÇÀ» ½Â°èÇÔ. ÃÖ°Ç: ÀÓ´ëÂ÷°ü°è ¹Ì»óÀÇ Áֹεî·Ï»ó ÀüÀÔÀÚ

¿©ÀÇÁÖ°æ¸Å Á¶¾ð ÇÑ ¸¶µð

¼±¼øÀ§ ÀÓÂ÷±Çµî±â°¡ µÇ¾î ÀÖ½À´Ï´Ù
´ëÇ×·ÂÀÌ ÀÖ´Â ¼±¼øÀ§ ÀÓÂ÷±Çµî±â ±Ç¸®ÀÚ°¡ ¹è´çÀ» Àü¾× ¹ÞÁö ¸øÇÒ °æ¿ì ³«ÂûÀÚ°¡ ÀÜ¿© º¸Áõ±ÝÀ» ÀμöÇØ¾ßÇÏ´Â °æ¿ìµµ ÀÖ½À´Ï´Ù.

ÁÖÀÇ»çÇ× (ÃÖ¼±¼øÀ§ ¼³Á¤ÀÏ: 2021.04.12. ¾Ð·ù ¼³Á¤)

¸Å°¢À¸·Î ¼Ò¸êµÇÁö ¾Ê´Â µî±âºÎ±Ç¸®: 2022. 8. 1. Á¦157897È£ ÁÖÅÃÀÓÂ÷±Çµî±â(À»±¸3¹ø)
¸Å°¢À¸·Î ¼³Á¤µÈ °ÍÀ¸·Î º¸´Â Áö»ó±Ç:
´ëÇ×·Â ÀÖ´Â ÀÓÂ÷ÀÎ ÀÖÀ½. ¹è´ç¿¡¼­ Àü¾× º¯Á¦µÇÁö ¾ÊÀ» °æ¿ì ±× Àܾ×À» ¸Å¼öÀÎ ÀμöÇÔ.
¡Ø¹Ì³³°ü¸®ºñ(°ø¿ë) Àμö¿©ºÎ¸¦ ÀÔÂû Àü¿¡ È®ÀÎÇϽñ⠹ٶø´Ï´Ù

 

Áö¿ªºÐ¼®

ÁöÇÏö¸í Á÷¼±°Å¸®

Çб³¸í ÀüÈ­¹øÈ£ ÁÖ¼Ò Á÷¼±°Å¸®

¹ý¿ø

¼­¿ï³²ºÎÁö¹æ¹ý¿ø (080-88)¼­¿ïƯº°½Ã ¾çõ±¸ ½Å¿ù·Î 386(½ÅÁ¤µ¿)
´ëÇ¥ : 02)2192-1114
°üÇÒÁö¿ª : ¿µµîÆ÷±¸, °­¼­±¸, ¾çõ±¸, ±¸·Î±¸, ±Ýõ±¸

µî±â¼Ò ¼­¿ï³²ºÎÁö¹æ¹ý¿ø º»¿ø µî±â±¹ (´ëÇ¥:1544-0773, ÆÑ½º:(02)2629-7307, ¼­¿ïƯº°½Ã ¿µµîÆ÷±¸ °æÀηΠ772 (¹®·¡µ¿ 1°¡))
¼¼¹«¼­ °­¼­¼¼¹«¼­ (´ëÇ¥:02-2630-42, ÆÑ½º:02-2679-8777, ¼­¿ïƯº°½Ã °­¼­±¸ ¸¶°î¼­1·Î 60 (¸¶°îµ¿))

Àαٳ«ÂûÅë°è

±â°£ ¸Å°¢°Ç¼ö Æò±Õ°¨Á¤°¡
Æò±Õ¸Å°¢°¡
¸Å°¢°¡À²
Æò±ÕÀ¯Âû¼ö
3°³¿ù 24°Ç 607,166,667¿ø
542,739,808¿ø
86%
2.3ȸ
6°³¿ù 42°Ç 658,904,762¿ø
602,556,165¿ø
89%
1.7ȸ
12°³¿ù 81°Ç 671,308,642¿ø
608,338,358¿ø
88%
1.8ȸ


º» °æ¸ÅÁ¤º¸´Â ¹ý¿øÀÚ·á¿Í ÀÏÄ¡Çϵµ·Ï ÇÏ¿´À¸³ª ±Ç¸®»çÇ׺¯µ¿, ÀÔ·ÂÂø¿À µîÀÇ ¿øÀÎÀ¸·Î »ç½Ç°ú ´Ù¸¦ ¼ö ÀÖ½À´Ï´Ù. ÀÌ¿ë¾à°ü¿¡ ÀǰЏéÃ¥Á¶°ÇÀ¸·Î Á¦°øµÊÀ» ¾Ë¸®¸ç, °æ¸ÅÀÔÂû½Ã ¹Ýµå½Ã °ü·Ã °øºÎ¸¦ ÀçÈ®ÀÎÇϽñ⠹ٶø´Ï´Ù. º¸´Ù Æí¸®ÇÑ °æ¸ÅÁ¤º¸ Á¦°øÀ» À§ÇØ Áö¼ÓÀûÀ¸·Î °³¼±ÇϰڽÀ´Ï´Ù. ÀÌ¿ëÇØ Áּż­ °¨»çÇÕ´Ï´Ù.