·Î±×ÀÎ
1244
¿ÀÇǽºÅÚ
¼ö¿øÁö¹æ¹ý¿ø ¾È»êÁö¿ø
 °¨Á¤°¡254,000,000 ¿ø
 ÃÖÀú°¡(34%) 87,122,000 ¿ø
 º¸Áõ±Ý(10%) 8,712,200 ¿ø
 Ã»±¸¾×259,000,000 ¿ø
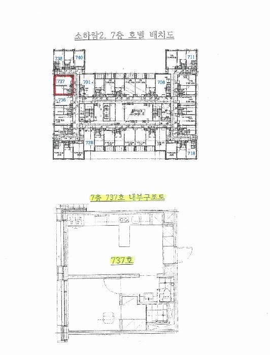
°æ±âµµ ±¤¸í½Ã ¼ÒÇϵ¿ 1343-2 ¼ÒÇ϶÷2 7Ãþ737È£
»ç°Ç¹øÈ£ 2025Ÿ°æ51672
°æ¸ÅÁ¾·ùºÎµ¿»ê°­Á¦°æ¸Å
¸Å°¢´ë»óÅäÁö ¹× °Ç¹°Àϰý ¸Å°¢
¸Å°¢±âÀÏ    2026.03.05(¸ñ) 10:30 ÀÔÂû 5ÀÏÀü    
ÅäÁö¸éÀû13.06§³(3.95 Æò)
°Ç¹°¸éÀû35.02§³(10.59 Æò)
乫/¼ÒÀ¯ÀÚÃÖOO / ÃÖOO
ä±ÇÀÚÁÖOOOOOOO
ÆäÀ̽ººÏ Æ®À§ÅÍ ±¸±Û+
īī¿À½ºÅ丮
īī¿ÀÅå sms¹®ÀÚº¸³»±â
 

±âÀϳ»¿ª

°æ°ú ³¯Â¥ Àú°¨ ÃÖÀú°¡ °á°ú
Á¢¼öÀÏ 2025-02-10 °æ¸ÅÁ¢¼ö
~3ÀÏ 
2025-02-13 °æ¸Å°³½Ã°áÁ¤
~86ÀÏ 
2025-05-07 ¹è´ç¿ä±¸Á¾±âÀÏ
~262ÀÏ 
2025-10-30 100%
254,000,000
À¯Âû
~304ÀÏ 
2025-12-11 70%
177,800,000
À¯Âû
~346ÀÏ 
2026-01-22 49%
124,460,000
À¯Âû
~388ÀÏ 
2026-03-05 34%
87,122,000
ÁøÇà
¹°°Ç¸í¼¼¼­ ÇöȲÁ¶»ç¼­ ¹®°ÇÁ¢¼ö ¼Û´Þ³»¿ª

°¨Á¤Æò°¡ÇöȲ

¸ñ·Ï ÁÖ¼Ò ±¸Á¶/¿ëµµ/´ëÁö±Ç ¸éÀû ºñ°í
´ëÁö±Ç
¼ÒÇϵ¿ 1343-2 2004.9ºÐÀÇ 13.056 13.056 §³
(3.95Æò)
°Ç¹°
¼ÒÇϵ¿ 1343-2 7Ãþ737È£ ö±ÙÄÜÅ©¸®Æ®±¸Á¶ 35.02 §³
(10.59Æò)
Âü°í
»çÇ×
2025.03.¿ùºÐ±îÁö °ø¿ëºÎºÐ¿¡ ´ëÇÑ °ü¸®ºñ 2,054,210¿øÀÌ ¹Ì³³µÇ¾ú´Ù´Â ½Å°í¼­(÷ºÎÇÑ 2025.05.12.ÀÚ °ü¸®ºñ ¹Ì³³½Å°í¼­ ÂüÁ¶ ¿äÇÔ)°¡ Á¦ÃâµÇ¾î ÀÖÀ½

°ÇÃ๰ÇöȲ

¼ÒÀçÁö °æ±âµµ ±¤¸í½Ã ¼ÒÇϵ¿ 1343-2¹øÁö
´ëÁö¸éÀû 2004.9§³
(607.55Æò)
¿¬¸éÀû 14996.61§³
(4544.43Æò)
°ÇÃà¸éÀû 1389.42§³
(421.04Æò)
¿ëÀû·ü»êÁ¤
¿¬¸éÀû
8781.44§³
(2661.04Æò)
°ÇÆóÀ² 69.3% ¿ëÀû·ü 438%
Áö»óÃþ¼ö 7Ãþ ÁöÇÏÃþ¼ö 4Ãþ
ÁÖ¿ëµµ ¾÷¹«½Ã¼³ ±¸Á¶ ö±ÙÄÜÅ©¸®Æ®±¸Á¶
Âø°øÀÏÀÚ 2015.12.07 »ç¿ë½ÂÀÎÀÏÀÚ 2017.05.08
°ÇÃ๰Ãþº°ÇöȲ [º¸±â]


±¹ÅäºÎ½Ç°Å·¡°¡ °æ±âµµ ±¤¸í½Ã ¼ÒÇϵ¿

¡Ü ¸Å¸Å

¸éÀû(§³), ±Ý¾×(¸¸¿ø)

¡Ü Àü¼¼

¸éÀû(§³), ±Ý¾×(¸¸¿ø)

°è¾àÀϰǹ°¸íĪÃþÀü¿ëº¸Áõ±Ý¿ù¼¼°ÇÃà
26.01.27¼ÒÇ϶÷2221.321,000552017
26.01.24¼ÒÇ϶÷2621.32500602017
26.01.22¼ÒÇ϶÷2416.551,000502017
26.01.09¼ÒÇ϶÷2616.675,0002017
25.12.30¼ÒÇ϶÷2221.32500622017
¢Ñ ´õº¸±â

µî±âºÎµîº» ¿ä¾à(°Ç¹°)

  Á¢¼öÀÏÀÚ µî±â¸ñÀû/±Ç¸®ÀÚ ±Ç¸®±Ý¾× ±âÁØ
1 2022³â2¿ù17ÀÏ
¼ÒÀ¯±Ç
ÃÖOO
¼Ò¸ê
2 2023³â2¿ù2ÀÏ
¾Ð·ù
±¤OO
¼Ò¸ê±âÁØ
3 2024³â3¿ù8ÀÏ
ÀÓÂ÷±Ç¼³Á¤
¹ÚOO
259,000,000 ¼Ò¸ê
4 2024³â7¿ù31ÀÏ
¾Ð·ù
ºÎOO
¼Ò¸ê
5 2025³â2¿ù13ÀÏ
°­Á¦°æ¸Å
ÁÖOOOO
¼Ò¸ê

ÀÓÂ÷ÀÎÇöȲ (¹è´ç¿ä±¸Á¾±âÀÏ: 2025-05-07)

ÀÓÂ÷ÀÎ ¿ëµµ/Á¡À¯ º¸Áõ±Ý/¿ù¼¼ ´ëÇ×·Â
ÀüÀÔÀÏ/È®Á¤ÀÏ ¹è´ç¿ä±¸ ºñ°í
ÁÖOOOOOOOOOOOOOOO ÁÖÅÃÀüºÎ 259,000,000
O
2022.02.10.
2022.01.24.
2022.02.10.~
ºñ°í
(¸Å°¢¹°°Ç
¸í¼¼¼­)
ÁÖÅõµ½Ãº¸Áõ°ø»ç(ÀÓÂ÷ÀÎ ¹ÚÁ¤ÈÆ): ¨ç°æ¸Å½Åûä±ÇÀڷμ­ `ÁÖÅÃÀÓ´ëÂ÷º¸È£¹ý` Á¦3Á¶ÀÇ 2 Á¦7Ç× Á¦9È£ÀÇ ¾ç¼öÀÎÀÓ ¨èÀÓÂ÷ÀÎ`¹ÚÁ¤ÈÆ`Àº ÁÖÅÃÀÓÂ÷±ÇÀڷμ­ ÁÖÅÃÀÓÂ÷±Çµî±âÀÏÀº 2024.03.08.ÀÓ ¨é¹è´ç¿ä±¸ÀÏÀÚ´Â °­Á¦°æ¸Å½Åû¼­ Á¢¼öÀÏÀ̰í, ±Ç¸®½Å°í ³»¿ë Áß `ÀÓ´ëÂ÷±â°£,º¸Áõ±Ý,ÀüÀԽŰíÀÏÀÚ`Àº °æ¸Å½Åû¼­¿¡ ÷ºÎµÈ `Àü¼¼°è¾à¼­`µî¿¡ ±Ù°ÅÇÔ

¿©ÀÇÁÖ°æ¸Å Á¶¾ð ÇÑ ¸¶µð


ÁÖÀÇ»çÇ× (ÃÖ¼±¼øÀ§ ¼³Á¤ÀÏ: 2023.02.02. (¾Ð·ù) ¼³Á¤)

¸Å°¢À¸·Î ¼Ò¸êµÇÁö ¾Ê´Â µî±âºÎ±Ç¸®: ¸Å¼öÀο¡°Ô ´ëÇ×ÇÒ ¼ö ÀÖ´Â ÁÖÅÃÀÓÂ÷±ÇÀÚ(À»±¸3¹ø) ÀÖÀ½(ÀÓ´ëÂ÷º¸Áõ±Ý:259,000,000¿ø/ ÀüÀÔÀÏÀÚ:2022.02.10./ È®Á¤ÀÏÀÚ:2022.01.24.) ¹è´ç¿¡¼­ º¸Áõ±ÝÀÌ Àü¾× º¯Á¦µÇÁö ¾Ê´Â °æ¿ì Àܾ×À» ¸Å¼öÀÎÀÌ ÀμöÇÏ¿©¾ß ÇÔ
¸Å°¢À¸·Î ¼³Á¤µÈ °ÍÀ¸·Î º¸´Â Áö»ó±Ç:
2025.03.¿ùºÐ±îÁö °ø¿ëºÎºÐ¿¡ ´ëÇÑ °ü¸®ºñ 2,054,210¿øÀÌ ¹Ì³³µÇ¾ú´Ù´Â ½Å°í¼­(÷ºÎÇÑ 2025.05.12.ÀÚ °ü¸®ºñ ¹Ì³³½Å°í¼­ ÂüÁ¶ ¿äÇÔ)°¡ Á¦ÃâµÇ¾î ÀÖÀ½
¡Ø¹Ì³³°ü¸®ºñ(°ø¿ë) Àμö¿©ºÎ¸¦ ÀÔÂû Àü¿¡ È®ÀÎÇϽñ⠹ٶø´Ï´Ù

 

Áö¿ªºÐ¼®

ÁöÇÏö¸í Á÷¼±°Å¸®

Çб³¸í ÀüÈ­¹øÈ£ ÁÖ¼Ò Á÷¼±°Å¸®

¹ý¿ø

¼ö¿øÁö¹æ¹ý¿ø ¾È»êÁö¿ø (140-54)°æ±âµµ ¾È»ê½Ã ´Ü¿ø±¸ ±¤´ö¼­·Î 75 (°íÀܵ¿)
´ëÇ¥ : 031)481-1114, ¹Î¿ø : 031)481-1238, ¾ß°£ : 031)481-1112
°üÇÒÁö¿ª : ¾È»ê½Ã, ±¤¸í½Ã, ½ÃÈï½Ã

µî±â¼Ò ¼ö¿øÁö¹æ¹ý¿ø ¾È»êÁö¿ø ±¤¸íµî±â¼Ò (´ëÇ¥:1544-0773, ÆÑ½º:(02)2616-1901, °æ±âµµ ±¤¸í½Ã ö»ê·Î 3-16 (ö»êµ¿ 252))
¼¼¹«¼­ ±¤¸í¼¼¹«¼­ (´ëÇ¥:02-2610-82, ÆÑ½º:02-3666-0611, °æ±âµµ ±¤¸í½Ã ö»ê·Î 3-12(ö»êµ¿ 251))

Àαٳ«ÂûÅë°è

±â°£ ¸Å°¢°Ç¼ö Æò±Õ°¨Á¤°¡
Æò±Õ¸Å°¢°¡
¸Å°¢°¡À²
Æò±ÕÀ¯Âû¼ö


º» °æ¸ÅÁ¤º¸´Â ¹ý¿øÀÚ·á¿Í ÀÏÄ¡Çϵµ·Ï ÇÏ¿´À¸³ª ±Ç¸®»çÇ׺¯µ¿, ÀÔ·ÂÂø¿À µîÀÇ ¿øÀÎÀ¸·Î »ç½Ç°ú ´Ù¸¦ ¼ö ÀÖ½À´Ï´Ù. ÀÌ¿ë¾à°ü¿¡ ÀǰЏéÃ¥Á¶°ÇÀ¸·Î Á¦°øµÊÀ» ¾Ë¸®¸ç, °æ¸ÅÀÔÂû½Ã ¹Ýµå½Ã °ü·Ã °øºÎ¸¦ ÀçÈ®ÀÎÇϽñ⠹ٶø´Ï´Ù. º¸´Ù Æí¸®ÇÑ °æ¸ÅÁ¤º¸ Á¦°øÀ» À§ÇØ Áö¼ÓÀûÀ¸·Î °³¼±ÇϰڽÀ´Ï´Ù. ÀÌ¿ëÇØ Áּż­ °¨»çÇÕ´Ï´Ù.