·Î±×ÀÎ
38
´Ù¼¼´ë(ºô¶ó)
¼ö¿øÁö¹æ¹ý¿ø ¾È»êÁö¿ø
 °¨Á¤°¡143,000,000 ¿ø
 ÃÖÀú°¡(70%) 100,100,000 ¿ø
 º¸Áõ±Ý(10%) 10,010,000 ¿ø
 Ã»±¸¾×155,000,000 ¿ø
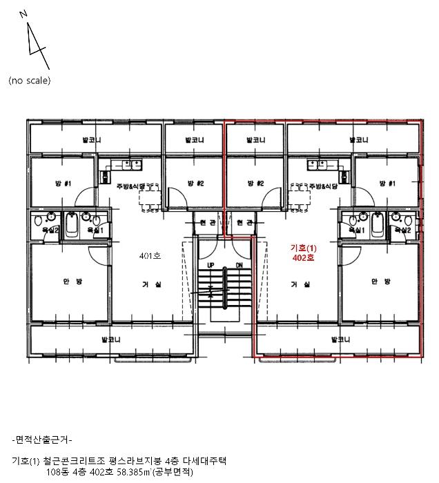
°æ±âµµ ¾È»ê½Ã ´Ü¿ø±¸ »ç¼¼Ãæ¿­·Î 100-18, 108µ¿ 4Ãþ402È£ (¿Íµ¿,Áø¾ÆÅ¸¿î)
°æ±âµµ ¾È»ê½Ã ´Ü¿ø±¸ ¿Íµ¿ 95-20
»ç°Ç¹øÈ£ 2024Ÿ°æ72571
°æ¸ÅÁ¾·ùºÎµ¿»ê°­Á¦°æ¸Å
¸Å°¢´ë»óÅäÁö ¹× °Ç¹°Àϰý ¸Å°¢
¸Å°¢±âÀÏ    2025.12.11(¸ñ) 10:30 ÀÔÂû 15ÀÏÀü    
ÅäÁö¸éÀû27.61§³(8.35 Æò)
°Ç¹°¸éÀû58.39§³(17.66 Æò)
乫/¼ÒÀ¯ÀÚÀÌOO / ÀÌOO
ä±ÇÀÚ±èOO
ÆäÀ̽ººÏ Æ®À§ÅÍ ±¸±Û+
īī¿À½ºÅ丮
īī¿ÀÅå sms¹®ÀÚº¸³»±â
 

±âÀϳ»¿ª

°æ°ú ³¯Â¥ Àú°¨ ÃÖÀú°¡ °á°ú
Á¢¼öÀÏ 2024-12-20 °æ¸ÅÁ¢¼ö
~11ÀÏ 
2024-12-31 °æ¸Å°³½Ã°áÁ¤
~89ÀÏ 
2025-03-19 ¹è´ç¿ä±¸Á¾±âÀÏ
~314ÀÏ 
2025-10-30 100%
143,000,000
À¯Âû
~356ÀÏ 
2025-12-11 70%
100,100,000
ÁøÇà
¹°°Ç¸í¼¼¼­ ÇöȲÁ¶»ç¼­ ¹®°ÇÁ¢¼ö ¼Û´Þ³»¿ª

°¨Á¤Æò°¡ÇöȲ

¸ñ·Ï ÁÖ¼Ò ±¸Á¶/¿ëµµ/´ëÁö±Ç ¸éÀû ºñ°í
´ëÁö±Ç
¿Íµ¿ 95-20 276.1ºÐÀÇ 27.61 27.61 §³
(8.35Æò)
°Ç¹°
¿Íµ¿ 95-20 108µ¿ 4Ãþ402È£ ö±ÙÄÜÅ©¸®Æ®Á¶ 58.385 §³
(17.66Æò)
1) À§Ä¡/µµ½ÃÁö¿ª/Á¦2Á¾ÀϹÝÁÖ°ÅÁö¿ª/³ë¼±¹ö½ºÁ¤·ùÀå/ö±ÙÄÜÅ©¸®Æ®Á¶/Æò½º¶óºêÁöºØ/µµ½Ã°¡½º ´õº¸±â
°¨Á¤Æò°¡ ¿äÇ×Ç¥
1)À§Ä¡ ¹× ÁÖÀ§È¯°æ
´ë»ó ¹°°ÇÀº °æ±âµµ ¾È»ê½Ã ´Ü¿ø±¸ ¿Íµ¿ ¼ÒÀç "¾È»ê¿îÀü¸éÇã½ÃÇèÀå" ³²µ¿Ãø Àαٿ¡ À§Ä¡ÇÏ
¸ç, ÁÖÀ§´Â ´Üµ¶ÁÖÅÃ, °øµ¿ÁÖÅÃ, ±Ù¸°»ýȰ½Ã¼³ µîÀÌ ¼ÒÀçÇÏ´Â Áö¿ªÀ¸·Î Á¦¹Ý ÁÖÀ§ ȯ°æÀº
¹«³­ÇÔ.
2)±³Åë»óȲ
´ë»ó ¹°°Ç±îÁö Â÷·® ÃâÀÔÀÌ °¡´ÉÇϰí Àαٿ¡ ³ë¼±¹ö½ºÁ¤·ùÀåÀÌ ¼ÒÀçÇÏ´Â µî Á¦¹Ý ±³Åë»çÁ¤Àº
¹«³­ÇÔ.
3)°Ç¹°ÀÇ ±¸Á¶
ö±ÙÄÜÅ©¸®Æ®Á¶ Æò½º¶óºêÁöºØ ÁöÇÏ1Ãþ, Áö»ó4Ãþ Áß 4Ãþ 402È£·Î¼­,
¿Üº® : ¿ÜÀå ŸÀϺÙÀÓ µî ¸¶°¨.
âȣ : ¼¦½Ã âȣÀÓ.
4)ÀÌ¿ë»óÅÂ
´Ù¼¼´ëÁÖÅÃÀ¸·Î ÀÌ¿ë ÁßÀÓ.
5)¼³ºñ³»¿ª
±âº»ÀûÀÎ À§»ý¼³ºñ µîÀÌ µÇ¾î ÀÖÀ¸¸ç µµ½Ã°¡½º¿¡ ÀÇÇÑ ³­¹æÀÓ.
6)ÅäÁöÀÇ Çü»ó ¹× ÀÌ¿ë»óÅÂ
°¡ÀåÇüÀÇ ÅäÁö·Î¼­ ´Ù¼¼´ëÁÖÅà ºÎÁö·Î ÀÌ¿ë ÁßÀÓ.
7)ÀÎÁ¢ µµ·Î»óŵî
´ë»ó¹°°Ç ³²¼­ÃøÀ¸·Î Æ÷Àåµµ·Î¿¡ Á¢ÇÔ.
8)ÅäÁöÀÌ¿ë°èȹ ¹× Á¦ÇÑ»óÅÂ
µµ½ÃÁö¿ª, Á¦2Á¾ÀϹÝÁÖ°ÅÁö¿ª, ½Ã°¡Áö°æ°üÁö±¸(ÀϹÝ), °¡Ãà»çÀ°Á¦Çѱ¸¿ª<°¡ÃàºÐ´¢ÀÇ °ü¸® ¹×
À̿뿡 °üÇÑ ¹ý·ü>, »ó´ëº¸È£±¸¿ª<±³À°È¯°æ º¸È£¿¡ °üÇÑ ¹ý·ü>, ´ë±â°ü¸®±Ç¿ª<´ë±â°ü¸®±Ç¿ª
ÀÇ ´ë±âȯ°æ°³¼±¿¡ °üÇÑ Æ¯º°¹ý>, µµ½Ã±³ÅëÁ¤ºñÁö¿ª<µµ½Ã±³ÅëÁ¤ºñÃËÁø¹ý>, »ýȰ¼ÒÀ½Áøµ¿°ü¸®
Áö¿ª<¼ÒÀ½Áøµ¿°ü¸®¹ý>, ¼ºÀå°ü¸®±Ç¿ª<¼öµµ±ÇÁ¤ºñ°èȹ¹ý>ÀÓ.
9)°øºÎ¿ÍÀÇ Â÷ÀÌ
¾øÀ½.
10)±âŸÂü°í»çÇ×(ÀÓ´ë°ü·Ê ¹× ±âŸ)
ÀÓ´ë°ü°è ¹Ì»óÀÓ.
Âü°í
»çÇ×

Ãþ2°¡±¸Áß ¿À¸¥ÂÊÀÓ.

°ÇÃ๰ÇöȲ

¼ÒÀçÁö °æ±âµµ ¾È»ê½Ã ´Ü¿ø±¸ ¿Íµ¿ 95-20¹øÁö
´ëÁö¸éÀû 276.1§³
(83.67Æò)
¿¬¸éÀû 639.75§³
(193.86Æò)
°ÇÃà¸éÀû 149.93§³
(45.43Æò)
¿ëÀû·ü»êÁ¤
¿¬¸éÀû
511.8§³
(155.09Æò)
°ÇÆóÀ² 54.3% ¿ëÀû·ü 185.37%
Áö»óÃþ¼ö 4Ãþ ÁöÇÏÃþ¼ö 1Ãþ
ÁÖ¿ëµµ °øµ¿ÁÖÅà ±¸Á¶ ö±ÙÄÜÅ©¸®Æ®±¸Á¶
Âø°øÀÏÀÚ 2001.12.01 »ç¿ë½ÂÀÎÀÏÀÚ 2002.06.11
°ÇÃ๰Ãþº°ÇöȲ [º¸±â]


µî±âºÎµîº» ¿ä¾à(°Ç¹°)

  Á¢¼öÀÏÀÚ µî±â¸ñÀû/±Ç¸®ÀÚ ±Ç¸®±Ý¾× ±âÁØ
1 2020³â12¿ù22ÀÏ
¼ÒÀ¯±Ç
ÀÌOO
¼Ò¸ê
2 2023³â5¿ù18ÀÏ
°¡¾Ð·ù
ÁÖOOOO
3,091,000,000 ¼Ò¸ê±âÁØ
3 2023³â5¿ù25ÀÏ
¾Ð·ù
±¹
¼Ò¸ê
4 2024³â1¿ù31ÀÏ
¾Ð·ù
¼­OOOO
¼Ò¸ê
5 2024³â12¿ù19ÀÏ
ÀÓÂ÷±Ç¼³Á¤
±èOO
155,000,000 ¼Ò¸ê
6 2024³â12¿ù31ÀÏ
°­Á¦°æ¸Å
±èOO
¼Ò¸ê
7 2025³â8¿ù12ÀÏ
¾Ð·ù
¾ÈOO
¼Ò¸ê

ÀÓÂ÷ÀÎÇöȲ (¹è´ç¿ä±¸Á¾±âÀÏ: 2025-03-19)

ÀÓÂ÷ÀÎ ¿ëµµ/Á¡À¯ º¸Áõ±Ý/¿ù¼¼ ´ëÇ×·Â
ÀüÀÔÀÏ/È®Á¤ÀÏ ¹è´ç¿ä±¸ ºñ°í
±èOO 402È£ÀüºÎ 155,000,000
O
2020.12.01.
2020.10.19.
2025.03.06. 2020.11.30.~2022.11.29.
ºñ°í
(¸Å°¢¹°°Ç
¸í¼¼¼­)
±èÁö¼º : °æ¸Å½Åûä±ÇÀÚ °â ÁÖÅÃÀÓÂ÷±ÇÀڷμ­ ÁÖÅÃÀÓÂ÷±Çµî±âÀÏÀº 2024.12.19.ÀÓ

¿©ÀÇÁÖ°æ¸Å Á¶¾ð ÇÑ ¸¶µð


ÁÖÀÇ»çÇ× (ÃÖ¼±¼øÀ§ ¼³Á¤ÀÏ: 2023.05.18. (°¡¾Ð·ù) ¼³Á¤)

¸Å°¢À¸·Î ¼Ò¸êµÇÁö ¾Ê´Â µî±âºÎ±Ç¸®: ¸Å¼öÀο¡°Ô ´ëÇ×ÇÒ ¼ö ÀÖ´Â ÁÖÅÃÀÓÂ÷±ÇÀÚ(À»±¸7¹ø) ÀÖÀ½(ÀÓ´ëÂ÷º¸Áõ±Ý:155,000,000¿ø/ ÀüÀÔÀÏÀÚ:2020.12.01./ È®Á¤ÀÏÀÚ:2020 .10.19.) ¹è´ç¿¡¼­ º¸Áõ±ÝÀÌ Àü¾× º¯Á¦µÇÁö ¾Ê´Â °æ¿ì Àܾ×À» ¸Å¼öÀÎÀÌ ÀμöÇÏ¿©¾ß ÇÔ
¸Å°¢À¸·Î ¼³Á¤µÈ °ÍÀ¸·Î º¸´Â Áö»ó±Ç:
¡Ø¹Ì³³°ü¸®ºñ(°ø¿ë) Àμö¿©ºÎ¸¦ ÀÔÂû Àü¿¡ È®ÀÎÇϽñ⠹ٶø´Ï´Ù

 

Áö¿ªºÐ¼®

ÁöÇÏö¸í Á÷¼±°Å¸®

Çб³¸í ÀüÈ­¹øÈ£ ÁÖ¼Ò Á÷¼±°Å¸®

¹ý¿ø

¼ö¿øÁö¹æ¹ý¿ø ¾È»êÁö¿ø (140-54)°æ±âµµ ¾È»ê½Ã ´Ü¿ø±¸ ±¤´ö¼­·Î 75 (°íÀܵ¿)
´ëÇ¥ : 031)481-1114, ¹Î¿ø : 031)481-1238, ¾ß°£ : 031)481-1112
°üÇÒÁö¿ª : ¾È»ê½Ã, ±¤¸í½Ã, ½ÃÈï½Ã

µî±â¼Ò ¼ö¿øÁö¹æ¹ý¿ø ¾È»êÁö¿ø µî±â°ú (´ëÇ¥:1544-0773, ÆÑ½º:(031)481-1290~1292, °æ±âµµ ¾È»ê½Ã ´Ü¿ø±¸ ±¤´ö¼­·Î 75 (°íÀܵ¿ 711))
¼¼¹«¼­ ¾È»ê¼¼¹«¼­ (´ëÇ¥:031-412-32, ÆÑ½º:031-412-3268, °æ±âµµ ¾È»ê½Ã ´Ü¿ø±¸ È­¶û·Î 350 (°íÀܵ¿ 517))

Àαٳ«ÂûÅë°è

±â°£ ¸Å°¢°Ç¼ö Æò±Õ°¨Á¤°¡
Æò±Õ¸Å°¢°¡
¸Å°¢°¡À²
Æò±ÕÀ¯Âû¼ö
3°³¿ù 11°Ç 147,090,909¿ø
112,310,909¿ø
75%
1.5ȸ
6°³¿ù 25°Ç 215,000,000¿ø
152,164,440¿ø
74%
1.4ȸ
12°³¿ù 64°Ç 185,878,125¿ø
131,001,244¿ø
71%
1.9ȸ


º» °æ¸ÅÁ¤º¸´Â ¹ý¿øÀÚ·á¿Í ÀÏÄ¡Çϵµ·Ï ÇÏ¿´À¸³ª ±Ç¸®»çÇ׺¯µ¿, ÀÔ·ÂÂø¿À µîÀÇ ¿øÀÎÀ¸·Î »ç½Ç°ú ´Ù¸¦ ¼ö ÀÖ½À´Ï´Ù. ÀÌ¿ë¾à°ü¿¡ ÀǰЏéÃ¥Á¶°ÇÀ¸·Î Á¦°øµÊÀ» ¾Ë¸®¸ç, °æ¸ÅÀÔÂû½Ã ¹Ýµå½Ã °ü·Ã °øºÎ¸¦ ÀçÈ®ÀÎÇϽñ⠹ٶø´Ï´Ù. º¸´Ù Æí¸®ÇÑ °æ¸ÅÁ¤º¸ Á¦°øÀ» À§ÇØ Áö¼ÓÀûÀ¸·Î °³¼±ÇϰڽÀ´Ï´Ù. ÀÌ¿ëÇØ Áּż­ °¨»çÇÕ´Ï´Ù.