·Î±×ÀÎ
24
´Ù¼¼´ë(ºô¶ó)
ÀÎõÁö¹æ¹ý¿ø ºÎõÁö¿ø
 °¨Á¤°¡140,000,000 ¿ø
 ÃÖÀú°¡(70%) 98,000,000 ¿ø
 º¸Áõ±Ý(10%) 9,800,000 ¿ø
 Ã»±¸¾×231,964,382 ¿ø
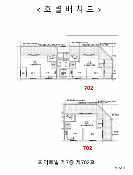
°æ±âµµ ºÎõ½Ã ¼Ò»ç±¸ ¼Û³»µ¿ 572 È­ÀÌÆ®ºô 7Ãþ702È£
»ç°Ç¹øÈ£ 2025Ÿ°æ33018
°æ¸ÅÁ¾·ùºÎµ¿»ê°­Á¦°æ¸Å
¸Å°¢´ë»óÅäÁö ¹× °Ç¹°Àϰý ¸Å°¢
¸Å°¢±âÀÏ    2025.11.26(¼ö) 10:00 (¿À´Ã ÀÔÂû)    
ÅäÁö¸éÀû11.40§³(3.45 Æò)
°Ç¹°¸éÀû36.54§³(11.05 Æò)
乫/¼ÒÀ¯ÀÚÀ¯OO / À¯OO
ä±ÇÀÚÁÖOOOOOOO
ÆäÀ̽ººÏ Æ®À§ÅÍ ±¸±Û+
īī¿À½ºÅ丮
īī¿ÀÅå sms¹®ÀÚº¸³»±â
 

±âÀϳ»¿ª

°æ°ú ³¯Â¥ Àú°¨ ÃÖÀú°¡ °á°ú
Á¢¼öÀÏ 2025-03-20 °æ¸ÅÁ¢¼ö
~1ÀÏ 
2025-03-21 °æ¸Å°³½Ã°áÁ¤
~81ÀÏ 
2025-06-09 ¹è´ç¿ä±¸Á¾±âÀÏ
~223ÀÏ 
2025-10-29 100%
140,000,000
À¯Âû
~251ÀÏ 
2025-11-26 70%
98,000,000
ÁøÇà
¹°°Ç¸í¼¼¼­ ÇöȲÁ¶»ç¼­ ¹®°ÇÁ¢¼ö ¼Û´Þ³»¿ª

°¨Á¤Æò°¡ÇöȲ

¸ñ·Ï ÁÖ¼Ò ±¸Á¶/¿ëµµ/´ëÁö±Ç ¸éÀû ºñ°í
´ëÁö±Ç
¼Û³»µ¿ 572 184.5ºÐÀÇ 11.4 11.4 §³
(3.45Æò)
°Ç¹°
¼Û³»µ¿ 572 7Ãþ702È£ ö±ÙÄÜÅ©¸®Æ®±¸Á¶ 36.54 §³
(11.05Æò)

°ÇÃ๰ÇöȲ

¼ÒÀçÁö °æ±âµµ ºÎõ½Ã ¼Ò»ç±¸ ¼Û³»µ¿ 572¹øÁö
´ëÁö¸éÀû 184.5§³
(55.91Æò)
¿¬¸éÀû 717.29§³
(217.36Æò)
°ÇÃà¸éÀû 132.01§³
(40Æò)
¿ëÀû·ü»êÁ¤
¿¬¸éÀû
717.29§³
(217.36Æò)
°ÇÆóÀ² 71.55% ¿ëÀû·ü 388.78%
Áö»óÃþ¼ö 7Ãþ ÁöÇÏÃþ¼ö  
ÁÖ¿ëµµ °øµ¿ÁÖÅà ±¸Á¶ ö±ÙÄÜÅ©¸®Æ®±¸Á¶
Âø°øÀÏÀÚ 2014.08.26 »ç¿ë½ÂÀÎÀÏÀÚ 2015.07.13
°ÇÃ๰Ãþº°ÇöȲ [º¸±â]


µî±âºÎµîº» ¿ä¾à(°Ç¹°)

  Á¢¼öÀÏÀÚ µî±â¸ñÀû/±Ç¸®ÀÚ ±Ç¸®±Ý¾× ±âÁØ
1 2022³â4¿ù15ÀÏ
¼ÒÀ¯±Ç
À¯OO
¼Ò¸ê
2 2022³â11¿ù29ÀÏ
°¡¾Ð·ù
(OOOO
16,604,811 ¼Ò¸ê±âÁØ
3 2023³â11¿ù20ÀÏ
¾Ð·ù
±¸OO
¼Ò¸ê
4 2023³â11¿ù22ÀÏ
ÀÓÂ÷±Ç¼³Á¤
ÇãOO
220,000,000 ¼Ò¸ê
5 2024³â2¿ù14ÀÏ
°¡¾Ð·ù
¼­OOOO
13,606,584 ¼Ò¸ê
6 2025³â3¿ù21ÀÏ
°­Á¦°æ¸Å
ÁÖOOOO
¼Ò¸ê

ÀÓÂ÷ÀÎÇöȲ (¹è´ç¿ä±¸Á¾±âÀÏ: 2025-06-09)

ÀÓÂ÷ÀÎ ¿ëµµ/Á¡À¯ º¸Áõ±Ý/¿ù¼¼ ´ëÇ×·Â
ÀüÀÔÀÏ/È®Á¤ÀÏ ¹è´ç¿ä±¸ ºñ°í
ÁÖOOOOOOOOOOOOOOO ÀüºÎ 220,000,000
O
2021.11.08.
2021.10.25.
2025.6.9. 2021.11.15.~2023.11.15
ÇãOO ÀüºÎ 220,000,000
O
2021.11.08.
2021.10.25.
2021.11.15.
ºñ°í
(¸Å°¢¹°°Ç
¸í¼¼¼­)
Çã¼ö¿µ: ÁÖÅÃÀÓÂ÷±Çµî±â±Ç¸®Àڷμ­ ÁÖÅÃÀÓÂ÷±Çµî±âÀÏÀº 2023. 11. 22.ÀÓ ÁÖÅõµ½Ãº¸Áõ°ø»ç: °æ¸Å½Åûä±ÇÀÚÀ̰í ÀÓÂ÷ÀÎ Çã¼ö¿µÀÇ ÀÓÂ÷º¸Áõ±Ý¹Ýȯä±Ç ¾ç¼öÀÎÀ¸·Î¼­, º¸Áõ±Ý Àü¾×À» ¹è´ç¹ÞÁö ¸øÇÏ´õ¶ó µµ ÀÜÁ¸ ÀÓÂ÷º¸Áõ±Ý¹Ýȯä±ÇÀ» Æ÷±âÇϰí ÁÖÅÃÀÓÂ÷±Çµî±â ¸»¼Ò¿¡ µ¿ÀÇÇÑ´Ù´Â ÃëÁöÀÇ È®¾à¼­¸¦ Á¦ÃâÇÔ

¿©ÀÇÁÖ°æ¸Å Á¶¾ð ÇÑ ¸¶µð

¼±¼øÀ§ ÀÓÂ÷±Çµî±â°¡ µÇ¾î ÀÖ½À´Ï´Ù
´ëÇ×·ÂÀÌ ÀÖ´Â ¼±¼øÀ§ ÀÓÂ÷±Çµî±â ±Ç¸®ÀÚ°¡ ¹è´çÀ» Àü¾× ¹ÞÁö ¸øÇÒ °æ¿ì ³«ÂûÀÚ°¡ ÀÜ¿© º¸Áõ±ÝÀ» ÀμöÇØ¾ßÇÏ´Â °æ¿ìµµ ÀÖ½À´Ï´Ù.

ÁÖÀÇ»çÇ× (ÃÖ¼±¼øÀ§ ¼³Á¤ÀÏ: 2022. 11. 29. °¡¾Ð·ù ¼³Á¤)

¸Å°¢À¸·Î ¼Ò¸êµÇÁö ¾Ê´Â µî±âºÎ±Ç¸®: À»±¸ ¼øÀ§ 5¹ø ÁÖÅÃÀÓÂ÷±Çµî±â(´Ù¸¸ ÁÖÅõµ½Ãº¸Áõ°ø»çÀÇ ¸»¼Òµ¿ÀÇ È®¾à¼­°¡ Á¦ÃâµÊ)
¸Å°¢À¸·Î ¼³Á¤µÈ °ÍÀ¸·Î º¸´Â Áö»ó±Ç:
º»°Ç ÁýÇÕ°ÇÃ๰´ëÀå(Ç¥Á¦ºÎ,°©) »ó À§¹Ý°ÇÃ๰(2021.6.23, 701È£)·Î µîÀçµÇ¾î Àִ¹٠°æ¸ÅÁøÇà ¹× Âü¿©½Ã ÂüÁ¶Çϱ⠹ٶó¸ç 701 È£ÀÇ À§¹Ý°ÇÃ๰ µîÀç·Î ÀÎÇÑ º»°ÇÀÇ »ç¿ë¼öÀÍ¿¡ Á¦ÇÑÀ» ¹ÌÄ¡´Â ¿µÇâÀº ¹Ì¹ÌÇÔ(°¨Á¤Æò°¡¼­ ÂüÁ¶).
¡Ø¹Ì³³°ü¸®ºñ(°ø¿ë) Àμö¿©ºÎ¸¦ ÀÔÂû Àü¿¡ È®ÀÎÇϽñ⠹ٶø´Ï´Ù

 

Áö¿ªºÐ¼®

ÁöÇÏö¸í Á÷¼±°Å¸®

Çб³¸í ÀüÈ­¹øÈ£ ÁÖ¼Ò Á÷¼±°Å¸®

¹ý¿ø

ÀÎõÁö¹æ¹ý¿ø ºÎõÁö¿ø (146-02)°æ±âµµ ºÎõ½Ã ¿ø¹Ì±¸ »óÀÏ·Î 129(»óµ¿)
´ëÇ¥ : 032)320-1114, ¹Î¿ø : 032)320-1234
°üÇÒÁö¿ª : ºÎõ½Ã, ±èÆ÷½Ã

µî±â¼Ò ÀÎõÁö¹æ¹ý¿ø ºÎõÁö¿ø µî±â°ú (´ëÇ¥:1544-0773, ÆÑ½º:(032)320-1484, 320-1485, °æ±âµµ ºÎõ½Ã »óÀÏ·Î 129 (»óµ¿ 445-1))
¼¼¹«¼­ ¼¼¹«¼­ (´ëÇ¥:, ÆÑ½º:, )

Àαٳ«ÂûÅë°è

±â°£ ¸Å°¢°Ç¼ö Æò±Õ°¨Á¤°¡
Æò±Õ¸Å°¢°¡
¸Å°¢°¡À²
Æò±ÕÀ¯Âû¼ö
3°³¿ù 81°Ç 219,200,988¿ø
154,314,851¿ø
69%
1.7ȸ
6°³¿ù 102°Ç 216,189,020¿ø
153,136,622¿ø
69%
1.7ȸ
12°³¿ù 162°Ç 223,215,802¿ø
166,826,174¿ø
73%
1.5ȸ


º» °æ¸ÅÁ¤º¸´Â ¹ý¿øÀÚ·á¿Í ÀÏÄ¡Çϵµ·Ï ÇÏ¿´À¸³ª ±Ç¸®»çÇ׺¯µ¿, ÀÔ·ÂÂø¿À µîÀÇ ¿øÀÎÀ¸·Î »ç½Ç°ú ´Ù¸¦ ¼ö ÀÖ½À´Ï´Ù. ÀÌ¿ë¾à°ü¿¡ ÀǰЏéÃ¥Á¶°ÇÀ¸·Î Á¦°øµÊÀ» ¾Ë¸®¸ç, °æ¸ÅÀÔÂû½Ã ¹Ýµå½Ã °ü·Ã °øºÎ¸¦ ÀçÈ®ÀÎÇϽñ⠹ٶø´Ï´Ù. º¸´Ù Æí¸®ÇÑ °æ¸ÅÁ¤º¸ Á¦°øÀ» À§ÇØ Áö¼ÓÀûÀ¸·Î °³¼±ÇϰڽÀ´Ï´Ù. ÀÌ¿ëÇØ Áּż­ °¨»çÇÕ´Ï´Ù.