·Î±×ÀÎ
43
´Ù¼¼´ë(ºô¶ó)
ÀÎõÁö¹æ¹ý¿ø ºÎõÁö¿ø
 °¨Á¤°¡206,000,000 ¿ø
 ÃÖÀú°¡(49%) 100,940,000 ¿ø
 º¸Áõ±Ý(10%) 10,094,000 ¿ø
 Ã»±¸¾×235,000,000 ¿ø
°æ±âµµ ºÎõ½Ã ¿ø¹Ì±¸ µµ´çµ¿ 63-1 È¿¼ºÇÏÀÌÃ÷ 2Ãþ 202È£
»ç°Ç¹øÈ£ 2025Ÿ°æ32996
°æ¸ÅÁ¾·ùºÎµ¿»ê°­Á¦°æ¸Å
¸Å°¢´ë»óÅäÁö ¹× °Ç¹°Àϰý ¸Å°¢
¸Å°¢±âÀÏ    2025.12.24(¼ö) 10:00 ÀÔÂû 19ÀÏÀü    
ÅäÁö¸éÀû29.52§³(8.93 Æò)
°Ç¹°¸éÀû54.29§³(16.42 Æò)
乫/¼ÒÀ¯ÀÚ¹èOO / ¹èOO
ä±ÇÀÚÁÖOOOOOOO
ÆäÀ̽ººÏ Æ®À§ÅÍ ±¸±Û+
īī¿À½ºÅ丮
īī¿ÀÅå sms¹®ÀÚº¸³»±â
 

±âÀϳ»¿ª

°æ°ú ³¯Â¥ Àú°¨ ÃÖÀú°¡ °á°ú
Á¢¼öÀÏ 2025-03-19 °æ¸ÅÁ¢¼ö
~1ÀÏ 
2025-03-20 °æ¸Å°³½Ã°áÁ¤
~77ÀÏ 
2025-06-04 ¹è´ç¿ä±¸Á¾±âÀÏ
~224ÀÏ 
2025-10-29 100%
206,000,000
À¯Âû
~252ÀÏ 
2025-11-26 70%
144,200,000
À¯Âû
~280ÀÏ 
2025-12-24 49%
100,940,000
ÁøÇà
¹°°Ç¸í¼¼¼­ ÇöȲÁ¶»ç¼­ ¹®°ÇÁ¢¼ö ¼Û´Þ³»¿ª

°¨Á¤Æò°¡ÇöȲ

¸ñ·Ï ÁÖ¼Ò ±¸Á¶/¿ëµµ/´ëÁö±Ç ¸éÀû ºñ°í
´ëÁö±Ç
µµ´çµ¿ 63-1 328.8ºÐÀÇ 29.5226 29.5226 §³
(8.93Æò)
°Ç¹°
µµ´çµ¿ 63-1 2Ãþ 202È£ ö±ÙÄÜÅ©¸®Æ®±¸Á¶ 54.29 §³
(16.42Æò)

°ÇÃ๰ÇöȲ

¼ÒÀçÁö °æ±âµµ ºÎõ½Ã ¿ø¹Ì±¸ µµ´çµ¿ 63-1¹øÁö
´ëÁö¸éÀû 328.8§³
(99.64Æò)
¿¬¸éÀû 656.96§³
(199.08Æò)
°ÇÃà¸éÀû 195.11§³
(59.12Æò)
¿ëÀû·ü»êÁ¤
¿¬¸éÀû
656.96§³
(199.08Æò)
°ÇÆóÀ² 59.34% ¿ëÀû·ü 199.81%
Áö»óÃþ¼ö 5Ãþ ÁöÇÏÃþ¼ö  
ÁÖ¿ëµµ °øµ¿ÁÖÅà ±¸Á¶ ö±ÙÄÜÅ©¸®Æ®±¸Á¶
Âø°øÀÏÀÚ 2010.03.20 »ç¿ë½ÂÀÎÀÏÀÚ 2010.07.15
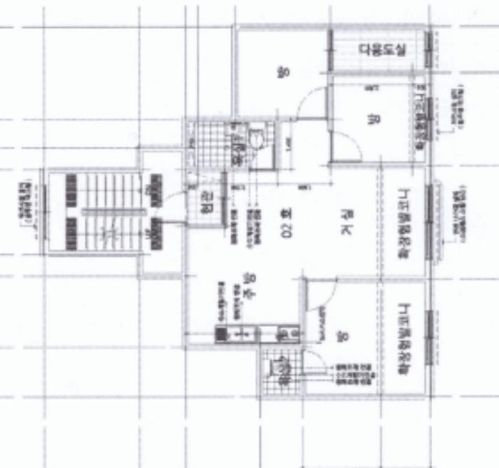
°ÇÃ๰Ãþº°ÇöȲ [º¸±â]


µî±âºÎµîº» ¿ä¾à(°Ç¹°)

  Á¢¼öÀÏÀÚ µî±â¸ñÀû/±Ç¸®ÀÚ ±Ç¸®±Ý¾× ±âÁØ
1 2020³â9¿ù7ÀÏ
¼ÒÀ¯±Ç
¹èOO
¼Ò¸ê
2 2024³â8¿ù7ÀÏ
ÀÓÂ÷±Ç¼³Á¤
¿ÀOO
235,000,000 Àμö
3 2025³â1¿ù15ÀÏ
¾Ð·ù
³²OO
¼Ò¸ê±âÁØ
4 2025³â3¿ù20ÀÏ
°­Á¦°æ¸Å
ÁÖOOOO
¼Ò¸ê
5 2025³â5¿ù13ÀÏ
¾Ð·ù
±¹OOOO
¼Ò¸ê
6 2025³â7¿ù3ÀÏ
¾Ð·ù
±¹
¼Ò¸ê
7 2025³â8¿ù22ÀÏ
¾Ð·ù
ºÎOO
¼Ò¸ê

ÀÓÂ÷ÀÎÇöȲ (¹è´ç¿ä±¸Á¾±âÀÏ: 2025-06-04)

ÀÓÂ÷ÀÎ ¿ëµµ/Á¡À¯ º¸Áõ±Ý/¿ù¼¼ ´ëÇ×·Â
ÀüÀÔÀÏ/È®Á¤ÀÏ ¹è´ç¿ä±¸ ºñ°í
¿ÀOO ÀüºÎ 235,000,000
O
2022.08.12
2022.06.24
2022.08.12
ÁÖOOOOOOOOOOOOOOO ÀüºÎ 235,000,000
O
2022.08.12
2022.06.24
2025.3.19. 2022.08.12.~2024.0811
ºñ°í
(¸Å°¢¹°°Ç
¸í¼¼¼­)
¿ÀÀº¹Ì: ÁÖÅÃÀÓÂ÷±Çµî±â±Ç¸®Àڷμ­ ÁÖÅÃÀÓÂ÷±Çµî±âÀÏÀº 2024. 8. 7.ÀÓ ÁÖÅõµ½Ãº¸Áõ°ø»ç: °æ¸Å½Åûä±ÇÀÚÀ̰í ÀÓÂ÷ÀÎ ¿ÀÀº¹ÌÀÇ ÀÓÂ÷º¸Áõ±Ý¹Ýȯä±Ç ¾ç¼öÀÎÀ¸·Î¼­, º¸Áõ±Ý Àü¾×À» ¹è´ç¹ÞÁö ¸øÇÏ´õ¶ó µµ ÀÜÁ¸ ÀÓÂ÷º¸Áõ±Ý¹Ýȯä±ÇÀ» Æ÷±âÇϰí ÁÖÅÃÀÓÂ÷±Çµî±â ¸»¼Ò¿¡ µ¿ÀÇÇÑ´Ù´Â ÃëÁöÀÇ È®¾à¼­¸¦ Á¦ÃâÇÔ

¿©ÀÇÁÖ°æ¸Å Á¶¾ð ÇÑ ¸¶µð

¼±¼øÀ§ ÀÓÂ÷±Çµî±â°¡ µÇ¾î ÀÖ½À´Ï´Ù
´ëÇ×·ÂÀÌ ÀÖ´Â ¼±¼øÀ§ ÀÓÂ÷±Çµî±â ±Ç¸®ÀÚ°¡ ¹è´çÀ» Àü¾× ¹ÞÁö ¸øÇÒ °æ¿ì ³«ÂûÀÚ°¡ ÀÜ¿© º¸Áõ±ÝÀ» ÀμöÇØ¾ßÇÏ´Â °æ¿ìµµ ÀÖ½À´Ï´Ù.

ÁÖÀÇ»çÇ× (ÃÖ¼±¼øÀ§ ¼³Á¤ÀÏ: 2025. 1. 15. ¾Ð·ù ¼³Á¤)

¸Å°¢À¸·Î ¼Ò¸êµÇÁö ¾Ê´Â µî±âºÎ±Ç¸®: À»±¸ ¼øÀ§ 3¹ø ÁÖÅÃÀÓÂ÷±Çµî±â(´Ù¸¸ ÁÖÅõµ½Ãº¸Áõ°ø»çÀÇ ¸»¼Òµ¿ÀÇ È®¾à¼­°¡ Á¦ÃâµÊ)
¸Å°¢À¸·Î ¼³Á¤µÈ °ÍÀ¸·Î º¸´Â Áö»ó±Ç:
¡Ø¹Ì³³°ü¸®ºñ(°ø¿ë) Àμö¿©ºÎ¸¦ ÀÔÂû Àü¿¡ È®ÀÎÇϽñ⠹ٶø´Ï´Ù

 

Áö¿ªºÐ¼®

ÁöÇÏö¸í Á÷¼±°Å¸®

Çб³¸í ÀüÈ­¹øÈ£ ÁÖ¼Ò Á÷¼±°Å¸®

¹ý¿ø

ÀÎõÁö¹æ¹ý¿ø ºÎõÁö¿ø (146-02)°æ±âµµ ºÎõ½Ã ¿ø¹Ì±¸ »óÀÏ·Î 129(»óµ¿)
´ëÇ¥ : 032)320-1114, ¹Î¿ø : 032)320-1234
°üÇÒÁö¿ª : ºÎõ½Ã, ±èÆ÷½Ã

µî±â¼Ò ÀÎõÁö¹æ¹ý¿ø ºÎõÁö¿ø µî±â°ú (´ëÇ¥:1544-0773, ÆÑ½º:(032)320-1484, 320-1485, °æ±âµµ ºÎõ½Ã »óÀÏ·Î 129 (»óµ¿ 445-1))
¼¼¹«¼­ ¼¼¹«¼­ (´ëÇ¥:, ÆÑ½º:, )

Àαٳ«ÂûÅë°è

±â°£ ¸Å°¢°Ç¼ö Æò±Õ°¨Á¤°¡
Æò±Õ¸Å°¢°¡
¸Å°¢°¡À²
Æò±ÕÀ¯Âû¼ö
3°³¿ù 124°Ç 218,916,734¿ø
168,842,805¿ø
76%
1.5ȸ
6°³¿ù 156°Ç 216,344,872¿ø
167,841,951¿ø
77%
1.5ȸ
12°³¿ù 233°Ç 215,686,695¿ø
166,813,354¿ø
77%
1.4ȸ


º» °æ¸ÅÁ¤º¸´Â ¹ý¿øÀÚ·á¿Í ÀÏÄ¡Çϵµ·Ï ÇÏ¿´À¸³ª ±Ç¸®»çÇ׺¯µ¿, ÀÔ·ÂÂø¿À µîÀÇ ¿øÀÎÀ¸·Î »ç½Ç°ú ´Ù¸¦ ¼ö ÀÖ½À´Ï´Ù. ÀÌ¿ë¾à°ü¿¡ ÀǰЏéÃ¥Á¶°ÇÀ¸·Î Á¦°øµÊÀ» ¾Ë¸®¸ç, °æ¸ÅÀÔÂû½Ã ¹Ýµå½Ã °ü·Ã °øºÎ¸¦ ÀçÈ®ÀÎÇϽñ⠹ٶø´Ï´Ù. º¸´Ù Æí¸®ÇÑ °æ¸ÅÁ¤º¸ Á¦°øÀ» À§ÇØ Áö¼ÓÀûÀ¸·Î °³¼±ÇϰڽÀ´Ï´Ù. ÀÌ¿ëÇØ Áּż­ °¨»çÇÕ´Ï´Ù.