·Î±×ÀÎ
41
´Ù¼¼´ë(ºô¶ó)
¼­¿ïÁß¾ÓÁö¹æ¹ý¿ø
 °¨Á¤°¡345,000,000 ¿ø
 ÃÖÀú°¡(64%) 220,800,000 ¿ø
 º¸Áõ±Ý(10%) 22,080,000 ¿ø
 Ã»±¸¾×30,997,138 ¿ø
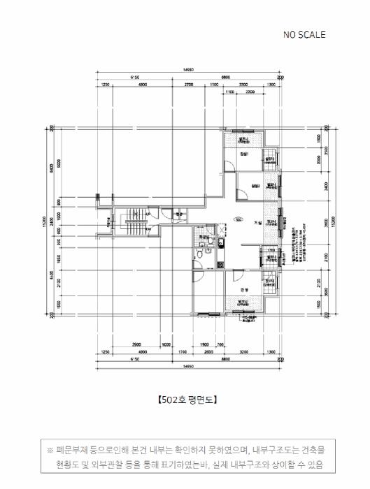
¼­¿ïƯº°½Ã °ü¾Ç±¸ ½Å¸²µ¿ 627-3 Áö¿Àºô 5Ãþ502È£
»ç°Ç¹øÈ£ 2025Ÿ°æ102725
°æ¸ÅÁ¾·ùºÎµ¿»ê°­Á¦°æ¸Å
¸Å°¢´ë»óÅäÁö ¹× °Ç¹°Àϰý ¸Å°¢
¸Å°¢±âÀÏ    2026.01.14(¼ö) 10:00 ÀÔÂû 37ÀÏÀü    
ÅäÁö¸éÀû31.93§³(9.66 Æò)
°Ç¹°¸éÀû53.28§³(16.12 Æò)
乫/¼ÒÀ¯ÀÚÇÑOO / ÇÑOO
ä±ÇÀÚ¿ìOOOOOO OOOO
ÆäÀ̽ººÏ Æ®À§ÅÍ ±¸±Û+
īī¿À½ºÅ丮
īī¿ÀÅå sms¹®ÀÚº¸³»±â
 

±âÀϳ»¿ª

°æ°ú ³¯Â¥ Àú°¨ ÃÖÀú°¡ °á°ú
Á¢¼öÀÏ 2025-04-16 °æ¸ÅÁ¢¼ö
~1ÀÏ 
2025-04-17 °æ¸Å°³½Ã°áÁ¤
~77ÀÏ 
2025-07-02 ¹è´ç¿ä±¸Á¾±âÀÏ
~196ÀÏ 
2025-10-29 100%
345,000,000
À¯Âû
~231ÀÏ 
2025-12-03 80%
276,000,000
À¯Âû
~273ÀÏ 
2026-01-14 64%
220,800,000
ÁøÇà
¹°°Ç¸í¼¼¼­ ÇöȲÁ¶»ç¼­ ¹®°ÇÁ¢¼ö ¼Û´Þ³»¿ª

°¨Á¤Æò°¡ÇöȲ

¸ñ·Ï ÁÖ¼Ò ±¸Á¶/¿ëµµ/´ëÁö±Ç ¸éÀû ºñ°í
´ëÁö±Ç
½Å¸²µ¿ 627-3 399ºÐÀÇ 31.93 31.93 §³
(9.66Æò)
°Ç¹°
½Å¸²µ¿ 627-3 5Ãþ502È£ ö±ÙÄÜÅ©¸®Æ®±¸Á¶ 53.28 §³
(16.12Æò)

°ÇÃ๰ÇöȲ

¼ÒÀçÁö ¼­¿ïƯº°½Ã °ü¾Ç±¸ ½Å¸²µ¿ 627-3¹øÁö
´ëÁö¸éÀû 399§³
(120.91Æò)
¿¬¸éÀû 724.64§³
(219.59Æò)
°ÇÃà¸éÀû 228.43§³
(69.22Æò)
¿ëÀû·ü»êÁ¤
¿¬¸éÀû
724.64§³
(219.59Æò)
°ÇÆóÀ² 57.25% ¿ëÀû·ü 181.61%
Áö»óÃþ¼ö 5Ãþ ÁöÇÏÃþ¼ö  
ÁÖ¿ëµµ °øµ¿ÁÖÅà ±¸Á¶ ö±ÙÄÜÅ©¸®Æ®±¸Á¶
Âø°øÀÏÀÚ 2010.05.07 »ç¿ë½ÂÀÎÀÏÀÚ 2010.09.06
°ÇÃ๰Ãþº°ÇöȲ [º¸±â]


±¹ÅäºÎ½Ç°Å·¡°¡ ¼­¿ïƯº°½Ã °ü¾Ç±¸ ½Å¸²µ¿

¡Ü ¸Å¸Å

¸éÀû(§³), ±Ý¾×(¸¸¿ø)

¡Ü Àü¼¼

¸éÀû(§³), ±Ý¾×(¸¸¿ø)

°è¾àÀϰǹ°¸íĪÃþ¿¬¸éÀû´ëÁö±Ý¾×°ÇÃà
24.03.30±ÃÀü¿¡¹öºô(713-6)337.9818.0118,1002003
24.03.29Çϳª¾ÆÆ®ºô¶ó246.8622.9219,0002002
24.03.27µ¨·ç½Ã¾Æ.R329.94524.0929,0002022
24.03.27¼º°­ÄÉ·»½Ã¾Æ252.2636.2332,0002018
24.03.27¿î¼­¸Ç¼Ç(°¡)162.9732.2234,5002002
¢Ñ ´õº¸±â

µî±âºÎµîº» ¿ä¾à(°Ç¹°)

  Á¢¼öÀÏÀÚ µî±â¸ñÀû/±Ç¸®ÀÚ ±Ç¸®±Ý¾× ±âÁØ
1 2010³â10¿ù15ÀÏ
¼ÒÀ¯±Ç
ÇÑOO
¼Ò¸ê
2 2025³â1¿ù15ÀÏ
°¡¾Ð·ù
¿ìOOOO
29,421,320 ¼Ò¸ê±âÁØ
3 2025³â4¿ù17ÀÏ
°­Á¦°æ¸Å
¿ìOOOO
¼Ò¸ê

ÀÓÂ÷ÀÎÇöȲ (¹è´ç¿ä±¸Á¾±âÀÏ: 2025-07-02)

ÀÓÂ÷ÀÎ ¿ëµµ/Á¡À¯ º¸Áõ±Ý/¿ù¼¼ ´ëÇ×·Â
ÀüÀÔÀÏ/È®Á¤ÀÏ ¹è´ç¿ä±¸ ºñ°í
±èOO 502È£ 200,000,000
O
2024.04.26.
2024.03.13.
2025.5.28. 2024.04.15.~2026.04.14.

¿©ÀÇÁÖ°æ¸Å Á¶¾ð ÇÑ ¸¶µð

ÃëÇÏ ¶Ç´Â Ãë¼ÒµÉ °¡´É¼º ÀÖ½À´Ï´Ù
ÀÌ ¹°°ÇÀÇ °¨Á¤°¡°ÝÀº 345,000,000¿øÀÔ´Ï´Ù. °æ¸Å¸¦ ½ÅûÇÑ Ã¤±ÇÀÚ°¡ ¹è´ç ¹Þ¾Æ¾ß ÇÒ ±Ý¾×Àº 30,997,138¿øÀ¸·Î °¨Á¤°¡°Ý ´ëºñ »ó´çÈ÷ ÀûÀº ±Ý¾×ÀÔ´Ï´Ù. ÀÌ·± °æ¿ì, 乫°¡°¡ º¯Á¦ÇÏ¿© °æ¸Å¸¦ ÃëÇϽÃŰ°Å³ª °æ¸Å½Åûä±ÇÀÚ°¡ ¹è´ç¹ÞÀº ±Ý¿øÀÌ ¾ø°ÔµÇ¾î À̸¥ ¹Ù "¹«À׿©¿¡ ÀÇÇÑ Ãë¼Ò"°¡ µÉ °¡´É¼ºÀÌ ÀÖ½À´Ï´Ù.

ÁÖÀÇ»çÇ× (ÃÖ¼±¼øÀ§ ¼³Á¤ÀÏ: )

¸Å°¢À¸·Î ¼Ò¸êµÇÁö ¾Ê´Â µî±âºÎ±Ç¸®:
¸Å°¢À¸·Î ¼³Á¤µÈ °ÍÀ¸·Î º¸´Â Áö»ó±Ç:
¡Ø¹Ì³³°ü¸®ºñ(°ø¿ë) Àμö¿©ºÎ¸¦ ÀÔÂû Àü¿¡ È®ÀÎÇϽñ⠹ٶø´Ï´Ù

 

Áö¿ªºÐ¼®

ÁöÇÏö¸í Á÷¼±°Å¸®

Çб³¸í ÀüÈ­¹øÈ£ ÁÖ¼Ò Á÷¼±°Å¸®

¹ý¿ø

¼­¿ïÁß¾ÓÁö¹æ¹ý¿ø (065-94)¼­¿ïƯº°½Ã ¼­Ãʱ¸ ¼­ÃÊÁß¾Ó·Î 157 (¼­Ãʵ¿)
´ëÇ¥ : 02)530-1114, ¾ß°£ : 02)530-1280/536-8003
°üÇÒÁö¿ª : Á¾·Î±¸, Áß±¸, °­³²±¸, ¼­Ãʱ¸, °ü¾Ç±¸, µ¿ÀÛ±¸

µî±â¼Ò ¼­¿ïÁß¾ÓÁö¹æ¹ý¿ø º»¿ø µî±â±¹ (´ëÇ¥:1544-0773, ÆÑ½º:(02)590-1881, ¼­¿ïƯº°½Ã ¼­Ãʱ¸ ¹ý¿ø·Î3±æ 14 (¼­Ãʵ¿ 1707-4))
¼¼¹«¼­ °ü¾Ç¼¼¹«¼­ (´ëÇ¥:02-2173-42, ÆÑ½º:02-2173-4269, ¼­¿ïƯº°½Ã °ü¾Ç±¸ ¹®¼º·Î 187(½Å¸²µ¿))

Àαٳ«ÂûÅë°è

±â°£ ¸Å°¢°Ç¼ö Æò±Õ°¨Á¤°¡
Æò±Õ¸Å°¢°¡
¸Å°¢°¡À²
Æò±ÕÀ¯Âû¼ö
3°³¿ù 8°Ç 313,250,000¿ø
244,166,832¿ø
81%
2.9ȸ
6°³¿ù 14°Ç 258,642,857¿ø
218,324,690¿ø
85%
2ȸ
12°³¿ù 15°Ç 278,866,667¿ø
233,743,044¿ø
85%
1.9ȸ


º» °æ¸ÅÁ¤º¸´Â ¹ý¿øÀÚ·á¿Í ÀÏÄ¡Çϵµ·Ï ÇÏ¿´À¸³ª ±Ç¸®»çÇ׺¯µ¿, ÀÔ·ÂÂø¿À µîÀÇ ¿øÀÎÀ¸·Î »ç½Ç°ú ´Ù¸¦ ¼ö ÀÖ½À´Ï´Ù. ÀÌ¿ë¾à°ü¿¡ ÀǰЏéÃ¥Á¶°ÇÀ¸·Î Á¦°øµÊÀ» ¾Ë¸®¸ç, °æ¸ÅÀÔÂû½Ã ¹Ýµå½Ã °ü·Ã °øºÎ¸¦ ÀçÈ®ÀÎÇϽñ⠹ٶø´Ï´Ù. º¸´Ù Æí¸®ÇÑ °æ¸ÅÁ¤º¸ Á¦°øÀ» À§ÇØ Áö¼ÓÀûÀ¸·Î °³¼±ÇϰڽÀ´Ï´Ù. ÀÌ¿ëÇØ Áּż­ °¨»çÇÕ´Ï´Ù.