·Î±×ÀÎ
80
´Ù¼¼´ë(ºô¶ó)
¼ö¿øÁö¹æ¹ý¿ø ¾È»êÁö¿ø
 °¨Á¤°¡130,000,000 ¿ø
 ÃÖÀú°¡(70%) 91,000,000 ¿ø
 º¸Áõ±Ý(10%) 9,100,000 ¿ø
 Ã»±¸¾×135,406,026 ¿ø
°æ±âµµ ½ÃÈï½Ã ½Åõ7±æ 9-3, 5Ãþ503È£ (½Åõµ¿,»ïÇü½ºÄ«À̺ô)
°æ±âµµ ½ÃÈï½Ã ½Åõµ¿ 835-4
»ç°Ç¹øÈ£ 2024Ÿ°æ70803
°æ¸ÅÁ¾·ùºÎµ¿»ê°­Á¦°æ¸Å
¸Å°¢´ë»óÅäÁö ¹× °Ç¹°Àϰý ¸Å°¢
¸Å°¢±âÀÏ    2025.12.09(È­) 10:30 ÀÔÂû 31ÀÏÀü    
ÅäÁö¸éÀû20.93§³(6.33 Æò)
°Ç¹°¸éÀû45.29§³(13.70 Æò)
乫/¼ÒÀ¯ÀÚÁ¤OO / Á¤OO
ä±ÇÀÚÁÖOOOOOOO
ÆäÀ̽ººÏ Æ®À§ÅÍ ±¸±Û+
īī¿À½ºÅ丮
īī¿ÀÅå sms¹®ÀÚº¸³»±â
 

±âÀϳ»¿ª

°æ°ú ³¯Â¥ Àú°¨ ÃÖÀú°¡ °á°ú
Á¢¼öÀÏ 2024-11-20 °æ¸ÅÁ¢¼ö
~1ÀÏ 
2024-11-21 °æ¸Å°³½Ã°áÁ¤
~83ÀÏ 
2025-02-11 ¹è´ç¿ä±¸Á¾±âÀÏ
~342ÀÏ 
2025-10-28 100%
130,000,000
À¯Âû
~384ÀÏ 
2025-12-09 70%
91,000,000
ÁøÇà
¹°°Ç¸í¼¼¼­ ÇöȲÁ¶»ç¼­ ¹®°ÇÁ¢¼ö ¼Û´Þ³»¿ª

°¨Á¤Æò°¡ÇöȲ

¸ñ·Ï ÁÖ¼Ò ±¸Á¶/¿ëµµ/´ëÁö±Ç ¸éÀû ºñ°í
´ëÁö±Ç
½Åõµ¿ 835-4 269.6ºÐÀÇ 20.93 20.93 §³
(6.33Æò)
°Ç¹°
½Åõµ¿ 835-4 5Ãþ503È£ ö±ÙÄÜÅ©¸®Æ®Á¶ 45.29 §³
(13.70Æò)
1) À§Ä¡/µµ½ÃÁö¿ª/Á¦2Á¾ÀϹÝÁÖ°ÅÁö¿ª/³ë¼±¹ö½º Á¤·ùÀå/ö±ÙÄÜÅ©¸®Æ®Á¶/½º¶óºêÁöºØ/µµ½Ã°¡½º ´õº¸±â
°¨Á¤Æò°¡ ¿äÇ×Ç¥
1)À§Ä¡ ¹× ÁÖÀ§È¯°æ
º»°ÇÀº °æ±âµµ ½ÃÈï½Ã ½Åõµ¿ ¼ÒÀç "½Åõ°íµîÇб³" ºÏµ¿Ãø Àαٿ¡ À§Ä¡Çϸç ÁÖÀ§´Â ´Üµ¶ÁÖÅÃ
¾ÆÆÄÆ®, ´Ù¼¼´ëÁÖÅÃ, Á¡Æ÷, ±Ù¸°»ýȰ½Ã¼³ µîÀÌ È¥ÀçÇÏ´Â Áö¿ªÀÓ.
2)±³Åë»óȲ
º»°ÇÀº Â÷·® Á¢±ÙÀÌ ¿ëÀÌÇϰí, Àαٿ¡ ³ë¼±¹ö½º Á¤·ùÀåÀÌ ¼ÒÀçÇÏ¿© ´ëÁß±³Åë»çÁ¤Àº ¹«³­ÇÔ.
3)°Ç¹°ÀÇ ±¸Á¶
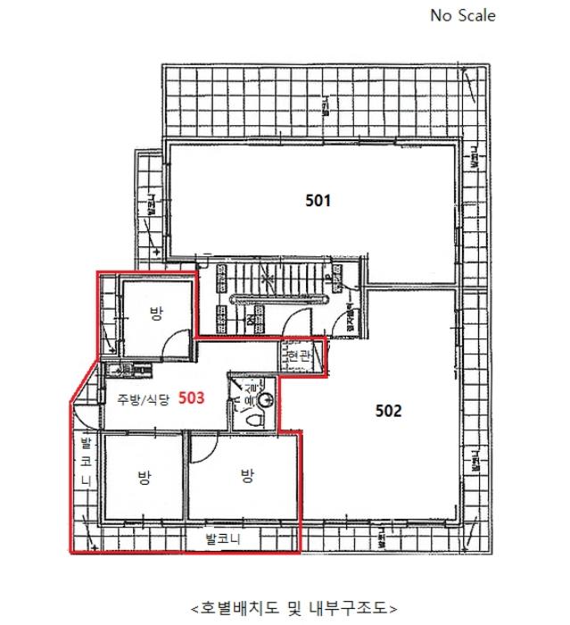
ö±ÙÄÜÅ©¸®Æ®Á¶ ½º¶óºêÁöºØ 5Ãþ Áß 5Ãþ 503È£·Î¼­
¿Üº® : ½Ã¸à¸ôÅ»À§ ÆäÀÎÆÃ ¸¶°¨.
³»º® : ½Ã¸à¸ôÅ»À§ º®Áö µµ¹è ¹× ÀϺΠŸÀÏ µî ¸¶°¨.
âȣ : ¼¦½Ã ÀÌÁß Ã¢È£ÀÓ.
4)ÀÌ¿ë»óÅÂ
´Ù¼¼´ëÁÖÅÃ(ÈÄ÷ "³»ºÎ±¸Á¶µµ" ÂüÁ¶)·Î ÀÌ¿ë ÁßÀÓ.
5)¼³ºñ³»¿ª
À§»ý ¹× ±Þ¤ý¹è¼ö¼³ºñ, µµ½Ã°¡½º¼³ºñ, ³­¹æ¼³ºñ µîÀÌ µÇ¾î ÀÖÀ½.
6)ÅäÁöÀÇ Çü»ó ¹× ÀÌ¿ë»óÅÂ
2ÇÊ ÀÏ´ÜÁö »ç´Ù¸®ÇüÀÇ ÆòźÇÑ ÅäÁö·Î¼­ ´Ù¼¼´ëÁÖÅà °ÇºÎÁö·Î ÀÌ¿ëÁßÀÓ.
7)ÀÎÁ¢ µµ·Î»óŵî
º»°ÇÀº ³²Ãø ¹× µ¿ÃøÀ¸·Î ¼¼·Î¿Í Á¢ÇÔ.
8)ÅäÁöÀÌ¿ë°èȹ ¹× Á¦ÇÑ»óÅÂ
*±âÈ£1 : µµ½ÃÁö¿ª, Á¦2Á¾ÀϹÝÁÖ°ÅÁö¿ª, ¼Ò·Î3·ù(Æø 8m ¹Ì¸¸)(±¹Áöµµ·Î)(Á¢ÇÕ), °¡Ãà»çÀ°Á¦
Çѱ¸¿ª<°¡ÃàºÐ´¢ÀÇ °ü¸® ¹× À̿뿡 °üÇÑ ¹ý·ü>, »ó´ëº¸È£±¸¿ª<±³À°È¯°æ º¸È£¿¡ °ü
ÇÑ ¹ý·ü>, »ó´ëº¸È£±¸¿ª(2013-07-19)<±³À°È¯°æ º¸È£¿¡ °üÇÑ ¹ý·ü>, °ú¹Ð¾ïÁ¦±Ç¿ª
<¼öµµ±ÇÁ¤ºñ°èȹ¹ý>.

*±âÈ£2 : µµ½ÃÁö¿ª, Á¦2Á¾ÀϹÝÁÖ°ÅÁö¿ª, ¼Ò·Î3·ù(Æø 8m ¹Ì¸¸)(±¹Áöµµ·Î)(Á¢ÇÕ), °¡Ãà»çÀ°Á¦
Çѱ¸¿ª<°¡ÃàºÐ´¢ÀÇ °ü¸® ¹× À̿뿡 °üÇÑ ¹ý·ü>, »ó´ëº¸È£±¸¿ª<±³À°È¯°æ º¸È£¿¡ °ü
ÇÑ ¹ý·ü>, »ó´ëº¸È£±¸¿ª(2013-07-19)<±³À°È¯°æ º¸È£¿¡ °üÇÑ ¹ý·ü>, °ú¹Ð¾ïÁ¦±Ç¿ª
<¼öµµ±ÇÁ¤ºñ°èȹ¹ý>.
9)°øºÎ¿ÍÀÇ Â÷ÀÌ
¾øÀ½.
10)±âŸÂü°í»çÇ×(ÀÓ´ë°ü·Ê ¹× ±âŸ)
º»°Ç µî±â»çÇ×ÀüºÎÁõ¸í¼­»ó 2023.05.12ÀÏ ¼ö¿øÁö¹æ¹ý¿ø ¾È»êÁö¿øÀÇ ÀÓÂ÷±Çµî±â¸í·É(2023Ä«ÀÓ
161)À¸·Î 2023.05.22ÀÏÀÚ·Î ÁÖÅÃÀÓÂ÷±ÇÀÌ µîÀçµÇ¾î ÀÖÀ½.
Âü°í
»çÇ×

Ãþ 3°¡

°ÇÃ๰ÇöȲ

¼ÒÀçÁö °æ±âµµ ½ÃÈï½Ã ½Åõµ¿ 835-4¹øÁö
´ëÁö¸éÀû 269.6§³
(81.7Æò)
¿¬¸éÀû 653.67§³
(198.08Æò)
°ÇÃà¸éÀû 169.2§³
(51.27Æò)
¿ëÀû·ü»êÁ¤
¿¬¸éÀû
653.67§³
(198.08Æò)
°ÇÆóÀ² 62.76% ¿ëÀû·ü 242.46%
Áö»óÃþ¼ö 5Ãþ ÁöÇÏÃþ¼ö  
ÁÖ¿ëµµ °øµ¿ÁÖÅà ±¸Á¶ ö±ÙÄÜÅ©¸®Æ®±¸Á¶
Âø°øÀÏÀÚ 2003.01.24 »ç¿ë½ÂÀÎÀÏÀÚ 2003.06.02
°ÇÃ๰Ãþº°ÇöȲ [º¸±â]


±¹ÅäºÎ½Ç°Å·¡°¡ °æ±âµµ ½ÃÈï½Ã ½Åõµ¿

¡Ü ¸Å¸Å

¸éÀû(§³), ±Ý¾×(¸¸¿ø)

¡Ü Àü¼¼

¸éÀû(§³), ±Ý¾×(¸¸¿ø)

°è¾àÀϰǹ°¸íĪÃþ¿¬¸éÀû´ëÁö±Ý¾×°ÇÃà
24.03.29ÁÖÇö½¦¸£ºô438.8823.7212,3002002
24.03.29±Ù¿µÅ¾½ººô9Â÷Bµ¿334.2218.749,7002001
24.03.29ÇÑ¼Ö¾ÆÆ®ºô531.6812.686,3002003
24.03.29»ï¿ì±×¸°¸Ç¼Ç7,8µ¿-159.6833.84926,3001996
24.03.28±â¿øºô¶ó°¡µ¿155.7734.315,9001996
¢Ñ ´õº¸±â

µî±âºÎµîº» ¿ä¾à(°Ç¹°)

  Á¢¼öÀÏÀÚ µî±â¸ñÀû/±Ç¸®ÀÚ ±Ç¸®±Ý¾× ±âÁØ
1 2021³â9¿ù1ÀÏ
¼ÒÀ¯±Ç
Á¤OO
¼Ò¸ê
2 2023³â1¿ù30ÀÏ
¾Ð·ù
±¹
¼Ò¸ê±âÁØ
3 2023³â2¿ù21ÀÏ
¾Ð·ù
½ÃOO
¼Ò¸ê
4 2023³â5¿ù22ÀÏ
ÀÓÂ÷±Ç¼³Á¤
¹ÚOO
120,000,000 ¼Ò¸ê
5 2024³â11¿ù21ÀÏ
°­Á¦°æ¸Å
ÁÖOOOO
¼Ò¸ê

ÀÓÂ÷ÀÎÇöȲ (¹è´ç¿ä±¸Á¾±âÀÏ: 2025-02-11)

ÀÓÂ÷ÀÎ ¿ëµµ/Á¡À¯ º¸Áõ±Ý/¿ù¼¼ ´ëÇ×·Â
ÀüÀÔÀÏ/È®Á¤ÀÏ ¹è´ç¿ä±¸ ºñ°í
¹ÚOO 503È£ÀüºÎ 120,000,000
O
2021.8.31.
2021.7.30.
2021.8.31.
ÁÖOOOOOOOOOOOOOOOOOOO 503È£ÀüºÎ 120,000,000
O
2021.8.31.
2021.7.30.
2025.2.11. 2021.8.31.~2023.8.30.
ºñ°í
(¸Å°¢¹°°Ç
¸í¼¼¼­)
ÁÖÅõµ½Ãº¸Áõ°ø»ç(ÀÓÂ÷ÀÎ ¹Ú»ó¹ÎÀÇ ½Â°èÀÎ):ÁÖÅÃÀÓ´ëÂ÷º¸È£¹ý Á¦3Á¶ÀÇ2 Á¦7Ç׿¡ µû¸¥ º¸Áõ±Ý¹Ýȯä±Ç (ÀÓÂ÷ÀÎ ¹Ú»ó¹Î)ÀÇ ¾ç¼ö ÀÎÀ̸ç, ÀÌ »ç°Ç ½Åûä±ÇÀÚÀÓ

¿©ÀÇÁÖ°æ¸Å Á¶¾ð ÇÑ ¸¶µð

¼±¼øÀ§ ÀÓÂ÷±Çµî±â°¡ µÇ¾î ÀÖ½À´Ï´Ù
´ëÇ×·ÂÀÌ ÀÖ´Â ¼±¼øÀ§ ÀÓÂ÷±Çµî±â ±Ç¸®ÀÚ°¡ ¹è´çÀ» Àü¾× ¹ÞÁö ¸øÇÒ °æ¿ì ³«ÂûÀÚ°¡ ÀÜ¿© º¸Áõ±ÝÀ» ÀμöÇØ¾ßÇÏ´Â °æ¿ìµµ ÀÖ½À´Ï´Ù.

ÁÖÀÇ»çÇ× (ÃÖ¼±¼øÀ§ ¼³Á¤ÀÏ: 2023.1.30. ¾Ð·ù ¼³Á¤)

¸Å°¢À¸·Î ¼Ò¸êµÇÁö ¾Ê´Â µî±âºÎ±Ç¸®: ¸Å¼öÀο¡°Ô ´ëÇ×ÇÒ ¼ö ÀÖ´Â À»±¸ ¼øÀ§ 5¹ø ÀÓÂ÷±Çµî±â(2023.5.22. µî±â) ÀÖÀ½(ÀÓ´ëÂ÷º¸Áõ±Ý 120,000,000¿ø, ÀüÀÔÀÏ 2021.8.31., È®Á¤ÀÏÀÚ 2021.7.30.). ¹è´ç¿¡¼­ º¸Áõ±ÝÀÌ Àü¾× º¯Á¦µÇÁö ¾Æ´ÏÇϸé Àܾ×À» ¸Å¼öÀÎÀÌ ÀμöÇÔ.
¸Å°¢À¸·Î ¼³Á¤µÈ °ÍÀ¸·Î º¸´Â Áö»ó±Ç:
¡Ø¹Ì³³°ü¸®ºñ(°ø¿ë) Àμö¿©ºÎ¸¦ ÀÔÂû Àü¿¡ È®ÀÎÇϽñ⠹ٶø´Ï´Ù

 

Áö¿ªºÐ¼®

ÁöÇÏö¸í Á÷¼±°Å¸®

Çб³¸í ÀüÈ­¹øÈ£ ÁÖ¼Ò Á÷¼±°Å¸®

¹ý¿ø

¼ö¿øÁö¹æ¹ý¿ø ¾È»êÁö¿ø (140-54)°æ±âµµ ¾È»ê½Ã ´Ü¿ø±¸ ±¤´ö¼­·Î 75 (°íÀܵ¿)
´ëÇ¥ : 031)481-1114, ¹Î¿ø : 031)481-1238, ¾ß°£ : 031)481-1112
°üÇÒÁö¿ª : ¾È»ê½Ã, ±¤¸í½Ã, ½ÃÈï½Ã

µî±â¼Ò ¼ö¿øÁö¹æ¹ý¿ø ¾È»êÁö¿ø ½ÃÈïµî±â¼Ò (´ëÇ¥:1544-0773, ÆÑ½º:(031)317-8903, 8904, °æ±âµµ ½ÃÈï½Ã ¿¬¼º·Î 31 (ÇÏÁßµ¿ 872-1))
¼¼¹«¼­ ½ÃÈï¼¼¹«¼­ (´ëÇ¥:031-310-72, ÆÑ½º:02-314-3973, °æ±âµµ ½ÃÈï½Ã ¸¶À¯·Î 368 (Á¤¿Õµ¿))

Àαٳ«ÂûÅë°è

±â°£ ¸Å°¢°Ç¼ö Æò±Õ°¨Á¤°¡
Æò±Õ¸Å°¢°¡
¸Å°¢°¡À²
Æò±ÕÀ¯Âû¼ö
3°³¿ù 29°Ç 455,068,966¿ø
389,917,794¿ø
85%
1ȸ
6°³¿ù 105°Ç 410,847,619¿ø
358,242,167¿ø
87%
1ȸ
12°³¿ù 206°Ç 412,906,796¿ø
358,555,275¿ø
87%
1ȸ


º» °æ¸ÅÁ¤º¸´Â ¹ý¿øÀÚ·á¿Í ÀÏÄ¡Çϵµ·Ï ÇÏ¿´À¸³ª ±Ç¸®»çÇ׺¯µ¿, ÀÔ·ÂÂø¿À µîÀÇ ¿øÀÎÀ¸·Î »ç½Ç°ú ´Ù¸¦ ¼ö ÀÖ½À´Ï´Ù. ÀÌ¿ë¾à°ü¿¡ ÀǰЏéÃ¥Á¶°ÇÀ¸·Î Á¦°øµÊÀ» ¾Ë¸®¸ç, °æ¸ÅÀÔÂû½Ã ¹Ýµå½Ã °ü·Ã °øºÎ¸¦ ÀçÈ®ÀÎÇϽñ⠹ٶø´Ï´Ù. º¸´Ù Æí¸®ÇÑ °æ¸ÅÁ¤º¸ Á¦°øÀ» À§ÇØ Áö¼ÓÀûÀ¸·Î °³¼±ÇϰڽÀ´Ï´Ù. ÀÌ¿ëÇØ Áּż­ °¨»çÇÕ´Ï´Ù.