·Î±×ÀÎ
78
´Ù¼¼´ë(ºô¶ó)
ÀÇÁ¤ºÎÁö¹æ¹ý¿ø °í¾çÁö¿ø
 °¨Á¤°¡307,000,000 ¿ø
 ÃÖÀú°¡(49%) 150,430,000 ¿ø
 º¸Áõ±Ý(10%) 15,043,000 ¿ø
 Ã»±¸¾×295,495,889 ¿ø
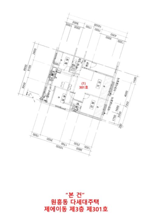
°æ±âµµ °í¾ç½Ã ´ö¾ç±¸ ¼­¿À¸ª·Î663¹ø±æ 66-14, ¿¡À̵¿ 3Ãþ301È£ (¿øÈﵿ,¿øÈﵿ´Ù¼¼´ëÁÖÅÃ)
°æ±âµµ °í¾ç½Ã ´ö¾ç±¸ ¿øÈﵿ 341-5
»ç°Ç¹øÈ£ 2024Ÿ°æ83574
°æ¸ÅÁ¾·ùºÎµ¿»ê°­Á¦°æ¸Å
¸Å°¢´ë»óÅäÁö ¹× °Ç¹°Àϰý ¸Å°¢
¸Å°¢±âÀÏ    2026.01.13(È­) 10:00 ÀÔÂû 26ÀÏÀü    
ÅäÁö¸éÀû63.27§³(19.14 Æò)
°Ç¹°¸éÀû67.23§³(20.34 Æò)
乫/¼ÒÀ¯ÀÚ¹ÚOO / ¹ÚOO
ä±ÇÀÚÁÖOOOOOOO
ÆäÀ̽ººÏ Æ®À§ÅÍ ±¸±Û+
īī¿À½ºÅ丮
īī¿ÀÅå sms¹®ÀÚº¸³»±â
 

±âÀϳ»¿ª

°æ°ú ³¯Â¥ Àú°¨ ÃÖÀú°¡ °á°ú
Á¢¼öÀÏ 2024-10-21 °æ¸ÅÁ¢¼ö
~1ÀÏ 
2024-10-22 °æ¸Å°³½Ã°áÁ¤
~99ÀÏ 
2025-01-28 ¹è´ç¿ä±¸Á¾±âÀÏ
~372ÀÏ 
2025-10-28 100%
307,000,000
À¯Âû
~407ÀÏ 
2025-12-02 70%
214,900,000
À¯Âû
~449ÀÏ 
2026-01-13 49%
150,430,000
ÁøÇà
¹°°Ç¸í¼¼¼­ ÇöȲÁ¶»ç¼­ ¹®°ÇÁ¢¼ö ¼Û´Þ³»¿ª

°¨Á¤Æò°¡ÇöȲ

¸ñ·Ï ÁÖ¼Ò ±¸Á¶/¿ëµµ/´ëÁö±Ç ¸éÀû ºñ°í
´ëÁö±Ç
¿øÈﵿ 341-5 323ºÐÀÇ 63.269 63.269 §³
(19.14Æò)
°Ç¹°
¿øÈﵿ 341-5 ¿¡À̵¿ 3Ãþ301È£ ö±ÙÄÜÅ©¸®Æ®±¸Á¶ 67.225 §³
(20.34Æò)
1) À§Ä¡/Á¦1Á¾ÀϹÝÁÖ°ÅÁö¿ª/Áö±¸´ÜÀ§°èȹ±¸¿ª/¹ö½ºÁ¤·ùÀå/ö±ÙÄÜÅ©¸®Æ®±¸Á¶/µµ½Ã°¡½º ´õº¸±â
°¨Á¤Æò°¡ ¿äÇ×Ç¥
1)À§Ä¡ ¹× ÁÖÀ§È¯°æ
º»°ÇÀº °æ±âµµ °í¾ç½Ã ´ö¾ç±¸ µµ³»µ¿ ¼ÒÀç "µµ·¡¿ïÁßÇб³" ºÏ¼­Ãø Àαٿ¡ À§Ä¡Çϸç, ÀαÙÁö¿ªÀº ´Üµ¶ÁÖÅÃ, °øµ¿ÁÖÅÃ, ±Ù¸°»ýȰ½Ã¼³ µîÀÌ ¼ÒÀçÇϸç Á¦¹Ý ÁÖÀ§È¯°æÀº º¸ÅëÀÓ.
2)±³Åë»óȲ
º»°Ç±îÁö Â÷·® Áø¡¤ÃâÀÔÀÌ °¡´ÉÇϸç, Àαٿ¡ ¹ö½ºÁ¤·ùÀåÀÌ ¼ÒÀçÇÏ´Â µî Á¦¹Ý ±³Åë½Ã¼³ ȯ°æÀº º¸ÅëÀÓ.
3)°Ç¹°ÀÇ ±¸Á¶
ö±ÙÄÜÅ©¸®Æ®±¸Á¶, ö±ÙÄÜÅ©¸®Æ®(ÆòÁöºØ)ÁöºØ Áö»ó3Ãþ ¿øÈﵿ´Ù¼¼´ëÁÖÅÃ
(ÅëĪ "µå¸²ºô¸®Áö")Á¦¿¡À̵¿ Á¦3Ãþ Á¦301È£·Î¼­,
(»ç¿ë½ÂÀÎÀÏ : 2018.02.20)
¿Üº® : Ä¡À庮µ¹ ¹× ÀϺΠ¼®ÀçºÙÀÓ ¸¶°¨ µî,
âȣ : ¼¦½Ãâȣ ¸¶°¨ µîÀÓ.
4)ÀÌ¿ë»óÅÂ
°øµ¿ÁÖÅÃ(´Ù¼¼´ëÁÖÅÃ)À¸·Î ÀÌ¿ë ÁßÀÓ.

5)¼³ºñ³»¿ª
±âº»ÀûÀÎ À§»ý ¹× ±Þ¡¤¹è¼ö¼³ºñ, µµ½Ã°¡½º¸¦ ÀÌ¿ëÇÑ ³­¹æ¼³ºñ µîÀ» °®Ãß¾úÀ½.
6)ÅäÁöÀÇ Çü»ó ¹× ÀÌ¿ë»óÅÂ
º»°ÇÀº ÀÎÁ¢µµ·Î ´ëºñ µî°í¡¤ÆòźÇÑ ¼¼ÀåÇü ÅäÁö·Î¼­, °ÇºÎÁö[°øµ¿ÁÖÅÃ(´Ù¼¼´ëÁÖÅÃ)]À¸·Î ÀÌ¿ë ÁßÀÓ.
7)ÀÎÁ¢ µµ·Î»óŵî
º»°ÇÀº ¼­ÃøÀ¸·Î ³ëÆø ¾à 6M, ³²ÃøÀ¸·Î ³ëÆø ¾à 4M ³»¿ÜÀÇ ¾Æ½ºÆÈÆ® Æ÷Àåµµ·Î¿Í °¢°¢ Á¢ÇÔ.
8)ÅäÁöÀÌ¿ë°èȹ ¹× Á¦ÇÑ»óÅÂ
Á¦1Á¾ÀϹÝÁÖ°ÅÁö¿ª(2013-07-30), Áö±¸´ÜÀ§°èȹ±¸¿ª(±Ã¸»Ãë¶ô), ¼Ò·Î3·ù(Æø 8m ¹Ì¸¸)(2013-07-30)(Á¢ÇÕ), °ú¹Ð¾ïÁ¦±Ç¿ª<¼öµµ±ÇÁ¤ºñ°èȹ¹ý>ÀÓ.
9)°øºÎ¿ÍÀÇ Â÷ÀÌ
¾ø À½.
10)±âŸÂü°í»çÇ×(ÀÓ´ë°ü·Ê ¹× ±âŸ)
¹Ì »ó ÀÓ.
Âü°í
»çÇ×
½Åûä±ÇÀÚ ÁÖÅõµ½Ãº¸Áõ°ø»ç°¡ 2025.07.09.ÀÚ Á¦ÃâÇÑ ÀμöÁ¶°Ç º¯°æ È®¾à¼­¿¡ µû¸£¸é ¸Å¼öÀο¡ ´ëÇÏ¿© ÀÜÁ¸ ÀÓ´ëÂ÷º¸Áõ±Ý¹Ýȯû±¸±ÇÀ» Æ÷±âÇϰí ÀÓÂ÷±Çµî±â ¸»¼Ò¿¡ µ¿ÀÇÇÔ.
ö±ÙÄÜÅ©¸®Æ®±¸Á¶ ö±ÙÄÜÅ©¸®Æ®(ÆòÁöºØ)ÁöºØ 3Ãþ °øµ¿ÁÖÅÃ(´Ù¼¼´ëÁÖÅÃ)

°ÇÃ๰ÇöȲ

¼ÒÀçÁö °æ±âµµ °í¾ç½Ã ´ö¾ç±¸ ¿øÈﵿ 341-5¹øÁö
´ëÁö¸éÀû 323§³
(97.88Æò)
¿¬¸éÀû 393.05§³
(119.11Æò)
°ÇÃà¸éÀû 185.75§³
(56.29Æò)
¿ëÀû·ü»êÁ¤
¿¬¸éÀû
393.05§³
(119.11Æò)
°ÇÆóÀ² 57.51% ¿ëÀû·ü 121.69%
Áö»óÃþ¼ö 3Ãþ ÁöÇÏÃþ¼ö  
ÁÖ¿ëµµ °øµ¿ÁÖÅà ±¸Á¶ ö±ÙÄÜÅ©¸®Æ®±¸Á¶
Âø°øÀÏÀÚ 2017.06.27 »ç¿ë½ÂÀÎÀÏÀÚ 2018.02.20


µî±âºÎµîº» ¿ä¾à(°Ç¹°)

  Á¢¼öÀÏÀÚ µî±â¸ñÀû/±Ç¸®ÀÚ ±Ç¸®±Ý¾× ±âÁØ
1 2021³â6¿ù23ÀÏ
¼ÒÀ¯±Ç
¹ÚOO
¼Ò¸ê
2 2022³â10¿ù11ÀÏ
¾Ð·ù
±¹
¼Ò¸ê±âÁØ
3 2022³â11¿ù22ÀÏ
¾Ð·ù
°íOO
¼Ò¸ê
4 2023³â7¿ù21ÀÏ
ÀÓÂ÷±Ç¼³Á¤
Á¤OO
280,000,000 ¼Ò¸ê
5 2024³â1¿ù17ÀÏ
¾Ð·ù
±¹OOOO
¼Ò¸ê
6 2024³â10¿ù22ÀÏ
°­Á¦°æ¸Å
ÁÖOOOO
¼Ò¸ê

ÀÓÂ÷ÀÎÇöȲ (¹è´ç¿ä±¸Á¾±âÀÏ: 2025-01-28)

ÀÓÂ÷ÀÎ ¿ëµµ/Á¡À¯ º¸Áõ±Ý/¿ù¼¼ ´ëÇ×·Â
ÀüÀÔÀÏ/È®Á¤ÀÏ ¹è´ç¿ä±¸ ºñ°í
½ÅOO ÀüºÎ 5,000,000
[¿ù]300,000
X
2024.07.03.
2025.01.17. 2024.07.01.~
Á¤OO °Ç¹°Àüü 280,000,000
O
2021.06.21.
2021.05.21.
2021.06.21.~
ÁÖOOOOOOO °Ç¹°Àüü 280,000,000
O
2021.06.21.
2021.05.21.
2025.01.18. 2021.06.21.~
ºñ°í
(¸Å°¢¹°°Ç
¸í¼¼¼­)
Á¤°æ¸ð: ÀÓ´ëÂ÷º¸Áõ±Ý¹Ýȯä±ÇÀº ½Åûä±ÇÀÚ ÁÖÅõµ½Ãº¸Áõ°ø»ç¿¡ ½Â°èµÊ(2025.01.18.ÀÚ ±Ç¸®½Å°í ¹× ¹è´ç¿ä±¸¼­ Á¦Ãâ).

¿©ÀÇÁÖ°æ¸Å Á¶¾ð ÇÑ ¸¶µð

¼±¼øÀ§ ÀÓÂ÷±Çµî±â°¡ µÇ¾î ÀÖ½À´Ï´Ù
´ëÇ×·ÂÀÌ ÀÖ´Â ¼±¼øÀ§ ÀÓÂ÷±Çµî±â ±Ç¸®ÀÚ°¡ ¹è´çÀ» Àü¾× ¹ÞÁö ¸øÇÒ °æ¿ì ³«ÂûÀÚ°¡ ÀÜ¿© º¸Áõ±ÝÀ» ÀμöÇØ¾ßÇÏ´Â °æ¿ìµµ ÀÖ½À´Ï´Ù.

ÁÖÀÇ»çÇ× (ÃÖ¼±¼øÀ§ ¼³Á¤ÀÏ: 2022.10.11. ¾Ð·ù ¼³Á¤)

¸Å°¢À¸·Î ¼Ò¸êµÇÁö ¾Ê´Â µî±âºÎ±Ç¸®:
¸Å°¢À¸·Î ¼³Á¤µÈ °ÍÀ¸·Î º¸´Â Áö»ó±Ç:
½Åûä±ÇÀÚ ÁÖÅõµ½Ãº¸Áõ°ø»ç°¡ 2025.07.09.ÀÚ Á¦ÃâÇÑ ÀμöÁ¶°Ç º¯°æ È®¾à¼­¿¡ µû¸£¸é ¸Å¼öÀο¡ ´ëÇÏ¿© ÀÜÁ¸ ÀÓ´ëÂ÷º¸Áõ±Ý¹Ýȯ û±¸±ÇÀ» Æ÷±âÇϰí ÀÓÂ÷±Çµî±â ¸»¼Ò¿¡ µ¿ÀÇÇÔ.
¡Ø¹Ì³³°ü¸®ºñ(°ø¿ë) Àμö¿©ºÎ¸¦ ÀÔÂû Àü¿¡ È®ÀÎÇϽñ⠹ٶø´Ï´Ù

 

Áö¿ªºÐ¼®

ÁöÇÏö¸í Á÷¼±°Å¸®

Çб³¸í ÀüÈ­¹øÈ£ ÁÖ¼Ò Á÷¼±°Å¸®

¹ý¿ø

ÀÇÁ¤ºÎÁö¹æ¹ý¿ø °í¾çÁö¿ø (104-13)°æ±âµµ °í¾ç½Ã Àϻ굿±¸ Àå¹é·Î 209
´ëÇ¥ : 031)920-6114, ¾ß°£ : 031)920-6550, ÆÑ½º : 031)920-6119
°üÇÒÁö¿ª : °í¾ç½Ã, ÆÄÁÖ½Ã

µî±â¼Ò ÀÇÁ¤ºÎÁö¹æ¹ý¿ø °í¾çÁö¿ø °í¾çµî±â¼Ò (´ëÇ¥:1544-0773, ÆÑ½º:(031)920-5959, °æ±âµµ °í¾ç½Ã Àϻ굿±¸ Áß¾Ó·Î1275¹ø±æ 38-30 (ÀåÇ×µ¿ 773))
¼¼¹«¼­ µ¿°í¾ç¼¼¹«¼­ (´ëÇ¥:031-900-62, ÆÑ½º:031-963-2979, °æ±âµµ °í¾ç½Ã ´ö¾ç±¸ È­Áß·Î 104¹ø±æ 16(È­Á¤µ¿))

Àαٳ«ÂûÅë°è

±â°£ ¸Å°¢°Ç¼ö Æò±Õ°¨Á¤°¡
Æò±Õ¸Å°¢°¡
¸Å°¢°¡À²
Æò±ÕÀ¯Âû¼ö
3°³¿ù 3°Ç 153,000,000¿ø
86,410,000¿ø
55%
2ȸ
6°³¿ù 8°Ç 186,375,000¿ø
113,670,000¿ø
61%
2ȸ
12°³¿ù 10°Ç 184,300,000¿ø
118,520,700¿ø
64%
1.8ȸ


º» °æ¸ÅÁ¤º¸´Â ¹ý¿øÀÚ·á¿Í ÀÏÄ¡Çϵµ·Ï ÇÏ¿´À¸³ª ±Ç¸®»çÇ׺¯µ¿, ÀÔ·ÂÂø¿À µîÀÇ ¿øÀÎÀ¸·Î »ç½Ç°ú ´Ù¸¦ ¼ö ÀÖ½À´Ï´Ù. ÀÌ¿ë¾à°ü¿¡ ÀǰЏéÃ¥Á¶°ÇÀ¸·Î Á¦°øµÊÀ» ¾Ë¸®¸ç, °æ¸ÅÀÔÂû½Ã ¹Ýµå½Ã °ü·Ã °øºÎ¸¦ ÀçÈ®ÀÎÇϽñ⠹ٶø´Ï´Ù. º¸´Ù Æí¸®ÇÑ °æ¸ÅÁ¤º¸ Á¦°øÀ» À§ÇØ Áö¼ÓÀûÀ¸·Î °³¼±ÇϰڽÀ´Ï´Ù. ÀÌ¿ëÇØ Áּż­ °¨»çÇÕ´Ï´Ù.