·Î±×ÀÎ
49
¿ÀÇǽºÅÚ
ÀÎõÁö¹æ¹ý¿ø
 °¨Á¤°¡283,000,000 ¿ø
 ÃÖÀú°¡(49%) 138,670,000 ¿ø
 º¸Áõ±Ý(10%) 13,867,000 ¿ø
 Ã»±¸¾×294,000,000 ¿ø
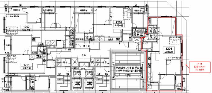
ÀÎõ±¤¿ª½Ã ¹ÌÃßȦ±¸ µµÈ­µ¿ 618-3 žŬ·¡½Ã¾Æ 12Ãþ1204È£
»ç°Ç¹øÈ£ 2025Ÿ°æ509467
°æ¸ÅÁ¾·ùºÎµ¿»ê°­Á¦°æ¸Å
¸Å°¢´ë»óÅäÁö ¹× °Ç¹°Àϰý ¸Å°¢
¸Å°¢±âÀÏ    2026.01.07(¼ö) 10:00 ÀÔÂû 13ÀÏÀü    
ÅäÁö¸éÀû11.37§³(3.44 Æò)
°Ç¹°¸éÀû83.92§³(25.39 Æò)
乫/¼ÒÀ¯ÀÚäOO / äOO
ä±ÇÀÚÁÖOOOOOOO
ÆäÀ̽ººÏ Æ®À§ÅÍ ±¸±Û+
īī¿À½ºÅ丮
īī¿ÀÅå sms¹®ÀÚº¸³»±â
 

±âÀϳ»¿ª

°æ°ú ³¯Â¥ Àú°¨ ÃÖÀú°¡ °á°ú
Á¢¼öÀÏ 2025-05-22 °æ¸ÅÁ¢¼ö
~7ÀÏ 
2025-05-29 °æ¸Å°³½Ã°áÁ¤
~81ÀÏ 
2025-08-11 ¹è´ç¿ä±¸Á¾±âÀÏ
~158ÀÏ 
2025-10-27 100%
283,000,000
À¯Âû
~188ÀÏ 
2025-11-26 70%
198,100,000
À¯Âû
~230ÀÏ 
2026-01-07 49%
138,670,000
ÁøÇà
¹°°Ç¸í¼¼¼­ ÇöȲÁ¶»ç¼­ ¹®°ÇÁ¢¼ö ¼Û´Þ³»¿ª

°¨Á¤Æò°¡ÇöȲ

¸ñ·Ï ÁÖ¼Ò ±¸Á¶/¿ëµµ/´ëÁö±Ç ¸éÀû ºñ°í
´ëÁö±Ç
µµÈ­µ¿ 618-3 680.6ºÐÀÇ 11.37 11.37 §³
(3.44Æò)
°Ç¹°
µµÈ­µ¿ 618-3 12Ãþ1204È£ ö±ÙÄÜÅ©¸®Æ®Á¶ 83.92 §³
(25.39Æò)
Âü°í
»çÇ×

º»°ÇÀº ´ë·Îº¯¿¡ À§Ä¡Çϸç

°ÇÃ๰ÇöȲ

¼ÒÀçÁö ÀÎõ±¤¿ª½Ã ¹ÌÃßȦ±¸ µµÈ­µ¿ 618-3¹øÁö
´ëÁö¸éÀû 680.6§³
(206.24Æò)
¿¬¸éÀû 7455.83§³
(2259.34Æò)
°ÇÃà¸éÀû 527.78§³
(159.93Æò)
¿ëÀû·ü»êÁ¤
¿¬¸éÀû
6802.55§³
(2061.38Æò)
°ÇÆóÀ² 77.55% ¿ëÀû·ü 999.49%
Áö»óÃþ¼ö 18Ãþ ÁöÇÏÃþ¼ö 1Ãþ
ÁÖ¿ëµµ ¾÷¹«½Ã¼³ ±¸Á¶ ö±ÙÄÜÅ©¸®Æ®±¸Á¶
Âø°øÀÏÀÚ 2018.01.09 »ç¿ë½ÂÀÎÀÏÀÚ 2019.01.09
°ÇÃ๰Ãþº°ÇöȲ [º¸±â]


±¹ÅäºÎ½Ç°Å·¡°¡ ÀÎõ±¤¿ª½Ã ¹ÌÃßȦ±¸ µµÈ­µ¿

¡Ü ¸Å¸Å

¸éÀû(§³), ±Ý¾×(¸¸¿ø)

¡Ü Àü¼¼

¸éÀû(§³), ±Ý¾×(¸¸¿ø)

°è¾àÀϰǹ°¸íĪÃþÀü¿ëº¸Áõ±Ý¿ù¼¼°ÇÃà
25.11.05žŬ·¡½Ã¾Æ1680.3718,00002019
25.10.18žŬ·¡½Ã¾Æ1784.232,000902019
25.09.11žŬ·¡½Ã¾Æ1184.2314,500322019
25.09.06žŬ·¡½Ã¾Æ984.232,000902019
25.08.21žŬ·¡½Ã¾Æ477.7415,500252019
¢Ñ ´õº¸±â

µî±âºÎµîº» ¿ä¾à(°Ç¹°)

  Á¢¼öÀÏÀÚ µî±â¸ñÀû/±Ç¸®ÀÚ ±Ç¸®±Ý¾× ±âÁØ
1 2019³â9¿ù18ÀÏ
¼ÒÀ¯±Ç
äOO
¼Ò¸ê
2 2022³â7¿ù6ÀÏ
¾Ð·ù
±¹
¼Ò¸ê±âÁØ
3 2022³â11¿ù17ÀÏ
°¡¾Ð·ù
ÁÖOOOO
475,000,000 ¼Ò¸ê
4 2023³â5¿ù18ÀÏ
¾Ð·ù
±¹
¼Ò¸ê
5 2023³â10¿ù18ÀÏ
ÀÓÂ÷±Ç¼³Á¤
¹ÚOO
294,000,000 ¼Ò¸ê
6 2025³â5¿ù30ÀÏ
°­Á¦°æ¸Å
ÁÖOOOO
¼Ò¸ê

ÀÓÂ÷ÀÎÇöȲ (¹è´ç¿ä±¸Á¾±âÀÏ: 2025-08-11)

ÀÓÂ÷ÀÎ ¿ëµµ/Á¡À¯ º¸Áõ±Ý/¿ù¼¼ ´ëÇ×·Â
ÀüÀÔÀÏ/È®Á¤ÀÏ ¹è´ç¿ä±¸ ºñ°í
¹ÚOO 294,000,000
O
2021. 12. 23.
2021. 11. 11.
2021. 12. 23.~
ÁÖOOOOOOOOOOOOOOO ÀüºÎ 294,000,000
O
2021. 12. 23.
2021. 11. 11.
2025. 8. 11. 2021. 12. 23.~2023. 12. 23.
ºñ°í
(¸Å°¢¹°°Ç
¸í¼¼¼­)
- ¹ÚÀçÇÑ: ÁÖÅÃÀÓÂ÷±Çµî±â±ÇÀڷμ­ ÁÖÅÃÀÓÂ÷±Çµî±âÀÏÀº 2023. 10. 18. ÀÓ - ÁÖÅõµ½Ãº¸Áõ°ø»ç(ÀÓÂ÷ÀÎ ¹ÚÀçÇÑ): °æ¸Å½Åû±ÇÀÚÀ̸ç ÁÖÅÃÀÓ´ëÂ÷º¸È£¹ý Á¦3Á¶ÀÇ2 Á¦7Ç× Á¦9È£ÀÇ ±â°üÀ¸·Î ÀÓÂ÷ÀÎ ¹ÚÀçÇÑÀ¸·Î

¿©ÀÇÁÖ°æ¸Å Á¶¾ð ÇÑ ¸¶µð

¼±¼øÀ§ ÀÓÂ÷±Çµî±â°¡ µÇ¾î ÀÖ½À´Ï´Ù
´ëÇ×·ÂÀÌ ÀÖ´Â ¼±¼øÀ§ ÀÓÂ÷±Çµî±â ±Ç¸®ÀÚ°¡ ¹è´çÀ» Àü¾× ¹ÞÁö ¸øÇÒ °æ¿ì ³«ÂûÀÚ°¡ ÀÜ¿© º¸Áõ±ÝÀ» ÀμöÇØ¾ßÇÏ´Â °æ¿ìµµ ÀÖ½À´Ï´Ù.

ÁÖÀÇ»çÇ× (ÃÖ¼±¼øÀ§ ¼³Á¤ÀÏ: 2022. 7. 6. ¾Ð·ù ¼³Á¤)

¸Å°¢À¸·Î ¼Ò¸êµÇÁö ¾Ê´Â µî±âºÎ±Ç¸®: À»±¸ ¼øÀ§ 5¹ø ÁÖÅÃÀÓÂ÷±Çµî±â(´Ù¸¸ ÁÖÅõµ½Ãº¸Áõ°ø»çÀÇ ¸»¼Òµ¿ÀÇ È®¾à¼­°¡ Á¦ÃâµÊ)
¸Å°¢À¸·Î ¼³Á¤µÈ °ÍÀ¸·Î º¸´Â Áö»ó±Ç:
¡Ø¹Ì³³°ü¸®ºñ(°ø¿ë) Àμö¿©ºÎ¸¦ ÀÔÂû Àü¿¡ È®ÀÎÇϽñ⠹ٶø´Ï´Ù

 

Áö¿ªºÐ¼®

ÁöÇÏö¸í Á÷¼±°Å¸®

Çб³¸í ÀüÈ­¹øÈ£ ÁÖ¼Ò Á÷¼±°Å¸®

¹ý¿ø

ÀÎõÁö¹æ¹ý¿ø (222-20)ÀÎõ±¤¿ª½Ã ¹ÌÃßȦ±¸ ¼Ò¼º·Î 163¹ø±æ 17(ÇÐÀ͵¿)
´ëÇ¥ : 032)860-1113~4
°üÇÒÁö¿ª : Áß±¸, µ¿±¸, ³²±¸, ¿¬¼ö±¸, ³²µ¿±¸, ºÎÆò±¸, °è¾ç±¸, ¼­±¸, ¿ËÁø±º, °­È­±º

µî±â¼Ò ÀÎõÁö¹æ¹ý¿ø º»¿ø µî±â±¹ (´ëÇ¥:1544-0773, ÆÑ½º:(032)620-9099, ÀÎõ±¤¿ª½Ã ¹ÌÃßȦ±¸ °æ¿ø´ë·Î 881(Á־ȵ¿ 983))
¼¼¹«¼­ ÀÎõ¼¼¹«¼­ (´ëÇ¥:032-770-02, ÆÑ½º:032-777-8104, ÀÎõ±¤¿ª½Ã µ¿±¸ ¿ì°¢·Î 75 (⿵µ¿))

Àαٳ«ÂûÅë°è

±â°£ ¸Å°¢°Ç¼ö Æò±Õ°¨Á¤°¡
Æò±Õ¸Å°¢°¡
¸Å°¢°¡À²
Æò±ÕÀ¯Âû¼ö
3°³¿ù 287°Ç 204,200,348¿ø
132,732,105¿ø
66%
1.7ȸ
6°³¿ù 527°Ç 203,739,412¿ø
124,934,516¿ø
61%
2.2ȸ
12°³¿ù 792°Ç 208,823,005¿ø
131,689,370¿ø
63%
2.1ȸ


º» °æ¸ÅÁ¤º¸´Â ¹ý¿øÀÚ·á¿Í ÀÏÄ¡Çϵµ·Ï ÇÏ¿´À¸³ª ±Ç¸®»çÇ׺¯µ¿, ÀÔ·ÂÂø¿À µîÀÇ ¿øÀÎÀ¸·Î »ç½Ç°ú ´Ù¸¦ ¼ö ÀÖ½À´Ï´Ù. ÀÌ¿ë¾à°ü¿¡ ÀǰЏéÃ¥Á¶°ÇÀ¸·Î Á¦°øµÊÀ» ¾Ë¸®¸ç, °æ¸ÅÀÔÂû½Ã ¹Ýµå½Ã °ü·Ã °øºÎ¸¦ ÀçÈ®ÀÎÇϽñ⠹ٶø´Ï´Ù. º¸´Ù Æí¸®ÇÑ °æ¸ÅÁ¤º¸ Á¦°øÀ» À§ÇØ Áö¼ÓÀûÀ¸·Î °³¼±ÇϰڽÀ´Ï´Ù. ÀÌ¿ëÇØ Áּż­ °¨»çÇÕ´Ï´Ù.