·Î±×ÀÎ
81
±Ù¸°»ó°¡
¼ö¿øÁö¹æ¹ý¿ø ¼º³²Áö¿ø
 °¨Á¤°¡52,000,000 ¿ø
 ÃÖÀú°¡(49%) 25,480,000 ¿ø
 º¸Áõ±Ý(10%) 2,548,000 ¿ø
 Ã»±¸¾×111,460,000 ¿ø
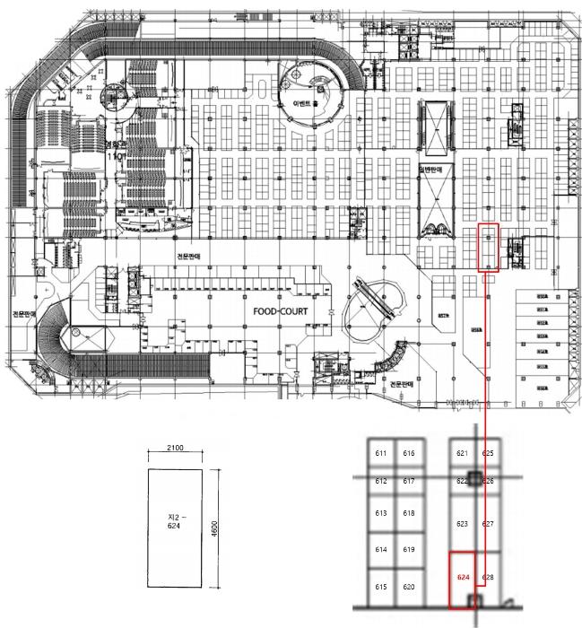
°æ±âµµ ¼º³²½Ã ºÐ´ç±¸ ¼º³²´ë·Î925¹ø±æ 16, Áö2Ãþ624È£ (¾ßžµ¿,¼º³²(ºÐ´ç)¿©°´ÀÚµ¿Â÷Å͹̳ι׺¹Çհǹ°)
°æ±âµµ ¼º³²½Ã ºÐ´ç±¸ ¾ßžµ¿ 341
»ç°Ç¹øÈ£ 2024Ÿ°æ4416
°æ¸ÅÁ¾·ùºÎµ¿»êÀÓÀǰæ¸Å
¸Å°¢´ë»óÅäÁö ¹× °Ç¹°Àϰý ¸Å°¢
¸Å°¢±âÀÏ    2026.01.12(¿ù) 10:00 ÀÔÂû 26ÀÏÀü    
ÅäÁö¸éÀû4.32§³(1.31 Æò)
°Ç¹°¸éÀû9.66§³(2.92 Æò)
乫/¼ÒÀ¯ÀÚÇÑOOOOOO OOOO / ÁÖOOO OOOOO
ä±ÇÀÚ¾ÈOO
ÆäÀ̽ººÏ Æ®À§ÅÍ ±¸±Û+
īī¿À½ºÅ丮
īī¿ÀÅå sms¹®ÀÚº¸³»±â
 

±âÀϳ»¿ª

°æ°ú ³¯Â¥ Àú°¨ ÃÖÀú°¡ °á°ú
Á¢¼öÀÏ 2024-07-16 °æ¸ÅÁ¢¼ö
~12ÀÏ 
2024-07-28 °æ¸Å°³½Ã°áÁ¤
~83ÀÏ 
2024-10-07 ¹è´ç¿ä±¸Á¾±âÀÏ
~468ÀÏ 
2025-10-27 100%
52,000,000
À¯Âû
~503ÀÏ 
2025-12-01 70%
36,400,000
À¯Âû
~545ÀÏ 
2026-01-12 49%
25,480,000
ÁøÇà
¹°°Ç¸í¼¼¼­ ÇöȲÁ¶»ç¼­ ¹®°ÇÁ¢¼ö ¼Û´Þ³»¿ª

°¨Á¤Æò°¡ÇöȲ

¸ñ·Ï ÁÖ¼Ò ±¸Á¶/¿ëµµ/´ëÁö±Ç ¸éÀû ºñ°í
´ëÁö±Ç
¾ßžµ¿ 341 27308.1ºÐÀÇ 4.3233 4.3233 §³
(1.31Æò)
°Ç¹°
¾ßžµ¿ 341 Áö2Ãþ624È£ ö°ñö±ÙÄÜÅ©¸®Æ®Á¶ 9.66 §³
(2.92Æò)
1) À§Ä¡/µµ½ÃÁö¿ª/Á߽ɻó¾÷Áö¿ª/Áö±¸´ÜÀ§°èȹ±¸¿ª/ÁÖÂ÷Àå/³ë¼±¹ö½ºÁ¤·ùÀå/°£¼±µµ·Î/ö±ÙÄÜÅ©¸®Æ®±¸Á¶/½º¶óºêÁöºØ ´õº¸±â
°¨Á¤Æò°¡ ¿äÇ×Ç¥
1)À§Ä¡ ¹× ÁÖÀ§È¯°æ
º»°ÇÀº °æ±âµµ ¼º³²½Ã ºÐ´ç±¸ ¾ßžµ¿ ¼ÒÀç "¾ßž¿ª(¼öÀκд缱)" ºÏ¼­Ãø Àαٿ¡ À§Ä¡Çϰí, ÁÖÀ§´Â ¾ÆÆÄÆ®´ÜÁö, ±Ù¸°»ýȰ½Ã¼³, ´ëÇü ÆÇ¸Å½Ã¼³, °ø¿ø µîÀÌ ¼ÒÀçÇÏ´Â Áö¿ªÀ¸·Î Á¦¹Ý ÁÖÀ§È¯°æÀº º¸Åë½Ã µÊ.
2)±³Åë»óȲ
º»°Ç±îÁö Â÷·® ÁøÃâÀÔÀÌ °¡´ÉÇϰí, Àαٿ¡ ³ë¼±¹ö½ºÁ¤·ùÀå ¹× ¾ßž¿ª(¼öÀκд缱) µîÀÌ ¼ÒÀçÇÏ´Â µî Á¦¹Ý ±³Åë»óȲÀº º¸Åë½Ã µÊ.
3)°Ç¹°ÀÇ ±¸Á¶
ö°ñö±ÙÄÜÅ©¸®Æ®±¸Á¶ Æã½º¶óºêÁöºØ ÁöÇÏ4Ãþ Áö»ó7Ãþ °Ç¹° ³» Á¦Áö2Ãþ Á¦624È£·Î¼­
¿Üº® : º¹ÇÕÆÇ³Ú ¸¶°¨, ÀϺΠ¼®Àç ºÙÀÓ ¸¶°¨ µî ÀÓ.
âȣ : ¼¦½Ã âȣ ÀÓ.
4)ÀÌ¿ë»óÅÂ
ÆÇ¸Å ¹× ¿µ¾÷½Ã¼³(¿ÀÇÂÇü »ó°¡)·Î ÀÌ¿ëÁßÀ̸ç, ÇöȲ °ø½Ç»óÅÂÀÓ.
5)¼³ºñ³»¿ª
±âº»ÀûÀÎ À§»ý¼³ºñ, ¼Ò¹æ¼³ºñ, ½Â°­±â¼³ºñ, ÁÖÂ÷Àå¼³ºñ µîÀÌ °®Ãß¾îÁ® ÀÖÀ½.
6)ÅäÁöÀÇ Çü»ó ¹× ÀÌ¿ë»óÅÂ
µî°í ÆòźÇÑ ¼¼ÀåÇüÀÇ ÅäÁö·Î¼­, »ó¾÷¿ë °ÇºÎÁö·Î ÀÌ¿ëÁßÀÓ.
7)ÀÎÁ¢ µµ·Î»óŵî
º»°Ç µ¿ÃøÀ¸·Î ³ëÆø ¾à 50m Æ÷Àåµµ·Î, ºÏÃøÀ¸·Î ³ëÆø ¾à 30m, ³²Ãø ¹× ¼­ÃøÀ¸·Î ³ëÆø ¾à 25mÀÇ Æ÷Àåµµ·Î¿Í Á¢ÇÔ.
8)ÅäÁöÀÌ¿ë°èȹ ¹× Á¦ÇÑ»óÅÂ
µµ½ÃÁö¿ª, Á߽ɻó¾÷Áö¿ª, Áö±¸´ÜÀ§°èȹ±¸¿ª(ºÐ´ç), ´ë·Î3·ù(Æø 25m-30m)(º¸Á¶°£¼±µµ·Î)(Á¢ÇÕ), ÀÚµ¿Â÷Á¤·ùÀå, Áß·Î1·ù(Æø 20m-25m)(Áý»êµµ·Î)(Á¢ÇÕ), °¡Ãà»çÀ°Á¦Çѱ¸¿ª<°¡ÃàºÐ´¢ÀÇ °ü¸® ¹× À̿뿡 °üÇÑ ¹ý·ü>, ºñÇà¾ÈÀüÁ¦6±¸¿ª(Àü¼ú)<±º»ç±âÁö ¹× ±º»ç½Ã¼³ º¸È£¹ý>, ´ë±âȯ°æ±ÔÁ¦Áö¿ª<´ë±âȯ°æº¸Àü¹ý>, µµ½Ã±³ÅëÁ¤ºñÁö¿ª<µµ½Ã±³ÅëÁ¤ºñÃËÁø¹ý>, º¥Ã³±â¾÷À°¼ºÃËÁøÁö±¸<º¥Ã³±â¾÷À°¼º¿¡ °üÇÑ Æ¯º°Á¶Ä¡¹ý>, °ú¹Ð¾ïÁ¦±Ç¿ª<¼öµµ±ÇÁ¤ºñ°èȹ¹ý>, (ÇѰ­)Æó±â¹°¸Å¸³½Ã¼³ ¼³Ä¡Á¦ÇÑÁö¿ª<ÇѰ­¼ö°è »ó¼ö¿ø¼öÁú°³¼± ¹× ÁÖ¹ÎÁö¿ø µî¿¡ °üÇÑ ¹ý·ü>.
9)°øºÎ¿ÍÀÇ Â÷ÀÌ
-.
10)±âŸÂü°í»çÇ×(ÀÓ´ë°ü·Ê ¹× ±âŸ)
-.
Âü°í
»çÇ×
ÆÇ¸Å ¹× ¿µ¾÷½Ã¼³(¿ÀÇÂÇü»ó°¡)À̸ç, °¨Á¤Æò°¡½Ã °ø½Ç»óÅÂÀÓ

°ÇÃ๰ÇöȲ

¼ÒÀçÁö °æ±âµµ ¼º³²½Ã ºÐ´ç±¸ ¾ßžµ¿ 341¹øÁö
´ëÁö¸éÀû 27308.1§³
(8275.18Æò)
¿¬¸éÀû 205754.26§³
(62349.78Æò)
°ÇÃà¸éÀû 19553.13§³
(5925.19Æò)
¿ëÀû·ü»êÁ¤
¿¬¸éÀû
40701.83§³
(12333.89Æò)
°ÇÆóÀ² 71.6% ¿ëÀû·ü 149.05%
Áö»óÃþ¼ö 7Ãþ ÁöÇÏÃþ¼ö 4Ãþ
ÁÖ¿ëµµ ÆÇ¸Å½Ã¼³ ±¸Á¶ ÀϹÝö°ñ±¸Á¶
Âø°øÀÏÀÚ 1995.05. »ç¿ë½ÂÀÎÀÏÀÚ 2003.01.30
°ÇÃ๰Ãþº°ÇöȲ [º¸±â]


µî±âºÎµîº» ¿ä¾à(°Ç¹°)

  Á¢¼öÀÏÀÚ µî±â¸ñÀû/±Ç¸®ÀÚ ±Ç¸®±Ý¾× ±âÁØ
1 2016³â7¿ù22ÀÏ
¼ÒÀ¯±Ç
(OOOO
¼Ò¸ê
2 2003³â5¿ù3ÀÏ
±ÙÀú´ç±Ç
¾ÈOO
111,460,000 ¼Ò¸ê±âÁØ
3 2016³â8¿ù29ÀÏ
¾Ð·ù
¼ºOOOO
¼Ò¸ê
4 2017³â4¿ù18ÀÏ
¾Ð·ù
±¹
¼Ò¸ê
5 2017³â6¿ù30ÀÏ
°­Á¦°ü¸®½Åû
ÀÓOO
¼Ò¸ê
6 2024³â7¿ù29ÀÏ
ÀÓÀǰæ¸Å
¾ÈOO
¼Ò¸ê

ÀÓÂ÷ÀÎÇöȲ (¹è´ç¿ä±¸Á¾±âÀÏ: 2024-10-07)


Á¶»çµÈ ÀÓÂ÷³»¿ªÀÌ ¾ø½À´Ï´Ù


¿©ÀÇÁÖ°æ¸Å Á¶¾ð ÇÑ ¸¶µð


ÁÖÀÇ»çÇ× (ÃÖ¼±¼øÀ§ ¼³Á¤ÀÏ: 2003.05.03. ±ÙÀú´ç±Ç ¼³Á¤)

¸Å°¢À¸·Î ¼Ò¸êµÇÁö ¾Ê´Â µî±âºÎ±Ç¸®:
¸Å°¢À¸·Î ¼³Á¤µÈ °ÍÀ¸·Î º¸´Â Áö»ó±Ç:
ÆÇ¸Å ¹× ¿µ¾÷½Ã¼³(¿ÀÇÂÇü»ó°¡)À̸ç, °¨Á¤Æò°¡½Ã °ø½Ç»óÅÂÀÓ
¡Ø¹Ì³³°ü¸®ºñ(°ø¿ë) Àμö¿©ºÎ¸¦ ÀÔÂû Àü¿¡ È®ÀÎÇϽñ⠹ٶø´Ï´Ù

 

Áö¿ªºÐ¼®

ÁöÇÏö¸í Á÷¼±°Å¸®

Çб³¸í ÀüÈ­¹øÈ£ ÁÖ¼Ò Á÷¼±°Å¸®

¹ý¿ø

¼ö¿øÁö¹æ¹ý¿ø ¼º³²Áö¿ø (131-43)°æ±âµµ ¼º³²½Ã ¼öÁ¤±¸ »ê¼º´ë·Î 451 (´Ü´ëµ¿)
´ëÇ¥ : 031)737-1558, ¾ß°£ : 031)737-1120
°üÇÒÁö¿ª : ¼º³²½Ã, ±¤ÁÖ½Ã, Çϳ²½Ã

µî±â¼Ò ¼ö¿øÁö¹æ¹ý¿ø ¼º³²Áö¿ø ºÐ´çµî±â¼Ò (´ëÇ¥:1544-0773, ÆÑ½º:(031)709-1164, °æ±âµµ ¼º³²½Ã ºÐ´ç±¸ ºÒÁ¤·Î406¹ø±æ 21 (¼­Çöµ¿ 318))
¼¼¹«¼­ ºÐ´ç¼¼¹«¼­ (´ëÇ¥:031-219-92, ÆÑ½º:031-781-6851, °æ±âµµ ¼º³²½Ã ºÐ´ç±¸ Ȳ»õ¿ï·Î 311¹ø±æ 11)

Àαٳ«ÂûÅë°è

±â°£ ¸Å°¢°Ç¼ö Æò±Õ°¨Á¤°¡
Æò±Õ¸Å°¢°¡
¸Å°¢°¡À²
Æò±ÕÀ¯Âû¼ö
3°³¿ù 1°Ç 7,746,894,200¿ø
6,321,000,000¿ø
82%
2ȸ
6°³¿ù 2°Ç 3,998,447,100¿ø
3,275,495,000¿ø
87%
1.5ȸ
12°³¿ù 5°Ç 16,846,045,320¿ø
14,724,940,020¿ø
60%
3.6ȸ


º» °æ¸ÅÁ¤º¸´Â ¹ý¿øÀÚ·á¿Í ÀÏÄ¡Çϵµ·Ï ÇÏ¿´À¸³ª ±Ç¸®»çÇ׺¯µ¿, ÀÔ·ÂÂø¿À µîÀÇ ¿øÀÎÀ¸·Î »ç½Ç°ú ´Ù¸¦ ¼ö ÀÖ½À´Ï´Ù. ÀÌ¿ë¾à°ü¿¡ ÀǰЏéÃ¥Á¶°ÇÀ¸·Î Á¦°øµÊÀ» ¾Ë¸®¸ç, °æ¸ÅÀÔÂû½Ã ¹Ýµå½Ã °ü·Ã °øºÎ¸¦ ÀçÈ®ÀÎÇϽñ⠹ٶø´Ï´Ù. º¸´Ù Æí¸®ÇÑ °æ¸ÅÁ¤º¸ Á¦°øÀ» À§ÇØ Áö¼ÓÀûÀ¸·Î °³¼±ÇϰڽÀ´Ï´Ù. ÀÌ¿ëÇØ Áּż­ °¨»çÇÕ´Ï´Ù.