·Î±×ÀÎ
22
¾ÆÆÄÆ®
ÀÇÁ¤ºÎÁö¹æ¹ý¿ø °í¾çÁö¿ø
 °¨Á¤°¡200,000,000 ¿ø
 ÃÖÀú°¡(70%) 140,000,000 ¿ø
 º¸Áõ±Ý(10%) 14,000,000 ¿ø
 Ã»±¸¾×110,243,115 ¿ø
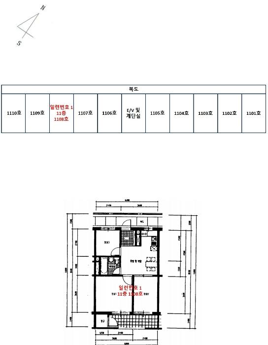
°æ±âµµ °í¾ç½Ã Àϻ꼭±¸ źÇö·Î 64, 701µ¿ 11Ãþ1108È£ (źÇöµ¿,źÇö¸¶À»¾ÆÆÄÆ®)
°æ±âµµ °í¾ç½Ã Àϻ꼭±¸ źÇöµ¿ 1480
»ç°Ç¹øÈ£ 2024Ÿ°æ71229
Áߺ¹»ç°ÇÁߺ¹ 2024Ÿ°æ6492,
°æ¸ÅÁ¾·ùºÎµ¿»êÀÓÀǰæ¸Å
¸Å°¢´ë»óÅäÁö ¹× °Ç¹°Àϰý ¸Å°¢
¸Å°¢±âÀÏ    2025.11.26(¼ö) 10:00 ÀÔÂû 10ÀÏÀü    
ÅäÁö¸éÀû29.27§³(8.85 Æò)
°Ç¹°¸éÀû50.28§³(15.21 Æò)
乫/¼ÒÀ¯ÀÚ±ÇOO¿Ü 1¸í / ±ÇOO¿Ü 1¸í
ä±ÇÀÚÇÇOOOOOOOOOOO OOOO(OOOOOOOO OOOOOO)¿Ü 1¸í
ÆäÀ̽ººÏ Æ®À§ÅÍ ±¸±Û+
īī¿À½ºÅ丮
īī¿ÀÅå sms¹®ÀÚº¸³»±â
 

±âÀϳ»¿ª

°æ°ú ³¯Â¥ Àú°¨ ÃÖÀú°¡ °á°ú
Á¢¼öÀÏ 2024-05-27 °æ¸ÅÁ¢¼ö
~1ÀÏ 
2024-05-28 °æ¸Å°³½Ã°áÁ¤
~84ÀÏ 
2024-08-19 ¹è´ç¿ä±¸Á¾±âÀÏ
~513ÀÏ 
2025-10-22 100%
200,000,000
À¯Âû
~548ÀÏ 
2025-11-26 70%
140,000,000
ÁøÇà
¹°°Ç¸í¼¼¼­ ÇöȲÁ¶»ç¼­ ¹®°ÇÁ¢¼ö ¼Û´Þ³»¿ª

°¨Á¤Æò°¡ÇöȲ

¸ñ·Ï ÁÖ¼Ò ±¸Á¶/¿ëµµ/´ëÁö±Ç ¸éÀû ºñ°í
´ëÁö±Ç
źÇöµ¿ 1480 24487.1ºÐÀÇ 29.271 29.271 §³
(8.85Æò)
°Ç¹°
źÇöµ¿ 1480 701µ¿ 11Ãþ1108È£ ö±ÙÄÜÅ©¸®Æ®Á¶ 50.28 §³
(15.21Æò)
1) À§Ä¡/µµ½ÃÁö¿ª/Á¦2Á¾ÀϹÝÁÖ°ÅÁö¿ª/Áö±¸´ÜÀ§°èȹ±¸¿ª/³ë¼±¹ö½ºÁ¤·ùÀå/ö±ÙÄÜÅ©¸®Æ®Á¶ ´õº¸±â
°¨Á¤Æò°¡ ¿äÇ×Ç¥
1)À§Ä¡ ¹× ÁÖÀ§È¯°æ
º»°ÇÀº °æ±âµµ °í¾ç½Ã Àϻ꼭±¸ źÇöµ¿ ¼ÒÀç "Ȳ·æÃʵîÇб³" ³²µ¿Ãø Àαٿ¡ À§Ä¡Çϸç, ÀαÙÀº ¾ÆÆÄÆ®, ±Ù¸°»ýȰ½Ã¼³ ¹× Çб³ µîÀÌ È¥ÀçÇÏ´Â Áö¿ªÀÓ.
2)±³Åë»óȲ
º»°Ç±îÁö Â÷·®ÀÇ ÁøÃâÀÔÀÌ °¡´ÉÇϸç, Àαٿ¡ ³ë¼±¹ö½ºÁ¤·ùÀå ¹× ±Ù°Å¸®¿¡ °æÀÇÁß¾Ó¼± "źÇö¿ª" ÀÌ ¼ÒÀçÇÏ´Â µî ±³Åë»óȲÀº º¸ÅëÀÓ.
3)°Ç¹°ÀÇ ±¸Á¶
ö±ÙÄÜÅ©¸®Æ®Á¶ Æò½½·¡ºê 15Ãþ Áß 11Ãþ 1108È£·Î¼­ (»ç¿ë½ÂÀÎÀÏ : 1995.05.03.)

¿Üº® : ¸ôÅ» À§ ÆäÀÎÆ® ¸¶°¨ µî,
âȣ : »õ½Ãâȣ µîÀÓ.
4)ÀÌ¿ë»óÅÂ
¾ÆÆÄÆ®ÀÓ.
5)¼³ºñ³»¿ª
À§»ý ¹× ±Þ¹è¼ö¼³ºñ, ³­¹æ¼³ºñ, E/V¼³ºñ µî µÇ¾î ÀÖÀ½.



6)ÅäÁöÀÇ Çü»ó ¹× ÀÌ¿ë»óÅÂ
µî°íÆòźÇÑ »ç´Ù¸®ÇüÀÇ ÅäÁö·Î¼­ ÁÖ°Å¿ë °ÇºÎÁö·Î ÀÌ¿ëÁßÀÓ.
7)ÀÎÁ¢ µµ·Î»óŵî
´ÜÁö³» µµ·Î°¡ ¿Ü°û°øµµ¿Í ¿¬°èµÊ.
8)ÅäÁöÀÌ¿ë°èȹ ¹× Á¦ÇÑ»óÅÂ
Á¦2Á¾ÀϹÝÁÖ°ÅÁö¿ª, Áö±¸´ÜÀ§°èȹ±¸¿ª(2023-01-19)(źÇö1,2,Áß»êÅÃÁö°³¹ß), ´ë·Î3·ù(Æø 25m-30m)(Á¢ÇÕ), ¼Ò·Î1·ù(Æø 10m-12m)(Á¢ÇÕ), °¡Ãà»çÀ°Á¦Çѱ¸¿ª(2019-11-29)(µµ½ÃÁö¿ª
[ÁÖ°Å,»ó¾÷,°ø¾÷,³ìÁö(ÀÚ¿¬Ãë¶ôÁö±¸)])<°¡ÃàºÐ´¢ÀÇ °ü¸® ¹× À̿뿡 °üÇÑ ¹ý·ü>, »ó´ëº¸È£±¸¿ª<±³À°È¯°æ º¸È£¿¡ °üÇÑ ¹ý·ü>, Àý´ëº¸È£±¸¿ª<±³À°È¯°æ º¸È£¿¡ °üÇÑ ¹ý·ü>, °ú¹Ð¾ïÁ¦±Ç¿ª<¼öµµ±ÇÁ¤ºñ°èȹ¹ý>
9)°øºÎ¿ÍÀÇ Â÷ÀÌ
-
10)±âŸÂü°í»çÇ×(ÀÓ´ë°ü·Ê ¹× ±âŸ)
ÀÓ´ë°ü°è µî ¹Ì»óÀÓ.
Âü°í
»çÇ×

1. ö±ÙÄÜÅ©¸®Æ®Á¶ Æò½½·¡ºê 15Ãþ¾ÆÆÄÆ®

°ÇÃ๰ÇöȲ

¼ÒÀçÁö °æ±âµµ °í¾ç½Ã Àϻ꼭±¸ źÇöµ¿ 1480¹øÁö
´ëÁö¸éÀû 22119.2748§³
(6702.81Æò)
¿¬¸éÀû 10193.76§³
(3089.02Æò)
°ÇÃà¸éÀû 726.96§³
(220.29Æò)
¿ëÀû·ü»êÁ¤
¿¬¸éÀû
9573.12§³
(2900.95Æò)
°ÇÆóÀ² 20.49% ¿ëÀû·ü 209.7%
Áö»óÃþ¼ö 15Ãþ ÁöÇÏÃþ¼ö 1Ãþ
ÁÖ¿ëµµ °øµ¿ÁÖÅà ±¸Á¶ ö±ÙÄÜÅ©¸®Æ®±¸Á¶
Âø°øÀÏÀÚ 1993.05.13 »ç¿ë½ÂÀÎÀÏÀÚ 1995.05.03
°ÇÃ๰Ãþº°ÇöȲ [º¸±â]


µî±âºÎµîº» ¿ä¾à(°Ç¹°)

  Á¢¼öÀÏÀÚ µî±â¸ñÀû/±Ç¸®ÀÚ ±Ç¸®±Ý¾× ±âÁØ
1 2007³â2¿ù14ÀÏ
¼ÒÀ¯±Ç
±ÇOO
¼Ò¸ê
2 2007³â2¿ù28ÀÏ
±ÙÀú´ç±Ç
(OOOO
60,190,000 ¼Ò¸ê±âÁØ
3 2015³â4¿ù13ÀÏ
±ÙÀú´ç±Ç
(OOOO
12,000,000 ¼Ò¸ê
4 2021³â3¿ù29ÀÏ
±ÙÀú´ç±Ç
(OOOO
68,400,000 ¼Ò¸ê
5 2021³â12¿ù13ÀÏ
±ÙÀú´ç±Ç
(OOOO
60,000,000 ¼Ò¸ê
6 2024³â5¿ù1ÀÏ
°¡¾Ð·ù
³óOOOO
17,836,478 ¼Ò¸ê
7 2024³â5¿ù23ÀÏ
°¡¾Ð·ù
ÇöOOOO
26,956,210 ¼Ò¸ê
8 2024³â5¿ù28ÀÏ
ÀÓÀǰæ¸Å
(OOOO
¼Ò¸ê
9 2024³â6¿ù26ÀÏ
°¡¾Ð·ù
(OOOO
26,458,477 ¼Ò¸ê
10 2024³â8¿ù1ÀÏ
°¡¾Ð·ù
°æOOOO
20,000,000 ¼Ò¸ê
11 2024³â8¿ù14ÀÏ
°¡¾Ð·ù
(OOOO
10,126,104 ¼Ò¸ê
12 2024³â8¿ù28ÀÏ
ÀÓÀǰæ¸Å
(OOOO
¼Ò¸ê

ÀÓÂ÷ÀÎÇöȲ (¹è´ç¿ä±¸Á¾±âÀÏ: 2024-08-19)


Á¶»çµÈ ÀÓÂ÷³»¿ªÀÌ ¾ø½À´Ï´Ù


¿©ÀÇÁÖ°æ¸Å Á¶¾ð ÇÑ ¸¶µð


ÁÖÀÇ»çÇ× (ÃÖ¼±¼øÀ§ ¼³Á¤ÀÏ: 2007. 2. 28. ±ÙÀú´ç±Ç ¼³Á¤)

¸Å°¢À¸·Î ¼Ò¸êµÇÁö ¾Ê´Â µî±âºÎ±Ç¸®:
¸Å°¢À¸·Î ¼³Á¤µÈ °ÍÀ¸·Î º¸´Â Áö»ó±Ç:
¡Ø¹Ì³³°ü¸®ºñ(°ø¿ë) Àμö¿©ºÎ¸¦ ÀÔÂû Àü¿¡ È®ÀÎÇϽñ⠹ٶø´Ï´Ù

 

Áö¿ªºÐ¼®

ÁöÇÏö¸í Á÷¼±°Å¸®

Çб³¸í ÀüÈ­¹øÈ£ ÁÖ¼Ò Á÷¼±°Å¸®

¹ý¿ø

ÀÇÁ¤ºÎÁö¹æ¹ý¿ø °í¾çÁö¿ø (104-13)°æ±âµµ °í¾ç½Ã Àϻ굿±¸ Àå¹é·Î 209
´ëÇ¥ : 031)920-6114, ¾ß°£ : 031)920-6550, ÆÑ½º : 031)920-6119
°üÇÒÁö¿ª : °í¾ç½Ã, ÆÄÁÖ½Ã

µî±â¼Ò ÀÇÁ¤ºÎÁö¹æ¹ý¿ø °í¾çÁö¿ø °í¾çµî±â¼Ò (´ëÇ¥:1544-0773, ÆÑ½º:(031)920-5959, °æ±âµµ °í¾ç½Ã Àϻ굿±¸ Áß¾Ó·Î1275¹ø±æ 38-30 (ÀåÇ×µ¿ 773))
¼¼¹«¼­ °í¾ç¼¼¹«¼­ (´ëÇ¥:031-900-92, ÆÑ½º:031-907-9177, °æ±âµµ °í¾ç½Ã Àϻ굿±¸ Áß¾Ó·Î1275¹ø±æ 14-43 (ÀåÇ×µ¿) )

Àαٳ«ÂûÅë°è

±â°£ ¸Å°¢°Ç¼ö Æò±Õ°¨Á¤°¡
Æò±Õ¸Å°¢°¡
¸Å°¢°¡À²
Æò±ÕÀ¯Âû¼ö
3°³¿ù 38°Ç 534,210,526¿ø
431,554,308¿ø
81%
1ȸ
6°³¿ù 89°Ç 520,134,831¿ø
427,202,333¿ø
82%
1ȸ
12°³¿ù 184°Ç 534,690,217¿ø
437,142,273¿ø
82%
1.1ȸ


º» °æ¸ÅÁ¤º¸´Â ¹ý¿øÀÚ·á¿Í ÀÏÄ¡Çϵµ·Ï ÇÏ¿´À¸³ª ±Ç¸®»çÇ׺¯µ¿, ÀÔ·ÂÂø¿À µîÀÇ ¿øÀÎÀ¸·Î »ç½Ç°ú ´Ù¸¦ ¼ö ÀÖ½À´Ï´Ù. ÀÌ¿ë¾à°ü¿¡ ÀǰЏéÃ¥Á¶°ÇÀ¸·Î Á¦°øµÊÀ» ¾Ë¸®¸ç, °æ¸ÅÀÔÂû½Ã ¹Ýµå½Ã °ü·Ã °øºÎ¸¦ ÀçÈ®ÀÎÇϽñ⠹ٶø´Ï´Ù. º¸´Ù Æí¸®ÇÑ °æ¸ÅÁ¤º¸ Á¦°øÀ» À§ÇØ Áö¼ÓÀûÀ¸·Î °³¼±ÇϰڽÀ´Ï´Ù. ÀÌ¿ëÇØ Áּż­ °¨»çÇÕ´Ï´Ù.