·Î±×ÀÎ
181
±Ù¸°»ó°¡
¼­¿ï¼­ºÎÁö¹æ¹ý¿ø
 °¨Á¤°¡364,000,000 ¿ø
 ÃÖÀú°¡(51%) 186,368,000 ¿ø
 º¸Áõ±Ý(10%) 18,636,800 ¿ø
 Ã»±¸¾×168,401,706 ¿ø
¼­¿ïƯº°½Ã ¼­´ë¹®±¸ È«Á¦µ¿ 192-29 1Ãþ102È£
»ç°Ç¹øÈ£ 2025Ÿ°æ51020
°æ¸ÅÁ¾·ùºÎµ¿»êÀÓÀǰæ¸Å
¸Å°¢´ë»óÅäÁö ¹× °Ç¹°Àϰý ¸Å°¢
¸Å°¢±âÀÏ    2026.02.24(È­) 10:00 ÀÔÂû 44ÀÏÀü    
ÅäÁö¸éÀû19.94§³(6.03 Æò)
°Ç¹°¸éÀû42.45§³(12.84 Æò)
乫/¼ÒÀ¯ÀÚÀÌOO / ÀÌOO
ä±ÇÀÚ³óOOOOOOOOOOO(OOOOOOOOOOOOOOO)
ÆäÀ̽ººÏ Æ®À§ÅÍ ±¸±Û+
īī¿À½ºÅ丮
īī¿ÀÅå sms¹®ÀÚº¸³»±â
 

±âÀϳ»¿ª

°æ°ú ³¯Â¥ Àú°¨ ÃÖÀú°¡ °á°ú
Á¢¼öÀÏ 2025-02-10 °æ¸ÅÁ¢¼ö
~1ÀÏ 
2025-02-11 °æ¸Å°³½Ã°áÁ¤
~73ÀÏ 
2025-04-24 ¹è´ç¿ä±¸Á¾±âÀÏ
~253ÀÏ 
2025-10-21 100%
364,000,000
À¯Âû
~288ÀÏ 
2025-11-25 80%
291,200,000
À¯Âû
~330ÀÏ 
2026-01-06 64%
232,960,000
À¯Âû
~379ÀÏ 
2026-02-24 51%
186,368,000
ÁøÇà
¹°°Ç¸í¼¼¼­ ÇöȲÁ¶»ç¼­ ¹®°ÇÁ¢¼ö ¼Û´Þ³»¿ª

°¨Á¤Æò°¡ÇöȲ

¸ñ·Ï ÁÖ¼Ò ±¸Á¶/¿ëµµ/´ëÁö±Ç ¸éÀû ºñ°í
´ëÁö±Ç
È«Á¦µ¿ 192-29 287ºÐÀÇ 19.94 19.94 §³
(6.03Æò)
°Ç¹°
È«Á¦µ¿ 192-29 1Ãþ102È£ ö±ÙÄÜÅ©¸®Æ®±¸Á¶ 42.45 §³
(12.84Æò)

°ÇÃ๰ÇöȲ

¼ÒÀçÁö ¼­¿ïƯº°½Ã ¼­´ë¹®±¸ È«Á¦µ¿ 192-29¹øÁö
´ëÁö¸éÀû 287§³
(86.97Æò)
¿¬¸éÀû 682.31§³
(206.76Æò)
°ÇÃà¸éÀû 143.35§³
(43.44Æò)
¿ëÀû·ü»êÁ¤
¿¬¸éÀû
538.67§³
(163.23Æò)
°ÇÆóÀ² 49.95% ¿ëÀû·ü 187.69%
Áö»óÃþ¼ö 5Ãþ ÁöÇÏÃþ¼ö 1Ãþ
ÁÖ¿ëµµ °øµ¿ÁÖÅà ±¸Á¶ ö±ÙÄÜÅ©¸®Æ®±¸Á¶
Âø°øÀÏÀÚ 2022.01.24 »ç¿ë½ÂÀÎÀÏÀÚ 2022.11.29
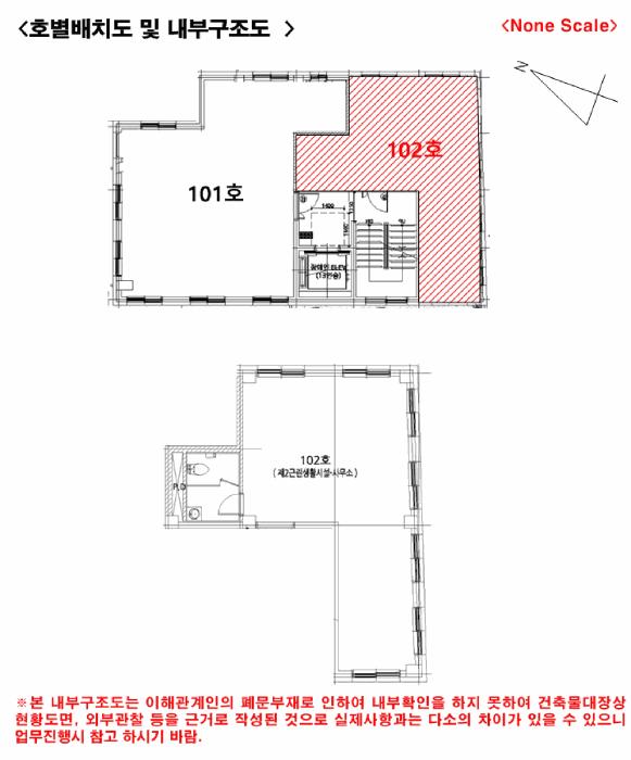
°ÇÃ๰Ãþº°ÇöȲ [º¸±â]


µî±âºÎµîº» ¿ä¾à(°Ç¹°)

  Á¢¼öÀÏÀÚ µî±â¸ñÀû/±Ç¸®ÀÚ ±Ç¸®±Ý¾× ±âÁØ
1 2024³â3¿ù8ÀÏ
¼ÒÀ¯±Ç
ÀÌOO
¼Ò¸ê
2 2024³â3¿ù8ÀÏ
±ÙÀú´ç±Ç
ÇÑOOOO
200,400,000 ¼Ò¸ê±âÁØ
3 2024³â4¿ù3ÀÏ
±ÙÀú´ç±Ç
(OOOO
1,248,000,000 ¼Ò¸ê
4 2024³â9¿ù24ÀÏ
¾Ð·ù
±¹
¼Ò¸ê
5 2025³â1¿ù14ÀÏ
¾Ð·ù
¼­OOO
¼Ò¸ê
6 2025³â2¿ù12ÀÏ
ÀÓÀǰæ¸Å
ÇÑOOOO
¼Ò¸ê
7 2025³â4¿ù9ÀÏ
¾Ð·ù
±¹OOOO
¼Ò¸ê

ÀÓÂ÷ÀÎÇöȲ (¹è´ç¿ä±¸Á¾±âÀÏ: 2025-04-24)

ÀÓÂ÷ÀÎ ¿ëµµ/Á¡À¯ º¸Áõ±Ý/¿ù¼¼ ´ëÇ×·Â
ÀüÀÔÀÏ/È®Á¤ÀÏ ¹è´ç¿ä±¸ ºñ°í
ÀÌOO
O
2023.02.16
¹Ì»ó

¿©ÀÇÁÖ°æ¸Å Á¶¾ð ÇÑ ¸¶µð


ÁÖÀÇ»çÇ× (ÃÖ¼±¼øÀ§ ¼³Á¤ÀÏ: 2024. 3. 8. ±ÙÀú´ç±Ç ¼³Á¤)

¸Å°¢À¸·Î ¼Ò¸êµÇÁö ¾Ê´Â µî±âºÎ±Ç¸®:
¸Å°¢À¸·Î ¼³Á¤µÈ °ÍÀ¸·Î º¸´Â Áö»ó±Ç:
2025.12.03 ä±ÇÀÚ ³óOOOOOOOOOOO(OOOOOOOOOOOOOOO) ȯ±Þ°èÁ º¯°æ½Åû¼­ Á¦Ãâ
°øºÎ»ó ±Ù¸°»ýȰ½Ã¼³·Î µÇ¾î ÀÖÀ¸³ª ÇöȲ ÁÖ°Å¿ëÀ¸·Î ÀÌ¿ëÁßÀÓ
¡Ø¹Ì³³°ü¸®ºñ(°ø¿ë) Àμö¿©ºÎ¸¦ ÀÔÂû Àü¿¡ È®ÀÎÇϽñ⠹ٶø´Ï´Ù

 

Áö¿ªºÐ¼®

ÁöÇÏö¸í Á÷¼±°Å¸®

Çб³¸í ÀüÈ­¹øÈ£ ÁÖ¼Ò Á÷¼±°Å¸®

¹ý¿ø

¼­¿ï¼­ºÎÁö¹æ¹ý¿ø (042-07)¼­¿ïƯº°½Ã ¸¶Æ÷±¸ ¸¶Æ÷´ë·Î 174 (°ø´öµ¿)
´ëÇ¥ : 02)3271-1114, ¹Î¿ø : 02)3271-1704/1881, ¾ß°£ : 02)3271-1700~1
°üÇÒÁö¿ª : ¿ë»ê±¸, ¼­´ë¹®±¸, ¸¶Æ÷±¸, ÀºÆò±¸

µî±â¼Ò ¼­¿ï¼­ºÎÁö¹æ¹ý¿ø º»¿ø µî±â±¹ (´ëÇ¥:1544-0773, ÆÑ½º:(02)3271-9130, ¼­¿ïƯº°½Ã ¸¶Æ÷±¸ ¸¶Æ÷´ë·Î 199 (¾ÆÇöµ¿ 783))
¼¼¹«¼­ ¼­´ë¹®¼¼¹«¼­ (´ëÇ¥:02-2287-42, ÆÑ½º:02-379-0552, ¼­¿ïƯº°½Ã ¼­´ë¹®±¸ ÃæÁ¤·Î 60 (KT&G ¼­´ë¹®Å¸¿ö 13,14Ãþ))

Àαٳ«ÂûÅë°è

±â°£ ¸Å°¢°Ç¼ö Æò±Õ°¨Á¤°¡
Æò±Õ¸Å°¢°¡
¸Å°¢°¡À²
Æò±ÕÀ¯Âû¼ö
3°³¿ù 0°Ç 0¿ø
0¿ø
0%
0ȸ
6°³¿ù 0°Ç 0¿ø
0¿ø
0%
0ȸ
12°³¿ù 4°Ç 806,500,000¿ø
664,500,000¿ø
80%
1.8ȸ


º» °æ¸ÅÁ¤º¸´Â ¹ý¿øÀÚ·á¿Í ÀÏÄ¡Çϵµ·Ï ÇÏ¿´À¸³ª ±Ç¸®»çÇ׺¯µ¿, ÀÔ·ÂÂø¿À µîÀÇ ¿øÀÎÀ¸·Î »ç½Ç°ú ´Ù¸¦ ¼ö ÀÖ½À´Ï´Ù. ÀÌ¿ë¾à°ü¿¡ ÀǰЏéÃ¥Á¶°ÇÀ¸·Î Á¦°øµÊÀ» ¾Ë¸®¸ç, °æ¸ÅÀÔÂû½Ã ¹Ýµå½Ã °ü·Ã °øºÎ¸¦ ÀçÈ®ÀÎÇϽñ⠹ٶø´Ï´Ù. º¸´Ù Æí¸®ÇÑ °æ¸ÅÁ¤º¸ Á¦°øÀ» À§ÇØ Áö¼ÓÀûÀ¸·Î °³¼±ÇϰڽÀ´Ï´Ù. ÀÌ¿ëÇØ Áּż­ °¨»çÇÕ´Ï´Ù.