·Î±×ÀÎ
8
´Ù¼¼´ë(ºô¶ó)
¼ö¿øÁö¹æ¹ý¿ø ¼º³²Áö¿ø
 °¨Á¤°¡236,000,000 ¿ø
 ÃÖÀú°¡(70%) 165,200,000 ¿ø
 º¸Áõ±Ý(10%) 16,520,000 ¿ø
 Ã»±¸¾×220,000,000 ¿ø
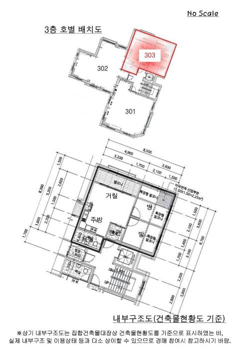
°æ±âµµ ±¤Áֽà ´ë¸í´ë±æ 28, 3Ãþ303È£
°æ±âµµ ±¤Áֽà ´ÉÆòµ¿ 356
»ç°Ç¹øÈ£ 2024Ÿ°æ70185
°æ¸ÅÁ¾·ùºÎµ¿»êÀÓÀǰæ¸Å
¸Å°¢´ë»óÅäÁö ¹× °Ç¹°Àϰý ¸Å°¢
¸Å°¢±âÀÏ    2025.11.24(¿ù) 10:00 ÀÔÂû 7ÀÏÀü    
ÅäÁö¸éÀû52.01§³(15.73 Æò)
°Ç¹°¸éÀû43.77§³(13.24 Æò)
乫/¼ÒÀ¯ÀÚ¿ÀOO / ¿ÀOO
ä±ÇÀÚÀçOOOOOOOOOOOOO
ÆäÀ̽ººÏ Æ®À§ÅÍ ±¸±Û+
īī¿À½ºÅ丮
īī¿ÀÅå sms¹®ÀÚº¸³»±â
 

±âÀϳ»¿ª

°æ°ú ³¯Â¥ Àú°¨ ÃÖÀú°¡ °á°ú
Á¢¼öÀÏ 2024-11-21 °æ¸ÅÁ¢¼ö
~0ÀÏ 
2024-11-21 °æ¸Å°³½Ã°áÁ¤
~67ÀÏ 
2025-01-27 ¹è´ç¿ä±¸Á¾±âÀÏ
~333ÀÏ 
2025-10-20 100%
236,000,000
À¯Âû
~368ÀÏ 
2025-11-24 70%
165,200,000
ÁøÇà
¹°°Ç¸í¼¼¼­ ÇöȲÁ¶»ç¼­ ¹®°ÇÁ¢¼ö ¼Û´Þ³»¿ª

°¨Á¤Æò°¡ÇöȲ

¸ñ·Ï ÁÖ¼Ò ±¸Á¶/¿ëµµ/´ëÁö±Ç ¸éÀû ºñ°í
´ëÁö±Ç
´ÉÆòµ¿ 356 655ºÐÀÇ 52.01 52.01 §³
(15.73Æò)
°Ç¹°
´ÉÆòµ¿ 356 3Ãþ303È£ ö±ÙÄÜÅ©¸®Æ®±¸Á¶ 43.77 §³
(13.24Æò)
1) À§Ä¡/°èȹ°ü¸®Áö¿ª/³ë¼±¹ö½ºÁ¤·ùÀå/ö±ÙÄÜÅ©¸®Æ®±¸Á¶/µµ½Ã°¡½º/°³º°³­¹æ/¹æ2/¿å½Ç1 ´õº¸±â
°¨Á¤Æò°¡ ¿äÇ×Ç¥
1)À§Ä¡ ¹× ÁÖÀ§È¯°æ
º»°ÇÀº °æ±âµµ ±¤Áֽà ´ÉÆòµ¿ ¼ÒÀç "´ÉÆò119¾ÈÀü¼¾ÅÍ" ¼­Ãø ÀÎÁ¢ÇÏ¿© À§Ä¡Çϸç, ÁÖÀ§´Â
´Ù¼¼´ëÁÖÅà ¹× ´Üµ¶ÁÖÅÃ, ±Ù¸°»ýȰ½Ã¼³ µîÀ¸·Î Çü¼ºµÇ¾î ÀÖÀ½.
2)±³Åë»óȲ
º»°Ç±îÁö Â÷·® Á¢±Ù °¡´ÉÇϸç, Àαٿ¡ ³ë¼±¹ö½ºÁ¤·ùÀåÀÌ ¼ÒÀçÇÏ´Â µî Á¦¹Ý ±³Åë»óȲÀº º¸ÅëÀÓ.
3)°Ç¹°ÀÇ ±¸Á¶
ö±ÙÄÜÅ©¸®Æ®±¸Á¶ (ö±Ù)ÄÜÆ®¸®Æ®(°æ»ç½º¶óºê)ÁöºØ ÁöÇÏ1Ãþ/Áö»ó4Ãþ °Ç¹°³» 3Ãþ 303È£·Î¼­,
¿Üº®: Ä¡Àå¼®ÀçºÙÀÓ ¸¶°¨ µî
âȣ: ¼¦½Ãâȣ µîÀÓ.
4)ÀÌ¿ë»óÅÂ
´Ù¼¼´ëÁÖÅÃÀ¸·Î ÀÌ¿ë ÁßÀ̸ç, °ÇÃ๰ÇöȲµµ»ó "¹æ2, °Å½Ç, ÁÖ¹æ, ¿å½Ç1 µî"ÀÇ ±¸Á¶ÀÓ.
5)¼³ºñ³»¿ª
À§»ý ¹× ±Þ¹è¼ö¼³ºñ, µµ½Ã°¡½º ÀÌ¿ë °³º°³­¹æ¼³ºñ, È­ÀçŽÁö¼³ºñ, ½Â°­±â¼³ºñ µîÀÌ µÇ¾î ÀÖÀ½.
6)ÅäÁöÀÇ Çü»ó ¹× ÀÌ¿ë»óÅÂ
³²¼­Ãø ÇÏÇ⠿ϰæ»çÁö´ë³» ÀÚüÁö¹Ý ÆòźÇÏ°Ô Á¶¼ºµÈ ºÎÁ¤Çü ÅäÁö·Î¼­, ´Ù¼¼´ëÁÖÅà °ÇºÎÁöÀÓ.
7)ÀÎÁ¢ µµ·Î»óŵî
ºÏ¼­ÃøÀ¸·Î ¿Õº¹2Â÷¼± Æ÷Àåµµ·Î¸¦ ÅëÇÏ¿© Â÷·® ÁøÃâÀÔÇϰí ÀÖÀ½.
8)ÅäÁöÀÌ¿ë°èȹ ¹× Á¦ÇÑ»óÅÂ
ÅäÁöÀÌ¿ë°èȹȮÀμ­(2024.11.29.ÀÚ)»ó,
°èȹ°ü¸®Áö¿ª(°èȹ°ü¸®), ¼ºÀå°ü¸®°èȹ±¸¿ª(¼ºÀå°ü¸®Áö¿ª(ÁÖ°ÅÇü)), ¼Ò·Î2·ù(Æø 8m-10m)(Á¢
ÇÕ), °¡Ãà»çÀ°Á¦Çѱ¸¿ª(ÀϺÎÁ¦Çѱ¸¿ª)<°¡ÃàºÐ´¢ÀÇ °ü¸® ¹× À̿뿡 °üÇÑ ¹ý·ü>, ¹èÃâ½Ã¼³¼³Ä¡
Á¦ÇÑÁö¿ª<¹°È¯°æº¸Àü¹ý>, ÀÚ¿¬º¸Àü±Ç¿ª<¼öµµ±ÇÁ¤ºñ°èȹ¹ý>, Ưº°´ëÃ¥Áö¿ª<ȯ°æÁ¤Ã¥±âº»¹ý>,
¿µ³ó¿©°ÇºÒ¸®³óÁö ÀÓ.
9)°øºÎ¿ÍÀÇ Â÷ÀÌ
¾øÀ½.
10)±âŸÂü°í»çÇ×(ÀÓ´ë°ü·Ê ¹× ±âŸ)
ÀÓ´ë°ü°è ¹Ì»óÀ̸ç, µî±â»çÇ×ÀüºÎÁõ¸í¼­»ó Àü¼¼±Ç(Àü¼¼±Ý 220,000,000¿ø) µî±âµÇ¾î ÀÖÀ½.
Âü°í
»çÇ×

Æó

°ÇÃ๰ÇöȲ

¼ÒÀçÁö °æ±âµµ ±¤Áֽà ´ÉÆòµ¿ 356¹øÁö
´ëÁö¸éÀû 655§³
(198.48Æò)
¿¬¸éÀû 658.27§³
(199.48Æò)
°ÇÃà¸éÀû 238.89§³
(72.39Æò)
¿ëÀû·ü»êÁ¤
¿¬¸éÀû
635.07§³
(192.45Æò)
°ÇÆóÀ² 36.47% ¿ëÀû·ü 96.96%
Áö»óÃþ¼ö 4Ãþ ÁöÇÏÃþ¼ö 1Ãþ
ÁÖ¿ëµµ °øµ¿ÁÖÅà ±¸Á¶ ö±ÙÄÜÅ©¸®Æ®±¸Á¶
Âø°øÀÏÀÚ 2019.12.16 »ç¿ë½ÂÀÎÀÏÀÚ 2021.01.06
°ÇÃ๰Ãþº°ÇöȲ [º¸±â]


±¹ÅäºÎ½Ç°Å·¡°¡ °æ±âµµ ±¤Áֽà ´ÉÆòµ¿

¡Ü ¸Å¸Å

¸éÀû(§³), ±Ý¾×(¸¸¿ø)

¡Ü Àü¼¼

¸éÀû(§³), ±Ý¾×(¸¸¿ø)

°è¾àÀϰǹ°¸íĪÃþ¿¬¸éÀû´ëÁö±Ý¾×°ÇÃà
24.03.27Ÿ¿öºô¸®Áö102µ¿457.9349.0817,0002011
24.03.27Ÿ¿öºô¸®Áö(106µ¿)457.8352.26714,5002013
24.03.27Çѱ¹ÅÙÁîÈú(108µ¿)352.1759.574514,9002015
24.03.24¸ð¾Æ¸Ç¼Ç(202µ¿)-151.98509,7002014
24.03.22´ÉÆò¾Æ¸®¿ò(102µ¿)257.91553.313723,0002016
¢Ñ ´õº¸±â

µî±âºÎµîº» ¿ä¾à(°Ç¹°)

  Á¢¼öÀÏÀÚ µî±â¸ñÀû/±Ç¸®ÀÚ ±Ç¸®±Ý¾× ±âÁØ
1 2022³â5¿ù19ÀÏ
¼ÒÀ¯±Ç
¿ÀOO
¼Ò¸ê
2 2022³â3¿ù31ÀÏ
Àü¼¼±Ç
ÀçOOOO
220,000,000 ¼Ò¸ê±âÁØ
3 2022³â8¿ù4ÀÏ
¾Ð·ù
µ¿O
¼Ò¸ê
4 2024³â9¿ù4ÀÏ
°¡¾Ð·ù
ÇÑOOOO
100,887,582 ¼Ò¸ê
5 2024³â11¿ù25ÀÏ
ÀÓÀǰæ¸Å
ÀçOOOO
¼Ò¸ê

ÀÓÂ÷ÀÎÇöȲ (¹è´ç¿ä±¸Á¾±âÀÏ: 2025-01-27)

ÀÓÂ÷ÀÎ ¿ëµµ/Á¡À¯ º¸Áõ±Ý/¿ù¼¼ ´ëÇ×·Â
ÀüÀÔÀÏ/È®Á¤ÀÏ ¹è´ç¿ä±¸ ºñ°í
ÀçOOOOOOOOOOOOO 303È£ÀüºÎ 220,000,000

2022. 3.31.~2024. 3.31.
ºñ°í
(¸Å°¢¹°°Ç
¸í¼¼¼­)
Àç´Ü¹ýÀΰæ±âµµ°æÁ¦°úÇÐÁøÈï¿ø:°æ¸Å½Åûä±ÇÀÚ·Î ¹è´ç¿ä±¸ÀÏÀÚ´Â °æ¸Å½ÅûÀÏÀÎ 2024. 11. 21.ÀÓ.

¿©ÀÇÁÖ°æ¸Å Á¶¾ð ÇÑ ¸¶µð


ÁÖÀÇ»çÇ× (ÃÖ¼±¼øÀ§ ¼³Á¤ÀÏ: 2022. 3. 31. Àü¼¼±Ç ¼³Á¤)

¸Å°¢À¸·Î ¼Ò¸êµÇÁö ¾Ê´Â µî±âºÎ±Ç¸®:
¸Å°¢À¸·Î ¼³Á¤µÈ °ÍÀ¸·Î º¸´Â Áö»ó±Ç:
¡Ø¹Ì³³°ü¸®ºñ(°ø¿ë) Àμö¿©ºÎ¸¦ ÀÔÂû Àü¿¡ È®ÀÎÇϽñ⠹ٶø´Ï´Ù

 

Áö¿ªºÐ¼®

ÁöÇÏö¸í Á÷¼±°Å¸®

Çб³¸í ÀüÈ­¹øÈ£ ÁÖ¼Ò Á÷¼±°Å¸®

¹ý¿ø

¼ö¿øÁö¹æ¹ý¿ø ¼º³²Áö¿ø (131-43)°æ±âµµ ¼º³²½Ã ¼öÁ¤±¸ »ê¼º´ë·Î 451 (´Ü´ëµ¿)
´ëÇ¥ : 031)737-1558, ¾ß°£ : 031)737-1120
°üÇÒÁö¿ª : ¼º³²½Ã, ±¤ÁÖ½Ã, Çϳ²½Ã

µî±â¼Ò ¼ö¿øÁö¹æ¹ý¿ø ¼º³²Áö¿ø ±¤ÁÖµî±â¼Ò (´ëÇ¥:1544-0773, ÆÑ½º:(031)765-2388, °æ±âµµ ±¤Áֽà ÇàÁ¤Å¸¿î·Î 49-15 (¼ÛÁ¤µ¿ 346-4))
¼¼¹«¼­ °æ±â±¤ÁÖ¼¼¹«¼­ (´ëÇ¥:031-880-92, ÆÑ½º:031-769-0417, °æ±âµµ ±¤Áֽà ¹®È­·Î 127)

Àαٳ«ÂûÅë°è

±â°£ ¸Å°¢°Ç¼ö Æò±Õ°¨Á¤°¡
Æò±Õ¸Å°¢°¡
¸Å°¢°¡À²
Æò±ÕÀ¯Âû¼ö
3°³¿ù 4°Ç 659,834,708¿ø
417,163,750¿ø
63%
1.8ȸ
6°³¿ù 6°Ç 832,779,456¿ø
478,217,500¿ø
61%
1.8ȸ
12°³¿ù 6°Ç 832,779,456¿ø
478,217,500¿ø
61%
1.8ȸ


º» °æ¸ÅÁ¤º¸´Â ¹ý¿øÀÚ·á¿Í ÀÏÄ¡Çϵµ·Ï ÇÏ¿´À¸³ª ±Ç¸®»çÇ׺¯µ¿, ÀÔ·ÂÂø¿À µîÀÇ ¿øÀÎÀ¸·Î »ç½Ç°ú ´Ù¸¦ ¼ö ÀÖ½À´Ï´Ù. ÀÌ¿ë¾à°ü¿¡ ÀǰЏéÃ¥Á¶°ÇÀ¸·Î Á¦°øµÊÀ» ¾Ë¸®¸ç, °æ¸ÅÀÔÂû½Ã ¹Ýµå½Ã °ü·Ã °øºÎ¸¦ ÀçÈ®ÀÎÇϽñ⠹ٶø´Ï´Ù. º¸´Ù Æí¸®ÇÑ °æ¸ÅÁ¤º¸ Á¦°øÀ» À§ÇØ Áö¼ÓÀûÀ¸·Î °³¼±ÇϰڽÀ´Ï´Ù. ÀÌ¿ëÇØ Áּż­ °¨»çÇÕ´Ï´Ù.