·Î±×ÀÎ
93
ÁÖÅÃ
¼ö¿øÁö¹æ¹ý¿ø ¼º³²Áö¿ø
 °¨Á¤°¡766,382,960 ¿ø
 ÃÖÀú°¡(49%) 375,528,000 ¿ø
 º¸Áõ±Ý(10%) 37,552,800 ¿ø
 Ã»±¸¾×608,530,058 ¿ø
°æ±âµµ ±¤Áֽà °ïÁö¾ÏÀ¾ ¿­¹Ì¸® 74-33
»ç°Ç¹øÈ£ 2024Ÿ°æ67967
°æ¸ÅÁ¾·ùºÎµ¿»êÀÓÀǰæ¸Å
¸Å°¢´ë»óÅäÁö ¹× °Ç¹°Àϰý¸Å°¢
¸Å°¢±âÀÏ    2026.01.05(¿ù) 10:00 ÀÔÂû 26ÀÏÀü    
ÅäÁö¸éÀû681.00§³(206.00 Æò)
°Ç¹°¸éÀû215.26§³(65.12 Æò)
乫/¼ÒÀ¯ÀÚ±èOO / ±èOO
ä±ÇÀÚ³²OOOOOOO
ÆäÀ̽ººÏ Æ®À§ÅÍ ±¸±Û+
īī¿À½ºÅ丮
īī¿ÀÅå sms¹®ÀÚº¸³»±â
 

±âÀϳ»¿ª

°æ°ú ³¯Â¥ Àú°¨ ÃÖÀú°¡ °á°ú
Á¢¼öÀÏ 2024-10-10 °æ¸ÅÁ¢¼ö
~1ÀÏ 
2024-10-11 °æ¸Å°³½Ã°áÁ¤
~67ÀÏ 
2024-12-16 ¹è´ç¿ä±¸Á¾±âÀÏ
~375ÀÏ 
2025-10-20 100%
766,382,960
À¯Âû
~410ÀÏ 
2025-11-24 70%
536,468,000
À¯Âû
~452ÀÏ 
2026-01-05 49%
375,528,000
ÁøÇà
¹°°Ç¸í¼¼¼­ ÇöȲÁ¶»ç¼­ ¹®°ÇÁ¢¼ö ¼Û´Þ³»¿ª

°¨Á¤Æò°¡ÇöȲ

¸ñ·Ï ÁÖ¼Ò ±¸Á¶/¿ëµµ/´ëÁö±Ç ¸éÀû ºñ°í
ÅäÁö
¿­¹Ì¸® 74-33 ´ë 681 §³
(206.00Æò)
°Ç¹°
¿­¹Ì¸® 74-33 Áö1Ãþ ´Üµ¶ÁÖÅà ö±ÙÄÜÅ©¸®Æ®±¸Á¶ 43.8 §³
(13.25Æò)
¿­¹Ì¸® 74-33 1Ãþ ´Üµ¶ÁÖÅà ö±ÙÄÜÅ©¸®Æ®±¸Á¶ 101.88 §³
(30.82Æò)
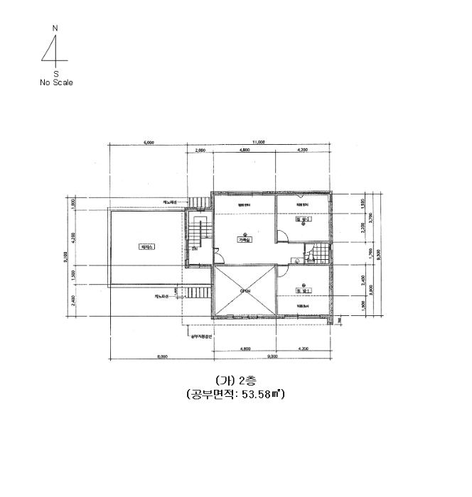
¿­¹Ì¸® 74-33 2Ãþ ´Üµ¶ÁÖÅà ö±ÙÄÜÅ©¸®Æ®±¸Á¶ 53.58 §³
(16.21Æò)
Á¦½Ã¿Ü
°Ç¹°
¿­¹Ì¸® 74-33 â°í 16 §³
(4.84Æò)
Æ÷ÇÔ
1) À§Ä¡/º¸Àü°ü¸®Áö¿ª/º¸Àü»êÁö/Â÷·®Á¢±ÙÀÌ °¡´É/ö±ÙÄÜÅ©¸®Æ®±¸Á¶ ´õº¸±â
°¨Á¤Æò°¡ ¿äÇ×Ç¥
1)À§Ä¡ ¹× ÁÖÀ§È¯°æ
´ë»ó¹°°ÇÀº °æ±âµµ ±¤Áֽà °ïÁö¾ÏÀ¾ ¿­¹Ì¸® ¼ÒÀç¡®·ÎÁ¦ºñ¾ÓGC °ïÁö¾Ï" ¼­Ãø Àαٿ¡ À§Ä¡Çϸç
ÁÖÀ§´Â Àü, ´ä, ÀÓ¾ß, ´Üµ¶ÁÖÅà µîÀÌ ¼ÒÀçÇϸç Á¦¹Ý¿©°ÇÀº º¸ÅëÀÓ.
2)±³Åë»óȲ
´ë»ó¹°°Ç±îÁö Â÷·®Á¢±ÙÀÌ °¡´ÉÇϸç, ´ëÁß±³Åë»óȲÀº ºÒÆí½Ã µÊ.
3)ÇüÅ ¹× ÀÌ¿ë»óÅÂ
¼­ÇÏÇ⠿ϰæ»çÁö¸¦ ÆòźÇÏ°Ô Á¶¼ºÇÑ »ç´Ù¸®Çü ÅäÁöÀ̸ç, "ÁÖ°Å¿ë" °ÇºÎÁö·Î ÀÌ¿ëÁßÀÓ.
4)ÀÎÁ¢ µµ·Î»óÅÂ
³²ÃøÀ¸·Î ³ëÆø ¾à 6¹ÌÅÍ ³»¿ÜÀÇ Æ÷Àåµµ·Î¿¡ Á¢ÇÔ.
5)ÅäÁöÀÌ¿ë°èȹ ¹× Á¦ÇÑ»óÅÂ
º¸Àü°ü¸®Áö¿ª(º¸Àü°ü¸®), °¡Ãà»çÀ°Á¦Çѱ¸¿ª(ÀϺÎÁ¦Çѱ¸¿ª)<°¡ÃàºÐ´¢ÀÇ °ü¸® ¹× À̿뿡 °üÇÑ
¹ý·ü>, ¿ª»ç¹®È­È¯°æº¸Á¸Áö¿ª(Çã¿ë±âÁر¸¿ª(4±¸¿ª))<¹®È­À¯»êÀÇ º¸Á¸ ¹× Ȱ¿ë¿¡ °üÇÑ ¹ý·ü>
, ¹èÃâ½Ã¼³¼³Ä¡Á¦ÇÑÁö¿ª<¹°È¯°æº¸Àü¹ý>, Áغ¸Àü»êÁö<»êÁö°ü¸®¹ý>, ÀÚ¿¬º¸Àü±Ç¿ª<¼öµµ±ÇÁ¤
ºñ°èȹ¹ý>, Ưº°´ëÃ¥Áö¿ª<ȯ°æÁ¤Ã¥±âº»¹ý>ÀÓ.
6)Á¦½Ã¸ñ·Ï ¿ÜÀÇ ¹°°Ç
ÈÄ÷ "ÁöÀû ¹× °Ç¹°°³È²µµ" ÂüÁ¶.
7)°øºÎ¿ÍÀÇ Â÷ÀÌ
ÇØ´ç»çÇ× ¾øÀ½.
8)±âŸÂü°í»çÇ×(ÀÓ´ë°ü·Ê ¹× ±âŸ)
ÀÓ´ë°ü°è´Â ¹Ì»óÀÓ.
1)°Ç¹°ÀÇ ±¸Á¶
ö±ÙÄÜÅ©¸®Æ®±¸Á¶ ö±ÙÄÜÅ©¸®Æ®ÁöºØ ÁöÇÏ 1Ãþ, Áö»ó 2ÃþÀÓ.
¿Üº®: Ä¡À庮µ¹ ºÙÀÓ ¸¶°¨ µî
âȣ: ¼¦½Ã âȣ µîÀÓ.
2)ÀÌ¿ë»óÅÂ
´Üµ¶ÁÖÅÃÀ¸·Î ÀÌ¿ë ÁßÀÓ.
3)¼³ºñ³»¿ª
À§»ý ¹× ±Þ¹è¼ö¼³ºñ µîÀÌ µÇ¾î ÀÖÀ½.
4)ºÎÇÕ¹° ¹× Á¾¹°
¾ø À½.
5)°øºÎ¿ÍÀÇ Â÷ÀÌ
¾ø À½.
6)±âŸÂü°í»çÇ×(ÀÓ´ë°ü·Ê ¹× ±âŸ)
ÀÓ´ë°ü°è´Â ¹Ì»óÀÓ.
Âü°í
»çÇ×
Àϰý¸Å°¢. Á¦½Ã¿Ü °Ç¹° Æ÷ÇÔ
Æó

°ÇÃ๰ÇöȲ

¼ÒÀçÁö °æ±âµµ ±¤Áֽà °ïÁö¾ÏÀ¾ ¿­¹Ì¸® 74-33¹øÁö
´ëÁö¸éÀû 681§³
(206.36Æò)
¿¬¸éÀû 199.26§³
(60.38Æò)
°ÇÃà¸éÀû 129.3§³
(39.18Æò)
¿ëÀû·ü»êÁ¤
¿¬¸éÀû
155.46§³
(47.11Æò)
°ÇÆóÀ² 18.99% ¿ëÀû·ü 22.83%
Áö»óÃþ¼ö 2Ãþ ÁöÇÏÃþ¼ö 1Ãþ
ÁÖ¿ëµµ ´Üµ¶ÁÖÅà ±¸Á¶ ö±ÙÄÜÅ©¸®Æ®±¸Á¶
Âø°øÀÏÀÚ 2019.12.24 »ç¿ë½ÂÀÎÀÏÀÚ 2023.01.10
°ÇÃ๰Ãþº°ÇöȲ [º¸±â]


±¹ÅäºÎ½Ç°Å·¡°¡ °æ±âµµ ±¤Áֽà °ïÁö¾ÏÀ¾

¡Ü ¸Å¸Å

¸éÀû(§³), ±Ý¾×(¸¸¿ø)

¡Ü Àü¼¼

¸éÀû(§³), ±Ý¾×(¸¸¿ø)

°è¾àÀÏÀ¯Çü¿¬¸éÀû´ëÁö±Ý¾×°ÇÃà
24.03.09´Üµ¶84.9125178,7792022
24.03.04´Üµ¶117.1333628,0002010
24.02.26´Üµ¶193.7765930,0002008
24.02.15´Üµ¶497.89139848,0001998
24.02.09´Üµ¶75.620817,0001975
¢Ñ ´õº¸±â

µî±âºÎµîº» ¿ä¾à(ÅäÁö)

  Á¢¼öÀÏÀÚ µî±â¸ñÀû/±Ç¸®ÀÚ ±Ç¸®±Ý¾× ±âÁØ
1
¿ä¿ªÁöÁö¿ª±Ç
¼Ò¸ê
2 2023³â8¿ù24ÀÏ
¼ÒÀ¯±Ç
±èOO
¼Ò¸ê
3 2023³â8¿ù24ÀÏ
±ÙÀú´ç±Ç
³²OOOO
720,000,000 ¼Ò¸ê±âÁØ
4 2024³â10¿ù11ÀÏ
ÀÓÀǰæ¸Å
³²OOOO
¼Ò¸ê
5 2025³â1¿ù21ÀÏ
¾Ð·ù
±¤OO
¼Ò¸ê

µî±âºÎµîº» ¿ä¾à(°Ç¹°)

  Á¢¼öÀÏÀÚ µî±â¸ñÀû/±Ç¸®ÀÚ ±Ç¸®±Ý¾× ±âÁØ
1 2023³â8¿ù24ÀÏ
¼ÒÀ¯±Ç
±èOO
¼Ò¸ê
2 2023³â8¿ù24ÀÏ
±ÙÀú´ç±Ç
³²OOOO
720,000,000 ¼Ò¸ê±âÁØ
3 2024³â10¿ù11ÀÏ
ÀÓÀǰæ¸Å
³²OOOO
¼Ò¸ê

ÀÓÂ÷ÀÎÇöȲ (¹è´ç¿ä±¸Á¾±âÀÏ: 2024-12-16)


Á¶»çµÈ ÀÓÂ÷³»¿ªÀÌ ¾ø½À´Ï´Ù


¿©ÀÇÁÖ°æ¸Å Á¶¾ð ÇÑ ¸¶µð

Á¦½Ã¿Ü ¹°°ÇÀÌ Æ÷ÇԵǾî ÀÖ½À´Ï´Ù
¡®Á¦½Ã¿Ü ¹°°Ç¡¯Àº ÇØ´ç °øºÎ»ó¿¡´Â Á¸ÀçÇÏÁö ¾ÊÁö¸¸, ÇöÀå¿¡ Á¸Àç°¡ È®ÀεǴ ¿©·¯ ÇüÅÂÀÇ °Ç¹°, ±â°è±â±¸ µîÀ» ¸»ÇÕ´Ï´Ù. ÀÌµé ´ëºÎºÐÀº ¹«Çã°¡, ¹«½Å°íÀ̰ųª »ç¿ë½ÂÀÎÀ» ¹ÞÁö ¾ÊÀº °ÍÀÔ´Ï´Ù. ¡®Á¦½Ã¿Ü ¹°°Ç¡¯ÀÌ °æ¸Å´ë»ó¿¡ Æ÷ÇԵǾî ÀÖ´Ù¸é ³«ÂûÀÚÀÇ ¼ÒÀ¯±Ç Ãëµæ¿¡´Â ¾Æ¹«·± ¹®Á¦°¡ ¾ø½À´Ï´Ù.

ÁÖÀÇ»çÇ× (ÃÖ¼±¼øÀ§ ¼³Á¤ÀÏ: 2023. 8. 24.±ÙÀú´ç±Ç ¼³Á¤)

¸Å°¢À¸·Î ¼Ò¸êµÇÁö ¾Ê´Â µî±âºÎ±Ç¸®:
¸Å°¢À¸·Î ¼³Á¤µÈ °ÍÀ¸·Î º¸´Â Áö»ó±Ç:
Àϰý¸Å°¢. Á¦½Ã¿Ü °Ç¹° Æ÷ÇÔ
¡Ø¹Ì³³°ü¸®ºñ(°ø¿ë) Àμö¿©ºÎ¸¦ ÀÔÂû Àü¿¡ È®ÀÎÇϽñ⠹ٶø´Ï´Ù

 

Áö¿ªºÐ¼®

ÁöÇÏö¸í Á÷¼±°Å¸®

Çб³¸í ÀüÈ­¹øÈ£ ÁÖ¼Ò Á÷¼±°Å¸®

¹ý¿ø

¼ö¿øÁö¹æ¹ý¿ø ¼º³²Áö¿ø (131-43)°æ±âµµ ¼º³²½Ã ¼öÁ¤±¸ »ê¼º´ë·Î 451 (´Ü´ëµ¿)
´ëÇ¥ : 031)737-1558, ¾ß°£ : 031)737-1120
°üÇÒÁö¿ª : ¼º³²½Ã, ±¤ÁÖ½Ã, Çϳ²½Ã

µî±â¼Ò ¼ö¿øÁö¹æ¹ý¿ø ¼º³²Áö¿ø ±¤ÁÖµî±â¼Ò (´ëÇ¥:1544-0773, ÆÑ½º:(031)765-2388, °æ±âµµ ±¤Áֽà ÇàÁ¤Å¸¿î·Î 49-15 (¼ÛÁ¤µ¿ 346-4))
¼¼¹«¼­ °æ±â±¤ÁÖ¼¼¹«¼­ (´ëÇ¥:031-880-92, ÆÑ½º:031-769-0417, °æ±âµµ ±¤Áֽà ¹®È­·Î 127)

Àαٳ«ÂûÅë°è

±â°£ ¸Å°¢°Ç¼ö Æò±Õ°¨Á¤°¡
Æò±Õ¸Å°¢°¡
¸Å°¢°¡À²
Æò±ÕÀ¯Âû¼ö
3°³¿ù 4°Ç 659,834,708¿ø
417,163,750¿ø
63%
1.8ȸ
6°³¿ù 6°Ç 832,779,456¿ø
478,217,500¿ø
61%
1.8ȸ
12°³¿ù 6°Ç 832,779,456¿ø
478,217,500¿ø
61%
1.8ȸ


º» °æ¸ÅÁ¤º¸´Â ¹ý¿øÀÚ·á¿Í ÀÏÄ¡Çϵµ·Ï ÇÏ¿´À¸³ª ±Ç¸®»çÇ׺¯µ¿, ÀÔ·ÂÂø¿À µîÀÇ ¿øÀÎÀ¸·Î »ç½Ç°ú ´Ù¸¦ ¼ö ÀÖ½À´Ï´Ù. ÀÌ¿ë¾à°ü¿¡ ÀǰЏéÃ¥Á¶°ÇÀ¸·Î Á¦°øµÊÀ» ¾Ë¸®¸ç, °æ¸ÅÀÔÂû½Ã ¹Ýµå½Ã °ü·Ã °øºÎ¸¦ ÀçÈ®ÀÎÇϽñ⠹ٶø´Ï´Ù. º¸´Ù Æí¸®ÇÑ °æ¸ÅÁ¤º¸ Á¦°øÀ» À§ÇØ Áö¼ÓÀûÀ¸·Î °³¼±ÇϰڽÀ´Ï´Ù. ÀÌ¿ëÇØ Áּż­ °¨»çÇÕ´Ï´Ù.