·Î±×ÀÎ
65
¾ÆÆÄÆ®
´ëÀüÁö¹æ¹ý¿ø õ¾ÈÁö¿ø
 °¨Á¤°¡333,000,000 ¿ø
 ÃÖÀú°¡(70%) 233,100,000 ¿ø
 º¸Áõ±Ý(10%) 23,310,000 ¿ø
 Ã»±¸¾×155,876,397 ¿ø
ÃæÃ»³²µµ ¾Æ»ê½Ã ¹è¹æÀ¾ ÀåÀç·Î 27, 1102µ¿ 17Ãþ1701È£ (õ¾È¾Æ»ê¿ª ¸®½´ºô)
ÃæÃ»³²µµ ¾Æ»ê½Ã ¹è¹æÀ¾ ÀåÀ縮 1844
»ç°Ç¹øÈ£ 2024Ÿ°æ114471
Áߺ¹»ç°ÇÁߺ¹ 2025Ÿ°æ402,
°æ¸ÅÁ¾·ùºÎµ¿»êÀÓÀǰæ¸Å
¸Å°¢´ë»óÅäÁö ¹× °Ç¹°Àϰý ¸Å°¢
¸Å°¢±âÀÏ    2025.11.24(¿ù) 10:00 ÀÔÂû 1ÀÏÀü    
ÅäÁö¸éÀû60.81§³(18.39 Æò)
°Ç¹°¸éÀû84.11§³(25.44 Æò)
乫/¼ÒÀ¯ÀÚ±èOO / ±èOO
ä±ÇÀÚÁÖOOO OOOOOOOOO¿Ü 1¸í
ÆäÀ̽ººÏ Æ®À§ÅÍ ±¸±Û+
īī¿À½ºÅ丮
īī¿ÀÅå sms¹®ÀÚº¸³»±â
 

±âÀϳ»¿ª

°æ°ú ³¯Â¥ Àú°¨ ÃÖÀú°¡ °á°ú
Á¢¼öÀÏ 2024-10-15 °æ¸ÅÁ¢¼ö
~2ÀÏ 
2024-10-17 °æ¸Å°³½Ã°áÁ¤
~97ÀÏ 
2025-01-20 ¹è´ç¿ä±¸Á¾±âÀÏ
~370ÀÏ 
2025-10-20 100%
333,000,000
À¯Âû
~405ÀÏ 
2025-11-24 70%
233,100,000
ÁøÇà
¹°°Ç¸í¼¼¼­ ÇöȲÁ¶»ç¼­ ¹®°ÇÁ¢¼ö ¼Û´Þ³»¿ª

°¨Á¤Æò°¡ÇöȲ

¸ñ·Ï ÁÖ¼Ò ±¸Á¶/¿ëµµ/´ëÁö±Ç ¸éÀû ºñ°í
´ëÁö±Ç
ÀåÀ縮 1844 49559.4ºÐÀÇ 60.8086 60.8086 §³
(18.39Æò)
°Ç¹°
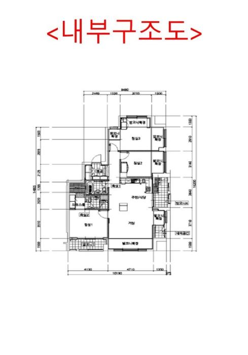
ÀåÀ縮 1844 1102µ¿ 17Ãþ1701È£ ö±ÙÄÜÅ©¸®Æ®±¸Á¶ 84.11 §³
(25.44Æò)
1) À§Ä¡/µµ½ÃÁö¿ª/Á¦3Á¾ÀϹÝÁÖ°ÅÁö¿ª/Áö±¸´ÜÀ§°èȹ±¸¿ª/ÁÖÂ÷Àå/ö±ÙÄÜÅ©¸®Æ®±¸Á¶ ´õº¸±â
°¨Á¤Æò°¡ ¿äÇ×Ç¥
1)À§Ä¡ ¹× ÁÖÀ§È¯°æ
º»°ÇÀº ÃæÃ»³²µµ õ¾È½Ã ¼­ºÏ±¸ ½Ö¿ëµ¿ ¼ÒÀç "õ¾È½Ö¿ë°íµîÇб³" ³²¼­Ãø Àαٿ¡ À§Ä¡Çϸç ÁÖÀ§´Â ¾ÆÆÄÆ®´ÜÁö,ÁÖÅÃ,±Ù¸°»ó°¡µîÀÌ ¼ÒÀçÇϰí ÀÖÀ½.
2)±³Åë»óȲ
Àαٿ¡ ½Ã³»¹ö½º ½Â°­ÀåÀÌ ¼ÒÀçÇÏ´Â µî Á¦¹Ý ±³Åë»óȲÀº º¸ÅëÀÓ.
3)°Ç¹°ÀÇ ±¸Á¶
ö±ÙÄÜÅ©¸®Æ®±¸Á¶ (ö±Ù)ÄÜÅ©¸®Æ®ÆòÁöºØ 20Ãþ °øµ¿ÁÖÅÃ(¾ÆÆÄÆ®)ÀÇ Á¦17Ãþ Á¦1701È£·Î

¿Üº®:½Ã¸àÆ®¸ôÅ»À§ ÆäÀÎÆ®¸¶°¨µî
³»º®:º®Áö ¹× ÀϺΟÀϸ¶°¨µî
âȣ:¼¦½Ãâȣµî
4)ÀÌ¿ë»óÅÂ
¾ÆÆÄÆ® 1°³È£·Î ÀÌ¿ëÁßÀÓ.
5)¼³ºñ³»¿ª
±âº»ÀûÀÎ Àü±â¼³ºñ,³Ã³­¹æ¼³ºñ,¼Ò¹æ¼³ºñ,À§»ý¼³ºñ, ±Þ¼ö ¹× ¹è¼ö½Ã¼³, °¡½º¼³ºñ,½Â°­±â¼³ºñ,ÁÖÂ÷Àå¼³ºñµîÀÌ ¼³Ä¡µÇ¾î ÀÖÀ½.
6)ÅäÁöÀÇ Çü»ó ¹× ÀÌ¿ë»óÅÂ
ºÎÁ¤ÇüÅäÁö·Î ¾ÆÆÄÆ®´ÜÁöÀÇ °ÇºÎÁö·Î ÀÌ¿ëÁßÀÓ.
7)ÀÎÁ¢ µµ·Î»óŵî
³²Ãø°ú ¼­ÃøÀ¸·Î ¼Ò·Î¿¡ Á¢ÇØÀÖÀ¸¸ç ºÏÃøÀ¸·Î Á߷ο¡ Á¢ÇØÀÖÀ½.
8)ÅäÁöÀÌ¿ë°èȹ ¹× Á¦ÇÑ»óÅÂ
µµ½ÃÁö¿ª , Á¦3Á¾ÀϹÝÁÖ°ÅÁö¿ª , Áö±¸´ÜÀ§°èȹ±¸¿ª(¾Æ»ê¹è¹æ) , Áß·Î1·ù(Æø 20m-25m)(2015-01-20)(Áß·Î1-13)(Á¢ÇÕ) , Áß·Î2·ù(Æø 15m-20m)(Á¢ÇÕ)
°¡Ãà»çÀ°Á¦Çѱ¸¿ª(2021-07-22)(ÀüºÎÁ¦Çѱ¸¿ª)<°¡ÃàºÐ´¢ÀÇ °ü¸® ¹× À̿뿡 °üÇÑ ¹ý·ü>, »ó´ëº¸È£±¸¿ª((°¡Äª)ÇÑ¿©¿ïÇб³)<±³À°È¯°æ º¸È£¿¡ °üÇÑ ¹ý·ü>, »ó´ëº¸È£±¸¿ª(2017-05-15)(õ¾È½Ö¿ë°íµîÇб³ »ó´ëÁ¤È­±¸¿ª)<±³À°È¯°æ º¸È£¿¡ °üÇÑ ¹ý·ü>, »ó´ëº¸È£±¸¿ª(2017-05-15)(õ¾È½ÖÁ¤ÃʵîÇб³ »ó´ëÁ¤È­±¸¿ª)<±³À°È¯°æ º¸È£¿¡ °üÇÑ ¹ý·ü>, ÅÃÁö°³¹ßÁö±¸<ÅÃÁö°³¹ßÃËÁø¹ý>
ÁßÁ¡°æ°ü°ü¸®±¸¿ª(¾Æ»ê½Åµµ½Ã)
<Ãß°¡±âÀç>°æ°èÁߺ¹¿¡ µû¶ó ¿ëµµÁö¿ªÀÌ Áߺ¹ ¹ß±ÞµÉ ¼ö ÀÖÀ¸´Ï °ü·Ã½Ç°ú¿¡ È®Àιٶø´Ï´Ù.
9)°øºÎ¿ÍÀÇ Â÷ÀÌ
-.
10)±âŸÂü°í»çÇ×(ÀÓ´ë°ü·Ê ¹× ±âŸ)
-.±¸Ã¼ÀûÀÎ ÀÓ´ëÂ÷ °ü°è´Â ¹Ì»óÀÓ.

Âü°í
»çÇ×

¢ÄÇöȲ:°øºÎ»ó°ú °°À½. ¢Ä»ç¿ë¿ëµµ:°øµ¿ÁÖÅÃ.

°ÇÃ๰ÇöȲ

¼ÒÀçÁö ÃæÃ»³²µµ ¾Æ»ê½Ã ¹è¹æÀ¾ ÀåÀ縮 1844¹øÁö
´ëÁö¸éÀû   ¿¬¸éÀû 7321.66§³
(2218.68Æò)
°ÇÃà¸éÀû 621.64§³
(188.38Æò)
¿ëÀû·ü»êÁ¤
¿¬¸éÀû
6921.94§³
(2097.56Æò)
°ÇÆóÀ²   ¿ëÀû·ü  
Áö»óÃþ¼ö 18Ãþ ÁöÇÏÃþ¼ö 3Ãþ
ÁÖ¿ëµµ °øµ¿ÁÖÅà ±¸Á¶ ö±ÙÄÜÅ©¸®Æ®±¸Á¶
Âø°øÀÏÀÚ 2008.07.28 »ç¿ë½ÂÀÎÀÏÀÚ 2010.09.15


±¹ÅäºÎ½Ç°Å·¡°¡ ÃæÃ»³²µµ ¾Æ»ê½Ã ¹è¹æÀ¾

¡Ü ¸Å¸Å

¸éÀû(§³), ±Ý¾×(¸¸¿ø)

¡Ü Àü¼¼

¸éÀû(§³), ±Ý¾×(¸¸¿ø)

°è¾àÀÏARTÃþÀü¿ë±Ý¾×°ÇÃà
24.03.29õ¾È¾Æ»ê¿ª ¸®½´ºô1584.1132,0002010
24.03.24õ¾È¾Æ»ê¿ª ¸®½´ºô784.1130,5002010
24.03.22õ¾È¾Æ»ê¿ª ¸®½´ºô1184.1131,0002010
24.03.10õ¾È¾Æ»ê¿ª ¸®½´ºô1274.3227,0002010
24.03.06õ¾È¾Æ»ê¿ª ¸®½´ºô1484.1533,3002010
¢Ñ ´õº¸±â

µî±âºÎµîº» ¿ä¾à(°Ç¹°)

  Á¢¼öÀÏÀÚ µî±â¸ñÀû/±Ç¸®ÀÚ ±Ç¸®±Ý¾× ±âÁØ
1 2016³â10¿ù6ÀÏ
¼ÒÀ¯±Ç
±èOO
¼Ò¸ê
2 2016³â10¿ù6ÀÏ
±ÙÀú´ç±Ç
(OOOO
190,740,000 ¼Ò¸ê±âÁØ
3 2020³â11¿ù5ÀÏ
±ÙÀú´ç±Ç
(OOOO
50,400,000 ¼Ò¸ê
4 2021³â3¿ù12ÀÏ
±ÙÀú´ç±Ç
(OOOO
52,800,000 ¼Ò¸ê
5 2021³â11¿ù25ÀÏ
±ÙÀú´ç±Ç
(OOOO
80,400,000 ¼Ò¸ê
6 2022³â2¿ù18ÀÏ
±ÙÀú´ç±Ç
(OOOO
24,000,000 ¼Ò¸ê
7 2024³â9¿ù25ÀÏ
°¡¾Ð·ù
ÃæOOOO
81,000,000 ¼Ò¸ê
8 2024³â9¿ù27ÀÏ
°¡¾Ð·ù
½ÅOOOO
97,694,441 ¼Ò¸ê
9 2024³â10¿ù17ÀÏ
ÀÓÀǰæ¸Å
(OOOO
¼Ò¸ê
10 2024³â10¿ù21ÀÏ
°¡¾Ð·ù
½ÅOOOO
8,444,436 ¼Ò¸ê
11 2025³â3¿ù6ÀÏ
ÀÓÀǰæ¸Å
(OOOO
¼Ò¸ê
12 2025³â8¿ù27ÀÏ
¾Ð·ù
±¹OOOO
¼Ò¸ê
13 2025³â9¿ù11ÀÏ
¾Ð·ù
±¹
¼Ò¸ê

ÀÓÂ÷ÀÎÇöȲ (¹è´ç¿ä±¸Á¾±âÀÏ: 2025-01-20)


Á¶»çµÈ ÀÓÂ÷³»¿ªÀÌ ¾ø½À´Ï´Ù


¿©ÀÇÁÖ°æ¸Å Á¶¾ð ÇÑ ¸¶µð


ÁÖÀÇ»çÇ× (ÃÖ¼±¼øÀ§ ¼³Á¤ÀÏ: 2016. 10. 6. ±ÙÀú´ç±Ç ¼³Á¤)

¸Å°¢À¸·Î ¼Ò¸êµÇÁö ¾Ê´Â µî±âºÎ±Ç¸®:
¸Å°¢À¸·Î ¼³Á¤µÈ °ÍÀ¸·Î º¸´Â Áö»ó±Ç:
¡Ø¹Ì³³°ü¸®ºñ(°ø¿ë) Àμö¿©ºÎ¸¦ ÀÔÂû Àü¿¡ È®ÀÎÇϽñ⠹ٶø´Ï´Ù

 

Áö¿ªºÐ¼®

ÁöÇÏö¸í Á÷¼±°Å¸®

Çб³¸í ÀüÈ­¹øÈ£ ÁÖ¼Ò Á÷¼±°Å¸®

¹ý¿ø

´ëÀüÁö¹æ¹ý¿ø Ãµ¾ÈÁö¿ø (311-98)ÃæÃ»³²µµ õ¾È½Ã µ¿³²±¸ û¼ö14·Î 77 (û´çµ¿ 476)
´ëÇ¥ : 041)620-3000, ¹Î¿ø : 041)620-3058
°üÇÒÁö¿ª : õ¾È½Ã, ¾Æ»ê½Ã

µî±â¼Ò ´ëÀüÁö¹æ¹ý¿ø Ãµ¾ÈÁö¿ø ¾Æ»êµî±â¼Ò (´ëÇ¥:1544-0773, ÆÑ½º:(041)546-2695, Ãæ³² ¾Æ»ê½Ã ¿ëÈ­·Î76¹ø±æ 7 (¿ëÈ­µ¿ 970))
¼¼¹«¼­ ¾Æ»ê¼¼¹«¼­ (´ëÇ¥:041-536-72, ÆÑ½º:041-533-1351, ÃæÃ»³²µµ ¾Æ»ê½Ã ¹è¹æÀ¾ ¹è¹æ·Î 57-29(°ø¼ö¸® 280-5))

Àαٳ«ÂûÅë°è

±â°£ ¸Å°¢°Ç¼ö Æò±Õ°¨Á¤°¡
Æò±Õ¸Å°¢°¡
¸Å°¢°¡À²
Æò±ÕÀ¯Âû¼ö
3°³¿ù 35°Ç 100,494,286¿ø
75,089,356¿ø
68%
1.9ȸ
6°³¿ù 72°Ç 166,156,944¿ø
131,348,215¿ø
73%
1.6ȸ
12°³¿ù 144°Ç 175,021,861¿ø
139,965,613¿ø
76%
1.4ȸ


º» °æ¸ÅÁ¤º¸´Â ¹ý¿øÀÚ·á¿Í ÀÏÄ¡Çϵµ·Ï ÇÏ¿´À¸³ª ±Ç¸®»çÇ׺¯µ¿, ÀÔ·ÂÂø¿À µîÀÇ ¿øÀÎÀ¸·Î »ç½Ç°ú ´Ù¸¦ ¼ö ÀÖ½À´Ï´Ù. ÀÌ¿ë¾à°ü¿¡ ÀǰЏéÃ¥Á¶°ÇÀ¸·Î Á¦°øµÊÀ» ¾Ë¸®¸ç, °æ¸ÅÀÔÂû½Ã ¹Ýµå½Ã °ü·Ã °øºÎ¸¦ ÀçÈ®ÀÎÇϽñ⠹ٶø´Ï´Ù. º¸´Ù Æí¸®ÇÑ °æ¸ÅÁ¤º¸ Á¦°øÀ» À§ÇØ Áö¼ÓÀûÀ¸·Î °³¼±ÇϰڽÀ´Ï´Ù. ÀÌ¿ëÇØ Áּż­ °¨»çÇÕ´Ï´Ù.