·Î±×ÀÎ
66
¿ÀÇǽºÅÚ
¼­¿ïµ¿ºÎÁö¹æ¹ý¿ø
 °¨Á¤°¡334,000,000 ¿ø
 ÃÖÀú°¡(64%) 213,760,000 ¿ø
 º¸Áõ±Ý(10%) 21,376,000 ¿ø
 Ã»±¸¾×330,000,000 ¿ø
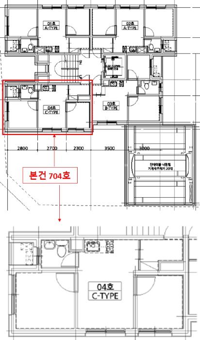
¼­¿ïƯº°½Ã °­µ¿±¸ ¾çÀç´ë·Î102±æ 17, 7Ãþ704È£ (µÐÃ̵¿,ÇÑ¿ïµÐÃ̺£¾ÆÃ¼)
¼­¿ïƯº°½Ã °­µ¿±¸ µÐÃ̵¿ 435-1
»ç°Ç¹øÈ£ 2024Ÿ°æ61862
°æ¸ÅÁ¾·ùºÎµ¿»ê°­Á¦°æ¸Å
¸Å°¢´ë»óÅäÁö ¹× °Ç¹°Àϰý ¸Å°¢
¸Å°¢±âÀÏ    2026.01.12(¿ù) 10:00 ÀÔÂû 38ÀÏÀü    
ÅäÁö¸éÀû9.20§³(2.78 Æò)
°Ç¹°¸éÀû27.41§³(8.29 Æò)
乫/¼ÒÀ¯ÀÚÀÌOO / ÀÌOO
ä±ÇÀÚÁÖOOOOOOO
ÆäÀ̽ººÏ Æ®À§ÅÍ ±¸±Û+
īī¿À½ºÅ丮
īī¿ÀÅå sms¹®ÀÚº¸³»±â
 

±âÀϳ»¿ª

°æ°ú ³¯Â¥ Àú°¨ ÃÖÀú°¡ °á°ú
Á¢¼öÀÏ 2024-09-27 °æ¸ÅÁ¢¼ö
~3ÀÏ 
2024-09-30 °æ¸Å°³½Ã°áÁ¤
~82ÀÏ 
2024-12-18 ¹è´ç¿ä±¸Á¾±âÀÏ
~388ÀÏ 
2025-10-20 100%
334,000,000
À¯Âû
~423ÀÏ 
2025-11-24 80%
267,200,000
À¯Âû
~472ÀÏ 
2026-01-12 64%
213,760,000
ÁøÇà
¹°°Ç¸í¼¼¼­ ÇöȲÁ¶»ç¼­ ¹®°ÇÁ¢¼ö ¼Û´Þ³»¿ª

°¨Á¤Æò°¡ÇöȲ

¸ñ·Ï ÁÖ¼Ò ±¸Á¶/¿ëµµ/´ëÁö±Ç ¸éÀû ºñ°í
´ëÁö±Ç
µÐÃ̵¿ 435-1 411.3ºÐÀÇ 9.2 9.2 §³
(2.78Æò)
°Ç¹°
µÐÃ̵¿ 435-1 7Ãþ704È£ ö±ÙÄÜÅ©¸®Æ®±¸Á¶ 27.41 §³
(8.29Æò)
1) À§Ä¡/µµ½ÃÁö¿ª/ÁØÁÖ°ÅÁö¿ª/Áö±¸´ÜÀ§°èȹ±¸¿ª/¹ö½ºÁ¤·ùÀå/ö±ÙÄÜÅ©¸®Æ®Á¶ ´õº¸±â
°¨Á¤Æò°¡ ¿äÇ×Ç¥
1)À§Ä¡ ¹× ÁÖÀ§È¯°æ
º» °ÇÀº ¼­¿ïƯº°½Ã °­µ¿±¸ µÐÃ̵¿ ¼ÒÀç "¼­¿ïÇÑ»êÃʵîÇб³" Àαٿ¡ À§Ä¡ÇÏ´Â ±¸ºÐ°Ç¹° 1°³È£(¿ÀÇǽºÅÚ)·Î¼­, ÁÖÀ§´Â ´Ù¼¼´ëÁÖÅÃ, ¾ÆÆÄÆ®, ±Ù¸°»ýȰ½Ã¼³ µîÀÌ ¼ÒÀçÇϰí ÀÖÀ½.
2)±³Åë»óȲ
º»°Ç±îÁö Â÷·®ÁøÀÔÀÌ °¡´ÉÇϸç Àαٿ¡ ¹ö½ºÁ¤·ùÀåÀÌ ¼ÒÀçÇÏ´Â µî Á¦¹Ý ´ëÁß ±³Åë»çÁ¤Àº º¸ÅëÀÓ.
3)°Ç¹°ÀÇ ±¸Á¶
±¸Á¶: ö±ÙÄÜÅ©¸®Æ®Á¶ ö±ÙÄÜÅ©¸®Æ®ÁöºØ
»ç¿ë½ÂÀÎÀÏ : 2021-07-20

4)ÀÌ¿ë»óÅÂ
¿ÀÇǽºÅÚ·Î »ç¿ëÁßÀÓ.
5)¼³ºñ³»¿ª
³­¹æ¼³ºñ, À§»ý ¹× ±Þ¹è¼ö½Ã¼³ µî ¼³ºñ°¡ ÀÖÀ½.
6)ÅäÁöÀÇ Çü»ó ¹× ÀÌ¿ë»óÅÂ
º»°ÇÀº ÆòÁöÀÇ Á¤¹æÇü ÅäÁö·Î¼­, ¿ÀÇǽºÅÚ µî °ÇºÎÁö·Î ÀÌ¿ëÁßÀÓ.
7)ÀÎÁ¢ µµ·Î»óŵî
º»°ÇÀº Æ÷Àåµµ·Î¿¡ Á¢ÇØÀÖÀ¸¸ç, Â÷·®ÁøÀÔ °¡´ÉÇÔ.
8)ÅäÁöÀÌ¿ë°èȹ ¹× Á¦ÇÑ»óÅÂ
µµ½ÃÁö¿ª, ÁØÁÖ°ÅÁö¿ª(2004-11-05), Áö±¸´ÜÀ§°èȹ±¸¿ª(õȣÁö±¸), ¼Ò·Î1·ù(Æø 10m-12m)(Á¢ÇÕ), ¼Ò·Î3·ù(Æø 8m ¹Ì¸¸)(Á¢ÇÕ) °¡Ãà»çÀ°Á¦Çѱ¸¿ª(2014-06-25)<°¡ÃàºÐ´¢ÀÇ °ü¸® ¹× À̿뿡 °üÇÑ ¹ý·ü>, ±³À°È¯°æº¸È£±¸¿ª<±³À°È¯°æ º¸È£¿¡ °üÇÑ ¹ý·ü>, ´ë°ø¹æ¾îÇùÁ¶±¸¿ª(À§Å¹°íµµ:ÇØ¹ß163m(Áö¹Ý+°ÇÃà+¿Áž µî))<±º»ç±âÁö ¹× ±º»ç½Ã¼³ º¸È£¹ý>, ºñÇà¾ÈÀüÁ¦3±¸¿ª(Àü¼ú)<±º»ç±âÁö ¹× ±º»ç½Ã¼³ º¸È£¹ý>, °ú¹Ð¾ïÁ¦±Ç¿ª<¼öµµ±ÇÁ¤ºñ°èȹ¹ý>, °øÀå¼³¸³½ÂÀÎÁö¿ª(2016-11-28)(2È£)<¼öµµ¹ý> ÀÓ.
9)°øºÎ¿ÍÀÇ Â÷ÀÌ
-
10)±âŸÂü°í»çÇ×(ÀÓ´ë°ü·Ê ¹× ±âŸ)
-

°ÇÃ๰ÇöȲ

¼ÒÀçÁö ¼­¿ïƯº°½Ã °­µ¿±¸ µÐÃ̵¿ 435-1¹øÁö
´ëÁö¸éÀû 411.3§³
(124.64Æò)
¿¬¸éÀû 1659.22§³
(502.79Æò)
°ÇÃà¸éÀû 200.05§³
(60.62Æò)
¿ëÀû·ü»êÁ¤
¿¬¸éÀû
1475.36§³
(447.08Æò)
°ÇÆóÀ² 48.64% ¿ëÀû·ü 358.71%
Áö»óÃþ¼ö 12Ãþ ÁöÇÏÃþ¼ö 1Ãþ
ÁÖ¿ëµµ ¾÷¹«½Ã¼³ ±¸Á¶ ö±ÙÄÜÅ©¸®Æ®±¸Á¶
Âø°øÀÏÀÚ 2019.09.16 »ç¿ë½ÂÀÎÀÏÀÚ 2021.07.20
°ÇÃ๰Ãþº°ÇöȲ [º¸±â]


±¹ÅäºÎ½Ç°Å·¡°¡ ¼­¿ïƯº°½Ã °­µ¿±¸ µÐÃ̵¿

¡Ü ¸Å¸Å

¸éÀû(§³), ±Ý¾×(¸¸¿ø)

¡Ü Àü¼¼

¸éÀû(§³), ±Ý¾×(¸¸¿ø)

°è¾àÀϰǹ°¸íĪÃþÀü¿ëº¸Áõ±Ý¿ù¼¼°ÇÃà
25.11.07ÇÑ¿ïµÐÃ̺£¾ÆÃ¼727.9520,25002021
25.07.17ÇÑ¿ïµÐÃ̺£¾ÆÃ¼1227.955,0001162021
24.02.20ÇÑ¿ïµÐÃ̺£¾ÆÃ¼1227.4130,00002021

µî±âºÎµîº» ¿ä¾à(°Ç¹°)

  Á¢¼öÀÏÀÚ µî±â¸ñÀû/±Ç¸®ÀÚ ±Ç¸®±Ý¾× ±âÁØ
1 2021³â10¿ù7ÀÏ
¼ÒÀ¯±Ç
ÀÌOO
¼Ò¸ê
2 2021³â10¿ù7ÀÏ
¾àÁ¤/±ÝÁö»çÇ×/ȯ¸ÅƯ¾à
Àμö
3 2023³â8¿ù30ÀÏ
ÀÓÂ÷±Ç¼³Á¤
¾ÈOO
330,000,000 Àμö
4 2024³â9¿ù30ÀÏ
°­Á¦°æ¸Å
ÁÖOOOO
¼Ò¸ê±âÁØ

ÀÓÂ÷ÀÎÇöȲ (¹è´ç¿ä±¸Á¾±âÀÏ: 2024-12-18)

ÀÓÂ÷ÀÎ ¿ëµµ/Á¡À¯ º¸Áõ±Ý/¿ù¼¼ ´ëÇ×·Â
ÀüÀÔÀÏ/È®Á¤ÀÏ ¹è´ç¿ä±¸ ºñ°í
¾ÈOO 704È£ 330,000,000
O
2021.09.07.
2021.08.31.
2021.10.07.~
ÁÖOOOOOOOOOOOO 704È£ 330,000,000
O
2021.09.07.
2021.08.31.
2024.12.10. 2021.10.07.~2023.10.07.
ºñ°í
(¸Å°¢¹°°Ç
¸í¼¼¼­)
¾ÈÀç¹ü:ÁÖÅÃÀÓÂ÷±ÇÀڷμ­ ÀÓÂ÷±Çµî±âÀÏÀº 2023.08.30.ÀÓ ÁÖÅõµ½Ãº¸Áõ°ø»ç(¾ÈÀç¹ü):°æ¸Å½Åûä±ÇÀÚ·Î ÀÓÂ÷±ÇÀÚ ¾ÈÀç¹üÀÇ ÀÓÂ÷º¸Áõ±ÝÀ» ´ëÀ§º¯Á¦ÇÏ¿© °æ¸Å½Åû. ¹è´ç¿ä±¸ÀÏÀÚ´Â °æ¸Å½Å ûÀÏÀÓ.

¿©ÀÇÁÖ°æ¸Å Á¶¾ð ÇÑ ¸¶µð

¼±¼øÀ§ ÀÓÂ÷±Çµî±â°¡ µÇ¾î ÀÖ½À´Ï´Ù
´ëÇ×·ÂÀÌ ÀÖ´Â ¼±¼øÀ§ ÀÓÂ÷±Çµî±â ±Ç¸®ÀÚ°¡ ¹è´çÀ» Àü¾× ¹ÞÁö ¸øÇÒ °æ¿ì ³«ÂûÀÚ°¡ ÀÜ¿© º¸Áõ±ÝÀ» ÀμöÇØ¾ßÇÏ´Â °æ¿ìµµ ÀÖ½À´Ï´Ù.

ÁÖÀÇ»çÇ× (ÃÖ¼±¼øÀ§ ¼³Á¤ÀÏ: 2024.09.30. °­Á¦°æ¸Å°³½Ã ¼³Á¤ °áÁ¤)

¸Å°¢À¸·Î ¼Ò¸êµÇÁö ¾Ê´Â µî±âºÎ±Ç¸®: ¸Å¼öÀο¡°Ô ´ëÇ×ÇÒ ¼ö ÀÖ´Â À»±¸ 5¹ø ÀÓÂ÷±Çµî±â(2023.08.30.Á¢¼ö Á¦128684È£)°¡ ÀÖÀ¸¹Ç·Î ¹è´ç¿¡¼­ Àü¾× º¯Á¦µÇÁö ¾Æ´ÏÇϸé Àܾ×À» ¸Å¼öÀÎÀÌ ÀμöÇÔ
¸Å°¢À¸·Î ¼³Á¤µÈ °ÍÀ¸·Î º¸´Â Áö»ó±Ç: ÇØ´ç»çÇ×¾øÀ½
¡Ø¹Ì³³°ü¸®ºñ(°ø¿ë) Àμö¿©ºÎ¸¦ ÀÔÂû Àü¿¡ È®ÀÎÇϽñ⠹ٶø´Ï´Ù

 

Áö¿ªºÐ¼®

ÁöÇÏö¸í Á÷¼±°Å¸®

Çб³¸í ÀüÈ­¹øÈ£ ÁÖ¼Ò Á÷¼±°Å¸®

¹ý¿ø

¼­¿ïµ¿ºÎÁö¹æ¹ý¿ø (058-56)¼­¿ïƯº°½Ã ¼ÛÆÄ±¸ ¹ý¿ø·Î 101 (¹®Á¤µ¿)
´ëÇ¥ : 02)2204-2114, ¾ß°£ : 02)2204-2701
°üÇÒÁö¿ª : ¼ºµ¿±¸, ±¤Áø±¸, °­µ¿±¸, ¼ÛÆÄ±¸

µî±â¼Ò ¼­¿ïµ¿ºÎÁö¹æ¹ý¿ø º»¿ø µî±â±¹ (´ëÇ¥:1544-0773, ÆÑ½º:(02)2204-2181, ¼­¿ïƯº°½Ã ¼ÛÆÄ±¸ ¹ý¿ø·Î 101 (¹®Á¤µ¿ 650))
¼¼¹«¼­ °­µ¿¼¼¹«¼­ (´ëÇ¥:02-2224-02, ÆÑ½º:02-489-3251, ¼­¿ïƯº°½Ã °­µ¿±¸ õȣ´ë·Î 1139 (±æµ¿))

Àαٳ«ÂûÅë°è

±â°£ ¸Å°¢°Ç¼ö Æò±Õ°¨Á¤°¡
Æò±Õ¸Å°¢°¡
¸Å°¢°¡À²
Æò±ÕÀ¯Âû¼ö
3°³¿ù 5°Ç 162,200,000¿ø
134,106,200¿ø
87%
2ȸ
6°³¿ù 8°Ç 167,250,000¿ø
151,712,000¿ø
92%
1.5ȸ
12°³¿ù 8°Ç 167,250,000¿ø
151,712,000¿ø
92%
1.5ȸ


º» °æ¸ÅÁ¤º¸´Â ¹ý¿øÀÚ·á¿Í ÀÏÄ¡Çϵµ·Ï ÇÏ¿´À¸³ª ±Ç¸®»çÇ׺¯µ¿, ÀÔ·ÂÂø¿À µîÀÇ ¿øÀÎÀ¸·Î »ç½Ç°ú ´Ù¸¦ ¼ö ÀÖ½À´Ï´Ù. ÀÌ¿ë¾à°ü¿¡ ÀǰЏéÃ¥Á¶°ÇÀ¸·Î Á¦°øµÊÀ» ¾Ë¸®¸ç, °æ¸ÅÀÔÂû½Ã ¹Ýµå½Ã °ü·Ã °øºÎ¸¦ ÀçÈ®ÀÎÇϽñ⠹ٶø´Ï´Ù. º¸´Ù Æí¸®ÇÑ °æ¸ÅÁ¤º¸ Á¦°øÀ» À§ÇØ Áö¼ÓÀûÀ¸·Î °³¼±ÇϰڽÀ´Ï´Ù. ÀÌ¿ëÇØ Áּż­ °¨»çÇÕ´Ï´Ù.